Размещено на портале Архи.ру (www.archi.ru)

15.02.2017

Перекресток высшего образования

Нина Фролова
Объект:
Кампус Центральноевропейского университета – реконструкция
Адрес:
Венгрия, None, Будапешт.
Мастерская:
O'Donnell + Tuomey

Кампус Центральноевропейского университета в Будапеште реконструирован ирландским бюро O'Donnell + Tuomey.

Кампус Центральноевропейского университета © Tamás Bujnovszky
Кампус Центральноевропейского университета © Tamás Bujnovszky

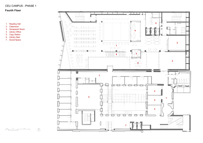
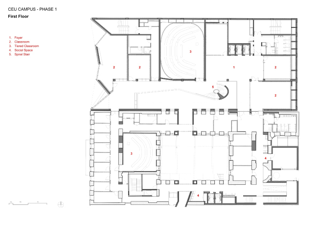
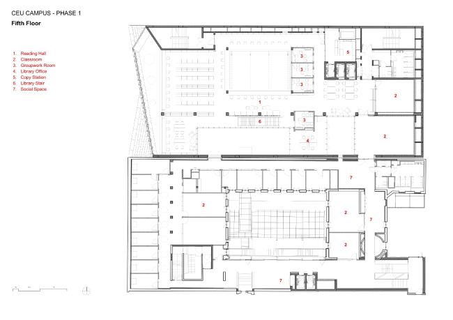
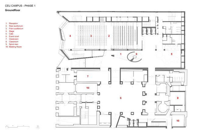
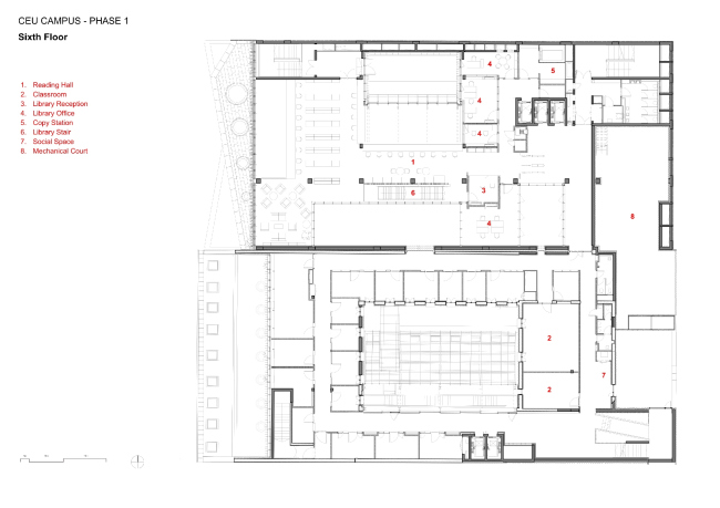
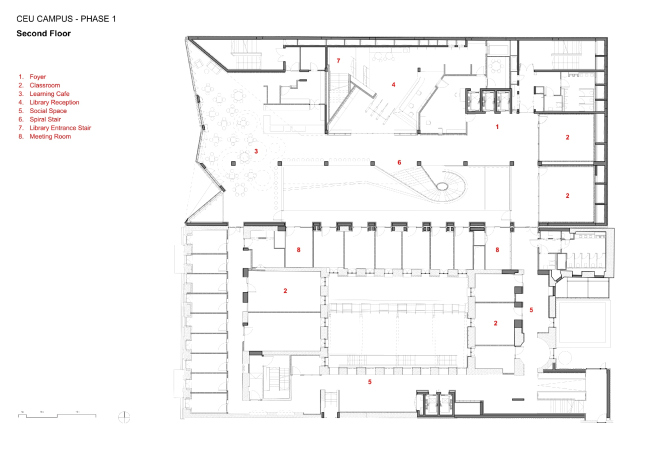
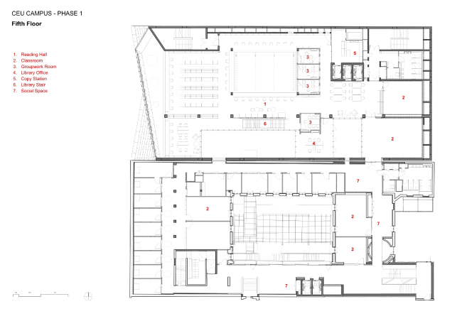
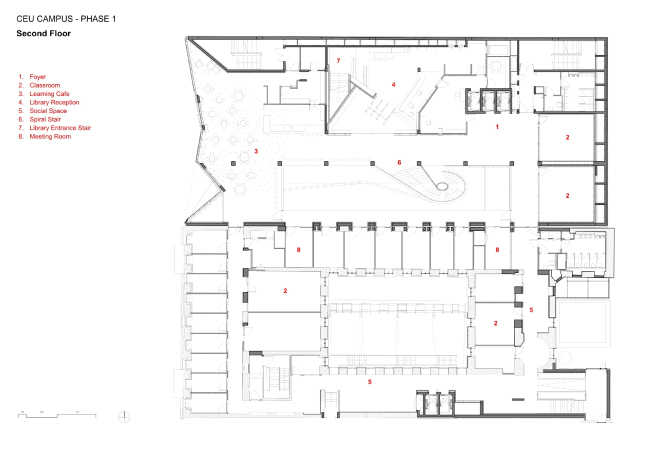
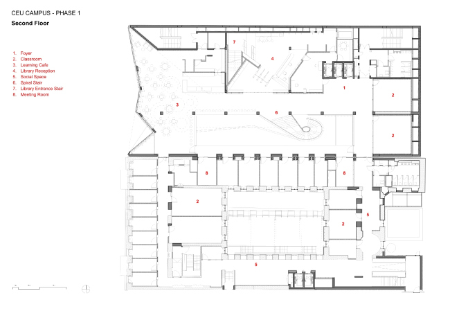
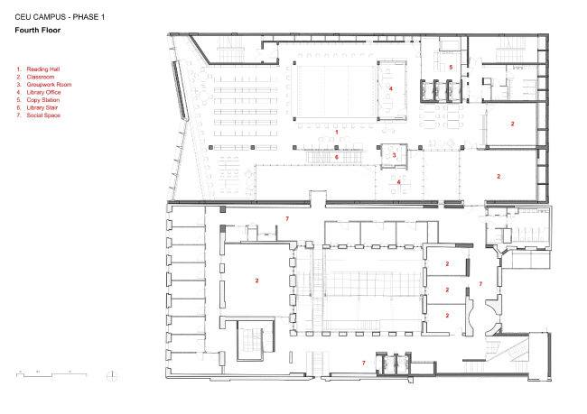
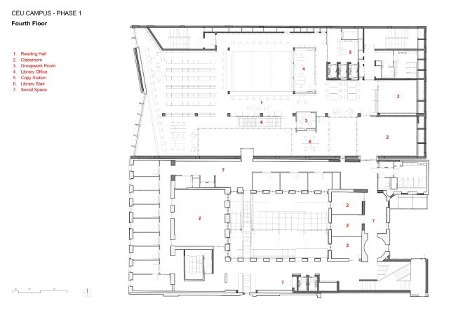
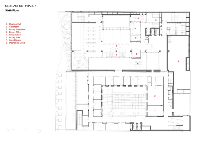
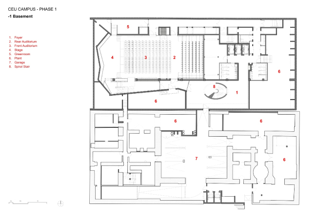
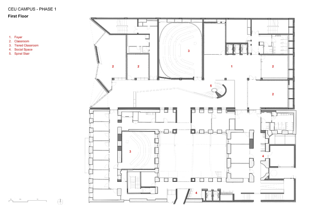
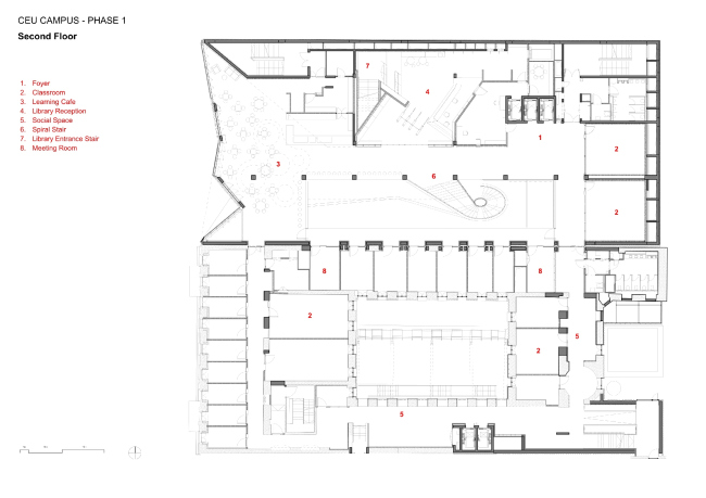
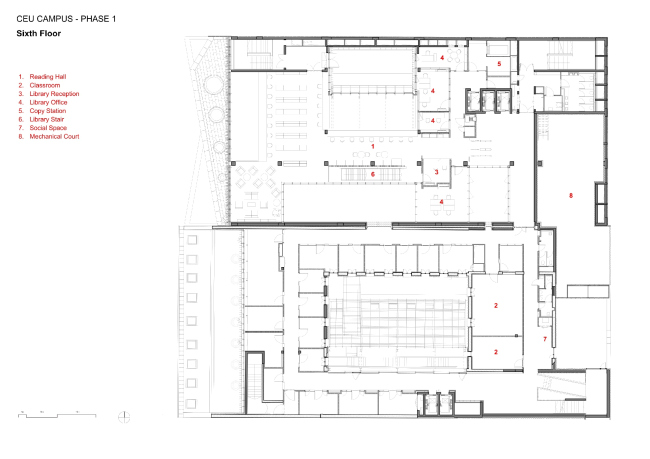
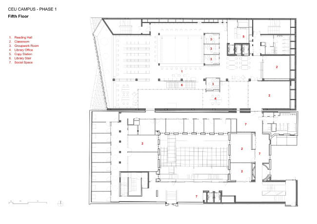
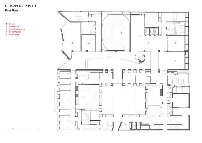
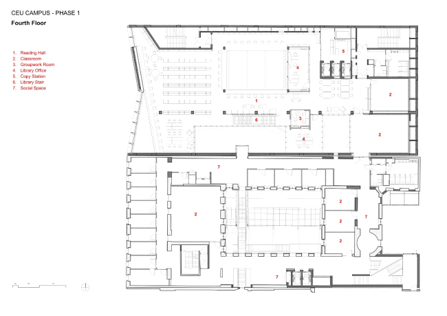
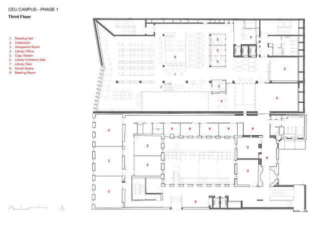
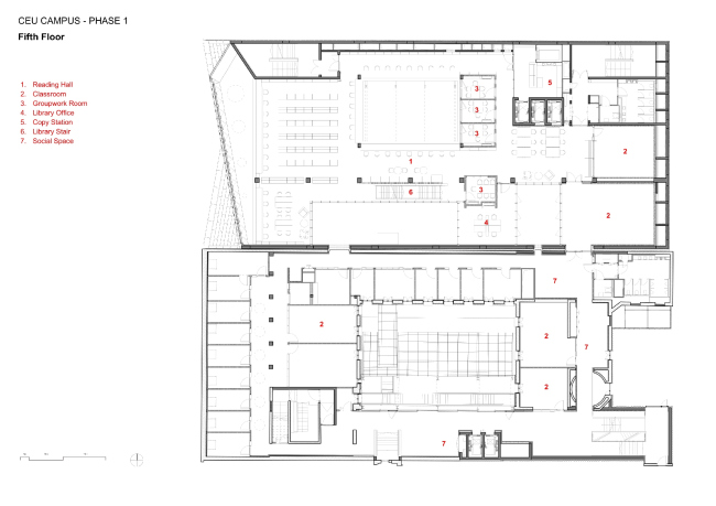
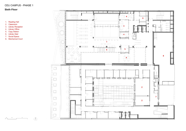
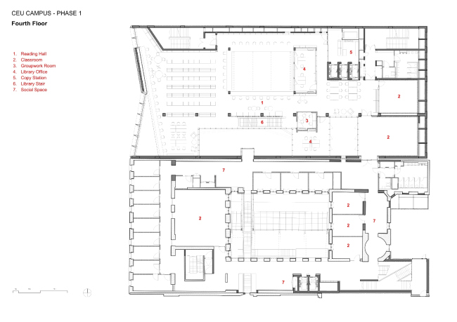
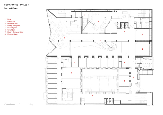
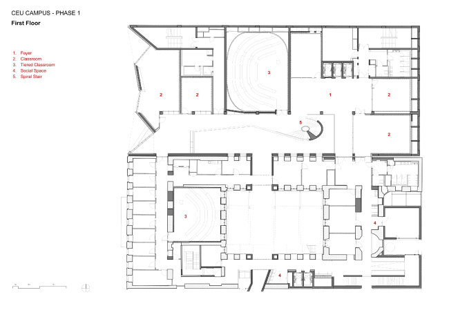
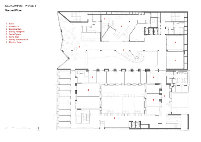
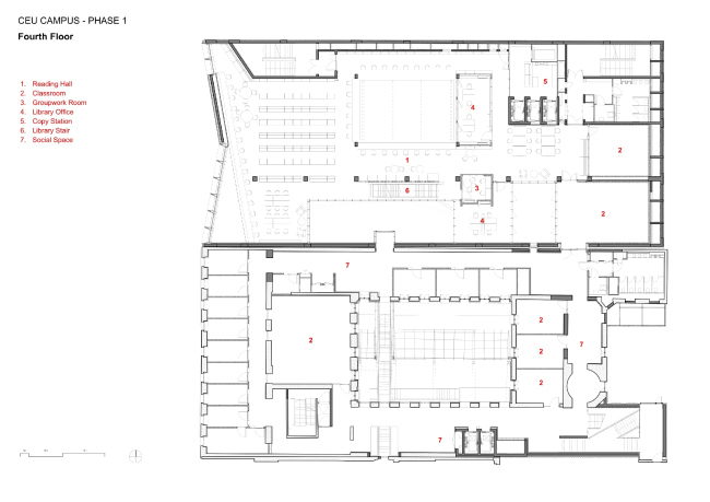
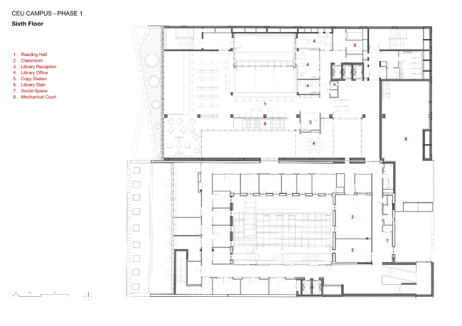
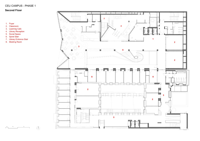
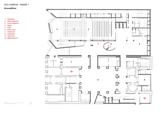
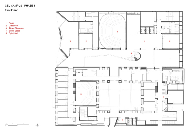
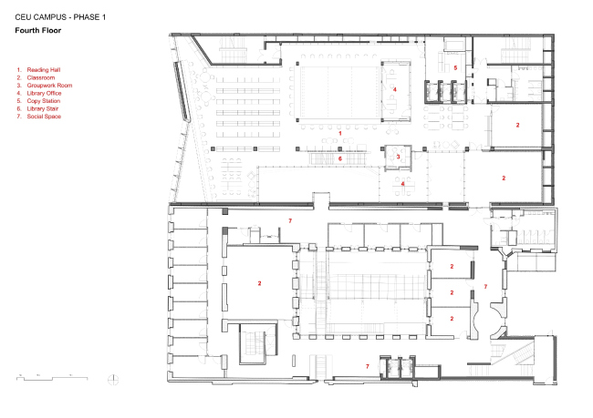
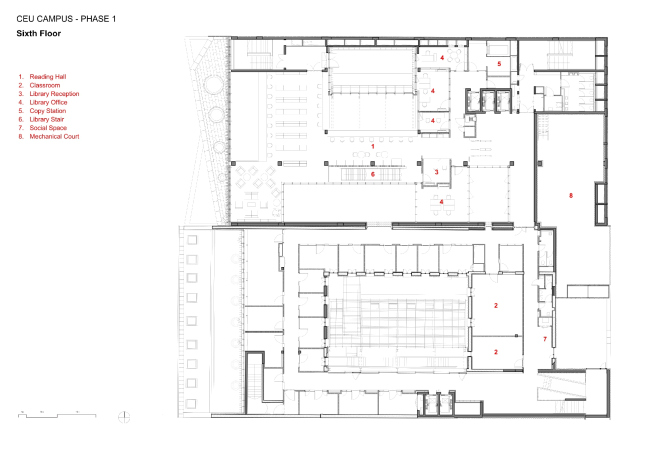
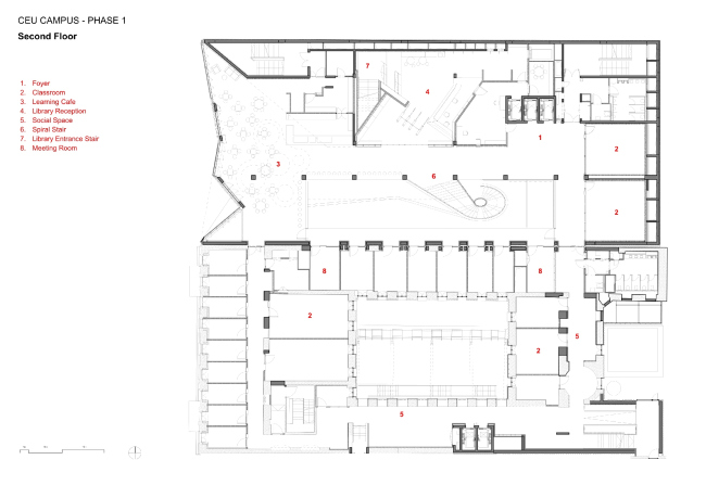
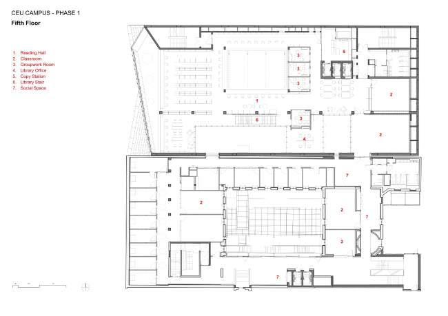
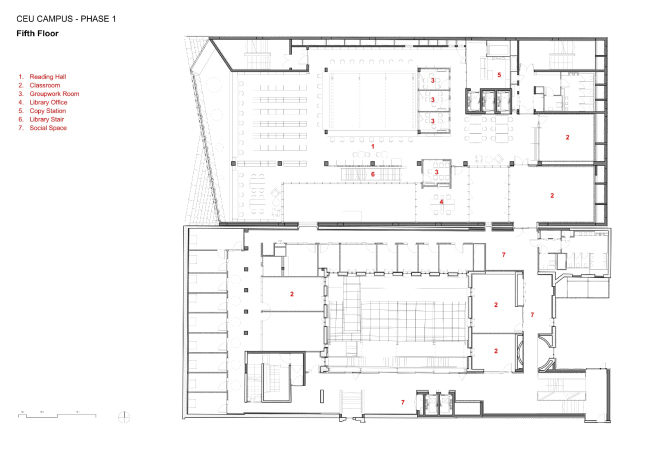
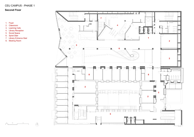
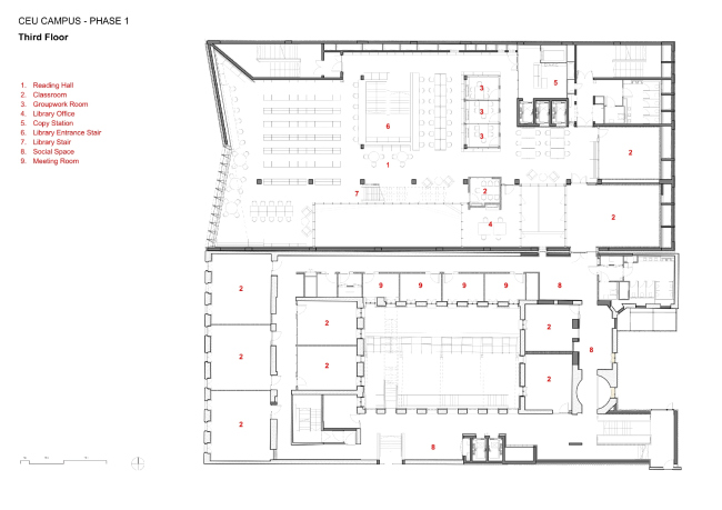
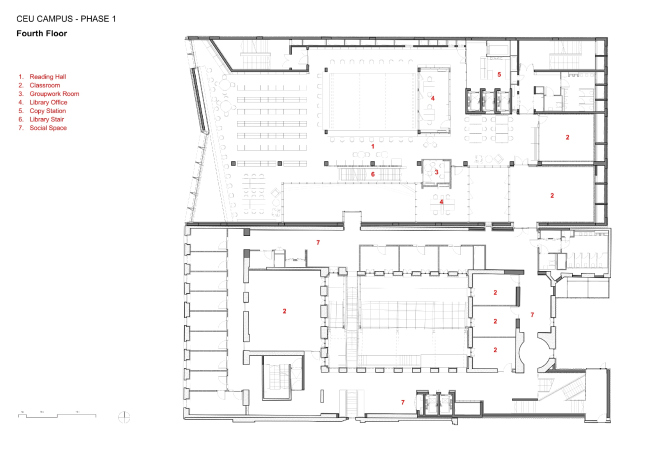
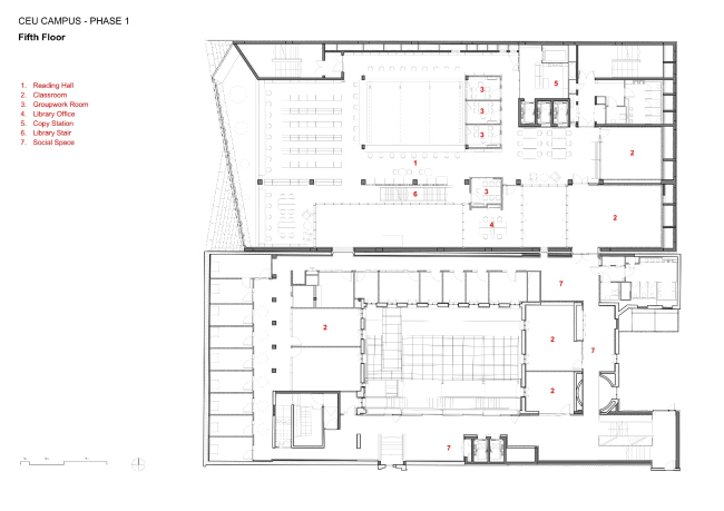
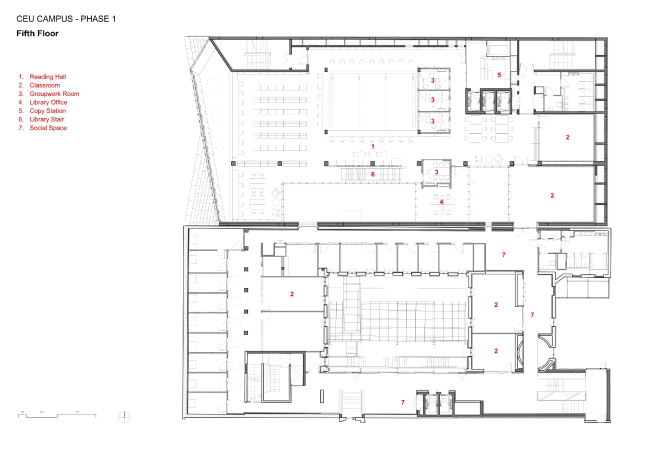
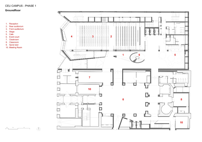
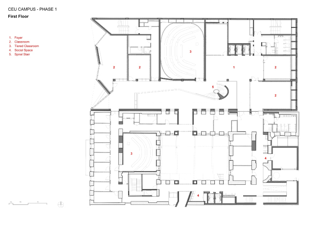
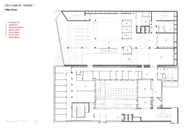
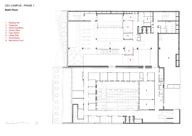
Центральноевропейский университет располагается в шести зданиях в историческом центре Будапешта и одновременно – буферной зоне объекта Всемирного наследия ЮНЕСКО. Разновременные постройки были мало связаны между собой, поэтому перед архитекторами поставили задачу: превратить кусок городской ткани в своего рода перекресток с новыми общественными пространствами, связать корпуса вуза между собой и с прилегающими улицами.
 
Кампус Центральноевропейского университета © Tamás Bujnovszky
Кампус Центральноевропейского университета © Tamás Bujnovszky

Сейчас завершен первый этап реконструкции, впереди еще два. К 25-летию вуза, отмечавшемуся в прошлом году, у него появилось новое здание с известняковым фасадом: из такого же, добытого неподалеку от венгерской столицы камня выстроены многие сооружения Будапешта. По пропорциям оно также соответствует типичной застройке центра города. Внутри расположилась библиотека, пространства для самостоятельных занятий, многофункциональный зал и помещения для проведения конференций. Соседний корпус был перестроен: там появился атриум с эффектными лестницами, на верхних уровнях разместились школа бизнеса и учебные аудитории. Старое и новое здания получили общую озелененную крышу-террасу, откуда открываются панорамы города.
 
Кампус Центральноевропейского университета © Tamás Bujnovszky
Кампус Центральноевропейского университета © Tamás Bujnovszky

Кроме известняка, архитекторы, известные своим чутким отношением к материалам, выбрали для вуза кирпич, дерево и бетон. Также они спроектировали значительную часть мебели. Общая площадь нового и перестроенного корпусов – 15 638 м2 (кампуса в целом после завершения реконструкции – 35 000 м2), бюджет первой очереди – 21,5 млн евро.
Кампус Центральноевропейского университета © Tamás Bujnovszky
Кампус Центральноевропейского университета © Tamás Bujnovszky
Кампус Центральноевропейского университета © Tamás Bujnovszky
Кампус Центральноевропейского университета © Tamás Bujnovszky
Кампус Центральноевропейского университета © Tamás Bujnovszky
Кампус Центральноевропейского университета © Tamás Bujnovszky
Кампус Центральноевропейского университета © Tamás Bujnovszky
Кампус Центральноевропейского университета © Tamás Bujnovszky
Кампус Центральноевропейского университета © Tamás Bujnovszky
Кампус Центральноевропейского университета © Tamás Bujnovszky
Кампус Центральноевропейского университета © Tamás Bujnovszky
Кампус Центральноевропейского университета © Tamás Bujnovszky
Кампус Центральноевропейского университета © Tamás Bujnovszky
Кампус Центральноевропейского университета © Tamás Bujnovszky
Кампус Центральноевропейского университета © Tamás Bujnovszky
Кампус Центральноевропейского университета © Tamás Bujnovszky
Кампус Центральноевропейского университета © Tamás Bujnovszky
Кампус Центральноевропейского университета © Tamás Bujnovszky
Кампус Центральноевропейского университета © Tamás Bujnovszky
Кампус Центральноевропейского университета © Tamás Bujnovszky
Кампус Центральноевропейского университета © Tamás Bujnovszky
Кампус Центральноевропейского университета © Tamás Bujnovszky
Кампус Центральноевропейского университета © Tamás Bujnovszky
Кампус Центральноевропейского университета © Tamás Bujnovszky
Кампус Центральноевропейского университета © Tamás Bujnovszky
Кампус Центральноевропейского университета © Tamás Bujnovszky
Кампус Центральноевропейского университета © Tamás Bujnovszky
Кампус Центральноевропейского университета © Tamás Bujnovszky
Кампус Центральноевропейского университета © Tamás Bujnovszky
Кампус Центральноевропейского университета © Tamás Bujnovszky
Кампус Центральноевропейского университета © Tamás Bujnovszky
Кампус Центральноевропейского университета © Tamás Bujnovszky
Кампус Центральноевропейского университета © Tamás Bujnovszky
Кампус Центральноевропейского университета © Tamás Bujnovszky
Кампус Центральноевропейского университета © Tamás Bujnovszky
Кампус Центральноевропейского университета © Tamás Bujnovszky
Кампус Центральноевропейского университета © Tamás Bujnovszky
Кампус Центральноевропейского университета © Tamás Bujnovszky
Кампус Центральноевропейского университета © Tamás Bujnovszky
Кампус Центральноевропейского университета © Tamás Bujnovszky
Кампус Центральноевропейского университета © Tamás Bujnovszky
Кампус Центральноевропейского университета © Tamás Bujnovszky
Кампус Центральноевропейского университета © Tamás Bujnovszky
Кампус Центральноевропейского университета © Tamás Bujnovszky
Кампус Центральноевропейского университета © Tamás Bujnovszky
Кампус Центральноевропейского университета © Tamás Bujnovszky
Кампус Центральноевропейского университета © Tamás Bujnovszky
Кампус Центральноевропейского университета © Tamás Bujnovszky
Кампус Центральноевропейского университета © Tamás Bujnovszky
Кампус Центральноевропейского университета © Tamás Bujnovszky
Кампус Центральноевропейского университета © Tamás Bujnovszky
Кампус Центральноевропейского университета © Tamás Bujnovszky
Кампус Центральноевропейского университета © Tamás Bujnovszky
Кампус Центральноевропейского университета © Tamás Bujnovszky
Кампус Центральноевропейского университета © Tamás Bujnovszky
Кампус Центральноевропейского университета © Tamás Bujnovszky
Кампус Центральноевропейского университета © Tamás Bujnovszky
Кампус Центральноевропейского университета © Tamás Bujnovszky
Кампус Центральноевропейского университета © Tamás Bujnovszky
Кампус Центральноевропейского университета © Tamás Bujnovszky
Кампус Центральноевропейского университета © O′Donnell + Tuomey
Кампус Центральноевропейского университета © O′Donnell + Tuomey
Кампус Центральноевропейского университета © O′Donnell + Tuomey
Кампус Центральноевропейского университета © O′Donnell + Tuomey
Кампус Центральноевропейского университета © O′Donnell + Tuomey
Кампус Центральноевропейского университета © O′Donnell + Tuomey
Кампус Центральноевропейского университета © O′Donnell + Tuomey
Кампус Центральноевропейского университета © O′Donnell + Tuomey
Кампус Центральноевропейского университета © O′Donnell + Tuomey
Кампус Центральноевропейского университета © O′Donnell + Tuomey
Кампус Центральноевропейского университета © O′Donnell + Tuomey
Кампус Центральноевропейского университета © O′Donnell + Tuomey
Кампус Центральноевропейского университета © O′Donnell + Tuomey
Кампус Центральноевропейского университета © O′Donnell + Tuomey
Кампус Центральноевропейского университета © O′Donnell + Tuomey
Кампус Центральноевропейского университета © O′Donnell + Tuomey
Кампус Центральноевропейского университета © O′Donnell + Tuomey
Кампус Центральноевропейского университета © O′Donnell + Tuomey
Кампус Центральноевропейского университета © O′Donnell + Tuomey
Кампус Центральноевропейского университета © O′Donnell + Tuomey
Кампус Центральноевропейского университета © O′Donnell + Tuomey
Кампус Центральноевропейского университета © O′Donnell + Tuomey
Кампус Центральноевропейского университета © O′Donnell + Tuomey
Кампус Центральноевропейского университета © O′Donnell + Tuomey
Кампус Центральноевропейского университета © O′Donnell + Tuomey
Кампус Центральноевропейского университета © O′Donnell + Tuomey
Кампус Центральноевропейского университета © O′Donnell + Tuomey
Кампус Центральноевропейского университета © O′Donnell + Tuomey
Кампус Центральноевропейского университета © O′Donnell + Tuomey
Кампус Центральноевропейского университета © O′Donnell + Tuomey
Кампус Центральноевропейского университета © O′Donnell + Tuomey
Кампус Центральноевропейского университета © O′Donnell + Tuomey
Кампус Центральноевропейского университета © O′Donnell + Tuomey
Кампус Центральноевропейского университета © O′Donnell + Tuomey
Кампус Центральноевропейского университета © O′Donnell + Tuomey
Кампус Центральноевропейского университета © O′Donnell + Tuomey
Кампус Центральноевропейского университета © O′Donnell + Tuomey
Кампус Центральноевропейского университета © O′Donnell + Tuomey
Кампус Центральноевропейского университета © O′Donnell + Tuomey
Кампус Центральноевропейского университета © O′Donnell + Tuomey
Кампус Центральноевропейского университета © O′Donnell + Tuomey
Кампус Центральноевропейского университета © O′Donnell + Tuomey
Кампус Центральноевропейского университета © O′Donnell + Tuomey
Кампус Центральноевропейского университета © O′Donnell + Tuomey
Кампус Центральноевропейского университета © O′Donnell + Tuomey
Кампус Центральноевропейского университета © O′Donnell + Tuomey
Кампус Центральноевропейского университета © O′Donnell + Tuomey
Кампус Центральноевропейского университета © O′Donnell + Tuomey
Кампус Центральноевропейского университета © O′Donnell + Tuomey
Кампус Центральноевропейского университета © O′Donnell + Tuomey
Кампус Центральноевропейского университета © O′Donnell + Tuomey
Кампус Центральноевропейского университета © O′Donnell + Tuomey
Кампус Центральноевропейского университета © O′Donnell + Tuomey
Кампус Центральноевропейского университета © O′Donnell + Tuomey