Размещено на портале Архи.ру (www.archi.ru)

13.02.2017

Облака и циферблаты

Нина Фролова
Объект:
Центр культуры и здоровья компании COFCO
Адрес:
Китай, None, Шанхай.

Стивен Холл спроектировал Центр культуры и здоровья компании COFCO в Шанхае.

Центр культуры и здоровья компании COFCO © Steven Holl Architects
Центр культуры и здоровья компании COFCO © Steven Holl Architects

Проект вдохновлен лекцией Карла Поппера «Об облаках и часах»: проницаемые постройки из белого бетона находятся в расчерченном окружностями ландшафте. Центр культуры и центр здоровья предназначены для жителей прилегающего района, застроенного однообразными домами. С другой стороны от нового комплекса пролегает канал.
 
Центр культуры и здоровья компании COFCO © Steven Holl Architects
Центр культуры и здоровья компании COFCO © Steven Holl Architects

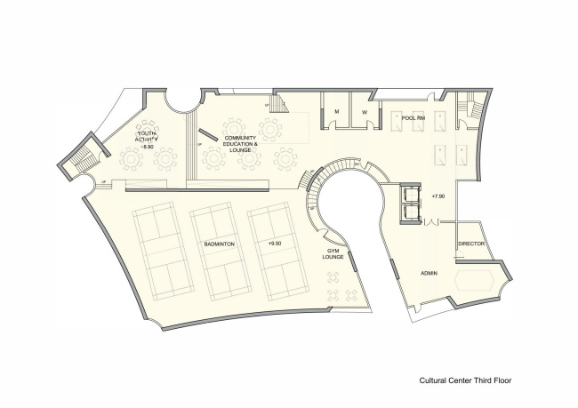
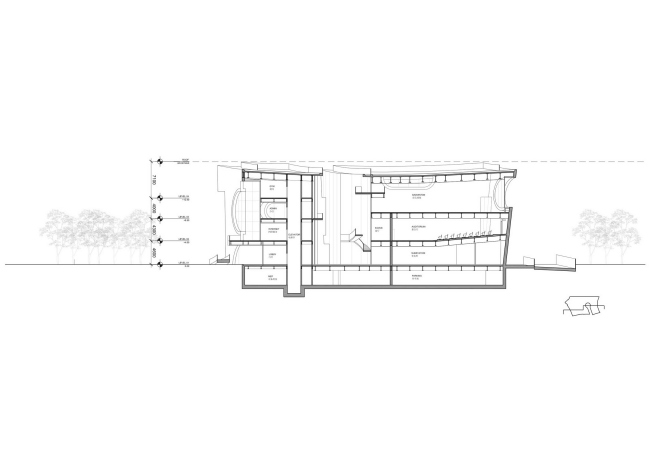
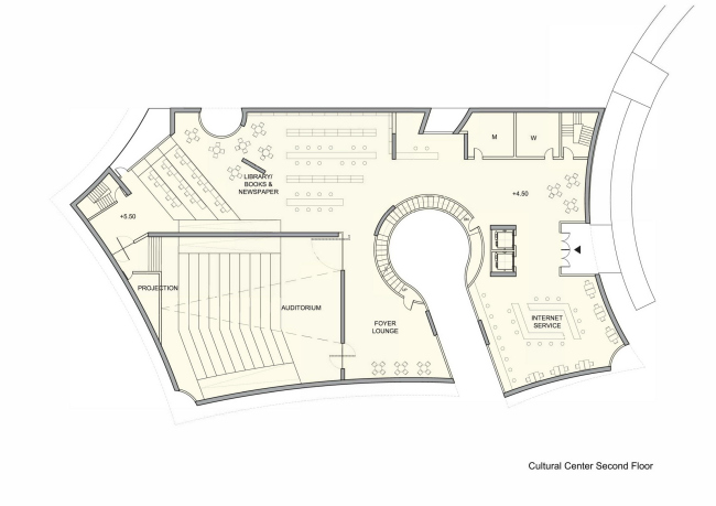
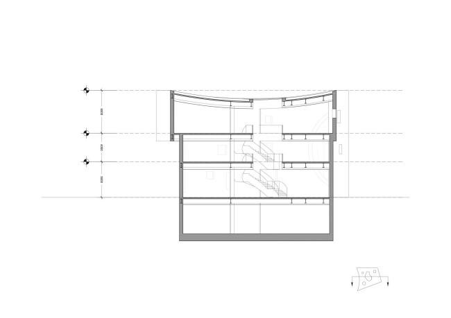
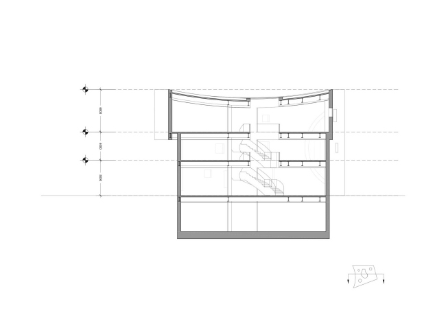
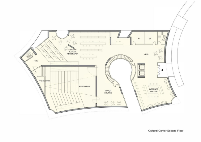
Центр культуры (6030 м2) включает в себя кафе, комнаты настольных игр, рекреационные пространства – для всех и специально для молодежи: все это находится на прозрачном первом этаже. Также в программу входят выставочный зал, библиотека и спортзал. Этажи соединяет атриум с лестницей.
 
Центр культуры и здоровья компании COFCO © Steven Holl Architects
Центр культуры и здоровья компании COFCO © Steven Holl Architects

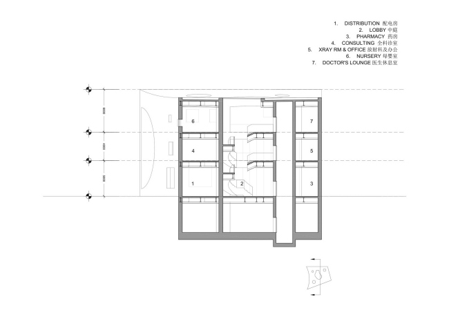
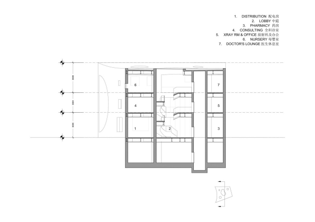
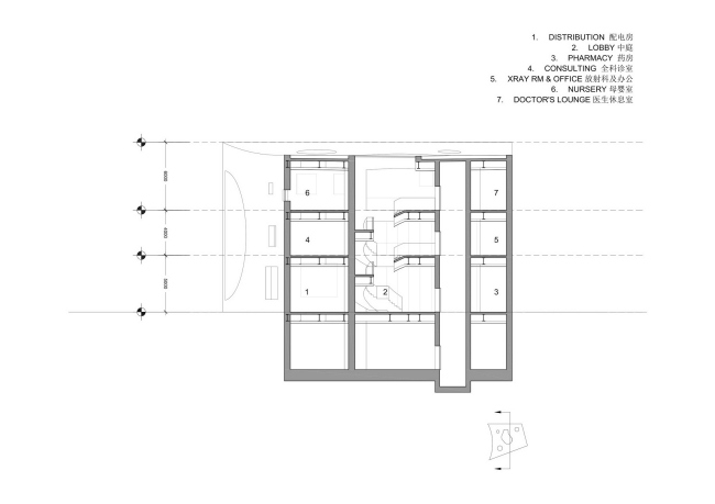
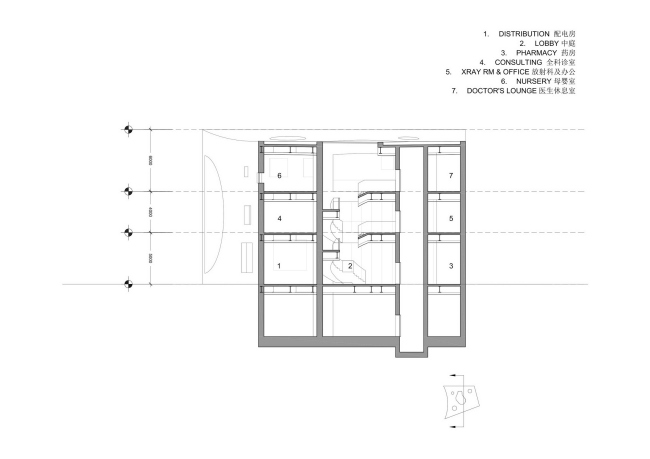
В Центре здоровья (1490 м2) запланированы образовательная зона, аптека, кабинеты приема и осмотра пациентов, кабинеты физиотерапии, УЗИ и рентгена, ясли, помещения для административного персонала и врачей.
 
Центр культуры и здоровья компании COFCO © Steven Holl Architects
Центр культуры и здоровья компании COFCO © Steven Holl Architects

Оба корпуса получат зеленые крыши; пруд и фонтан войдут в систему сбора и управления дождевой водой. Также предусмотрено геотермальное охлаждение помещений. Авторы проекта рассчитывают получить по его реализации «платиновый» сертификат LEED.
Центр культуры и здоровья компании COFCO © Steven Holl Architects
Центр культуры и здоровья компании COFCO © Steven Holl Architects
Центр культуры и здоровья компании COFCO © Steven Holl Architects
Центр культуры и здоровья компании COFCO © Steven Holl Architects
Центр культуры и здоровья компании COFCO © Steven Holl Architects
Центр культуры и здоровья компании COFCO © Steven Holl Architects
Центр культуры и здоровья компании COFCO © Steven Holl Architects
Центр культуры и здоровья компании COFCO © Steven Holl Architects
Центр культуры и здоровья компании COFCO © Steven Holl Architects
Центр культуры и здоровья компании COFCO © Steven Holl Architects
Центр культуры и здоровья компании COFCO © Steven Holl Architects
Центр культуры и здоровья компании COFCO © Steven Holl Architects
Центр культуры и здоровья компании COFCO © Steven Holl Architects
Центр культуры и здоровья компании COFCO © Steven Holl Architects
Центр культуры и здоровья компании COFCO © Steven Holl Architects
Центр культуры и здоровья компании COFCO © Steven Holl Architects
Центр культуры и здоровья компании COFCO © Steven Holl Architects
Центр культуры и здоровья компании COFCO © Steven Holl Architects
Центр культуры и здоровья компании COFCO © Steven Holl Architects
Центр культуры и здоровья компании COFCO © Steven Holl Architects
Центр культуры и здоровья компании COFCO © Steven Holl Architects
Центр культуры и здоровья компании COFCO © Steven Holl Architects
Центр культуры и здоровья компании COFCO © Steven Holl Architects
Центр культуры и здоровья компании COFCO © Steven Holl Architects
Центр культуры и здоровья компании COFCO © Steven Holl Architects
Центр культуры и здоровья компании COFCO © Steven Holl Architects
Центр культуры и здоровья компании COFCO. Центр здоровья © Steven Holl Architects
Центр культуры и здоровья компании COFCO. Центр здоровья © Steven Holl Architects
Центр культуры и здоровья компании COFCO. Центр здоровья © Steven Holl Architects
Центр культуры и здоровья компании COFCO. Центр здоровья © Steven Holl Architects
Центр культуры и здоровья компании COFCO. Центр здоровья © Steven Holl Architects
Центр культуры и здоровья компании COFCO. Центр здоровья © Steven Holl Architects
Центр культуры и здоровья компании COFCO. Центр здоровья © Steven Holl Architects
Центр культуры и здоровья компании COFCO. Центр здоровья © Steven Holl Architects
Центр культуры и здоровья компании COFCO. Центр здоровья © Steven Holl Architects
Центр культуры и здоровья компании COFCO. Центр здоровья © Steven Holl Architects
Центр культуры и здоровья компании COFCO. Центр культуры © Steven Holl Architects
Центр культуры и здоровья компании COFCO. Центр культуры © Steven Holl Architects
Центр культуры и здоровья компании COFCO. Центр культуры © Steven Holl Architects
Центр культуры и здоровья компании COFCO. Центр культуры © Steven Holl Architects
Центр культуры и здоровья компании COFCO. Центр культуры © Steven Holl Architects
Центр культуры и здоровья компании COFCO. Центр культуры © Steven Holl Architects
Центр культуры и здоровья компании COFCO. Центр культуры © Steven Holl Architects
Центр культуры и здоровья компании COFCO. Центр культуры © Steven Holl Architects
Центр культуры и здоровья компании COFCO. Центр культуры © Steven Holl Architects
Центр культуры и здоровья компании COFCO. Центр культуры © Steven Holl Architects
Центр культуры и здоровья компании COFCO. Центр культуры © Steven Holl Architects
Центр культуры и здоровья компании COFCO. Центр культуры © Steven Holl Architects
Центр культуры и здоровья компании COFCO. Центр культуры © Steven Holl Architects
Центр культуры и здоровья компании COFCO. Центр культуры © Steven Holl Architects
Центр культуры и здоровья компании COFCO. Центр культуры © Steven Holl Architects
Центр культуры и здоровья компании COFCO. Центр культуры © Steven Holl Architects
Центр культуры и здоровья компании COFCO © Steven Holl Architects
Центр культуры и здоровья компании COFCO © Steven Holl Architects
Центр культуры и здоровья компании COFCO © Steven Holl Architects
Центр культуры и здоровья компании COFCO © Steven Holl Architects
Центр культуры и здоровья компании COFCO © Steven Holl
Центр культуры и здоровья компании COFCO © Steven Holl
Центр культуры и здоровья компании COFCO © Steven Holl
Центр культуры и здоровья компании COFCO © Steven Holl
Центр культуры и здоровья компании COFCO © Steven Holl
Центр культуры и здоровья компании COFCO © Steven Holl
Центр культуры и здоровья компании COFCO © Steven Holl
Центр культуры и здоровья компании COFCO © Steven Holl