Размещено на портале Архи.ру (www.archi.ru)

08.02.2017

Смена имиджа

Нина Фролова
Объект:
Штаб-квартира банка Crédit Mutuel de Loire-Atlantique Centre-Ouest
Адрес:
Франция, None, Нант.
Мастерская:
AIA

Штаб-квартира банка Crédit Mutuel de Loire-Atlantique Centre-Ouest в Нанте по проекту бюро AIA Associés.

Штаб-квартира банка Crédit Mutuel de Loire-Atlantique Centre-Ouest © Guillaume Satre
Штаб-квартира банка Crédit Mutuel de Loire-Atlantique Centre-Ouest © Guillaume Satre

Здание Crédit Mutuel, расположенное при южном въезде в центр города – попытка архитекторов сменить привычный образ банка – закрытость и солидность – на прозрачность и легкость, что особенно актуально после кризиса 2008 года, когда к финансовым учреждениям в обществе часто относятся с подозрением. Этой цели служат стеклянные фасады, в частности, их наружный слой – стеклянные же солнцезащитные ламели с шелкографическим узором. Их приводят в движение специальные моторы, которыми управляют сенсоры.
 
Штаб-квартира банка Crédit Mutuel de Loire-Atlantique Centre-Ouest © Luc Boegly
Штаб-квартира банка Crédit Mutuel de Loire-Atlantique Centre-Ouest © Luc Boegly

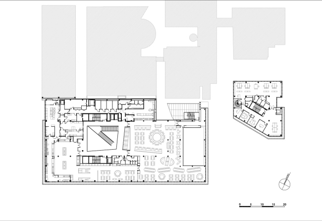
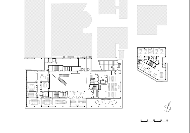
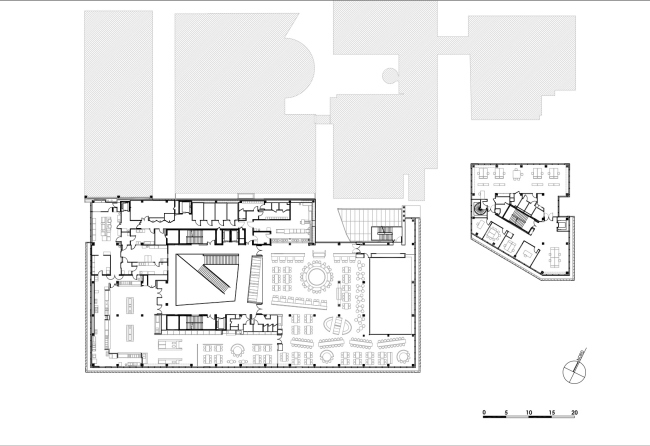
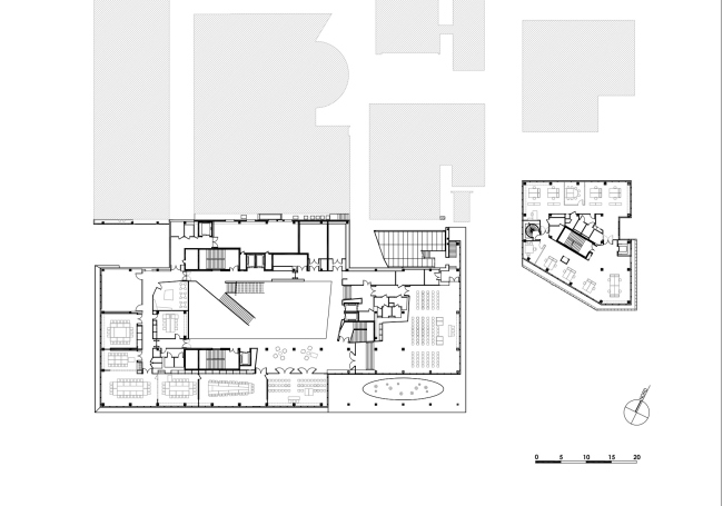
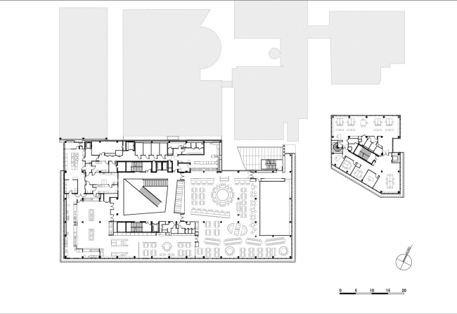
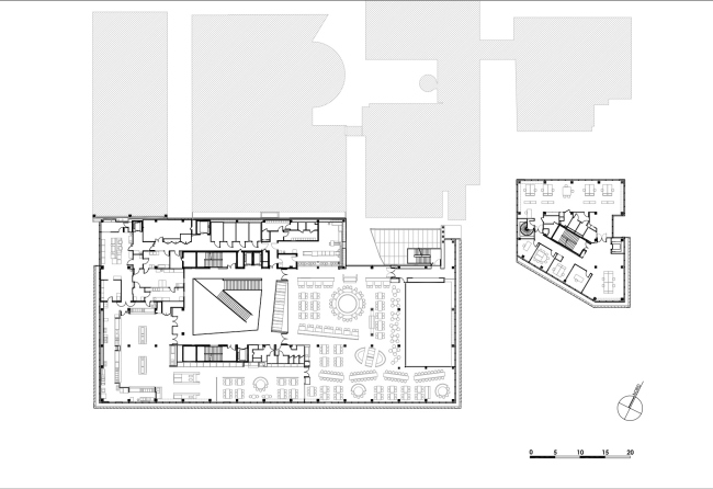
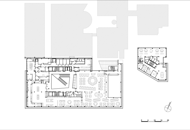
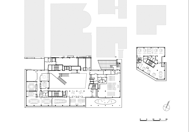
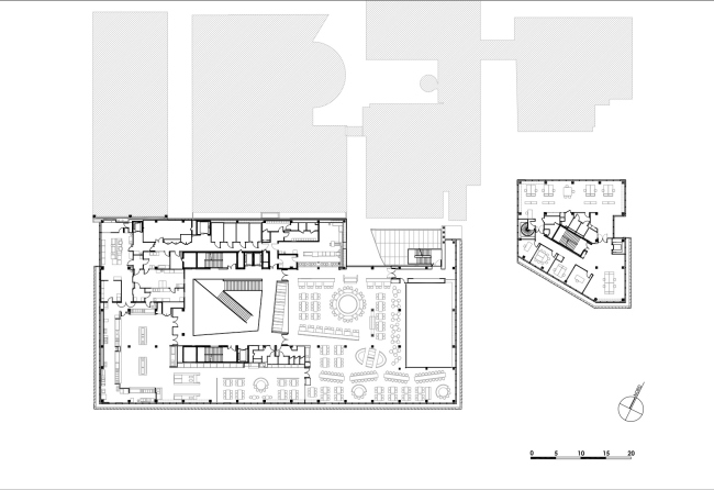
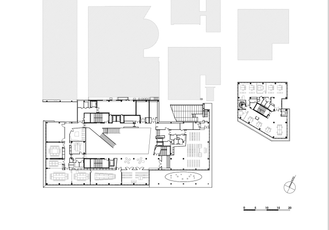
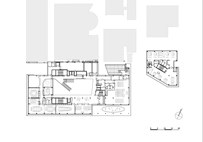
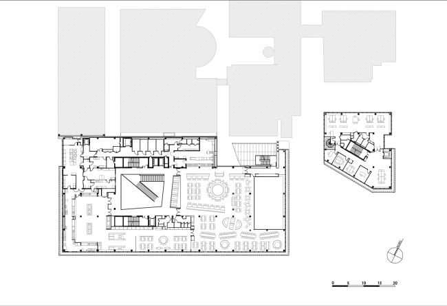
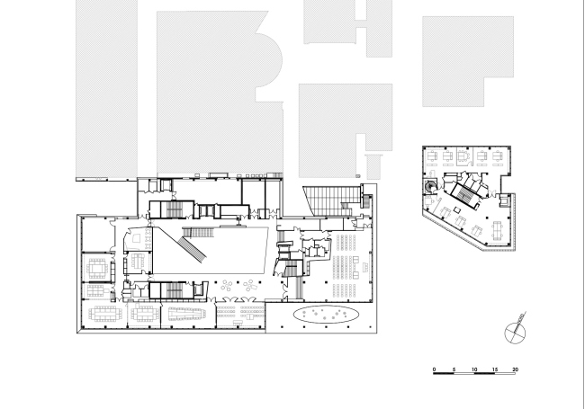
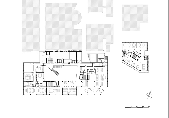
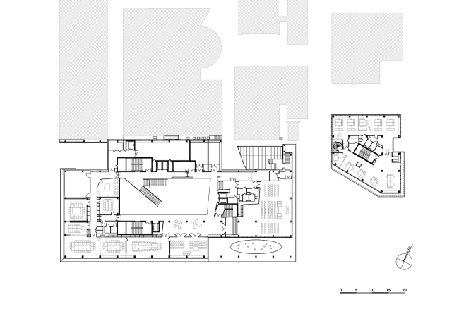
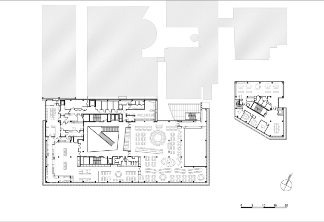
План организован вокруг двух открытых внутренних дворов и атриума. Для здания был выбран стальной каркас, который ускорил строительство и позволил снизить выброс вредных веществ в атмосферу. Благодаря этому также удалось получить офисные пространства с пролетом в 12 метров. Они занимают три верхних уровня; ниже расположены переговорные и кафетерий для сотрудников. Половина первого этажа открыта для публики: там находятся выставочный зал, аудитория, кафе и вестибюль, украшенный зеленой стеной из мха.
 
Штаб-квартира банка Crédit Mutuel de Loire-Atlantique Centre-Ouest © Luc Boegly
Штаб-квартира банка Crédit Mutuel de Loire-Atlantique Centre-Ouest © Luc Boegly

Кроме новой постройки, AIA также занимались реконструкцией прилегающего банка CIC Ouest; кафетерий Crédit Mutuel обслуживает работников обоих учреждений, а между новым и обновленным зданиями создано привлекательное общественное пространство.
 
Штаб-квартира банка Crédit Mutuel de Loire-Atlantique Centre-Ouest © Luc Boegly
Штаб-квартира банка Crédit Mutuel de Loire-Atlantique Centre-Ouest © Luc Boegly

Размер штаб-квартиры Crédit Mutuel составляет 14 000 м2, а еще 12 000 м2 дает ее подземный гараж. Реконструированный CIC Ouest – это 16 300 м2 площади. Бюджет нового строительства – 50 млн евро, реконструкции – 27 млн евро.
Штаб-квартира банка Crédit Mutuel de Loire-Atlantique Centre-Ouest © Luc Boegly
Штаб-квартира банка Crédit Mutuel de Loire-Atlantique Centre-Ouest © Luc Boegly
Штаб-квартира банка Crédit Mutuel de Loire-Atlantique Centre-Ouest © Luc Boegly
Штаб-квартира банка Crédit Mutuel de Loire-Atlantique Centre-Ouest © Luc Boegly
Штаб-квартира банка Crédit Mutuel de Loire-Atlantique Centre-Ouest © Guillaume Satre
Штаб-квартира банка Crédit Mutuel de Loire-Atlantique Centre-Ouest © Guillaume Satre
Штаб-квартира банка Crédit Mutuel de Loire-Atlantique Centre-Ouest © Luc Boegly
Штаб-квартира банка Crédit Mutuel de Loire-Atlantique Centre-Ouest © Luc Boegly
Штаб-квартира банка Crédit Mutuel de Loire-Atlantique Centre-Ouest © Luc Boegly
Штаб-квартира банка Crédit Mutuel de Loire-Atlantique Centre-Ouest © Luc Boegly
Штаб-квартира банка Crédit Mutuel de Loire-Atlantique Centre-Ouest © Luc Boegly
Штаб-квартира банка Crédit Mutuel de Loire-Atlantique Centre-Ouest © Luc Boegly
Штаб-квартира банка Crédit Mutuel de Loire-Atlantique Centre-Ouest © Luc Boegly
Штаб-квартира банка Crédit Mutuel de Loire-Atlantique Centre-Ouest © Luc Boegly
Штаб-квартира банка Crédit Mutuel de Loire-Atlantique Centre-Ouest © Luc Boegly
Штаб-квартира банка Crédit Mutuel de Loire-Atlantique Centre-Ouest © Luc Boegly
Штаб-квартира банка Crédit Mutuel de Loire-Atlantique Centre-Ouest © Luc Boegly
Штаб-квартира банка Crédit Mutuel de Loire-Atlantique Centre-Ouest © Luc Boegly
Штаб-квартира банка Crédit Mutuel de Loire-Atlantique Centre-Ouest © Luc Boegly
Штаб-квартира банка Crédit Mutuel de Loire-Atlantique Centre-Ouest © Luc Boegly
Штаб-квартира банка Crédit Mutuel de Loire-Atlantique Centre-Ouest © Luc Boegly
Штаб-квартира банка Crédit Mutuel de Loire-Atlantique Centre-Ouest © Luc Boegly
Штаб-квартира банка Crédit Mutuel de Loire-Atlantique Centre-Ouest © Luc Boegly
Штаб-квартира банка Crédit Mutuel de Loire-Atlantique Centre-Ouest © Luc Boegly
Штаб-квартира банка Crédit Mutuel de Loire-Atlantique Centre-Ouest © Luc Boegly
Штаб-квартира банка Crédit Mutuel de Loire-Atlantique Centre-Ouest © Luc Boegly
Штаб-квартира банка Crédit Mutuel de Loire-Atlantique Centre-Ouest © Luc Boegly
Штаб-квартира банка Crédit Mutuel de Loire-Atlantique Centre-Ouest © Luc Boegly
Штаб-квартира банка Crédit Mutuel de Loire-Atlantique Centre-Ouest © Luc Boegly
Штаб-квартира банка Crédit Mutuel de Loire-Atlantique Centre-Ouest © Luc Boegly
Штаб-квартира банка Crédit Mutuel de Loire-Atlantique Centre-Ouest в ходе строительства © Guillaume Satre
Штаб-квартира банка Crédit Mutuel de Loire-Atlantique Centre-Ouest в ходе строительства © Guillaume Satre
Штаб-квартира банка Crédit Mutuel de Loire-Atlantique Centre-Ouest © AIA Associés
Штаб-квартира банка Crédit Mutuel de Loire-Atlantique Centre-Ouest © AIA Associés
Штаб-квартира банка Crédit Mutuel de Loire-Atlantique Centre-Ouest © AIA Associés
Штаб-квартира банка Crédit Mutuel de Loire-Atlantique Centre-Ouest © AIA Associés
Штаб-квартира банка Crédit Mutuel de Loire-Atlantique Centre-Ouest © AIA Associés
Штаб-квартира банка Crédit Mutuel de Loire-Atlantique Centre-Ouest © AIA Associés
Штаб-квартира банка Crédit Mutuel de Loire-Atlantique Centre-Ouest © AIA Associés
Штаб-квартира банка Crédit Mutuel de Loire-Atlantique Centre-Ouest © AIA Associés
Штаб-квартира банка Crédit Mutuel de Loire-Atlantique Centre-Ouest © AIA Associés
Штаб-квартира банка Crédit Mutuel de Loire-Atlantique Centre-Ouest © AIA Associés
Штаб-квартира банка Crédit Mutuel de Loire-Atlantique Centre-Ouest © AIA Associés
Штаб-квартира банка Crédit Mutuel de Loire-Atlantique Centre-Ouest © AIA Associés
Штаб-квартира банка Crédit Mutuel de Loire-Atlantique Centre-Ouest © AIA Associés
Штаб-квартира банка Crédit Mutuel de Loire-Atlantique Centre-Ouest © AIA Associés