Размещено на портале Архи.ру (www.archi.ru)

08.02.2017

Импровизация на заданную тему

Анна Старостина
Объект:
Офис Orange Business Services в башне «Меркурий»
Адрес:
Россия, Москва. 1-й Красногвардейский проезд, д. 15, Меркурий Сити Тауэр
Архитектор:
Полина Воеводина
Сергей Труханов
Мастерская:
Т+Т Architects
Авторский коллектив:
Генеральный проектировщик: Pridex
Генеральный подрядчик: Pridex
Архитектурное бюро: T+T Architects

Жёсткие предписания корпоративного стиля заказчика не помешали бюро T+T Architects найти индивидуальные решения для московского представительства французской компании Orange Business Services.

Офис Orange Business Services в башне «Меркурий». Реализация, 2016 © T+T Architects
Офис Orange Business Services в башне «Меркурий». Реализация, 2016 © T+T Architects

На первый взгляд работа над новым московским офисом международного провайдера связи обещала быть для архитекторов вполне стандартной: два этажа современного бизнес-центра, обычный набор функциональных зон, классический openspace с выделенными местами коммуникации и уединения. Сдержанная, комфортная для сотрудников всех возрастов и взглядов стилистика, привычная общеевропейская демократичность. Подробнейший брендбук оставлял немного возможности для эксперимента. Тем не менее, место для авторских идей на 5 300 м2 рабочих площадей вполне нашлось и все внутреннее пространство офиса приобрело функциональный, но остро индивидуальный характер.

Для своего нового офиса руководство компании Orange Business Services выбрало 10 и 11 этажи «Меркурий Сити Тауэр» в ММДЦ «Москва-Сити». В плане каждый из них отдаленно напоминает схематичное изображение ракеты. Образовавшиеся эффектные скосы стали одним из важных элементов всего внутреннего пространства, но добиться максимальной эффективности планировки в таких условиях оказалось непросто. Архитекторы выбрали привычный и единственно возможный вариант: массивное ядро со всеми коммуникациями окружено тотальным опенспейсом вдоль всего светового фронта. Поскольку заказчик ещё на уровне технического задания очень четко представил схему взаимодействия различных подразделений и департаментов, все они выстроены в единую цепь, так что попадая в офис любое задание быстро проходит все необходимые стадии решения, переходя из отдела в отдел. Каждый из них при этом остается вполне самостоятельной единицей со своими внутренними связями, зонами общения, брейнсторминга, отдыха и сосредоточенной работы.
Офис Orange Business Services в башне «Меркурий». Функциональная схема. Реализация, 2016 © T+T Architects
Офис Orange Business Services в башне «Меркурий». Функциональная схема. Реализация, 2016 © T+T Architects
Офис Orange Business Services в башне «Меркурий». Функциональная схема open space. Реализация, 2016 © T+T Architects
Офис Orange Business Services в башне «Меркурий». Функциональная схема open space. Реализация, 2016 © T+T Architects
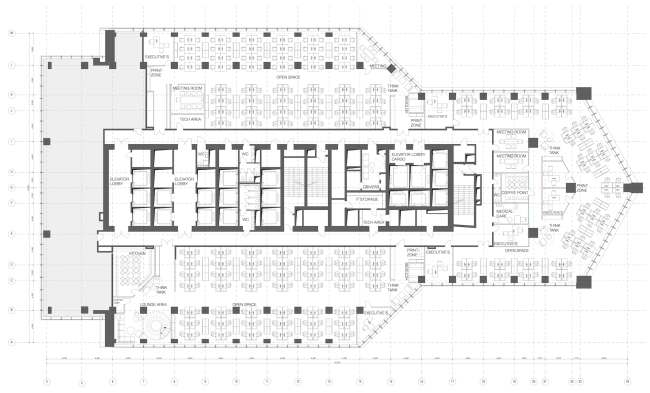
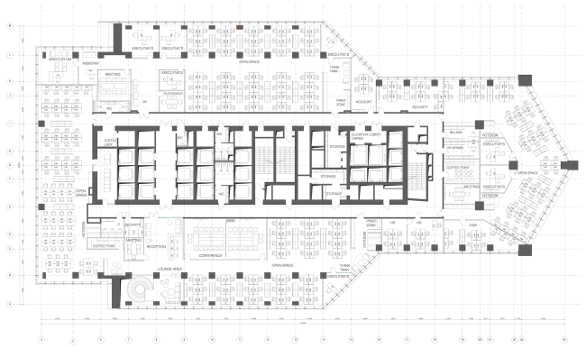
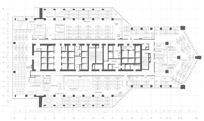
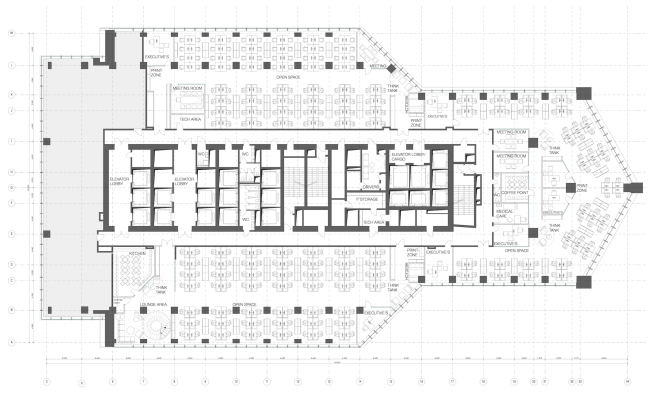
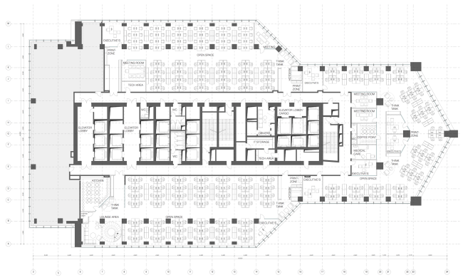
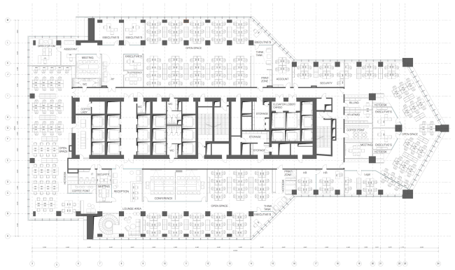
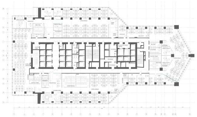
Офис Orange Business Services в башне «Меркурий». План 10 этажа. Реализация, 2016 © T+T Architects
Офис Orange Business Services в башне «Меркурий». План 10 этажа. Реализация, 2016 © T+T Architects
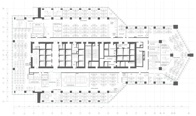
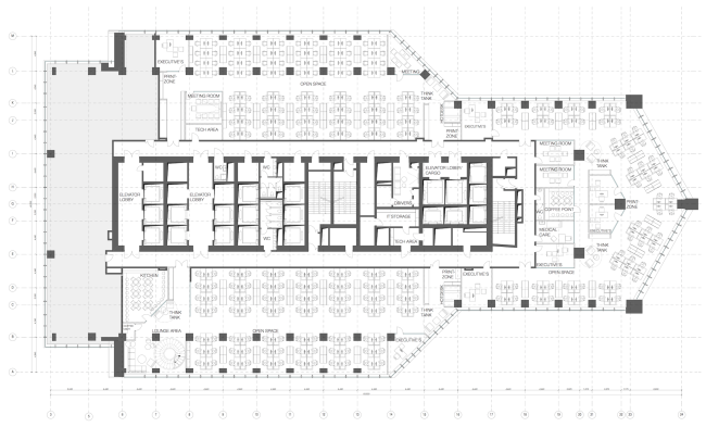
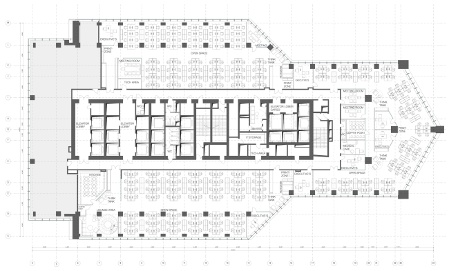
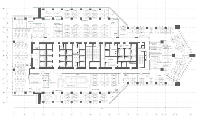
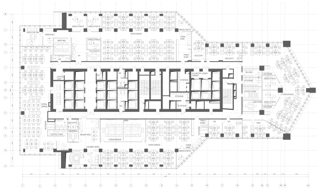
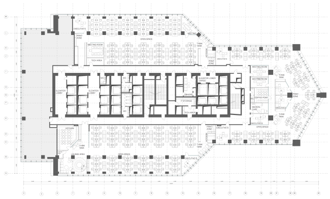
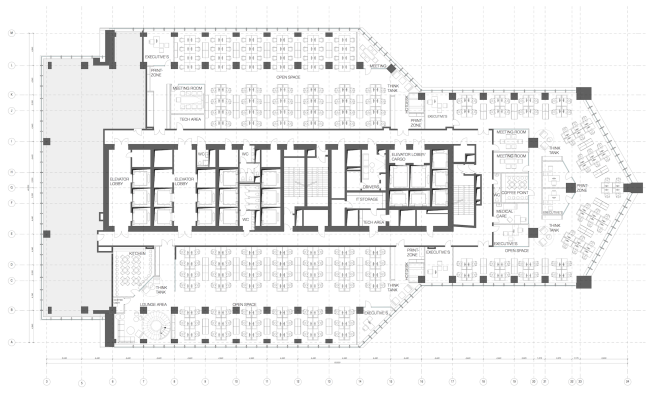
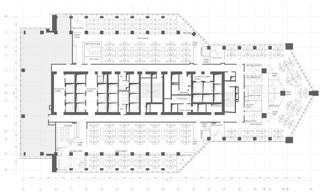
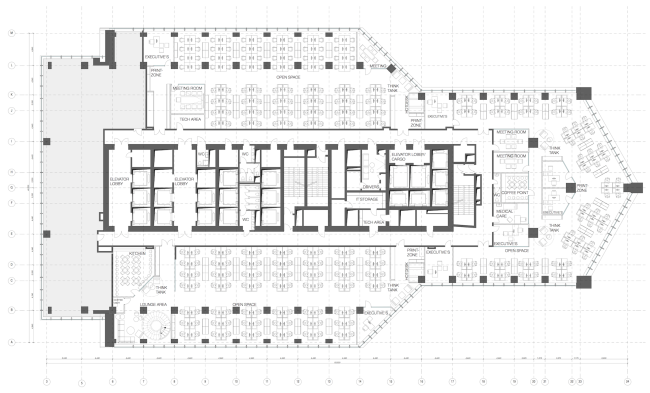
Офис Orange Business Services в башне «Меркурий». План 11 этажа. Реализация, 2016 © T+T Architects
Офис Orange Business Services в башне «Меркурий». План 11 этажа. Реализация, 2016 © T+T Architects

Но задуманной организации рабочего процесса мешало отсутствие внутренней связи между двумя этажами: общая лестница и загруженные лифты высотного здания не могли обеспечить необходимый уровень взаимодействия подразделений. «Мы сразу же задумались о дополнительной, персональной, лестнице – рассказывает главный архитектор проекта Полина Воеводина. – К счастью на этажах оказались предусмотрены отверстия в перекрытиях и нам удалось получить согласие владельцев на размещение лестницы. Мы перебрали много вариантов и остановились на монолитном объекте из бетона. Материал сразу планировалось оставить открытым, лишь покрыть защитным лаком, поэтому качеству самого бетона и качеству работ уделили огромное внимание. Подрядчик не подвел и все получилось как надо». Открытые бетонные поверхности архитекторы в результате превратили в эстетский приём, добавив стену из микроцемента прямо за стойкой рецепции.

Перила из металлической сетки довершают лофтовый образ лестницы. Этот приём также поддержан и в других зонах офиса. В результате авторский объект стал настоящим смысловым центром всего пространства – не случайно именно вокруг него организована основная зона отдыха и общения, в которой могут собраться все сотрудники и гости. Кухня, кофе-поинт и конференц-зал так же расположены рядом.
Офис Orange Business Services в башне «Меркурий». Реализация, 2016 © T+T Architects
Офис Orange Business Services в башне «Меркурий». Реализация, 2016 © T+T Architects
Офис Orange Business Services в башне «Меркурий». Реализация, 2016 © T+T Architects
Офис Orange Business Services в башне «Меркурий». Реализация, 2016 © T+T Architects
Офис Orange Business Services в башне «Меркурий». Реализация, 2016 © T+T Architects
Офис Orange Business Services в башне «Меркурий». Реализация, 2016 © T+T Architects
Офис Orange Business Services в башне «Меркурий». Реализация, 2016 © T+T Architects
Офис Orange Business Services в башне «Меркурий». Реализация, 2016 © T+T Architects
Офис Orange Business Services в башне «Меркурий». Реализация, 2016 © T+T Architects
Офис Orange Business Services в башне «Меркурий». Реализация, 2016 © T+T Architects
Офис Orange Business Services в башне «Меркурий». Реализация, 2016 © T+T Architects
Офис Orange Business Services в башне «Меркурий». Реализация, 2016 © T+T Architects
Офис Orange Business Services в башне «Меркурий». Реализация, 2016 © T+T Architects
Офис Orange Business Services в башне «Меркурий». Реализация, 2016 © T+T Architects
Офис Orange Business Services в башне «Меркурий». Реализация, 2016 © T+T Architects
Офис Orange Business Services в башне «Меркурий». Реализация, 2016 © T+T Architects
Офис Orange Business Services в башне «Меркурий». Реализация, 2016 © T+T Architects
Офис Orange Business Services в башне «Меркурий». Реализация, 2016 © T+T Architects

Большие рабочие зоны (всего в московском представительстве компании работает около 500 человек и никакого отдельного VIP-пространства для руководства в офисе не предусмотрено) потребовали особого внимания к проблемам звукоизоляции и акустического комфорта. Помимо напольного покрытия и мебельных экранов архитекторы активно использовали обитые тканью щитовые панели, а также специальную мебель. Высокие, защищённые кресла и диваны установлены в основном напротив окон и усевшись в них можно полностью отстраниться от происходящего в офисе.
Офис Orange Business Services в башне «Меркурий». Реализация, 2016 © T+T Architects
Офис Orange Business Services в башне «Меркурий». Реализация, 2016 © T+T Architects
Офис Orange Business Services в башне «Меркурий». Реализация, 2016 © T+T Architects
Офис Orange Business Services в башне «Меркурий». Реализация, 2016 © T+T Architects
Офис Orange Business Services в башне «Меркурий». Реализация, 2016 © T+T Architects
Офис Orange Business Services в башне «Меркурий». Реализация, 2016 © T+T Architects
Офис Orange Business Services в башне «Меркурий». Реализация, 2016 © T+T Architects
Офис Orange Business Services в башне «Меркурий». Реализация, 2016 © T+T Architects

Естественным образом в оформлении всех зон используются корпоративный оранжевый цвет и квадрат логотипа. Но используются ненавязчиво: полосы на ковровом покрытии, рисунок матирования на перегородках, мягкие мебельные панели, створки и ящики систем хранения, наконец, специальная конструкция на потолке в зоне ресепшна. В то же время в зонах отдыха архитекторы ввели и другие цвета. Сочетания оранжевого не только с серым, но и с фиолетовым, красным, бледно-голубым, желтым также уже были прописаны в брендбуке компании, но для каждой зоны архитекторы подбирали свой, ограниченный набор сочетаний. А обилие квадратов уравновесили самыми разными кругами. Кроме лестницы, мягкие округлые формы получили цветные вставки напольного покрытия, светильники, предметы мебели. Все это позволило оживить слишком сдержанную цветовую гамму и жёсткую ортогональность решений.
Офис Orange Business Services в башне «Меркурий». Реализация, 2016 © T+T Architects
Офис Orange Business Services в башне «Меркурий». Реализация, 2016 © T+T Architects
Офис Orange Business Services в башне «Меркурий». Реализация, 2016 © T+T Architects
Офис Orange Business Services в башне «Меркурий». Реализация, 2016 © T+T Architects
Офис Orange Business Services в башне «Меркурий». Реализация, 2016 © T+T Architects
Офис Orange Business Services в башне «Меркурий». Реализация, 2016 © T+T Architects
Офис Orange Business Services в башне «Меркурий». Реализация, 2016 © T+T Architects
Офис Orange Business Services в башне «Меркурий». Реализация, 2016 © T+T Architects
Офис Orange Business Services в башне «Меркурий». Реализация, 2016 © T+T Architects
Офис Orange Business Services в башне «Меркурий». Реализация, 2016 © T+T Architects
Офис Orange Business Services в башне «Меркурий». Реализация, 2016 © T+T Architects
Офис Orange Business Services в башне «Меркурий». Реализация, 2016 © T+T Architects

Ещё одной сложностью стали сжатые сроки реализации проекта. Уложится в отведенные полгода позволила схема design&build, потребовавшая тесного взаимодействия архитекторов с генпроектировщиком и генподрядчиком – компанией Pridex. «Решив оставить открытыми все инженерные коммуникации мы в определенной степени рисковали в плане качества работ, – говорит Полина Воеводина, – но спасибо нашим партнерам за особое внимание к внешнему виду, расположению коммуникаций, конкретным узлам и соединениям, все получилось отлично».