Размещено на портале Архи.ру (www.archi.ru)

30.01.2017

Гипар дизайна

Нина Фролова
Объект:
Музей дизайна
Адрес:
Великобритания, None, Лондон.
Мастерская:
Allies & Morrison
OMA
West 8

Музей дизайна в Лондоне по проекту Джона Поусона – реконструкция здания Института Содружества бюро RMJM 1960-х годов.

Музей дизайна © Gareth Gardner
Музей дизайна © Gareth Gardner

Музей дизайна открылся в Лондоне в 1989 году – на берегу Темзы, в складе для дозревания бананов. Скромное помещение и не самое удобное местоположение значительно ограничивали развитие и популярность учреждения, однако о новом здании стало возможным серьезно задуматься лишь недавно. В конце прошлого года музей открылся в реконструированном Институте Содружества бюро RMJM 1960-х годов – памятнике модернизма, примечательном своей уникальной кровлей-гипаром (1960–62). Площадь музея увеличилась в три раза – до 10 000 м2, а переезд в район Кенсингтон, рядом с Холланд-парком, сделал его гораздо доступнее, поэтому за первый месяц работы на новом месте его посетили 100 000 человек – половина годовой нормы в старом здании.
 
Музей дизайна © Gareth Gardner
Музей дизайна © Gareth Gardner

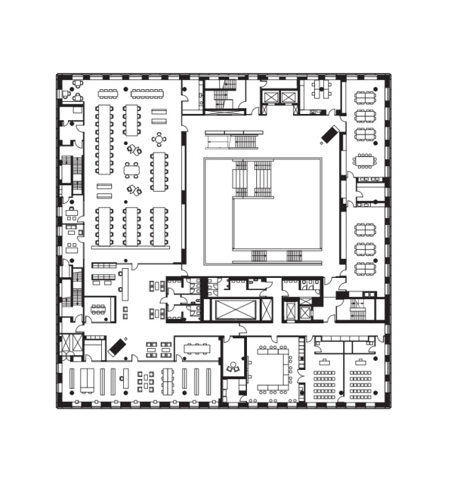
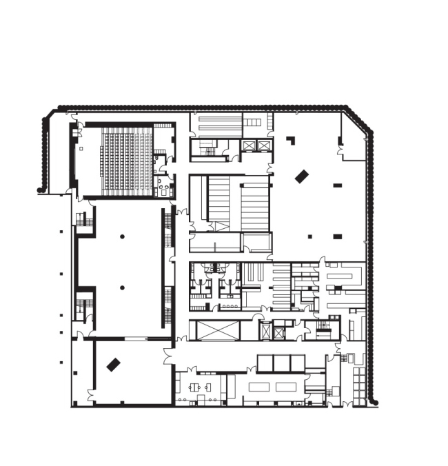
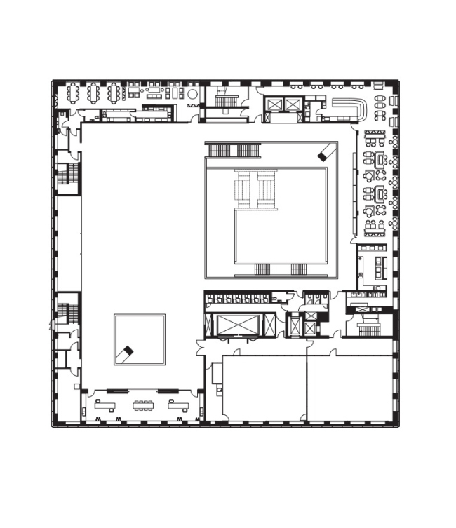
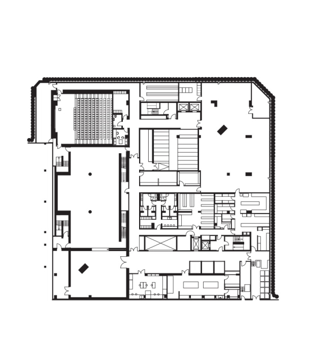
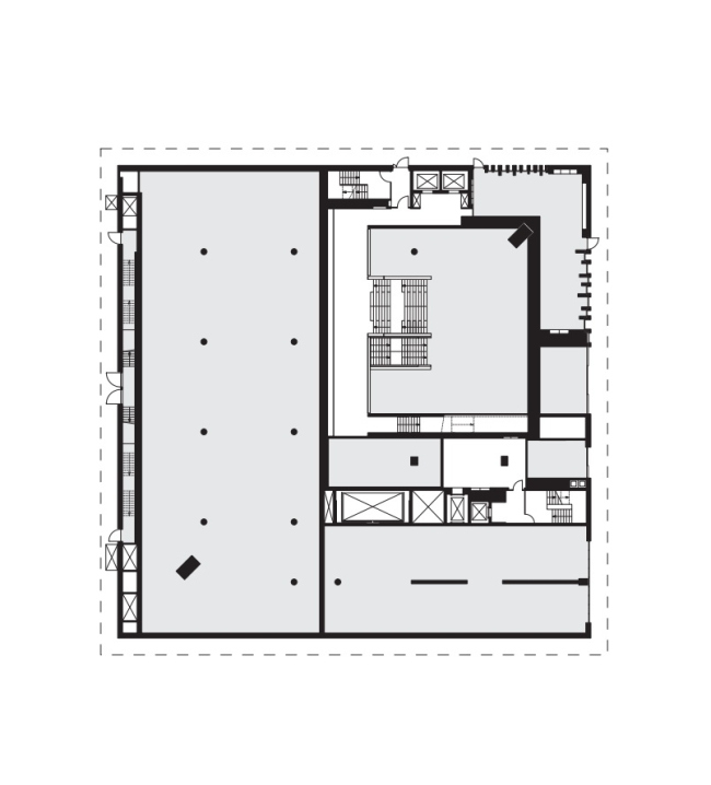
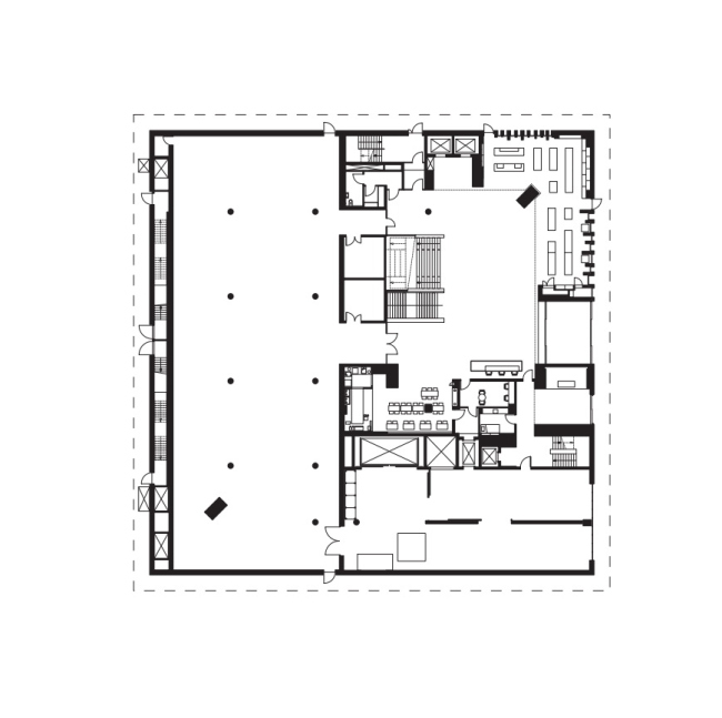
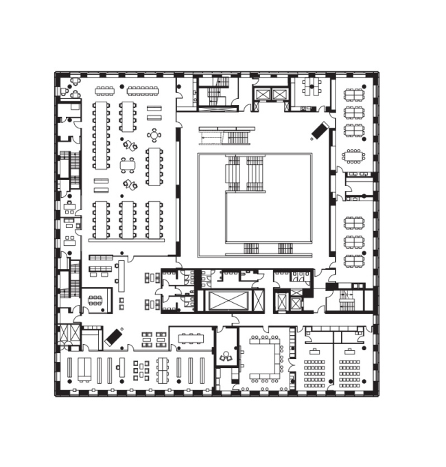
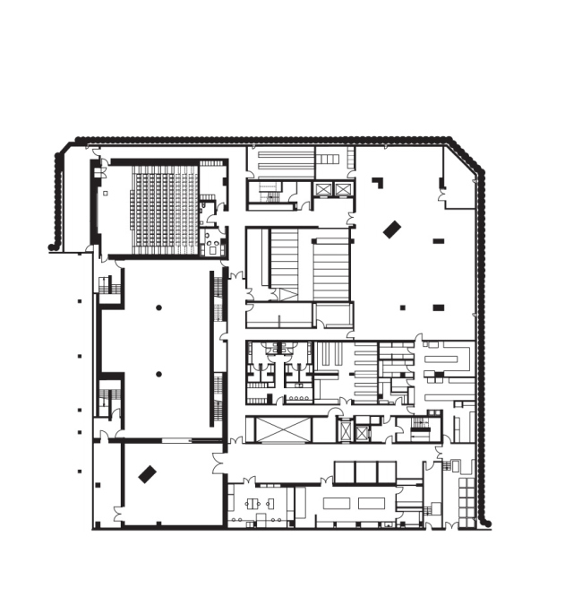
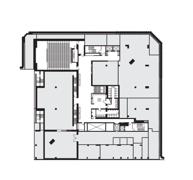
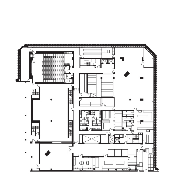
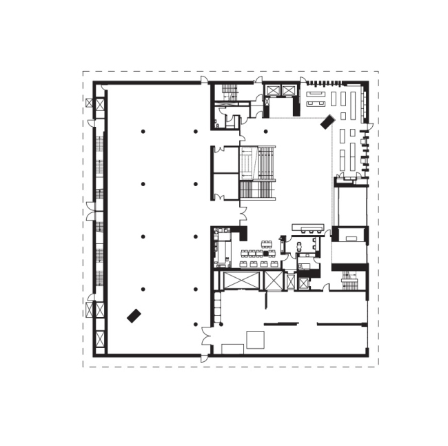
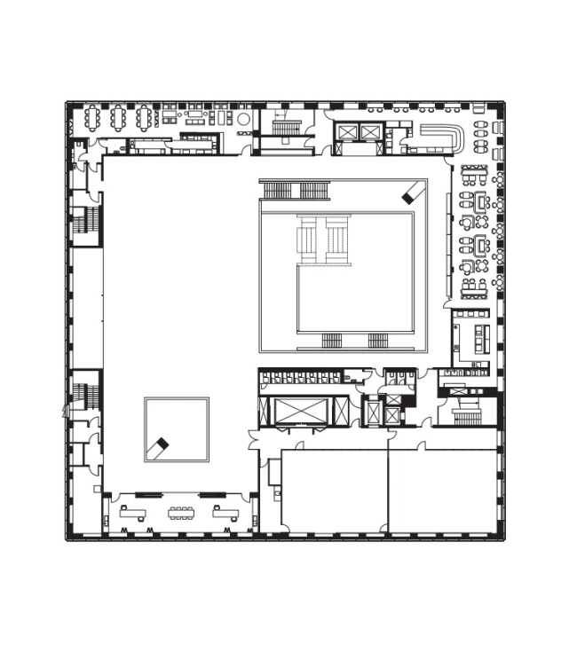
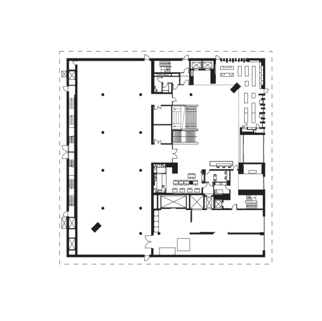
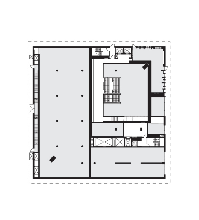
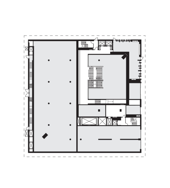
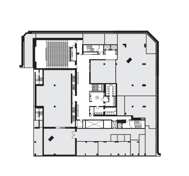
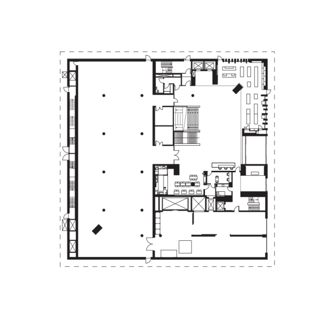
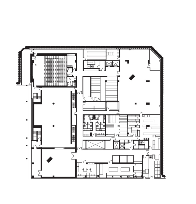
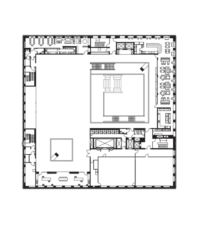
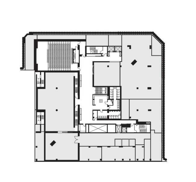
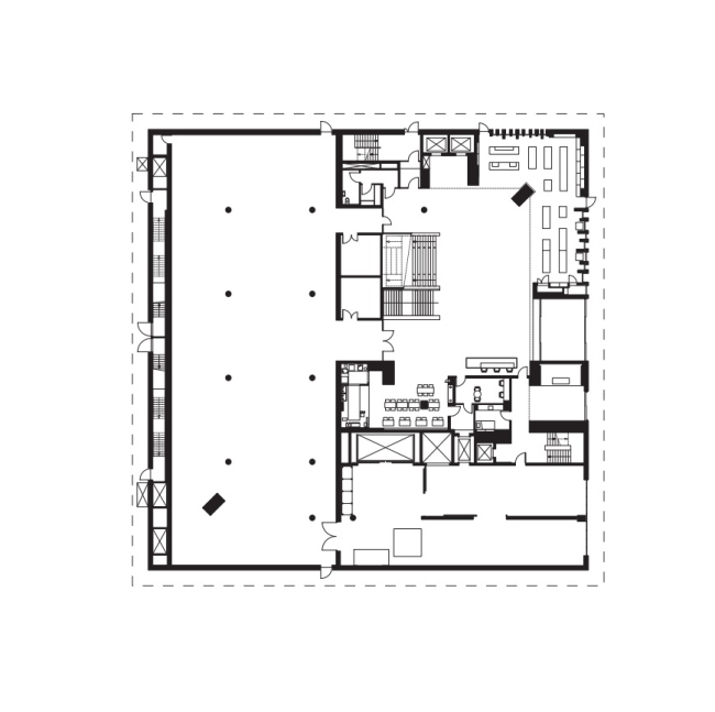
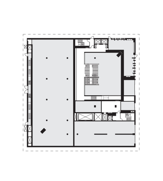
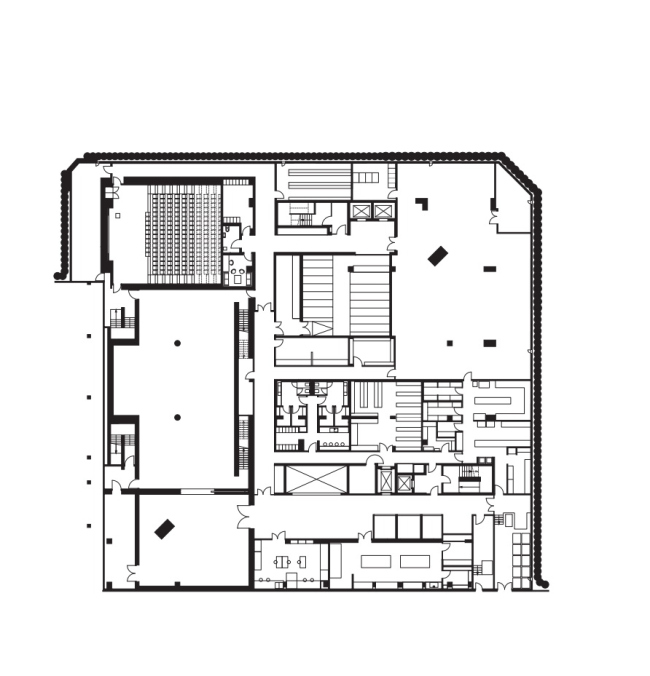
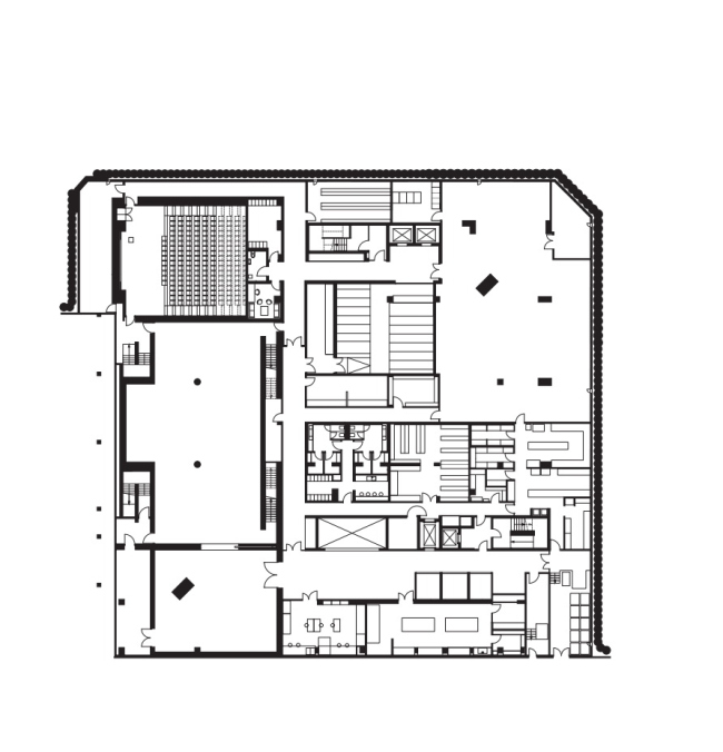
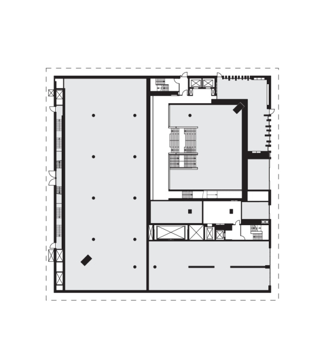
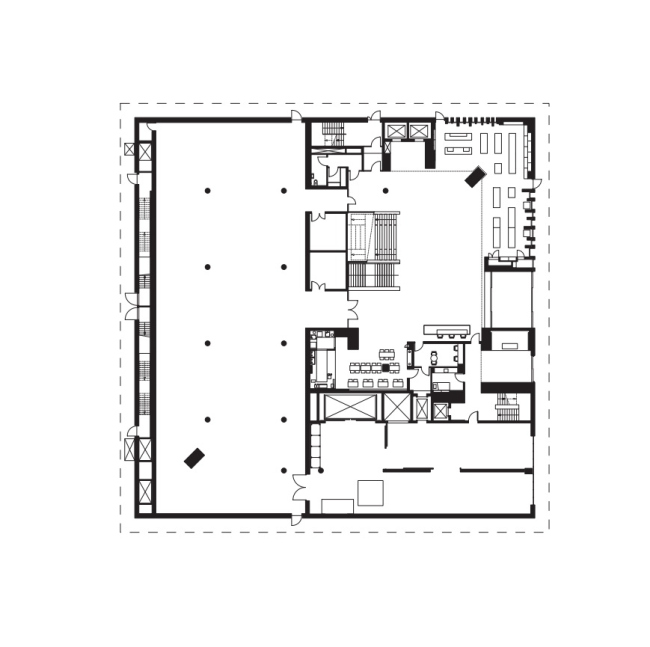
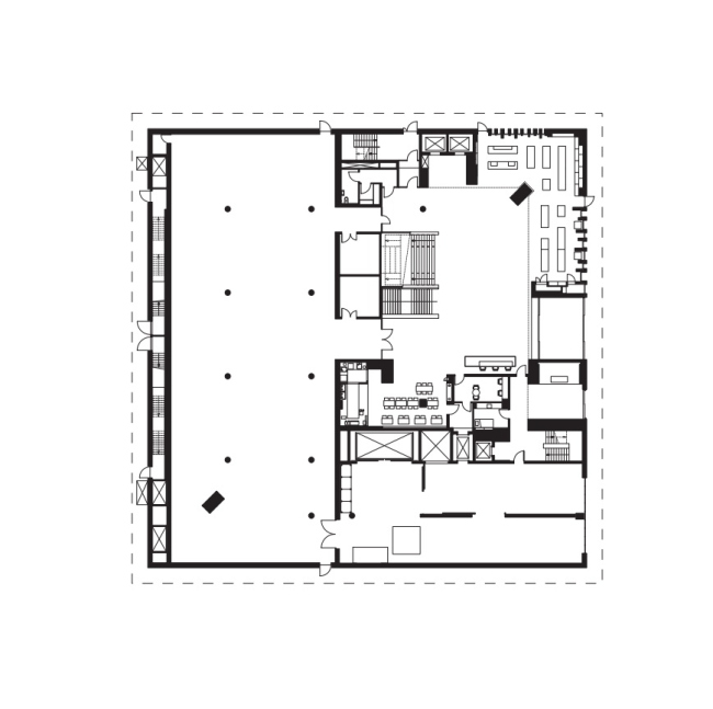
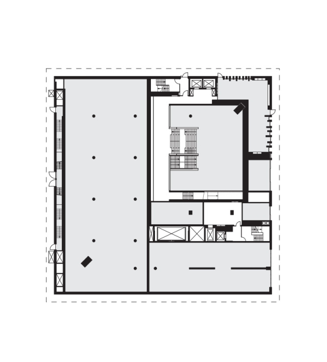
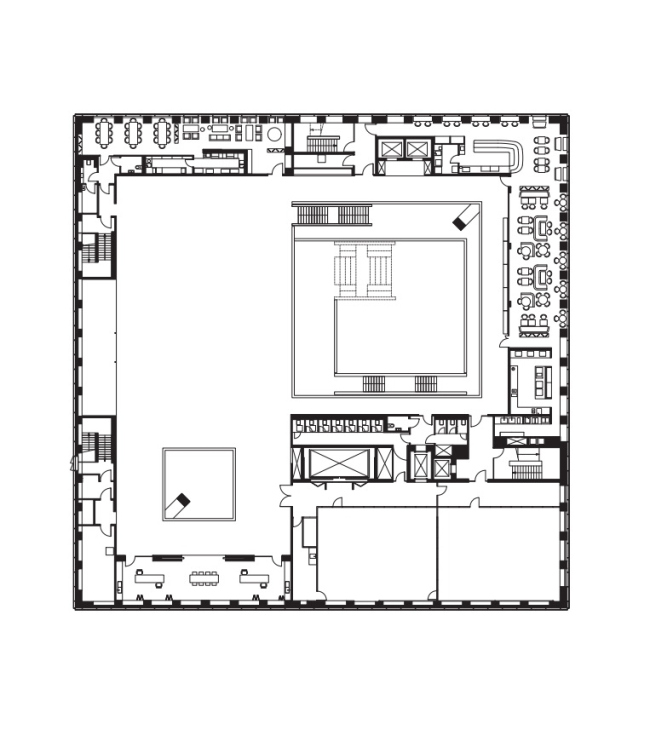
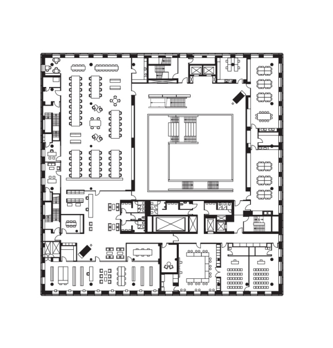
Проект с бюджетом в 83 млн фунтов был реализован в рамках плана по строительству вокруг Института Содружества жилого комплекса OMA и Allies & Morrison. Девелопер не мог снести имеющий высокий статус II*, но пустовавший памятник, и ему было рекомендовано найти для него арендатора, к примеру, художественную галерею. Превращением здания в музей занимался Джон Поусон, а за реставрацию отвечали OMA, Allies & Morrison и Arup, для которых эта работа стала важным опытом ревалоризации наследия модернизма. Охранный статус имела лишь кровля и ее опоры, они и были полностью сохранены (в ходе работ их поддерживали временные колонны), в то время как фасады полностью заменили на новые, из фриттованного стекла, в целом сохранив их облик и характерный голубой цвет: теперь в интерьер попадает больше солнечного света, и улучшена изоляция. В нижней части здания появился остекленный вход в музей, перед ним – площадь с фонтанами по проекту West 8. Также были демонтированы межэтажные перекрытия, и реализована ключевая идея Поусона – создан атриум, позволяющий видеть эффектную кровлю почти из любой точки постройки.
 
Музей дизайна © Gareth Gardner
Музей дизайна © Gareth Gardner

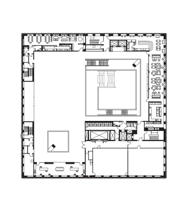
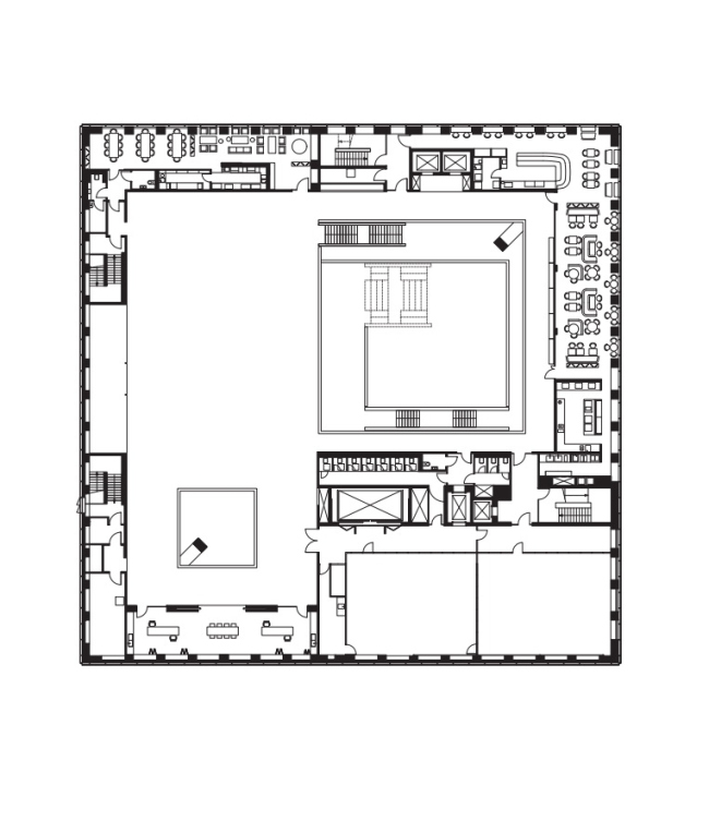
Облик атриума определяют лестницы, частью служащие и для отдыха. Светлые тона интерьеру придает широко использованная древесина дуба, сочетающаяся на первом и подземных уровнях с полами из терраццо. Поусон применил подсветку, подчеркивающую горизонтали и диагонали пространства. Из оригинальных частей сохранены витражи по проекту Кита Нью, а также мраморная стена из панелей, оставшихся от более раннего, викторианского здания Института Содружества, тогда называвшегося Имперским институтом.
 
Музей дизайна © Gareth Gardner
Музей дизайна © Gareth Gardner

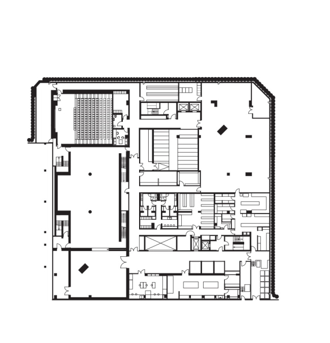
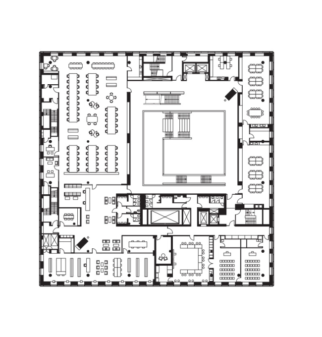
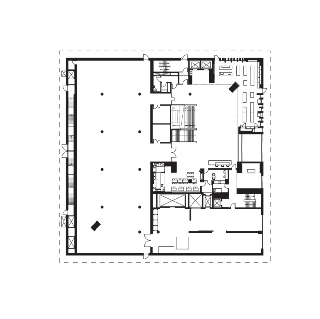
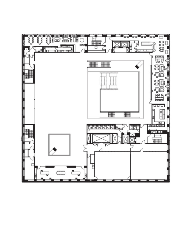
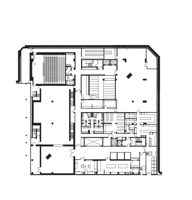
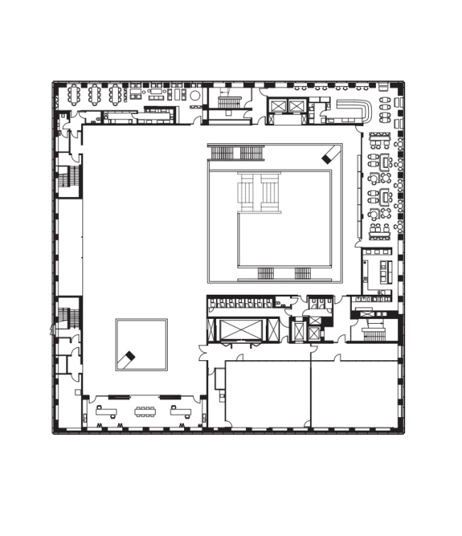
Залы временных выставок располагаются на первом и подземном этажах. Также в цоколе размещены запасник, куда можно заглянуть через специальное окно, и зал на 200 зрителей, а на первом этаже – музейный магазин. Второй ярус занят образовательным центром, архивом и библиотекой. Выше находится бесплатный для посещения зал постоянной экспозиции: там выставлено почти 1000 экспонатов, от модели нового поезда лондонского метро в масштабе 1:1 до автомата Калашникова. Также на третьем этаже – ресторан «Парабола», комната для обладателей членских карт, небольшой зал для выставок и различных мероприятий. Там же можно разглядеть вблизи и даже потрогать крышу, окинуть взглядом как весь интерьер музея, так и Холланд-парк за окном.
Музей дизайна © Gareth Gardner
Музей дизайна © Gareth Gardner
Музей дизайна © Gareth Gardner
Музей дизайна © Gareth Gardner
Музей дизайна © Gareth Gardner
Музей дизайна © Gareth Gardner
Музей дизайна © Gareth Gardner
Музей дизайна © Gareth Gardner
Музей дизайна © Gareth Gardner
Музей дизайна © Gareth Gardner
Музей дизайна © Gareth Gardner
Музей дизайна © Gareth Gardner
Музей дизайна © Gareth Gardner
Музей дизайна © Gareth Gardner
Музей дизайна © Gareth Gardner
Музей дизайна © Gareth Gardner
Музей дизайна © Gareth Gardner
Музей дизайна © Gareth Gardner
Музей дизайна © Gareth Gardner
Музей дизайна © Gareth Gardner
Музей дизайна © Gravity Road
Музей дизайна © Gravity Road
Музей дизайна © Hélène Binet
Музей дизайна © Hélène Binet
Музей дизайна ©  Luke Hayes
Музей дизайна © Luke Hayes
Музей дизайна ©  Luke Hayes
Музей дизайна © Luke Hayes
Музей дизайна ©  Luke Hayes
Музей дизайна © Luke Hayes
Музей дизайна ©  Luke Hayes
Музей дизайна © Luke Hayes
Музей дизайна ©  Luke Hayes
Музей дизайна © Luke Hayes
Музей дизайна ©  Luke Hayes
Музей дизайна © Luke Hayes
Музей дизайна ©  Luke Hayes
Музей дизайна © Luke Hayes
Музей дизайна ©  Luke Hayes
Музей дизайна © Luke Hayes
Музей дизайна © Gareth Gardner
Музей дизайна © Gareth Gardner
Музей дизайна © Gareth Gardner
Музей дизайна © Gareth Gardner
Музей дизайна ©  Luke Hayes
Музей дизайна © Luke Hayes
Музей дизайна © Gareth Gardner
Музей дизайна © Gareth Gardner
Музей дизайна © Hélène Binet
Музей дизайна © Hélène Binet
Музей дизайна © Hélène Binet
Музей дизайна © Hélène Binet
Музей дизайна © Hélène Binet
Музей дизайна © Hélène Binet
Музей дизайна © Hélène Binet
Музей дизайна © Hélène Binet
Музей дизайна © Hélène Binet
Музей дизайна © Hélène Binet
Музей дизайна © Hélène Binet
Музей дизайна © Hélène Binet
Музей дизайна © Hélène Binet
Музей дизайна © Hélène Binet
Музей дизайна ©  Luke Hayes
Музей дизайна © Luke Hayes
Музей дизайна ©  Luke Hayes
Музей дизайна © Luke Hayes
Музей дизайна © John Pawson
Музей дизайна © John Pawson
Музей дизайна © John Pawson
Музей дизайна © John Pawson
Музей дизайна © John Pawson
Музей дизайна © John Pawson
Музей дизайна © John Pawson
Музей дизайна © John Pawson
Музей дизайна © John Pawson
Музей дизайна © John Pawson
Музей дизайна © John Pawson
Музей дизайна © John Pawson
Музей дизайна © John Pawson
Музей дизайна © John Pawson
Музей дизайна © John Pawson
Музей дизайна © John Pawson
Музей дизайна © John Pawson
Музей дизайна © John Pawson
Музей дизайна © John Pawson
Музей дизайна © John Pawson
Музей дизайна © John Pawson
Музей дизайна © John Pawson