Размещено на портале Архи.ру (www.archi.ru)

27.01.2017

Кристаллические формы

Нина Фролова
Объект:
Башня Prism Tower
Адрес:
США, None, Нью-Йорк.

Жилой небоскреб Prism Tower в Нью-Йорке по проекту Кристиана де Портзампарка.

Башня Prism Tower © Wade Zimmerman
Башня Prism Tower © Wade Zimmerman

Проект 40-этажной башни был разработан Кристианом де Портзампарком еще в начале 2000-х, однако вскоре его «положили на полку», и реализации пришлось ждать долгие 12 лет. Благодаря угловому участку – на пересечении Парк-авеню и 27-й улицы – архитектор получил возможность разделить объем башни на две части. В результате стало проще обеспечить светом и видами наибольшее число квартир, чему также способствовала сложная кристаллическая форма постройки: выступающие части служат своего рода эркерами. Кроме того, как будто расколотый объем позволил обойтись без отступа от красной линии, обычно обязательного для высотных зданий на Манхэттене (иначе они полностью затеняют улицу и соседние постройки).
 
Башня Prism Tower © Wade Zimmerman
Башня Prism Tower © Wade Zimmerman

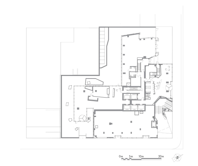
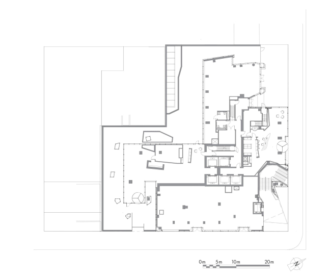
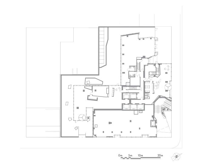
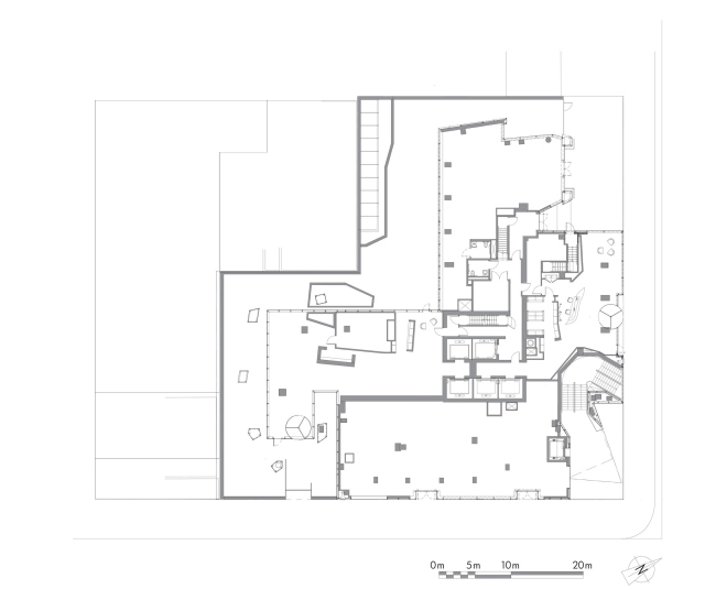
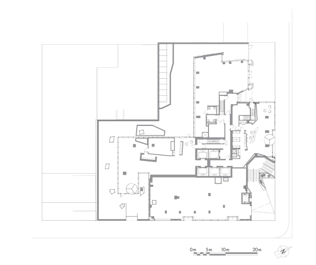
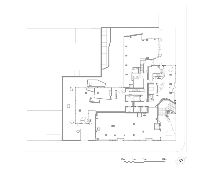
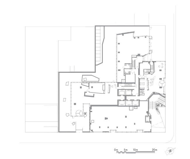
Сложный абрис жилого комплекса также сделал более интересной и разнообразной планировку 469 квартир, по размеру варьирующихся от студий до жилищ с 4 спальнями. В выходящей на 28-ю улицу части устроен подъезд для съемных квартир, занимающих 22 нижних этажа Prism Tower (застройщик Equity Residential), со стороны Парк-авеню помещен вход для жильцов кондоминиума (верхние 18 этажей, девелопер Toll Brothers). Бюджет проекта составил 400 млн долларов.
 
Башня Prism Tower © Wade Zimmerman
Башня Prism Tower © Wade Zimmerman

Для всех жителей доступны расположенные внизу башни фитнес-центр с сауной, 20-метровый бассейн, салон, кинозал и т.д. Также на первом этаже находятся магазин, ресторан и вход в станцию метро.
Башня Prism Tower © Wade Zimmerman
Башня Prism Tower © Wade Zimmerman
Башня Prism Tower © Wade Zimmerman
Башня Prism Tower © Wade Zimmerman
Башня Prism Tower © Wade Zimmerman
Башня Prism Tower © Wade Zimmerman
Башня Prism Tower © Wade Zimmerman
Башня Prism Tower © Wade Zimmerman
Башня Prism Tower © Wade Zimmerman
Башня Prism Tower © Wade Zimmerman
Башня Prism Tower © Wade Zimmerman
Башня Prism Tower © Wade Zimmerman
Башня Prism Tower © Wade Zimmerman
Башня Prism Tower © Wade Zimmerman
Башня Prism Tower © Wade Zimmerman
Башня Prism Tower © Wade Zimmerman
Башня Prism Tower © Wade Zimmerman
Башня Prism Tower © Wade Zimmerman
Башня Prism Tower © Wade Zimmerman
Башня Prism Tower © Wade Zimmerman
Башня Prism Tower © Wade Zimmerman
Башня Prism Tower © Wade Zimmerman
Башня Prism Tower © Wade Zimmerman
Башня Prism Tower © Wade Zimmerman
Башня Prism Tower © Wade Zimmerman
Башня Prism Tower © Wade Zimmerman
Башня Prism Tower © Wade Zimmerman
Башня Prism Tower © Wade Zimmerman
Башня Prism Tower © Wade Zimmerman
Башня Prism Tower © Wade Zimmerman
Башня Prism Tower © Wade Zimmerman
Башня Prism Tower © Wade Zimmerman
Башня Prism Tower © Wade Zimmerman
Башня Prism Tower © Wade Zimmerman
Башня Prism Tower © Wade Zimmerman
Башня Prism Tower © Wade Zimmerman
Башня Prism Tower © Wade Zimmerman
Башня Prism Tower © Wade Zimmerman
Башня Prism Tower © Wade Zimmerman
Башня Prism Tower © Wade Zimmerman
Башня Prism Tower © Wade Zimmerman
Башня Prism Tower © Wade Zimmerman
Башня Prism Tower © Wade Zimmerman
Башня Prism Tower © Wade Zimmerman
Башня Prism Tower © Wade Zimmerman
Башня Prism Tower © Wade Zimmerman
Башня Prism Tower © Wade Zimmerman
Башня Prism Tower © Wade Zimmerman
Башня Prism Tower © Wade Zimmerman
Башня Prism Tower © Wade Zimmerman
Башня Prism Tower © Wade Zimmerman
Башня Prism Tower © Wade Zimmerman
Башня Prism Tower © Wade Zimmerman
Башня Prism Tower © Wade Zimmerman
Башня Prism Tower © Wade Zimmerman
Башня Prism Tower © Wade Zimmerman
Башня Prism Tower © Wade Zimmerman
Башня Prism Tower © Wade Zimmerman
Башня Prism Tower © Wade Zimmerman
Башня Prism Tower © Wade Zimmerman
Башня Prism Tower © Wade Zimmerman
Башня Prism Tower © Wade Zimmerman
Башня Prism Tower © Agence Christian de Portzamparc
Башня Prism Tower © Agence Christian de Portzamparc
Башня Prism Tower © Agence Christian de Portzamparc
Башня Prism Tower © Agence Christian de Portzamparc
Башня Prism Tower © Agence Christian de Portzamparc
Башня Prism Tower © Agence Christian de Portzamparc
Башня Prism Tower © Agence Christian de Portzamparc
Башня Prism Tower © Agence Christian de Portzamparc
Башня Prism Tower © Agence Christian de Portzamparc
Башня Prism Tower © Agence Christian de Portzamparc
Башня Prism Tower © Agence Christian de Portzamparc
Башня Prism Tower © Agence Christian de Portzamparc
Башня Prism Tower © Agence Christian de Portzamparc
Башня Prism Tower © Agence Christian de Portzamparc
Башня Prism Tower © Agence Christian de Portzamparc
Башня Prism Tower © Agence Christian de Portzamparc
Башня Prism Tower © Agence Christian de Portzamparc
Башня Prism Tower © Agence Christian de Portzamparc
Башня Prism Tower © Agence Christian de Portzamparc
Башня Prism Tower © Agence Christian de Portzamparc
Башня Prism Tower © Agence Christian de Portzamparc
Башня Prism Tower © Agence Christian de Portzamparc
Башня Prism Tower © Agence Christian de Portzamparc
Башня Prism Tower © Agence Christian de Portzamparc
Башня Prism Tower © Agence Christian de Portzamparc
Башня Prism Tower © Agence Christian de Portzamparc
Башня Prism Tower © Agence Christian de Portzamparc
Башня Prism Tower © Agence Christian de Portzamparc
Башня Prism Tower © Christian de Portzamparc
Башня Prism Tower © Christian de Portzamparc
Башня Prism Tower © Christian de Portzamparc
Башня Prism Tower © Christian de Portzamparc
Башня Prism Tower © Christian de Portzamparc
Башня Prism Tower © Christian de Portzamparc