Размещено на портале Архи.ру (www.archi.ru)

26.01.2017

Икс в центре города

Нина Фролова
Объект:
Библиотека имени Алексиса де Токвиля
Адрес:
Франция, None, Кан.
Мастерская:
OMA

Библиотека имени Алексиса де Токвиля в столице Нижней Нормандии по проекту бюро OMA и Barcode Architects.

Библиотека имени Алексиса де Токвиля. Фото: Philippe Ruault, предоставлено OMA
Библиотека имени Алексиса де Токвиля. Фото: Philippe Ruault, предоставлено OMA

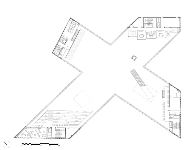
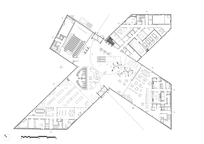
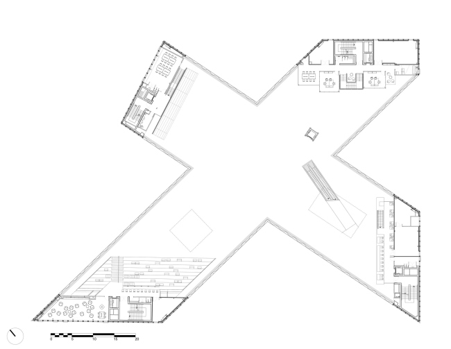
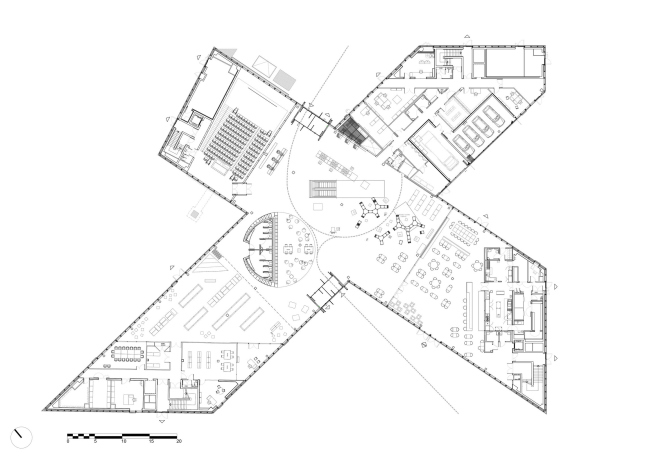
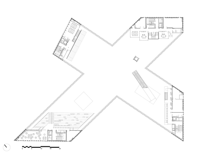
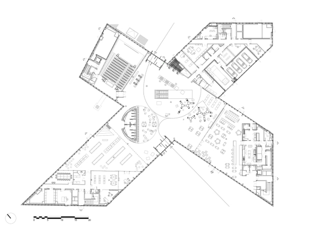
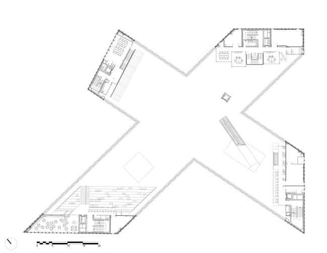
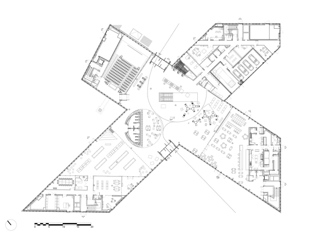
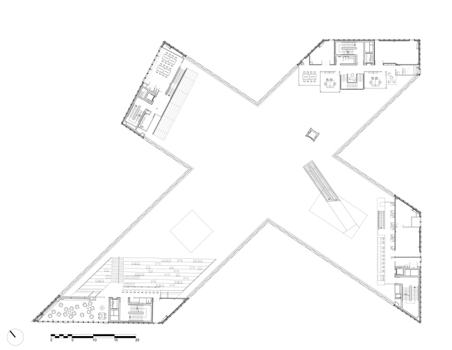
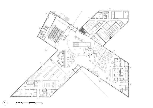
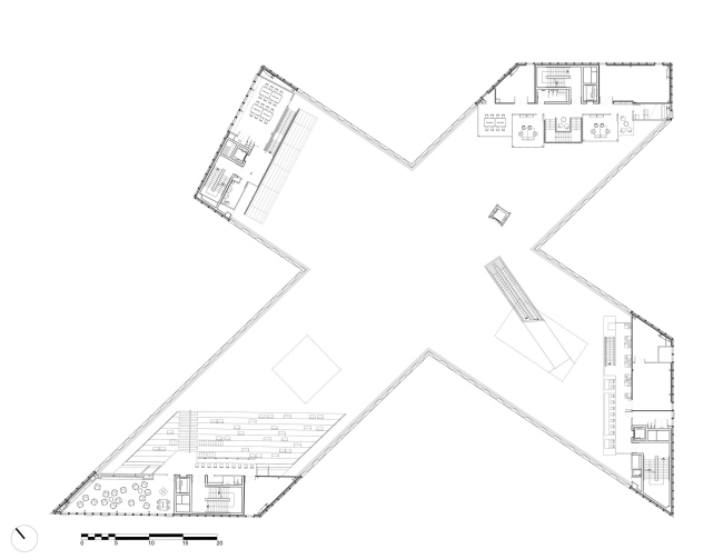
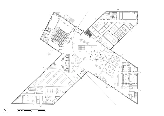
Библиотека расположена в географическом центре Кана, на «полуострове» между рекой Орн и каналом, соединяющим город с Ла-Маншем. Там сейчас идет активное строительство, вместо промзоны уже появились здание суда, научный центр и другие постройки. Однако общественным центром нового района, открывающего расположенную к востоку зону развития Кана, станет именно библиотека. Ее план в форме буквы икс указывает западным и северным концами на знаменитые памятники европейской романики – церкви Сент-Этьен и Сент-Трините, южным – на вокзал, а восточным – на упомянутую зону новой застройки. Одновременно, эти четыре конца вмещают тематические зоны второго, основного этажа библиотеки: науки о человеке, точные, технические и естественные науки, литература и искусства «встречаются» в центре – главном читальном зале. Важно отметить, что бумажные и цифровые книги размещены на стеллажах свободного доступа бок о бок; всего там помещается 120 000 документов.
 
Библиотека имени Алексиса де Токвиля. Фото: Philippe Ruault, предоставлено OMA
Библиотека имени Алексиса де Токвиля. Фото: Philippe Ruault, предоставлено OMA

На первом этаже расположен просторный вестибюль, газетный киоск, вход в зрительный зал на 150 человек, а также ресторан с террасой у воды. Стеклянные фасады библиотеки связывают ее интерьер с рекой и каналом, пешеходным маршрутом и парком вокруг, а с верхнего яруса можно даже полюбоваться видами города. Именно там, на третьем этаже размещены детский отдел, офисы администрации и подсобные помещения. Книгохранилище с архивом и историческим собранием занимает подземный уровень, который защищает от сырости новаторская изоляционная мембрана на внутренней поверхности бетонных стен.
Библиотека имени Алексиса де Токвиля. Фото: Philippe Ruault, предоставлено OMA
Библиотека имени Алексиса де Токвиля. Фото: Philippe Ruault, предоставлено OMA
Библиотека имени Алексиса де Токвиля. Фото: Philippe Ruault, предоставлено OMA
Библиотека имени Алексиса де Токвиля. Фото: Philippe Ruault, предоставлено OMA
Библиотека имени Алексиса де Токвиля. Фото: Delfino Sisto Legnani & Marco Cappelletti © OMA
Библиотека имени Алексиса де Токвиля. Фото: Delfino Sisto Legnani & Marco Cappelletti © OMA
Библиотека имени Алексиса де Токвиля. Фото: Delfino Sisto Legnani & Marco Cappelletti © OMA
Библиотека имени Алексиса де Токвиля. Фото: Delfino Sisto Legnani & Marco Cappelletti © OMA
Библиотека имени Алексиса де Токвиля. Фото: Philippe Ruault, предоставлено OMA
Библиотека имени Алексиса де Токвиля. Фото: Philippe Ruault, предоставлено OMA
Библиотека имени Алексиса де Токвиля. Фото: Delfino Sisto Legnani & Marco Cappelletti © OMA
Библиотека имени Алексиса де Токвиля. Фото: Delfino Sisto Legnani & Marco Cappelletti © OMA
Библиотека имени Алексиса де Токвиля. Фото: Delfino Sisto Legnani & Marco Cappelletti © OMA
Библиотека имени Алексиса де Токвиля. Фото: Delfino Sisto Legnani & Marco Cappelletti © OMA
Библиотека имени Алексиса де Токвиля. Фото: Delfino Sisto Legnani & Marco Cappelletti © OMA
Библиотека имени Алексиса де Токвиля. Фото: Delfino Sisto Legnani & Marco Cappelletti © OMA
Библиотека имени Алексиса де Токвиля. Фото: Delfino Sisto Legnani & Marco Cappelletti © OMA
Библиотека имени Алексиса де Токвиля. Фото: Delfino Sisto Legnani & Marco Cappelletti © OMA
Библиотека имени Алексиса де Токвиля. Фото: Delfino Sisto Legnani & Marco Cappelletti © OMA
Библиотека имени Алексиса де Токвиля. Фото: Delfino Sisto Legnani & Marco Cappelletti © OMA
Библиотека имени Алексиса де Токвиля. Фото: Delfino Sisto Legnani & Marco Cappelletti © OMA
Библиотека имени Алексиса де Токвиля. Фото: Delfino Sisto Legnani & Marco Cappelletti © OMA
Библиотека имени Алексиса де Токвиля. Фото: Delfino Sisto Legnani & Marco Cappelletti © OMA
Библиотека имени Алексиса де Токвиля. Фото: Delfino Sisto Legnani & Marco Cappelletti © OMA
Библиотека имени Алексиса де Токвиля. Фото: Delfino Sisto Legnani & Marco Cappelletti © OMA
Библиотека имени Алексиса де Токвиля. Фото: Delfino Sisto Legnani & Marco Cappelletti © OMA
Библиотека имени Алексиса де Токвиля. Фото: Delfino Sisto Legnani & Marco Cappelletti © OMA
Библиотека имени Алексиса де Токвиля. Фото: Delfino Sisto Legnani & Marco Cappelletti © OMA
Библиотека имени Алексиса де Токвиля. Фото: Delfino Sisto Legnani & Marco Cappelletti © OMA
Библиотека имени Алексиса де Токвиля. Фото: Delfino Sisto Legnani & Marco Cappelletti © OMA
Библиотека имени Алексиса де Токвиля. Фото: Delfino Sisto Legnani & Marco Cappelletti © OMA
Библиотека имени Алексиса де Токвиля. Фото: Delfino Sisto Legnani & Marco Cappelletti © OMA
Библиотека имени Алексиса де Токвиля. Фото: Philippe Ruault, предоставлено OMA
Библиотека имени Алексиса де Токвиля. Фото: Philippe Ruault, предоставлено OMA
Библиотека имени Алексиса де Токвиля. Фото: Philippe Ruault, предоставлено OMA
Библиотека имени Алексиса де Токвиля. Фото: Philippe Ruault, предоставлено OMA
Библиотека имени Алексиса де Токвиля. Фото: Philippe Ruault, предоставлено OMA
Библиотека имени Алексиса де Токвиля. Фото: Philippe Ruault, предоставлено OMA
Библиотека имени Алексиса де Токвиля. Фото: Philippe Ruault, предоставлено OMA
Библиотека имени Алексиса де Токвиля. Фото: Philippe Ruault, предоставлено OMA
Библиотека имени Алексиса де Токвиля. Фото: Delfino Sisto Legnani & Marco Cappelletti © OMA
Библиотека имени Алексиса де Токвиля. Фото: Delfino Sisto Legnani & Marco Cappelletti © OMA
Библиотека имени Алексиса де Токвиля © OMA
Библиотека имени Алексиса де Токвиля © OMA
Библиотека имени Алексиса де Токвиля © OMA
Библиотека имени Алексиса де Токвиля © OMA
Библиотека имени Алексиса де Токвиля © OMA
Библиотека имени Алексиса де Токвиля © OMA
Библиотека имени Алексиса де Токвиля © OMA
Библиотека имени Алексиса де Токвиля © OMA
Библиотека имени Алексиса де Токвиля © OMA
Библиотека имени Алексиса де Токвиля © OMA
Библиотека имени Алексиса де Токвиля © OMA
Библиотека имени Алексиса де Токвиля © OMA
Библиотека имени Алексиса де Токвиля © OMA
Библиотека имени Алексиса де Токвиля © OMA
Библиотека имени Алексиса де Токвиля © OMA
Библиотека имени Алексиса де Токвиля © OMA
Библиотека имени Алексиса де Токвиля © OMA
Библиотека имени Алексиса де Токвиля © OMA
Библиотека имени Алексиса де Токвиля © OMA
Библиотека имени Алексиса де Токвиля © OMA
Библиотека имени Алексиса де Токвиля © OMA
Библиотека имени Алексиса де Токвиля © OMA
Библиотека имени Алексиса де Токвиля © OMA
Библиотека имени Алексиса де Токвиля © OMA
Библиотека имени Алексиса де Токвиля © OMA
Библиотека имени Алексиса де Токвиля © OMA
Библиотека имени Алексиса де Токвиля © OMA
Библиотека имени Алексиса де Токвиля © OMA
Библиотека имени Алексиса де Токвиля © OMA
Библиотека имени Алексиса де Токвиля © OMA
Библиотека имени Алексиса де Токвиля © OMA
Библиотека имени Алексиса де Токвиля © OMA