Размещено на портале Архи.ру (www.archi.ru)

25.01.2017

В стиле порта

Нина Фролова
Объект:
Штаб-квартира компании Gebr. Heinemann – новый корпус
Адрес:
Германия, None, Гамбург.
Мастерская:
gmp

Новый корпус штаб-квартира компании Gebr. Heinemann в гамбургском Хафен-сити по проекту бюро gmp.

Штаб-квартира компании Gebr. Heinemann – новый корпус © Marcus Bredt
Штаб-квартира компании Gebr. Heinemann – новый корпус © Marcus Bredt

Новая постройка стала третьим корпусом здания компании, исторически связанной с портами и морем: Gebr. Heinemann была основана в XIX веке как фирма по снабжению всем необходимым кораблей и их команд. В наши дни эта компания – одна из крупнейших владельцев магазинов Duty Free в аэропортах мира, кроме того, как дистрибьютор она снабжает товарами более 1000 заказчиков в 100 странах мира.
 
Штаб-квартира компании Gebr. Heinemann – новый корпус © Marcus Bredt
Штаб-квартира компании Gebr. Heinemann – новый корпус © Marcus Bredt

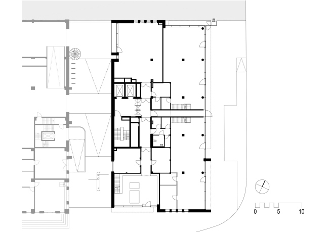
Новый корпус связан с ансамблем штаб-квартиры XIX­­­–XXI веков остекленным переходом. Он вторит его кирпичным и стеклянным поверхностям с ярко выраженным вертикализмом, в том числе – характерным для исторических складов проемам на уровне земли (такой склад входит и в комплекс компании). Крыши-террасы соответствуют уровням карнизов стоящих рядом зданий.
 
Штаб-квартира компании Gebr. Heinemann – новый корпус © Marcus Bredt
Штаб-квартира компании Gebr. Heinemann – новый корпус © Marcus Bredt

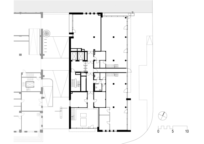
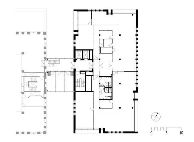
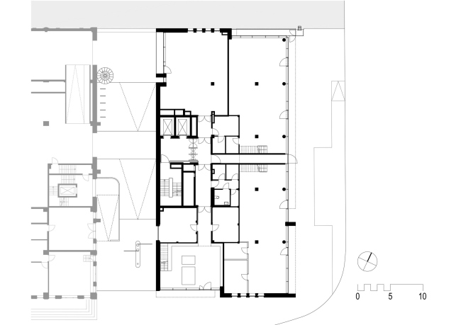
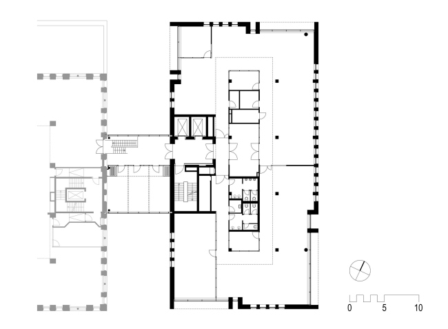
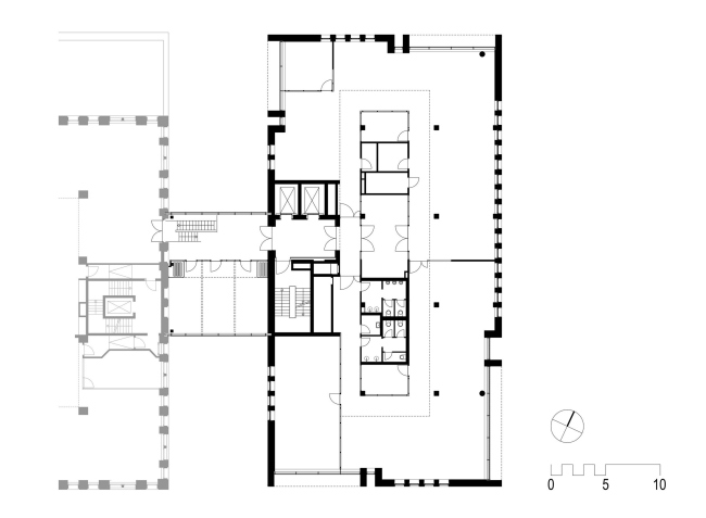
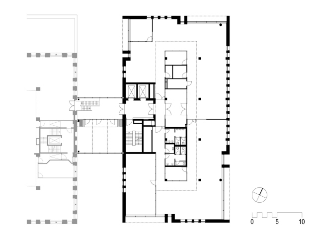
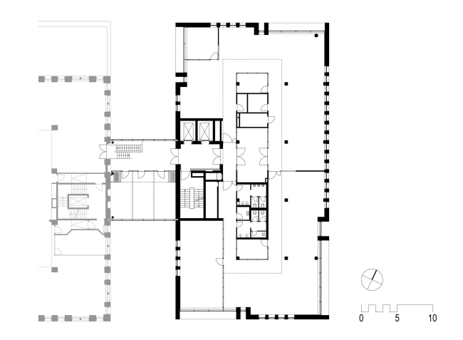
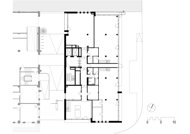
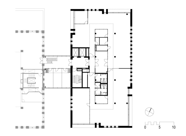
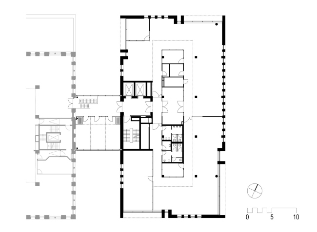
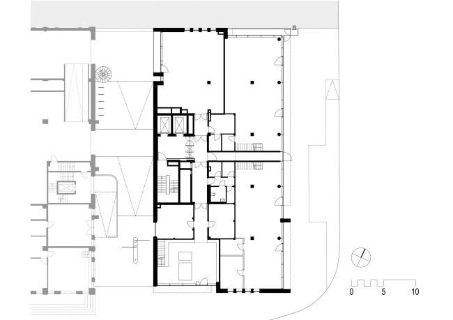
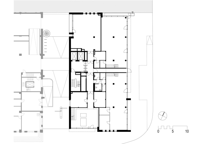
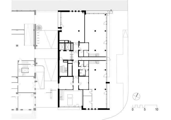
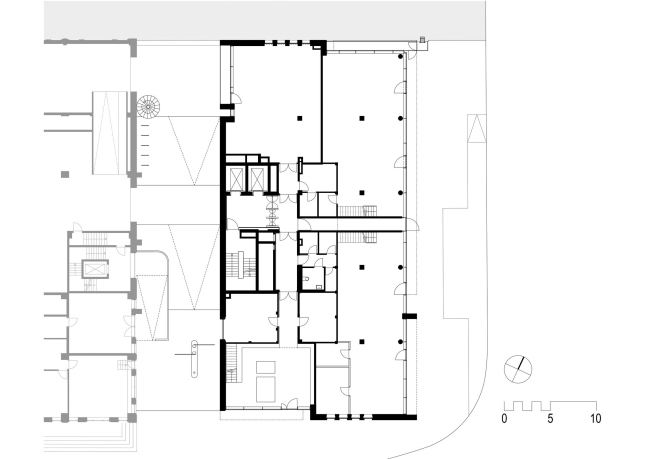
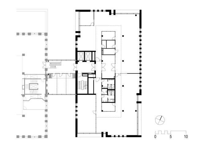
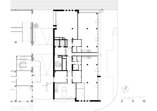
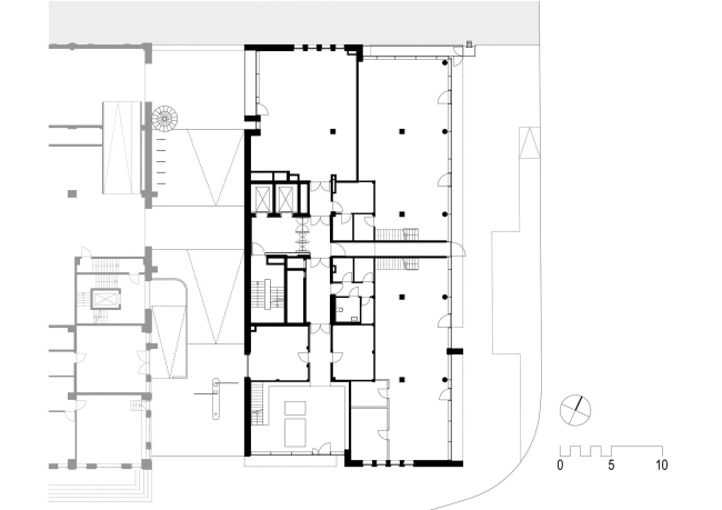
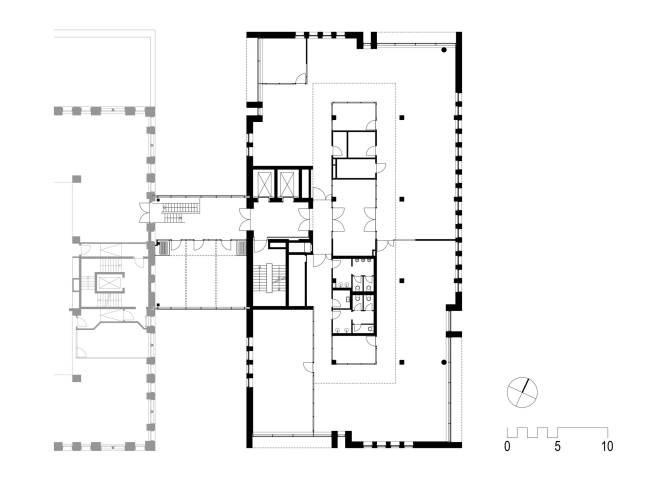
На первом, остекленном ярусе находятся вестибюль, музей компании и магазины, а выше располагаются восемь этажей офисов (свободного плана и с ячейками), организованных вокруг центрального ядра. Под землей помещен двухуровневый гараж. Одна из внешних стен здания является также стеной канала Флит, над которым новый корпус возвышается на 42 метра.
 
Штаб-квартира компании Gebr. Heinemann – новый корпус © Marcus Bredt
Штаб-квартира компании Gebr. Heinemann – новый корпус © Marcus Bredt
Штаб-квартира компании Gebr. Heinemann – новый корпус © Marcus Bredt
Штаб-квартира компании Gebr. Heinemann – новый корпус © Marcus Bredt
Штаб-квартира компании Gebr. Heinemann – новый корпус © Marcus Bredt
Штаб-квартира компании Gebr. Heinemann – новый корпус © Marcus Bredt
Штаб-квартира компании Gebr. Heinemann – новый корпус © Marcus Bredt
Штаб-квартира компании Gebr. Heinemann – новый корпус © Marcus Bredt
Штаб-квартира компании Gebr. Heinemann – новый корпус © Marcus Bredt
Штаб-квартира компании Gebr. Heinemann – новый корпус © Marcus Bredt
Штаб-квартира компании Gebr. Heinemann – новый корпус © Marcus Bredt
Штаб-квартира компании Gebr. Heinemann – новый корпус © Marcus Bredt
Штаб-квартира компании Gebr. Heinemann – новый корпус © gmp
Штаб-квартира компании Gebr. Heinemann – новый корпус © gmp
Штаб-квартира компании Gebr. Heinemann – новый корпус © gmp
Штаб-квартира компании Gebr. Heinemann – новый корпус © gmp
Штаб-квартира компании Gebr. Heinemann – новый корпус © gmp
Штаб-квартира компании Gebr. Heinemann – новый корпус © gmp
Штаб-квартира компании Gebr. Heinemann – новый корпус © gmp
Штаб-квартира компании Gebr. Heinemann – новый корпус © gmp