Размещено на портале Архи.ру (www.archi.ru)

24.01.2017

Обновленный календарь

Анна Старостина
Объект:
Реконструкция Марсельских доков
Адрес:
Франция, None, Марсель.
Мастерская:
5+1AA

Итальянское бюро 5+1AA превратило внутренние дворы и нижние этажи доков в Марселе в торгово-развлекательную зону.

Общественная зона Марсельских доков © Luc Boegly
Общественная зона Марсельских доков © Luc Boegly

Доки в районе Жольетт были построены еще в середине XIX века по проекту архитектора Гюстава Депляса. Четыре вытянутых в одну линию здания имеют длину ровно 365 метров, по числу дней в году. Их четыре внутренних двора символизируют времена года, 52 двери обозначают его недели, а каждый из 7 этажей – один день недели. Более затейливое по своему оформлению здание управления образует торцевой фасад всего комплекса. В 1991 в рамках масштабной программы обновления города, здания, используемые, в основном, просто как склады, были реконструированы по проекту архитектора Эрика Кастальди под офисные и торговые помещения. Проект впервые предусматривал формирование единой внутренней «улицы» от главного входа, расширение оконных проемов и создание световых фонарей.
Общественная зона Марсельских доков © Luc Boegly
Общественная зона Марсельских доков © Luc Boegly

В 2009 итальянцы Альфонсо Фемиа и Джанлука Пелуффо выиграли конкурс на создание в обновленном комплексе привлекательной общественной зоны. По их проекту, полуподвальный и наземный этажи бывших доков вместе с внутренними дворами (всего около 21 000 м2) превращены в магазины, кафе, рестораны и различные зоны отдыха. Череда ярких и разнообразных пространств, нанизанных на протяженную основную ось, выплескивается в город двумя открытыми площадями. Таким образом создаются необходимые внутригородские связи и обеспечивается важное взаимодействие города с морем. Стоимость проекта составила 22,5 млн евро.
Общественная зона Марсельских доков © Luc Boegly
Общественная зона Марсельских доков © Luc Boegly

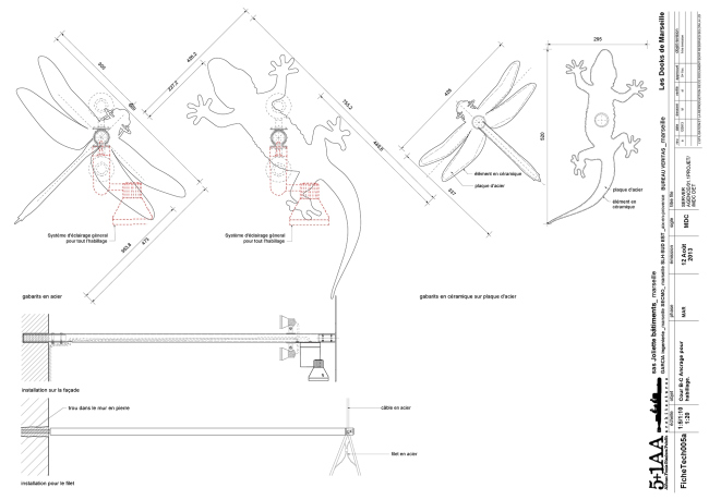
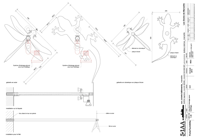
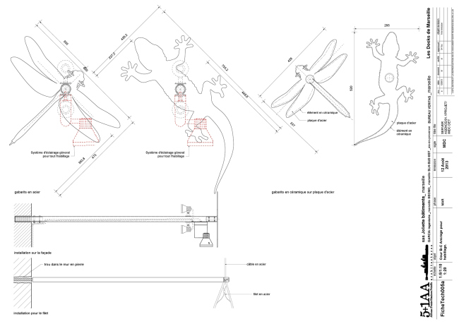
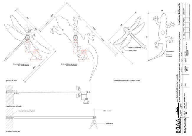
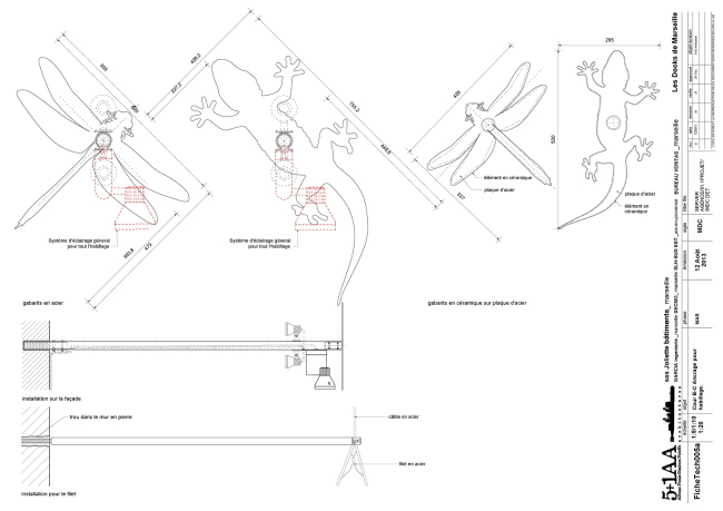
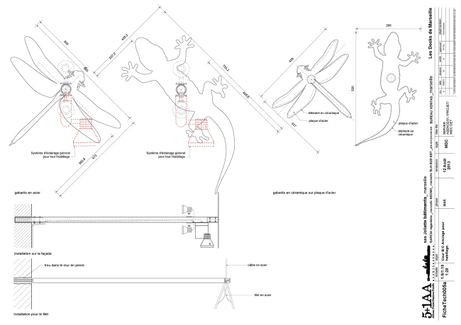
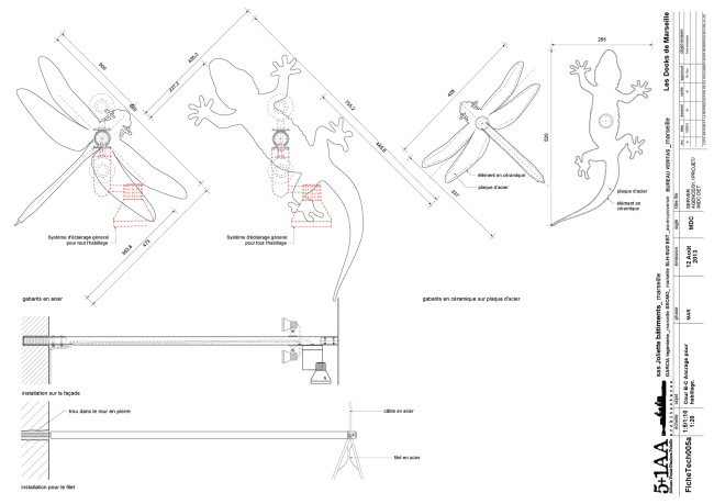
Историческому нарядному фасаду бывшей администрации порта архитекторы противопоставили металлическую сетку-трафарет с противоположного торца комплекса. Светлые, озелененные атриумы, где архитекторы «поселили» фигурки ящериц и стрекоз, становятся в результате звеньями целой «цепи» площадей. Обилие натурального камня, дерева, мозаики и керамики, а так же активное использование цвета призваны подчеркнуть безусловно средиземноморский характер новых пространств.
Общественная зона Марсельских доков © Luc Boegly
Общественная зона Марсельских доков © Luc Boegly
Общественная зона Марсельских доков © Luc Boegly
Общественная зона Марсельских доков © Luc Boegly
Общественная зона Марсельских доков © Luc Boegly
Общественная зона Марсельских доков © Luc Boegly
Общественная зона Марсельских доков © Luc Boegly
Общественная зона Марсельских доков © Luc Boegly
Общественная зона Марсельских доков © Luc Boegly
Общественная зона Марсельских доков © Luc Boegly
Общественная зона Марсельских доков © Luc Boegly
Общественная зона Марсельских доков © Luc Boegly
Общественная зона Марсельских доков © Luc Boegly
Общественная зона Марсельских доков © Luc Boegly
Общественная зона Марсельских доков © Ernesta Caviola
Общественная зона Марсельских доков © Ernesta Caviola
Общественная зона Марсельских доков © Luc Boegly
Общественная зона Марсельских доков © Luc Boegly
Общественная зона Марсельских доков © Luc Boegly
Общественная зона Марсельских доков © Luc Boegly
Общественная зона Марсельских доков © 5+1AA
Общественная зона Марсельских доков © 5+1AA
Общественная зона Марсельских доков © 5+1AA
Общественная зона Марсельских доков © 5+1AA
Общественная зона Марсельских доков © 5+1AA
Общественная зона Марсельских доков © 5+1AA
Общественная зона Марсельских доков © 5+1AA
Общественная зона Марсельских доков © 5+1AA
Общественная зона Марсельских доков © 5+1AA
Общественная зона Марсельских доков © 5+1AA
Общественная зона Марсельских доков © 5+1AA
Общественная зона Марсельских доков © 5+1AA
Общественная зона Марсельских доков © 5+1AA
Общественная зона Марсельских доков © 5+1AA
Общественная зона Марсельских доков © 5+1AA
Общественная зона Марсельских доков © 5+1AA
Общественная зона Марсельских доков © 5+1AA
Общественная зона Марсельских доков © 5+1AA
Общественная зона Марсельских доков © 5+1AA
Общественная зона Марсельских доков © 5+1AA
Общественная зона Марсельских доков © 5+1AA
Общественная зона Марсельских доков © 5+1AA
Общественная зона Марсельских доков © 5+1AA
Общественная зона Марсельских доков © 5+1AA
Общественная зона Марсельских доков © 5+1AA
Общественная зона Марсельских доков © 5+1AA
Общественная зона Марсельских доков © 5+1AA
Общественная зона Марсельских доков © 5+1AA
Общественная зона Марсельских доков © 5+1AA
Общественная зона Марсельских доков © 5+1AA
Общественная зона Марсельских доков © 5+1AA
Общественная зона Марсельских доков © 5+1AA
Общественная зона Марсельских доков © 5+1AA
Общественная зона Марсельских доков © 5+1AA
Общественная зона Марсельских доков © 5+1AA
Общественная зона Марсельских доков © 5+1AA
Общественная зона Марсельских доков © 5+1AA
Общественная зона Марсельских доков © 5+1AA