Размещено на портале Архи.ру (www.archi.ru)

17.01.2017

В местных традициях

Нина Фролова
Объект:
Жилой комплекс Grove at Grand Bay
Адрес:
США, None, Майами.
Мастерская:
BIG
Авторский коллектив:
Partner-in-Charge: Bjarke Ingels, Thomas Christoffersen
Project Leaders: Leon Rost, Ziad Shebab
Team: Tiago Barros, Jitendra Jain, Brian Foster, Ed Yung, Terrence Chew, Ji-Young Joon, Kasper Hansen, Chris Malcolm, Alana Goldweit, Martin Voelkle, Greg Knobloch, Ho Kyung Lee, Mina Rafiee, Cat Huang, Maureen McGee, Chris Falla, Valerie Lechene

Жилой комплекс Grove at Grand Bay в Майами по проекту бюро BIG.

Жилой комплекс The Grove at Grand Bay © Rasmus Hjortshøj
Жилой комплекс The Grove at Grand Bay © Rasmus Hjortshøj

Бюро Бьярке Ингельса BIG спроектировало две башни в центре района Коконат-гроув в Майами. С одной стороны, они относятся к местной типологии жилых зданий, где балконы играют роль солнцезащитных устройств, затеняя панорамное остекление фасадов, с другой – эффектная закрученная спиралью форма сделала жилой комплекс BIG достопримечательностью района, также предоставив каждой квартире максимально эффектные виды из окон – на океан и город.
 
Жилой комплекс The Grove at Grand Bay © Rasmus Hjortshøj
Жилой комплекс The Grove at Grand Bay © Rasmus Hjortshøj

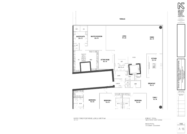
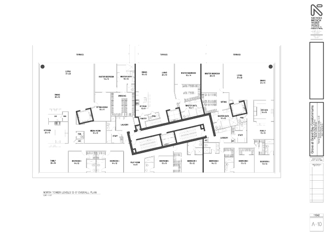
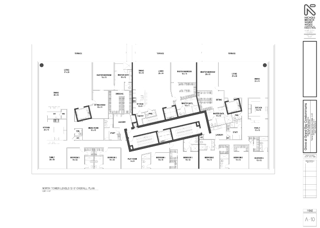
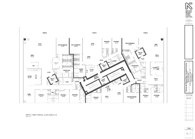
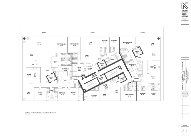
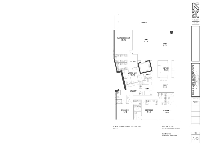
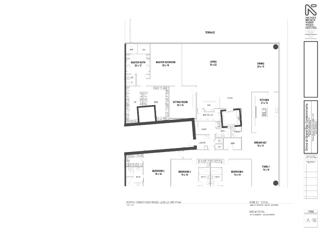
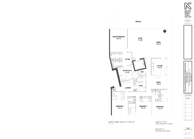
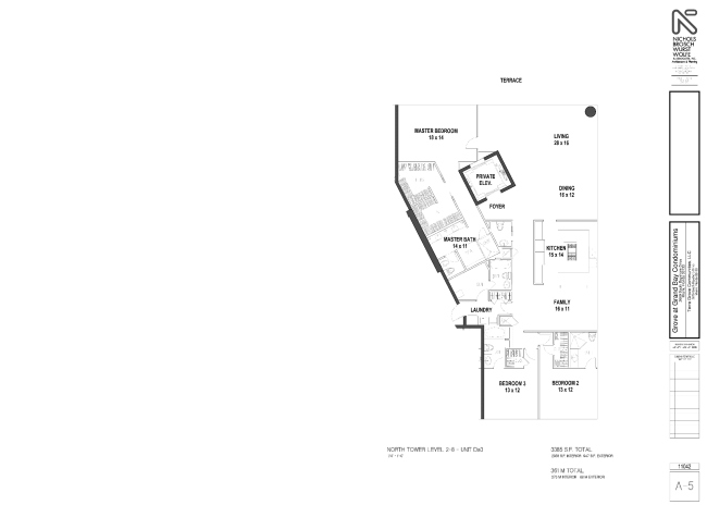
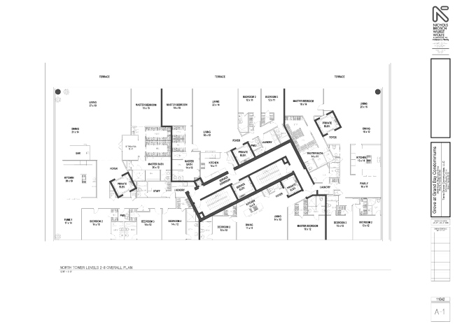
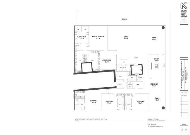
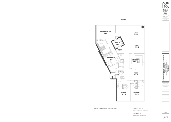
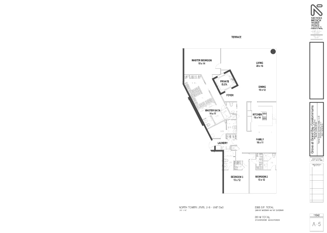
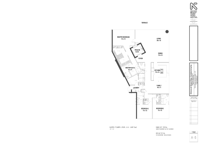
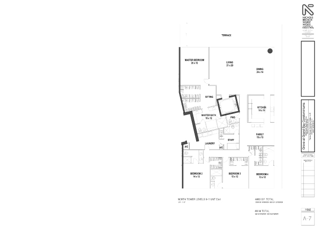
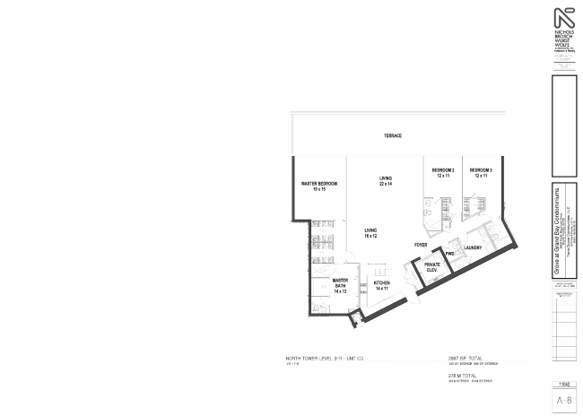
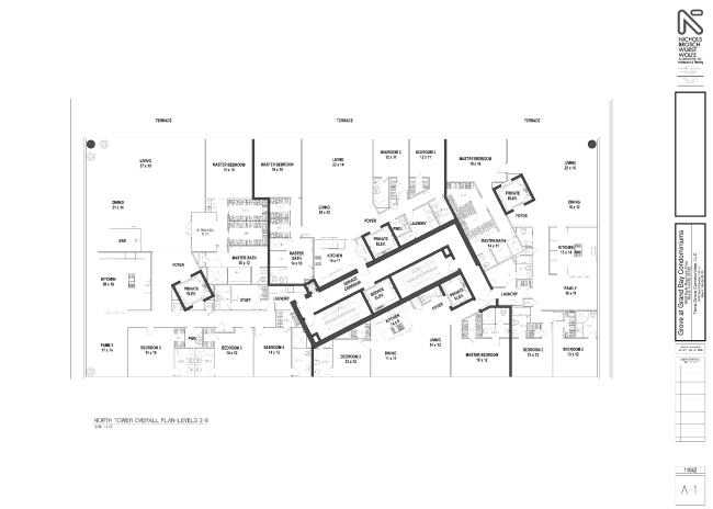
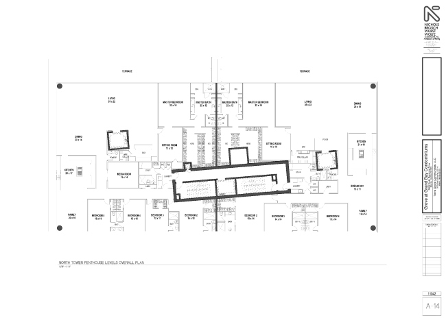
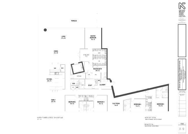
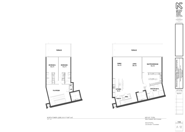
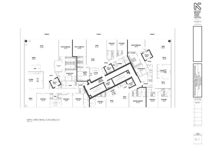
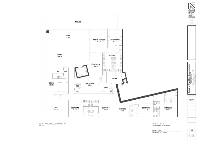
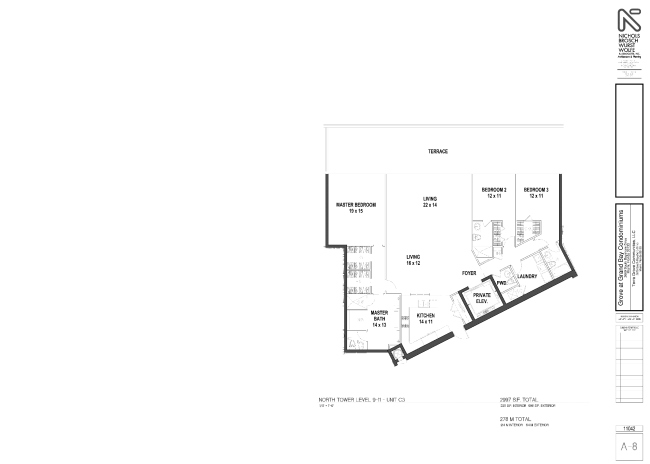
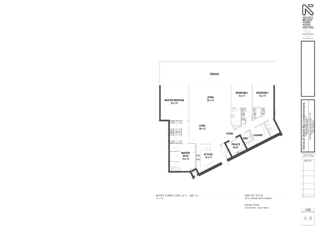
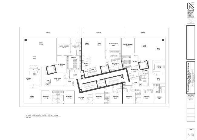
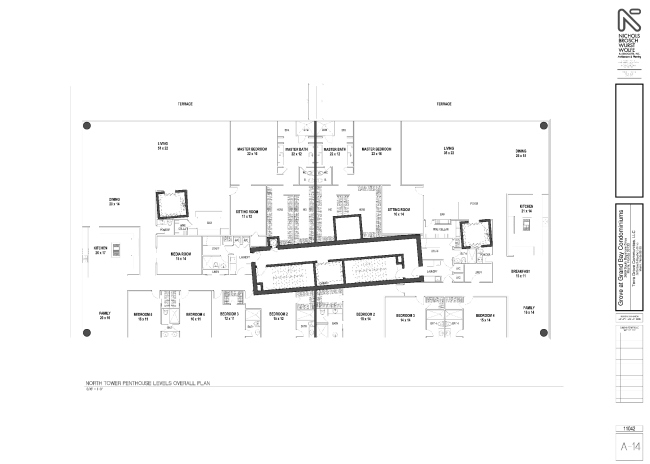
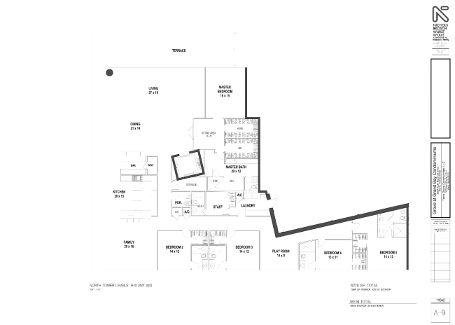
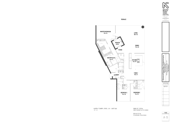
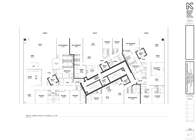
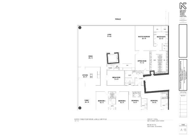
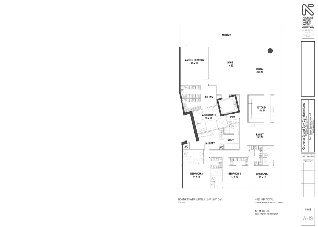
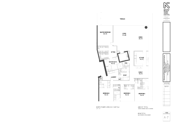
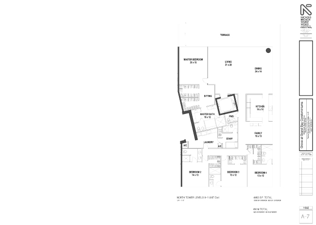
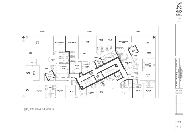
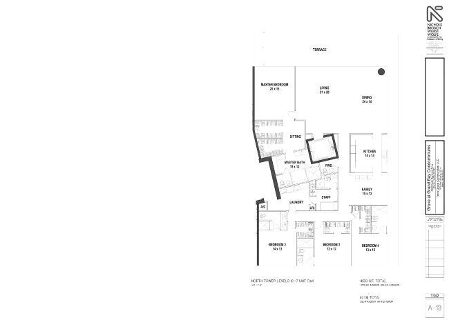
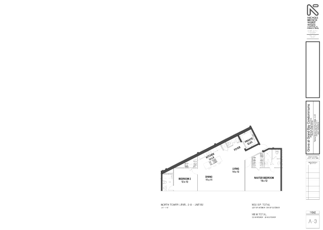
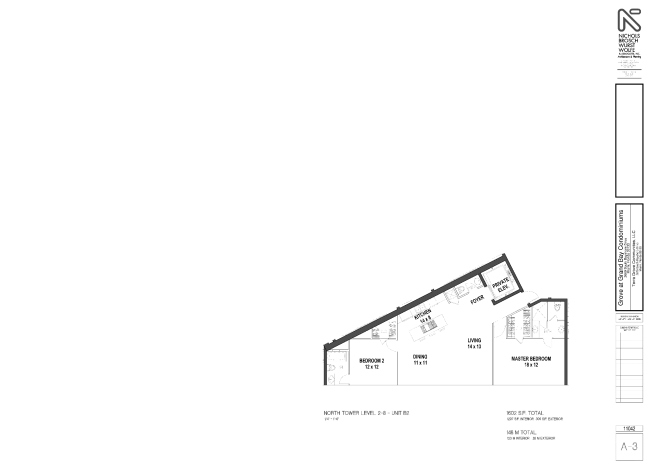
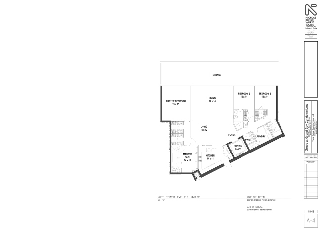
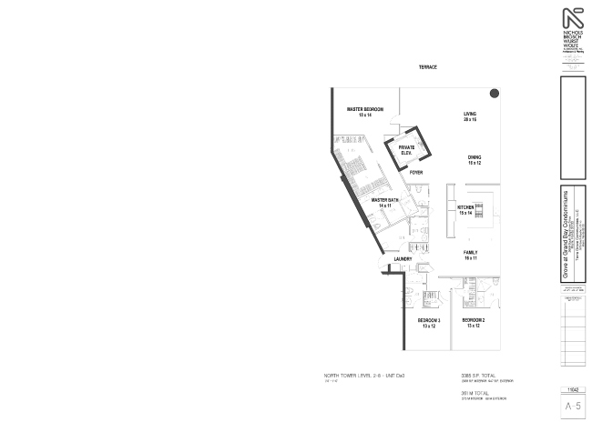
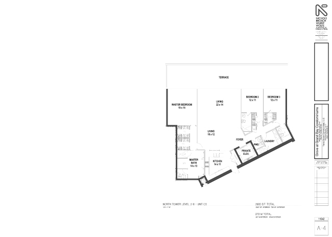
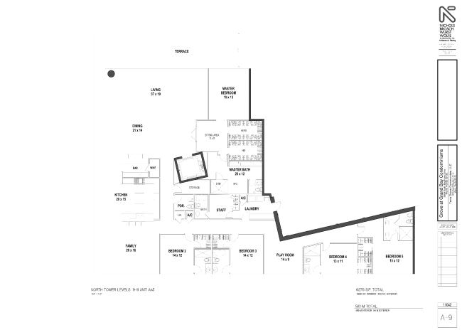
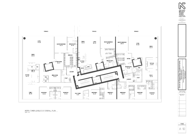
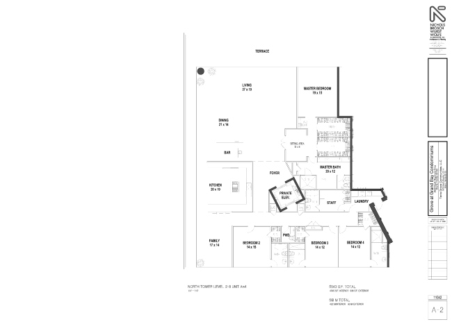
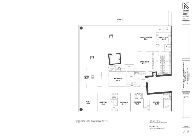
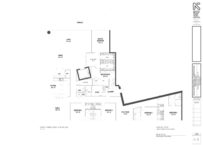
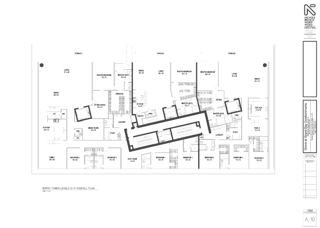
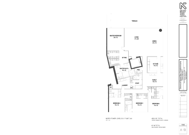
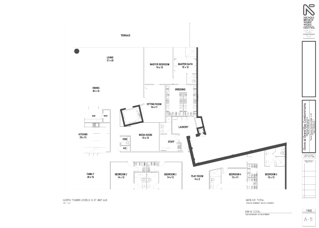
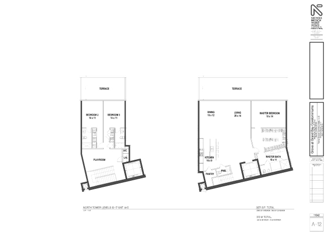
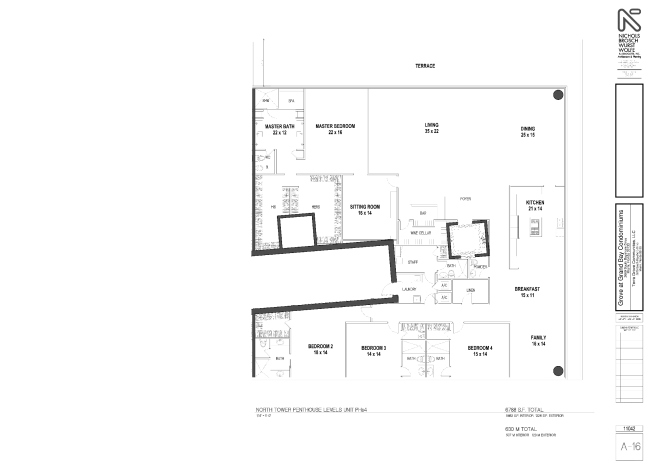
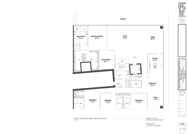
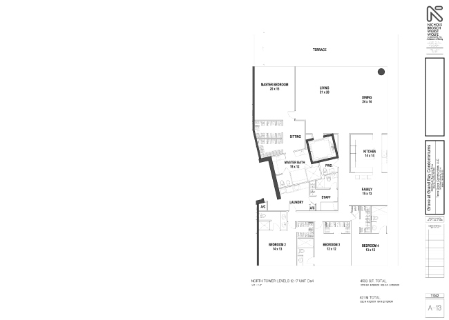
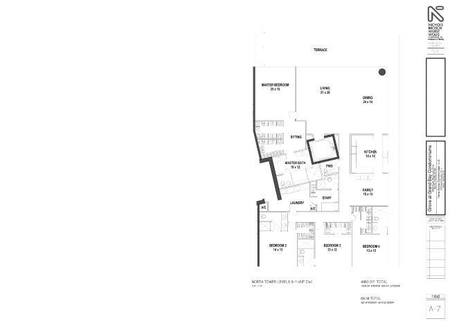
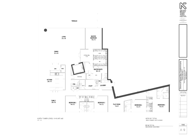
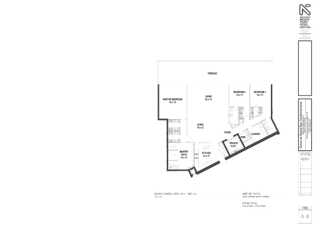
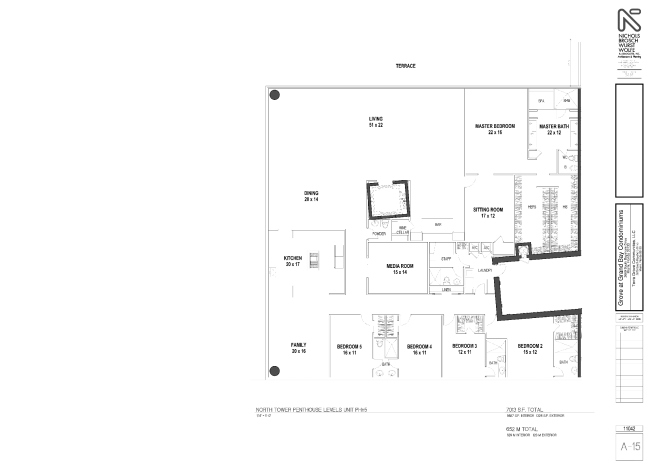
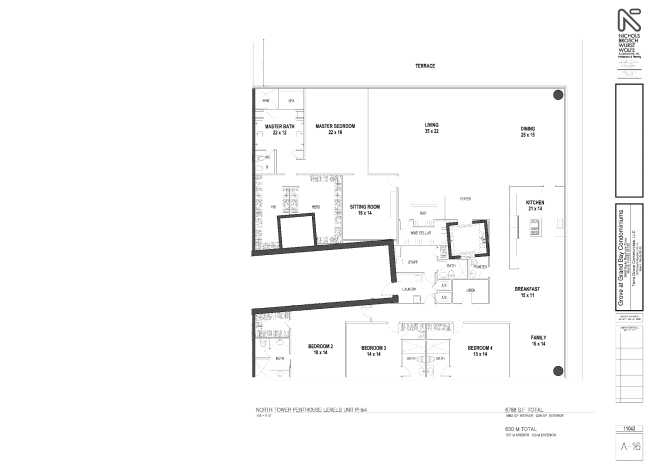
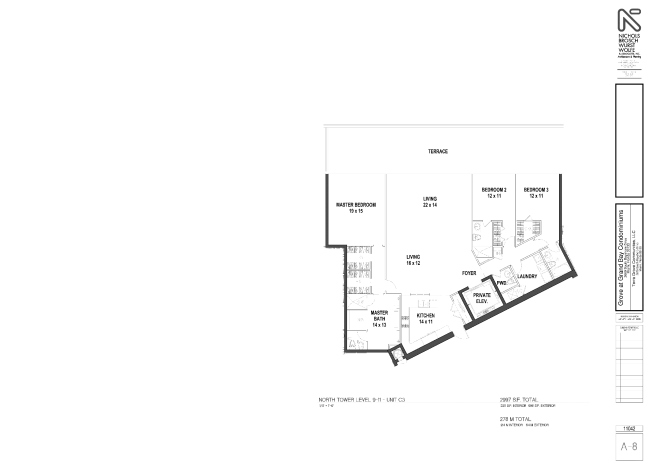
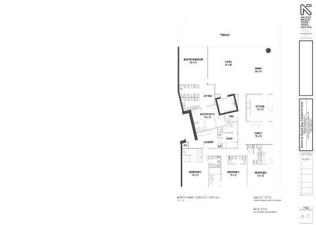
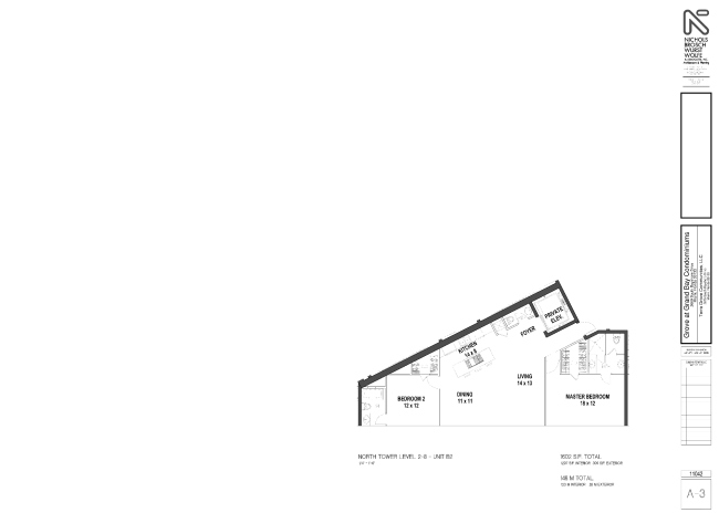
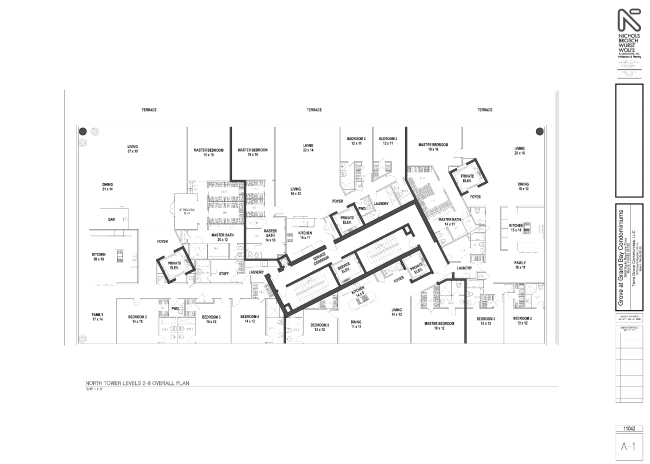
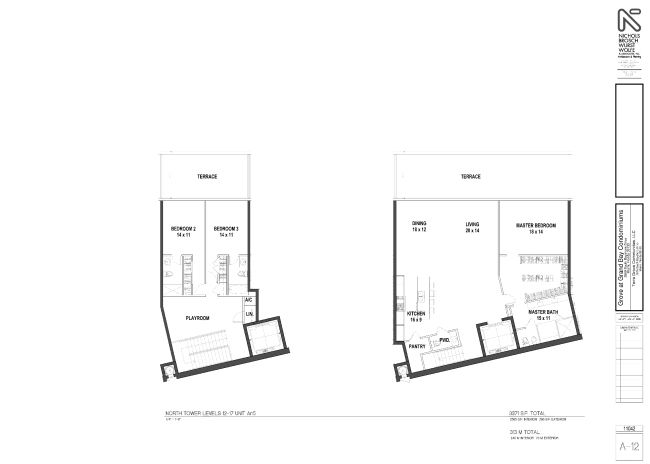
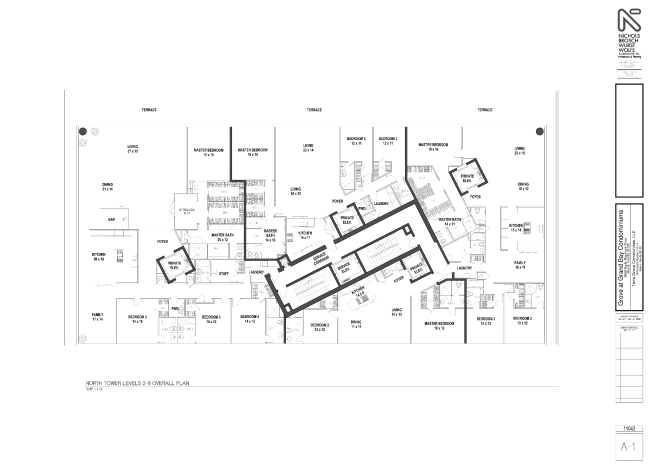
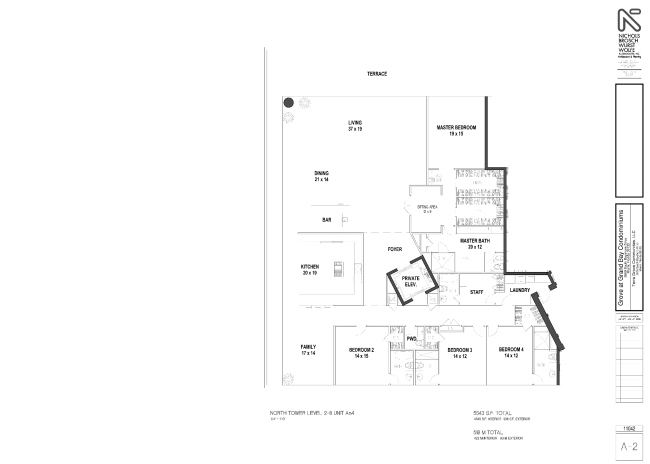
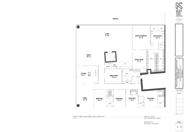
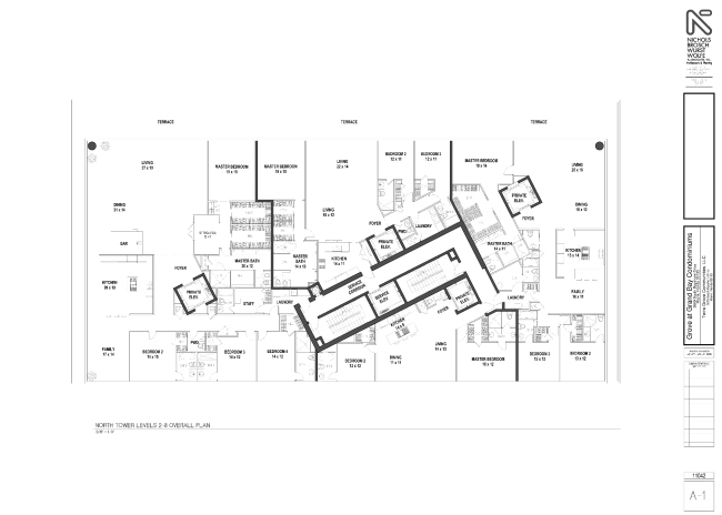
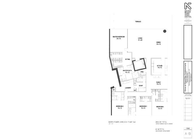
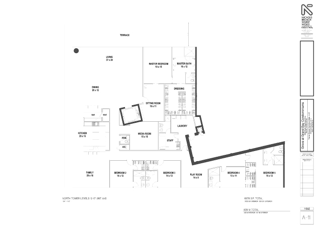
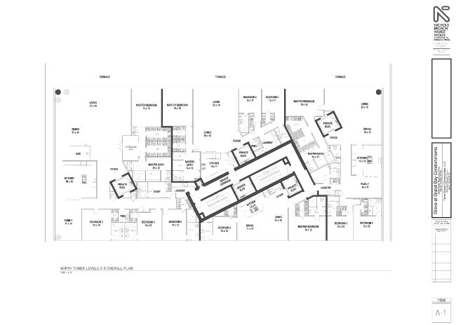
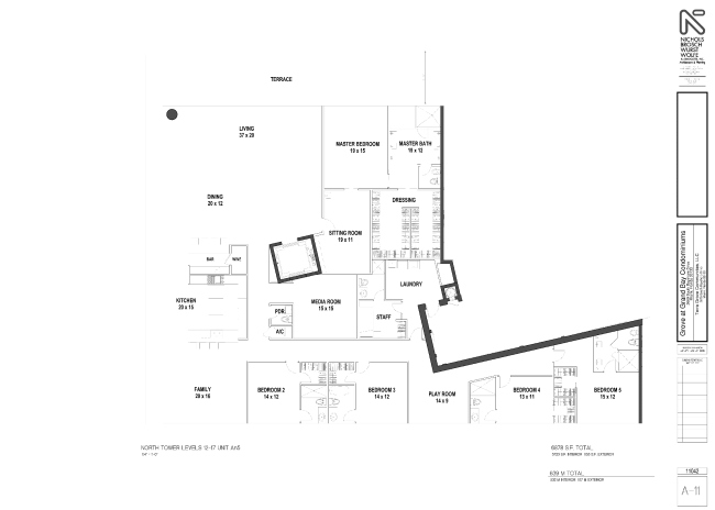
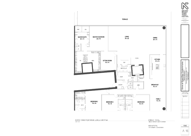
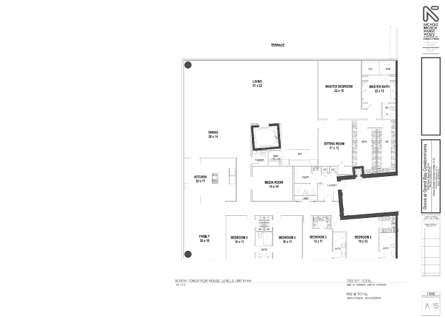
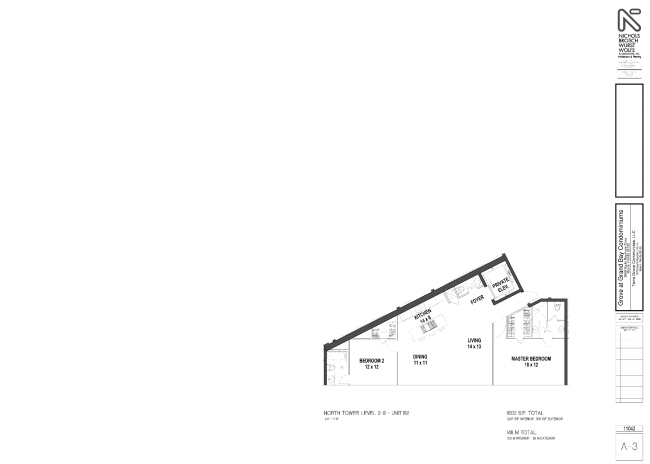
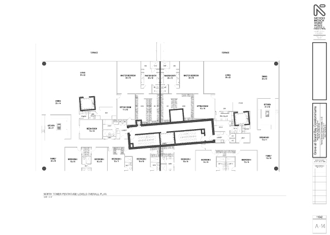
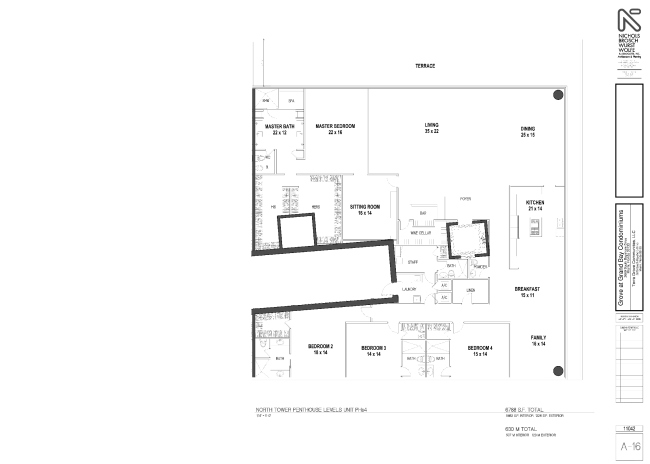
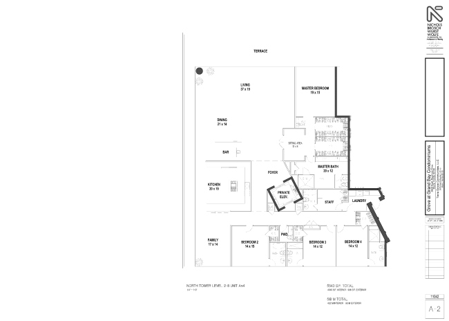
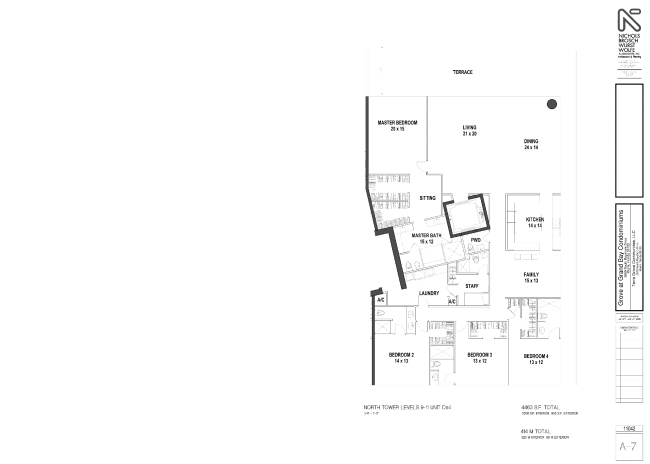
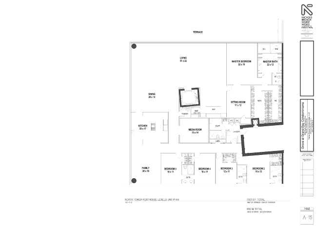
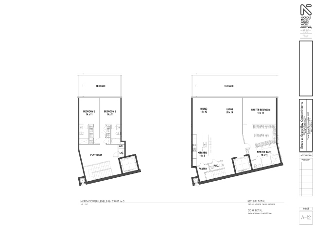
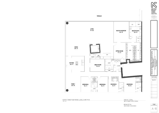
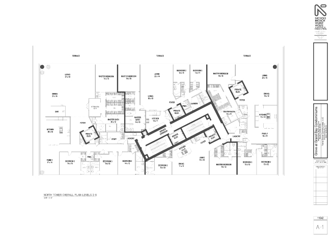
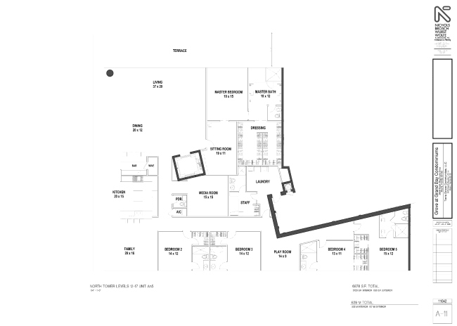
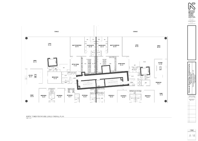
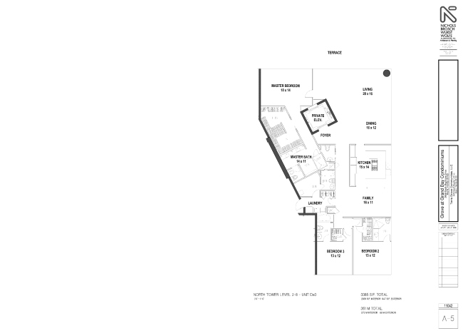
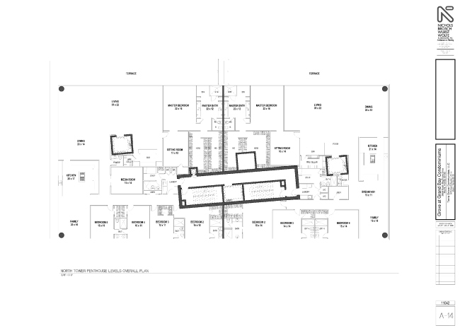
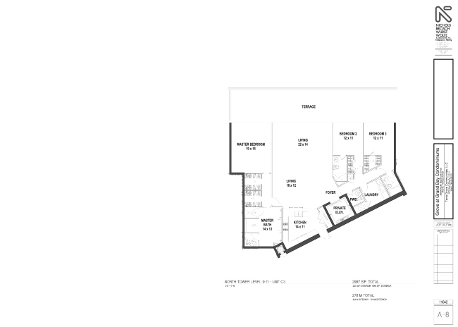
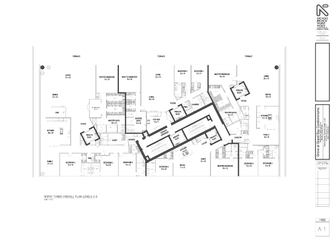
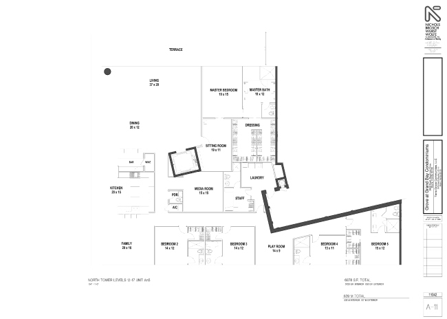
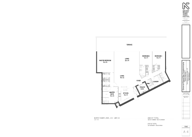
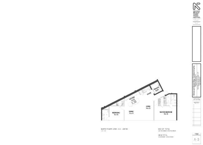
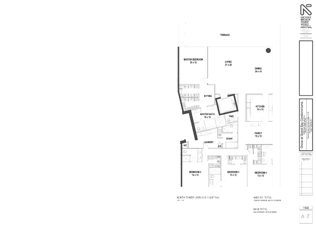
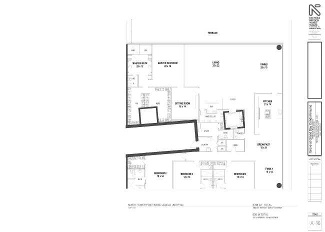
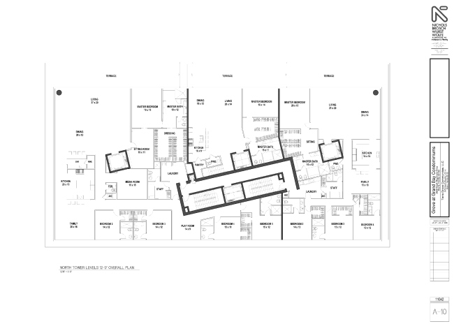
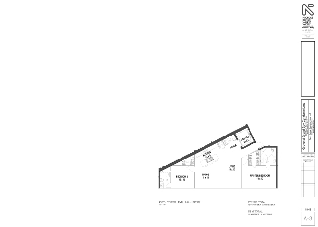
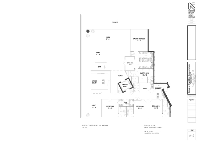
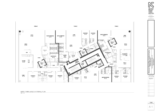
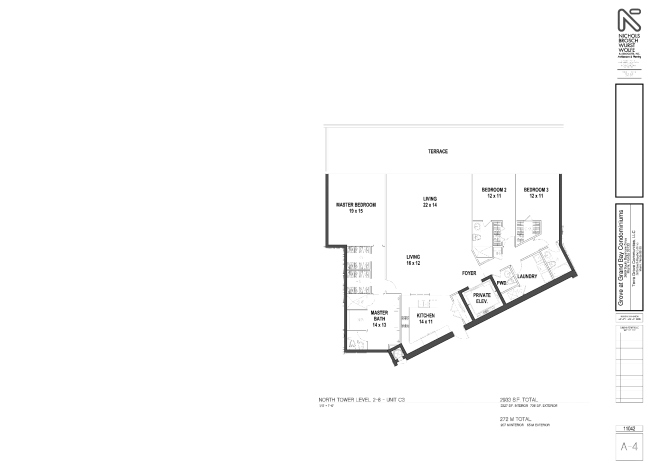
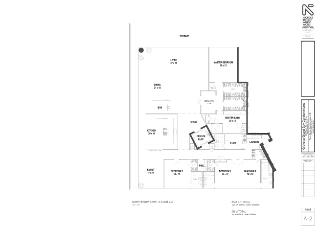
На общей площади в 58 000 м2 расположено 98 квартир 16 типов планировки, площадью от 120 м2 до 929 м2. Среди имеющейся инфраструктуры – спа-центр для жильцов, спа-центр для их домашних питомцев, фитнес-центр, служба консьержа и т.д.
 
Жилой комплекс The Grove at Grand Bay © Rasmus Hjortshøj
Жилой комплекс The Grove at Grand Bay © Rasmus Hjortshøj

Важную роль в проекте играет озеленение, порученное ландшафтному архитектору Раймонду Джанглсу (Raymond Jungles). Коконат-гроув («кокосовая роща») известен своей пышной зеленью, однако в его центре в последнее время наблюдался ее дефицит – который и ликвидировал Grove at Grand Bay. В ходе строительства росшие на участке (1,2 га) деревья были выкопаны, а потом возвращены на место: это было вызвано не только соображениями охраны окружающей среды, но и уважением к истории района.
 
Жилой комплекс The Grove at Grand Bay © Rasmus Hjortshøj
Жилой комплекс The Grove at Grand Bay © Rasmus Hjortshøj

Территория вокруг башен, кровли гаража, спа-центра и других «инфраструктурных» сооружений, портик-крыльцо, соединяющий две башни, теперь обильно озеленены. В общей сложности, там растут 460 деревьев и 15 400 других растений.
Жилой комплекс The Grove at Grand Bay © Rasmus Hjortshøj
Жилой комплекс The Grove at Grand Bay © Rasmus Hjortshøj
Жилой комплекс The Grove at Grand Bay © Rasmus Hjortshøj
Жилой комплекс The Grove at Grand Bay © Rasmus Hjortshøj
Жилой комплекс The Grove at Grand Bay © Rasmus Hjortshøj
Жилой комплекс The Grove at Grand Bay © Rasmus Hjortshøj
Жилой комплекс The Grove at Grand Bay © Rasmus Hjortshøj
Жилой комплекс The Grove at Grand Bay © Rasmus Hjortshøj
Жилой комплекс The Grove at Grand Bay © Rasmus Hjortshøj
Жилой комплекс The Grove at Grand Bay © Rasmus Hjortshøj
Жилой комплекс The Grove at Grand Bay © Rasmus Hjortshøj
Жилой комплекс The Grove at Grand Bay © Rasmus Hjortshøj
Жилой комплекс The Grove at Grand Bay © Rasmus Hjortshøj
Жилой комплекс The Grove at Grand Bay © Rasmus Hjortshøj
Жилой комплекс The Grove at Grand Bay © Rasmus Hjortshøj
Жилой комплекс The Grove at Grand Bay © Rasmus Hjortshøj
Жилой комплекс The Grove at Grand Bay © Rasmus Hjortshøj
Жилой комплекс The Grove at Grand Bay © Rasmus Hjortshøj
Жилой комплекс The Grove at Grand Bay © Rasmus Hjortshøj
Жилой комплекс The Grove at Grand Bay © Rasmus Hjortshøj
Жилой комплекс The Grove at Grand Bay © Rasmus Hjortshøj
Жилой комплекс The Grove at Grand Bay © Rasmus Hjortshøj
Жилой комплекс The Grove at Grand Bay © Rasmus Hjortshøj
Жилой комплекс The Grove at Grand Bay © Rasmus Hjortshøj
Жилой комплекс The Grove at Grand Bay © Rasmus Hjortshøj
Жилой комплекс The Grove at Grand Bay © Rasmus Hjortshøj
Жилой комплекс The Grove at Grand Bay © Rasmus Hjortshøj
Жилой комплекс The Grove at Grand Bay © Rasmus Hjortshøj
Жилой комплекс The Grove at Grand Bay © Rasmus Hjortshøj
Жилой комплекс The Grove at Grand Bay © Rasmus Hjortshøj
Жилой комплекс The Grove at Grand Bay © Rasmus Hjortshøj
Жилой комплекс The Grove at Grand Bay © Rasmus Hjortshøj
Жилой комплекс The Grove at Grand Bay © Rasmus Hjortshøj
Жилой комплекс The Grove at Grand Bay © Rasmus Hjortshøj
Жилой комплекс The Grove at Grand Bay © Rasmus Hjortshøj
Жилой комплекс The Grove at Grand Bay © Rasmus Hjortshøj
Жилой комплекс The Grove at Grand Bay © Rasmus Hjortshøj
Жилой комплекс The Grove at Grand Bay © Rasmus Hjortshøj
Жилой комплекс The Grove at Grand Bay © Rasmus Hjortshøj
Жилой комплекс The Grove at Grand Bay © Rasmus Hjortshøj
Жилой комплекс The Grove at Grand Bay © Rasmus Hjortshøj
Жилой комплекс The Grove at Grand Bay © Rasmus Hjortshøj
Жилой комплекс The Grove at Grand Bay © BIG
Жилой комплекс The Grove at Grand Bay © BIG
Жилой комплекс The Grove at Grand Bay © Rasmus Hjortshøj
Жилой комплекс The Grove at Grand Bay © Rasmus Hjortshøj
Жилой комплекс The Grove at Grand Bay © Rasmus Hjortshøj
Жилой комплекс The Grove at Grand Bay © Rasmus Hjortshøj
Жилой комплекс The Grove at Grand Bay © Rasmus Hjortshøj
Жилой комплекс The Grove at Grand Bay © Rasmus Hjortshøj
Жилой комплекс The Grove at Grand Bay © Rasmus Hjortshøj
Жилой комплекс The Grove at Grand Bay © Rasmus Hjortshøj
Жилой комплекс The Grove at Grand Bay © Rasmus Hjortshøj
Жилой комплекс The Grove at Grand Bay © Rasmus Hjortshøj
Жилой комплекс The Grove at Grand Bay © Rasmus Hjortshøj
Жилой комплекс The Grove at Grand Bay © Rasmus Hjortshøj
Жилой комплекс The Grove at Grand Bay © Rasmus Hjortshøj
Жилой комплекс The Grove at Grand Bay © Rasmus Hjortshøj
Жилой комплекс The Grove at Grand Bay © Rasmus Hjortshøj
Жилой комплекс The Grove at Grand Bay © Rasmus Hjortshøj
Жилой комплекс The Grove at Grand Bay © Rasmus Hjortshøj
Жилой комплекс The Grove at Grand Bay © Rasmus Hjortshøj
Жилой комплекс The Grove at Grand Bay © Rasmus Hjortshøj
Жилой комплекс The Grove at Grand Bay © Rasmus Hjortshøj
Жилой комплекс The Grove at Grand Bay © Rasmus Hjortshøj
Жилой комплекс The Grove at Grand Bay © Rasmus Hjortshøj
Жилой комплекс The Grove at Grand Bay © Rasmus Hjortshøj
Жилой комплекс The Grove at Grand Bay © Rasmus Hjortshøj
Жилой комплекс The Grove at Grand Bay © Rasmus Hjortshøj
Жилой комплекс The Grove at Grand Bay © Rasmus Hjortshøj
Жилой комплекс The Grove at Grand Bay © Rasmus Hjortshøj
Жилой комплекс The Grove at Grand Bay © Rasmus Hjortshøj
Жилой комплекс The Grove at Grand Bay © Rasmus Hjortshøj
Жилой комплекс The Grove at Grand Bay © Rasmus Hjortshøj
Жилой комплекс Grove at Grand Bay © BIG
Жилой комплекс Grove at Grand Bay © BIG
Жилой комплекс Grove at Grand Bay © BIG
Жилой комплекс Grove at Grand Bay © BIG
Жилой комплекс Grove at Grand Bay © BIG
Жилой комплекс Grove at Grand Bay © BIG
Жилой комплекс Grove at Grand Bay © BIG
Жилой комплекс Grove at Grand Bay © BIG
Жилой комплекс Grove at Grand Bay © BIG
Жилой комплекс Grove at Grand Bay © BIG
Жилой комплекс Grove at Grand Bay © BIG
Жилой комплекс Grove at Grand Bay © BIG
Жилой комплекс Grove at Grand Bay © BIG
Жилой комплекс Grove at Grand Bay © BIG
Жилой комплекс Grove at Grand Bay © BIG
Жилой комплекс Grove at Grand Bay © BIG
Жилой комплекс Grove at Grand Bay © BIG
Жилой комплекс Grove at Grand Bay © BIG
Жилой комплекс Grove at Grand Bay © BIG
Жилой комплекс Grove at Grand Bay © BIG
Жилой комплекс Grove at Grand Bay © BIG
Жилой комплекс Grove at Grand Bay © BIG
Жилой комплекс Grove at Grand Bay © BIG
Жилой комплекс Grove at Grand Bay © BIG
Жилой комплекс Grove at Grand Bay © BIG
Жилой комплекс Grove at Grand Bay © BIG
Жилой комплекс Grove at Grand Bay © BIG
Жилой комплекс Grove at Grand Bay © BIG
Жилой комплекс Grove at Grand Bay © BIG
Жилой комплекс Grove at Grand Bay © BIG
Жилой комплекс Grove at Grand Bay © BIG
Жилой комплекс Grove at Grand Bay © BIG
Жилой комплекс Grove at Grand Bay © BIG
Жилой комплекс Grove at Grand Bay © BIG
Жилой комплекс Grove at Grand Bay © BIG
Жилой комплекс Grove at Grand Bay © BIG
Жилой комплекс Grove at Grand Bay © BIG
Жилой комплекс Grove at Grand Bay © BIG
Жилой комплекс Grove at Grand Bay © BIG
Жилой комплекс Grove at Grand Bay © BIG
Жилой комплекс Grove at Grand Bay © BIG
Жилой комплекс Grove at Grand Bay © BIG
Жилой комплекс Grove at Grand Bay © BIG
Жилой комплекс Grove at Grand Bay © BIG
Жилой комплекс Grove at Grand Bay © BIG
Жилой комплекс Grove at Grand Bay © BIG
Жилой комплекс Grove at Grand Bay © BIG
Жилой комплекс Grove at Grand Bay © BIG
Жилой комплекс Grove at Grand Bay © BIG
Жилой комплекс Grove at Grand Bay © BIG
Жилой комплекс Grove at Grand Bay © BIG
Жилой комплекс Grove at Grand Bay © BIG
Жилой комплекс Grove at Grand Bay © BIG
Жилой комплекс Grove at Grand Bay © BIG
Жилой комплекс Grove at Grand Bay © BIG
Жилой комплекс Grove at Grand Bay © BIG
Жилой комплекс Grove at Grand Bay © BIG
Жилой комплекс Grove at Grand Bay © BIG
Жилой комплекс Grove at Grand Bay © BIG
Жилой комплекс Grove at Grand Bay © BIG
Жилой комплекс Grove at Grand Bay © BIG
Жилой комплекс Grove at Grand Bay © BIG
Жилой комплекс Grove at Grand Bay © BIG
Жилой комплекс Grove at Grand Bay © BIG
Жилой комплекс Grove at Grand Bay © BIG
Жилой комплекс Grove at Grand Bay © BIG