Размещено на портале Архи.ру (www.archi.ru)

29.12.2016

Российский архитектор одержала победу в международном конкурсе d3 Natural Systems

Российский архитектор Анна Будникова заняла первое место в международном конкурсе d3 Natural Systems 2016 («Природные системы 2016»). Состязание ежегодно устраивает общественная организация d3, базирующаяся в Нью-Йорке. Первый конкурс состоялся в 2009 году.

Проект Анны Будниковой «Гидрологический кластер»
Проект Анны Будниковой «Гидрологический кластер»
Проект Анны Будниковой «Гидрологический кластер»
Проект Анны Будниковой «Гидрологический кластер»

Концепция гидрологического кластера, разработанная Анной Будниковой, посвящёна решению одних из наиболее важных проблем современности – истощению водных ресурсов и колебанию уровня Мирового океана. Научно-образовательный комплекс предлагается установить на территории Казанского речного порта для мониторинга бассейна реки Волги. Отметим, что организаторы конкурса предоставили участникам свободу в выборе типологии проектов, масштаба и местоположения, однако конкурсанты должны были тщательно проанализировать и описать выбранный ими контекст.
Гидрологический кластер. Проект Анны Будниковой
Гидрологический кластер. Проект Анны Будниковой
Градостроительный анализ. Речной порт; схемы. Проект Анны Будниковой «Гидрологический кластер»
Градостроительный анализ. Речной порт; схемы. Проект Анны Будниковой «Гидрологический кластер»

Типология элементов кластера включает три блока: элементы ландшафта и благоустройства, элементы фасада и элементы интерьера. В своей разработке автор обратилась к методу биомимикрии: каждый из вышеперечисленных блоков подражает биологическим или геологическим объектам в способности рационально использовать природные ресурсы и адаптироваться под постоянно меняющуюся среду.
Типология элементов кластера. Проект Анны Будниковой
Типология элементов кластера. Проект Анны Будниковой
Формирование биомимикрии. Топологический подход в архитектуре. Проект Анны Будниковой «Гидрологический кластер»
Формирование биомимикрии. Топологический подход в архитектуре. Проект Анны Будниковой «Гидрологический кластер»

Элементы ландшафта уподобляются природным системам и позволяют регулировать уровень воды во время засухи или наводнений. Фасад и интерьер центра состоят из «умных» панелей и конструкций, которые работают на создание экологичной среды. Двойной фасад рассеивает прямые солнечные лучи и обеспечивает естественную вентиляцию. Перфорированные панели собирают осадки и влагу из прибрежного воздуха, затем фильтруют её, очищают и спускают в водный коллектор, расположенный в цоколе. Вся специфика функционирования элементов кластера показана на примере Центра гидрологии Волги.

Об авторе

Анна Будникова в 2016 году с отличием окончила Казанский государственный архитектурно-строительный университет по специальности «Архитектура». Второе высшее образование – переводчик в сфере профессиональной коммуникации. С 2016 года занимает должность архитектора в московском КБ Стройпроект. Также работала в российских бюро IND Architects (Москва), Ателье Eichner Architekten (Москва), ПТМ САРТ арх.Новикова Н.М. (Казань) и в пекинской студии DnA_Design and architecture.

Анна Будникова. Фотография предоставлена Анной Будниковой
Анна Будникова. Фотография предоставлена Анной Будниковой

В сентябре этого года посетила CRAB studio Питера Кука и Ecologic studio Марко Полетто в Лондоне в рамках исследовательской работы, которая впоследствии была подана на стипендию Ричарда Роджерса. Дважды стажировалась в Германии: в Дюссельдорфе и Гамбурге по строительным технологиям компании КНАУФ как победитель Всероссийского конкурса «Архитектурный образ России»; и в Берлине при университете BTK University of Art & Design в рамках Международной летней школы по устойчивой архитектуре.

Лауреат международных, всероссийских и региональных архитектурных конкурсов. За вышеописанный проект «Гидрологический кластер» помимо победы в конкурсе D3 Natural systems получила Диплом СА на фестивале «Зодчество 2016», Диплом 1 степени МООСАО и Диплом СА на новосибирском XXV Международном смотре-конкурсе выпускных квалификационных работ по архитектуре и дизайну.

Финалист международного конкурса KRob Architectural Delineation Competition (США, Даллас), обладатель специального упоминания международного онлайн-жюри на конкурсе конкурс архитектурного рисунка «АрхиГрафика 2014-2015», финалист «АрхиГрафики 2013».

Первое место в конкурсе «Архитектурный образ России 2015» (Проект «Клинико-инновационный центр МКДЦ»), 3 место и Диплом финалиста в том же конкурсе в 2014 году (Проекты «Облака над городом», «ЖК Арт-кластер», «Лебедь озера Лебяжье»). Первое место в национальном финале международного конкурса «Проектирование Мультикомфортного дома ISOVER 2014» («Энергоэффективная школа будущего Primavera»). За получение гран-при Всероссийской олимпиады архитектурно-художественного творчества им.Татлина была удостоена премии «Талантливая молодежь Татарстана» и гранта Президента РФ (2012).

Участница выставок архитектурной графики в Далласе (KRob, 2016), Брюсселе (III Российско-европейский культурный фестиваль «Рандеву с Россией», 2013), России («Зодчество 2016», «АРХ-Москва 2016», Международные смотр-конкурсы архитектурной графики и рисунка и Международные биеннале, Казань, Санкт-Петербург, Ростов-на-Дону, Новосибирск, Пенза, 2012-2016). Участница фестивалей «Зодчество 2016» (проект «Гидрологический кластер», руководитель Марина Забрускова) и «АРХ-Москва 2016» (проект «Интеллектуальное облако», руководитель Наринэ Тютчева).

Участница всероссийских и международных воркшопов: Build the city (Лондон, Peter Murray), Inserts (Казань, рук. Josep Acebillo), Sustainable Architecture (Берлин, рук. Dr. Michael LaFond), «Пространство образования будущего» (Махачкала, организатор МАРШ Лаб, руководитель Наринэ Тютчева) и других.

Портфолио Анны Будниковой>>>
Страница в фейсбуке>>>
Продольный разрез. Центр гидрологии Волги. Проект Анны Будниковой «Гидрологический кластер»
Продольный разрез. Центр гидрологии Волги. Проект Анны Будниковой «Гидрологический кластер»
Поперечный разрез Центра гидрологии Волги. Проект Анны Будниковой «Гидрологический кластер»
Поперечный разрез Центра гидрологии Волги. Проект Анны Будниковой «Гидрологический кластер»
Фасад восточный главный. Центр гидрологии Волги. Проект Анны Будниковой «Гидрологический кластер»
Фасад восточный главный. Центр гидрологии Волги. Проект Анны Будниковой «Гидрологический кластер»
Фасад южный. Центр гидрологии Волги. Проект Анны Будниковой «Гидрологический кластер»
Фасад южный. Центр гидрологии Волги. Проект Анны Будниковой «Гидрологический кластер»
Планы этажей. Центр гидрологии Волги. Проект Анны Будниковой «Гидрологический кластер»
Планы этажей. Центр гидрологии Волги. Проект Анны Будниковой «Гидрологический кластер»
Программа Центра гидрологии Волги. 1-3 этажи. Проект Анны Будниковой «Гидрологический кластер»
Программа Центра гидрологии Волги. 1-3 этажи. Проект Анны Будниковой «Гидрологический кластер»
Программа Центра гидрологии Волги. 4-6 этажи. Проект Анны Будниковой «Гидрологический кластер»
Программа Центра гидрологии Волги. 4-6 этажи. Проект Анны Будниковой «Гидрологический кластер»
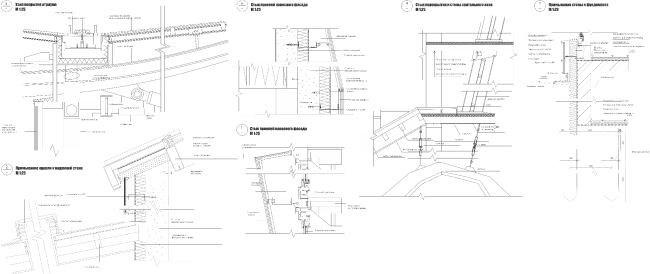
Конструктивные узлы. Проект Анны Будниковой «Гидрологический кластер»
Конструктивные узлы. Проект Анны Будниковой «Гидрологический кластер»
Программа кластера. Схема размещения объектов. Проект Анны Будниковой «Гидрологический кластер»
Программа кластера. Схема размещения объектов. Проект Анны Будниковой «Гидрологический кластер»
Программа кластера. Транспортно-пешеходные связи. Проект Анны Будниковой «Гидрологический кластер»
Программа кластера. Транспортно-пешеходные связи. Проект Анны Будниковой «Гидрологический кластер»
Генеральный план. Проект Анны Будниковой «Гидрологический кластер»
Генеральный план. Проект Анны Будниковой «Гидрологический кластер»
Образ Волги в композиции кластера. Карта геологических объектов. Проект Анны Будниковой «Гидрологический кластер»
Образ Волги в композиции кластера. Карта геологических объектов. Проект Анны Будниковой «Гидрологический кластер»
Дизайн-принципы формообразования кластера. Проект Анны Будниковой «Гидрологический кластер»
Дизайн-принципы формообразования кластера. Проект Анны Будниковой «Гидрологический кластер»
Аллегории природных объектов в интерьере центра гидрологии Волги. Проект Анны Будниковой «Гидрологический кластер»
Аллегории природных объектов в интерьере центра гидрологии Волги. Проект Анны Будниковой «Гидрологический кластер»
Эскиз. Проект Анны Будниковой «Гидрологический кластер»
Эскиз. Проект Анны Будниковой «Гидрологический кластер»