Размещено на портале Архи.ру (www.archi.ru)

10.03.2017

Солнечный ветер

Лилия Аронова
Объект:
Частный жилой дом «Julia House»
Адрес:
Россия, Москва. Поселок Антоновка
Архитектор:
Роман Леонидов
Мастерская:
АБ Романа Леонидова
Авторский коллектив:
Архитекторы: Роман Леонидов, Зоя Самородова
Интерьер: Елена Орман

В этом проекте Романа Леонидова архитектурную пластику определяет интригующее взаимодействие дуг и прямых линий, а главным героем внутреннего дизайна становится солнечный свет, подчеркнутый тонкими оттенками интерьерных «специй».

Частный жилой дом «Julia House». Архитектурная мастерская Романа Леонидова. Реализация, 2014. Фотография © Алексей Князев
Частный жилой дом «Julia House». Архитектурная мастерская Романа Леонидова. Реализация, 2014. Фотография © Алексей Князев

Частный дом, построенный Романом Леонидовым в подмосковной Антоновке в 2014 году, с самого начала предназначался для двух семей, связанных родственными узами: основное крыло для одной и флигель для второй.

Крылья объединены линией одноэтажных гаражей, вдоль которой с внутренней стороны дома проходит крытая галерея, и расположены под углом 120 градусов друг относительно друга. Благодаря этому объем здания оказывается распахнут в сторону прилегающего к участку леса, образуя просторную зелёную лужайку.

Подобные планировки, впрочем, характерны для проектов бюро Романа Леонидова, даже если это не продиктовано соображениями функциональности: таким образом архитектор, отгораживая пространство частной жизни от улицы и соседей, обеспечивает будущим жильцам максимум приватности. На тот же эффект работает посадка дома на участке. «Это на самом деле очень простой композиционный прием, – объясняет Леонидов. – Очень частая ошибка – когда на небольшом участке дом «сажают» в центре, потому что тогда теряются и внутренний двор, и подъезд. Нужно становиться вдоль границы: это позволяет выиграть максимум пространства». Вот и в данном случае архитектору удалось достичь оптимального сочетания ощущения простора и камерности: для жителей дома создан собственный микромир.
Частный жилой дом «Julia House». Архитектурная мастерская Романа Леонидова. Реализация, 2014. Фотография © Алексей Князев
Частный жилой дом «Julia House». Архитектурная мастерская Романа Леонидова. Реализация, 2014. Фотография © Алексей Князев
Частный жилой дом «Julia House». Архитектурная мастерская Романа Леонидова. Реализация, 2014. Фотография © Алексей Князев
Частный жилой дом «Julia House». Архитектурная мастерская Романа Леонидова. Реализация, 2014. Фотография © Алексей Князев

Каждое крыло особняка имеет два этажа и цоколь; в основном здании устроен небольшой бассейн – обрамляющая его стена со сплошным витражным остеклением выразительной дугой выдаётся вперед, а на уровне кровли, над террасой, её рисунок повторяет изящная полукруглая полоса светлого дерева. Сочетание дугообразных и прямых линий – основной приём, определивший сложную стереометрию здания, которое словно составлено из кубиков разного цвета и размера, стоящих под произвольными углами друг к другу и окружённых деревянными каркасами террасных ограждений и пергол.

Сам архитектор сравнивает его с самым первым своим проектом загородного дома, построенного лет за десять до особняка в Антоновке. «Мне хотелось поиграть с очень простыми ортогональными формами, добавив к ним немного пластики дуг, смягчающих общую жёсткость конструкции, – рассказывает он. – Правда, в том проекте они были функционально более оправданы, хоть и второстепенны с точки зрения композиции». Здесь же ситуация обратная: изогнутые элементы конструкции выполняют в основном декоративную роль, но при этом на них сделан достаточно явный акцент. Собственно, именно они – перголы из лиственницы на крыше, крытая жестью кровля, волнообразный элемент перед входом в главное крыло – сформировали внешний облик здания, резко выделяющий его на фоне других домов в посёлке. Даже забор сооружен по специальному проекту: построенный из той же древесины лиственницы, что и многие элементы здания, он избегает ощущения монотонности благодаря сплошной ленте окошек в верхней своей части.
Частный жилой дом «Julia House». Архитектурная мастерская Романа Леонидова. Реализация, 2014. Фотография © Алексей Князев
Частный жилой дом «Julia House». Архитектурная мастерская Романа Леонидова. Реализация, 2014. Фотография © Алексей Князев
Частный жилой дом «Julia House». Архитектурная мастерская Романа Леонидова. Реализация, 2014. Фотография © Алексей Князев
Частный жилой дом «Julia House». Архитектурная мастерская Романа Леонидова. Реализация, 2014. Фотография © Алексей Князев

Если говорить об ассоциациях, то дом в Антоновке более всего напоминает космическую станцию из какого-нибудь фантастического фильма. На это ощущение работают и соединённые под произвольным углом объемы, и ребра-шпангоуты террасных перил, и дуги «солнечных батарей», – а главное, общее ощущение лёгкости и пронизанности светом.

Кстати, Роман Леонидов считает, что дом – это всегда портрет хозяина, «написанный» доступными архитектору средствами. В данном случае в роли заказчицы выступила хозяйка дома, так что в определенном смысле именно с неё Леонидов «срисовал» и общую строгость архитектуры, смягченную почти скульптурной женственностью дуги, и благородную сдержанность цветовой гаммы, составленной из фасадной штукатурки оттенка белого песка, тёплого оттенка кирпича и светлой лиственницы. Не зря же рабочее название дом получил по имени заказчицы – Julia House.
Частный жилой дом «Julia House». Архитектурная мастерская Романа Леонидова. Реализация, 2014. Фотография © Алексей Князев
Частный жилой дом «Julia House». Архитектурная мастерская Романа Леонидова. Реализация, 2014. Фотография © Алексей Князев
Частный жилой дом «Julia House». Архитектурная мастерская Романа Леонидова. Реализация, 2014. Фотография © Алексей Князев
Частный жилой дом «Julia House». Архитектурная мастерская Романа Леонидова. Реализация, 2014. Фотография © Алексей Князев
Частный жилой дом «Julia House». Архитектурная мастерская Романа Леонидова. Реализация, 2014. Фотография © Алексей Князев
Частный жилой дом «Julia House». Архитектурная мастерская Романа Леонидова. Реализация, 2014. Фотография © Алексей Князев

Внутренние планировки просты, логичны – внизу общественные помещения: гостиная, столовая, кухня, наверху спальни – и максимально комфортны, как всегда у Леонидова. Обе части дома двухэтажные, но в основном здании есть ещё и перепад уровней, что обусловлено необходимостью технического обеспечения бассейна.
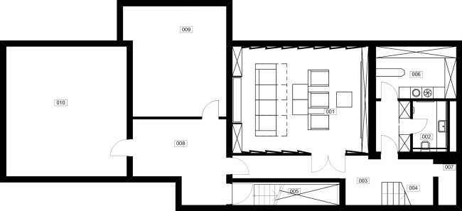
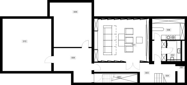
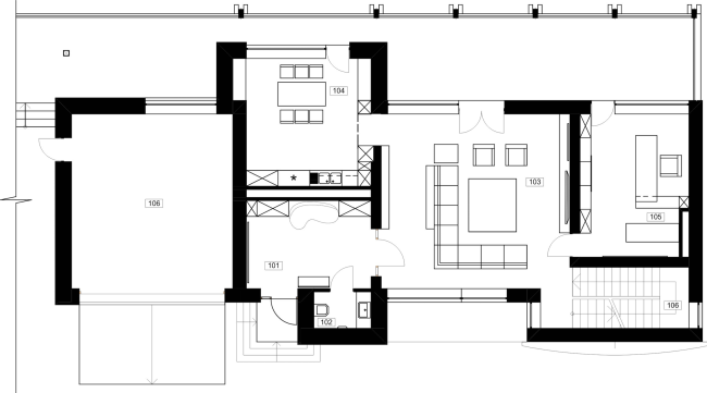
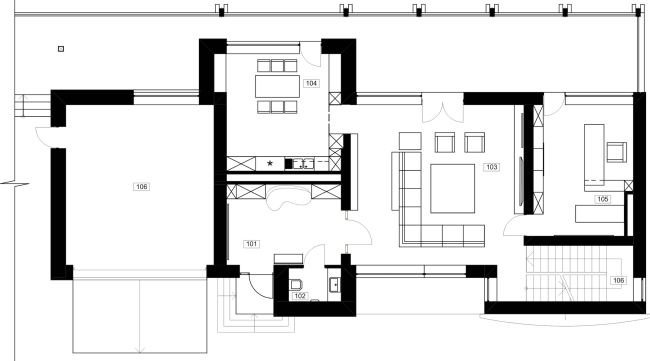
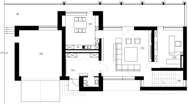
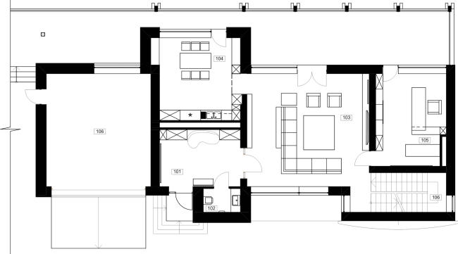
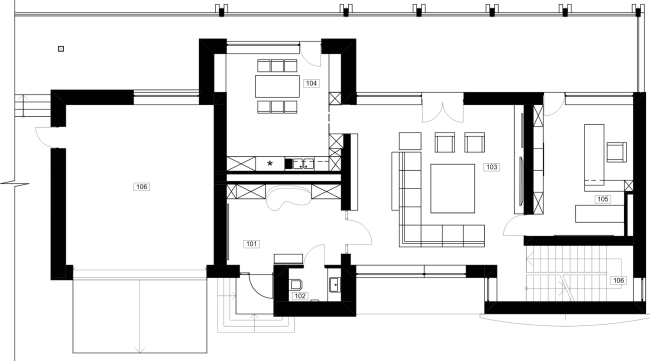
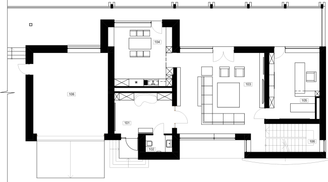
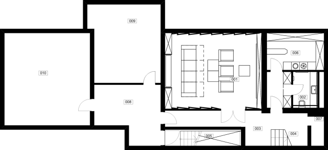
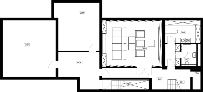
Частный жилой дом «Julia House». Главный дом, план 1 этажа. Реализация, 2014 © Архитектурная мастерская Романа Леонидова
Частный жилой дом «Julia House». Главный дом, план 1 этажа. Реализация, 2014 © Архитектурная мастерская Романа Леонидова
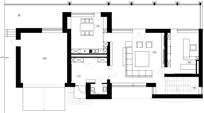
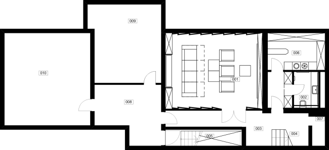
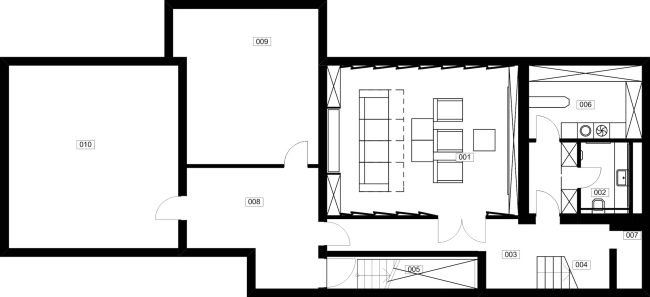
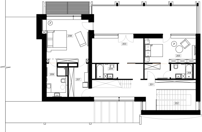
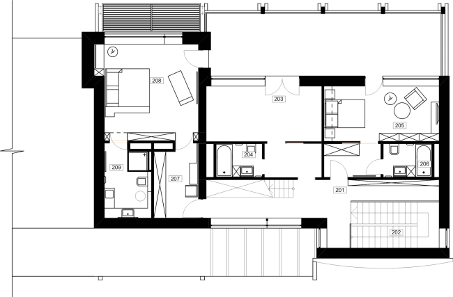
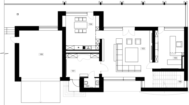
Частный жилой дом «Julia House». План 2 этажа. Реализация, 2014 © Архитектурная мастерская Романа Леонидова
Частный жилой дом «Julia House». План 2 этажа. Реализация, 2014 © Архитектурная мастерская Романа Леонидова
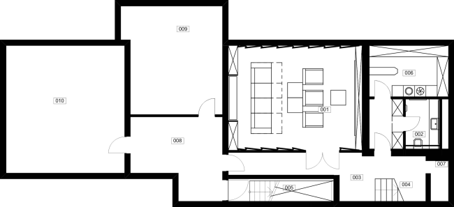
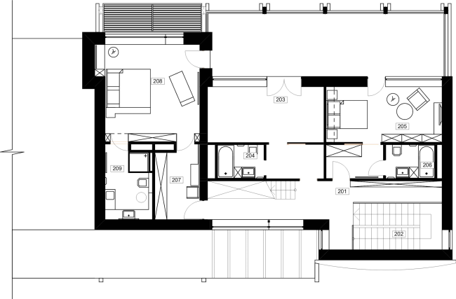
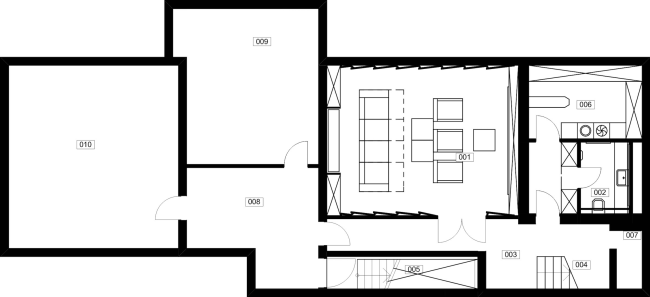
Частный жилой дом «Julia House». План 3 этажа. Реализация, 2014 © Архитектурная мастерская Романа Леонидова
Частный жилой дом «Julia House». План 3 этажа. Реализация, 2014 © Архитектурная мастерская Романа Леонидова

В детских комнатах предусмотрены антресоли: по опыту архитектора, такая конструкция, когда игровая и учебная зоны расположены внизу, а спальное место над ними, очень нравится детям. За вертикальное сообщение отвечают лестничные пролёты – в главном доме лестница спиральная, во флигеле прямая, но динамичная, со сложным внутренним объемом и акцентным декором из тонированных дубовых реек.
Частный жилой дом «Julia House». Архитектурная мастерская Романа Леонидова. Реализация, 2014. Фотография © Алексей Князев
Частный жилой дом «Julia House». Архитектурная мастерская Романа Леонидова. Реализация, 2014. Фотография © Алексей Князев
Частный жилой дом «Julia House». Архитектурная мастерская Романа Леонидова. Реализация, 2014. Фотография © Алексей Князев
Частный жилой дом «Julia House». Архитектурная мастерская Романа Леонидова. Реализация, 2014. Фотография © Алексей Князев
Частный жилой дом «Julia House». Архитектурная мастерская Романа Леонидова. Реализация, 2014. Фотография © Алексей Князев
Частный жилой дом «Julia House». Архитектурная мастерская Романа Леонидова. Реализация, 2014. Фотография © Алексей Князев
Частный жилой дом «Julia House». Архитектурная мастерская Романа Леонидова. Реализация, 2014. Фотография © Алексей Князев
Частный жилой дом «Julia House». Архитектурная мастерская Романа Леонидова. Реализация, 2014. Фотография © Алексей Князев
Частный жилой дом «Julia House». Архитектурная мастерская Романа Леонидова. Реализация, 2014. Фотография © Алексей Князев
Частный жилой дом «Julia House». Архитектурная мастерская Романа Леонидова. Реализация, 2014. Фотография © Алексей Князев
Частный жилой дом «Julia House». Архитектурная мастерская Романа Леонидова. Реализация, 2014. Фотография © Алексей Князев
Частный жилой дом «Julia House». Архитектурная мастерская Романа Леонидова. Реализация, 2014. Фотография © Алексей Князев
Частный жилой дом «Julia House». Архитектурная мастерская Романа Леонидова. Реализация, 2014. Фотография © Алексей Князев
Частный жилой дом «Julia House». Архитектурная мастерская Романа Леонидова. Реализация, 2014. Фотография © Алексей Князев

Интерьерами флигеля занималась дизайнер Елена Орман. Она вспоминает, что сколько бы ни приезжала на объект, дом всегда был пронизан солнечным светом. Видимо, везло с погодой, но главное, конечно, постановка дома на участке – солидный опыт загородного строительства позволяет Роману Леонидову обеспечивать будущим жильцам оптимальный световой режим в любое время года. Так или иначе, Елена решила для себя, что именно свет выступит в роли главного героя этого интерьера. «Благодаря удачному расположению дома на участке и витражному остеклению от пола до потолка, – говорит она, – тени падают таким образом, что в светлом помещении уже сами по себе создают красивый рисунок и так наполняют пространство, что особых акцентов там и добавлять не надо – только какими-то деталями дополнить для завершения композиции». Так что, в полном согласии с заказчиком, стиль оформления интерьеров был выбран достаточно простой, почти минималистичный. И материалы, и цвета – только натуральные, никакого пластика и натяжных потолков, даже светильники или из стекла с металлом, или гипсовые.
Частный жилой дом «Julia House». Архитектурная мастерская Романа Леонидова. Реализация, 2014. Фотография © Алексей Князев
Частный жилой дом «Julia House». Архитектурная мастерская Романа Леонидова. Реализация, 2014. Фотография © Алексей Князев
Частный жилой дом «Julia House». Архитектурная мастерская Романа Леонидова. Реализация, 2014. Фотография © Алексей Князев
Частный жилой дом «Julia House». Архитектурная мастерская Романа Леонидова. Реализация, 2014. Фотография © Алексей Князев
Частный жилой дом «Julia House». Архитектурная мастерская Романа Леонидова. Реализация, 2014. Фотография © Алексей Князев
Частный жилой дом «Julia House». Архитектурная мастерская Романа Леонидова. Реализация, 2014. Фотография © Алексей Князев

В бюро Леонидова существует жёсткая аксиома: насколько это возможно, материалы и цвета внешней отделки дома должны быть использованы и внутри. Вот и здесь светлое дерево и оттенок белого песка «перетекают» в комнаты, создавая основу цветовой гаммы, на фоне которой выделяются чуть более яркие оттенки акцентных стен. Это тоже натуральное дерево, но с выразительным естественным рисунком: олива в гостиной и кухне-столовой, палисандр в кабинете. А за тонкости «вкуса» отвечают дополнительные оттенки, которые Елена сравнивает со специями: тут чуть-чуть корицы, здесь жженый апельсин, где-то добавляется веточка розмарина, мяты или легкий аромат лаванды… Однако окончательно обжить интерьеры, сделать их живыми и индивидуальными дизайнер предоставляет хозяевам дома, которые непременно дополнят помещения деталями собственной жизни.
Частный жилой дом «Julia House». Архитектурная мастерская Романа Леонидова. Реализация, 2014. Фотография © Алексей Князев
Частный жилой дом «Julia House». Архитектурная мастерская Романа Леонидова. Реализация, 2014. Фотография © Алексей Князев
Частный жилой дом «Julia House». Архитектурная мастерская Романа Леонидова. Реализация, 2014. Фотография © Алексей Князев
Частный жилой дом «Julia House». Архитектурная мастерская Романа Леонидова. Реализация, 2014. Фотография © Алексей Князев