Размещено на портале Архи.ру (www.archi.ru)

23.12.2016

«Технокупол» для инноваций

Анна Малахова
Объект:
Исследовательский центр Hankook Technodome
Адрес:
Южная Корея, None, Тэджон.
Мастерская:
Foster + Partners

Foster + Partners построили научно-исследовательский центр для южнокорейского производителя шин Hankook.

Исследовательский центр Hankook Technodome © Nigel Young / Foster + Partners
Исследовательский центр Hankook Technodome © Nigel Young / Foster + Partners

Здание Hankook Technodome появилось в Тэджоне, самом центре азиатской «Силиконовой долины». Проект призван привлечь к сотрудничеству наиболее талантливых людей индустрии. Для них там создана вдохновляющая рабочая среда – с передовыми лабораториями, полными света офисами и динамичными пространствами. Все это должно содействовать коммуникации, открытости и инновациям – ключевым понятиям новой корпоративной культуры бренда Hankook.
 
Исследовательский центр Hankook Technodome © Nigel Young / Foster + Partners
Исследовательский центр Hankook Technodome © Nigel Young / Foster + Partners

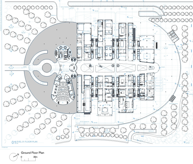
В основе архитектурной концепции техноцентра – элегантная конструкция с плавной серебристой кровлей на тонких опорах, скрывающих основной объем с легким стеклянным фасадом гибких очертаний. Организовать и связать воедино столь сложные по функционалу пространства оказалось задачей не из легких, поскольку требования к использованию сложного оборудования колебались от расположения в углубленных шахтах до установки в помещениях со вторым светом. Именно это определило план здания, который обеспечивает визуальные связи между различными частями постройки и в то же время делает пространство достаточно гибким для вариативного использования. Уровень высот в разных зонах колеблется от четырех до шести этажей, что обусловлено находящимся поблизости со техноцентром правительственным объектом.
 
Исследовательский центр Hankook Technodome © Nigel Young / Foster + Partners
Исследовательский центр Hankook Technodome © Nigel Young / Foster + Partners

Научные лаборатории и помещения для исследовательских разработок сгруппированы вдоль центральной оси, идущей с юга на север – от главного входа и столовой до комнат для размещения гостей и персонала. Вдоль всего прекрасно освещенного за счет верхнего света пространства подвешены белоснежные «чаши» – открытые площадки-полукапсулы для встреч и рабочих совещаний.
 
Исследовательский центр Hankook Technodome © Nigel Young / Foster + Partners
Исследовательский центр Hankook Technodome © Nigel Young / Foster + Partners

Эффектный вестибюль используется не только как входная зона, но и в качестве демонстрационного зала для новой продукции. Отсюда также открываются виды на испытательные площадки и парковую зону рядом с техноцентром.
 
Исследовательский центр Hankook Technodome © Nigel Young / Foster + Partners
Исследовательский центр Hankook Technodome © Nigel Young / Foster + Partners

В здании применен целый комплекс устойчивых решений, что позволило ему получить золотой сертификат LEED. Так, отработанное тепло служит для нагрева соседнего здания общежития для посетителей и персонала. А в водоеме у южного входа на территорию собирается дождевая вода, которая затем используется для охлаждения комплекса.
Исследовательский центр Hankook Technodome © Foster + Partners
Исследовательский центр Hankook Technodome © Foster + Partners
Исследовательский центр Hankook Technodome © Foster + Partners
Исследовательский центр Hankook Technodome © Foster + Partners
Исследовательский центр Hankook Technodome © Foster + Partners
Исследовательский центр Hankook Technodome © Foster + Partners
Исследовательский центр Hankook Technodome © Foster + Partners
Исследовательский центр Hankook Technodome © Foster + Partners
Исследовательский центр Hankook Technodome © Foster + Partners
Исследовательский центр Hankook Technodome © Foster + Partners
Исследовательский центр Hankook Technodome © Foster + Partners
Исследовательский центр Hankook Technodome © Foster + Partners
Исследовательский центр Hankook Technodome © Foster + Partners
Исследовательский центр Hankook Technodome © Foster + Partners
Исследовательский центр Hankook Technodome © Foster + Partners
Исследовательский центр Hankook Technodome © Foster + Partners