Размещено на портале Архи.ру (www.archi.ru)

22.12.2016

Четыре двора и одна реконструкция

Анна Старостина
Объект:
Штаб-квартира компании Siemens
Адрес:
Германия, None, Мюнхен.
Мастерская:
Henning Larsen Architects

Henning Larsen Architects называют свою работу — штаб-квартиру компании Siemens в Мюнхене — самым экологичным зданием Европы.

Штаб-квартира Siemens в Мюнхене © Hufton + Crow
Штаб-квартира Siemens в Мюнхене © Hufton + Crow

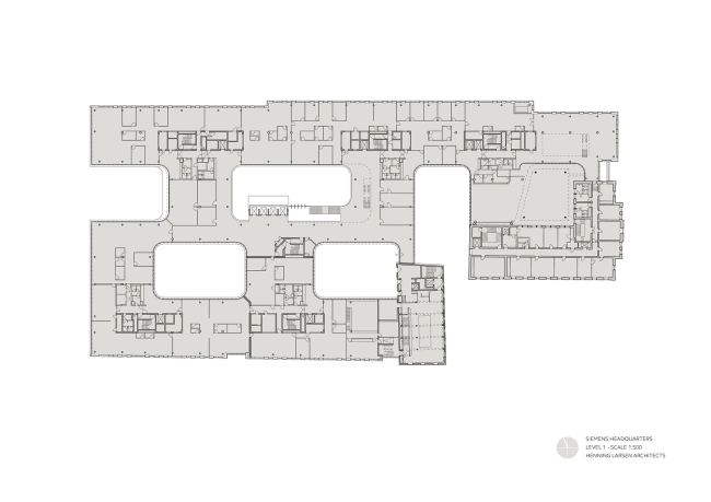
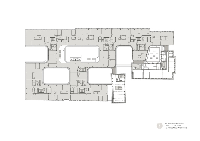
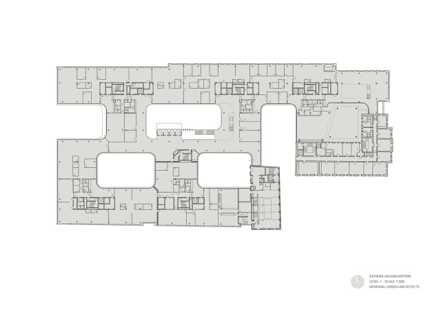
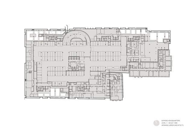
В 2010 году датское бюро выиграло международный конкурс на реконструкцию исторического дворца Людвига Фердинанда (построен в 1825 году по проекту Лео фон Кленце, концерн Siemens занимает его с 1949 года) и на формирование на прилегающей к нему территории головного офиса компании, отвечающего самым высоким современным стандартам. Все основные принципы масштабного и амбициозного проекта были заявлены сразу: открыть участок городу, связав с его помощью старый город и музейный район, и создать технически совершенное здание, использовав все самые последние технологии в области «устойчивой» архитектуры, включая и разработки самой компании-заказчика.
Штаб-квартира Siemens в Мюнхене © Hufton + Crow
Штаб-квартира Siemens в Мюнхене © Hufton + Crow

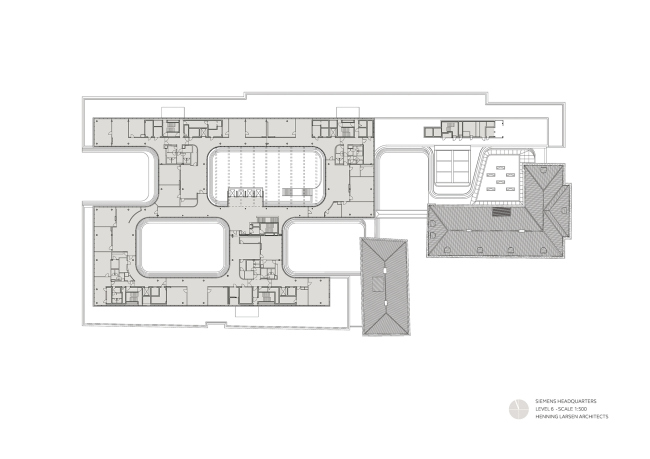
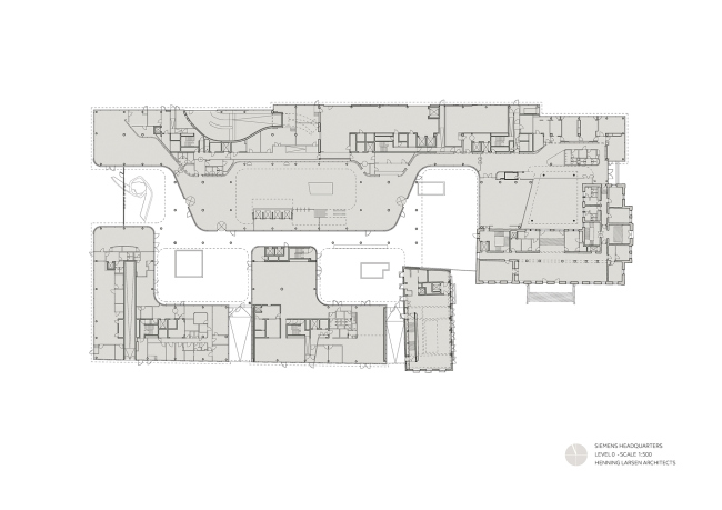
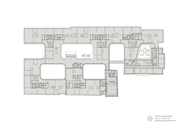
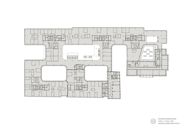
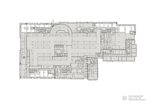
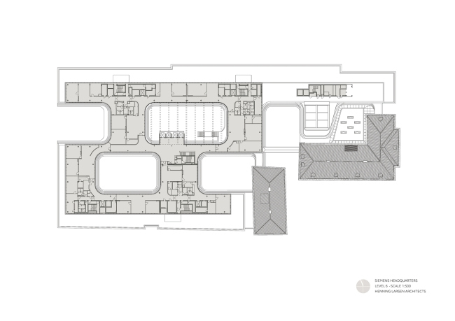
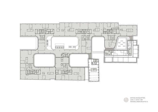
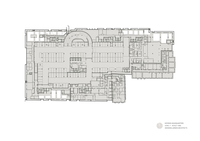
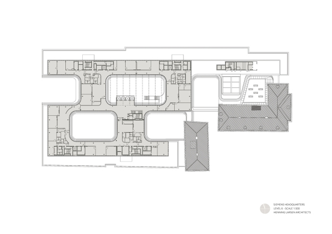
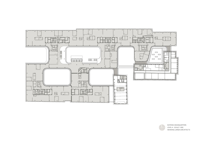
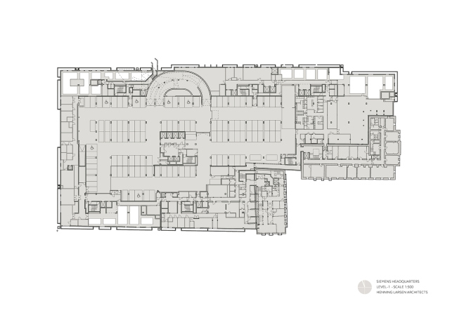
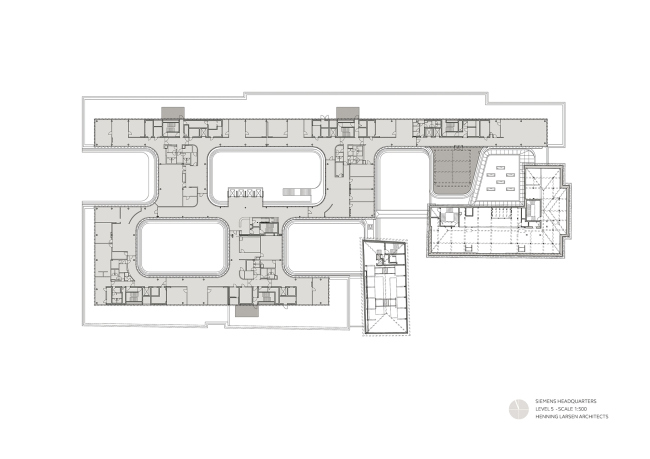
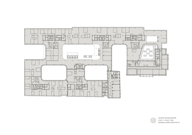
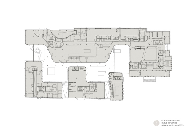
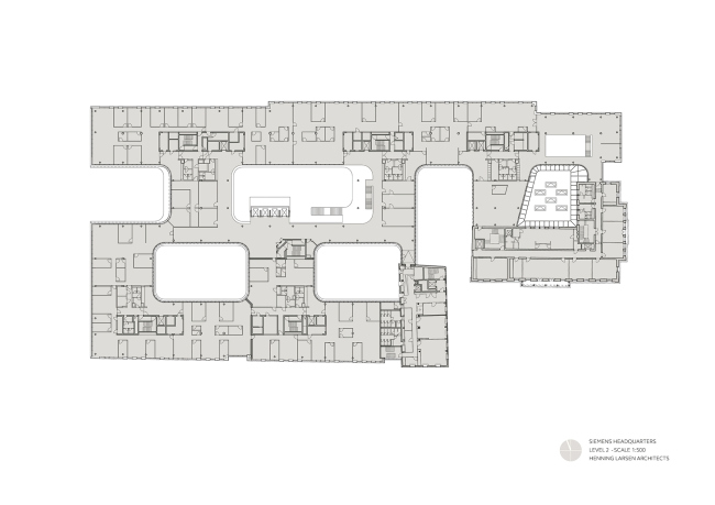
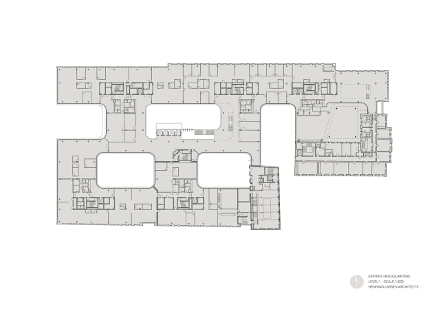
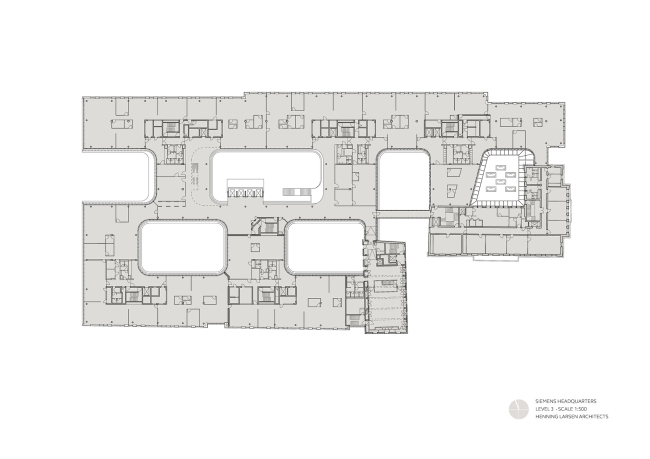
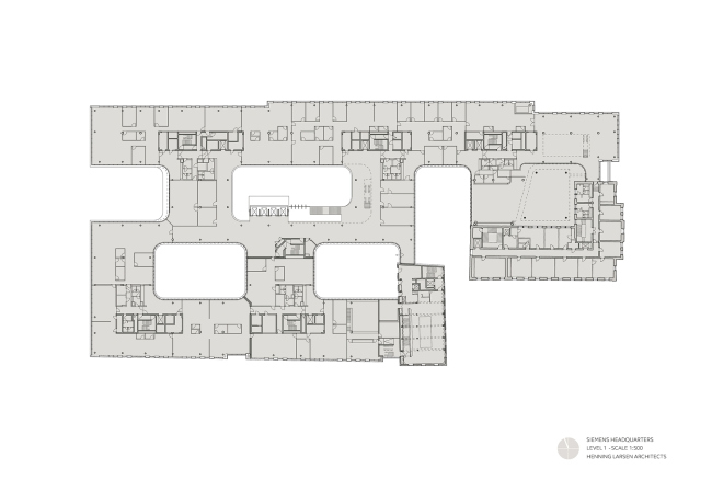
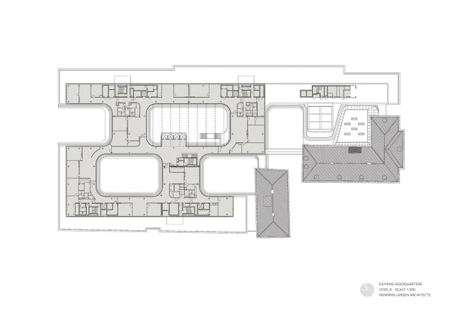
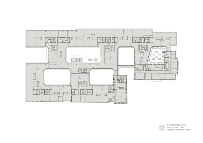
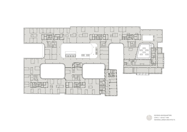
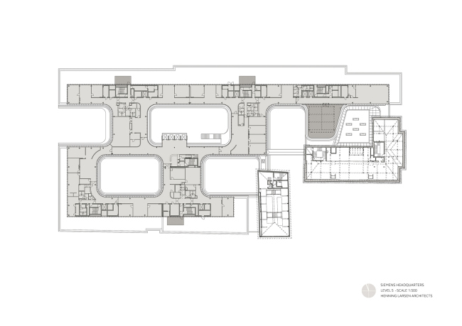
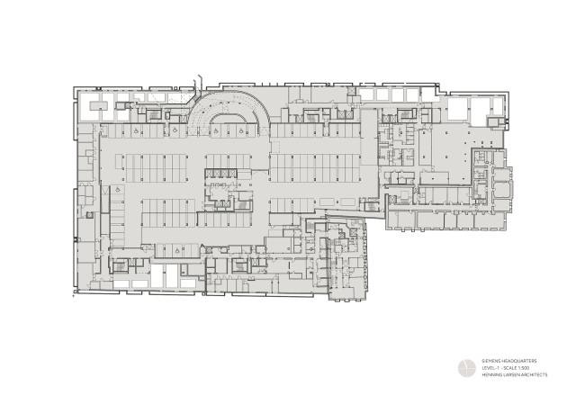
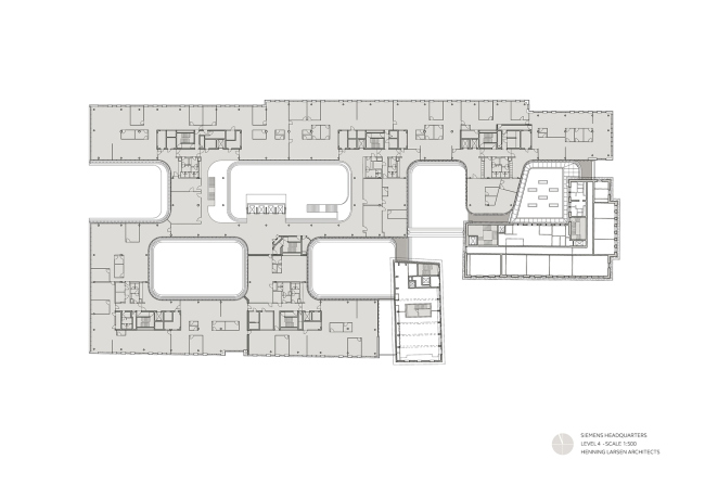
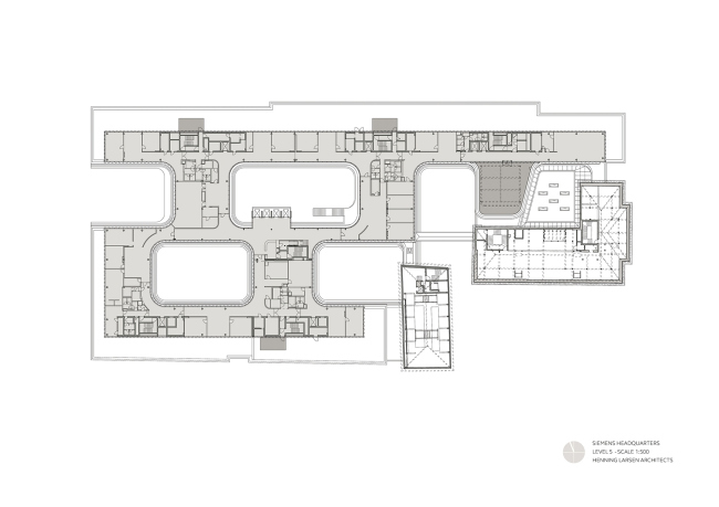
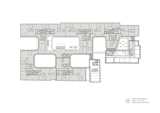
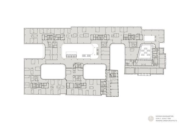
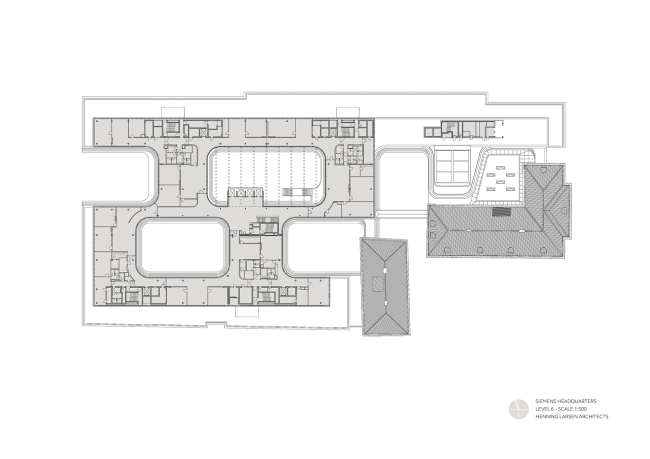
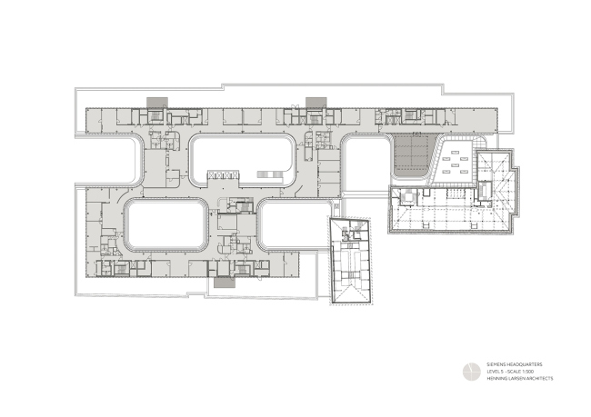
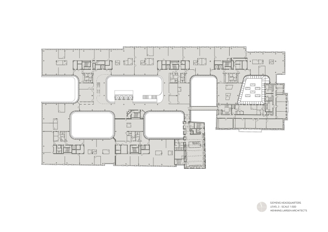
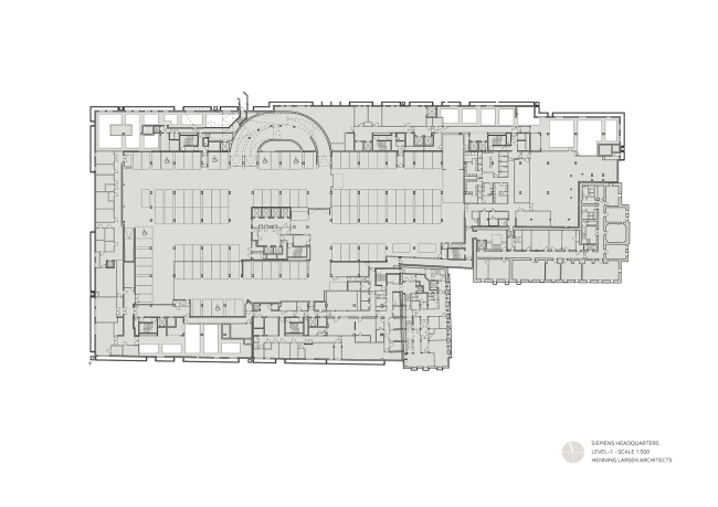
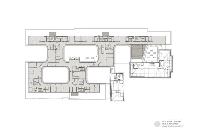
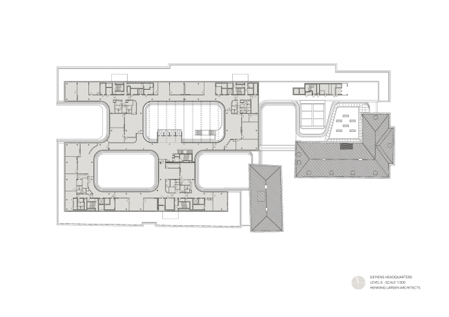
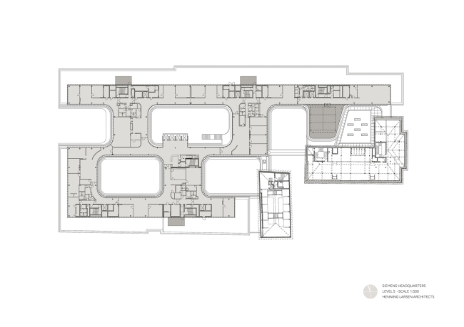
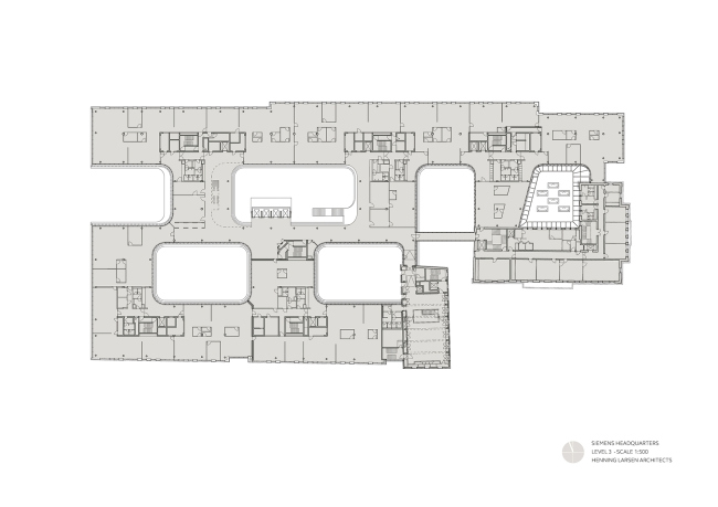
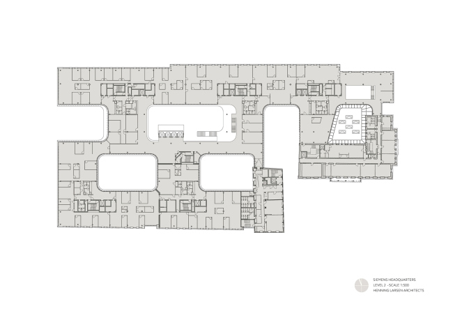
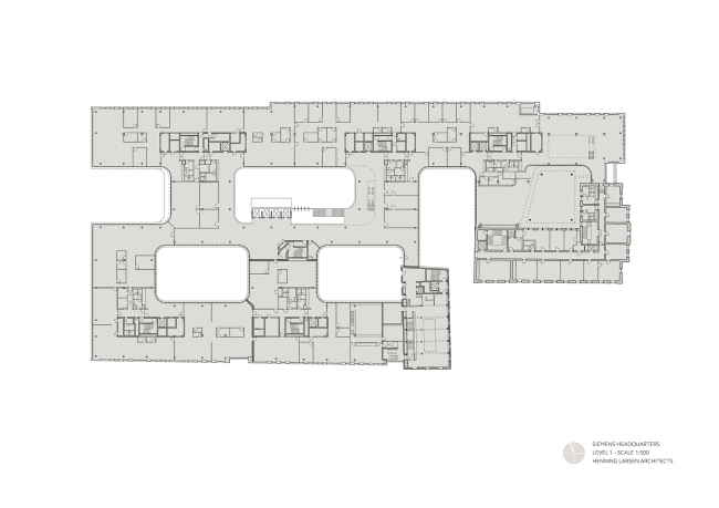
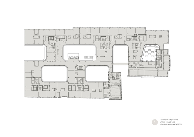
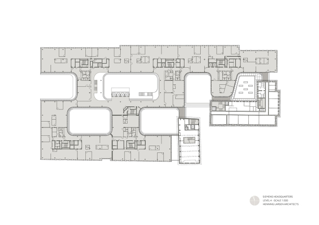
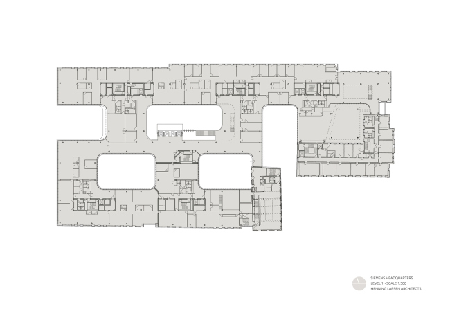
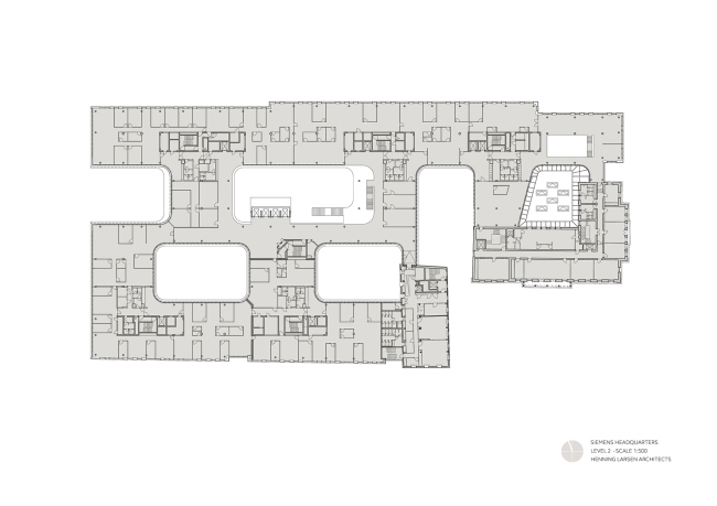
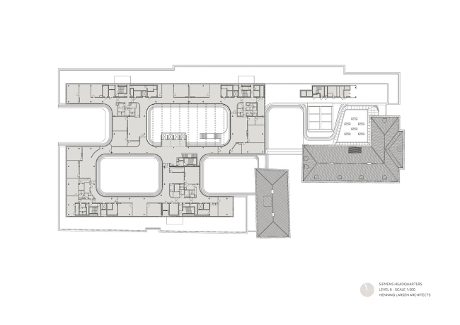
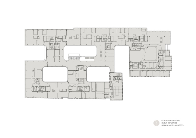
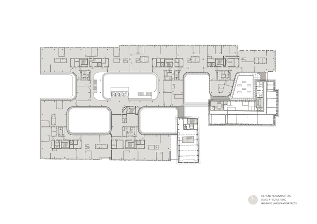
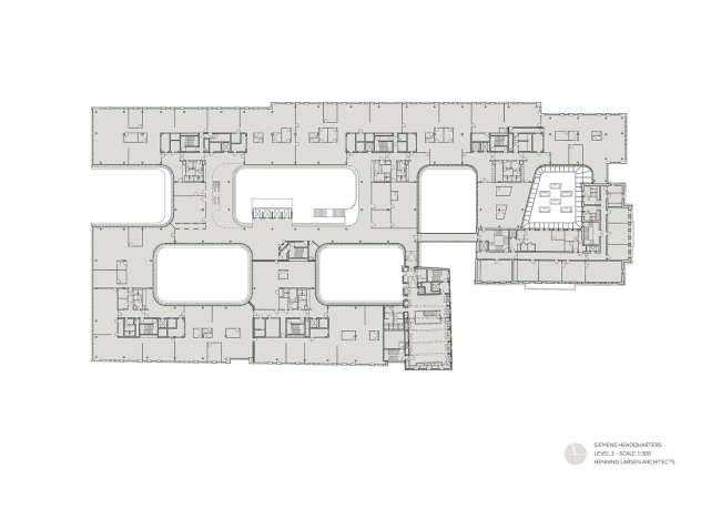
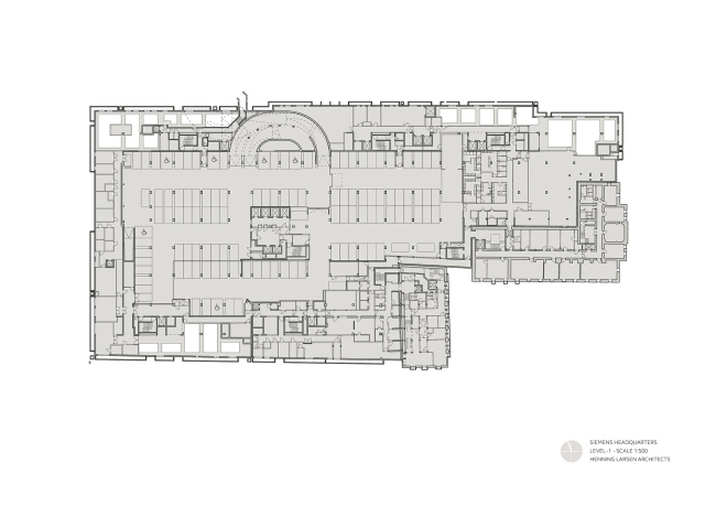
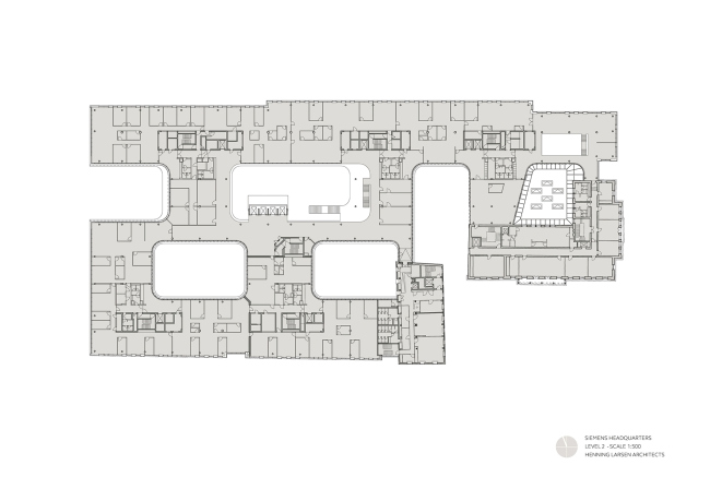
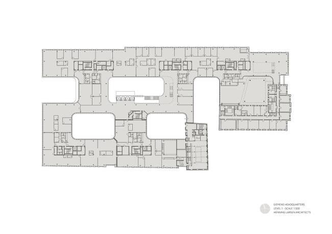
Общая площадь наземной части нового комплекса, в которую памятник архитектуры легко встраивается, составляет 45 000 м2. Три подземных этажа, пять наземных и частично эксплуатируемые кровли создают более чем комфортную рабочую среду для 1200 сотрудников фирмы. У исторического фасада, выходящего на пешеходную площадь Виттельсбахерплац, сохранили восемь остролистых кленов. Отсюда, через весь комплекс и его 4 прямоугольных внутренних двора проложено доступное абсолютно для всех общественное пространство с кафе, фонтаном, зелеными зонами отдыха. Еще один такой двор решен как просторный светлый атриум и стал центром всей довольно прихотливой композиции. С противоположной стороны, обращенной на Оскар-фон-Миллер-Ринг и музейный кластер, посетителей и случайных прохожих встречает скульптура Даниэля Либескинда «Крылья». Отдельно оговаривается, что безопасность компании и ее сотрудников от такого открытого решения никак не пострадала и остается на высоком уровне.
Штаб-квартира Siemens в Мюнхене © Hufton + Crow
Штаб-квартира Siemens в Мюнхене © Hufton + Crow

Комфорту и качеству рабочей среды архитекторы и заказчики вообще уделили очень много внимания. Например, стеклянные стенки внутренних дворов имеют наклон, что позволяет максимально использовать естественное освещение. Естественно, что все рабочие места расположены вдоль светового фронта, но кроме них организовано множество мест для индивидуальной или командной работы, неформального общения. Сплошное внутреннее остекление также важно для поддержки сложной системы визуальных связей в интерьере. Более 30 000 датчиков постоянно анализируют состояние здания и различные климатические параметры внутри него. Система обеспечивает безопасность, позволяет подстраивать «под себя» температурный режим и уровень вентиляции, корректирует приток свежего воздуха в переговорных в зависимости от количества сотрудников, и подстраивает уровень освещенности, ориентируясь на погоду за окном и время суток.
Штаб-квартира Siemens в Мюнхене © Hufton + Crow
Штаб-квартира Siemens в Мюнхене © Hufton + Crow

Что касается принципов «устойчивого» развития, то здание получило сразу два сертификата уровня Platinum – немецкой системы оценки DGNB и американской LEED. К строительству активно привлекались местные подрядчики (их около половины из 400 фирм) и использовались местные материалы: например, известняк для боковых фасадов и мощения общественной зоны (понадобилось около 23 000 плит) добывался всего в 100 км от города в природном парке Альтмюльталь. Установка 7500 светодиодных светильников позволила почти в два раза сократить потребление электроэнергии, а датчики контроля помогают сэкономить еще около 25%. Уровень выброса углекислого газа зданием так же сведен к самому минимуму.
Штаб-квартира Siemens в Мюнхене © Hufton + Crow
Штаб-квартира Siemens в Мюнхене © Hufton + Crow

Сбор порядка 1500 кубометров дождевой воды в год для туалетов и полива, 800 солнечных батарей на крыше, активное применение переработанного стекла, а также алюминия и стали, использование специально выращенной и подготовленной древесины, точки подзарядки электромобилей и велосипедов с электромотором на подземной парковке, озелененные фрагменты кровли, сложные, продвинутые системы обогрева и вентиляции и множество других технологических решений позволяют зданию достичь высочайшего уровня экономичности и экологической безопасности. Получился идеально выверенный памятник жесткой корпоративной культуре компании (ее московский офис демонстрирует абсолютно те же принципы и сходные приемы их воплощения), инженерной науке и функционализму, вполне, впрочем, соответствующий запросам нашего времени.
Штаб-квартира Siemens в Мюнхене © Hufton + Crow
Штаб-квартира Siemens в Мюнхене © Hufton + Crow
Штаб-квартира Siemens в Мюнхене © Hufton + Crow
Штаб-квартира Siemens в Мюнхене © Hufton + Crow
Штаб-квартира Siemens в Мюнхене © Hufton + Crow
Штаб-квартира Siemens в Мюнхене © Hufton + Crow
Штаб-квартира Siemens в Мюнхене © Hufton + Crow
Штаб-квартира Siemens в Мюнхене © Hufton + Crow
Штаб-квартира Siemens в Мюнхене © Hufton + Crow
Штаб-квартира Siemens в Мюнхене © Hufton + Crow
Штаб-квартира Siemens в Мюнхене © Hufton + Crow
Штаб-квартира Siemens в Мюнхене © Hufton + Crow
Штаб-квартира Siemens в Мюнхене © Hufton + Crow
Штаб-квартира Siemens в Мюнхене © Hufton + Crow
Штаб-квартира Siemens в Мюнхене © Hufton + Crow
Штаб-квартира Siemens в Мюнхене © Hufton + Crow
Штаб-квартира Siemens в Мюнхене © Hufton + Crow
Штаб-квартира Siemens в Мюнхене © Hufton + Crow
Штаб-квартира Siemens в Мюнхене © Hufton + Crow
Штаб-квартира Siemens в Мюнхене © Hufton + Crow
Штаб-квартира Siemens в Мюнхене © Hufton + Crow
Штаб-квартира Siemens в Мюнхене © Hufton + Crow
Штаб-квартира Siemens в Мюнхене © Hufton + Crow
Штаб-квартира Siemens в Мюнхене © Hufton + Crow
Штаб-квартира Siemens в Мюнхене © Hufton + Crow
Штаб-квартира Siemens в Мюнхене © Hufton + Crow
Штаб-квартира Siemens в Мюнхене © Hufton + Crow
Штаб-квартира Siemens в Мюнхене © Hufton + Crow
Штаб-квартира Siemens в Мюнхене © Hufton + Crow
Штаб-квартира Siemens в Мюнхене © Hufton + Crow
Штаб-квартира Siemens в Мюнхене © Hufton + Crow
Штаб-квартира Siemens в Мюнхене © Hufton + Crow
Штаб-квартира Siemens в Мюнхене © Hufton + Crow
Штаб-квартира Siemens в Мюнхене © Hufton + Crow
Штаб-квартира Siemens в Мюнхене © Hufton + Crow
Штаб-квартира Siemens в Мюнхене © Hufton + Crow
Штаб-квартира Siemens в Мюнхене © Hufton + Crow
Штаб-квартира Siemens в Мюнхене © Hufton + Crow
Штаб-квартира Siemens в Мюнхене © Hufton + Crow
Штаб-квартира Siemens в Мюнхене © Hufton + Crow
Штаб-квартира Siemens в Мюнхене © Hufton + Crow
Штаб-квартира Siemens в Мюнхене © Hufton + Crow
Штаб-квартира Siemens в Мюнхене © Hufton + Crow
Штаб-квартира Siemens в Мюнхене © Hufton + Crow
Штаб-квартира Siemens в Мюнхене © Hufton + Crow
Штаб-квартира Siemens в Мюнхене © Hufton + Crow
Штаб-квартира Siemens в Мюнхене © Hufton + Crow
Штаб-квартира Siemens в Мюнхене © Hufton + Crow
Штаб-квартира Siemens в Мюнхене © Hufton + Crow
Штаб-квартира Siemens в Мюнхене © Hufton + Crow
Штаб-квартира Siemens в Мюнхене © Hufton + Crow
Штаб-квартира Siemens в Мюнхене © Hufton + Crow
Штаб-квартира Siemens в Мюнхене © Henning Larsen Architects
Штаб-квартира Siemens в Мюнхене © Henning Larsen Architects
Штаб-квартира Siemens в Мюнхене © Henning Larsen Architects
Штаб-квартира Siemens в Мюнхене © Henning Larsen Architects
Штаб-квартира Siemens в Мюнхене © Henning Larsen Architects
Штаб-квартира Siemens в Мюнхене © Henning Larsen Architects
Штаб-квартира Siemens в Мюнхене © Henning Larsen Architects
Штаб-квартира Siemens в Мюнхене © Henning Larsen Architects
Штаб-квартира Siemens в Мюнхене © Henning Larsen Architects
Штаб-квартира Siemens в Мюнхене © Henning Larsen Architects
Штаб-квартира Siemens в Мюнхене © Henning Larsen Architects
Штаб-квартира Siemens в Мюнхене © Henning Larsen Architects
Штаб-квартира Siemens в Мюнхене © Henning Larsen Architects
Штаб-квартира Siemens в Мюнхене © Henning Larsen Architects
Штаб-квартира Siemens в Мюнхене © Henning Larsen Architects
Штаб-квартира Siemens в Мюнхене © Henning Larsen Architects
Штаб-квартира Siemens в Мюнхене © Henning Larsen Architects
Штаб-квартира Siemens в Мюнхене © Henning Larsen Architects
Штаб-квартира Siemens в Мюнхене © Henning Larsen Architects
Штаб-квартира Siemens в Мюнхене © Henning Larsen Architects
Штаб-квартира Siemens в Мюнхене © Henning Larsen Architects
Штаб-квартира Siemens в Мюнхене © Henning Larsen Architects
Штаб-квартира Siemens в Мюнхене © Henning Larsen Architects
Штаб-квартира Siemens в Мюнхене © Henning Larsen Architects
Штаб-квартира Siemens в Мюнхене © Henning Larsen Architects
Штаб-квартира Siemens в Мюнхене © Henning Larsen Architects
Штаб-квартира Siemens в Мюнхене © Henning Larsen Architects
Штаб-квартира Siemens в Мюнхене © Henning Larsen Architects