Размещено на портале Архи.ру (www.archi.ru)

21.12.2016

Тропический цветок в сердце Сингапура

Алина Измайлова
Объект:
Башня Oasia Hotel Downtown
Адрес:
Сингапур, 100 Peck Seah Street
Мастерская:
WOHA

В Сингапуре достроили «цветущую» башню по проекту бюро WOHA – покрытую сверху донизу живыми лианами.

В самом центре островного государства появился 27-этажный отель Oasia, красный фасад которого постепенно затягивается изумрудной сеткой – настоящими живыми растениями. Здание оснащено четырьмя зелёными террасами, устроенными в сквозных проёмах. В проекте задействован 21 вид вьющихся растений, которые служат источником пищи и крова для птиц и растений. Эти висячие сады создают комфортные зоны для постояльцев гостиницы и работников делового центра: помимо отеля на 314 номеров, в здании расположены офисы и магазины.

Башня Oasia Hotel Downtown
Башня Oasia Hotel Downtown
Фотография © WOHA, K.Kopter
Башня Oasia Hotel Downtown
Башня Oasia Hotel Downtown
Фотография © WOHA, Patrick Bingham-Hall
Башня Oasia Hotel Downtown
Башня Oasia Hotel Downtown
Фотография © WOHA, Patrick Bingham-Hall
Башня Oasia Hotel Downtown
Башня Oasia Hotel Downtown
Фотография © WOHA, Patrick Bingham-Hall

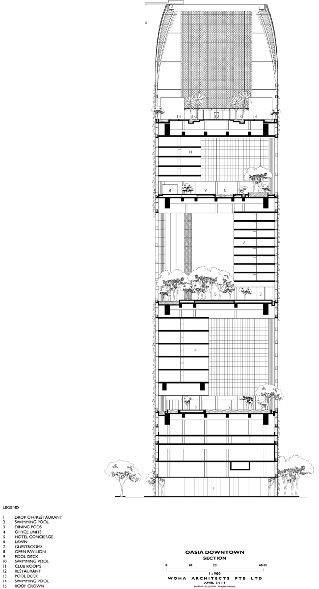
Оригинальный фасад – помимо эффектного внешнего вида, что было основным требованием заказчика, девелоперской компании Far East SOHO Pte Ltd, – привнёс в архитектуру Oasia дополнительное преимущество, ценное в удушливом климате Юго-Восточной Азии: алюминиевая решётчатая поверхность в сочетании с «зелёным ковром» естественным образом охлаждают здание. Этой же цели служат сквозные ниши, через которые постоянно циркулирует воздух, предотвращая тем самым нагревание постройки. Западная «сдержанная» модель с гладкими и герметичными фасадами оказалась неконкурентоспособной в тропическом Сингапуре. Стоит отметить, что устойчивость такой «дырявой» конструкции обеспечивает система из четырёх центральных ядер жёсткости – вместо традиционного одного.
Башня Oasia Hotel Downtown
Башня Oasia Hotel Downtown
Фотография © WOHA, Patrick Bingham-Hall
Башня Oasia Hotel Downtown
Башня Oasia Hotel Downtown
Фотография © WOHA, Patrick Bingham-Hall
Башня Oasia Hotel Downtown
Башня Oasia Hotel Downtown
Фотография © WOHA, Patrick Bingham-Hall

В дополнение к лианам на территории Oasia высажено ещё 33 вида растений. Ричард Хасселл (Richard Hassell), cооснователь WOHA, подчёркивает, что для посадки и ухода за растениями была выбрана система, не требующая технически сложного подхода, поскольку «довольно сложно найти штат рабочих, обладающих талантами и человека-паука, и садовника». Строительство башни велось пять лет и закончилось этой весной. Стоимость проекта составила примерно 138 млн сингапурских долларов (эквивалентно примерно 95 млн американских долларов).
Башня Oasia Hotel Downtown
Башня Oasia Hotel Downtown
Фотография © WOHA, K.Kopter
Башня Oasia Hotel Downtown
Башня Oasia Hotel Downtown
Фотография © WOHA, K.Kopter

Архитекторы бюро WOHA, у который уже немалый опыт в проектировании «зелёных» небоскрёбов для азиатского региона, надеются, что «живая башня» станет прецедентом в жанре высотного строительства и отодвинет на задний план привычные «цельные» конструкции как более самодостаточная: ключевой интерес составляет тут само архитектурное творение Oasia и то, что в нём содержится, в то время как в привычных многоэтажках главным развлечением является вид из окна.
Башня Oasia Hotel Downtown
Башня Oasia Hotel Downtown
Фотография © WOHA, K.Kopter
Башня Oasia Hotel Downtown
Башня Oasia Hotel Downtown
Фотография © WOHA, K.Kopter
Башня Oasia Hotel Downtown
Башня Oasia Hotel Downtown
Фотография © WOHA, Patrick Bingham-Hall
Башня Oasia Hotel Downtown
Башня Oasia Hotel Downtown
Фотография © WOHA, Patrick Bingham-Hall
Башня Oasia Hotel Downtown
Башня Oasia Hotel Downtown
Фотография © WOHA, Patrick Bingham-Hall
Башня Oasia Hotel Downtown
Башня Oasia Hotel Downtown
Фотография © WOHA, Patrick Bingham-Hall
Башня Oasia Hotel Downtown
Башня Oasia Hotel Downtown
Фотография © WOHA, K.Kopter
Башня Oasia Hotel Downtown
Башня Oasia Hotel Downtown
Фотография © WOHA, K.Kopter
Башня Oasia Hotel Downtown
Башня Oasia Hotel Downtown
Фотография © WOHA, K.Kopter
Башня Oasia Hotel Downtown
Башня Oasia Hotel Downtown
Фотография © WOHA, Patrick Bingham-Hall
Башня Oasia Hotel Downtown
Башня Oasia Hotel Downtown
Фотография © WOHA, Patrick Bingham-Hall
Башня Oasia Hotel Downtown
Башня Oasia Hotel Downtown
Фотография © WOHA, Patrick Bingham-Hall
Башня Oasia Hotel Downtown
Башня Oasia Hotel Downtown
Фотография © WOHA, Patrick Bingham-Hall
Башня Oasia Hotel Downtown
Башня Oasia Hotel Downtown
Фотография © WOHA, Patrick Bingham-Hall
Башня Oasia Hotel Downtown
Башня Oasia Hotel Downtown
Фотография © WOHA, Patrick Bingham-Hall
Башня Oasia Hotel Downtown
Башня Oasia Hotel Downtown
Фотография © WOHA, Patrick Bingham-Hall
Башня Oasia Hotel Downtown
Башня Oasia Hotel Downtown
Фотография © WOHA, Patrick Bingham-Hall
Башня Oasia Hotel Downtown. План, вид сбоку
Башня Oasia Hotel Downtown. План, вид сбоку
© WOHA
Башня Oasia Hotel Downtown. План 1 этажа
Башня Oasia Hotel Downtown. План 1 этажа
© WOHA
Башня Oasia Hotel Downtown. План 1 этажа
Башня Oasia Hotel Downtown. План 1 этажа
© WOHA
Башня Oasia Hotel Downtown. План 1 этажа
Башня Oasia Hotel Downtown. План 1 этажа
© WOHA
Башня Oasia Hotel Downtown. План 2 этажа
Башня Oasia Hotel Downtown. План 2 этажа
© WOHA
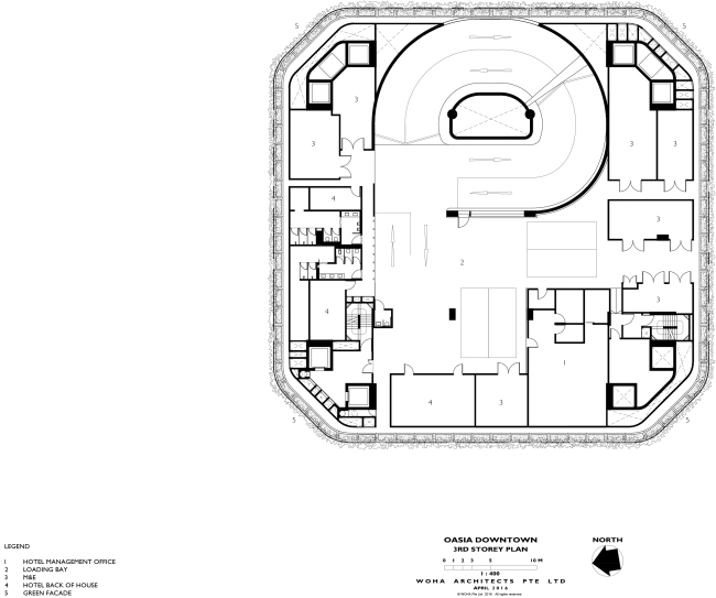
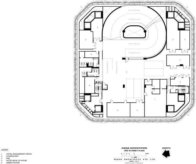
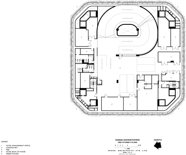
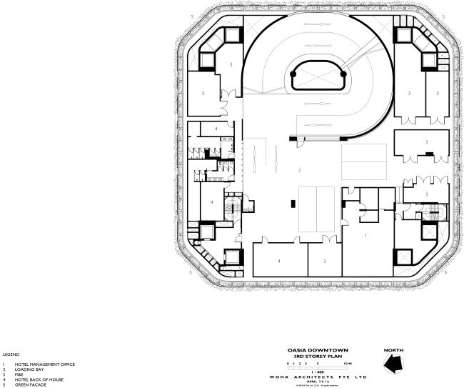
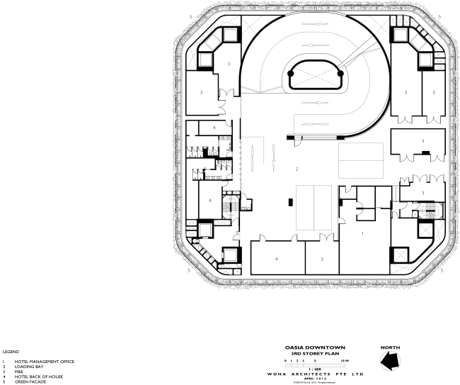
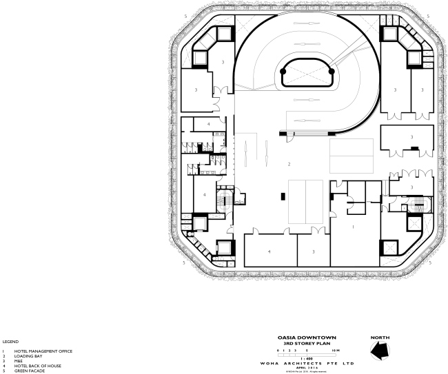
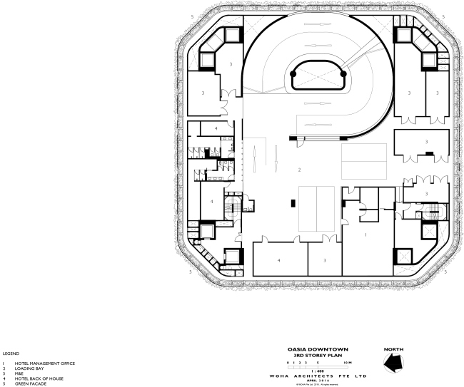
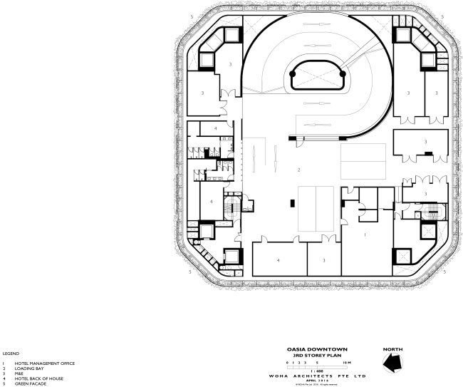
Башня Oasia Hotel Downtown. План 3 этажа
Башня Oasia Hotel Downtown. План 3 этажа
© WOHA
Башня Oasia Hotel Downtown. План 4 этажа
Башня Oasia Hotel Downtown. План 4 этажа
© WOHA
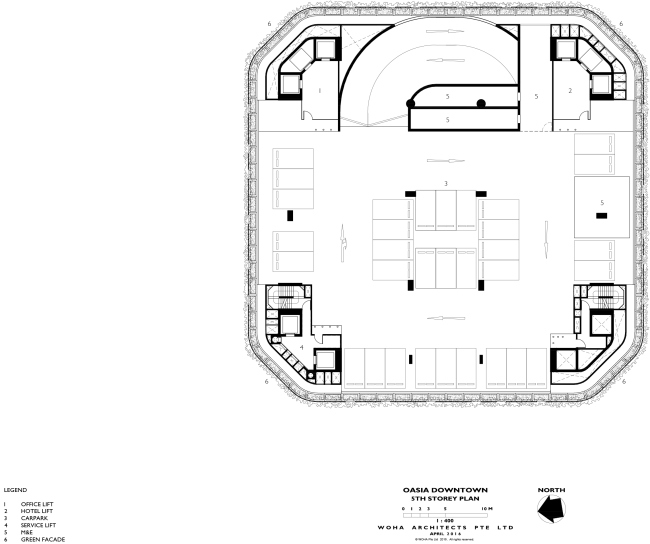
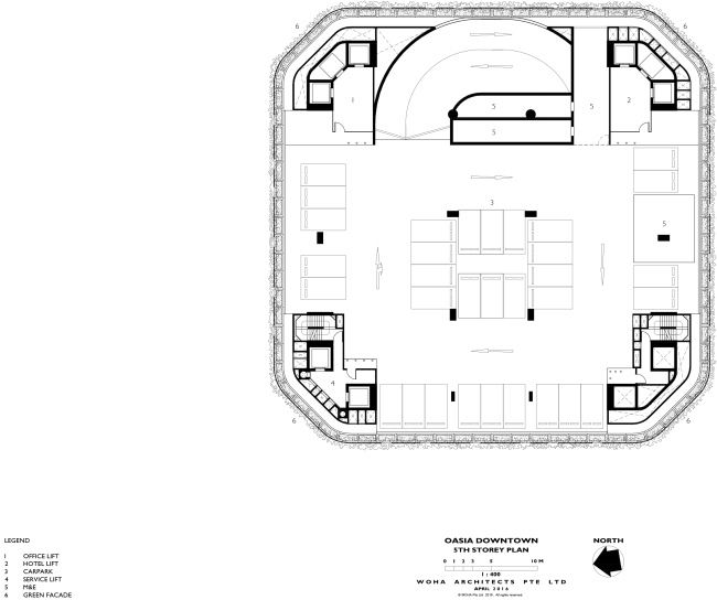
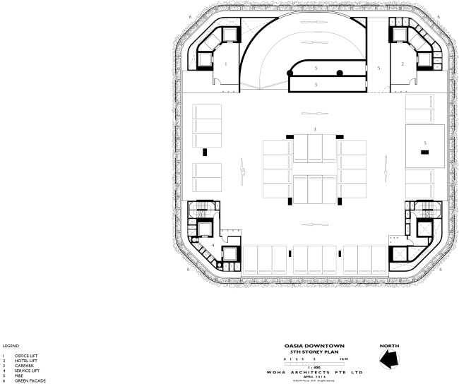
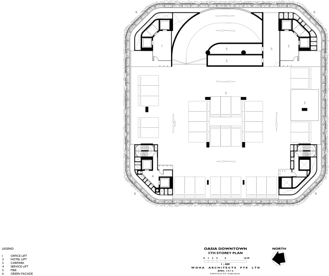
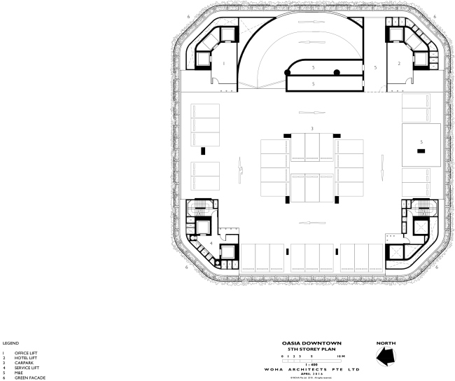
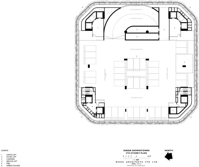
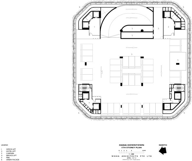
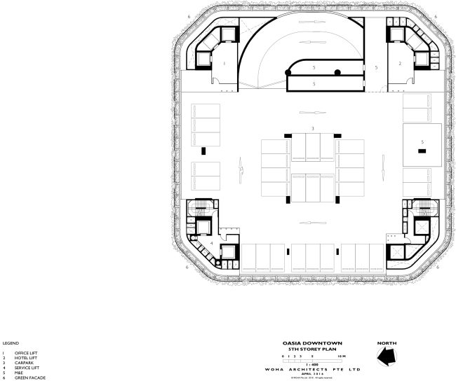
Башня Oasia Hotel Downtown. План 5 этажа
Башня Oasia Hotel Downtown. План 5 этажа
© WOHA
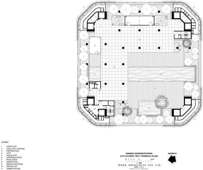
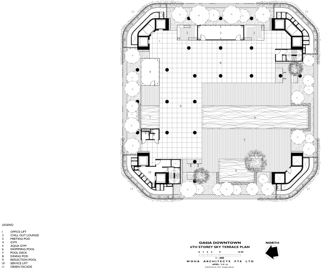
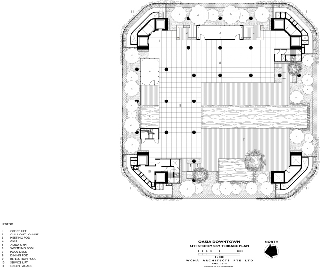
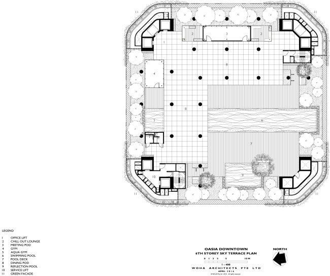
Башня Oasia Hotel Downtown. План 6 этажа
Башня Oasia Hotel Downtown. План 6 этажа
© WOHA
Башня Oasia Hotel Downtown. План 7-11 этажей
Башня Oasia Hotel Downtown. План 7-11 этажей
© WOHA
Башня Oasia Hotel Downtown. План террасы на 12 этаже
Башня Oasia Hotel Downtown. План террасы на 12 этаже
© WOHA
Башня Oasia Hotel Downtown. План 13-20 этажей
Башня Oasia Hotel Downtown. План 13-20 этажей
© WOHA
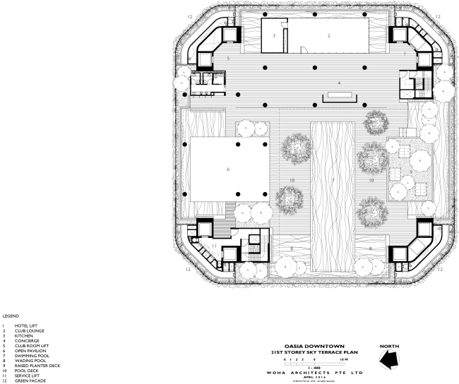
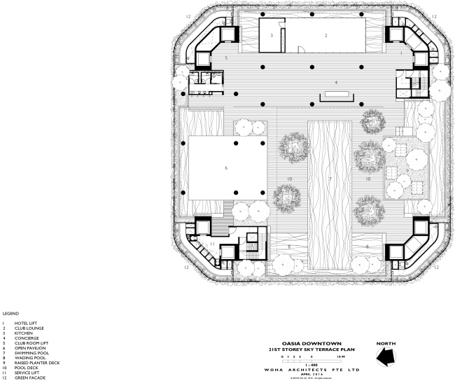
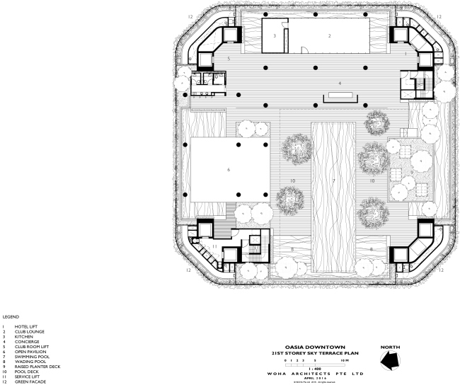
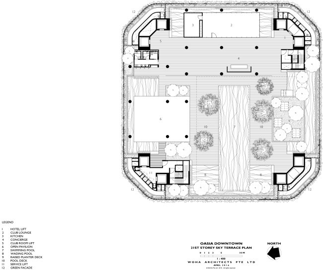
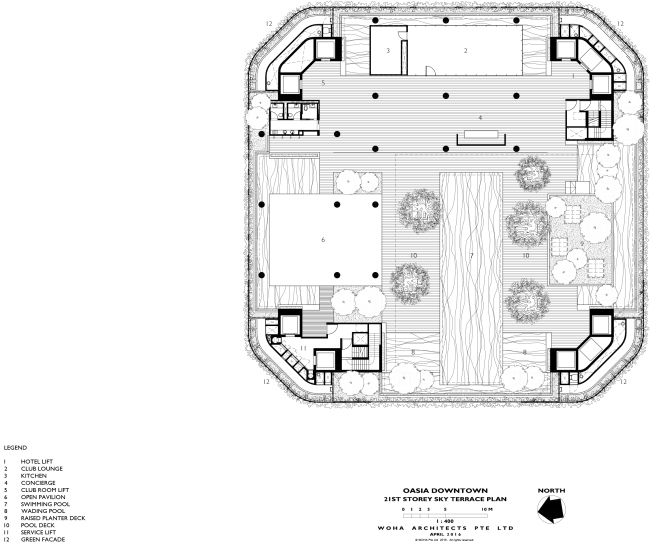
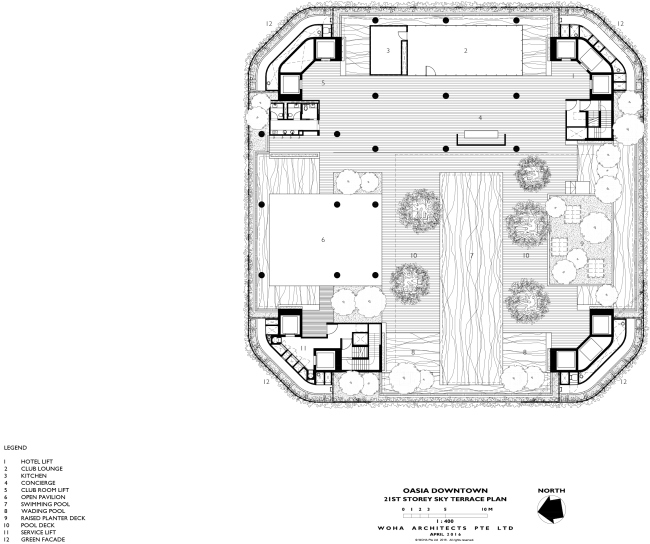
Башня Oasia Hotel Downtown. План террасы на 21 этаже
Башня Oasia Hotel Downtown. План террасы на 21 этаже
© WOHA
Башня Oasia Hotel Downtown. План 22, 23 и 25 этажей этажа
Башня Oasia Hotel Downtown. План 22, 23 и 25 этажей этажа
© WOHA
Башня Oasia Hotel Downtown. План 24 этажа
Башня Oasia Hotel Downtown. План 24 этажа
© WOHA
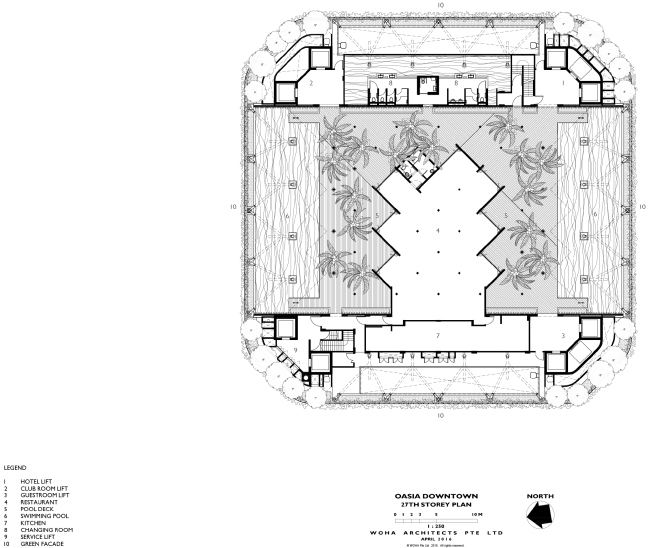
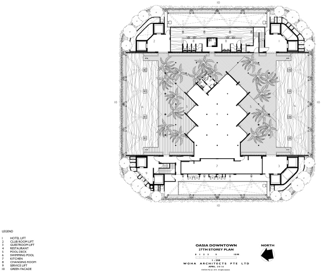
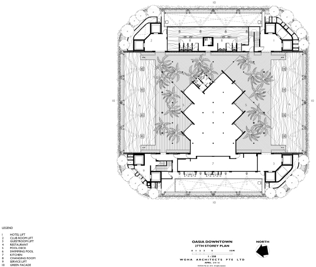
Башня Oasia Hotel Downtown. План террасы на 27 этаже
Башня Oasia Hotel Downtown. План террасы на 27 этаже
© WOHA
Башня Oasia Hotel Downtown. План, крыша
Башня Oasia Hotel Downtown. План, крыша
© WOHA
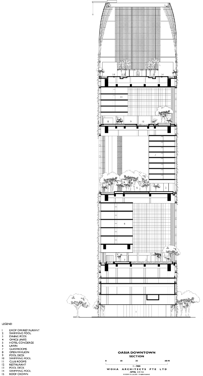
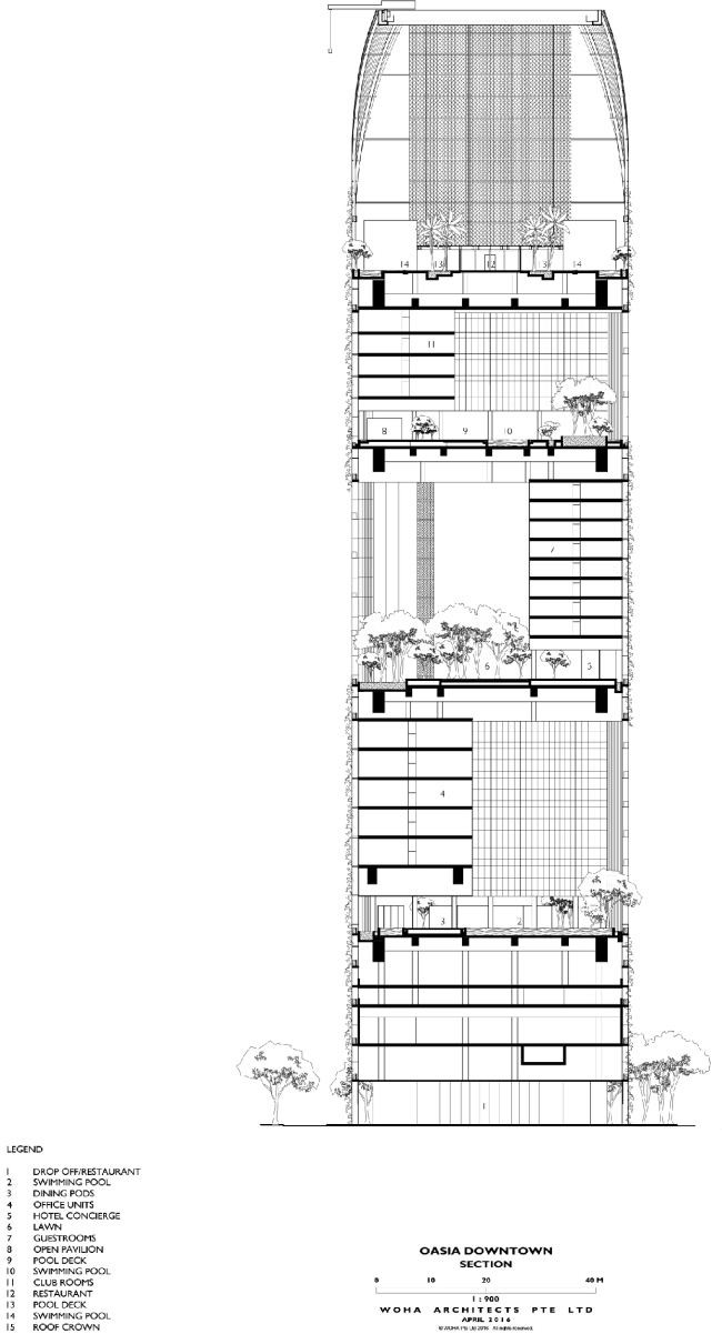
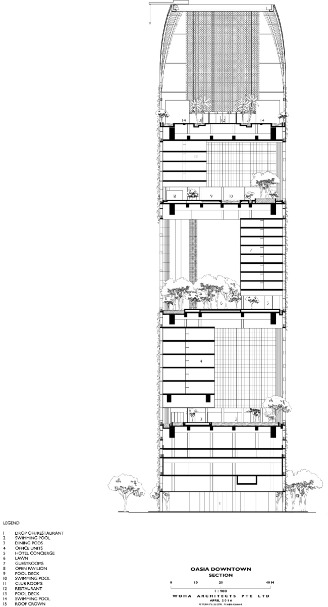
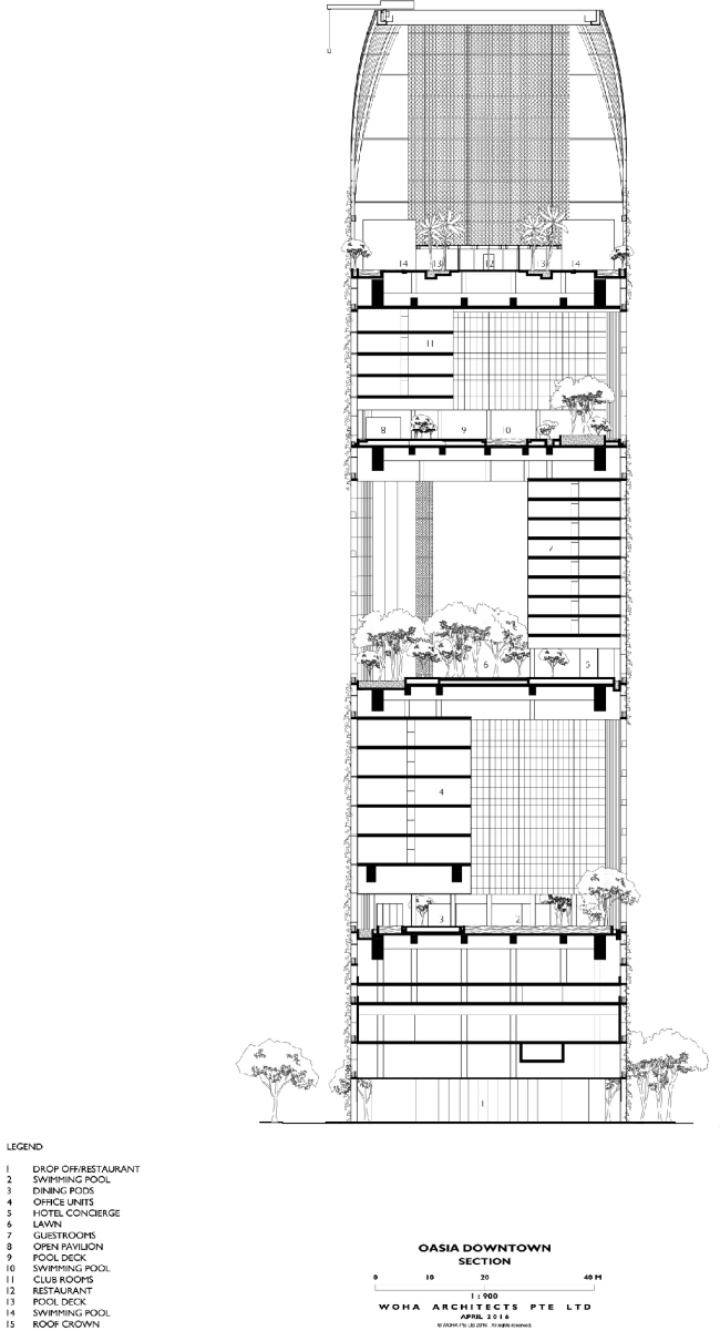
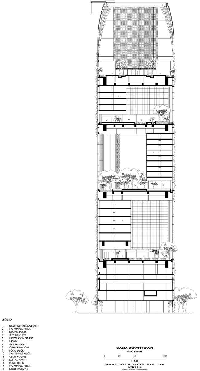
Башня Oasia Hotel Downtown. План, вертикальный разрез
Башня Oasia Hotel Downtown. План, вертикальный разрез
© WOHA