Размещено на портале Архи.ру (www.archi.ru)

29.12.2016

Сергей Чобан о выразительности кирпичных фасадов

Анна Сансиева
Мастерская:
АО «Фирма «КИРИЛЛ»

Конспект лекции Сергея Чобана, прочитанной в Германии на заводе Hagemeister. На примере собственных проектов и построек, а также рисунков архитектор демонстрирует образные возможности кирпичной облицовки.

Сергей Чобан на семинаре по клинкерному кирпичу на заводе Hagemeister. Фотография © speech.su
Сергей Чобан на семинаре по клинкерному кирпичу на заводе Hagemeister. Фотография © speech.su

На «клинкерном семинаре» компании по производству кирпича Hagemeister Сергей Чобан, глава российского бюро SPEECH и соруководитель немецкого nps tchoban voss, прочитал доклад, где на примере собственных проектов рассказал об особой роли этого материала в современной архитектуре. Доклад Сергея Чобана так и назывался – «Чувство материала».
Городские зарисовки Сергея Чобана © nps tchoban voss
Городские зарисовки Сергея Чобана © nps tchoban voss

В первой части доклада Сергей Чобан показал собственные рисунки с видами реально существующих исторических городов и архитектурными фантазиями. На их примере архитектор объяснил, как меняется представление о гармоничной городской среде – от соразмерных исторических объемов до ярко-контрастных сочетаний подчеркнуто современных форм. В основе формирования «лица» городской среды, по мнению архитектора, всегда лежат фасады и те материалы, из которых созданы их поверхности.
Городские зарисовки Сергея Чобана © nps tchoban voss
Городские зарисовки Сергея Чобана © nps tchoban voss
Городские зарисовки Сергея Чобана © nps tchoban voss
Городские зарисовки Сергея Чобана © nps tchoban voss
Городские зарисовки Сергея Чобана © nps tchoban voss
Городские зарисовки Сергея Чобана © nps tchoban voss
Городские зарисовки Сергея Чобана © nps tchoban voss
Городские зарисовки Сергея Чобана © nps tchoban voss
Городские зарисовки Сергея Чобана © nps tchoban voss
Городские зарисовки Сергея Чобана © nps tchoban voss
Городские зарисовки Сергея Чобана © nps tchoban voss
Городские зарисовки Сергея Чобана © nps tchoban voss
***

NHow Hotel
Гостиница nhow Hotel. Постройка, 2010. Фотография © Roland Halbe
Гостиница nhow Hotel. Постройка, 2010. Фотография © Roland Halbe

Говоря о практике, Сергей Чобан начал со своих построек в Берлине. Отель NHow, находящийся в районе Восточной гавани и обращённый главным фасадом в сторону реки, – пример сочетания самых разных фактур. Клинкерная облицовка из кирпичей разного размера в сочетании с окнами, разбросанными по фасаду с продуманной живописностью и – главное – серебристой консолью, нижняя поверхность которой облицована металлом, вместе создают вибрирующий образ, созвучный потоку речных волн. На фасадах отеля NHow смешаны четыре оттенка клинкерного кирпича.
Гостиница nhow Hotel. Постройка, 2010. Фотография © Roland Halbe
Гостиница nhow Hotel. Постройка, 2010. Фотография © Roland Halbe
Гостиница nhow Hotel. Постройка, 2010. Фотография © Roland Halbe
Гостиница nhow Hotel. Постройка, 2010. Фотография © Roland Halbe
Гостиница nhow Hotel. Постройка, 2010. Фотография © Roland Halbe
Гостиница nhow Hotel. Постройка, 2010. Фотография © Roland Halbe
Гостиница nhow Hotel. Постройка, 2010. Фотография © Roland Halbe
Гостиница nhow Hotel. Постройка, 2010. Фотография © Roland Halbe
Гостиница nhow Hotel. Постройка, 2010. Фотография © Roland Halbe
Гостиница nhow Hotel. Постройка, 2010. Фотография © Roland Halbe
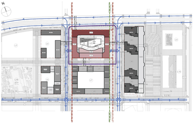
Гостиница nhow Hotel. Ситуационный план © nps tchoban voss
Гостиница nhow Hotel. Ситуационный план © nps tchoban voss
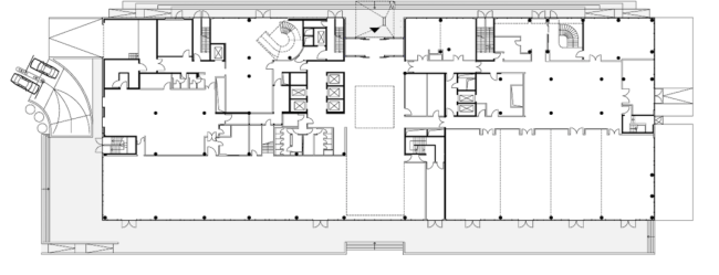
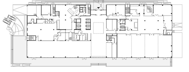
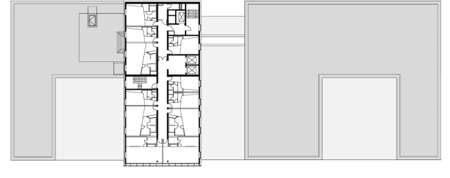
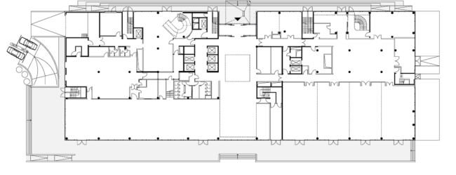
Гостиница nhow Hotel. План 1 этажа © nps tchoban voss
Гостиница nhow Hotel. План 1 этажа © nps tchoban voss
Гостиница nhow Hotel. План 6 этажа © nps tchoban voss
Гостиница nhow Hotel. План 6 этажа © nps tchoban voss
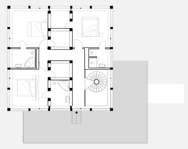
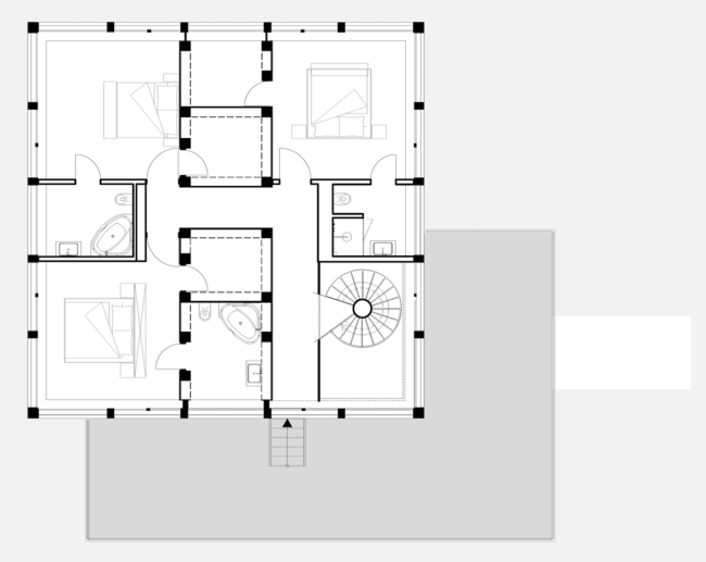
Гостиница nhow Hotel. План 10 этажа © nps tchoban voss
Гостиница nhow Hotel. План 10 этажа © nps tchoban voss
***

Hamburger Hof
Комплекс Hamburger Hof. Постройка, 2010. Фотография © Roland Halbe
Комплекс Hamburger Hof. Постройка, 2010. Фотография © Roland Halbe

Другое здание – комплекс Hamburger Hof в Берлине – пример совмещения реставрации исторического здания с новым строительством. Ансамбль формировался с начала XIX века и тогда в основном состоял из небольших частных предприятий и мастерских. Проект Сергея Чобана по реконструкции комплекса предлагал сохранить существующую функцию основных зданий, дополнив их до многофункционального центра с помощью общественно-развлекательных зон и жилых объектов.

Но самой сложной задачей проекта оказался поиск решения, позволившего снести как можно меньше, деликатно вписав новые постройки в исторический контекст. Облицовка фасадов реставрируемых корпусов клинкерным кирпичом помогла обновить их, сохранив историческую достоверность. В то же время красный кирпич холодного оттенка хорошо сочетается со светлыми листами современного металла и большими поверхностями стекла в новых корпусах. Особенно хорошо эта контрастная гармония заметна во внутренних двориках комплекса, ставших новым общественным пространством комплекса, наделенным в то же время ощущением «старого города».
Комплекс Hamburger Hof. Постройка, 2010. Фотография © Roland Halbe
Комплекс Hamburger Hof. Постройка, 2010. Фотография © Roland Halbe
Комплекс Hamburger Hof. Постройка, 2010. Фотография © Roland Halbe
Комплекс Hamburger Hof. Постройка, 2010. Фотография © Roland Halbe
Комплекс Hamburger Hof. Постройка, 2010. Фотография © Roland Halbe
Комплекс Hamburger Hof. Постройка, 2010. Фотография © Roland Halbe
Комплекс Hamburger Hof. Постройка, 2010. Фотография © Roland Halbe
Комплекс Hamburger Hof. Постройка, 2010. Фотография © Roland Halbe
Комплекс Hamburger Hof. Постройка, 2010. Фотография © Roland Halbe
Комплекс Hamburger Hof. Постройка, 2010. Фотография © Roland Halbe
Комплекс Hamburger Hof. Ситуационный план © nps tchoban voss
Комплекс Hamburger Hof. Ситуационный план © nps tchoban voss
***

Гостиницы Ibis и Amano
Отели Amano и Ibis у Главного вокзала в Берлине. Постройка, 2015. Фотография © Martin Tervoort
Отели Amano и Ibis у Главного вокзала в Берлине. Постройка, 2015. Фотография © Martin Tervoort

Комплекс расположен в районе Берлин-Митте у Главного вокзала и состоит из двух отелей, примыкающих друг к другу по сторонам трапециевидного двора. Строгая сетка фасадов продиктована соседством правительственных зданий на противоположном берегу реки, поэтому особое внимание Сергей Чобан уделил деталям. Кирпичная облицовка, сочетающая оттенки от светло-бежевого до тёмно-серого, оживляет фасады, подчеркивая подвижный ритм трёхслойных фасадов, где выступы и впадины, чередуясь в обрамлениях окон, создают игру светотени, способную заставить зрителя усомниться единообразии поверхности этих, на первый взгляд очень строгих, зданий.
Отели Amano и Ibis у Главного вокзала в Берлине. Постройка, 2015. Фотография © Martin Tervoort
Отели Amano и Ibis у Главного вокзала в Берлине. Постройка, 2015. Фотография © Martin Tervoort
Отели Amano и Ibis у Главного вокзала в Берлине. Постройка, 2015. Фотография © Martin Tervoort
Отели Amano и Ibis у Главного вокзала в Берлине. Постройка, 2015. Фотография © Martin Tervoort
Отели Amano и Ibis у Главного вокзала в Берлине. Постройка, 2015. Фотография © Martin Tervoort
Отели Amano и Ibis у Главного вокзала в Берлине. Постройка, 2015. Фотография © Martin Tervoort
Отели Amano и Ibis у Главного вокзала в Берлине. Постройка, 2015. Фотография © Martin Tervoort
Отели Amano и Ibis у Главного вокзала в Берлине. Постройка, 2015. Фотография © Martin Tervoort
Отели Amano и Ibis у Главного вокзала в Берлине. Постройка, 2015. Фотография © Martin Tervoort
Отели Amano и Ibis у Главного вокзала в Берлине. Постройка, 2015. Фотография © Martin Tervoort
Отели Amano и Ibis у Главного вокзала в Берлине. Постройка, 2015. Фотография © Martin Tervoort
Отели Amano и Ibis у Главного вокзала в Берлине. Постройка, 2015. Фотография © Martin Tervoort
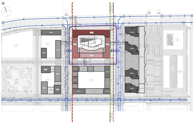
Отели Amano и Ibis у Главного вокзала в Берлине. Ситуационный план © nps tchoban voss
Отели Amano и Ibis у Главного вокзала в Берлине. Ситуационный план © nps tchoban voss
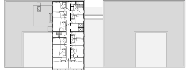
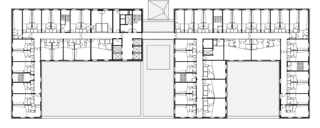
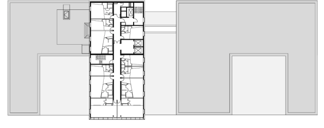
Отели Amano и Ibis у Главного вокзала в Берлине. План 1 этажа © nps tchoban voss
Отели Amano и Ibis у Главного вокзала в Берлине. План 1 этажа © nps tchoban voss
Отели Amano и Ibis у Главного вокзала в Берлине. План верхнего этажа © nps tchoban voss
Отели Amano и Ibis у Главного вокзала в Берлине. План верхнего этажа © nps tchoban voss
***

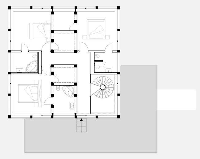
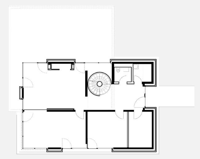
Дом под Потсдамом
Вилла под Потсдамом. Постройка, 2015. Фотография © Martin Tervoort
Вилла под Потсдамом. Постройка, 2015. Фотография © Martin Tervoort

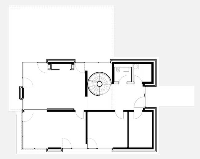
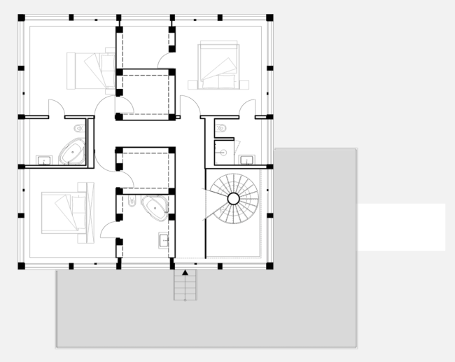
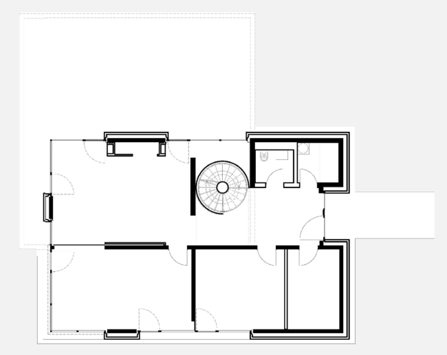
Последним в обзоре немецких построек Сергея Чобана стал частный дом под Потсдамом. Здесь nps tchoban voss снова обратились к теме контраста материалов. Дом состоит из двух простых параллелепипедов: нижний кирпичный объём служит постаментом для верхнего, облицованного светлым металлом, опоясанного сплошной лентой окон и главное – выдвинутого глубокой консолью ровно наполовину длины, заставляя зрителя усомниться в надёжности конструкции и, с другой стороны, восхититься её прочностью. На кровле нижнего объема появляется большая открытая терраса, консоль образует внушительный козырёк.
Вилла под Потсдамом. Постройка, 2015. Фотография © Martin Tervoort
Вилла под Потсдамом. Постройка, 2015. Фотография © Martin Tervoort
Вилла под Потсдамом. Постройка, 2015. Фотография © Martin Tervoort
Вилла под Потсдамом. Постройка, 2015. Фотография © Martin Tervoort

Части дома соединены белой спиралью лестницы, которая служит не только коммуникационной, но скульптурной осью светлого внутреннего пространства. Лестницу видно снаружи, её белизна оттеняет темную шершавую фактуру клинкера, оживлённую вкраплениями светло-бежевых «солнечных бликов».
Вилла под Потсдамом. Постройка, 2015. Фотография © Martin Tervoort
Вилла под Потсдамом. Постройка, 2015. Фотография © Martin Tervoort

Сергей Чобан упомянул, что этот дом – удачный пример развития темы: полностью современное здание кажется состоящим из исторического каменного низа и лёгкого современного верха.

Эффект контрастной гармонии необходим архитектуре современного города, – уверен докладчик. А клинкерный кирпич – наиболее удачный материал для достижения цели.
Вилла под Потсдамом. Постройка, 2015. Фотография © Martin Tervoort
Вилла под Потсдамом. Постройка, 2015. Фотография © Martin Tervoort
Вилла под Потсдамом. Постройка, 2015. Фотография © Martin Tervoort
Вилла под Потсдамом. Постройка, 2015. Фотография © Martin Tervoort
Вилла под Потсдамом. Ситуационный план © nps tchoban voss
Вилла под Потсдамом. Ситуационный план © nps tchoban voss
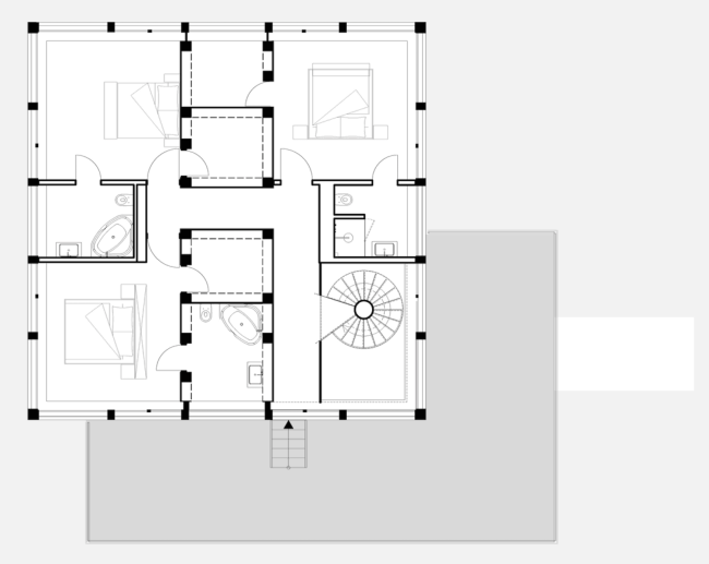
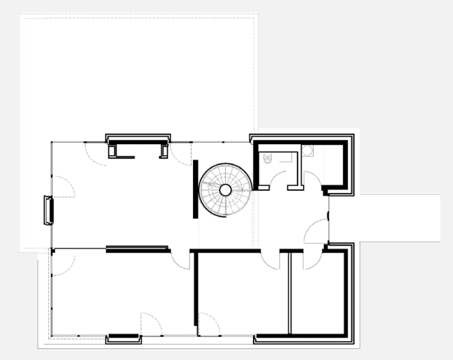
Вилла под Потсдамом. План 1 этажа © nps tchoban voss
Вилла под Потсдамом. План 1 этажа © nps tchoban voss
Вилла под Потсдамом. План 2 этажа © nps tchoban voss
Вилла под Потсдамом. План 2 этажа © nps tchoban voss
***

Во второй части лекции Сергей Чобан обратился к опыту использования кирпича в российском строительстве. Исторически кирпич изготавливался вручную вплоть до XIX века. Традиции и сложившиеся исторические особенности применения кирпича Сергей Чобан рассмотрел на примере ярославской церкви Иоанна Златоуста в Коровниках, построенной в середине XVII века. Насыщенный тёмный оттенок крупных кирпичей-большемеров контрастирует со светлым скрепляющим известковым раствором, что, впрочем, не нарушает цельности формы. Однако цветовые контрасты не были главным украшением фасадов, эту роль выполняли дробные архитектурные элементы, собранные из того же кирпича.
Церковь Иоанна Златоуста в Коровниках. Ярославль, середина XVII века. Фотография © nps tchoban voss
Церковь Иоанна Златоуста в Коровниках. Ярославль, середина XVII века. Фотография © nps tchoban voss
***

Западный порт
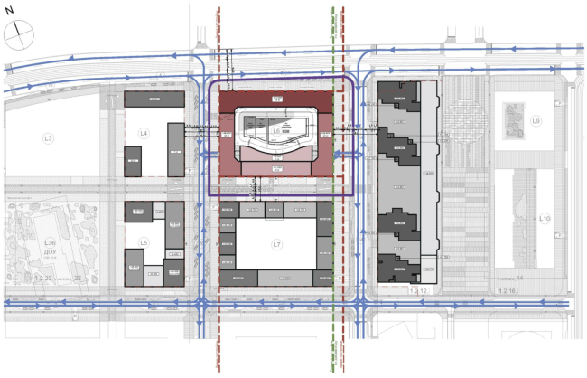
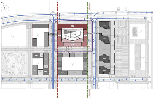
Жилой комплекс «Западный порт»
Жилой комплекс «Западный порт»
© SPEECH, ADM, ТПО «Резерв»

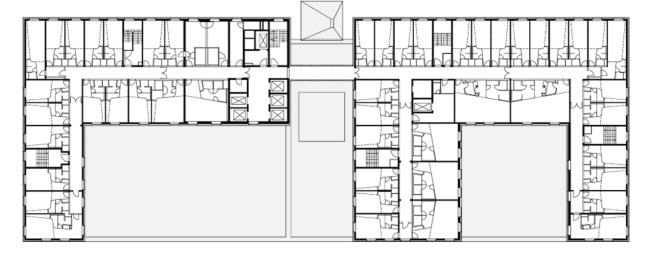
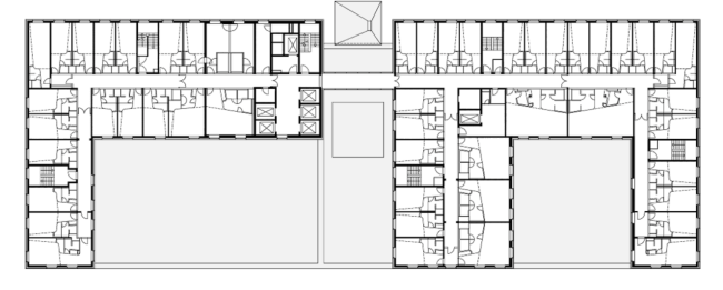
Изучив самобытность применения кирпичной облицовки на территории России, Сергей Чобан предлагает собственный взгляд на её использование в своих проектах. Первый – проект многофункционального комплекса «Западный порт» на Шелепихинской набережной в Москве. Это протяженная масштабная застройка у воды, состоящая из пяти разноэтажных кварталов. Над проектом работал консорциум трёх московских архитектурных бюро – SPEECH, ADM architects и ТПО Резерв. Поэтому после разработки единой архитектурной концепции, где каждый из пяти кварталов формируется из одинаковых прямоугольных в плане замкнутых дворов, каждая мастерская предложила собственное решение фасадов. Поскольку по форме все здания идентичны друг другу, и различаются лишь габаритами и этажностью, фасады должны были выполнять в проекте наиболее важные функции: придавать каждому корпусу индивидуальность, впрочем не спорящую с соседствующими постройками и служащую для целостного оформления набережной. И снова архитекторы пришли к выводу, что лучшим решением станет цветовой контраст: сочетание тёмного кирпича и светлого натурального камня. Различия оттенков как первого, так и второго материалов, вероятнее всего, будет достаточно для гармоничного оформления набережной единой вереницей разных фасадов.
Жилой комплекс «Западный порт»
Жилой комплекс «Западный порт»
© SPEECH, ADM, ТПО «Резерв»
Жилой комплекс «Западный порт»
Жилой комплекс «Западный порт»
© SPEECH, ADM, ТПО «Резерв»
Жилой комплекс «Западный порт»
Жилой комплекс «Западный порт»
© SPEECH, ADM, ТПО «Резерв»
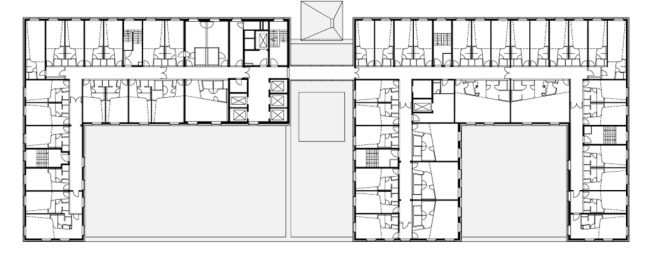
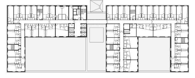
Жилой комплекс «Западный порт». Проект, 2015
Жилой комплекс «Западный порт». Проект, 2015
© SPEECH, ADM, ТПО «Резерв»
Жилой комплекс «Западный порт»
Жилой комплекс «Западный порт»
© SPEECH, ADM, ТПО «Резерв»
Жилой комплекс «Западный порт»
Жилой комплекс «Западный порт»
© SPEECH, ADM, ТПО «Резерв»
***

ЗИЛ
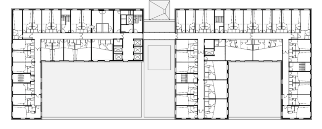
Жилой комплекс ЗИЛАРТ (лот №6)
Жилой комплекс ЗИЛАРТ (лот №6)
© SPEECH

Ещё один московский пример – выполненный бюро SPEECH проект жилого комплекса на территории реконструируемого ЗИЛа. Так как речь идёт об одном из самых грандиозных проектов Москвы последних лет, в котором участвуют практически все яркие архитекторы, то в проекте отдельного, хоть и большого, здания было необходимо учитывать все принципы общего плана, заложенные в концепции комплекса. Сергей Чобан обратился к эстетике советского конструктивизма, разделив кирпичные фасады зубчатыми пилонами «колоссального ордера», состоящими из трёх вертикалей треугольного сечения.
Жилой комплекс ЗИЛАРТ (лот №6)
Жилой комплекс ЗИЛАРТ (лот №6)
© SPEECH
Жилой комплекс ЗИЛАРТ (лот №6)
Жилой комплекс ЗИЛАРТ (лот №6)
© SPEECH
Жилой комплекс ЗИЛАРТ (лот №6)
Жилой комплекс ЗИЛАРТ (лот №6)
© SPEECH

В облицовке фасадов Сергей Чобан также планирует применить в облицовке клинкерный кирпич разных оттенков: от насыщенно-терракотового до светло-серого. И снова в проекте присутствуют смелые цветовые сочетания: достаточно тёмный кирпич основных поверхностей подчеркивает горизонтальную «балку» мезонина верхнего этажа – детали, которая всего напоминает о конструктивистском прошлом места.
Жилой комплекс ЗИЛАРТ (лот №6)
Жилой комплекс ЗИЛАРТ (лот №6)
© SPEECH
Жилой комплекс ЗИЛАРТ (лот №6)
Жилой комплекс ЗИЛАРТ (лот №6)
© SPEECH
Жилой комплекс ЗИЛАРТ (лот №6)
Жилой комплекс ЗИЛАРТ (лот №6)
© SPEECH
Жилой комплекс ЗИЛАРТ (лот №6)
Жилой комплекс ЗИЛАРТ (лот №6)
© SPEECH
***

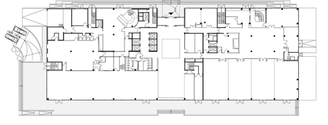
Садовые кварталы
Здание многофункционального жилого комплекса «Садовые кварталы» в Хамовниках
Здание многофункционального жилого комплекса «Садовые кварталы» в Хамовниках
© SPEECH

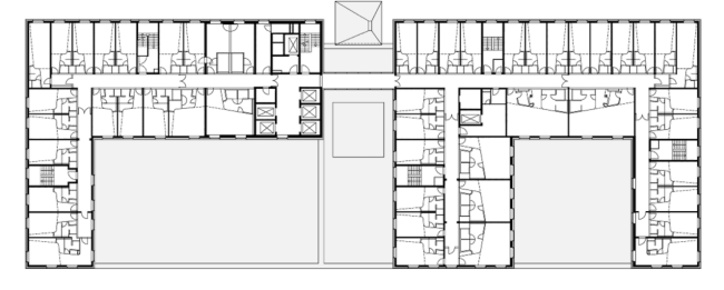
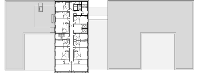
Последний проект, о котором рассказал Сергей Чобан в рамках доклада, входит в состав масштабного московского жилого комплекса – «Садовые кварталы», в основу которого также положен единый дизайн-код, разработанный Сергеем Скуратовым. Впрочем для этого объекта Сергей Чобан выбрал достаточно сложный план, учитывающий особенности участка, и ещё более запоминающийся фасад. Здание установлено на высоком остеклённом стилобате с общественными пространствами внутри. Выше фасады одиннадцатиэтажного дома представляют собой вибрирующую, словно гофрированную, поверхность. Кроме того, рёбра зигзага не прямые, а слегка волнистые.
Здание многофункционального жилого комплекса «Садовые кварталы» в Хамовниках
Здание многофункционального жилого комплекса «Садовые кварталы» в Хамовниках
© SPEECH

Для создания эффекта подвижной поверхности использован клинкерный кирпич Hagemeister Gent нескольких красных оттенков.
Здание многофункционального жилого комплекса «Садовые кварталы» в Хамовниках
Здание многофункционального жилого комплекса «Садовые кварталы» в Хамовниках
© SPEECH
Здание многофункционального жилого комплекса «Садовые кварталы» в Хамовниках
Здание многофункционального жилого комплекса «Садовые кварталы» в Хамовниках
© SPEECH
Здание многофункционального жилого комплекса «Садовые кварталы» в Хамовниках
Здание многофункционального жилого комплекса «Садовые кварталы» в Хамовниках
© SPEECH
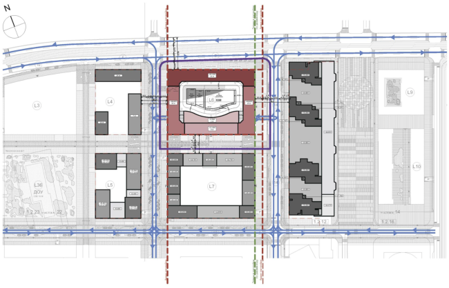
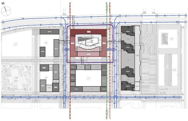
Здание многофункционального жилого комплекса «Садовые кварталы» в Хамовниках. Ситуационный план
Здание многофункционального жилого комплекса «Садовые кварталы» в Хамовниках. Ситуационный план
© SPEECH
Здание многофункционального жилого комплекса «Садовые кварталы» в Хамовниках. Генеральный план
Здание многофункционального жилого комплекса «Садовые кварталы» в Хамовниках. Генеральный план
© SPEECH

По словам Сергея Чобана, данный обзор демонстрирует роль кирпича в формировании городской среды: будь то реконструкция исторической застройки, когда новые здания должны перекликаться со «старожилами», или же совершенно новое строительство, рассчитанное на визуальный комфорт. Фасады – важнейшая часть городской среды, а кирпич – «вечный» фасадный материал, актуальный как для исторической, так и для современной архитектуры. 
***
 
Генеральный партнер заводов Hagemeister в России – компания АО «Фирма «КИРИЛЛ». Hagemeister – компания с 150-летней историей, уникальными технологическими возможностями производства кирпича и современными разработками. «Кирилл» – ведущий поставщик облицовочного и строительного кирпича, а также керамической черепицы, клинкера, клинкерной плитки.
В ассортименте компании представлено более 1000 различных по цвету и фактуре вариантов кирпича. Недавно компании Hagemeister и «Фирма «КИРИЛЛ» начали реализацию совместной программы «Региональных представительств».
Сергей Чобан (в центре) Кристиан Хагемайстер (справа) и европейские архитекторы на семинаре по клинкерному кирпичу на заводе Hagemeister. Фотография © speech.su
Сергей Чобан (в центре) Кристиан Хагемайстер (справа) и европейские архитекторы на семинаре по клинкерному кирпичу на заводе Hagemeister. Фотография © speech.su