Размещено на портале Архи.ру (www.archi.ru)

18.01.2017

Стеклофибробетон для авторских решений

Анна Сергеева
Объект:
Жилой комплекс ЗИЛАРТ (лот №5)
Адрес:
Россия, Москва. Автозаводская ул., вл. 23
Мастерская:
ОРТОСТ-ФАСАД

Жилой комплекс ЗИЛАРТ (лот №5) © Архитектурное бюро «Цимайло Ляшенко & Партнеры»
Жилой комплекс ЗИЛАРТ (лот №5) © Архитектурное бюро «Цимайло Ляшенко & Партнеры»

Жилой квартал «ЗИЛАРТ» – часть масштабного проекта реновации автозавода имени Лихачева. Почти 400 га бывшей промзоны планируется превратить в многофункциональный район «города в городе», благоустроенный «Полуостров ЗИЛ» со значительной культурной составляющей. Заказчик – компания «ЛСР-Недвижимость». Дизайн-код, разработанный бюро «Проект Меганом», определил высотность зданий, трассировку улиц, плотность застройки и функциональные зоны.

Одним из первых в составе первой очереди строят жилой дом по проекту архитектурного бюро «Цимайло Ляшенко и партнеры», расположенный на пятом участке «ЗИЛАРТа» площадью в 36 200 м2. Композиционно лот №5 состоит из четырёх корпусов высотой 6, 9 и 14 этажей, объединённых общим стилобатом. Разделение здания на отдельно стоящие блоки позволило обеспечить хорошие виды из угловых квартир, избежать неудобных планировок во внутренних углах зданий, а также соблюсти нормы инсоляции. Размещённые по периметру участка корпуса создают спокойное и безопасное пространство внутреннего двора, обособленное от движения транспорта, а, следовательно, защищенное от выхлопных газов и шума дороги. Такое решение воплощает популярное новшество городского планирования – «двор для людей», включающий обильное озеленение, игровые площадки и прогулочные зоны.
Жилой комплекс ЗИЛАРТ (лот №5) © Архитектурное бюро «Цимайло Ляшенко & Партнеры»
Жилой комплекс ЗИЛАРТ (лот №5) © Архитектурное бюро «Цимайло Ляшенко & Партнеры»
Жилой комплекс ЗИЛАРТ (лот №5) © Архитектурное бюро «Цимайло Ляшенко & Партнеры»
Жилой комплекс ЗИЛАРТ (лот №5) © Архитектурное бюро «Цимайло Ляшенко & Партнеры»
Жилой комплекс ЗИЛАРТ (лот №5) © Архитектурное бюро «Цимайло Ляшенко & Партнеры»
Жилой комплекс ЗИЛАРТ (лот №5) © Архитектурное бюро «Цимайло Ляшенко & Партнеры»
Жилой комплекс ЗИЛАРТ (лот №5) © Архитектурное бюро «Цимайло Ляшенко & Партнеры»
Жилой комплекс ЗИЛАРТ (лот №5) © Архитектурное бюро «Цимайло Ляшенко & Партнеры»

Лот №5, отмеченный в прошлом году премией архсовета за «лучший дом повышенной комфортности», выделяется непривычно-крупным орнаментом фасадов: где-то окна объединены в скруглённые вертикальные строчки, похожие на крупные капли и на элементы дизайна шестидесятых; где-то скругления сменяют текстильного вида ромбы, совершенно изменяющие привычное представление о ровных строчках окон, не выходя в то же время из рамок респектабельной терракотово-коричневой гаммы, разбавленной яркими белыми акцентами. Этот вариант кирпичной архитектуры вовсе не ассоциирован со «сталинским ар-деко», скорее он вызывает в памяти романтические образы идеализации передовой промышленности и творческих поисков периода оттепели. Оригинальность фасадного решения будет остро ощущаться даже внутри квартир: чего стоят хотя бы два арочных окна – одно обычное, другое залихватски перевёрнутое.
Жилой комплекс ЗИЛАРТ (лот №5) © Архитектурное бюро «Цимайло Ляшенко & Партнеры»
Жилой комплекс ЗИЛАРТ (лот №5) © Архитектурное бюро «Цимайло Ляшенко & Партнеры»
Жилой комплекс ЗИЛАРТ (лот №5) © Архитектурное бюро «Цимайло Ляшенко & Партнеры»
Жилой комплекс ЗИЛАРТ (лот №5) © Архитектурное бюро «Цимайло Ляшенко & Партнеры»
Жилой комплекс ЗИЛАРТ (лот №5) © Архитектурное бюро «Цимайло Ляшенко & Партнеры»
Жилой комплекс ЗИЛАРТ (лот №5) © Архитектурное бюро «Цимайло Ляшенко & Партнеры»

Высокую планку, заданную спецификой эстетического решения, одновременно традиционного, терракотового, и смело-современного, подхватили специалисты компании «ОРТОСТ-ФАСАД», предложившие изготовить панели из стеклофибробетона с интегрированным срезом кирпича.. Такой вариант дешевле кирпичной облицовки, и в то же время превосходит его по эксплуатационным характеристикам: панели мало весят, они прочны, долговечны и не подвержены коррозии. Функциональность стеклофибробетона дополняется его исключительной пластичностью, позволяющей изготовить конструкции любой формы.

Метод пневмонабрызга – нанесения на основу смеси стекловолокна, цемента и песка с помощью пневмопистолета – позволяет дисперсно армировать материал, равномерно распределяя волокна стекла в массе смеси, что открывает возможности для работы с развитым, высоким, но прочным рельефом, сложной фактурой и геометрией.

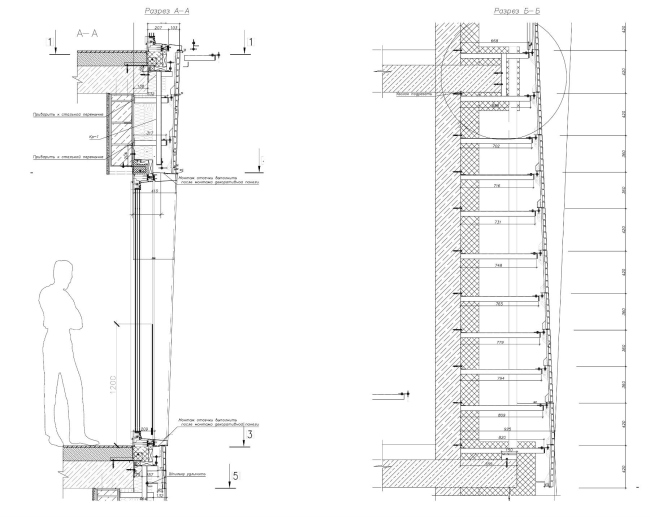
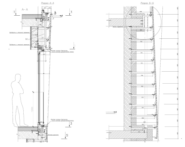
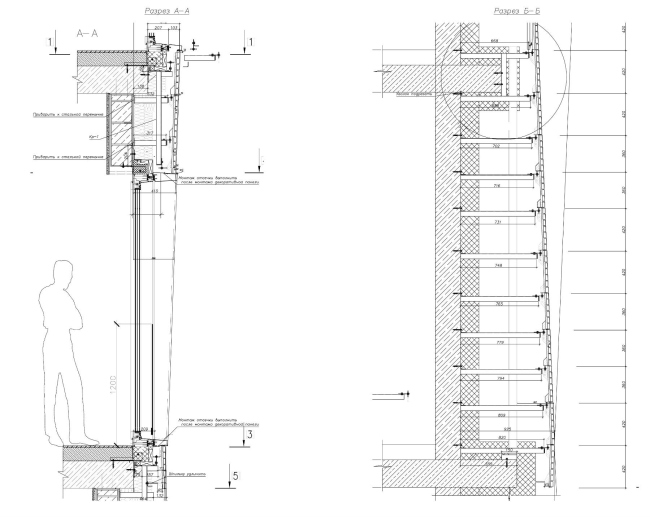
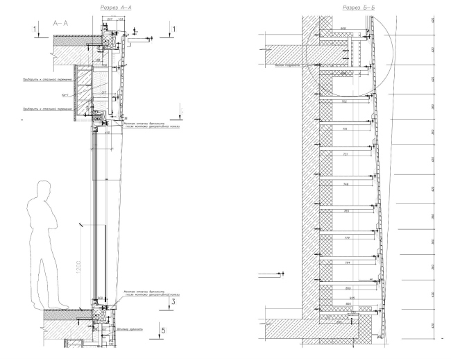
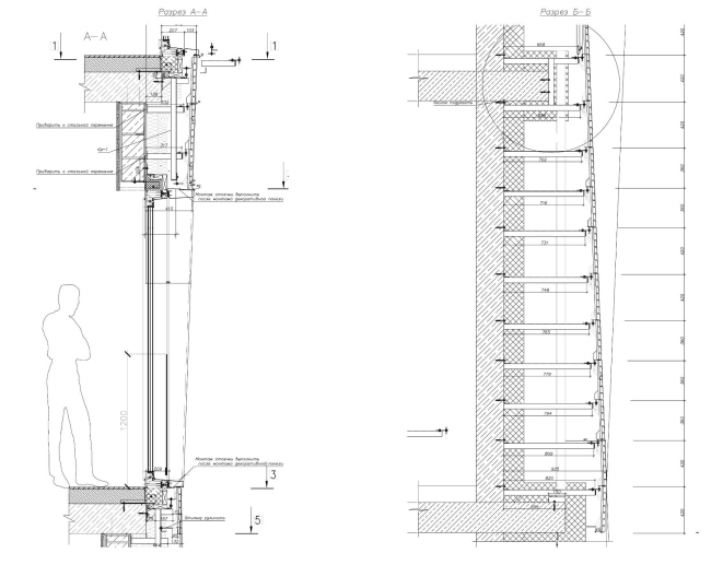
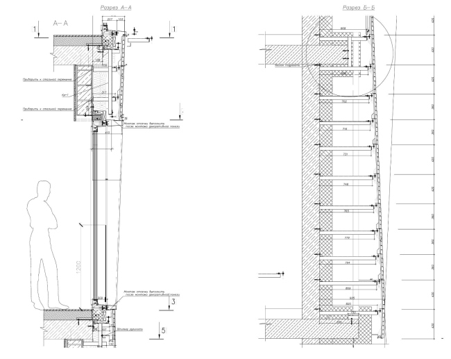
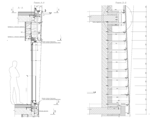
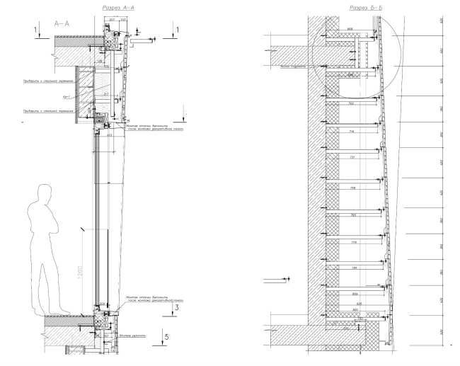
Принцип производства панелей для лота №5 оказался таким же, как и для «Садовых кварталов» Сергея Скуратова – срез кирпича интегрирован в тонкую и легкую панель из стеклофибробетона, которая крепится к стене на металлическом каркасе-подсистеме.
Монтаж навесного фасада на примере «Садовых кварталов»
Монтаж навесного фасада на примере «Садовых кварталов»
 Раскладка панелей на примере «Садовых кварталов»
Раскладка панелей на примере «Садовых кварталов»

Жилая застройка «полуострова ЗИЛ» объединена общим дизайн-кодом, что не мешает каждому зданию быть уникальным и узнаваемым. Мотивы орнаментальной геометрии на фасадах лота №5 Александра Цимайло и Николая Ляшенко, яркая ржавленная сталь кортен – у Сергея Скуратова, керамические панели, фиксирующие «память места», с изображением выпускавшихся на ЗИЛе автомобилей на фасадах – у бюро «Мезонпроект». Столь разная по характеру, но в то же время единая архитектура и создает гармоничное городское пространство: пространство инноваций, пространство притяжения.