Размещено на портале Архи.ру (www.archi.ru)

12.12.2016

«Вежливый дом» из Норвегии

Объект:
«Вежливый дом»
Адрес:
Норвегия, Тронхейм.
Мастерская:
EQUITONE
JVA - Jarmund/Vigsnæs


Высочайшее качество исполнения фасадных панелей ЭКВИТОН позволяет воплотить самые сложные и оригинальные архитектурные решения. Прочный и экологичный, долговечный и морозостойкий современный строительный материал из фиброцемента на фасадах частного дома в Тронхейме в центральной Норвегии.

«Вежливый дом». Фотография ©  Lars Evanger. Предоставлено EQUITONE
«Вежливый дом». Фотография © Lars Evanger. Предоставлено EQUITONE

Тронхейм – спокойный и уютный город, хотя по численности населения он третий в стране. Он расположен в устье реки Нидельвы, впадающей в живописный Тронхеймс-фьорд.

В жилом районе Хавстейн архитекторы бюро JVA спроектировали компактный жилой дом на одну семью с панорамным видом на фьорд и город.
 
«Вежливый дом». Фотография ©  Lars Evanger. Предоставлено EQUITONE
«Вежливый дом». Фотография © Lars Evanger. Предоставлено EQUITONE

Окруженный частной застройкой различной плотности и стилистики, дом выделяется своей необычной – лаконичной и абстрактной – архитектурой.

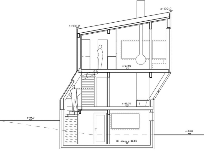
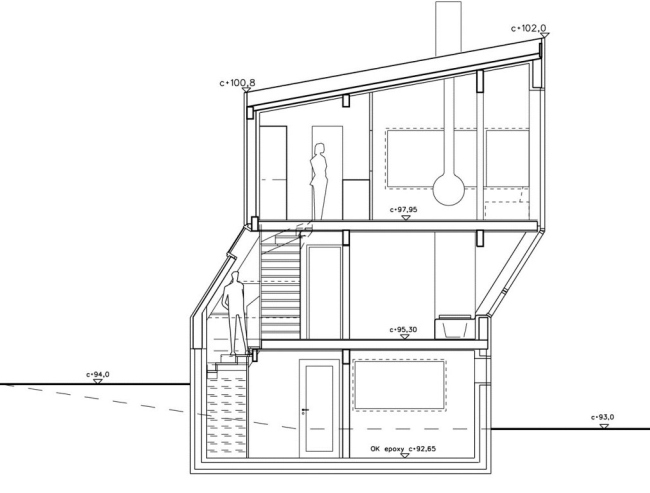
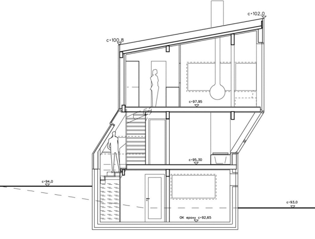
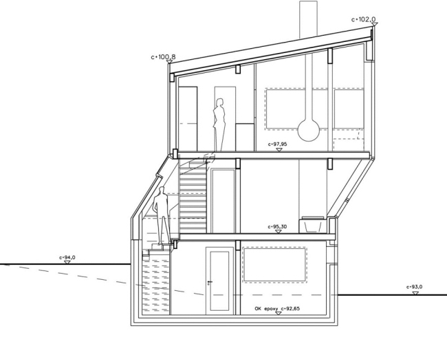
Строго регламентированное минимальное расстояние от строения до проходящей по краю участка дороги продиктовало появление значительного сдвига в геометрии фасада. Другим ограничением, также оказавшим влияние на форму, явилось сохранение обзора для соседей, живущего выше по склону холма.
«Вежливый дом». Фотография ©  Lars Evanger. Предоставлено EQUITONE
«Вежливый дом». Фотография © Lars Evanger. Предоставлено EQUITONE

Эти два фактора – дорога и соседи – задали «Вежливому дому» его характерный внешний вид и так определили его название.

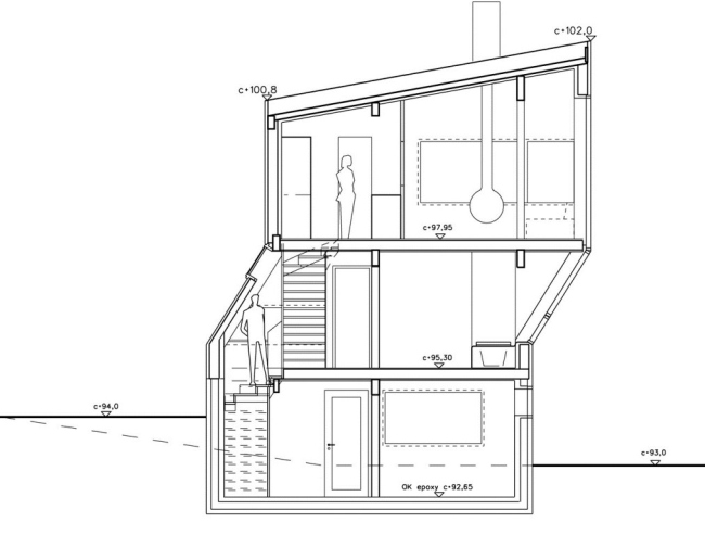
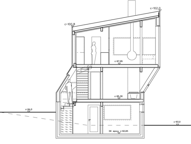
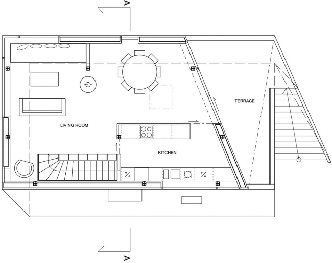
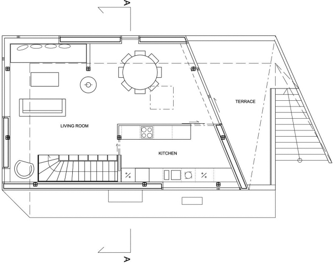
Дом, возведенный на узком участке земли, имеет возможность развития только по вертикали. Но вертикальная форма помогает создать великолепный обзор из гостиной на север, а высоко поднятая терраса создает комфортное пространство, открытое на юг.
«Вежливый дом». Фотография ©  Lars Evanger. Предоставлено EQUITONE
«Вежливый дом». Фотография © Lars Evanger. Предоставлено EQUITONE

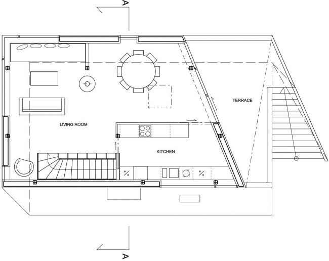
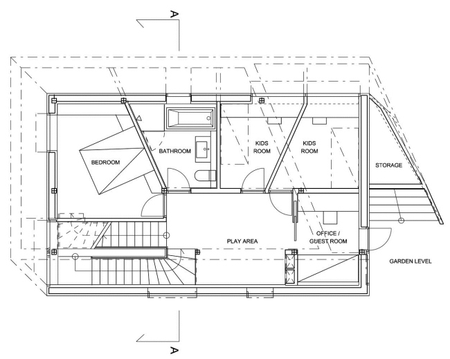
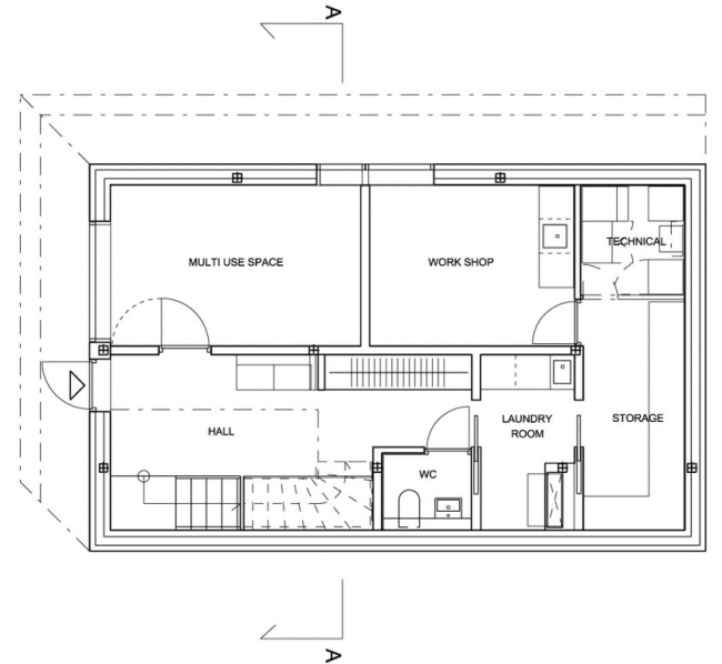
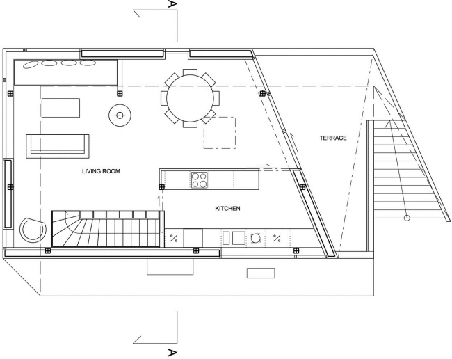
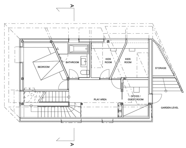
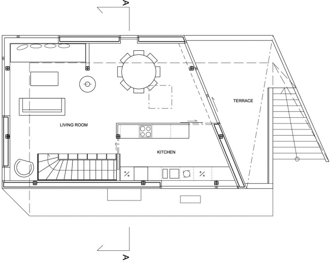
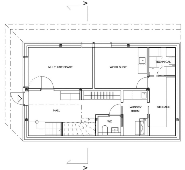
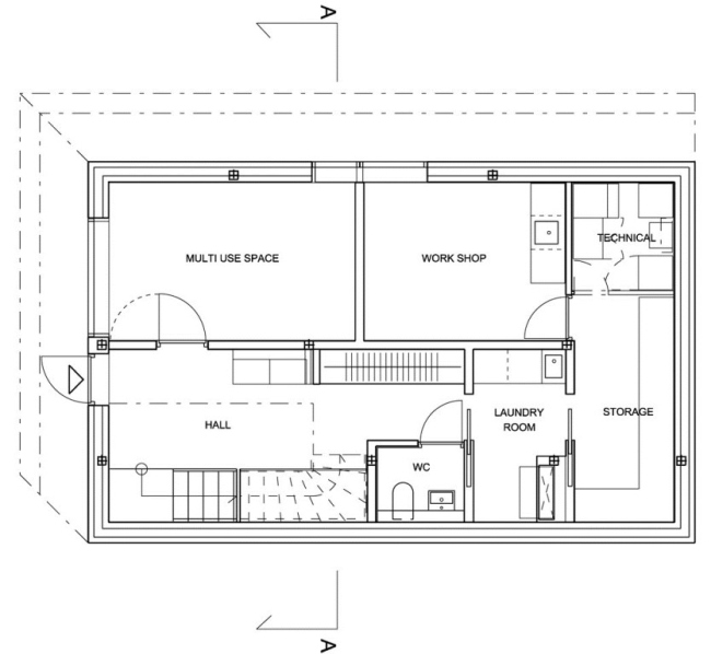
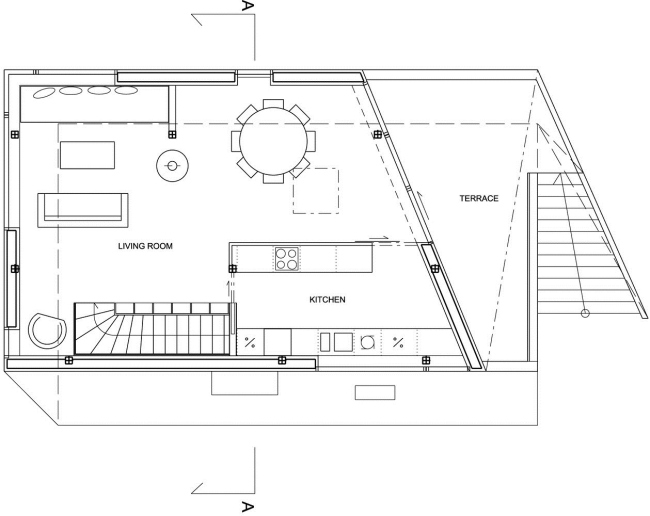
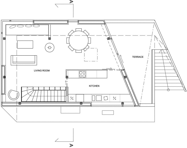
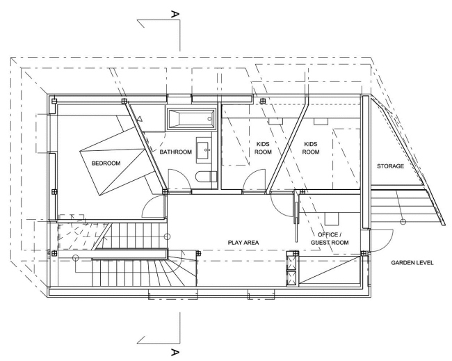
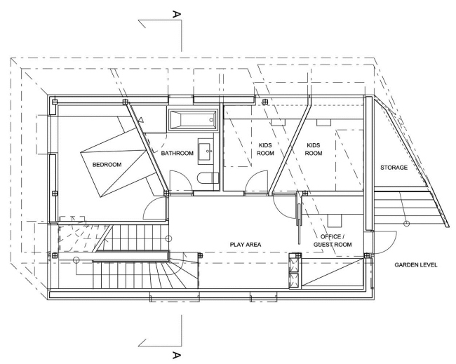
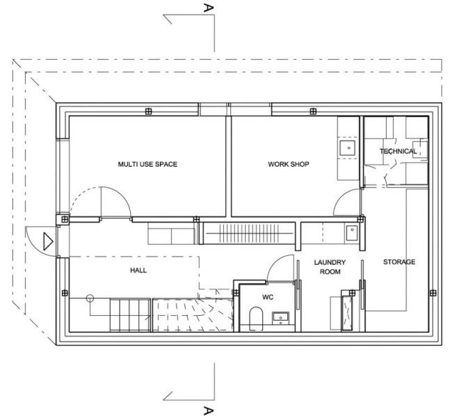
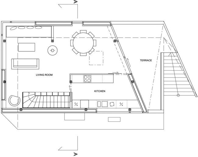
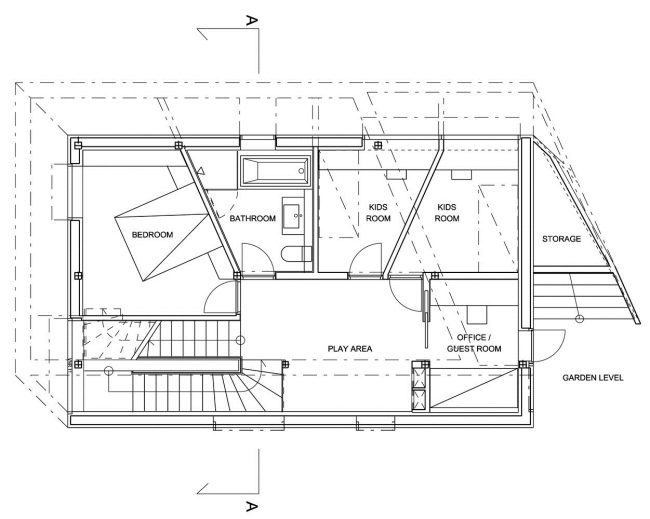
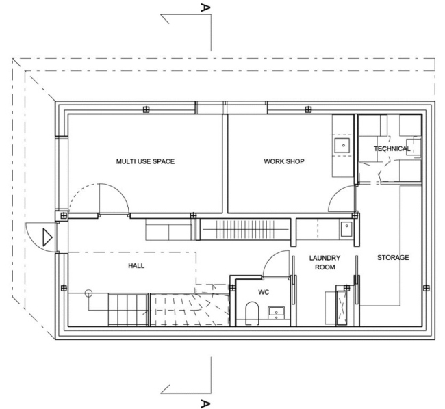
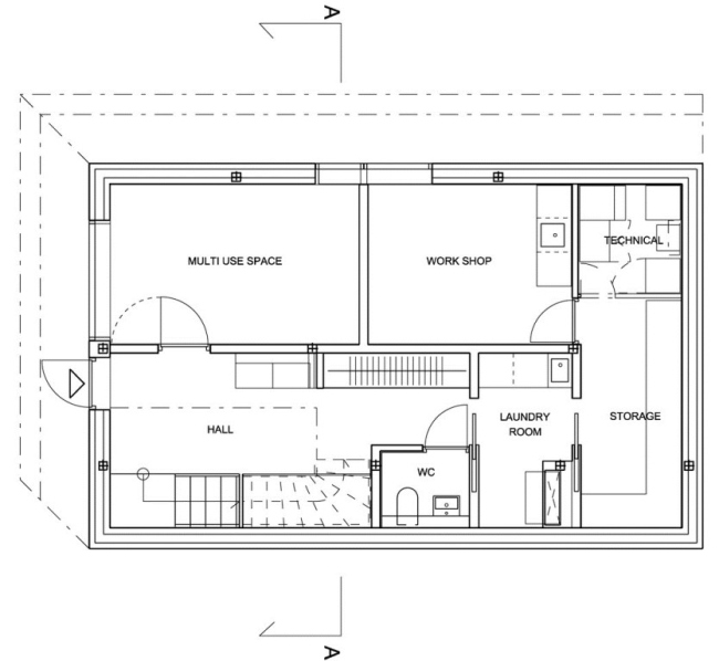
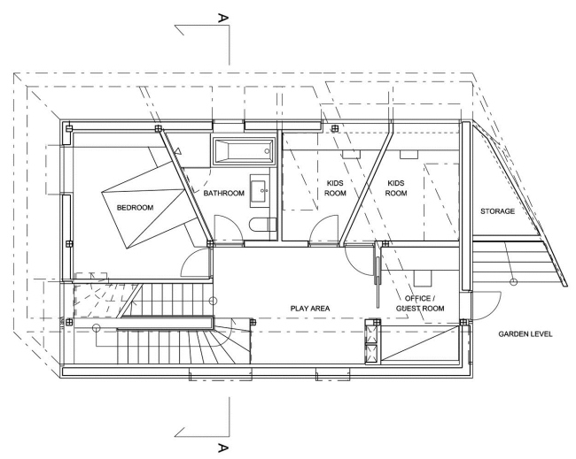
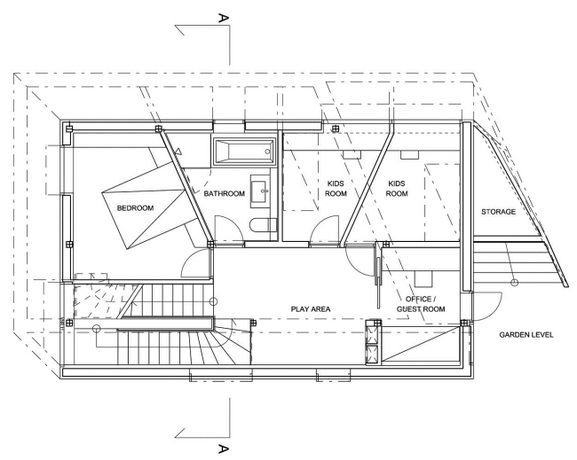
Сдвиг верхнего уровня дома предполагает необычное внутреннее устройство. Наклонные стены и узкие пространства задают сложную задачу размещения необходимого набора помещений в очень компактном объеме. Архитекторы создают действительно интересную планировку, сообщая всем помещениям четкие функции и сочетая игровую зону – с холлом, кабинет – с гостевой спальней, а гостиную – с кухней.
«Вежливый дом». Фотография ©  Lars Evanger. Предоставлено EQUITONE
«Вежливый дом». Фотография © Lars Evanger. Предоставлено EQUITONE

Отделка потолка и стен березовой фанерой, а также светлые наливные полы придают интерьеру дома теплую и уютную ноту.
«Вежливый дом». Фотография ©  Lars Evanger. Предоставлено EQUITONE
«Вежливый дом». Фотография © Lars Evanger. Предоставлено EQUITONE
«Вежливый дом». Фотография ©  Lars Evanger. Предоставлено EQUITONE
«Вежливый дом». Фотография © Lars Evanger. Предоставлено EQUITONE
«Вежливый дом». Фотография ©  Lars Evanger. Предоставлено EQUITONE
«Вежливый дом». Фотография © Lars Evanger. Предоставлено EQUITONE

В целом дом своей лаконичностью внутри и снаружи напоминает большую вазу, облицованную белоснежными фиброцементными фасадными панелями EQUITONE [tectiva].
«Вежливый дом». Фотография ©  Lars Evanger. Предоставлено EQUITONE
«Вежливый дом». Фотография © Lars Evanger. Предоставлено EQUITONE
 материал предоставлен компанией Eternit
«Вежливый дом» ©  JVA. Предоставлено EQUITONE
«Вежливый дом» © JVA. Предоставлено EQUITONE
«Вежливый дом» ©  JVA. Предоставлено EQUITONE
«Вежливый дом» © JVA. Предоставлено EQUITONE
«Вежливый дом» ©  JVA. Предоставлено EQUITONE
«Вежливый дом» © JVA. Предоставлено EQUITONE
«Вежливый дом»  ©  JVA. Предоставлено EQUITONE
«Вежливый дом» © JVA. Предоставлено EQUITONE
«Вежливый дом» ©  JVA. Предоставлено EQUITONE
«Вежливый дом» © JVA. Предоставлено EQUITONE
«Вежливый дом» © JVA. Предоставлено EQUITONE
«Вежливый дом» © JVA. Предоставлено EQUITONE
«Вежливый дом»  ©  JVA. Предоставлено EQUITONE
«Вежливый дом» © JVA. Предоставлено EQUITONE
«Вежливый дом»  ©  JVA. Предоставлено EQUITONE
«Вежливый дом» © JVA. Предоставлено EQUITONE