Размещено на портале Архи.ру (www.archi.ru)

15.03.2017

Многосоставный

Антонина Плахина
Объект:
Административно-жилое здание на Малой Трубецкой улице
Адрес:
Россия, Москва. ул. Трубецкая, вл. 28, стр. 1, 2, 3; ул. Ефремова, вл. 10, стр. 2
Архитектор:
Илья Машков
Александра Кузьмина
Мастерская:
Мезонпроект
Авторский коллектив:
Архитекторы: Машков И.К., Колпиков А.В., Кузьмина А.А., Возвышаев Н.А.

Дом с балконами, террасами, городскими виллами на крыше и галереей в первом этаже.

Административно-жилое здание на Трубецкой улице. Проект, 2015 © Мезонпроект
Административно-жилое здание на Трубецкой улице. Проект, 2015 © Мезонпроект

Проект был разработан для закрытого конкурса, проведенного заказчиком в 2015 году. Участок – небольшой, 0,371 га; он пеналом углубляется от Малой Трубецкой улицы к границе «Садовых кварталов». Cевернее, слева от участка, расположен дом с волнообразными фасадами, построенный в 2013 Сергеем Ткаченко; справа здание, спроектированное Алексеем Воронцовым, сейчас в нём офис «Уралсиба». Напротив парк усадьбы Трубецких, который по-прежнему носит имя революционера (не поэта!) Мандельштама, но уже лет пятнадцать как служит для улучшения имиджа капиталистической недвижимости – Хамовники, как известно, район дорогой. Соответственно и дом проектировался клубный: 2 корпуса, 45 квартир, 2 яруса подземной парковки на 80 мест. Корпус на линии улицы должен был быть 6-этажным, дворовый – 10-этажным.
Административно-жилое здание на Трубецкой улице. Ситуация. Проект, 2015 © Мезонпроект
Административно-жилое здание на Трубецкой улице. Ситуация. Проект, 2015 © Мезонпроект

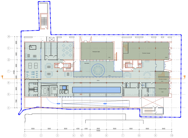
Корпуса объединены стилобатом, который занимает собой почти весь участок. Причём со стороны улицы, в основании первого корпуса, стилобат двухэтажный, и оба яруса архитекторы предлагают занять магазинами, чьи стеклянные витрины расчерчены пилонадой рёбер светлого камня и разделены посередине глубоким раструбом портала, ведущего в фитнес-центр.
Административно-жилое здание на Трубецкой улице. Входная зона. Проект, 2015 © Мезонпроект
Административно-жилое здание на Трубецкой улице. Входная зона. Проект, 2015 © Мезонпроект

Выше светлых, по вечерам – светящихся, витрин поднимаются шесть этажей квартир: лаконичный тёмно-коричневый объём с ярусами крупных, глубоко – на 2 метра – вынесенных вперёд балконов. Вертикальная полоса посередине – ряд застекленных лоджий. В этом доме множество балконов и лоджий, им отданы западные и восточные фасады обоих корпусов, отчего проект приобретает несколько даже курортные черты, рассчитанные на соседство парка.
Административно-жилое здание на Трубецкой улице. Проект, 2015 © Мезонпроект
Административно-жилое здание на Трубецкой улице. Проект, 2015 © Мезонпроект

Vis-à-vis северо-западного фасада – определённо парк, его балконы и лоджии рассчитаны на то, чтобы любоваться закатом над прудом и парком усадьбы Трубецких.
Административно-жилое здание на Трубецкой улице. Проект, 2015 © Мезонпроект
Административно-жилое здание на Трубецкой улице. Проект, 2015 © Мезонпроект

Первый корпус получился выше намеченных в ТЗ шести этажей, строго говоря, этажей тут девять и это не считая двух ярусов подземной парковки. Пятый жилой (а считая со стилобатом седьмой) этаж углублён, снабжен панорамным окном на всю ширину и обведён сверху широким козырьком-карнизом. В горизонтальную ленту врезана консоль-«телевизор» квартиры шестого этажа, установленной на кровле с отступом от краёв и окруженной открытыми террасами. К ней больше подходит определение городской виллы. Ещё одна вилла, 170 м2, тоже с террасой, вырастает ещё выше, образуя седьмой жилой ярус. И глубже: её почти не видно с улицы.
Административно-жилое здание на Трубецкой улице. Пентхаус на крыше. Проект, 2015 © Мезонпроект
Административно-жилое здание на Трубецкой улице. Пентхаус на крыше. Проект, 2015 © Мезонпроект
Административно-жилое здание на Трубецкой улице. Пентхаус на крыше. Проект, 2015 © Мезонпроект
Административно-жилое здание на Трубецкой улице. Пентхаус на крыше. Проект, 2015 © Мезонпроект

Второй корпус, отодвинутый к дальнему краю участка, наследует от первого и террасно-ступенчатый верх и цветовую гамму, обилие балконов и стекла. Но его пластика сложнее и активнее – соседство «Садовых кварталов» провоцирует на эксперименты и объём становится похож на страницы приоткрытой книги. Диагональное движение подхватывают и усиливают три верхних этажа – «голова» второго корпуса, как будто бы повернутая под углом, напоминает городские виллы в верхней части первого корпуса. Но устроена сложнее: здесь внутри шесть квартир, из них две двухэтажные.
Административно-жилое здание на Трубецкой улице. Проект, 2015 © Мезонпроект
Административно-жилое здание на Трубецкой улице. Проект, 2015 © Мезонпроект
Административно-жилое здание на Трубецкой улице. Проект, 2015 © Мезонпроект
Административно-жилое здание на Трубецкой улице. Проект, 2015 © Мезонпроект
Административно-жилое здание на Трубецкой улице. Пентхаус на крыше. Проект, 2015 © Мезонпроект
Административно-жилое здание на Трубецкой улице. Пентхаус на крыше. Проект, 2015 © Мезонпроект

Надо сказать, что объемы пентхаусов на кровлях обоих корпусов – отдельная тема проекта. Светлые фасады, панорамные ленточные окна и обилие террас роднят их с классикой модернистских загородных домов, «приземлившихся» на крыше дома. Они формируют собственный террасный ландшафт и среду. На них было бы любопытно смотреть сверху из соседних домов, обнаруживая сходство то ли на кубистическими, то ли с супрематическими композициями. Только оранжевые, как жилетка строителя, объемы лестнично-лифтовых блоков «сшивают» между собой темно-коричневую середину корпусов и белые объёмы их верха.
Административно-жилое здание на Трубецкой улице. Разрез. Проект, 2015 © Мезонпроект
Административно-жилое здание на Трубецкой улице. Разрез. Проект, 2015 © Мезонпроект

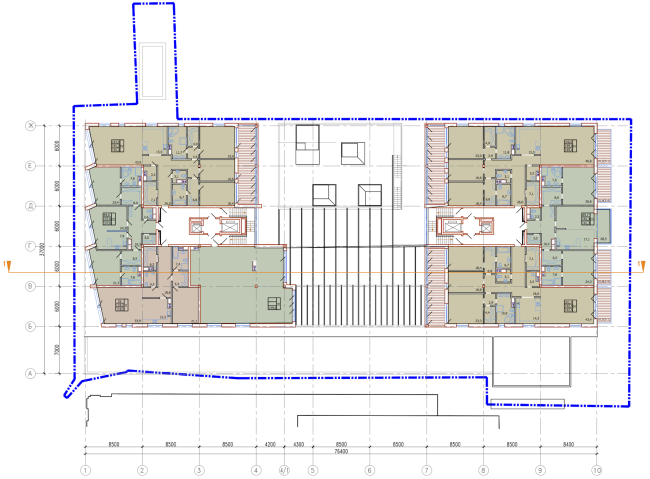
Квартирография, предложенная архитекторами «Мезонпроект», соответствует статусу клубного дома. Двухкомнатные квартиры – 118-130 м2 – есть только во втором корпусе. Преобладают четырех- пятикомнатные квартиры площадью 200-250 м2.

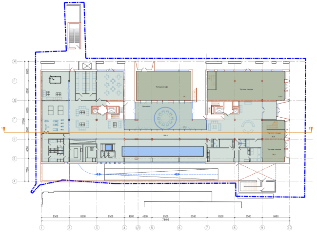
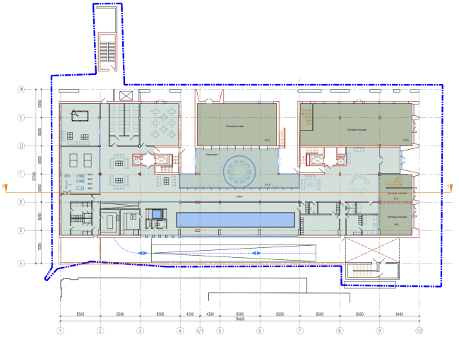
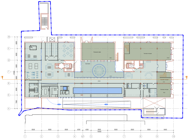
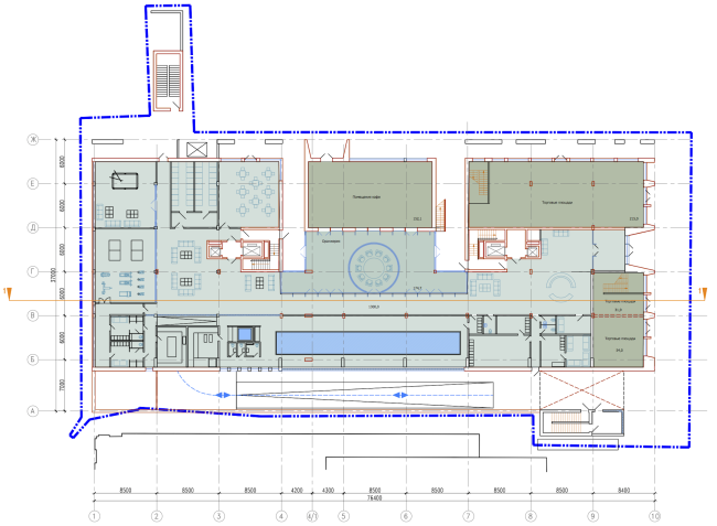
Клубный статус дома требовал и тщательно спроектированных общественных зон. Главную роль в их составе играет фитнес-зал с бассейном, вытянутым вдоль южной стены в первом ярусе стилобата и освещенным зубчатой кровлей шедовых фонарей. Похожая кровля освещает оранжерею в центральной части стилобата, а вот крыша кафе, расположенного севернее – эксплуатируемая, на ней архитекторы запланировали миниатюрный сквер для жильцов дома, современный вариант внутреннего двора.
Административно-жилое здание на Трубецкой улице. Проект, 2015 © Мезонпроект
Административно-жилое здание на Трубецкой улице. Проект, 2015 © Мезонпроект

Объём кафе отделён от жилых корпусов глубокими проходами, ведущими к лестнично-лифтовым блокам, отчего с северной стороны, со стороны дома Алексея Воронцова, трехчастная композиция дома особенно очевидна. Северный фасад архитекторы максимально отодвинули от соседнего жилого дома, проведя вдоль него небольшую пешеходную улицу к «Садовым кварталам». Здесь в первом этаже появляется «римская» пешеходная галерея: вначале, со стороны Малой Трубецкой, она идёт вдоль витрины магазина, подводя покупателей к одному из входов. Затем прерывается порталом кафе, продолжаясь в основании второго корпуса.
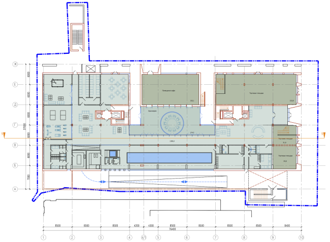
Административно-жилое здание на Трубецкой улице. Общественные зоны с бассейном. Проект, 2015 © Мезонпроект
Административно-жилое здание на Трубецкой улице. Общественные зоны с бассейном. Проект, 2015 © Мезонпроект
Административно-жилое здание на Трубецкой улице. Проект, 2015 © Мезонпроект
Административно-жилое здание на Трубецкой улице. Проект, 2015 © Мезонпроект
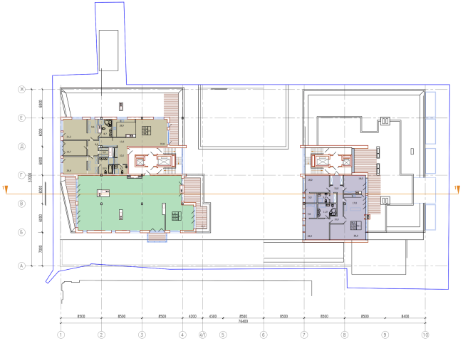
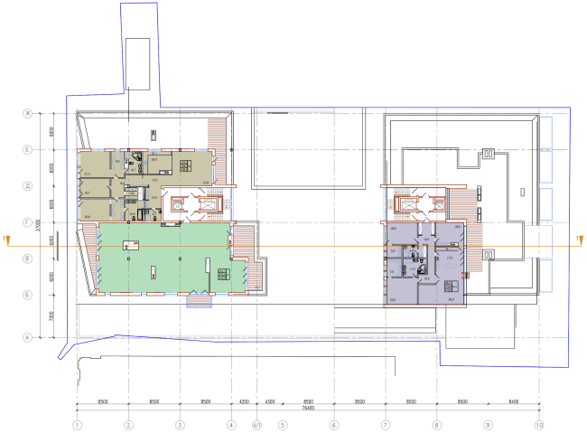
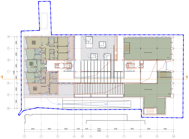
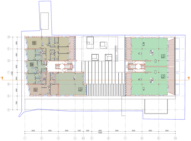
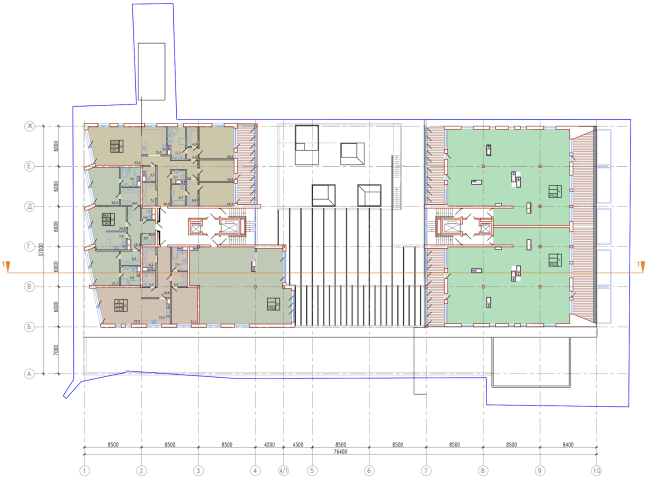
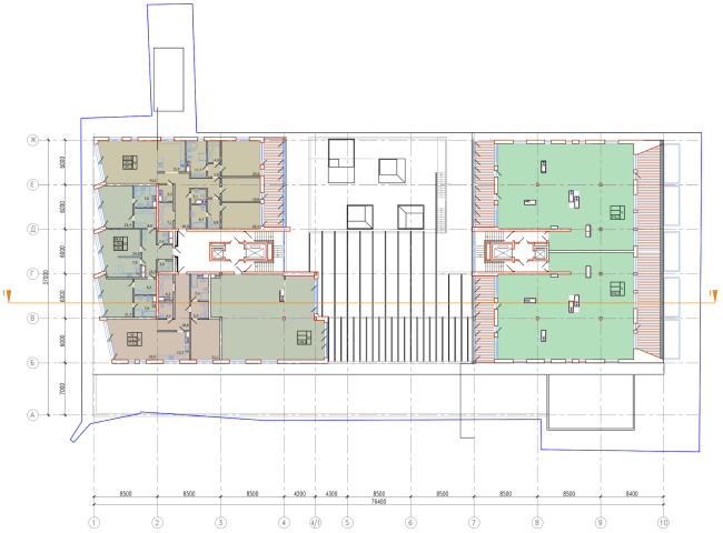
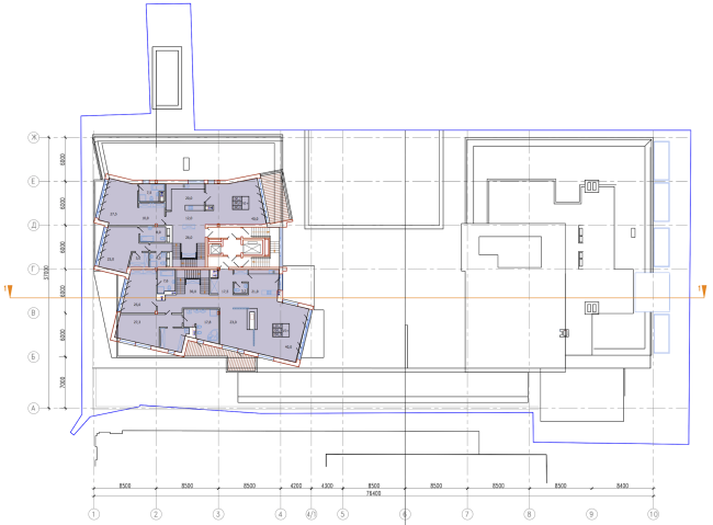
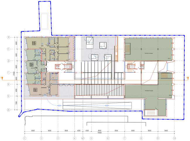
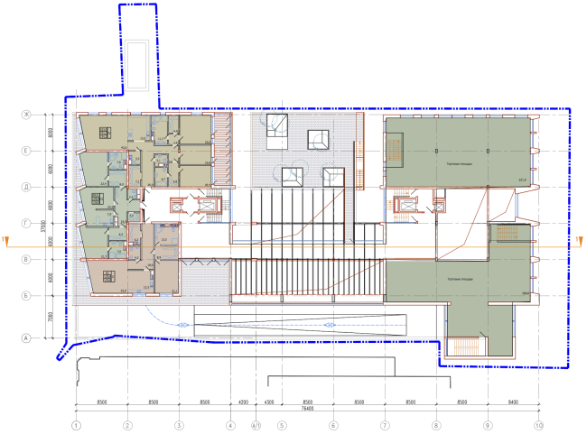
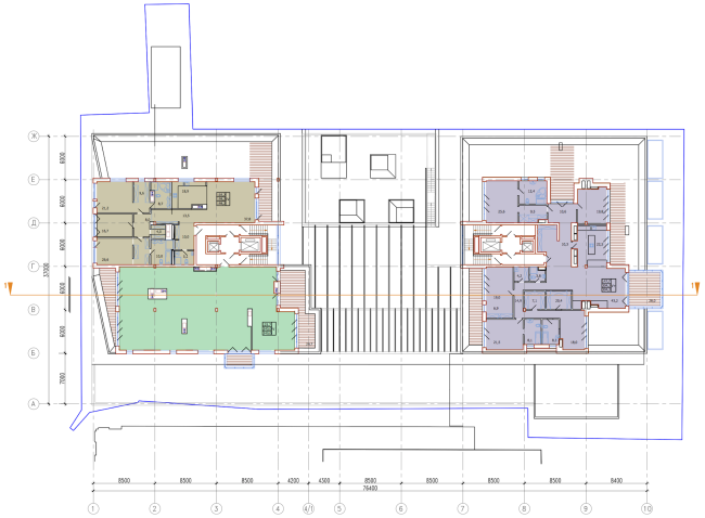
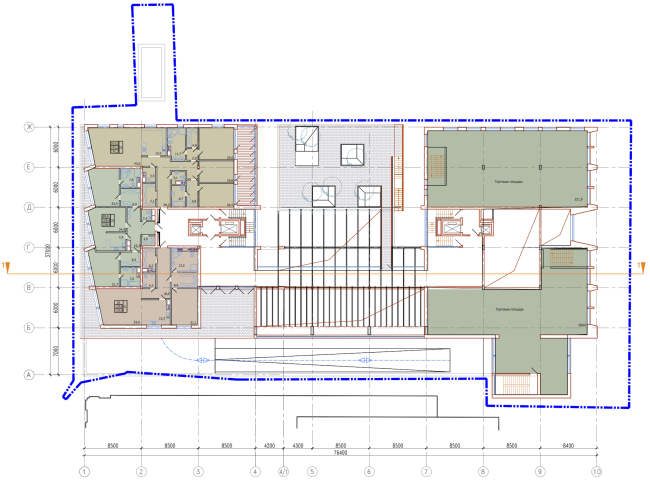
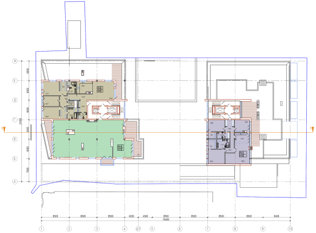
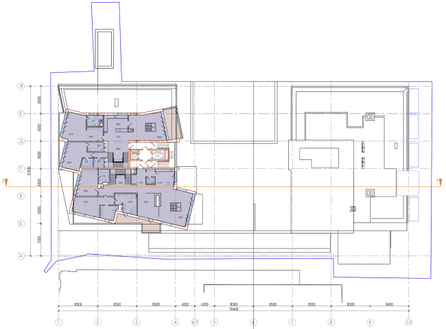
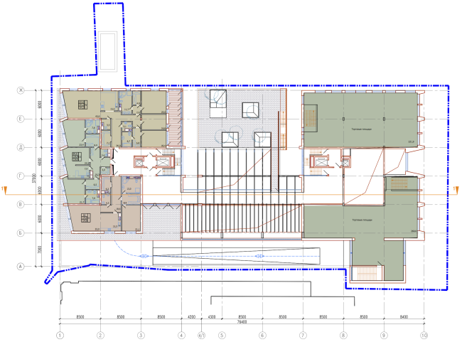
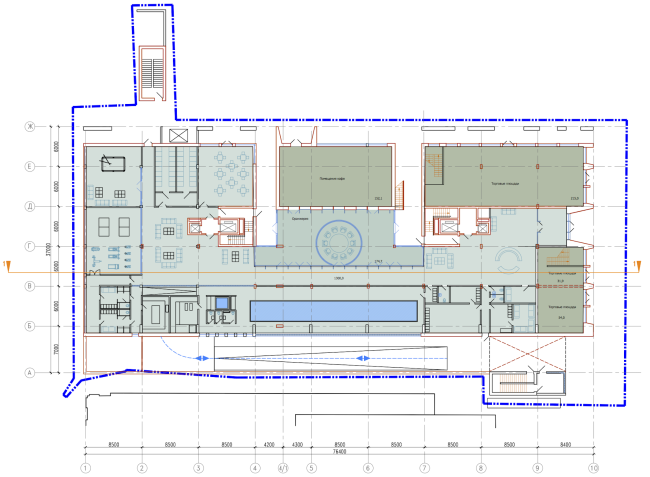
Административно-жилое здание на Трубецкой улице. План 1 этажа. Проект, 2015 © Мезонпроект
Административно-жилое здание на Трубецкой улице. План 1 этажа. Проект, 2015 © Мезонпроект

Таким образом по версии «Мезонпроекта» клубный дом на Малой Трубецкой оказывается сложным конгломератом разных составляющих: магазинов, финтес-центра, оранжереи, сквера на крыше, квартир, «террасных» пентхаусов и небольшой городской улицы. Некоторые из них обращены к городу и открыты для горожан, а значит, способны насытить здание суетой и теплом повседневной жизни, создать живую городскую микро-среду. Другие приватны, третьи – даже обеспечивают некий дистанцированный взгляд «свысока», обживая пространство кровель. Но все они нужны друг другу, связаны между собой и в то же время – с городом. Это новый формат клубного дома: «думающего не только о себе». Для элитного жилья данный формат крайне сложен; в Москве он только приживается.
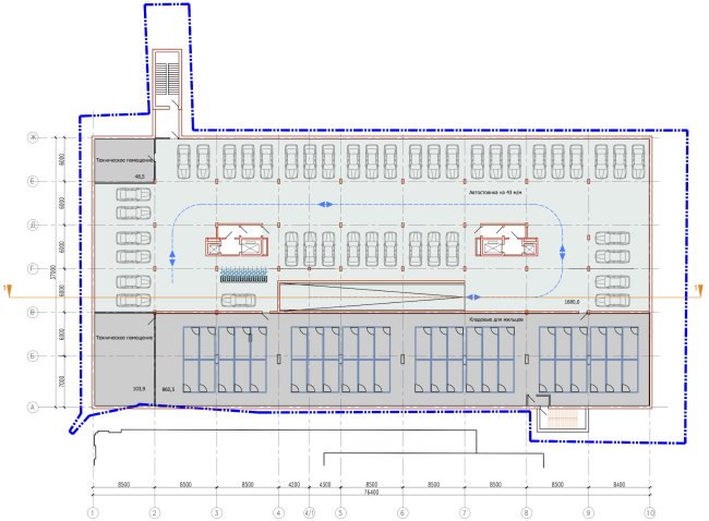
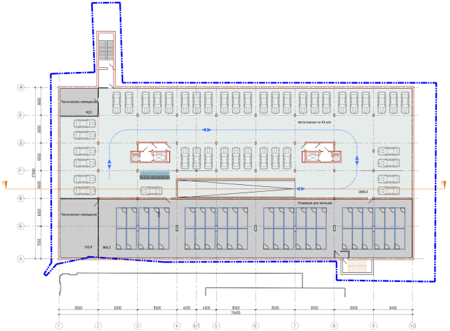
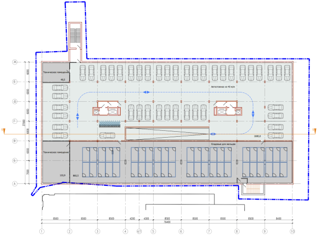
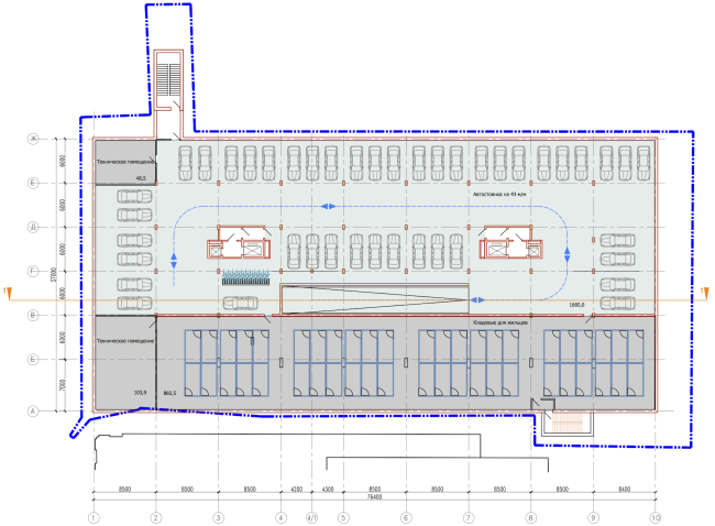
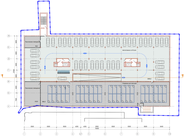
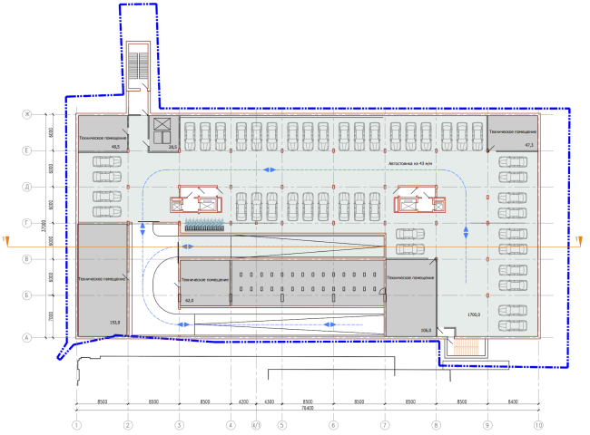
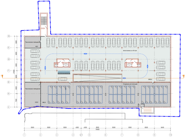
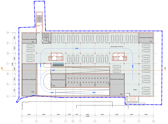
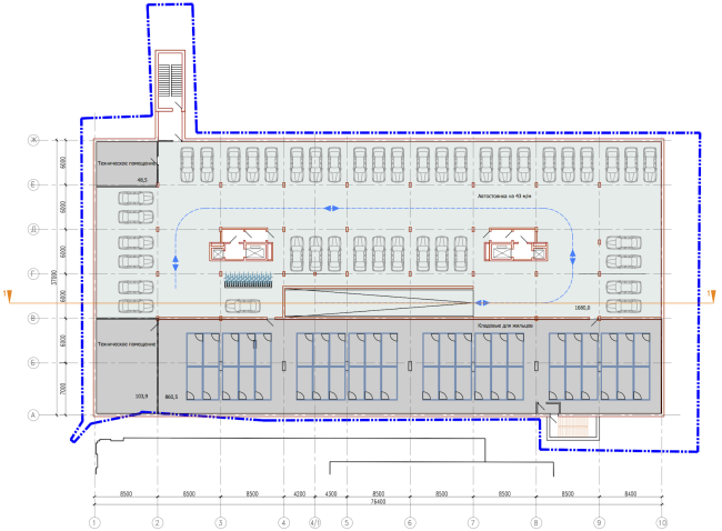
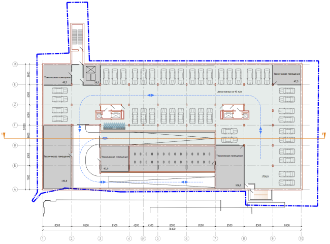
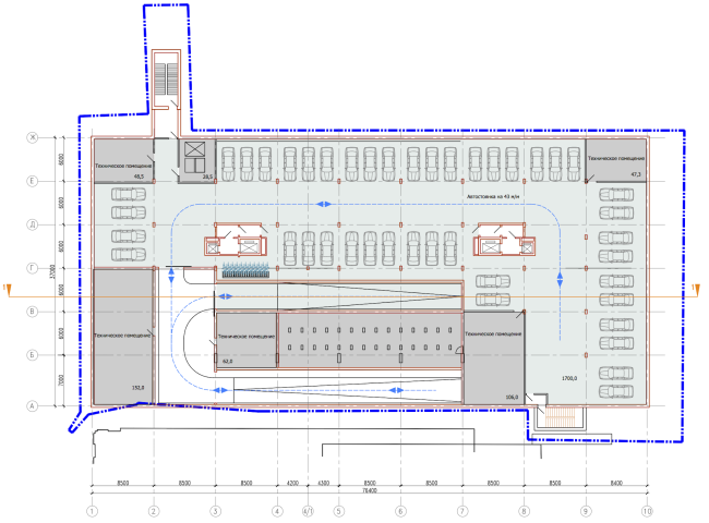
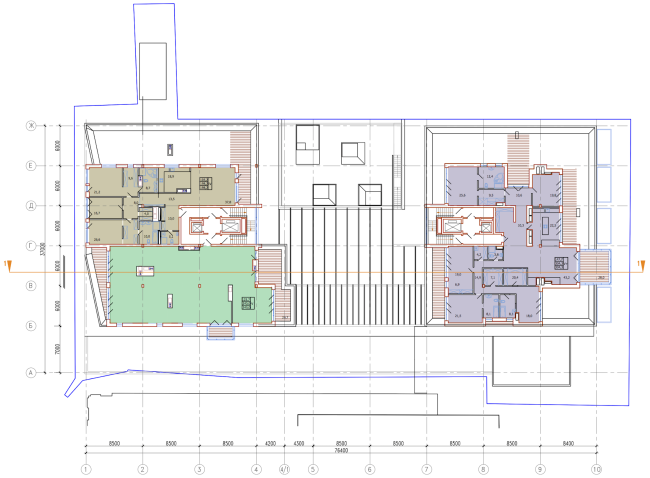
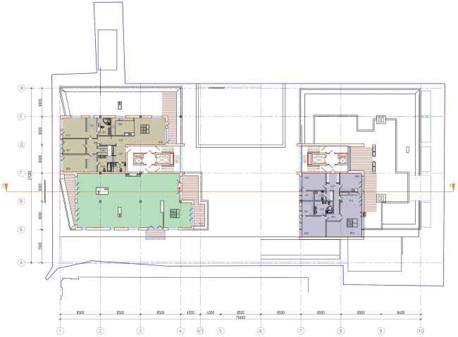
Административно-жилое здание на Трубецкой улице. План -2 этажа. Проект, 2015 © Мезонпроект
Административно-жилое здание на Трубецкой улице. План -2 этажа. Проект, 2015 © Мезонпроект
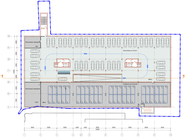
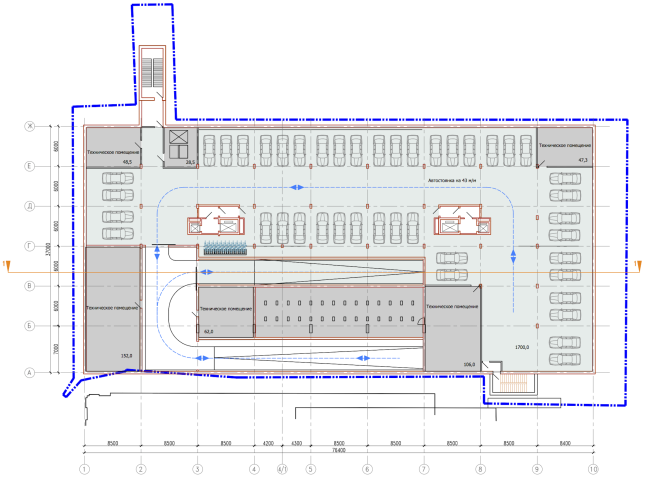
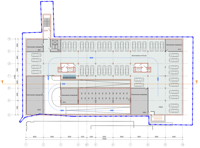
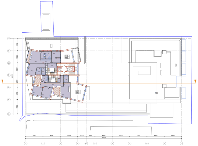
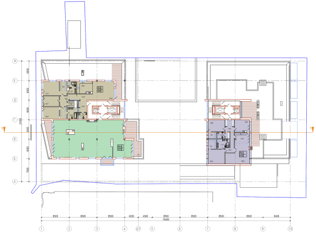
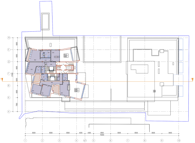
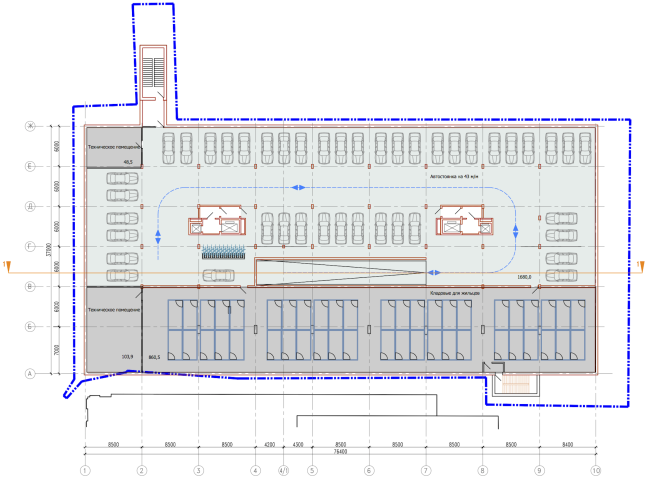
Административно-жилое здание на Трубецкой улице. План -1 этажа. Проект, 2015 © Мезонпроект
Административно-жилое здание на Трубецкой улице. План -1 этажа. Проект, 2015 © Мезонпроект
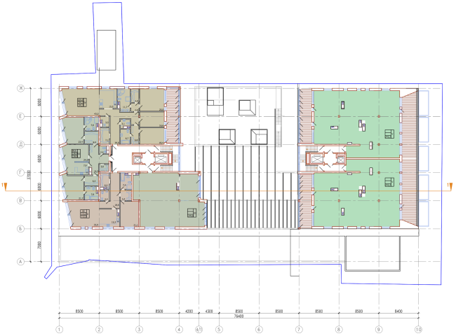
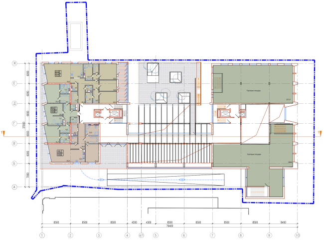
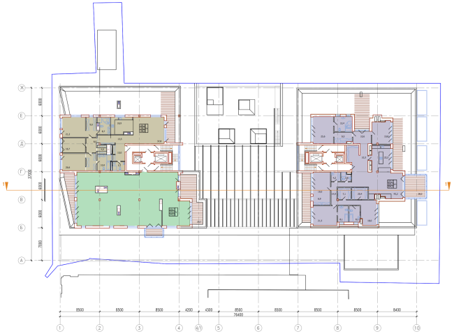
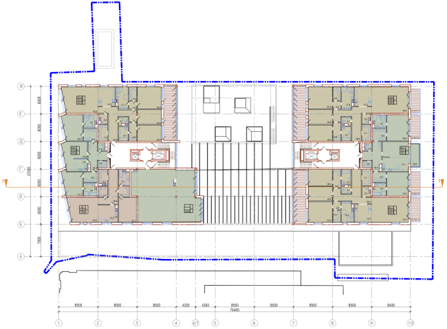
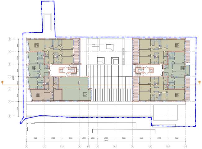
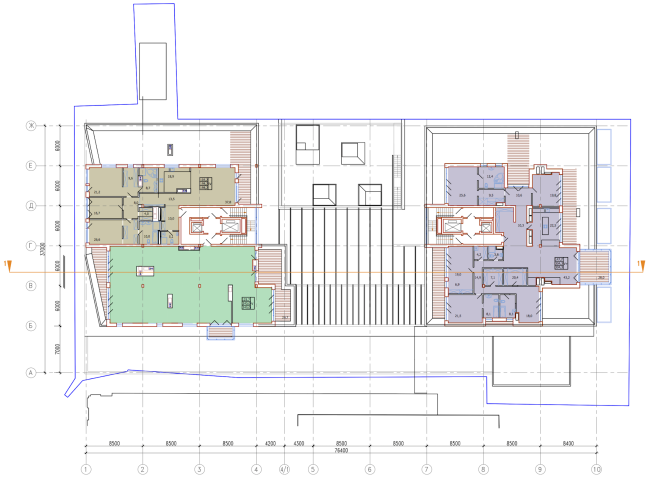
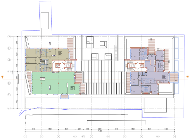
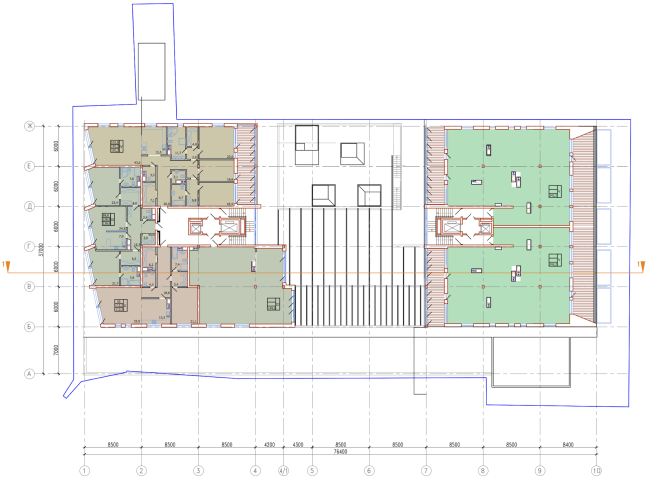
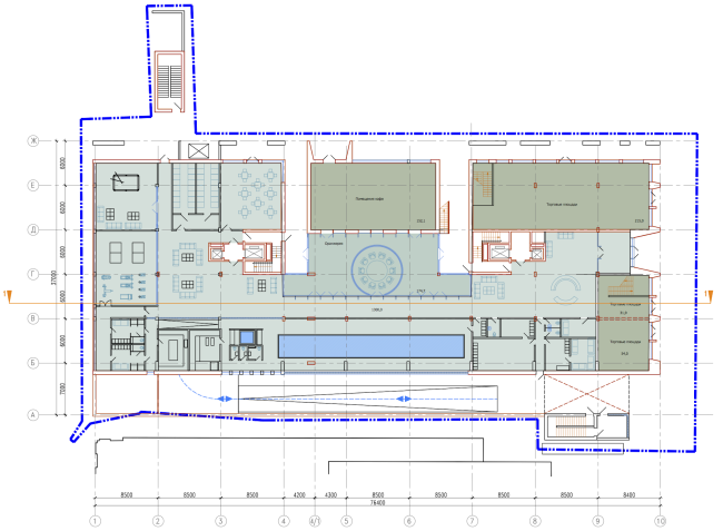
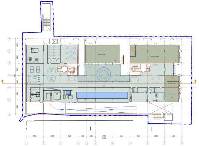
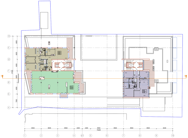
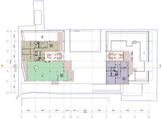
Административно-жилое здание на Трубецкой улице. План 2 этажа. Проект, 2015 © Мезонпроект
Административно-жилое здание на Трубецкой улице. План 2 этажа. Проект, 2015 © Мезонпроект
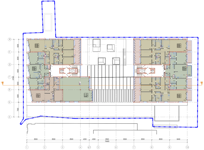
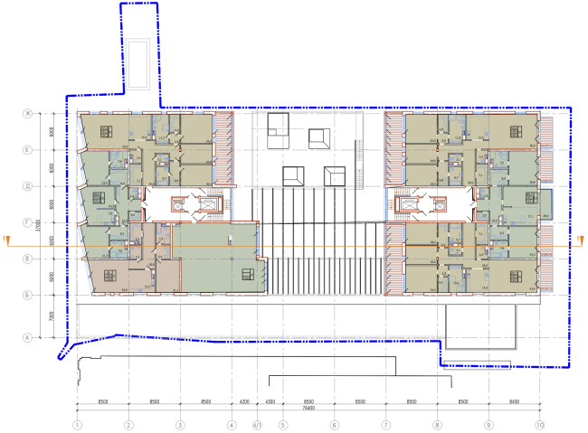
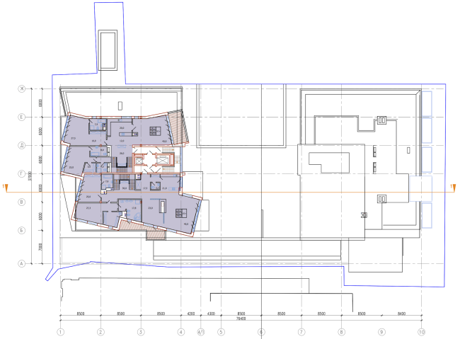
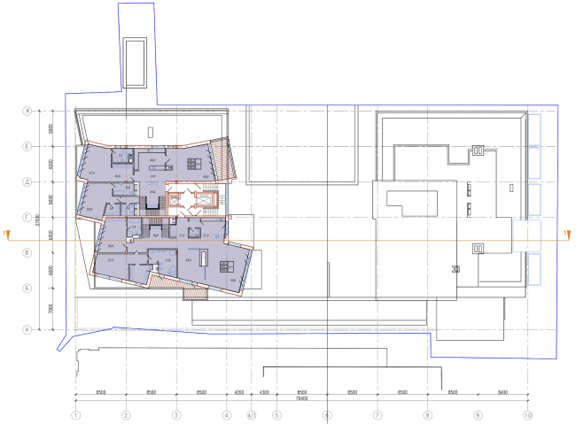
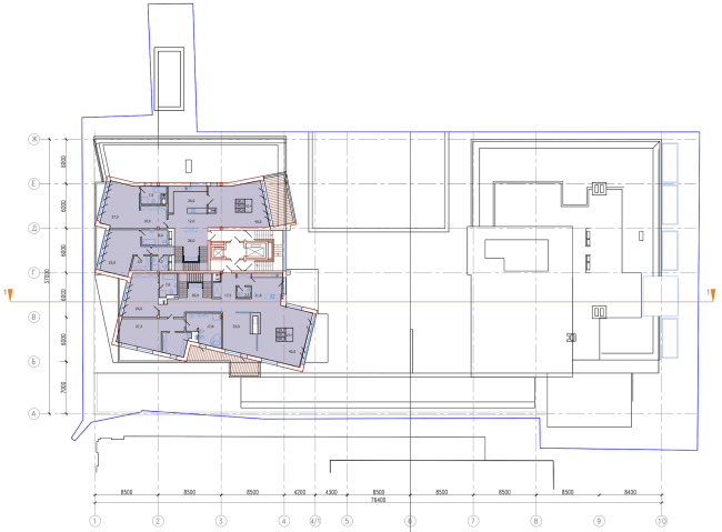
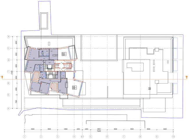
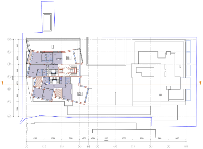
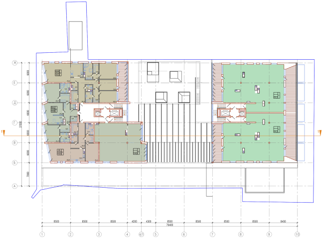
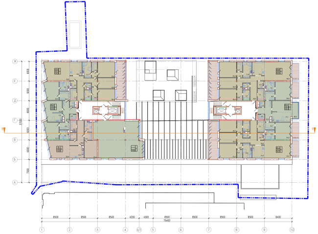
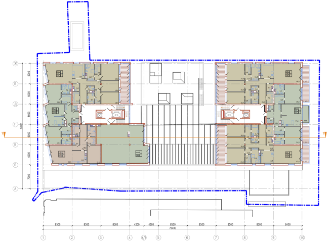
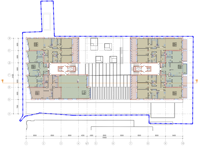
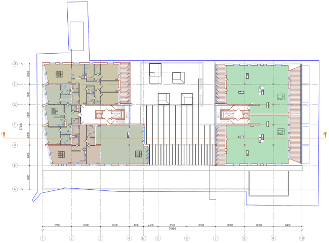
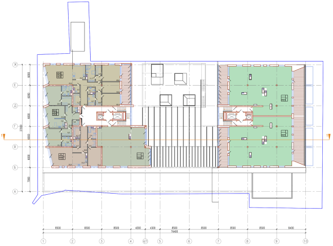
Административно-жилое здание на Трубецкой улице. План 3-6 этажей. Проект, 2015 © Мезонпроект
Административно-жилое здание на Трубецкой улице. План 3-6 этажей. Проект, 2015 © Мезонпроект
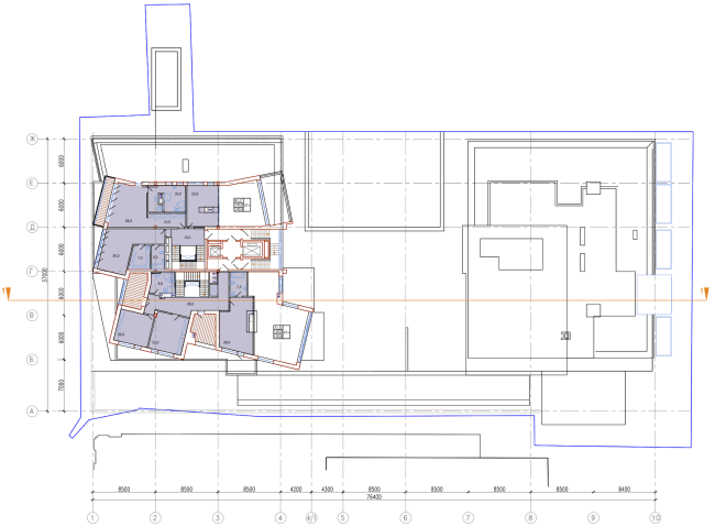
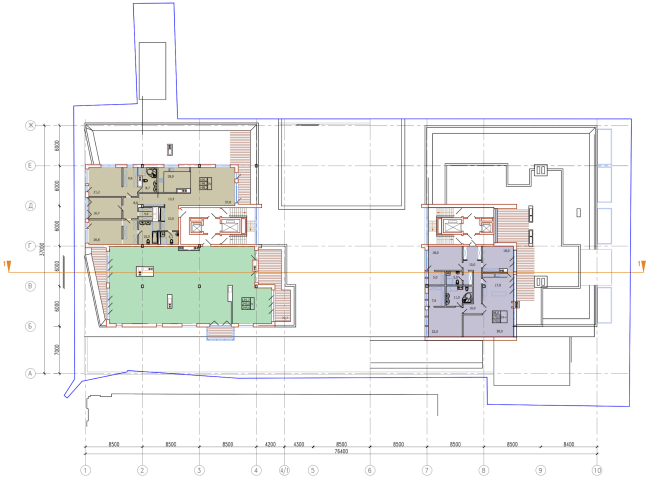
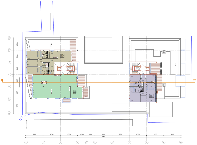
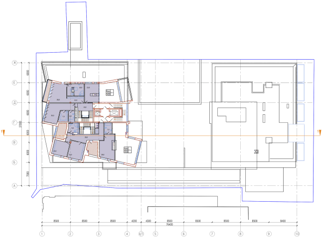
Административно-жилое здание на Трубецкой улице. План 7 этажа. Проект, 2015 © Мезонпроект
Административно-жилое здание на Трубецкой улице. План 7 этажа. Проект, 2015 © Мезонпроект
Административно-жилое здание на Трубецкой улице. План 8 этажа. Проект, 2015 © Мезонпроект
Административно-жилое здание на Трубецкой улице. План 8 этажа. Проект, 2015 © Мезонпроект
Административно-жилое здание на Трубецкой улице. План 9 этажа. Проект, 2015 © Мезонпроект
Административно-жилое здание на Трубецкой улице. План 9 этажа. Проект, 2015 © Мезонпроект
Административно-жилое здание на Трубецкой улице. План 10 этажа. Проект, 2015 © Мезонпроект
Административно-жилое здание на Трубецкой улице. План 10 этажа. Проект, 2015 © Мезонпроект
Административно-жилое здание на Трубецкой улице. План 11 этажа. Проект, 2015 © Мезонпроект
Административно-жилое здание на Трубецкой улице. План 11 этажа. Проект, 2015 © Мезонпроект