Размещено на портале Архи.ру (www.archi.ru)

23.11.2016

Новые перспективы

Нина Фролова
Объект:
Здание Парламента Буркина-Фасо и мемориальный парк
Адрес:
Буркина-Фасо, None, Уагадугу.

Дьебедо Франсис Кере спроектировал новое здание Парламента Буркина-Фасо взамен разрушенного в ходе недавней революции.

Здание Парламента Буркина-Фасо и мемориальный парк © Kéré Architecture
Здание Парламента Буркина-Фасо и мемориальный парк © Kéré Architecture

В 2014 году восставшие сожгли прежнее здание Национальной Ассамблеи в Уагадугу как символ «старого режима». Разработку нового проекта ожидаемо поручили самому известному архитектору Буркина-Фасо, автору многочисленных социальных и одновременно экологичных построек Дьебедо Франсису Кере.
 
Здание Парламента Буркина-Фасо и мемориальный парк © Kéré Architecture
Здание Парламента Буркина-Фасо и мемориальный парк © Kéré Architecture

Он предложил возвести новое здание рядом с руиной прежнего – на месте которого устроить мемориальный парк, посвященный жертвам революции. Проект основан на национальных традициях: в почти полностью сельском Буркина-Фасо решения принимаются советом старейшин под тенистым деревом, в присутствии всех желающих (Кере прекрасно знает эту процедуру, так как сам родился в семье вождя в обычной деревне).
 
Здание Парламента Буркина-Фасо и мемориальный парк © Kéré Architecture
Здание Парламента Буркина-Фасо и мемориальный парк © Kéré Architecture



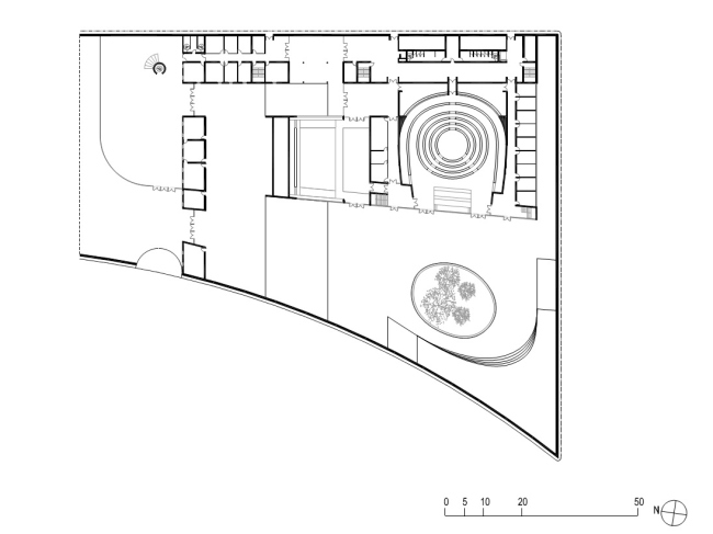
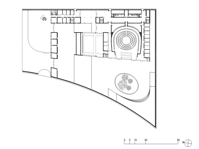
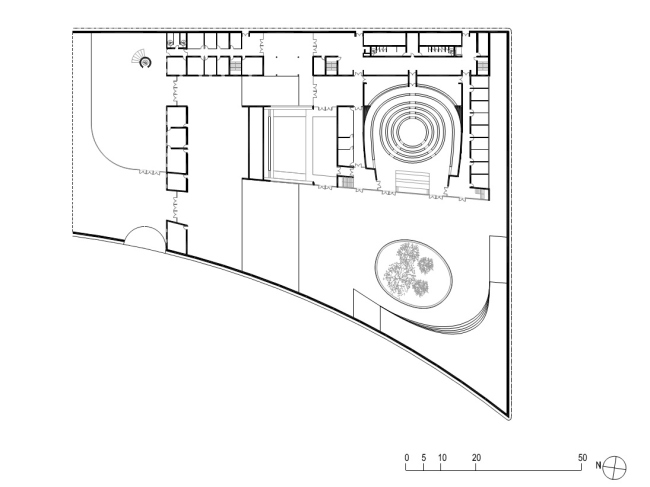
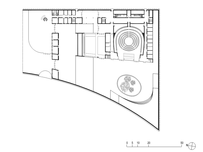
Поэтому в центре комплекса будет устроен внутренний двор для депутатов, где они смогут обсуждать новые законы в неформальной обстановке. Зал заседаний для 127 народных избранников тоже, конечно, предусмотрен. Открытость Парламента будет символизировать решенный как амфитеатр фасад, который станет общественным пространством и важной для равнинного ландшафта Уагадугу смотровой точкой – откуда, по мысли Кере, для граждан откроются новые перспективы, в прямом и переносном смысле.

Парламент также получит зеленые террасы для демонстрации новейших сельскохозяйственных технологий, что послужит их распространению в стране, где почти все население занято в этой сфере.

В здании благодаря проницаемому (и защищающему интерьер от солнца) фасаду и центральному атриуму будет устроена естественная вентиляция..
Здание Парламента Буркина-Фасо и мемориальный парк © Kéré Architecture
Здание Парламента Буркина-Фасо и мемориальный парк © Kéré Architecture
Здание Парламента Буркина-Фасо и мемориальный парк © Kéré Architecture
Здание Парламента Буркина-Фасо и мемориальный парк © Kéré Architecture
Здание Парламента Буркина-Фасо и мемориальный парк © Kéré Architecture
Здание Парламента Буркина-Фасо и мемориальный парк © Kéré Architecture
Здание Парламента Буркина-Фасо и мемориальный парк © Kéré Architecture
Здание Парламента Буркина-Фасо и мемориальный парк © Kéré Architecture
Здание Парламента Буркина-Фасо и мемориальный парк © Kéré Architecture
Здание Парламента Буркина-Фасо и мемориальный парк © Kéré Architecture
Здание Парламента Буркина-Фасо и мемориальный парк © Kéré Architecture
Здание Парламента Буркина-Фасо и мемориальный парк © Kéré Architecture
Здание Парламента Буркина-Фасо и мемориальный парк © Kéré Architecture
Здание Парламента Буркина-Фасо и мемориальный парк © Kéré Architecture
Здание Парламента Буркина-Фасо и мемориальный парк © Kéré Architecture
Здание Парламента Буркина-Фасо и мемориальный парк © Kéré Architecture
Разрушенный в 2014 Парламент. Фото предоставлено Kéré Architecture
Разрушенный в 2014 Парламент. Фото предоставлено Kéré Architecture
Разрушенный в 2014 Парламент. Фото предоставлено Kéré Architecture
Разрушенный в 2014 Парламент. Фото предоставлено Kéré Architecture