Размещено на портале Архи.ру (www.archi.ru)

18.11.2016

Как провожают пароходы?

Анна Старостина
Объект:
Паромный терминал Värtaterminalen
Адрес:
Швеция, None, Стокгольм.
Мастерская:
C. F. Møller

В Стокгольме на полную мощность заработал терминал паромного сообщения по проекту C.F. Møller.

Паромный терминал Värtaterminalen © Adam Mørk
Паромный терминал Värtaterminalen © Adam Mørk

Värtaterminalen принимает в основном регулярные рейсы из Финляндии и стран Балтии. Ожидается, что в течении года его услугами воспользуется около 4 млн человек. Специалисты одного из старейших архитектурных бюро Скандинавии не стали ломать голову в поисках яркого образа для своей постройки: по их замыслу она должна напоминать отчаливающий лайнер, а использованные в отделке материалы – отсылать к еще недавно окружавшим участок складам и кранам. С этой идеей они и выиграли международный конкурс в 2010 году.
Паромный терминал Värtaterminalen © Adam Mørk
Паромный терминал Värtaterminalen © Adam Mørk

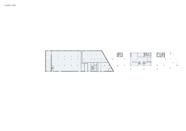
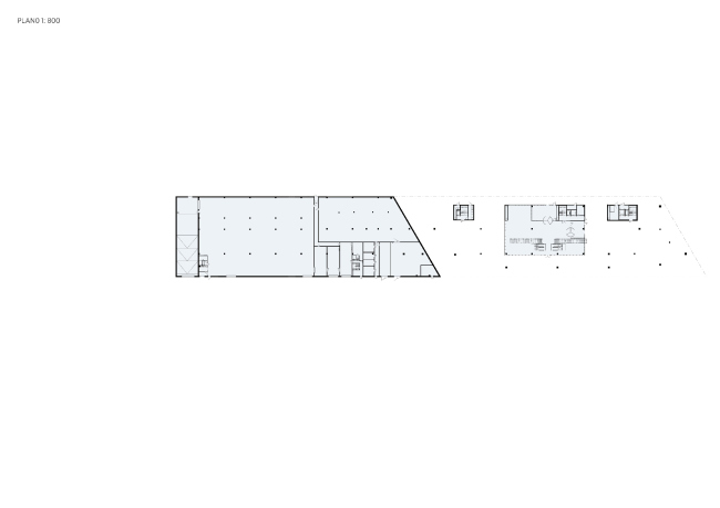
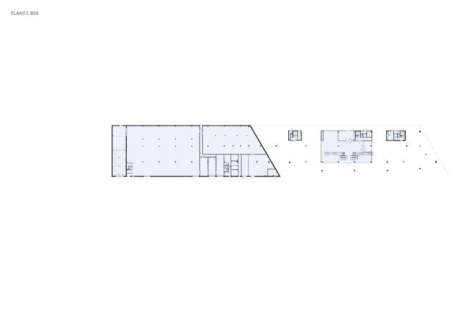
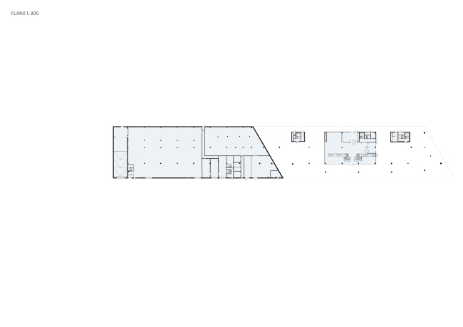
Новый транспортный терминал площадью 16 000 кв. м (еще 1100 кв. м занимает отдельная зона таможни) станет одним из важнейших объектов формируемого вокруг порта района жилой и деловой застройки Norra Djurgårdsstaden, и поэтому главной своей задачей архитекторы считали поиск путей взаимодействия между историческим городом и портом. В результате пассажирская часть терминала размещена вверху, вровень с городской застройкой, что повышает ее доступность как для пешеходов, так и для машин. А крыша превращена в привлекательное общественное пространство с перепадами рельефа, зелеными зонами, укромными уголками, скамеечками и эффектными видами на воду и на город.
Паромный терминал Värtaterminalen © Adam Mørk
Паромный терминал Värtaterminalen © Adam Mørk

Сам терминал имеет свободную планировку и панорамное остекление по всему периметру, стирающее границы между внутренним и внешним мирами. Пространство главного зала ожидания определяет вытянутый световой фонарь сложной геометрической формы. Он пускает естественный свет глубоко внутрь здания и задает важные вертикальные связи между собственно портовым и пассажирским уровнями.
Паромный терминал Värtaterminalen © Adam Mørk
Паромный терминал Värtaterminalen © Adam Mørk

И, как всегда у C.F. Møller, огромное внимание уделено принципам устойчивого развития. Геотермальная система отопления и охлаждения здания, использование солнечной энергии и тепла, особые ресурсоэффективные стекла, ветрогенераторы, зеленая крыша и другие приемы и технологии делают новый терминал полностью независимым от внешних источников энергии и позволяют ему претендовать на золотой сертификат экологического соответствия.
Паромный терминал Värtaterminalen © Stockholms Hamnar / Per-Erik Adamsson
Паромный терминал Värtaterminalen © Stockholms Hamnar / Per-Erik Adamsson
Паромный терминал Värtaterminalen © Adam Mørk
Паромный терминал Värtaterminalen © Adam Mørk
Паромный терминал Värtaterminalen © Adam Mørk
Паромный терминал Värtaterminalen © Adam Mørk
Паромный терминал Värtaterminalen © Adam Mørk
Паромный терминал Värtaterminalen © Adam Mørk
Паромный терминал Värtaterminalen © Adam Mørk
Паромный терминал Värtaterminalen © Adam Mørk
Паромный терминал Värtaterminalen © Adam Mørk
Паромный терминал Värtaterminalen © Adam Mørk
Паромный терминал Värtaterminalen © Adam Mørk
Паромный терминал Värtaterminalen © Adam Mørk
Паромный терминал Värtaterminalen © Adam Mørk
Паромный терминал Värtaterminalen © Adam Mørk
Паромный терминал Värtaterminalen © Adam Mørk
Паромный терминал Värtaterminalen © Adam Mørk
Паромный терминал Värtaterminalen © Adam Mørk
Паромный терминал Värtaterminalen © Adam Mørk
Паромный терминал Värtaterminalen © Adam Mørk
Паромный терминал Värtaterminalen © Adam Mørk
Паромный терминал Värtaterminalen © C.F. Møller Architects
Паромный терминал Värtaterminalen © C.F. Møller Architects
Паромный терминал Värtaterminalen © C.F. Møller Architects
Паромный терминал Värtaterminalen © C.F. Møller Architects
Паромный терминал Värtaterminalen © C.F. Møller Architects
Паромный терминал Värtaterminalen © C.F. Møller Architects
Паромный терминал Värtaterminalen © C.F. Møller Architects
Паромный терминал Värtaterminalen © C.F. Møller Architects
Паромный терминал Värtaterminalen © C.F. Møller Architects
Паромный терминал Värtaterminalen © C.F. Møller Architects
Паромный терминал Värtaterminalen © C.F. Møller Architects
Паромный терминал Värtaterminalen © C.F. Møller Architects
Паромный терминал Värtaterminalen © C.F. Møller Architects
Паромный терминал Värtaterminalen © C.F. Møller Architects
Паромный терминал Värtaterminalen © C.F. Møller Architects
Паромный терминал Värtaterminalen © C.F. Møller Architects
Паромный терминал Värtaterminalen © C.F. Møller Architects
Паромный терминал Värtaterminalen © C.F. Møller Architects
Паромный терминал Värtaterminalen © C.F. Møller Architects
Паромный терминал Värtaterminalen © C.F. Møller Architects
Паромный терминал Värtaterminalen © C.F. Møller Architects
Паромный терминал Värtaterminalen © C.F. Møller Architects
Паромный терминал Värtaterminalen © C.F. Møller Architects
Паромный терминал Värtaterminalen © C.F. Møller Architects