Размещено на портале Архи.ру (www.archi.ru)

17.11.2016

МАРХИ: Золотая медаль 2016

Полина Садова

Представляем проекты победительницы и четырех номинантов ежегодного конкурса для выпускников Московского архитектурного института.

Конкурс «Золотая медаль МАРХИ» проводится среди выпускников института с 1997 года. Традиционно состязание имеет двухэтапную программу. Первый тур – конкурс на короткий самостоятельный проект. Второй – рассмотрение дипломных работ финалистов.

В 2016 году в первом этапе конкурса участвовало 34 студента-выпускника учебных программ бакалавриата, специалитета и магистратуры. В течение пяти дней конкурсанты работали над коротким самостоятельным проектом на тему современного облика православного храма. В финал вышли 15 участников, из которых были выбраны обладатель Золотой медали и четыре номинанта. Дипломные проекты победителей представлены ниже.

Золотая медаль МАРХИ 2016
Мария Финагина. Кафедра «Архитектура жилых зданий»
Дипломный проект «Студенческий многофункциональный жилой комплекс в Берлине»
Руководители: Д.В. Величкин , Н.Н. Голованов, А.С. Семенов

Золотая медаль МАРХИ 2016. 
Мария Финагина. Дипломный проект «Студенческий многофункциональный жилой комплекс в Берлине». Вид с набережной
Золотая медаль МАРХИ 2016. Мария Финагина. Дипломный проект «Студенческий многофункциональный жилой комплекс в Берлине». Вид с набережной

В основе проекта – идея создания центра притяжения молодёжи, студентов и туристов. Автор работы, Мария Финагина, стремилась представить студенческое жилье не обособленным от города, а, наоборот, наполненным общественными функциями и гармонично вписанным в окружающее пространство.

Участок, выбранный для проектирования, находится на берегу реки Шпрее в Берлине. Градостроительный анализ показал отсутствие поблизости открытых общественных площадок: существующие внутренние дворы имеют частный характер, поэтому еще одной важной задачей стало создание открытого пространства.

Концепция проекта базируется на сочетании общественных функций и индивидуального жилья. В проекте поддерживается квартальная застройка и одновременно создается большое общественное зеленое пространство в виде ската. Специфика комплекса требует полузакрытого характера общественного пространства, поэтому зеленый склон «спрятан» за студенческим корпусом и раскрыт не к улице, а на реку.
Золотая медаль МАРХИ 2016. 
Мария Финагина. Дипломный проект «Студенческий многофункциональный жилой комплекс в Берлине». Вид со ската
Золотая медаль МАРХИ 2016. Мария Финагина. Дипломный проект «Студенческий многофункциональный жилой комплекс в Берлине». Вид со ската
Золотая медаль МАРХИ 2016. 
Мария Финагина. Дипломный проект «Студенческий многофункциональный жилой комплекс в Берлине». Интерьер
Золотая медаль МАРХИ 2016. Мария Финагина. Дипломный проект «Студенческий многофункциональный жилой комплекс в Берлине». Интерьер
Золотая медаль МАРХИ 2016. 
Мария Финагина. Дипломный проект «Студенческий многофункциональный жилой комплекс в Берлине». Генеральный план
Золотая медаль МАРХИ 2016. Мария Финагина. Дипломный проект «Студенческий многофункциональный жилой комплекс в Берлине». Генеральный план
Золотая медаль МАРХИ 2016. 
Мария Финагина. Дипломный проект «Студенческий многофункциональный жилой комплекс в Берлине». Аксонометрия
Золотая медаль МАРХИ 2016. Мария Финагина. Дипломный проект «Студенческий многофункциональный жилой комплекс в Берлине». Аксонометрия
Золотая медаль МАРХИ 2016. 
Мария Финагина. Дипломный проект «Студенческий многофункциональный жилой комплекс в Берлине». Фасад по Кувриштрассе
Золотая медаль МАРХИ 2016. Мария Финагина. Дипломный проект «Студенческий многофункциональный жилой комплекс в Берлине». Фасад по Кувриштрассе
Золотая медаль МАРХИ 2016. 
Мария Финагина. Дипломный проект «Студенческий многофункциональный жилой комплекс в Берлине». Фасад со стороны набережной
Золотая медаль МАРХИ 2016. Мария Финагина. Дипломный проект «Студенческий многофункциональный жилой комплекс в Берлине». Фасад со стороны набережной
Золотая медаль МАРХИ 2016. 
Мария Финагина. Дипломный проект «Студенческий многофункциональный жилой комплекс в Берлине». Фрагмент разреза
Золотая медаль МАРХИ 2016. Мария Финагина. Дипломный проект «Студенческий многофункциональный жилой комплекс в Берлине». Фрагмент разреза
Золотая медаль МАРХИ 2016. 
Мария Финагина. Дипломный проект «Студенческий многофункциональный жилой комплекс в Берлине». Фрагмент разреза
Золотая медаль МАРХИ 2016. Мария Финагина. Дипломный проект «Студенческий многофункциональный жилой комплекс в Берлине». Фрагмент разреза
Золотая медаль МАРХИ 2016. 
Мария Финагина. Дипломный проект «Студенческий многофункциональный жилой комплекс в Берлине». Фрагмент разреза
Золотая медаль МАРХИ 2016. Мария Финагина. Дипломный проект «Студенческий многофункциональный жилой комплекс в Берлине». Фрагмент разреза
Золотая медаль МАРХИ 2016. 
Мария Финагина. Дипломный проект «Студенческий многофункциональный жилой комплекс в Берлине». Планы 1 и 2 этажей
Золотая медаль МАРХИ 2016. Мария Финагина. Дипломный проект «Студенческий многофункциональный жилой комплекс в Берлине». Планы 1 и 2 этажей
Золотая медаль МАРХИ 2016. 
Мария Финагина. Дипломный проект «Студенческий многофункциональный жилой комплекс в Берлине». Планы 3 и 4 этажей
Золотая медаль МАРХИ 2016. Мария Финагина. Дипломный проект «Студенческий многофункциональный жилой комплекс в Берлине». Планы 3 и 4 этажей
Золотая медаль МАРХИ 2016. 
Мария Финагина. Дипломный проект «Студенческий многофункциональный жилой комплекс в Берлине». Типология квартир
Золотая медаль МАРХИ 2016. Мария Финагина. Дипломный проект «Студенческий многофункциональный жилой комплекс в Берлине». Типология квартир
***
Диплом I степени
Анна Водолазская. Кафедра «Архитектура жилых зданий»
Дипломный проект «Многофункциональный жилой и гостиничный комплекс в Пресненском районе на пересечении улиц Ходынская и 1905 года»
Руководители: В.П. Юдинцев, С.Б. Глотова, Е.В. Ганушкина, О.Ю. Суслова

Диплом I степени. 
Анна Водолазская. 
Дипломный проект «Многофункциональный жилой и гостиничный комплекс в Пресненском районе на пересечении улиц Ходынская и 1905 года». Вид с улицы С. Макеева
Диплом I степени. Анна Водолазская. Дипломный проект «Многофункциональный жилой и гостиничный комплекс в Пресненском районе на пересечении улиц Ходынская и 1905 года». Вид с улицы С. Макеева

Задача проекта – создать в плотной застройке комфортную для жизни среду. Комплекс сочетает в себе гостиничную, жилую, образовательную и общественную функции. Для удобства владельцев квартир и постояльцев гостиницы предусмотрены рекреационная зона с магазинами, развлекательная зона, фитнес-центр, ресторан, кинотеатр, детская зона, конференц–центр, а также видовая площадка.

Здание гостиницы – самое крупное, состоит из трёх 24-этажных башен, соединённых общим первым этажом и горизонтальным корпусом сверху. Оно расположено возле железнодорожных путей, закрывая жилую часть от шума. Еще одна составляющая комплекса – 12-этажное здание с апартаментами, расположенное вдоль магистрали. Наконец, в МФК входят жилые дома разной этажности (от 6 до 12 этажей).

В качестве достоинств комплекса можно отметить озелененные эксплуатируемые крыши, а также просторные общественные помещения. Общественные функции доступны для жителей всего района, что позволяет удачно вписать новый комплекс в существующую городскую среду.
Диплом I степени. 
Анна Водолазская. 
Дипломный проект «Многофункциональный жилой и гостиничный комплекс в Пресненском районе на пересечении улиц Ходынская и 1905 года». Вид от пересечения улиц 1905 года и С. Макеева
Диплом I степени. Анна Водолазская. Дипломный проект «Многофункциональный жилой и гостиничный комплекс в Пресненском районе на пересечении улиц Ходынская и 1905 года». Вид от пересечения улиц 1905 года и С. Макеева
Диплом I степени. 
Анна Водолазская. 
Дипломный проект «Многофункциональный жилой и гостиничный комплекс в Пресненском районе на пересечении улиц Ходынская и 1905 года». Вид внутри комплекса
Диплом I степени. Анна Водолазская. Дипломный проект «Многофункциональный жилой и гостиничный комплекс в Пресненском районе на пересечении улиц Ходынская и 1905 года». Вид внутри комплекса
Диплом I степени. 
Анна Водолазская. 
Дипломный проект «Многофункциональный жилой и гостиничный комплекс в Пресненском районе на пересечении улиц Ходынская и 1905 года». Экстерьер
Диплом I степени. Анна Водолазская. Дипломный проект «Многофункциональный жилой и гостиничный комплекс в Пресненском районе на пересечении улиц Ходынская и 1905 года». Экстерьер
Диплом I степени. 
Анна Водолазская. 
Дипломный проект «Многофункциональный жилой и гостиничный комплекс в Пресненском районе на пересечении улиц Ходынская и 1905 года». Вид с Ходынской улицы
Диплом I степени. Анна Водолазская. Дипломный проект «Многофункциональный жилой и гостиничный комплекс в Пресненском районе на пересечении улиц Ходынская и 1905 года». Вид с Ходынской улицы
Диплом I степени. 
Анна Водолазская. 
Дипломный проект «Многофункциональный жилой и гостиничный комплекс в Пресненском районе на пересечении улиц Ходынская и 1905 года». Южный фасад
Диплом I степени. Анна Водолазская. Дипломный проект «Многофункциональный жилой и гостиничный комплекс в Пресненском районе на пересечении улиц Ходынская и 1905 года». Южный фасад
Диплом I степени. 
Анна Водолазская. 
Дипломный проект «Многофункциональный жилой и гостиничный комплекс в Пресненском районе на пересечении улиц Ходынская и 1905 года». Западный фасад
Диплом I степени. Анна Водолазская. Дипломный проект «Многофункциональный жилой и гостиничный комплекс в Пресненском районе на пересечении улиц Ходынская и 1905 года». Западный фасад
Диплом I степени. 
Анна Водолазская. 
Дипломный проект «Многофункциональный жилой и гостиничный комплекс в Пресненском районе на пересечении улиц Ходынская и 1905 года». Северный фасад
Диплом I степени. Анна Водолазская. Дипломный проект «Многофункциональный жилой и гостиничный комплекс в Пресненском районе на пересечении улиц Ходынская и 1905 года». Северный фасад
Диплом I степени. 
Анна Водолазская. 
Дипломный проект «Многофункциональный жилой и гостиничный комплекс в Пресненском районе на пересечении улиц Ходынская и 1905 года». Интерьер перекидного корпуса гостиницы
Диплом I степени. Анна Водолазская. Дипломный проект «Многофункциональный жилой и гостиничный комплекс в Пресненском районе на пересечении улиц Ходынская и 1905 года». Интерьер перекидного корпуса гостиницы
Диплом I степени. 
Анна Водолазская. 
Дипломный проект «Многофункциональный жилой и гостиничный комплекс в Пресненском районе на пересечении улиц Ходынская и 1905 года». Интерьер перекидного корпуса гостиницы
Диплом I степени. Анна Водолазская. Дипломный проект «Многофункциональный жилой и гостиничный комплекс в Пресненском районе на пересечении улиц Ходынская и 1905 года». Интерьер перекидного корпуса гостиницы
Диплом I степени. 
Анна Водолазская. 
Дипломный проект «Многофункциональный жилой и гостиничный комплекс в Пресненском районе на пересечении улиц Ходынская и 1905 года». Аксонометрия
Диплом I степени. Анна Водолазская. Дипломный проект «Многофункциональный жилой и гостиничный комплекс в Пресненском районе на пересечении улиц Ходынская и 1905 года». Аксонометрия
Диплом I степени. 
Анна Водолазская. 
Дипломный проект «Многофункциональный жилой и гостиничный комплекс в Пресненском районе на пересечении улиц Ходынская и 1905 года». Развертка по Ходынской улице
Диплом I степени. Анна Водолазская. Дипломный проект «Многофункциональный жилой и гостиничный комплекс в Пресненском районе на пересечении улиц Ходынская и 1905 года». Развертка по Ходынской улице
Диплом I степени. 
Анна Водолазская. 
Дипломный проект «Многофункциональный жилой и гостиничный комплекс в Пресненском районе на пересечении улиц Ходынская и 1905 года». Разрез
Диплом I степени. Анна Водолазская. Дипломный проект «Многофункциональный жилой и гостиничный комплекс в Пресненском районе на пересечении улиц Ходынская и 1905 года». Разрез
Диплом I степени. 
Анна Водолазская. 
Дипломный проект «Многофункциональный жилой и гостиничный комплекс в Пресненском районе на пересечении улиц Ходынская и 1905 года». План 1 этажа
Диплом I степени. Анна Водолазская. Дипломный проект «Многофункциональный жилой и гостиничный комплекс в Пресненском районе на пересечении улиц Ходынская и 1905 года». План 1 этажа
Диплом I степени. 
Анна Водолазская. 
Дипломный проект «Многофункциональный жилой и гостиничный комплекс в Пресненском районе на пересечении улиц Ходынская и 1905 года». План 2 этажа
Диплом I степени. Анна Водолазская. Дипломный проект «Многофункциональный жилой и гостиничный комплекс в Пресненском районе на пересечении улиц Ходынская и 1905 года». План 2 этажа
Диплом I степени. 
Анна Водолазская. 
Дипломный проект «Многофункциональный жилой и гостиничный комплекс в Пресненском районе на пересечении улиц Ходынская и 1905 года». План горизонтального корпуса
Диплом I степени. Анна Водолазская. Дипломный проект «Многофункциональный жилой и гостиничный комплекс в Пресненском районе на пересечении улиц Ходынская и 1905 года». План горизонтального корпуса
Диплом I степени. 
Анна Водолазская. 
Дипломный проект «Многофункциональный жилой и гостиничный комплекс в Пресненском районе на пересечении улиц Ходынская и 1905 года». Вид с эстакады улицы 1905 года
Диплом I степени. Анна Водолазская. Дипломный проект «Многофункциональный жилой и гостиничный комплекс в Пресненском районе на пересечении улиц Ходынская и 1905 года». Вид с эстакады улицы 1905 года
Диплом I степени. 
Анна Водолазская. 
Дипломный проект «Многофункциональный жилой и гостиничный комплекс в Пресненском районе на пересечении улиц Ходынская и 1905 года». Генплан, ситуационный план, транспортная схема
Диплом I степени. Анна Водолазская. Дипломный проект «Многофункциональный жилой и гостиничный комплекс в Пресненском районе на пересечении улиц Ходынская и 1905 года». Генплан, ситуационный план, транспортная схема
***
Диплом II степени
Максим Матвеев. Кафедра «Архитектура жилых зданий»
Дипломный проект «Многофункциональный высотный гостиничный комплекс на Ленинградском проспекте»
Руководители: В.П. Юдинцев, С.Б. Глотова, Е.В. Ганушкина, О.Ю. Суслова

Диплом II степени. 
Максим Матвеев. 
Дипломный проект «Многофункциональный высотный гостиничный комплекс на Ленинградском проспекте». Общий вид
Диплом II степени. Максим Матвеев. Дипломный проект «Многофункциональный высотный гостиничный комплекс на Ленинградском проспекте». Общий вид

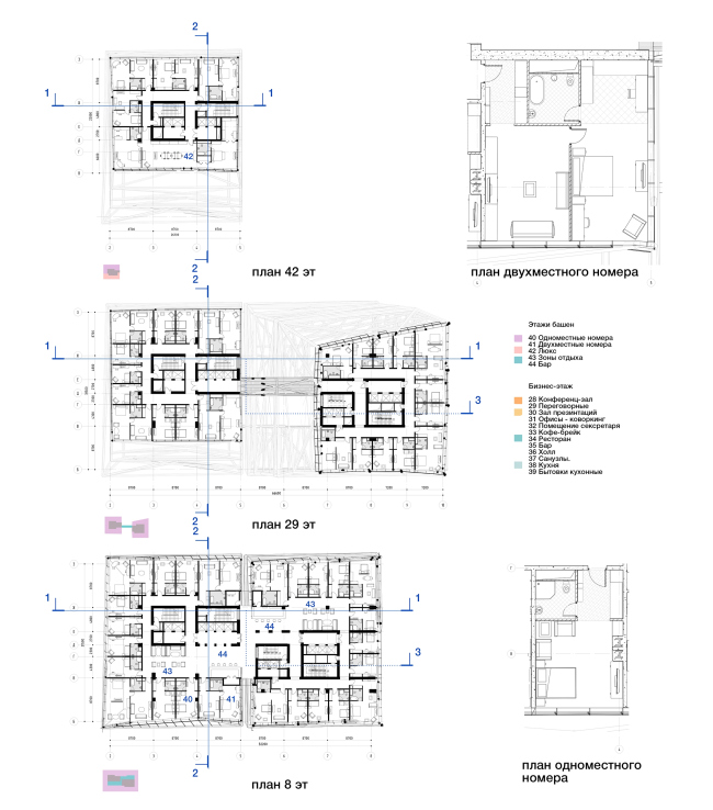
Здание гостиницы проектируется на пересечении Ленинградского проспекта и ТТК в Москве. Современный масштаб города требует новых запоминающихся высотных построек. Нехватка таких сооружений превращает город в однородное пространство без ориентиров и доминант. Поэтому автор предлагает гостиничный комплекс, состоящий из нижней стилобатной части и двух башен высотой 157 и 110 метров. Одна из башен имеет наклон 11°, поэтому особое внимание в проекте уделяется прочности конструкции. Лаконичное решение объема высотного центра продиктовано соседством с историческими объектами.

Также в работе затронута тема многофункциональных гостиничных комплексов. Проектом предусмотрен полный спектр функций четырехзвездочной гостиницы бизнес-уровня, подходящей для проведения статусных мероприятий: большие конференц-залы, помещения для совещаний, временные офисы для подготовки документов, вместительные рестораны и зоны отдыха.

Комплекс отвечает современным требованиям устойчивой архитектуры. Здесь предполагается частичное озеленение эксплуатируемой кровли, обустройство зимних садов рядом с общественными зонами и зеленый подъем к верхней части стилобата.
Диплом II степени. 
Максим Матвеев. 
Дипломный проект «Многофункциональный высотный гостиничный комплекс на Ленинградском проспекте». Вид с Ленинградского проспекта
Диплом II степени. Максим Матвеев. Дипломный проект «Многофункциональный высотный гостиничный комплекс на Ленинградском проспекте». Вид с Ленинградского проспекта
Диплом II степени. 
Максим Матвеев. 
Дипломный проект «Многофункциональный высотный гостиничный комплекс на Ленинградском проспекте». Вид с ТТК
Диплом II степени. Максим Матвеев. Дипломный проект «Многофункциональный высотный гостиничный комплекс на Ленинградском проспекте». Вид с ТТК
Диплом II степени. 
Максим Матвеев. 
Дипломный проект «Многофункциональный высотный гостиничный комплекс на Ленинградском проспекте». Вид на вход
Диплом II степени. Максим Матвеев. Дипломный проект «Многофункциональный высотный гостиничный комплекс на Ленинградском проспекте». Вид на вход
Диплом II степени. 
Максим Матвеев. 
Дипломный проект «Многофункциональный высотный гостиничный комплекс на Ленинградском проспекте». Интерьер
Диплом II степени. Максим Матвеев. Дипломный проект «Многофункциональный высотный гостиничный комплекс на Ленинградском проспекте». Интерьер
Диплом II степени. 
Максим Матвеев. 
Дипломный проект «Многофункциональный высотный гостиничный комплекс на Ленинградском проспекте». Вид сверху
Диплом II степени. Максим Матвеев. Дипломный проект «Многофункциональный высотный гостиничный комплекс на Ленинградском проспекте». Вид сверху
Диплом II степени. 
Максим Матвеев. 
Дипломный проект «Многофункциональный высотный гостиничный комплекс на Ленинградском проспекте». Ночной вид сверху
Диплом II степени. Максим Матвеев. Дипломный проект «Многофункциональный высотный гостиничный комплекс на Ленинградском проспекте». Ночной вид сверху
Диплом II степени. 
Максим Матвеев. 
Дипломный проект «Многофункциональный высотный гостиничный комплекс на Ленинградском проспекте». Фасады
Диплом II степени. Максим Матвеев. Дипломный проект «Многофункциональный высотный гостиничный комплекс на Ленинградском проспекте». Фасады
Диплом II степени. 
Максим Матвеев. 
Дипломный проект «Многофункциональный высотный гостиничный комплекс на Ленинградском проспекте». Варианты форм
Диплом II степени. Максим Матвеев. Дипломный проект «Многофункциональный высотный гостиничный комплекс на Ленинградском проспекте». Варианты форм
Диплом II степени. 
Максим Матвеев. 
Дипломный проект «Многофункциональный высотный гостиничный комплекс на Ленинградском проспекте». Аксонометрия
Диплом II степени. Максим Матвеев. Дипломный проект «Многофункциональный высотный гостиничный комплекс на Ленинградском проспекте». Аксонометрия
Диплом II степени. 
Максим Матвеев. 
Дипломный проект «Многофункциональный высотный гостиничный комплекс на Ленинградском проспекте». Генеральный план
Диплом II степени. Максим Матвеев. Дипломный проект «Многофункциональный высотный гостиничный комплекс на Ленинградском проспекте». Генеральный план
Диплом II степени. 
Максим Матвеев. 
Дипломный проект «Многофункциональный высотный гостиничный комплекс на Ленинградском проспекте». Схема транспорта и озеленения, функциональная схема
Диплом II степени. Максим Матвеев. Дипломный проект «Многофункциональный высотный гостиничный комплекс на Ленинградском проспекте». Схема транспорта и озеленения, функциональная схема
Диплом II степени. 
Максим Матвеев. 
Дипломный проект «Многофункциональный высотный гостиничный комплекс на Ленинградском проспекте». Развертки по Ленинградскому проспекту и ТТК
Диплом II степени. Максим Матвеев. Дипломный проект «Многофункциональный высотный гостиничный комплекс на Ленинградском проспекте». Развертки по Ленинградскому проспекту и ТТК
Диплом II степени. 
Максим Матвеев. 
Дипломный проект «Многофункциональный высотный гостиничный комплекс на Ленинградском проспекте». Продольный разрез
Диплом II степени. Максим Матвеев. Дипломный проект «Многофункциональный высотный гостиничный комплекс на Ленинградском проспекте». Продольный разрез
Диплом II степени. 
Максим Матвеев. 
Дипломный проект «Многофункциональный высотный гостиничный комплекс на Ленинградском проспекте». Поперечный разрез
Диплом II степени. Максим Матвеев. Дипломный проект «Многофункциональный высотный гостиничный комплекс на Ленинградском проспекте». Поперечный разрез
Диплом II степени. 
Максим Матвеев. 
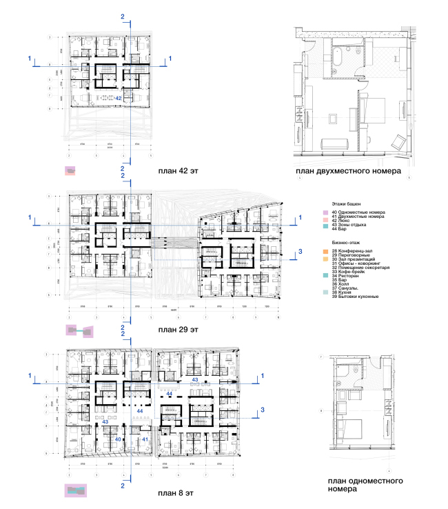
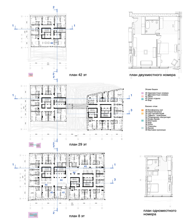
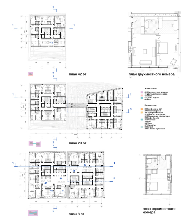
Дипломный проект «Многофункциональный высотный гостиничный комплекс на Ленинградском проспекте». Планы верхних этажей башен
Диплом II степени. Максим Матвеев. Дипломный проект «Многофункциональный высотный гостиничный комплекс на Ленинградском проспекте». Планы верхних этажей башен
Диплом II степени. 
Максим Матвеев. 
Дипломный проект «Многофункциональный высотный гостиничный комплекс на Ленинградском проспекте». Планы нижних этажей стилобата
Диплом II степени. Максим Матвеев. Дипломный проект «Многофункциональный высотный гостиничный комплекс на Ленинградском проспекте». Планы нижних этажей стилобата
***
Диплом III степени
Елена Осипова. Кафедра «Архитектура жилых зданий»
Дипломный проект «Детский лагерь на Плещеевом озере»
Руководители: О.Д. Бреславцев, В.А. Ночевкина, М.А. Рогожникова, Л.А. Мунчак

Диплом III степени. 
Елена Осипова. 
Дипломный проект «Детский лагерь на Плещеевом озере». 3d вид
Диплом III степени. Елена Осипова. Дипломный проект «Детский лагерь на Плещеевом озере». 3d вид

Выбранная территория находится на берегу Плещеева озера, в нескольких километрах от города Переславль-Залесский. Лагерь рассчитан на 250 детей и 50 взрослых. Комплекс состоит из небольших зданий-модулей на деревянном настиле, приподнятом над землей. В состав комплекса входят жилые корпуса, мастерские, клуб, столовая, административный и технический корпуса, медпункт, библиотека, лодочные станции и станции подвесной дороги, спортивные площадки, веревочный парк. Все коммуникации располагаются в техническом этаже под уровнем настила. При въезде на территорию предусмотрена парковка и разворотный круг для автобусов, а также площадка для вывоза мусора. Через территорию лагеря проходит подвесная дорога, запроектированная на месте узкоколейной железной дороги.
Диплом III степени. 
Елена Осипова. 
Дипломный проект «Детский лагерь на Плещеевом озере». 3d вид
Диплом III степени. Елена Осипова. Дипломный проект «Детский лагерь на Плещеевом озере». 3d вид
Диплом III степени. 
Елена Осипова. 
Дипломный проект «Детский лагерь на Плещеевом озере». 3d вид
Диплом III степени. Елена Осипова. Дипломный проект «Детский лагерь на Плещеевом озере». 3d вид
Диплом III степени. 
Елена Осипова. 
Дипломный проект «Детский лагерь на Плещеевом озере». 3d вид
Диплом III степени. Елена Осипова. Дипломный проект «Детский лагерь на Плещеевом озере». 3d вид
Диплом III степени. 
Елена Осипова. 
Дипломный проект «Детский лагерь на Плещеевом озере». Общая аксонометрия
Диплом III степени. Елена Осипова. Дипломный проект «Детский лагерь на Плещеевом озере». Общая аксонометрия
Диплом III степени. 
Елена Осипова. 
Дипломный проект «Детский лагерь на Плещеевом озере». Генеральный план
Диплом III степени. Елена Осипова. Дипломный проект «Детский лагерь на Плещеевом озере». Генеральный план
Диплом III степени. 
Елена Осипова. 
Дипломный проект «Детский лагерь на Плещеевом озере». Благоустройство прибрежной зоны
Диплом III степени. Елена Осипова. Дипломный проект «Детский лагерь на Плещеевом озере». Благоустройство прибрежной зоны
Диплом III степени. 
Елена Осипова. 
Дипломный проект «Детский лагерь на Плещеевом озере». Схемы расположения
Диплом III степени. Елена Осипова. Дипломный проект «Детский лагерь на Плещеевом озере». Схемы расположения
Диплом III степени. 
Елена Осипова. 
Дипломный проект «Детский лагерь на Плещеевом озере». Фасады и разрезы
Диплом III степени. Елена Осипова. Дипломный проект «Детский лагерь на Плещеевом озере». Фасады и разрезы
Диплом III степени. 
Елена Осипова. 
Дипломный проект «Детский лагерь на Плещеевом озере». План центральной части
Диплом III степени. Елена Осипова. Дипломный проект «Детский лагерь на Плещеевом озере». План центральной части
Диплом III степени. 
Елена Осипова. 
Дипломный проект «Детский лагерь на Плещеевом озере». Мастерские и станция подвесной дороги
Диплом III степени. Елена Осипова. Дипломный проект «Детский лагерь на Плещеевом озере». Мастерские и станция подвесной дороги
Диплом III степени. 
Елена Осипова. 
Дипломный проект «Детский лагерь на Плещеевом озере». Планы общественных зданий
Диплом III степени. Елена Осипова. Дипломный проект «Детский лагерь на Плещеевом озере». Планы общественных зданий
Диплом III степени. 
Елена Осипова. 
Дипломный проект «Детский лагерь на Плещеевом озере». Планы корпусов обслуживания
Диплом III степени. Елена Осипова. Дипломный проект «Детский лагерь на Плещеевом озере». Планы корпусов обслуживания
Диплом III степени. 
Елена Осипова. 
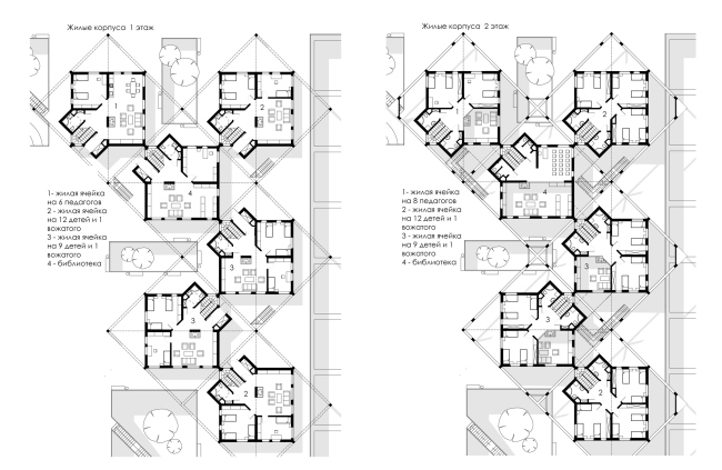
Дипломный проект «Детский лагерь на Плещеевом озере». Планы жилых корпусов
Диплом III степени. Елена Осипова. Дипломный проект «Детский лагерь на Плещеевом озере». Планы жилых корпусов
Диплом III степени. 
Елена Осипова. 
Дипломный проект «Детский лагерь на Плещеевом озере». План столовой
Диплом III степени. Елена Осипова. Дипломный проект «Детский лагерь на Плещеевом озере». План столовой
Диплом III степени. 
Елена Осипова. 
Дипломный проект «Детский лагерь на Плещеевом озере». Жилой модуль
Диплом III степени. Елена Осипова. Дипломный проект «Детский лагерь на Плещеевом озере». Жилой модуль
Диплом III степени. 
Елена Осипова. 
Дипломный проект «Детский лагерь на Плещеевом озере». Главная площадь
Диплом III степени. Елена Осипова. Дипломный проект «Детский лагерь на Плещеевом озере». Главная площадь
Диплом III степени. 
Елена Осипова. 
Дипломный проект «Детский лагерь на Плещеевом озере». Веревочный парк
Диплом III степени. Елена Осипова. Дипломный проект «Детский лагерь на Плещеевом озере». Веревочный парк
***
Диплом III степени
Павел Парамонов. Кафедра «Архитектура общественных зданий»
Дипломный проект «Культурно-образовательный лингвистический центр на площади Ильича в Москве»
Руководители: М.Д. Баушева, Д.А. Карелин, И.З. Лозинский, Л.А. Мунчак

Диплом III степени. 
Павел Парамонов. 
Дипломный проект «Культурно-образовательный лингвистический центр на Площади Ильича в Москве». Перспективное изображение фасада
Диплом III степени. Павел Парамонов. Дипломный проект «Культурно-образовательный лингвистический центр на Площади Ильича в Москве». Перспективное изображение фасада

Участок расположен в центре Москвы на территории бывшего завода «Серп и Молот». Автор предлагает создать на выбранном участке культурно-образовательный городок. На начальном этапе там появится лингвистический центр, затем – научно-исследовательские учреждения, инновационный центр, офисы и лаборатории, филиалы крупных зарубежных вузов, а также гостиницы и общежития для студентов.

Проект основывается на предлагаемой новаторской концепции преподавания языка. В образовательную программу центра внедряется культурно-развлекательная составляющая, что позволит разнообразить процесс обучения и повысить эффективность усвоения материала. Внутреннее пространство кабинетов формируется (за счет использования модульной системы) в зависимости от формы работы со студентами, которая предусмотрена преподавателем.

Основой архитектурного образа комплекса является башня высотой 150 метров – своеобразная метафора маяка, который притягивает посетителей.
Диплом III степени. 
Павел Парамонов. 
Дипломный проект «Культурно-образовательный лингвистический центр на Площади Ильича в Москве». План 1 этажа, совмещенный с генпланом
Диплом III степени. Павел Парамонов. Дипломный проект «Культурно-образовательный лингвистический центр на Площади Ильича в Москве». План 1 этажа, совмещенный с генпланом
Диплом III степени. 
Павел Парамонов. 
Дипломный проект «Культурно-образовательный лингвистический центр на Площади Ильича в Москве». Схема функционирования комплекса
Диплом III степени. Павел Парамонов. Дипломный проект «Культурно-образовательный лингвистический центр на Площади Ильича в Москве». Схема функционирования комплекса
Диплом III степени. 
Павел Парамонов. 
Дипломный проект «Культурно-образовательный лингвистический центр на Площади Ильича в Москве». Ситуационный план
Диплом III степени. Павел Парамонов. Дипломный проект «Культурно-образовательный лингвистический центр на Площади Ильича в Москве». Ситуационный план
Диплом III степени. 
Павел Парамонов. 
Дипломный проект «Культурно-образовательный лингвистический центр на Площади Ильича в Москве». Поперечный разрез
Диплом III степени. Павел Парамонов. Дипломный проект «Культурно-образовательный лингвистический центр на Площади Ильича в Москве». Поперечный разрез
Диплом III степени. 
Павел Парамонов. 
Дипломный проект «Культурно-образовательный лингвистический центр на Площади Ильича в Москве». Поиск функциональных моделей проектирования объекта
Диплом III степени. Павел Парамонов. Дипломный проект «Культурно-образовательный лингвистический центр на Площади Ильича в Москве». Поиск функциональных моделей проектирования объекта
Диплом III степени. 
Павел Парамонов. 
Дипломный проект «Культурно-образовательный лингвистический центр на Площади Ильича в Москве». План 2 этажа, варианты трансформации учебных кабинетов
Диплом III степени. Павел Парамонов. Дипломный проект «Культурно-образовательный лингвистический центр на Площади Ильича в Москве». План 2 этажа, варианты трансформации учебных кабинетов
Диплом III степени. 
Павел Парамонов. 
Дипломный проект «Культурно-образовательный лингвистический центр на Площади Ильича в Москве». План 3 этажа, варианты трансформации учебных кабинетов
Диплом III степени. Павел Парамонов. Дипломный проект «Культурно-образовательный лингвистический центр на Площади Ильича в Москве». План 3 этажа, варианты трансформации учебных кабинетов
Диплом III степени. 
Павел Парамонов. 
Дипломный проект «Культурно-образовательный лингвистический центр на Площади Ильича в Москве». Главный фасад
Диплом III степени. Павел Парамонов. Дипломный проект «Культурно-образовательный лингвистический центр на Площади Ильича в Москве». Главный фасад
Диплом III степени. 
Павел Парамонов. 
Дипломный проект «Культурно-образовательный лингвистический центр на Площади Ильича в Москве». Эскизы архитектурного образа
Диплом III степени. Павел Парамонов. Дипломный проект «Культурно-образовательный лингвистический центр на Площади Ильича в Москве». Эскизы архитектурного образа
Диплом III степени. 
Павел Парамонов. 
Дипломный проект «Культурно-образовательный лингвистический центр на Площади Ильича в Москве». Фрагмент перспективного изображения фасада
Диплом III степени. Павел Парамонов. Дипломный проект «Культурно-образовательный лингвистический центр на Площади Ильича в Москве». Фрагмент перспективного изображения фасада
Диплом III степени. 
Павел Парамонов. 
Дипломный проект «Культурно-образовательный лингвистический центр на Площади Ильича в Москве». Программа обучения
Диплом III степени. Павел Парамонов. Дипломный проект «Культурно-образовательный лингвистический центр на Площади Ильича в Москве». Программа обучения
Диплом III степени. 
Павел Парамонов. 
Дипломный проект «Культурно-образовательный лингвистический центр на Площади Ильича в Москве». Примеры тематических кабинетов блока «Наука»
Диплом III степени. Павел Парамонов. Дипломный проект «Культурно-образовательный лингвистический центр на Площади Ильича в Москве». Примеры тематических кабинетов блока «Наука»
Диплом III степени. 
Павел Парамонов. 
Дипломный проект «Культурно-образовательный лингвистический центр на Площади Ильича в Москве». Примеры тематических кабинетов блока «Искусство»
Диплом III степени. Павел Парамонов. Дипломный проект «Культурно-образовательный лингвистический центр на Площади Ильича в Москве». Примеры тематических кабинетов блока «Искусство»