Размещено на портале Архи.ру (www.archi.ru)

15.02.2017

Поворотный ритм

Наталья Леонова
Объект:
Жилой комплекс Байконур
Адрес:
Россия, Москва. ул. Орджоникидзе, вл. 13, стр. 1 Б/Н
Архитектор:
Антон Лукомский
Валерий Лукомский
Мастерская:
Сити-Арх

Сложный участок – небольшой и стеснённый коммуникациями – создаёт архитекторам проблемы, но может послужить и во благо, что вновь доказал Валерий Лукомский, вырастив пластику дома на улице Орджоникидзе из анализа множества данностей.

Многоквартирный жилой дом на ул. Орджоникидзе. Проект, 2016 © Сити-Арх
Многоквартирный жилой дом на ул. Орджоникидзе. Проект, 2016 © Сити-Арх

Жилой комплекс «Байконур» строится рядом с площадью Гагарина, на улице Орджоникидзе. Почти вплотную к нему стоит общежитие МАРХИ, за ним ЖК «Нескучный сад», построенный Николаем Лызловым в 2008 году. Ещё один ЖК – «Вавилова, 4» вскоре появится рядом, южнее. Впрочем, высокая плотность окружающей застройки – не единственная сложность, с которой бюро «Сити-Арх» столкнулось на данном участке.

Архитекторы знали: в непосредственной близости проходит туннель метрополитена. Согласно документам он должен был находиться в трёх метрах от объекта, и такое соседство не вызывало особенных опасений. На деле же метро оказалось почти вдвое ближе. Кроме того под участком проложены теплотрасса и высоковольтная линия электропередач. Словом, всё выглядело так, как будто обстоятельства не оставили проектировщикам ни малейшего пространства для маневра.

«Проект вырос из ограничений. Как говорил один мой коллега, когда существует масса ограничений и у тебя нет определённой степени свободы, работать очень легко», – шутит глава «Сити-Арх» Валерий Лукомский.
Многоквартирный жилой дом на ул. Орджоникидзе. Анализ территории участка. Проект, 2016 © Сити-Арх
Многоквартирный жилой дом на ул. Орджоникидзе. Анализ территории участка. Проект, 2016 © Сити-Арх
Многоквартирный жилой дом на ул. Орджоникидзе. Анализ территории участка. Проект, 2016 © Сити-Арх
Многоквартирный жилой дом на ул. Орджоникидзе. Анализ территории участка. Проект, 2016 © Сити-Арх
Многоквартирный жилой дом на ул. Орджоникидзе. Ситуационный план. Проект, 2015 © Сити-Арх
Многоквартирный жилой дом на ул. Орджоникидзе. Ситуационный план. Проект, 2015 © Сити-Арх

Впрочем, «Сити-Арх» расправились со сложностями участка достаточно изящно. Теплотрассу убрали в коллектор, который встроили в минус-первый этаж дома. Подземных этажа три, и работы идут на глубине пятнадцати метров, почти вровень с метротуннелем. Поэтому допустить смещение грунта в сторону метро более, чем на один сантиметр, было нельзя, и для ограждающих конструкций котлована архитекторы использовали технологию струйного цементирования – jet-сваи. Здание обеспечили виброзащитой, оно целиком стоит на виброэлементах. При этом был предусмотрен отложенный монтаж: после того, как основная несущая система закончена, её поднимают домкратом и ставят на виброопоры, чтобы точно отрегулировать нужную высоту. Тип виброопор решились поменять на более надёжный уже на стадии рабочей документации. Однако новые элементы не помещались в первоначальный план, поэтому нижний этаж пришлось переделывать, что заняло почти три месяца. В ходе работы перекраивали и площади будущих квартир, подгоняя их, по просьбе заказчика, под новые рыночные тренды. Квартиры получились от 45 до 123 м2.

Первоначально планировалось построить два 18-этажных корпуса. Архитекторы «Сити-Арх», изучив геометрию участка и особенности расположения соседних домов, пришли к выводу, что решить задачу стандартными средствами невозможно. Во-первых, подобная высота нарушила бы нормы инсоляции общежития МАРХИ. Во-вторых, два одинаковых объема, поставленных в прямую линию, с трудом вписывались в территорию, выделенную под застройку. Все эти сложности вылились в интересное объёмно-пространственное решение.

ЖК «Байконур» сделали разноэтажным: одну часть опустили до уровня 15 этажей, а вторую вырастили до 19. План дома представляет собой два врастающих друг в друга прямоугольника, один из которых, усеченный, развернут под углом около 45º. Дом, если смотреть на него сверху, получил неожиданно-контекстуальное сходство с общежитием МАРХИ, которое состоит из двух пластин, соединенных общим углом, хотя и строже, без разворота.

Поворот же в данном случае помог не только обеспечить необходимую инсоляцию и приватность как самому дому, так и его нынешним и будущим соседям, но и позволил удачно вписать его в городское окружение. Девятнадцатиэтажная башня стала тем вертикальным акцентом, который на советах любят называть доминантой: подчеркнула угол между улицей Орджоникидзе и проездом, ведущим к улице Вавилова. Поворот заострил силуэт дома и ориентировал его на ось пешеходного маршрута от ближайшей автобусной остановки на Ленинском проспекте. В то же время если высокая башня салютует дому Николая Лызлова, но башня поменьше образует ступеньку, необходимую для разнообразного силуэта: рассчитывая панораму с учетом будущего ЖК «Вавилова, 4», архитекторы смогли создать пусть неизбежно плотный, но все же не лишённый пауз городской силуэт.
Многоквартирный жилой дом на ул. Орджоникидзе. Проект, 2016 © Сити-Арх
Многоквартирный жилой дом на ул. Орджоникидзе. Проект, 2016 © Сити-Арх
Многоквартирный жилой дом на ул. Орджоникидзе. Проект, 2016 © Сити-Арх
Многоквартирный жилой дом на ул. Орджоникидзе. Проект, 2016 © Сити-Арх

Стыковку двух объёмов следовало не только использовать, но и проявить пластически. Так в верхней части появился воображаемый шарнир – треугольный балкон с изящной золотистого цвета опорой, издали похожий на стыковочную «лапу» дома-механизма.
Многоквартирный жилой дом на ул. Орджоникидзе. Проект, 2016 © Сити-Арх
Многоквартирный жилой дом на ул. Орджоникидзе. Проект, 2016 © Сити-Арх

Но свободного пространства, «воздуха» всё равно не хватало. «Я не люблю, когда объект решён так, что нет пустоты, нет пространства. Если есть перетекание внешнего во внутреннее – это выглядит гораздо интереснее. Поэтому появилась такая сдвижка, когда один объем органично пересекается с другим. Имея узел первых пяти этажей и вот такую сдвижку, можно делать любой фасад и использовать любой материал», – объясняет Валерий Лукомский.

Добавить необходимую для гармонии пустоту вокруг нижнего яруса не позволял размер участка, но архитекторы «Сити-Арх» нашли выход. Объёмы трёх занятых офисами нижних этажей 19-этажной башни ступенчато сдвинули на юг, в сторону улицы Вавилова. На их кровлях предусмотрели террасы для офисных сотрудников; здесь отчасти (деревьями в кадках) планируется компенсировать недостаток озеленения. Дом получил, таким образом, своеобразную «подошву» – визуальную опору. Две стройные белые башни, развёрнутые друг относительно друга на воображаемом шарнире, оттенены тёмным титан-цинком горизонтальных офисных террас.
Схема построения объёмной композиции. Многоквартирный жилой дом на ул. Орджоникидзе. Схема формообразования. Проект, 2016 © Сити-Арх
Схема построения объёмной композиции. Многоквартирный жилой дом на ул. Орджоникидзе. Схема формообразования. Проект, 2016 © Сити-Арх
Вид с юго-запада. Многоквартирный жилой дом на ул. Орджоникидзе. Проект, 2016 © Сити-Арх
Вид с юго-запада. Многоквартирный жилой дом на ул. Орджоникидзе. Проект, 2016 © Сити-Арх
Террасы офисной части. Многоквартирный жилой дом на ул. Орджоникидзе. Проект, 2016 © Сити-Арх
Террасы офисной части. Многоквартирный жилой дом на ул. Орджоникидзе. Проект, 2016 © Сити-Арх
Многоквартирный жилой дом на ул. Орджоникидзе. Разрез. Проект, 2016 © Сити-Арх
Многоквартирный жилой дом на ул. Орджоникидзе. Разрез. Проект, 2016 © Сити-Арх

А внутри сдвиг освободил двусветное пространство для небольшого, но высокого лобби. Тёмная консоль, обведённая широкой рамкой-телевизором, выступает в строну улицы Орджоникидзе, акцентируя вход массивным «козырьком». Её поддерживают четыре пластины гранитных пилонов, установленных продольно, открывая вход и отчасти даже приглашая, «затягивая» внутрь, как и полагается порталу таких размеров.
Многоквартирный жилой дом на ул. Орджоникидзе. Проект, 2016 © Сити-Арх
Многоквартирный жилой дом на ул. Орджоникидзе. Проект, 2016 © Сити-Арх

На продольных сторонах пилонов с помощью спайдерных систем будет крепиться стекло с иллюстрациями и текстами, посвященными освоению космоса – отдавая дань соседству площади Гагарина и очевидно вдохновлённому им названию ЖК «Байконур». На нижней плоскости козырька-консоли также появится светящийся по ночам рисунок звёздного неба. Планируется, что интерьеры общественных зон тоже будут так или иначе обыгрывать космическую тематику.
Многоквартирный жилой дом на ул. Орджоникидзе. Проект, 2016 © Сити-Арх
Многоквартирный жилой дом на ул. Орджоникидзе. Проект, 2016 © Сити-Арх
***

Здание – а в современной архитектуре это распространённый приём – делает свою вынужденно-лепную форму частью образа, давая ощутить сложность сопряжений и даже некоторую напряженность контраста черного и белого, горизонталей и вертикалей, прорастающих друг в друга.

Помимо башен и террас ещё один пример такого прорастания-под-углом – тёмный цинковый козырёк на северо-восточном углу малой башни. Он призван привлечь внимание к кафе и магазинам первых этажей, а кроме того – скрасить проходящего здесь пути от автобусной остановки к общежитию МАРХИ.
Многоквартирный жилой дом на ул. Орджоникидзе. Проект, 2016 © Сити-Арх
Многоквартирный жилой дом на ул. Орджоникидзе. Проект, 2016 © Сити-Арх

Не менее актуально равновесие горизонталей и вертикалей. Протяжённость ступеней офисных этажей подчёркнута сеткой рельефных полос, усиливающих их образное сходство с тектоническими пластами. Однако тут же вступает в силу и противоположный голос – тонкие вертикали деревянных ламелей дробят крупные плоскости стекла витрин. Белые фасады башен, чей рисунок подчинён стройным парам окон с редкими, но регулярными акцентами золотистой охры – уравновешены горизонтальной сеткой стыков крупных керамогранитных плит, напоминающей тонкий руст. 
***

Отдельным сюжетом стало благоустройство. Миниатюрная территория, оставшаяся от пятна застройки, не будет ограждена – напротив, архитекторы продумали ряд мелочей, направленных на то, чтобы активнее включить её в городское пространство. В частности, запланировано благоустройство зелёной зоны вдоль улицы Орджоникидзе – сейчас здесь довольно много деревьев, хотя большинство из них американские клёны. Мини-сквер остаётся городским и в то же время он становится частью пространства ЖК, добавляя «воздуха» в прямом и переносном смысле. Здесь появится ещё одна пешеходная дорожка, и трава, будем надеяться, приобретёт цивильный вид.

Здесь же, перед пилонами входа, к которым, как мы помним, ведёт ближайшая «народная тропа» от Ленинского проспекта, появилась небольшая площадь. Её не испортила даже вентшахта трёхъярусной подземной парковки, которую больше некуда было вывести: архитекторы оформили шахту в виде блестящего стеклянного шара – получился почти что памятник спутнику – что созвучно космической тематике дома. На поверхности шара установят монитор с полезной для жильцов информацией. Шар стоит на аккуратно-выпуклом, круглом холме газона, который смело, в духе современной урбанистики, прорезан студенческой тропой. Вымостку же авторы решили сделать равномерной, из одного материала, чтобы не усложнять без того небольшой фрагмент городского пространства.
Вид с северо-запада. Многоквартирный жилой дом на ул. Орджоникидзе. Проект, 2016 © Сити-Арх
Вид с северо-запада. Многоквартирный жилой дом на ул. Орджоникидзе. Проект, 2016 © Сити-Арх

Словом, проект ЖК «Байконур» проработан до мелочей. «Если нет деталей, то и объекта практически не будет», – поясняет глава «Сити-Арх» Валерий Лукомский. На фестивале «Зодчество»-2016 года проект вошёл в пятёрку лучших.
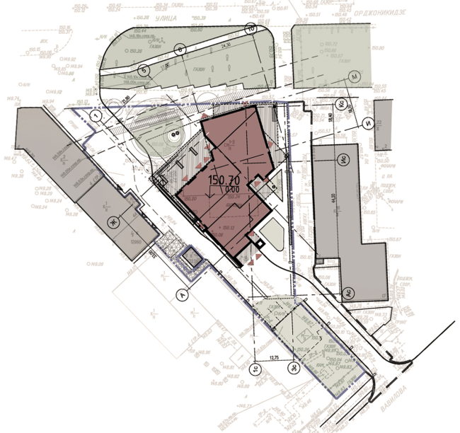
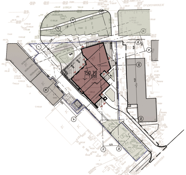
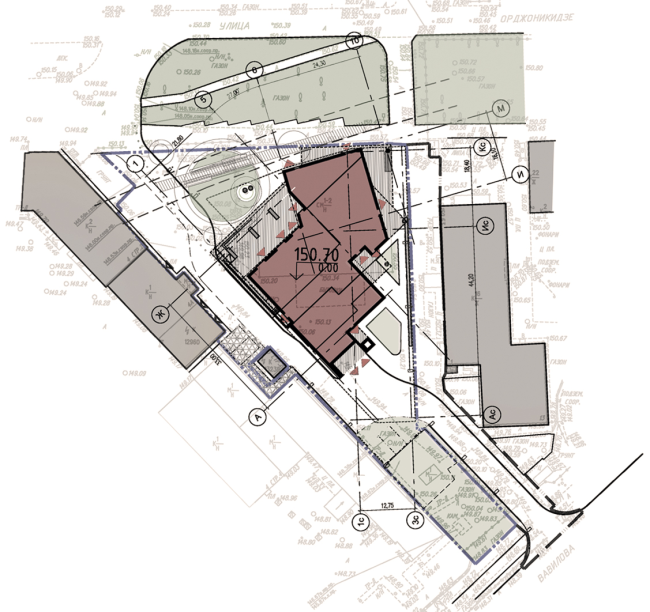
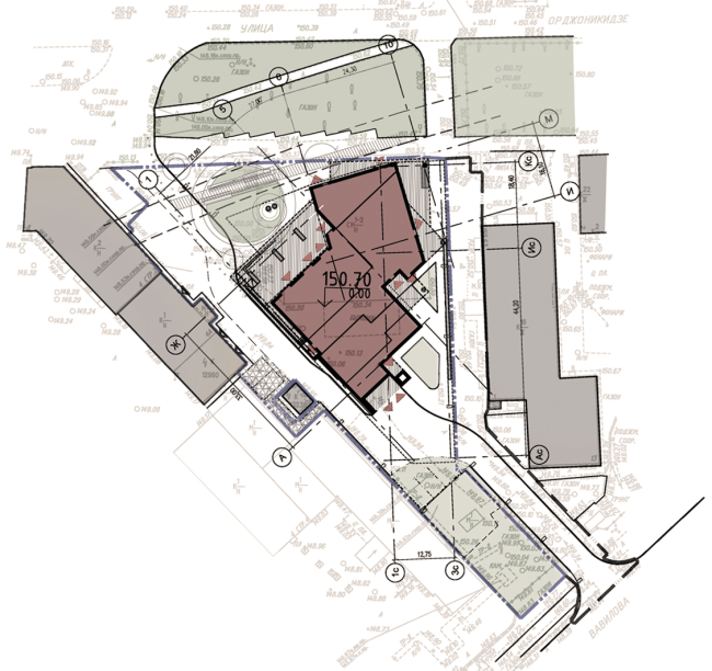
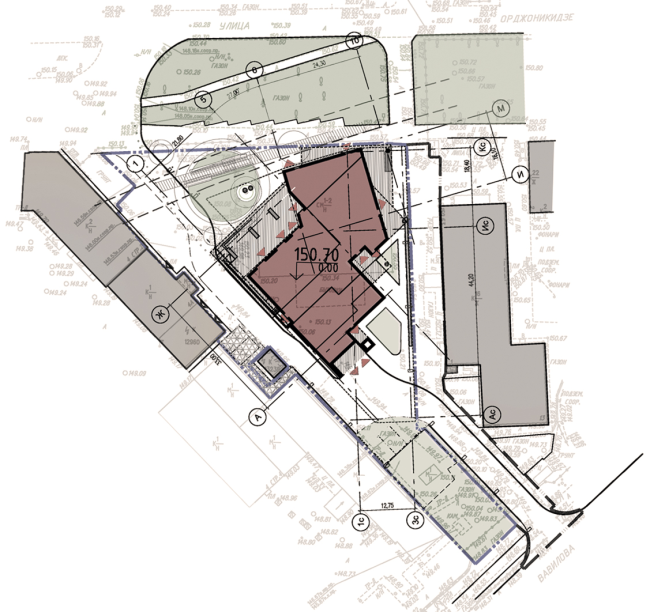
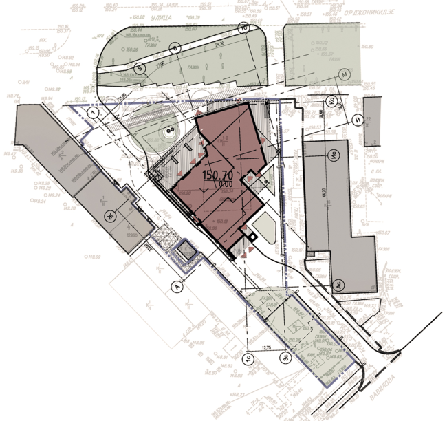
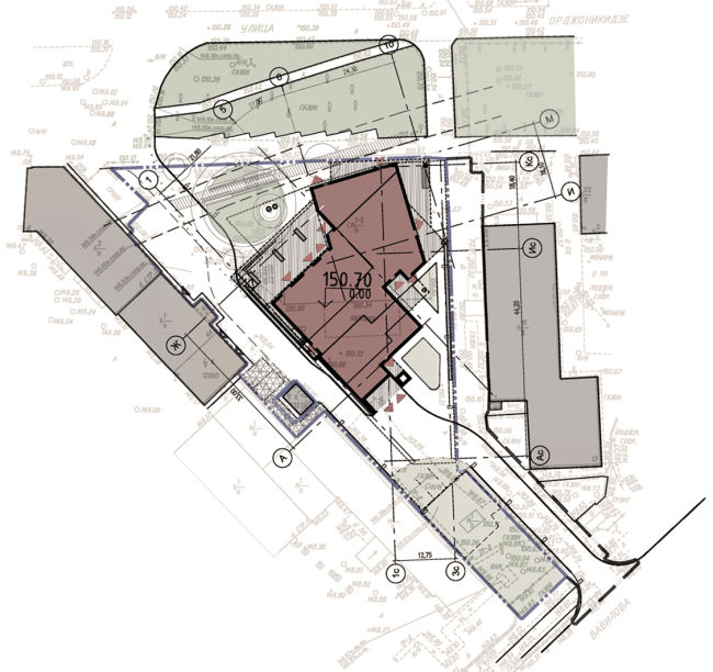
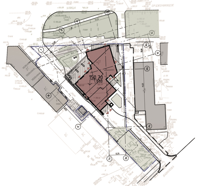
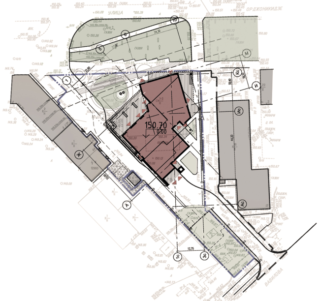
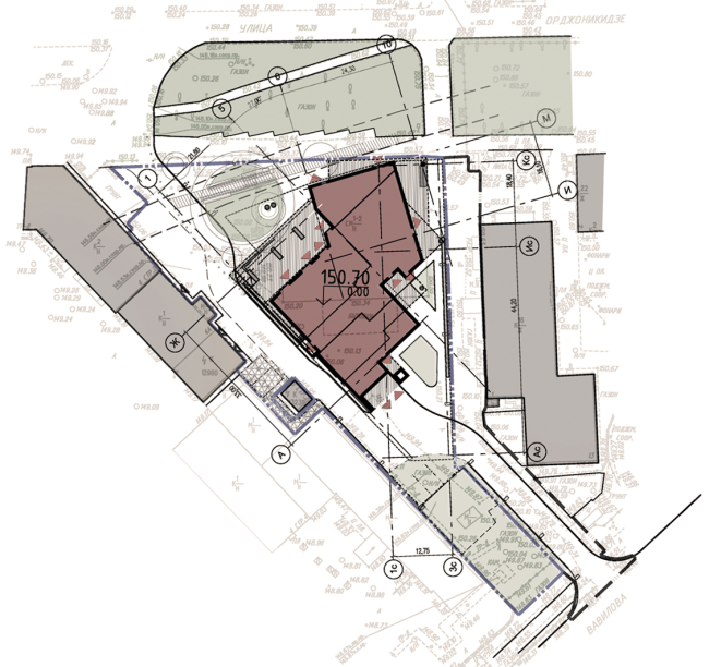
Многоквартирный жилой дом на ул. Орджоникидзе. Генеральный план. Проект, 2016 © Сити-Арх
Многоквартирный жилой дом на ул. Орджоникидзе. Генеральный план. Проект, 2016 © Сити-Арх
Многоквартирный жилой дом на ул. Орджоникидзе. План -1 этажа. Проект, 2016 © Сити-Арх
Многоквартирный жилой дом на ул. Орджоникидзе. План -1 этажа. Проект, 2016 © Сити-Арх
Многоквартирный жилой дом на ул. Орджоникидзе. План 1 этажа. Проект, 2016 © Сити-Арх
Многоквартирный жилой дом на ул. Орджоникидзе. План 1 этажа. Проект, 2016 © Сити-Арх
Многоквартирный жилой дом на ул. Орджоникидзе. План 2 этажа. Проект, 2016 © Сити-Арх
Многоквартирный жилой дом на ул. Орджоникидзе. План 2 этажа. Проект, 2016 © Сити-Арх
Многоквартирный жилой дом на ул. Орджоникидзе. План 8 этажа. Проект, 2016 © Сити-Арх
Многоквартирный жилой дом на ул. Орджоникидзе. План 8 этажа. Проект, 2016 © Сити-Арх