Размещено на портале Архи.ру (www.archi.ru)

12.11.2016

Традиционно-современный

Объект:
«Дома для молодых»
Адрес:
Россия, Сочи. поселок «Молдовка»
Жилой дом Cross
Адрес:
Россия, Сочи. пос. Краево-Армянское

Проект частного дома Cross в Сочи.

Жилой дом Сross. Проект, 2016 © Максим Любецкий
Жилой дом Сross. Проект, 2016 © Максим Любецкий

Частный жилой дом Cross по проекту Максима Любецкого будет построен в Сочи в 2018 году. Заказчики, семейная пара с двумя детьми, обратились к архитектору с просьбой на небольшой вытянутой вдоль дороги частной территории спланировать и построить дом для постоянного проживания их семьи.

Получалось, что здание общей площадью около 250 м2 займет почти весь участок, а будущим хозяевам хотелось иметь возможность значительное время проводить на улице, а не в помещениях, к чему, безусловно, располагает сочинский климат. И Максиму Любецкому удалось найти удачное архитектурное решение. Дом действительно займет практически всю разрешенную для застройки территорию  он отчасти повторит вытянутую форму участка. Огромные окна от пола до потолка впустят в дом много естественного света. Узкими будут лишь окна в коридоре, да торцевые фасады, выходящие на соседские дома, сделают глухими. В гостиной остеклят противоположные стены, и улица станет естественным визуальным продолжением интерьера. Однако прямой солнечный свет не принесёт сюда дискомфорт и жару – окна будут «заглублены» внутрь фасада.
Жилой дом Сross. Проект, 2016 © Максим Любецкий
Жилой дом Сross. Проект, 2016 © Максим Любецкий

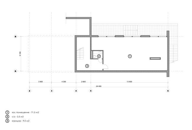
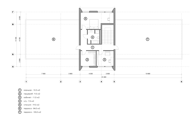
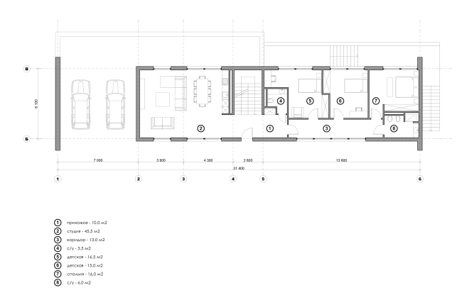
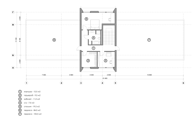
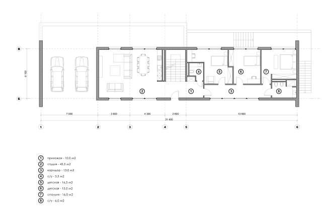
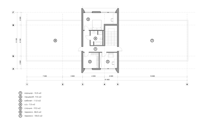
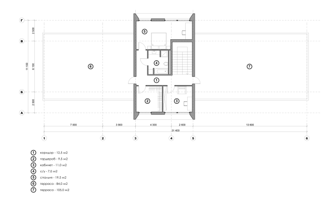
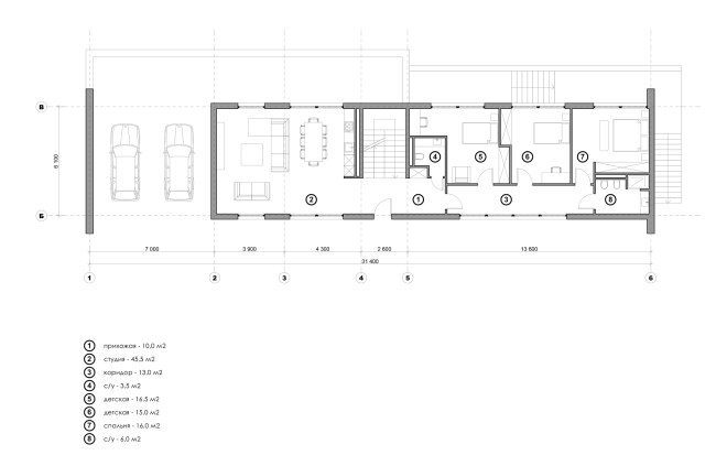
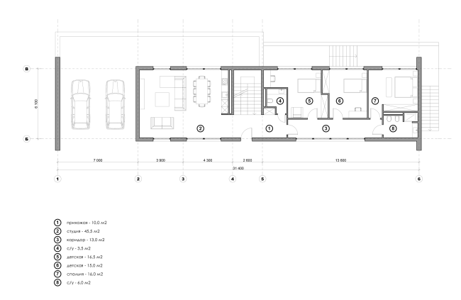
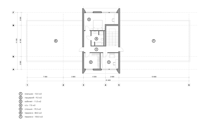
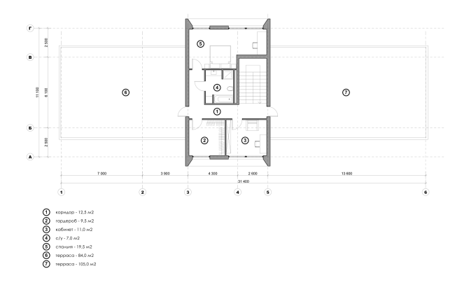
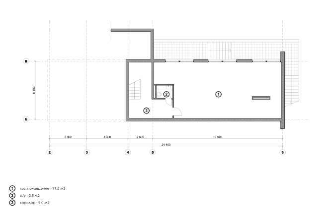
Перепад рельефа на участке составляет 3,5 метра, и эта особенность повлияла на планировку. Эксплуатируемый цокольный этаж находится лишь под частью дома – архитектор предложил заказчикам организовать здесь спортивный зал. Главный вход расположен на уровне первого этажа, по центру главного фасада. Общественная зона традиционно объединяет гостиную, столовую и кухню. В приватной части находятся две детские, гостевая спальня и ванная комната. Помещения второго этажа, предназначенные для хозяев дома, гораздо меньше по площади. Согласно планировке напротив лестницы здесь расположится кабинет и гардеробная, в глубине – хозяйская спальня и ванная. Однако малая площадь – иллюзия. Вместо помещений под крышей на уровне второго этажа автор проекта запланировал огромные террасы – 84 м2 и 100 м2, которые по сути станут продолжением интерьеров и компенсируют недостаток места на участке.
Жилой дом Сross. Проект, 2016 © Максим Любецкий
Жилой дом Сross. Проект, 2016 © Максим Любецкий

При первом взгляде на проект Максима Любецкого покажется, что он сделан в традиции «добротного» минимализма. Но простые формы, отсутствие декора, большие окна и террасы – довольно характерное решение и для частных построек в южном климате. Перед нами не только минималистская постройка в классическом понимании стиля, но отчасти современная интерпретация одного из типов традиционного сочинского дома.
Жилой дом Сross. Проект, 2016 © Максим Любецкий
Жилой дом Сross. Проект, 2016 © Максим Любецкий

На архитектурном конкурсе «Архразрез» 2016 года дом Cross был удостоен первой премии в номинации «Индивидуальные жилые дома».

Архитектор Максим Любецкий на фестивале «Зодчество 2016» получил золотой диплом за концепцию «Дома для молодых семей», опубликованную на нашем портале. 
Жилой дом Сross. Проект, 2016 © Максим Любецкий
Жилой дом Сross. Проект, 2016 © Максим Любецкий
Жилой дом Сross. Проект, 2016 © Максим Любецкий
Жилой дом Сross. Проект, 2016 © Максим Любецкий
Жилой дом Cross. Генеральный план участка © Максим Любецкий
Жилой дом Cross. Генеральный план участка © Максим Любецкий
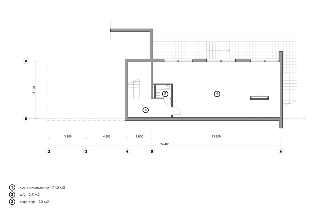
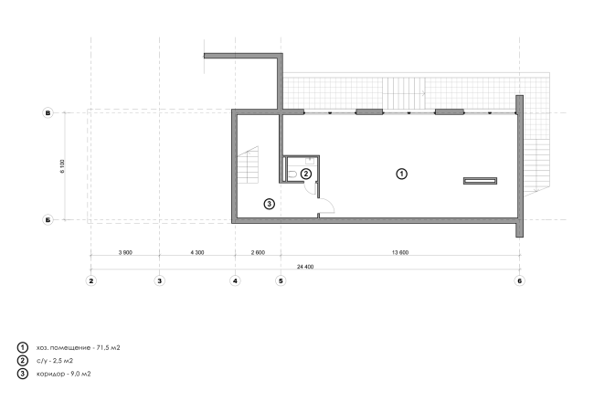
Жилой дом Сross. План цокольного этажа © Максим Любецкий
Жилой дом Сross. План цокольного этажа © Максим Любецкий
Жилой дом Сross. План 1-го этажа © Максим Любецкий
Жилой дом Сross. План 1-го этажа © Максим Любецкий
Жилой дом Сross. План 2-го этажа © Максим Любецкий
Жилой дом Сross. План 2-го этажа © Максим Любецкий
Жилой дом Сross. Фасад 1-6 © Максим Любецкий
Жилой дом Сross. Фасад 1-6 © Максим Любецкий
Жилой дом Сross. Фасад 6-1 © Максим Любецкий
Жилой дом Сross. Фасад 6-1 © Максим Любецкий