Размещено на портале Архи.ру (www.archi.ru)

10.11.2016

Тройная корона

Нина Фролова
Объект:
Смитсоновский национальный музей афроамериканской истории и культуры
Адрес:
США, None, Вашингтон.
Мастерская:
Davis Brody Bond
Freelon Group

Смитсоновский национальный музей афроамериканской истории и культуры в Вашингтоне по проекту Дэвида Аджайе.

Смитсоновский национальный музей афроамериканской истории и культуры © Alan Karchmer / NMAAHC
Смитсоновский национальный музей афроамериканской истории и культуры © Alan Karchmer / NMAAHC

Новый музей располагается на Национальной аллее (National Mall), классицистической эспланаде, где сосредоточены главные музеи и монументы США. Контекст определил облик всех находящихся там неклассичечких сооружений (хотя традиционалистские все же преобладают): это «герметичные», сдержанные постройки, и работа Аджайе не стала исключением. Ее прямоугольный блок, одетый в трехярусную «корону» – это отсылка к западноафриканской культуре йоруба.
 
Смитсоновский национальный музей афроамериканской истории и культуры © Alan Karchmer / NMAAHC
Смитсоновский национальный музей афроамериканской истории и культуры © Alan Karchmer / NMAAHC

Остекленный фасад снаружи забран орнаментальной металлической решеткой, которая должна напоминать традиционные кованые украшения особняков Юга США, которые изготовлялись именно афроамериканскими рабами. Плотность решетки можно регулировать в зависимости от сезона, защищая помещения от солнца или наполняя их солнечным светом: это один из эко-компонентов проекта, который позволяет ему претендовать на «золотой» сертификат ресурсоэффективности LEED. Главный вход в музей оформлен «крыльцом» – затененной переходной зоной между улицей и интерьером: тоже аллюзия на типичную для Африки и построек африканской диаспоры в южных штатах и в странах Карибского бассейна архитектурную деталь.
 
Смитсоновский национальный музей афроамериканской истории и культуры © Alan Karchmer / NMAAHC
Смитсоновский национальный музей афроамериканской истории и культуры © Alan Karchmer / NMAAHC

Такое разнообразие мотивов определено коллективом авторов: родившийся в Гане «гражданин мира» Аджайе, который в последние годы занимается исследованием африканской архитектуры во всем ее разнообразии, Freelon Group и Davis Brody Bond – ведущие американские проектировщики афроамериканских музеев, архивов и мемориалов. Вместе они образовали команду Freelon Adjaye Bond/SmithGroup (FAB). Бюджет проекта составил 540 млн долларов.
 
Смитсоновский национальный музей афроамериканской истории и культуры © Alan Karchmer / NMAAHC
Смитсоновский национальный музей афроамериканской истории и культуры © Alan Karchmer / NMAAHC

Музей учитывает и свое конкретное, очень заметное местоположение: на границе обширного открытого пространства, окружающего обелиск Мемориала Джорджа Вашингтона. Поэтому значительная часть здания погружена под землю (снаружи – пять этажей), а угол наклона ярусов «короны» – те же 17 градусов, что и у «пирамидиона» на вершине обелиска.
Смитсоновский национальный музей афроамериканской истории и культуры © Alan Karchmer / NMAAHC
Смитсоновский национальный музей афроамериканской истории и культуры © Alan Karchmer / NMAAHC
Смитсоновский национальный музей афроамериканской истории и культуры © Alan Karchmer / NMAAHC
Смитсоновский национальный музей афроамериканской истории и культуры © Alan Karchmer / NMAAHC
Смитсоновский национальный музей афроамериканской истории и культуры © Alan Karchmer / NMAAHC
Смитсоновский национальный музей афроамериканской истории и культуры © Alan Karchmer / NMAAHC
Смитсоновский национальный музей афроамериканской истории и культуры © Alan Karchmer / NMAAHC
Смитсоновский национальный музей афроамериканской истории и культуры © Alan Karchmer / NMAAHC
Смитсоновский национальный музей афроамериканской истории и культуры © Alan Karchmer / NMAAHC
Смитсоновский национальный музей афроамериканской истории и культуры © Alan Karchmer / NMAAHC
Смитсоновский национальный музей афроамериканской истории и культуры © Alan Karchmer / NMAAHC
Смитсоновский национальный музей афроамериканской истории и культуры © Alan Karchmer / NMAAHC
Смитсоновский национальный музей афроамериканской истории и культуры © Alan Karchmer / NMAAHC
Смитсоновский национальный музей афроамериканской истории и культуры © Alan Karchmer / NMAAHC
Смитсоновский национальный музей афроамериканской истории и культуры © Alan Karchmer / NMAAHC
Смитсоновский национальный музей афроамериканской истории и культуры © Alan Karchmer / NMAAHC
Смитсоновский национальный музей афроамериканской истории и культуры © Alan Karchmer / NMAAHC
Смитсоновский национальный музей афроамериканской истории и культуры © Alan Karchmer / NMAAHC
Смитсоновский национальный музей афроамериканской истории и культуры © Alan Karchmer / NMAAHC
Смитсоновский национальный музей афроамериканской истории и культуры © Alan Karchmer / NMAAHC
Смитсоновский национальный музей афроамериканской истории и культуры © Alan Karchmer / NMAAHC
Смитсоновский национальный музей афроамериканской истории и культуры © Alan Karchmer / NMAAHC
Смитсоновский национальный музей афроамериканской истории и культуры © Alan Karchmer / NMAAHC
Смитсоновский национальный музей афроамериканской истории и культуры © Alan Karchmer / NMAAHC
Смитсоновский национальный музей афроамериканской истории и культуры © Alan Karchmer / NMAAHC
Смитсоновский национальный музей афроамериканской истории и культуры © Alan Karchmer / NMAAHC
Смитсоновский национальный музей афроамериканской истории и культуры © Alan Karchmer / NMAAHC
Смитсоновский национальный музей афроамериканской истории и культуры © Alan Karchmer / NMAAHC
Смитсоновский национальный музей афроамериканской истории и культуры © Alan Karchmer / NMAAHC
Смитсоновский национальный музей афроамериканской истории и культуры © Alan Karchmer / NMAAHC
Смитсоновский национальный музей афроамериканской истории и культуры © Alan Karchmer / NMAAHC
Смитсоновский национальный музей афроамериканской истории и культуры © Alan Karchmer / NMAAHC
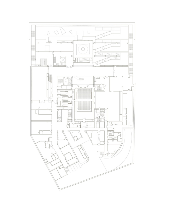
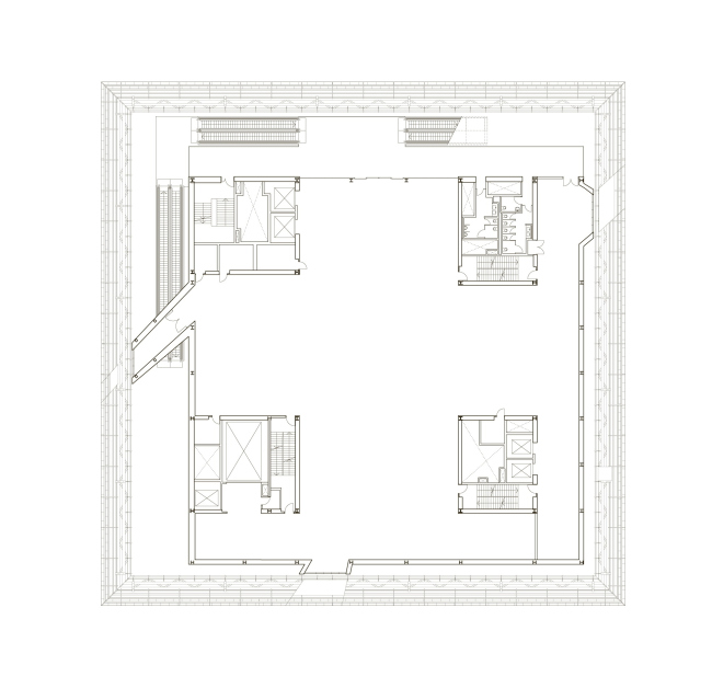
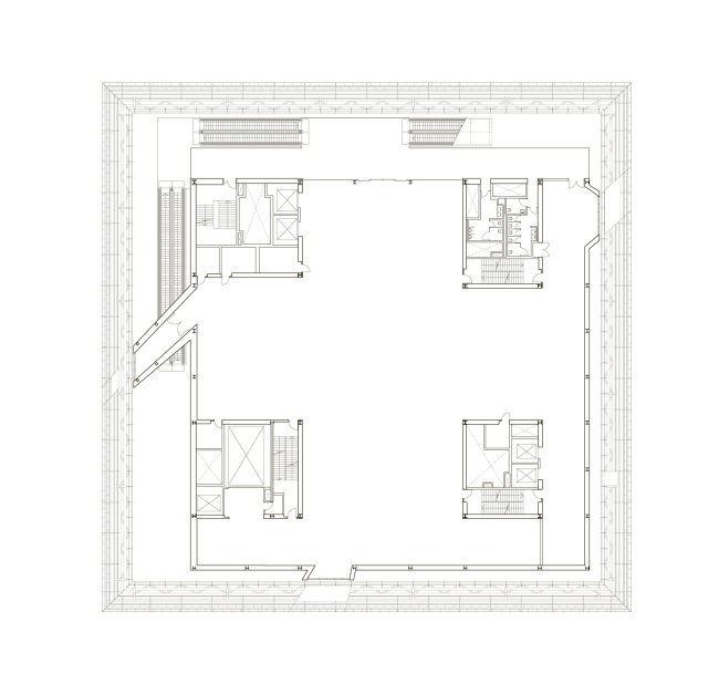
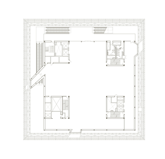
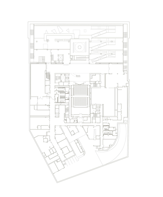
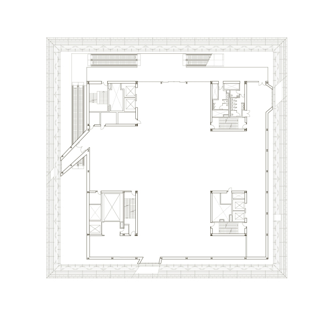
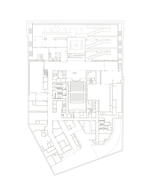
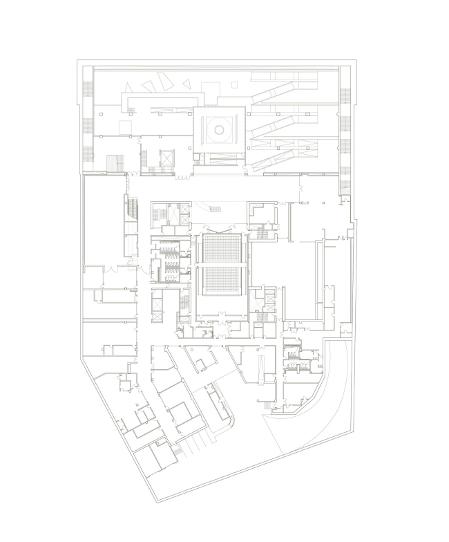
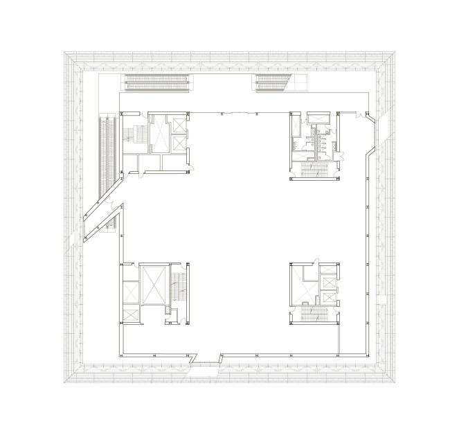
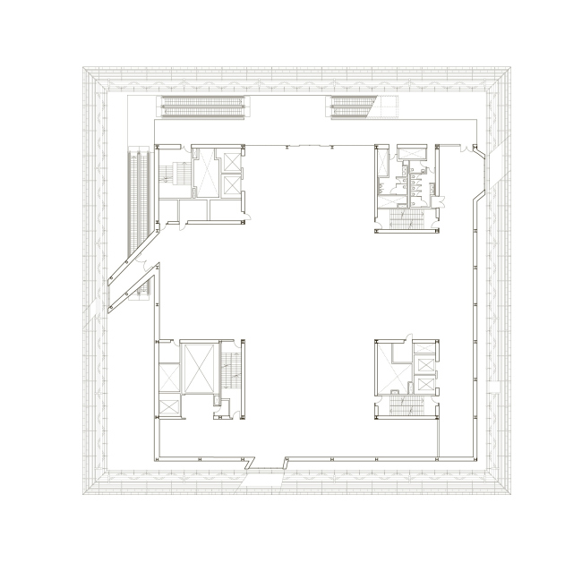
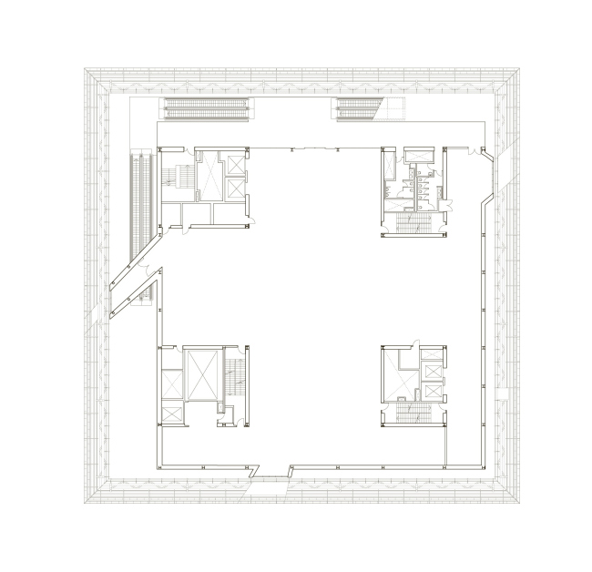
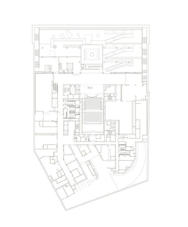
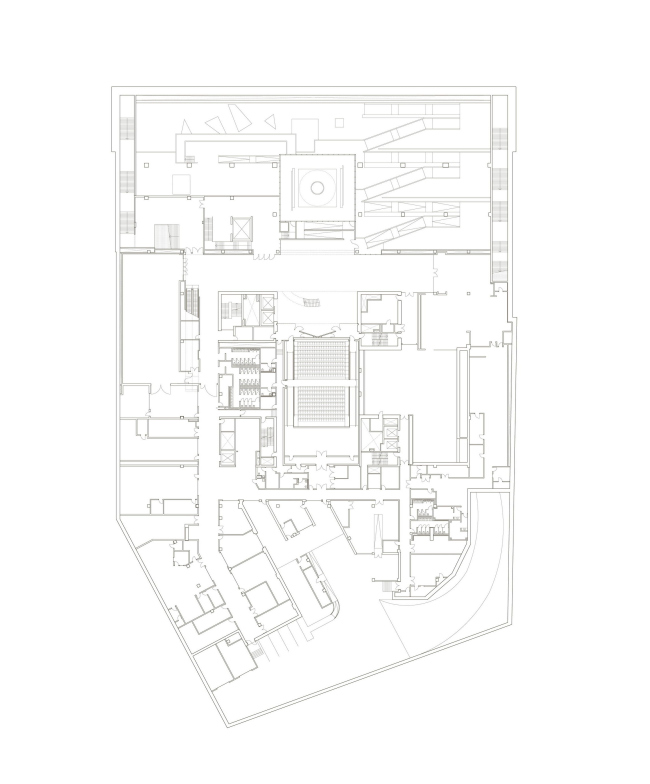
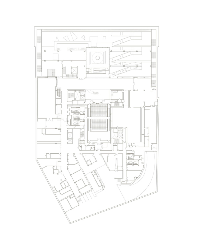
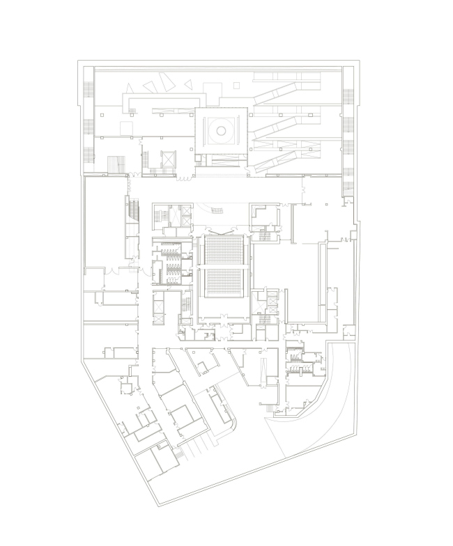
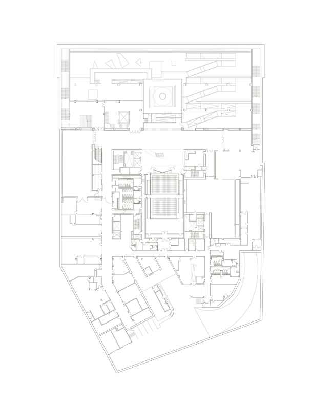
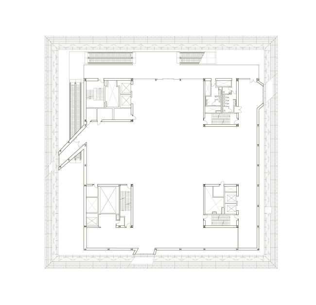
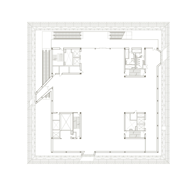
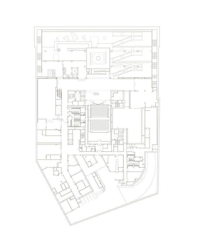
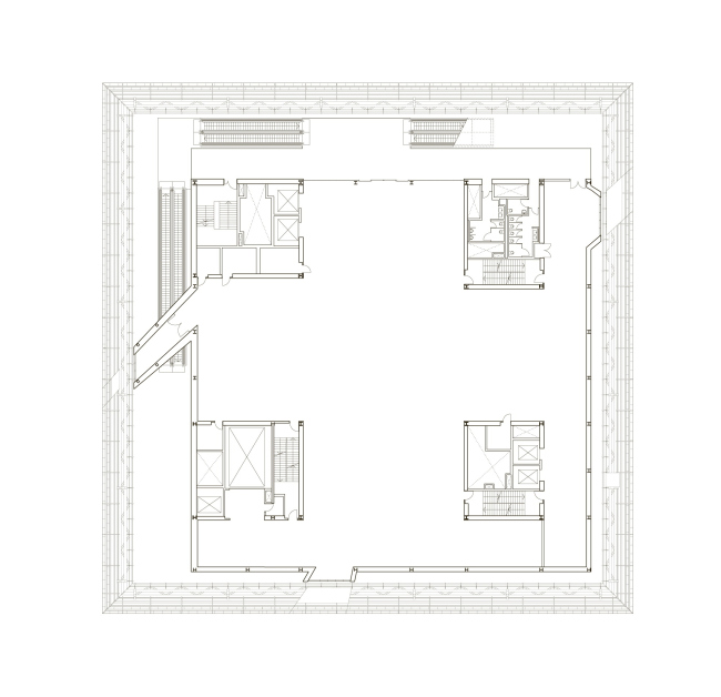
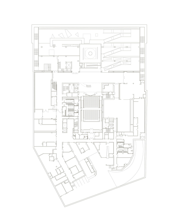
Смитсоновский национальный музей афроамериканской истории и культуры. Предоставлено David Adjaye Associates
Смитсоновский национальный музей афроамериканской истории и культуры. Предоставлено David Adjaye Associates
Смитсоновский национальный музей афроамериканской истории и культуры. Предоставлено David Adjaye Associates
Смитсоновский национальный музей афроамериканской истории и культуры. Предоставлено David Adjaye Associates
Смитсоновский национальный музей афроамериканской истории и культуры. Предоставлено David Adjaye Associates
Смитсоновский национальный музей афроамериканской истории и культуры. Предоставлено David Adjaye Associates
Смитсоновский национальный музей афроамериканской истории и культуры. Предоставлено David Adjaye Associates
Смитсоновский национальный музей афроамериканской истории и культуры. Предоставлено David Adjaye Associates
Смитсоновский национальный музей афроамериканской истории и культуры. Предоставлено David Adjaye Associates
Смитсоновский национальный музей афроамериканской истории и культуры. Предоставлено David Adjaye Associates
Смитсоновский национальный музей афроамериканской истории и культуры. Предоставлено David Adjaye Associates
Смитсоновский национальный музей афроамериканской истории и культуры. Предоставлено David Adjaye Associates
Смитсоновский национальный музей афроамериканской истории и культуры. Предоставлено David Adjaye Associates
Смитсоновский национальный музей афроамериканской истории и культуры. Предоставлено David Adjaye Associates