Размещено на портале Архи.ру (www.archi.ru)

07.11.2016

Облако в коробке

Нина Фролова
Объект:
Новый конгресс-центр района EUR – «Облако»
Адрес:
Италия, None, Рим.

В Риме открылся конгресс-центр района EUR по проекту Массимилиано Фуксаса.

Новый конгресс-центр района EUR – «Облако» © Leonardo Finotti
Новый конгресс-центр района EUR – «Облако» © Leonardo Finotti

Новый комплекс состоит из прямоугольного блока собственно конгресс-центра и 55-метровой черной стеклянной башни отеля на 439 номеров. Он появился в районе EUR (Esposizione Universale di Roma), изначально предназначавшемся Муссолини для проведения Всемирной выставки 1942 года – по соседству с застройкой тех лет и спортивными сооружениями Пьер Луиджи Нерви для Олимпиады–1960.
 
Новый конгресс-центр района EUR – «Облако» © Moreno Maggi
Новый конгресс-центр района EUR – «Облако» © Moreno Maggi

История проекта началась еще в 1998, когда был объявлен архитектурный конкурс (его выиграл Фуксас в 2000). Это государственный проект, продвигавшийся со значительным трудом и остановками, которые порой казались окончательными; денег не хватало, был значительно превышен бюджет (в итоге он составил 275 млн евро): подробнее эту историю Архи.ру планирует рассказать в отдельной публикации.
 
Новый конгресс-центр района EUR – «Облако» © Moreno Maggi
Новый конгресс-центр района EUR – «Облако» © Moreno Maggi

Итак, 18 лет спустя конгресс-центр, прозванный по своему самому оригинальному компоненту, мембранному объему в центре – Nuvola, «Облако» – был открыт 29 октября мэром Рима Вирджинией Раджи. Центр вместе с отелем должен приносить в бюджет города ежегодно порядка 300–400 млн евро.
 
Новый конгресс-центр района EUR – «Облако» © Leonardo Finotti
Новый конгресс-центр района EUR – «Облако» © Leonardo Finotti

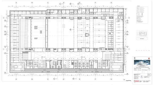
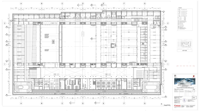
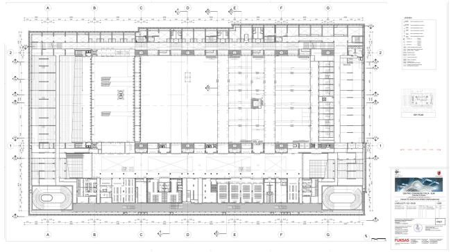
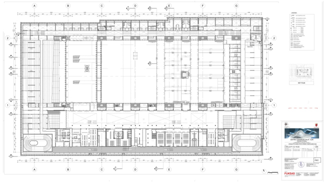
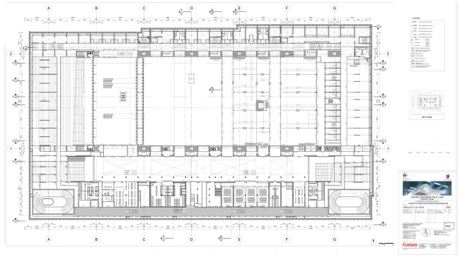
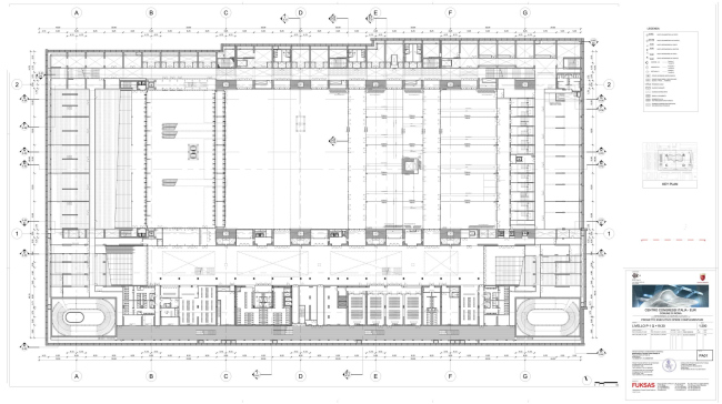
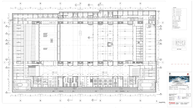
Здание конгресс-центра состоит из двух частей: прямоугольной стеклянной оболочки «Тека» и подвешенного внутри нее «Облака». «Облако» выполнено из светопроницаемой мембраны Atex® 2000 TRL (ткань из стекловолокна с добавлением кремнийсодержащих органических соединений) и скрывает в себе обшитый древесиной вишни зал на 1800 мест – главный в комплексе. В подземном уровне расположены пространства для выставок и конференций, которые в общей сложности дают еще 6000 мест (предусмотрена возможность настройки планировки под конкретное мероприятие).
 
Новый конгресс-центр района EUR – «Облако» © Leonardo Finotti
Новый конгресс-центр района EUR – «Облако» © Leonardo Finotti

Предусмотрены щедрые по масштабу общественные пространства: две площади устроены снаружи, вымощенный травертином «Форум» (7500 м2) – внутри «Теки», не считая вестибюлей. Имеется подземная парковка на 615 автомобилей.
 
Новый конгресс-центр района EUR – «Облако» © Leonardo Finotti
Новый конгресс-центр района EUR – «Облако» © Leonardo Finotti

И отель (названный архитектором «Лезвие»), и конгресс-центр сделаны максимально сейсмобезопасными, что актуально в связи с недавними землетрясениями в центральной Италии. Особое внимание уделено экологическим компонентам проекта: солнечные батареи установлены на всех фасадах обоих зданий и на кровле «Теки». Для охлаждения воздуха используются геотермальная система и вода из расположенного рядом искусственного озера (оно было создано еще при Муссолини). Энергию для комплекса также будет вырабатывать когенерационная электростанция. Предусмотрена система сбора дождевой воды.
 
Новый конгресс-центр района EUR – «Облако» © Leonardo Finotti
Новый конгресс-центр района EUR – «Облако» © Leonardo Finotti
Новый конгресс-центр района EUR – «Облако» © Moreno Maggi
Новый конгресс-центр района EUR – «Облако» © Moreno Maggi
Новый конгресс-центр района EUR – «Облако» © Maurizio Marcato
Новый конгресс-центр района EUR – «Облако» © Maurizio Marcato
Новый конгресс-центр района EUR – «Облако» © Leonardo Finotti
Новый конгресс-центр района EUR – «Облако» © Leonardo Finotti
Новый конгресс-центр района EUR – «Облако» © Leonardo Finotti
Новый конгресс-центр района EUR – «Облако» © Leonardo Finotti
Новый конгресс-центр района EUR – «Облако» © Leonardo Finotti
Новый конгресс-центр района EUR – «Облако» © Leonardo Finotti
Новый конгресс-центр района EUR – «Облако» © Moreno Maggi
Новый конгресс-центр района EUR – «Облако» © Moreno Maggi
Новый конгресс-центр района EUR – «Облако» © Moreno Maggi
Новый конгресс-центр района EUR – «Облако» © Moreno Maggi
Новый конгресс-центр района EUR – «Облако» © Leonardo Finotti
Новый конгресс-центр района EUR – «Облако» © Leonardo Finotti
Новый конгресс-центр района EUR – «Облако» © Leonardo Finotti
Новый конгресс-центр района EUR – «Облако» © Leonardo Finotti
Новый конгресс-центр района EUR – «Облако» © Leonardo Finotti
Новый конгресс-центр района EUR – «Облако» © Leonardo Finotti
Новый конгресс-центр района EUR – «Облако» © Moreno Maggi
Новый конгресс-центр района EUR – «Облако» © Moreno Maggi
Новый конгресс-центр района EUR – «Облако» © Moreno Maggi
Новый конгресс-центр района EUR – «Облако» © Moreno Maggi
Новый конгресс-центр района EUR – «Облако» © Moreno Maggi
Новый конгресс-центр района EUR – «Облако» © Moreno Maggi
Новый конгресс-центр района EUR – «Облако» © Moreno Maggi
Новый конгресс-центр района EUR – «Облако» © Moreno Maggi
Новый конгресс-центр района EUR – «Облако». Эксиз © Archivio Fuksas
Новый конгресс-центр района EUR – «Облако». Эксиз © Archivio Fuksas
Новый конгресс-центр района EUR – «Облако» © Studio Fuksas
Новый конгресс-центр района EUR – «Облако» © Studio Fuksas
Новый конгресс-центр района EUR – «Облако» © Studio Fuksas
Новый конгресс-центр района EUR – «Облако» © Studio Fuksas
Новый конгресс-центр района EUR – «Облако» © Studio Fuksas
Новый конгресс-центр района EUR – «Облако» © Studio Fuksas
Новый конгресс-центр района EUR – «Облако» © Studio Fuksas
Новый конгресс-центр района EUR – «Облако» © Studio Fuksas
Новый конгресс-центр района EUR – «Облако» © Studio Fuksas
Новый конгресс-центр района EUR – «Облако» © Studio Fuksas
Новый конгресс-центр района EUR – «Облако» © Studio Fuksas
Новый конгресс-центр района EUR – «Облако» © Studio Fuksas
Новый конгресс-центр района EUR – «Облако» © Studio Fuksas
Новый конгресс-центр района EUR – «Облако» © Studio Fuksas
Новый конгресс-центр района EUR – «Облако» © Studio Fuksas
Новый конгресс-центр района EUR – «Облако» © Studio Fuksas
Новый конгресс-центр района EUR – «Облако» © Studio Fuksas
Новый конгресс-центр района EUR – «Облако» © Studio Fuksas
Новый конгресс-центр района EUR – «Облако» © Studio Fuksas
Новый конгресс-центр района EUR – «Облако» © Studio Fuksas
Новый конгресс-центр района EUR – «Облако» © Studio Fuksas
Новый конгресс-центр района EUR – «Облако» © Studio Fuksas
Новый конгресс-центр района EUR – «Облако» © Studio Fuksas
Новый конгресс-центр района EUR – «Облако» © Studio Fuksas
Новый конгресс-центр района EUR – «Облако» © Studio Fuksas
Новый конгресс-центр района EUR – «Облако» © Studio Fuksas
Новый конгресс-центр района EUR – «Облако» © Studio Fuksas
Новый конгресс-центр района EUR – «Облако» © Studio Fuksas
Новый конгресс-центр района EUR – «Облако» © Francesco Colarossi
Новый конгресс-центр района EUR – «Облако» © Francesco Colarossi
Новый конгресс-центр района EUR – «Облако» © Francesco Colarossi
Новый конгресс-центр района EUR – «Облако» © Francesco Colarossi
Новый конгресс-центр района EUR – «Облако» © Francesco Colarossi
Новый конгресс-центр района EUR – «Облако» © Francesco Colarossi
Новый конгресс-центр района EUR – «Облако» © Francesco Colarossi
Новый конгресс-центр района EUR – «Облако» © Francesco Colarossi
Новый конгресс-центр района EUR – «Облако» © Moreno Maggi
Новый конгресс-центр района EUR – «Облако» © Moreno Maggi