| Herzog & de Meuron выиграли конкурс на проект художественного Музея XX века в ансамбле берлинского Культурфорума. Публикуем работы всех награжденных участников. Ансамбль Культурфорума, важнейшего культурного центра сначала Западного, а потом и единого Берлина, может казаться завершенным, но на самом деле это не так. Пространство между Новой национальной галереей Людвига Мис ван дер Роэ, Филармонией Ганса Шаруна и комплексом Картинной галереи (Hilmer & Sattler und Albrecht) тоже предназначалось под застройку, однако по разным причинам десятилетиями оставалось пустым.
 Тем не менее, идеи заполнения этого участка напротив Государственной библиотеки (еще одной постройки Шаруна) время от времени появлялись, и сейчас разворачивается очередной виток этой истории. Фонд прусского культурного наследия, который управляет 17 берлинскими музеями, библиотекой и другими учреждениями культуры и науки, планирует построить там художественный Музей XX века, дополняющий (и частью заменяющий) предназначенную для современного искусства Новую национальную галерею.
 
 В международном конкурсе на проект здания и его интеграции в контекст участвовали 42 команды. 19 из них успешно прошли квалификационный, отборочный этап, 13 бюро были приглашены напрямую, а еще десять оказались лучшими по итогам предшествовавшего «настоящему» конкурса идей.
 
 Первое место в конкурсе на предназначенный к реализации проект заняли Herzog & de Meuron в сотрудничестве с цюрихским ландшафтным бюро Vogt, вторыми стали Lundgaard & Tranberg Arkitekter и ландшафтные архитекторы Schønherr из Копенгагена, третьими – берлинцы Bruno Fioretti Marquez Architekten и capatti staubach. Также присуждены четыре поощрительные премии, в том числе – OMA и SANAA.
 
 1-е место
 Herzog & de Meuron и Vogt (Швейцария)
 
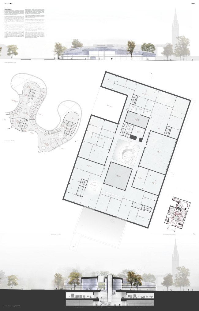
 Музей XX века © Herzog & de Meuron Basel Ltd., Vogt Landschaftsarchitekten AG Архитекторы предлагают возвести лаконичное сооружение под двускатной крышей. По их замыслу, «дом искусства XX столетия» должен казаться разным, в зависимости от точки зрения. Это может быть хранилище, амбар, вокзал и даже храм – ведь пропорции щипца его крыши совпадают с фронтоном Старой Национальной галереи на Музейном острове, работы Августа Штюлера середины XIX века. По мнению Жака Херцога и Пьера де Мерона, все эти варианты верны: это фактически место хранения, оно связано с темой питания и запасов, как сельскохозяйственная постройка, это пространство встреч и связей, как вокзал, и, как храм, это место тишины, размышления, восприятия искусства – и восприятия себя самого.
 
 Музей XX века © Herzog & de Meuron Basel Ltd., Vogt Landschaftsarchitekten AG
 
 Внутри планировку определяют две пересекающиеся «улицы», делящие здание на четыре квадрата; с их «перекрестка» можно охватить взглядом все устройство музея, также выставлять крупноразмерные произведения искусства. Под коньком крыши проходит одна из улиц, «бульвар», через который свет попадает глубоко в интерьер.
 
 Архитекторы видят свой музей местом встречи разных миров и менталитетов, перекрестком разных дорог. В нем будет много входов – по всем сторонам света. Кроме того, он послужит своего рода воротами Пьяцетты перед зданием Картинной галереи, до того находившейся немного в стороне от проторенных путей.
 
 Музей XX века © Herzog & de Meuron Basel Ltd., Vogt Landschaftsarchitekten AGМузей XX века © Herzog & de Meuron Basel Ltd., Vogt Landschaftsarchitekten AGМузей XX века © Herzog & de Meuron Basel Ltd., Vogt Landschaftsarchitekten AGМузей XX века © Herzog & de Meuron Basel Ltd., Vogt Landschaftsarchitekten AG
 
 
 
 2-е место
 Lundgaard & Tranberg Arkitekter и Schønherr (Дания)
 
 
 Музей XX века © Lundgaard & Tranberg Arkitekter A/S, SCHØNHERR A/SМузей XX века © Lundgaard & Tranberg Arkitekter A/S, SCHØNHERR A/SМузей XX века © Lundgaard & Tranberg Arkitekter A/S, SCHØNHERR A/SМузей XX века © Lundgaard & Tranberg Arkitekter A/S, SCHØNHERR A/SМузей XX века © Lundgaard & Tranberg Arkitekter A/S, SCHØNHERR A/SМузей XX века © Lundgaard & Tranberg Arkitekter A/S, SCHØNHERR A/S
 
 
 
 3-е место
 Bruno Fioretti Marquez Architekten и capatti staubach (Германия)
 
 
 Музей XX века © Bruno Fioretti Marquez Architekten, capatti staubach Landschaftsarchitekten / Winfried MateykaМузей XX века © Bruno Fioretti Marquez Architekten, capatti staubach LandschaftsarchitektenМузей XX века © Bruno Fioretti Marquez Architekten, capatti staubach LandschaftsarchitektenМузей XX века © Bruno Fioretti Marquez Architekten, capatti staubach LandschaftsarchitektenМузей XX века © Bruno Fioretti Marquez Architekten, capatti staubach LandschaftsarchitektenМузей XX века © Bruno Fioretti Marquez Architekten, capatti staubach Landschaftsarchitekten
 
 
 Поощрительная премия
 OMA и Inside Outside (Нидерланды)
 
 
 Музей XX века © Office for Metropolitan Architecture (OMA), Inside OutsideМузей XX века © Office for Metropolitan Architecture (OMA), Inside Outside
 
 Поощрительная премия
 SANAA (Япония) и Bureau Bas Smets (Бельгия)
 
 
 Музей XX века © Kazuyo Sejima + Ryue Nishizawa / SANAA,
Bureau Bas SmetsМузей XX века © Kazuyo Sejima + Ryue Nishizawa / SANAA,
Bureau Bas Smets
 
 Поощрительная премия
 Staab Architekten и Levin Monsigny (Германия)
 
 
 Музей XX века © Staab Architekten GmbH, Levin Monsigny
LandschaftsarchitektenМузей XX века © Staab Architekten GmbH, Levin Monsigny
Landschaftsarchitekten
 
 Поощрительная премия
 Aires Mateus e Associados и PROAP (Португалия)
 
 
 Музей XX века © Aires Mateus e Associados, PROAP LdaМузей XX века © Aires Mateus e Associados, PROAP Lda |