Размещено на портале Архи.ру (www.archi.ru)

17.11.2016

Рядом с Фостером

Ирина Бембель
Объект:
Комплекс вилл и винодельня в Ялте
Адрес:
Россия, Ялта. с. Оползневое, ул. Генерала Острякова, д. 9 (винодельня)
Мастерская:
Архитектурная мастерская Цыцина
Авторский коллектив:
Автор проекта: С.В. Цыцин
Главный архитектор проекта: Д.В. Тырнов
Архитекторы: И. Бикташев, К. Васильев, Д. Наханьков, В. Макарова, В. Иванова, Г. Безногова

О проекте комплекса вилл и винодельни в Ялте мастерской Сергея Цыцина.

Комплекс вилл и винодельня в Ялте. Виллы. Проект, 2016 © Архитектурная мастерская Цыцина
Комплекс вилл и винодельня в Ялте. Виллы. Проект, 2016 © Архитектурная мастерская Цыцина

Два года назад на ялтинском берегу, в районе Фороса, открылся санаторно-курортный комплекс международного класса «Мрия», спроектированный Норманом Фостером. Похожий на гигантский экзотический цветок, он стал доминантой живописной местности и катализатором её дальнейшего развития.

По замыслу заказчика, к востоку от СКК на территории 8,5 га должна возникнуть зона вилл vip-класса с рестораном, косметологическим центром, детским развивающим центром и банным комплексом, а к востоку, на территории 14 га, – виноградники и винодельческий комплекс. Не желая снижать планку, заказчик объявил международный конкурс на обе концепции. Одним из фаворитов конкурса, вошедшим в шорт-лист, стал проект Сергея Цыцина, который мы и предлагаем читательскому вниманию.
Комплекс вилл и винодельня в Ялте. Виллы. Проект, 2016 © Архитектурная мастерская Цыцина
Комплекс вилл и винодельня в Ялте. Виллы. Проект, 2016 © Архитектурная мастерская Цыцина
Комплекс вилл и винодельня в Ялте. Генеральный план расположения винодельни. Проект, 2016 © Архитектурная мастерская Цыцина
Комплекс вилл и винодельня в Ялте. Генеральный план расположения винодельни. Проект, 2016 © Архитектурная мастерская Цыцина

В фокусе авторского внимания были две важнейшие задачи: с одной стороны – открыть жильцам наилучшие природные виды, а с другой – обеспечить им максимальную приватность и визуальную независимость. Именно это в первую очередь определило как внутреннюю планировку вилл, так и живописную постановку в пространстве. Было ещё несколько важных факторов, повлиявших на проектное решение: довольно крутой перепад рельефа, сложившаяся система подъездов и сохранение уникальной растительности. Но едва ли не решающей была стилистика существующей застройки.

К моменту объявления конкурса вблизи СКК «Мрия» уже существовали две правительственные виллы и «семейная деревня», которые задали проектировщикам вполне конкретные образные рамки. В их основе лежит повторяющийся модуль в виде вытянутого двухэтажного параллелепипеда и планировочный приём, основанный на контрасте мягких очертаний рельефа и угловатых объёмов самих зданий. Сергей Цыцин взял за основу существующий модуль и создал на его основе несколько новых объектов: три «сдвоенных» виллы со смещёнными друг относительно друга основными объёмами и детский центр, где четыре модуля «нанизаны» на общий подковообразный план.
Комплекс вилл и винодельня в Ялте. Виллы. Проект, 2016 © Архитектурная мастерская Цыцина
Комплекс вилл и винодельня в Ялте. Виллы. Проект, 2016 © Архитектурная мастерская Цыцина
Комплекс вилл и винодельня в Ялте. Виллы. Проект, 2016 © Архитектурная мастерская Цыцина
Комплекс вилл и винодельня в Ялте. Виллы. Проект, 2016 © Архитектурная мастерская Цыцина
Комплекс вилл и винодельня в Ялте. Виллы. Проект, 2016 © Архитектурная мастерская Цыцина
Комплекс вилл и винодельня в Ялте. Виллы. Проект, 2016 © Архитектурная мастерская Цыцина
Комплекс вилл и винодельня в Ялте. Планы вилл. Проект, 2016 © Архитектурная мастерская Цыцина
Комплекс вилл и винодельня в Ялте. Планы вилл. Проект, 2016 © Архитектурная мастерская Цыцина

На мой взгляд, авторам удалось несколько смягчить навязчивую утилитарность первичного модуля. Отказ от ровных глухих стен, разнообразие облицовки с применением светлого камня, вынос козырьков – всё это придало новым виллам более жилой и приветливый вид, а веерный изгиб детского центра, повторяя общий приём «семейной деревни», устраняет присущий ей лёгкий «барачный привкус».

Все три виллы расположены на разных уровнях, с подъездом к частным террасам. Мимо них серпантином проходит тропинка к пляжу; помимо неё, склон оборудован подземным лифтом с выходом на отметке плюс двадцать три метра.
Комплекс вилл и винодельня в Ялте. Виллы. Проект, 2016 © Архитектурная мастерская Цыцина
Комплекс вилл и винодельня в Ялте. Виллы. Проект, 2016 © Архитектурная мастерская Цыцина
Комплекс вилл и винодельня в Ялте. Виллы. Проект, 2016 © Архитектурная мастерская Цыцина
Комплекс вилл и винодельня в Ялте. Виллы. Проект, 2016 © Архитектурная мастерская Цыцина

Проект предусматривает создание общественной зоны для обитателей новых и уже построенных вилл. Упомянутый детский центр логично примыкает к существующим игровым площадкам. Пустующее здание коттеджа на севере участка приспосабливается под косметологический центр. Наконец, в самой южной части авторы спроектировали банный комплекс. Расположенный у подножия склона и раскрытый на пляж, он обособлен от частного кластера, планировочно и архитектурно принадлежа скорее зоне набережной. Авторы не стали использовать здесь общую стилистику и создали совершенно самостоятельное одноэтажное здание с выступающей полукруглой верандой.
Комплекс вилл и винодельня в Ялте. Виллы. Проект, 2016 © Архитектурная мастерская Цыцина
Комплекс вилл и винодельня в Ялте. Виллы. Проект, 2016 © Архитектурная мастерская Цыцина
Комплекс вилл и винодельня в Ялте. Генеральный план расположения вилл. Проект, 2016 © Архитектурная мастерская Цыцина
Комплекс вилл и винодельня в Ялте. Генеральный план расположения вилл. Проект, 2016 © Архитектурная мастерская Цыцина

На соседнем холме, в окружении виноградников, должен разместиться винодельческий комплекс, включающий производственный цех, погреб для хранения вина, фирменный магазин и ресторан с дегустационным залом. В отличие от зоны вилл, форма комплекса нацелена на гармоничный диалог с природным ландшафтом.

Здание расположено на участке с перепадом высот почти в десять метров и представляет собой разноуровневый объём сложной гранёной формы, с явной отсылкой к образам окружающего пейзажа. Впрочем, его архитектура не лишена и некой собственной экспрессии, отличной от идиллии пологих крымских гор.
Комплекс вилл и винодельня в Ялте. Винодельня. Проект, 2016 © Архитектурная мастерская Цыцина
Комплекс вилл и винодельня в Ялте. Винодельня. Проект, 2016 © Архитектурная мастерская Цыцина
Комплекс вилл и винодельня в Ялте. Винодельня. Проект, 2016 © Архитектурная мастерская Цыцина
Комплекс вилл и винодельня в Ялте. Винодельня. Проект, 2016 © Архитектурная мастерская Цыцина
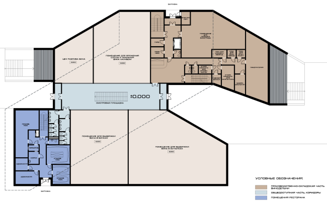
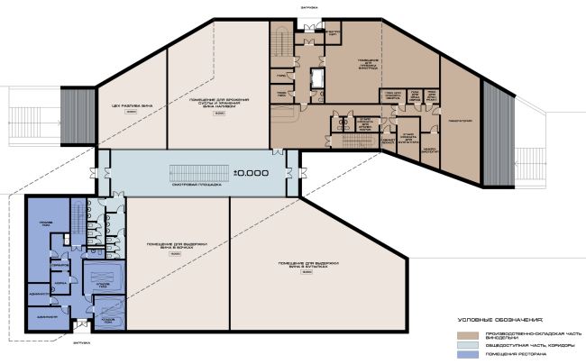
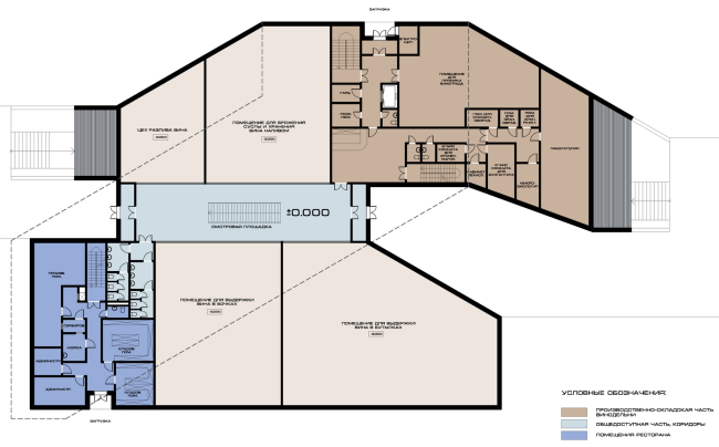
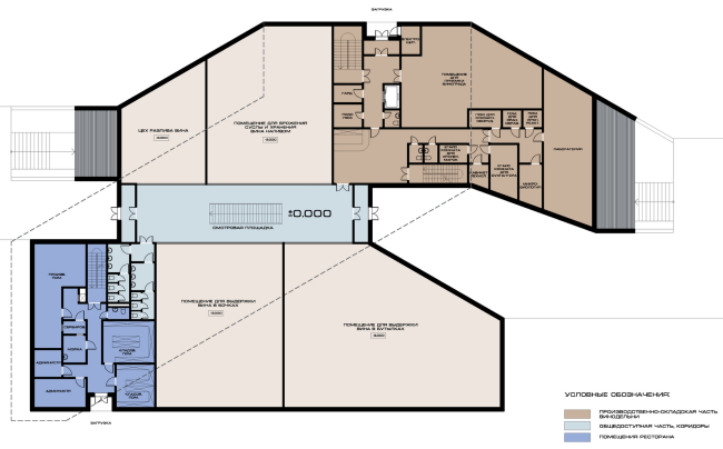
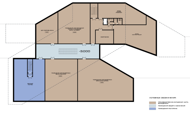
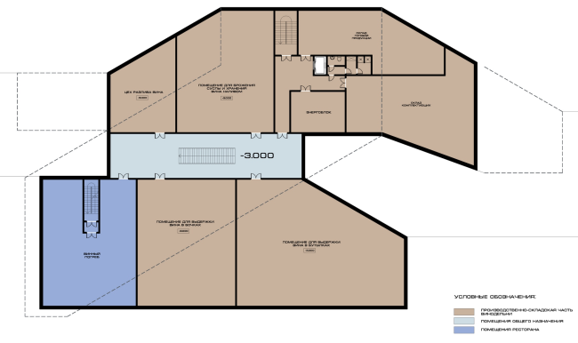
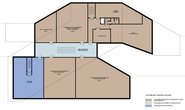
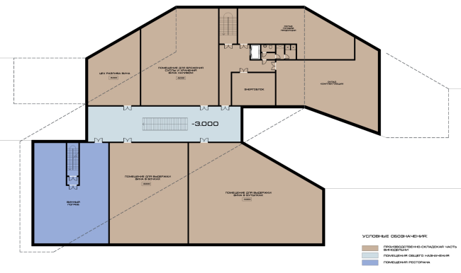
Комплекс вилл и винодельня в Ялте. План 1 этажа винодельни. Проект, 2016 © Архитектурная мастерская Цыцина
Комплекс вилл и винодельня в Ялте. План 1 этажа винодельни. Проект, 2016 © Архитектурная мастерская Цыцина
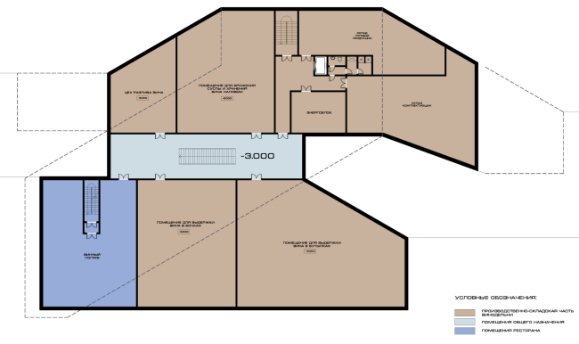
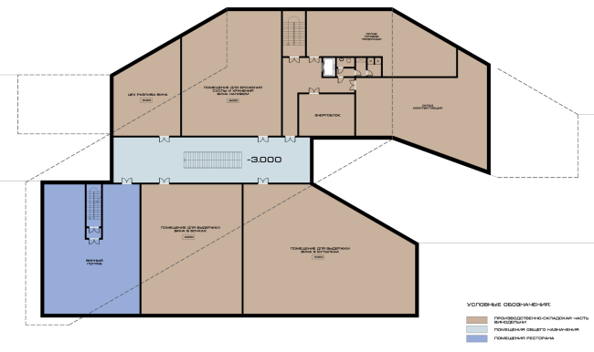
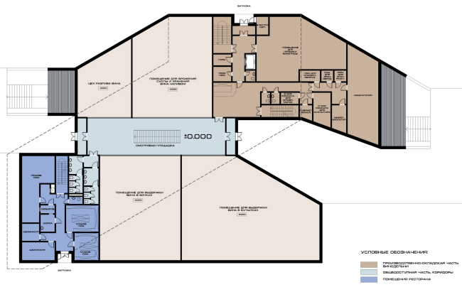
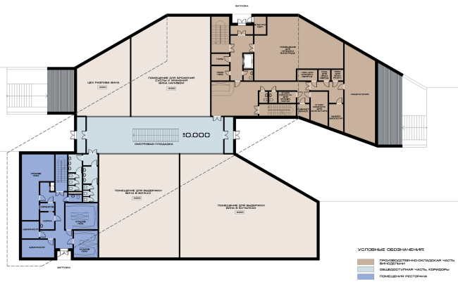
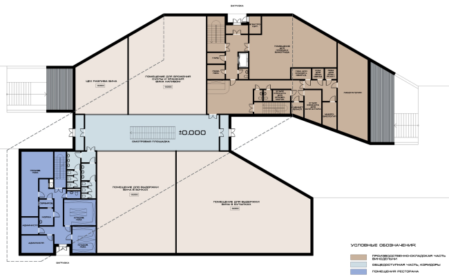
Комплекс вилл и винодельня в Ялте. План 2 этажа винодельни. Проект, 2016 © Архитектурная мастерская Цыцина
Комплекс вилл и винодельня в Ялте. План 2 этажа винодельни. Проект, 2016 © Архитектурная мастерская Цыцина

Авторы максимально задействовали площадь эксплуатируемой кровли, разместив здесь дегустационный зал и смотровые площадки. Благодаря сквозному вестибюлю-галерее, в здание можно попасть с любой стороны и с любого уровня. Галерея играет роль смотровой площадки и позволяет проводить экскурсии с возможностью наблюдать все ключевые этапы производственной цепи.
Комплекс вилл и винодельня в Ялте. Винодельня. Проект, 2016 © Архитектурная мастерская Цыцина
Комплекс вилл и винодельня в Ялте. Винодельня. Проект, 2016 © Архитектурная мастерская Цыцина

Проект предполагает постепенный пеший подъём к винодельне по склонам холма, откуда открываются восхитительные панорамы, с поэтапным восприятием архитектурного сюжета. «Мы стремились максимально использовать “архитектуру ландшафта” с его горными уступами, панорамными видами и декоративной гребёнкой виноградника, – говорит Сергей Цыцын. – Поэтому остановка для высадки туристов находится в отдалении от комплекса винодельни. Здесь посетители попадают в небольшой сад, разбитый вокруг винодельческого центра. Отсюда им нужно пройти сто пятьдесят метров пологой пешеходной тропой, любуясь прекрасными видами и воспринимая архитектуру в движении».
Комплекс вилл и винодельня в Ялте. Винодельня. Проект, 2016 © Архитектурная мастерская Цыцина
Комплекс вилл и винодельня в Ялте. Винодельня. Проект, 2016 © Архитектурная мастерская Цыцина

Между двумя холмами, над автомобильной дорогой, проходящей по дну оврага, перекинут шестидесятиметровый пешеходный мост. Связывая оба комплекса, он органично вплетается в общую экзотическую картину, являясь неотъемлемой частью винодельческого центра.