Размещено на портале Архи.ру (www.archi.ru)

27.10.2016

Ремесленные традиции

Нина Фролова
Объект:
Магазин Apple на Риджент-стрит
Адрес:
Великобритания, None, Лондон.
Мастерская:
Foster + Partners

Foster + Partners реконструировали магазин Apple на Риджент-стрит в Лондоне.

Магазин Apple на Риджент-стрит © Nigel Young / Foster + Partners
Магазин Apple на Риджент-стрит © Nigel Young / Foster + Partners

Магазин Apple остался в том же здании на главной торговой улице Британии, где он изначально открылся в 2004 как первый «бутик» компании в Европе. Foster + Partners полностью изменили интерьер, в ходе реконструкции был также отреставрирован исторический фасад: изначально постройка 1898 года в духе эклектики вмещала студию мозаичиста Антонио Сальвьяти.
 
Магазин Apple на Риджент-стрит © Nigel Young / Foster + Partners
Магазин Apple на Риджент-стрит © Nigel Young / Foster + Partners

Теперь магазин представляет собой двухсветный зал высотой 7,2 м, с антресольным этажом в глубине. В дневное время он освещен сквозь окна-арки фасада, вечером – с помощью самых длинных в мире светящихся потолочных панелей (Luminous Ceiling Panels), которыми полностью покрыты перекрытия.
 
Магазин Apple на Риджент-стрит © Nigel Young / Foster + Partners
Магазин Apple на Риджент-стрит © Nigel Young / Foster + Partners

Стены и лестницы выполнены из «портландского камня» – добываемого в Дорсете известняка. Выбор материала не был случайным: фасады именно из этого камня определяют облик Лондона. Особой гладкости поверхности и качества кладки удалось добиться с помощью сочетания ручной работы и использования станков с компьютерным управлением. Этот и остальные ключевые компоненты проекта позволили его авторам говорить о «ремесленном наследии», которое они интерпретировали в современном ключе.
 
Магазин Apple на Риджент-стрит © Nigel Young / Foster + Partners
Магазин Apple на Риджент-стрит © Nigel Young / Foster + Partners



Светлый интерьер с оформлением из натурального камня и дерева дополнен живой зеленью в виде фикусов Али в «кадках»-скамьях и зеленых стен.

При строительстве было переработано/вторично использовано 89% отходов; все используемое магазином электричество поступает из экологически чистых источников.
Магазин Apple на Риджент-стрит © Nigel Young / Foster + Partners
Магазин Apple на Риджент-стрит © Nigel Young / Foster + Partners
Магазин Apple на Риджент-стрит © Nigel Young / Foster + Partners
Магазин Apple на Риджент-стрит © Nigel Young / Foster + Partners
Магазин Apple на Риджент-стрит © Nigel Young / Foster + Partners
Магазин Apple на Риджент-стрит © Nigel Young / Foster + Partners
Магазин Apple на Риджент-стрит © Nigel Young / Foster + Partners
Магазин Apple на Риджент-стрит © Nigel Young / Foster + Partners
Магазин Apple на Риджент-стрит © Nigel Young / Foster + Partners
Магазин Apple на Риджент-стрит © Nigel Young / Foster + Partners
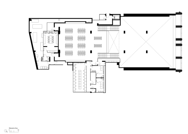
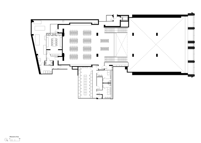
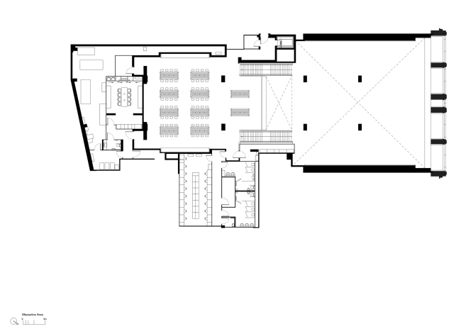
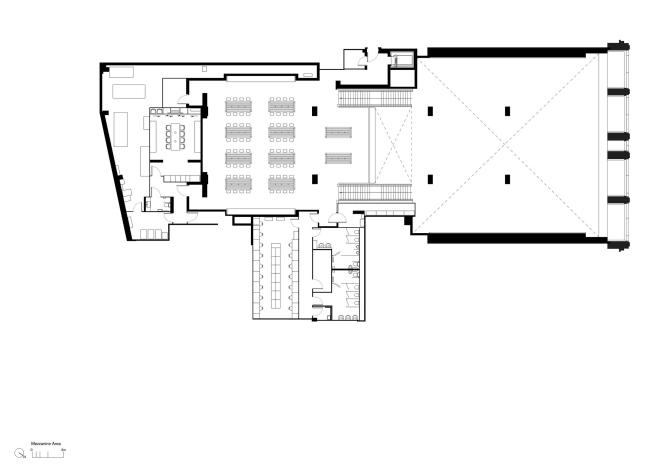
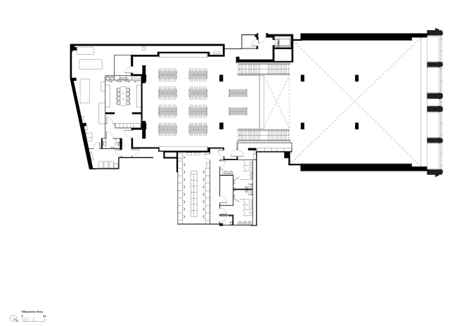
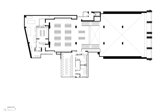
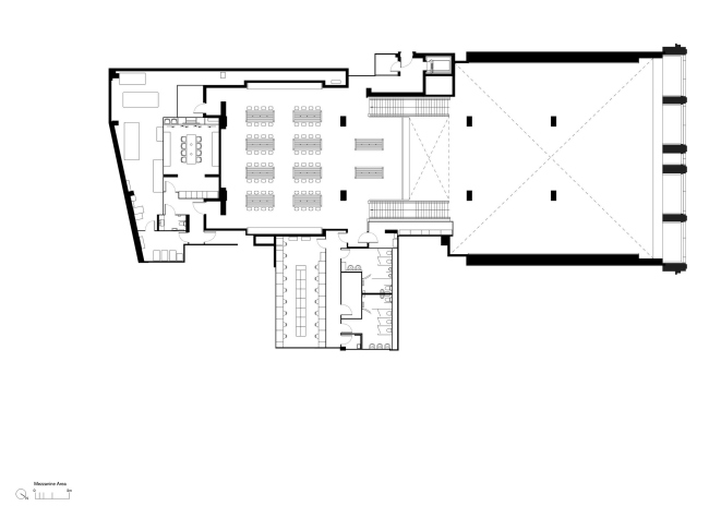
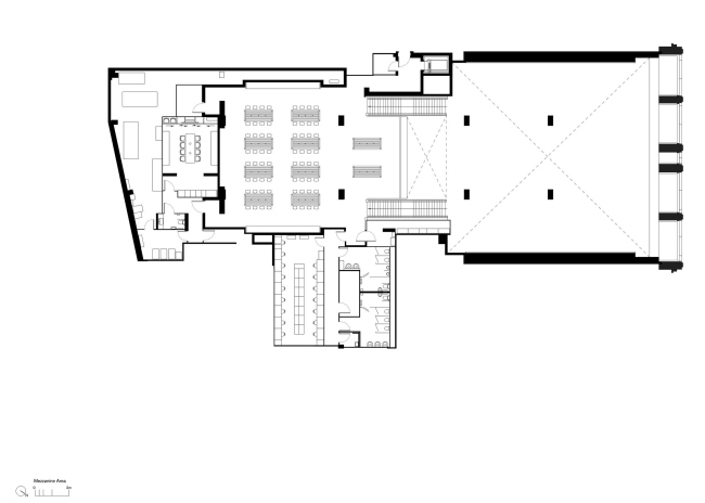
Магазин Apple на Риджент-стрит © Foster + Partners
Магазин Apple на Риджент-стрит © Foster + Partners
Магазин Apple на Риджент-стрит © Foster + Partners
Магазин Apple на Риджент-стрит © Foster + Partners
Магазин Apple на Риджент-стрит © Foster + Partners
Магазин Apple на Риджент-стрит © Foster + Partners
Магазин Apple на Риджент-стрит © Foster + Partners
Магазин Apple на Риджент-стрит © Foster + Partners