Размещено на портале Архи.ру (www.archi.ru)

27.10.2016

Итоги конкурса ROCKFON

В компании ROCKFON, специализирующейся на производстве акустических панелей на основе каменной ваты, подвели итоги конкурса ROCKFON Concept of ceilings, acoustic, life. Участникам конкурса было предложено разработать интерьеры общественных зданий, в которых особое внимание уделено созданию благоприятной акустической среды. Для воплощения своих архитектурных и дизайнерских идей конкурсанты должны были использовать в проектах продукцию компании ROCKFON.

В конкурсе приняли участие архитекторы, дизайнеры, а также студенты профильных вузов. Инновационные проекты большинства участников получили высокую оценку жюри, а главным критерием при определении победителей стала неординарность интерьерного проекта.

В рамках конкурса было заявлено пять номинаций:
– Лучший интерьер офиса;
– Лучший интерьер образовательного учреждения:
– Лучший интерьер медицинского учреждения;
– Лучший интерьер спортивного объекта;
– Лучший интерьер объекта индустрии отдыха и развлечений.

Несмотря на то, что компания впервые организовала архитектурный конкурс, участники представили очень интересные, неординарные работы, и потому в номинации «Лучший интерьер офиса» оказалось двое победителей. Учредители остались довольны результатами конкурса, и в будущем они планируют регулярно организовывать подобные мероприятия.

Интерьер офиса / две премии

Интерьер офисного здания
Никита Тимонин, 
«А.Лен»

Интерьер офисного здания. Визуализация: © Никита Тимонин (архитектурное бюро «А.Лен»)
Интерьер офисного здания. Визуализация: © Никита Тимонин (архитектурное бюро «А.Лен»)

В рамках проекта разрабатывалось несколько функциональных помещений: рекреационный холл, офисное пространство, кабинет руководителя, переговорная, конференц-зал. Интерьеры выполнены в современном стиле, плавные перетекающие формы сочетаются в проекте со строгими прямыми и резкими линиями. Для отделки стен автор предложил использовать металл и полимерные покрытия, для отделки потолка – звукопоглощающие панели ROCKFON Mono, с помощью которых можно создавать самые разные геометрические композиции. Монолитный потолок выполняет не только декоративную функцию, но и способствует созданию благоприятной акустической среды в рабочих пространствах.
Интерьер офисного здания. Визуализация: © Никита Тимонин (архитектурное бюро «А.Лен»)
Интерьер офисного здания. Визуализация: © Никита Тимонин (архитектурное бюро «А.Лен»)
Интерьер офисного здания. Визуализация: © Никита Тимонин (архитектурное бюро «А.Лен»)
Интерьер офисного здания. Визуализация: © Никита Тимонин (архитектурное бюро «А.Лен»)
Интерьер офисного здания. Визуализация: © Никита Тимонин (архитектурное бюро «А.Лен»)
Интерьер офисного здания. Визуализация: © Никита Тимонин (архитектурное бюро «А.Лен»)
Интерьер офисного здания. Визуализация: © Никита Тимонин (архитектурное бюро «А.Лен»)
Интерьер офисного здания. Визуализация: © Никита Тимонин (архитектурное бюро «А.Лен»)
План этажа офисного здания. © Никита Тимонин (архитектурное бюро «А.Лен»)
План этажа офисного здания. © Никита Тимонин (архитектурное бюро «А.Лен»)
***

Эскизный проект офисного интерьера
Александра Борисова
, «Арх-Деко»
Интерьер офисного здания. Визуализация:  © Александра Борисова (архитектурное бюро «Арх-Деко»)
Интерьер офисного здания. Визуализация: © Александра Борисова (архитектурное бюро «Арх-Деко»)

Эскизный проект интерьера офиса разработан для уже построенного двухэтажного здания в Ростове-на-Дону. Планировочная концепция основана на принципе «перетекающих пространств». В состав помещений входят: кабинет руководителя, рабочее пространство для сотрудников, переговорная, зона ресепшена, входная зона, гардероб, кухня и место отдыха, мастерская, кладовая. Потолки в кабинетах предлагается выполнить из модульных декоративных панелей Ligna, имитирующих структуру дерева, перегородку между переговорной и мастерской отделать стеновыми акустическими панелями ROCKFON Color-all®, потолок над входной группой – реализовать с помощью модульных панелей Sonar. В примыкающем к ресепшену открытом офисном пространстве потолок оформляется с помощью экранов ROCKFON Eclipse® и LED-светильников. Потолок в кухне отделывается модульными панелями Sonar, а стены – панелями Koral.
План этажа офисного здания. © Александра Борисова (архитектурное бюро «Арх-Деко»)
План этажа офисного здания. © Александра Борисова (архитектурное бюро «Арх-Деко»)
Разрезы. © Александра Борисова (архитектурное бюро «Арх-Деко»)
Разрезы. © Александра Борисова (архитектурное бюро «Арх-Деко»)
3D-визуализация.    © Александра Борисова, АБ «Арх-Деко»
3D-визуализация. © Александра Борисова, АБ «Арх-Деко»
Интерьер офисного здания. Визуализация:  © Александра Борисова (архитектурное бюро «Арх-Деко»)
Интерьер офисного здания. Визуализация: © Александра Борисова (архитектурное бюро «Арх-Деко»)
Интерьер офисного здания. Визуализация:  © Александра Борисова(архитектурное бюро «Арх-Деко»)
Интерьер офисного здания. Визуализация: © Александра Борисова(архитектурное бюро «Арх-Деко»)
Интерьер офисного здания. Визуализация: © Александра Борисова(архитектурное бюро «Арх-Деко»)
Интерьер офисного здания. Визуализация: © Александра Борисова(архитектурное бюро «Арх-Деко»)
Интерьер офисного здания. Визуализация: © Александра Борисова(архитектурное бюро «Арх-Деко»)
Интерьер офисного здания. Визуализация: © Александра Борисова(архитектурное бюро «Арх-Деко»)
***

Интерьер образовательного учреждения

Реновация школьной библиотеки в Новосибирске
Ольга Илюшкина, Рузанна Айвазян

Интерьер школьной библиотеки. Визуализация: © Рузанна Айвазян, Ольга Илюшкина
Интерьер школьной библиотеки. Визуализация: © Рузанна Айвазян, Ольга Илюшкина

Цель проекта – преобразование школьной библиотеки в общедоступный и комфортный для самых разных социальных групп информационный центр. В непосредственной близости от библиотеки находится музыкальная школа, потому применение продукции ROCKFON крайне актуально в данном проекте. Автор предлагает использовать подвесные потолки ROCKFON Color-all® (кромка A24, габариты1800 x 600), так как они соответствуют гигиеническим требованиям, имеют красивый внешний вид. Кроме того в рамках одной серии производитель выпускает панели разных сочетающихся оттенков, что было удачно использовано в проекте. Реализация запланирована на лето 2017 года.
Интерьер школьной библиотеки. Визуализация: © Рузанна Айвазян, Ольга Илюшкина
Интерьер школьной библиотеки. Визуализация: © Рузанна Айвазян, Ольга Илюшкина
Интерьер школьной библиотеки. Визуализация: © Рузанна Айвазян, Ольга Илюшкина
Интерьер школьной библиотеки. Визуализация: © Рузанна Айвазян, Ольга Илюшкина
Интерьер школьной библиотеки. Визуализация: © Рузанна Айвазян, Ольга Илюшкина
Интерьер школьной библиотеки. Визуализация: © Рузанна Айвазян, Ольга Илюшкина
Интерьер школьной библиотеки. Визуализация: © Рузанна Айвазян, Ольга Илюшкина
Интерьер школьной библиотеки. Визуализация: © Рузанна Айвазян, Ольга Илюшкина
Интерьер школьной библиотеки.3D-модель: © Рузанна Айвазян, Ольга Илюшкина
Интерьер школьной библиотеки.3D-модель: © Рузанна Айвазян, Ольга Илюшкина
Интерьер школьной библиотеки.Планы. © Рузанна Айвазян, Ольга Илюшкина
Интерьер школьной библиотеки.Планы. © Рузанна Айвазян, Ольга Илюшкина
Интерьер школьной библиотеки. План. © Рузанна Айвазян, Ольга Илюшкина
Интерьер школьной библиотеки. План. © Рузанна Айвазян, Ольга Илюшкина
***

Интерьер медицинского учреждения

Интерьер приемного покоя
Лилия Еникеева (КГАСУ)

Интерьер регистратуры больницы. Визуализация: © Лилия Еникеева
Интерьер регистратуры больницы. Визуализация: © Лилия Еникеева

Интерьер регистратуры и зоны ожидания приема должен быть комфортным и визуально, и акустически, так как одна из самых важных задач этих помещений – снимать психологическое напряжение у пациента. Потолочные панели ROCKFON улучшают акустику и помогают уменьшить уровень шума. Потолки отделаны сплошными панелями ROCKFON Blanka® (кромка D, габариты 1800 x 600 x 20, крепление RockLink System D, цвет белый), а также акустическими экранами ROCKFON Hygienic Baffle® (кромка Multiflex, габариты 1200 x 450 x 50, подвесная система ROCKFON System Baffles®).
Интерьер регистратуры больницы. Визуализация: © Лилия Еникеева
Интерьер регистратуры больницы. Визуализация: © Лилия Еникеева
Интерьер регистратуры больницы. Визуализация: © Лилия Еникеева
Интерьер регистратуры больницы. Визуализация: © Лилия Еникеева
***

Интерьер спортивного объекта

Спортивная арена в Новосибирске
Дарья Грибкова
Многофункциональная спортивная арена в Новосибирске. Визуализация: © Дарья Грибкова
Многофункциональная спортивная арена в Новосибирске. Визуализация: © Дарья Грибкова

Арена предназначена для проведения массовых спортивных, культурных, развлекательных и деловых мероприятий. Конструкция зданий представляет собой железобетонный каркас с балочными межэтажными перекрытиями. Несущая конструкция крыши – система подвесных стальных пространственных балок. Прозрачная кровля опирается на центральную пространственную балку, имеющую вид арки. Перекрытие кольцевого фойе представлено стальными фермами сложного профиля, опирающимися на железобетонные колонны, установленные по периметру здания. Внутренняя отделка выполнена с использованием материалов компании ROCKFON, а именно стеновых звукопоглощающих панелей и модульных потолков.
Многофункциональная спортивная арена в Новосибирске. Визуализация: © Дарья Грибкова
Многофункциональная спортивная арена в Новосибирске. Визуализация: © Дарья Грибкова
Многофункциональная спортивная арена в Новосибирске. Визуализация: © Дарья Грибкова
Многофункциональная спортивная арена в Новосибирске. Визуализация: © Дарья Грибкова
Многофункциональная спортивная арена в Новосибирске. Визуализация: © Дарья Грибкова
Многофункциональная спортивная арена в Новосибирске. Визуализация: © Дарья Грибкова
Программа развития территории. © Дарья Грибкова
Программа развития территории. © Дарья Грибкова
Программа развития спортивного парка. © Дарья Грибкова
Программа развития спортивного парка. © Дарья Грибкова
Многофункциональная спортивная арена в Новосибирске. Визуализация: © Дарья Грибкова
Многофункциональная спортивная арена в Новосибирске. Визуализация: © Дарья Грибкова
Многофункциональная спортивная арена в Новосибирске. Визуализация: © Дарья Грибкова
Многофункциональная спортивная арена в Новосибирске. Визуализация: © Дарья Грибкова
Многофункциональная спортивная арена в Новосибирске. Визуализация: © Дарья Грибкова
Многофункциональная спортивная арена в Новосибирске. Визуализация: © Дарья Грибкова
Многофункциональная спортивная арена в Новосибирске. © Дарья Грибкова
Многофункциональная спортивная арена в Новосибирске. © Дарья Грибкова


Интерьер объекта индустрии отдыха и развлечений

Интерьеры фойе и зрительного зала драматического театра.
Максим Матвеев, МАРХИ

Интерьер объекта индустрии отдыха и развлечений. Визуализация: © Максим Матвеев
Интерьер объекта индустрии отдыха и развлечений. Визуализация: © Максим Матвеев

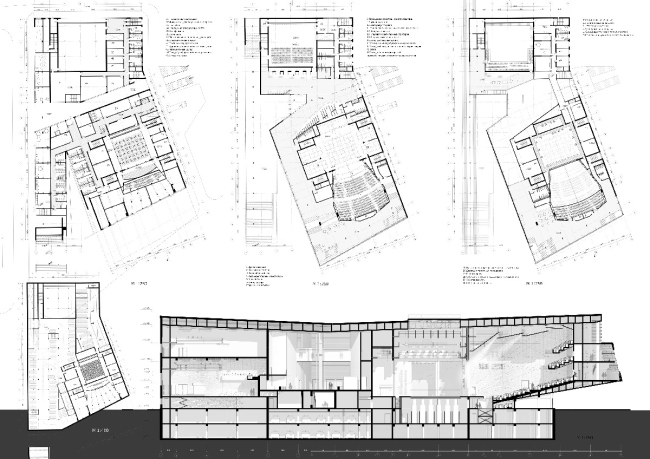
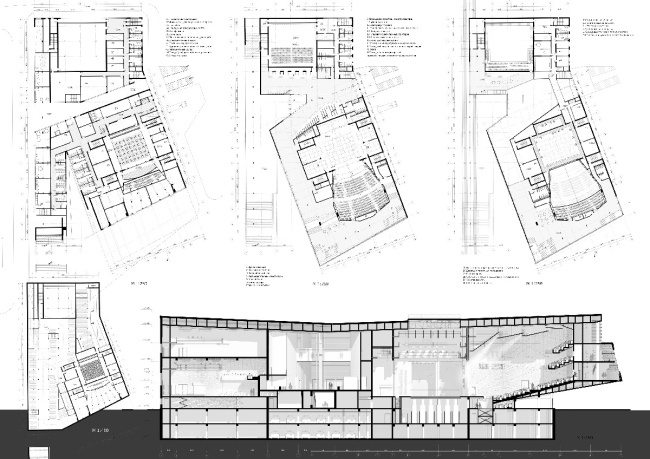
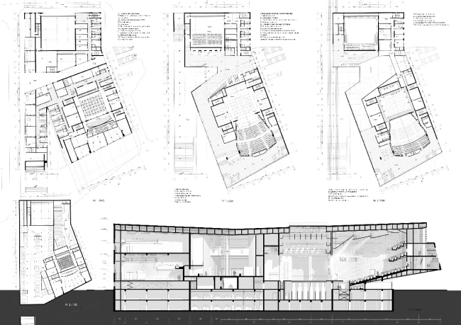
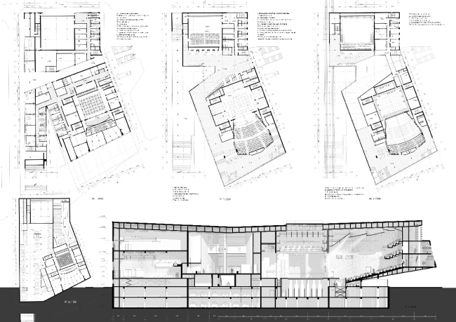
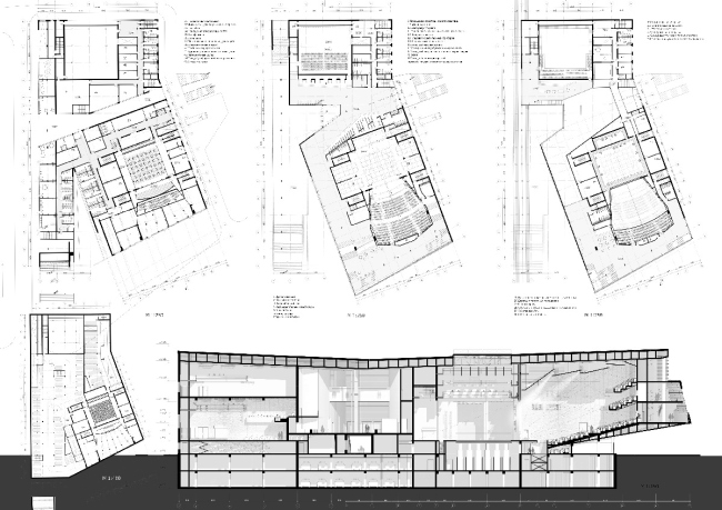
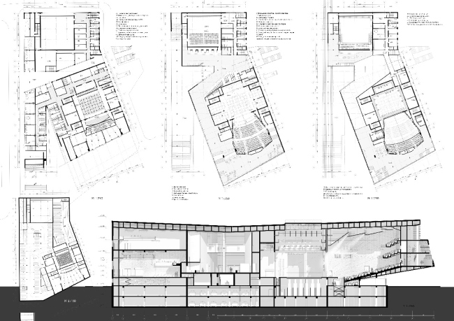
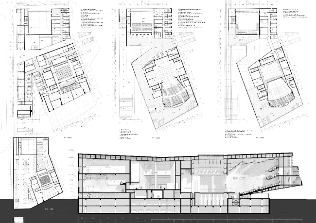
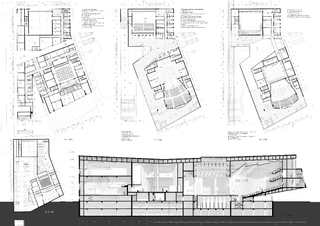
В проект интерьера фойе и зрительного зала драматического театра предусмотрена отделка поверхностей натуральными материалами: клееной древесиной и камнем. Кроме того, стены зрительного зала будут отделаны сланцевыми плитами и стеновыми панелями ROCKFON. И в фойе, и в зале будут также использованы подвесные потолки компании ROCKFON. Проектом предусмотрено контрастное сочетание материалов и цветов: дерево и камень, теплые и холодные оттенки. Таким образом автору удалось создать оригинальное цветовое и фактурное решение и добавить интерьеру театральности.
Интерьер объекта индустрии отдыха и развлечений. Визуализация: © Максим Матвеев
Интерьер объекта индустрии отдыха и развлечений. Визуализация: © Максим Матвеев
Интерьер объекта индустрии отдыха и развлечений. Визуализация: © Максим Матвеев
Интерьер объекта индустрии отдыха и развлечений. Визуализация: © Максим Матвеев
Интерьер объекта индустрии отдыха и развлечений. Визуализация: © Максим Матвеев
Интерьер объекта индустрии отдыха и развлечений. Визуализация: © Максим Матвеев
Объект индустрии отдыха и развлечений. 3D-модель. © Максим Матвеев
Объект индустрии отдыха и развлечений. 3D-модель. © Максим Матвеев
Интерьер объекта индустрии отдыха и развлечений. Планы и разрезы. © Максим Матвеев
Интерьер объекта индустрии отдыха и развлечений. Планы и разрезы. © Максим Матвеев
***

В октябре 2016 года победители конкурса ROCKFON Concept of ceilings, acoustic, life отправятся в Италию на Венецианскую архитектурную биеннале, где получат шанс стать победителями суперфинала конкурса. Призом станет грант на годовой курс обучения в любом архитектурном образовательном учреждении Российской Федерации или участие в международном архитектурном мастер-классе.

Компания ROCKFON благодарит всех, кто принял участие в конкурсе,
и желает всем дальнейших творческих успехов!