Размещено на портале Архи.ру (www.archi.ru)

17.10.2016

Двойная пара

Нина Фролова
Объект:
Культурный центр «Новая электростанция» (Elektra)
Адрес:
Азербайджан, None, Баку. Проспект нефтянников. 153 1010
Мастерская:
Erginoğlu & Çalışlar

Культурный центр «Новая электростанция» (Elektra) в Баку по проекту турецкого бюро Erginoğlu & Çalışlar.

Культурный центр «Новая электростанция» (Elektra) © Cemal Emden
Культурный центр «Новая электростанция» (Elektra) © Cemal Emden

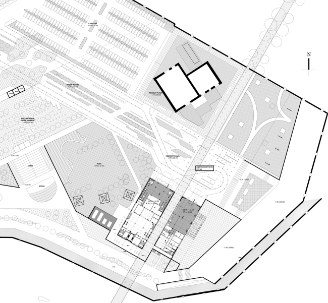
Новая постройка располагается в бывшей промзоне на берегу Бакинской бухты, рядом с Площадью государственного флага. В этом месте находилась небольшая верфь для обслуживавших нефтяные платформы судов – с электростанцией, построенной фирмой Siemens в начале XX века. Изначально заказчик хотел снести этот интересный индустриальный памятник и построить вместо него новое здание, но архитекторам удалось уговорить его пощадить сооружение.
 
Культурный центр «Новая электростанция» (Elektra) © Cemal Emden
Культурный центр «Новая электростанция» (Elektra) © Cemal Emden

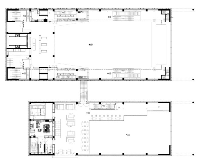
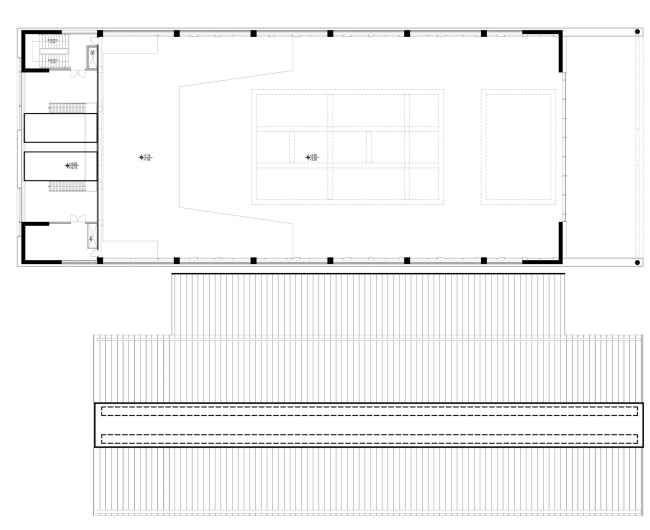
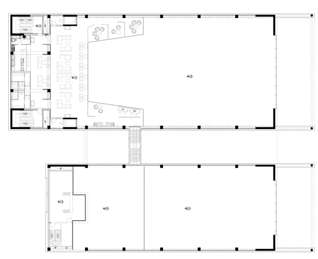
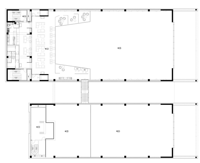
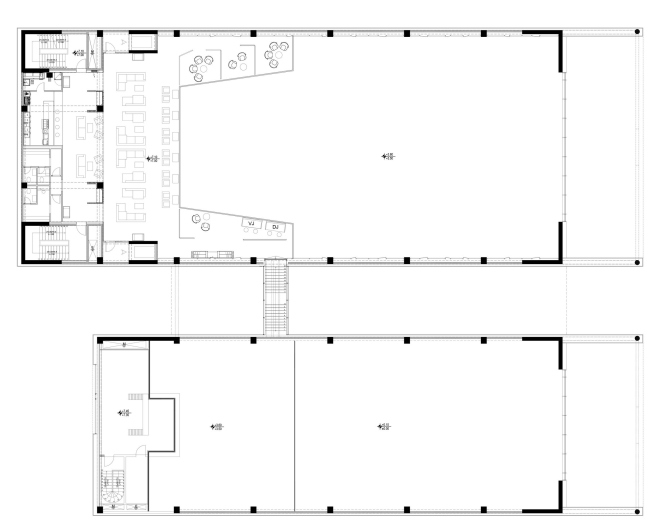
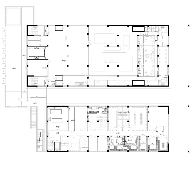
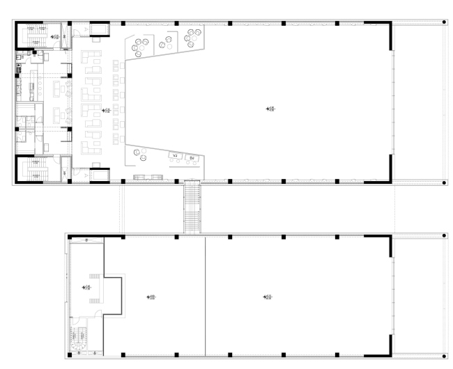
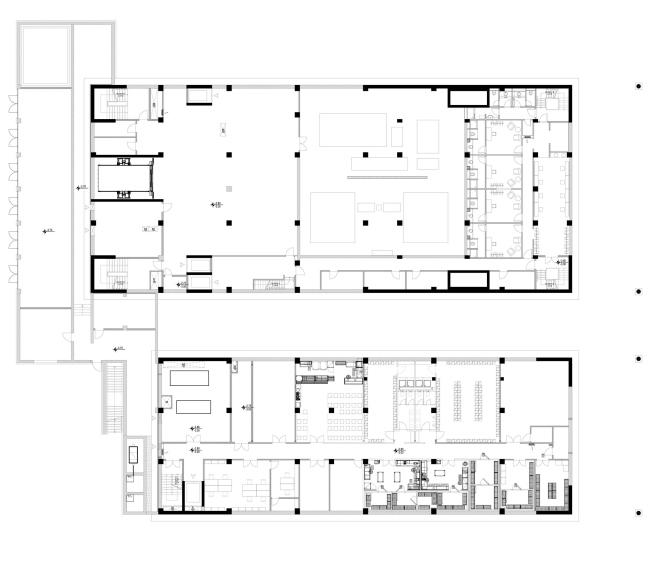
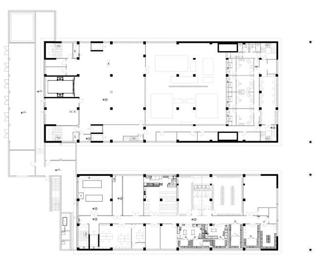
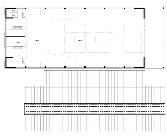
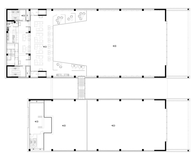
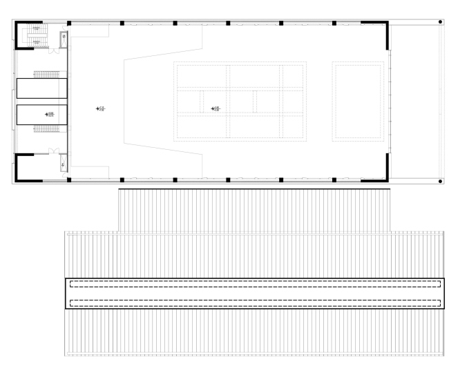
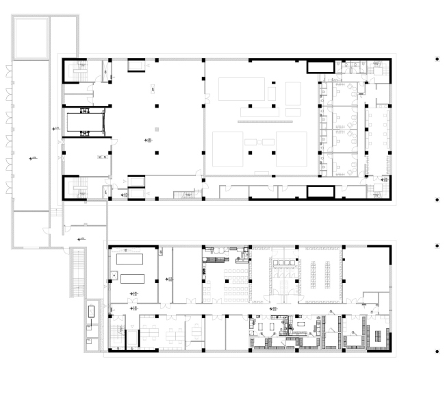
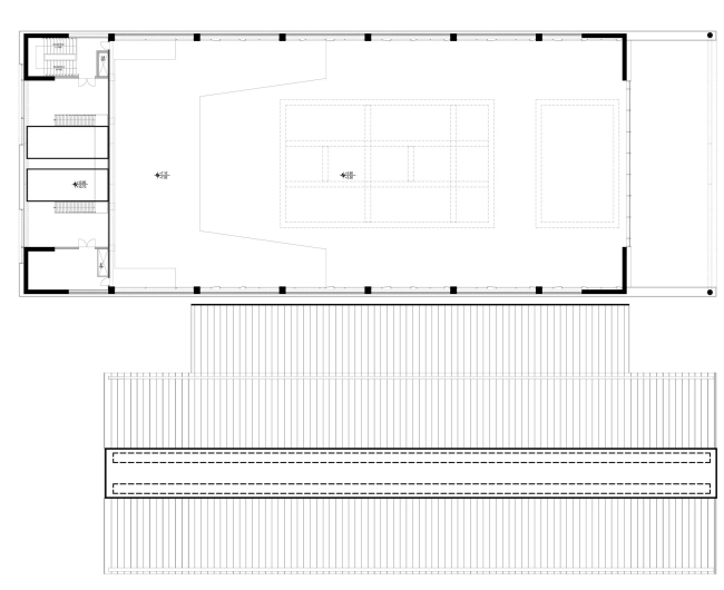
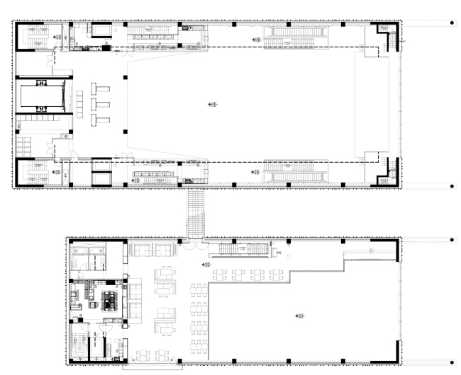
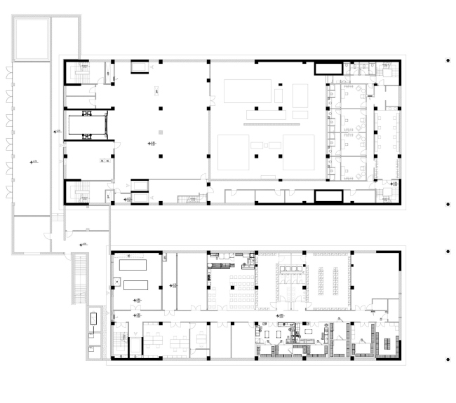
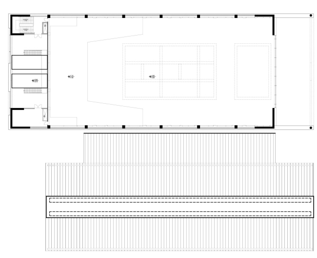
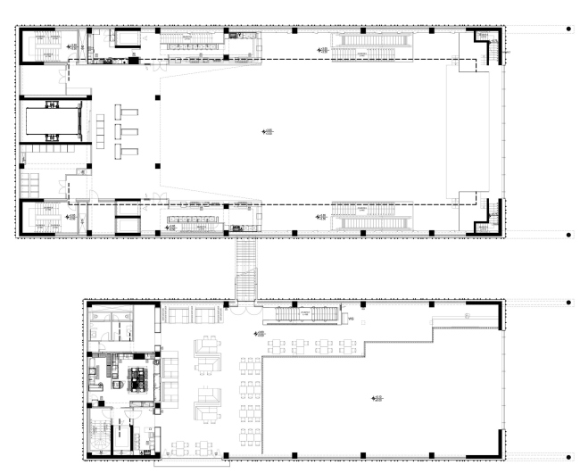
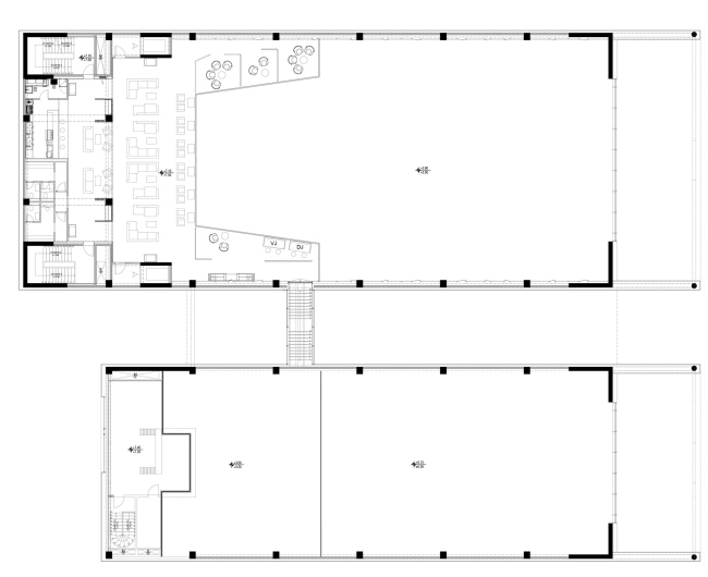
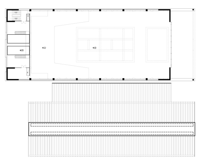
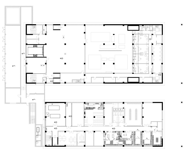
В результате, в исторической станции откроется музей, а рядом возвели «Новую электростанцию» (Elektra events hall), состоящую, как и предшественница, из двух объемов. Новая станция (центр для проведения различных мероприятий) сделана намеренно похожей на старую силуэтом, также о промышленном прошлом напоминают титан-цинк и дерево кровли и стен.
Культурный центр «Новая электростанция» (Elektra) © Cemal Emden
Культурный центр «Новая электростанция» (Elektra) © Cemal Emden

Кровля выполнена из титан-цинка немецкого производителя RHEINZINK® силами местной кровельной компании «Sky Construction». Техника исполнения кровли, части фасада, парапетов и обрамлений – двойной стоячий фальц. Для облицовки 5 486 м2 потребовалось около 36 тонн материала RHEINZINK prePATINA schiefergrau (патинированный тёмно-серый).
Культурный центр «Новая электростанция» (Elektra) © Cemal Emden
Культурный центр «Новая электростанция» (Elektra) © Cemal Emden

Erginoğlu & Çalışlar выполнили и благоустройство прилегающей территории: теперь там парк с расставленным, как арт-объекты, устаревшим промышленным оборудованием.
 
Культурный центр «Новая электростанция» (Elektra) © Cemal Emden
Культурный центр «Новая электростанция» (Elektra) © Cemal Emden

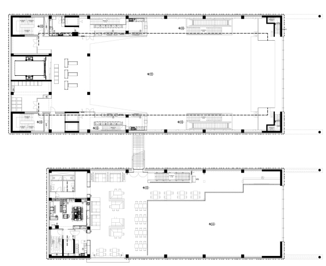
Две части новой станции соединяет остекленный мост. В здании расположены многофункциональное пространство для концертов и других мероприятий, рестораны и бары, джазовый клуб. Значительный вынос кровли со стороны входа позволяет собираться там даже в непогоду.
Культурный центр «Новая электростанция» (Elektra) © Cemal Emden
Культурный центр «Новая электростанция» (Elektra) © Cemal Emden
Культурный центр «Новая электростанция» (Elektra) © Cemal Emden
Культурный центр «Новая электростанция» (Elektra) © Cemal Emden
Культурный центр «Новая электростанция» (Elektra) © Cemal Emden
Культурный центр «Новая электростанция» (Elektra) © Cemal Emden
Культурный центр «Новая электростанция» (Elektra) © Cemal Emden
Культурный центр «Новая электростанция» (Elektra) © Cemal Emden
Культурный центр «Новая электростанция» (Elektra) © Cemal Emden
Культурный центр «Новая электростанция» (Elektra) © Cemal Emden
Культурный центр «Новая электростанция» (Elektra) © Cemal Emden
Культурный центр «Новая электростанция» (Elektra) © Cemal Emden
Культурный центр «Новая электростанция» (Elektra) © Cemal Emden
Культурный центр «Новая электростанция» (Elektra) © Cemal Emden
Культурный центр «Новая электростанция» (Elektra) © Cemal Emden
Культурный центр «Новая электростанция» (Elektra) © Cemal Emden
Культурный центр «Новая электростанция» (Elektra) © Cemal Emden
Культурный центр «Новая электростанция» (Elektra) © Cemal Emden
Культурный центр «Новая электростанция» (Elektra) © Cemal Emden
Культурный центр «Новая электростанция» (Elektra) © Cemal Emden
Культурный центр «Новая электростанция» (Elektra) © Cemal Emden
Культурный центр «Новая электростанция» (Elektra) © Cemal Emden
Культурный центр «Новая электростанция» (Elektra) © Cemal Emden
Культурный центр «Новая электростанция» (Elektra) © Cemal Emden
Культурный центр «Новая электростанция» (Elektra) © Cemal Emden
Культурный центр «Новая электростанция» (Elektra) © Cemal Emden
Культурный центр «Новая электростанция» (Elektra) © Cemal Emden
Культурный центр «Новая электростанция» (Elektra) © Cemal Emden
Культурный центр «Новая электростанция» (Elektra) © Erginoğlu & Çalışlar
Культурный центр «Новая электростанция» (Elektra) © Erginoğlu & Çalışlar
Культурный центр «Новая электростанция» (Elektra) © Erginoğlu & Çalışlar
Культурный центр «Новая электростанция» (Elektra) © Erginoğlu & Çalışlar
Культурный центр «Новая электростанция» (Elektra) © Erginoğlu & Çalışlar
Культурный центр «Новая электростанция» (Elektra) © Erginoğlu & Çalışlar
Культурный центр «Новая электростанция» (Elektra) © Erginoğlu & Çalışlar
Культурный центр «Новая электростанция» (Elektra) © Erginoğlu & Çalışlar
Культурный центр «Новая электростанция» (Elektra) © Erginoğlu & Çalışlar
Культурный центр «Новая электростанция» (Elektra) © Erginoğlu & Çalışlar
Культурный центр «Новая электростанция» (Elektra) © Erginoğlu & Çalışlar
Культурный центр «Новая электростанция» (Elektra) © Erginoğlu & Çalışlar
Культурный центр «Новая электростанция» (Elektra) © Erginoğlu & Çalışlar
Культурный центр «Новая электростанция» (Elektra) © Erginoğlu & Çalışlar
Культурный центр «Новая электростанция» (Elektra) © Erginoğlu & Çalışlar
Культурный центр «Новая электростанция» (Elektra) © Erginoğlu & Çalışlar
Культурный центр «Новая электростанция» (Elektra) © Erginoğlu & Çalışlar
Культурный центр «Новая электростанция» (Elektra) © Erginoğlu & Çalışlar
Культурный центр «Новая электростанция» (Elektra) © Erginoğlu & Çalışlar
Культурный центр «Новая электростанция» (Elektra) © Erginoğlu & Çalışlar
Культурный центр «Новая электростанция» (Elektra) © Erginoğlu & Çalışlar
Культурный центр «Новая электростанция» (Elektra) © Erginoğlu & Çalışlar
Культурный центр «Новая электростанция» (Elektra) © Erginoğlu & Çalışlar
Культурный центр «Новая электростанция» (Elektra) © Erginoğlu & Çalışlar
Культурный центр «Новая электростанция» (Elektra) © Erginoğlu & Çalışlar
Культурный центр «Новая электростанция» (Elektra) © Erginoğlu & Çalışlar
Культурный центр «Новая электростанция» (Elektra) © Erginoğlu & Çalışlar
Культурный центр «Новая электростанция» (Elektra) © Erginoğlu & Çalışlar