|
Дипломные работы студентов МАРХИ группы Алексея Бавыкина на тему восстановления города Касимова.
Плана города Касимов. Дипломный проект 10 группы МАРХИ, 2016. Руководитель: Алексей Бавыкин
Тринадцатая группа студентов-специалистов кафедры «Реконструкции и реставрации в архитектуре» МАРХИ в качестве дипломного проекта занималась восстановлением объектов в городе Касимов и изменением их функций. Руководителями группы выступили Алексей и Наталья Бавыкины и Анастасия Тер-Саакова.
Схема реконструируемых участков города Касимов. Дипломный проект 10 группы МАРХИ, 2016. Руководитель: Алексей Бавыкин
Алексей Бавыкин, руководитель мастерской «Алексей Бавыкин и партнёры», преподаватель МАРХИ: «Касимов совсем недавно приобрёл статус исторического поселения. Это событие совпало по времени с той работой, которую вела группа студентов МАРХИ кафедры «Реставрации и реконструкции» под нашим руководством.
Почему Касимов? В чем смысл проделанной работы?
На территории нашей страны, к сожалению, осталось мало небольших исторических городов, не изуродованных окончательно в XX веке и не брошенных в XXI. Касимов – один из них. Уникальный природный рельеф, характерная планировочная структура, – все это позволяет говорить о возможности сохранения генетического кода города и формировании регламента градостроительного регулирования. Кроме того, Касимов – город двух культур – русской и татарской, что до сих пор прочитывается в архитектуре и устройстве городского быта.
Основной задачей в работе студентов, разбитой на два этапа, являлось соблюдение принципа «не навреди». Первая стадия выполнялась ещё в конце пятого курса и имела обще-планировочный, концептуальный характер. Вторая – на шестом курсе. Она включала в себя разработку конкретных предложений для узловых участков города. Собственно, это и стало дипломными работами, и, на мой взгляд, студентам удалось соблюсти эту последовательность.
Хочется пожелать всем бывшим студентам, а сегодня дипломированным архитекторам, участвовавшим в этой работе, в дальнейшем развивать опыт коллективной проектной деятельности. Каждый, оставаясь индивидуальностью, постоянно смотрит на то, что делают товарищи, а главное – все вместе постоянно обсуждают предмет изучения, высказывают разные точки зрения на него, что в результате позволяет выработать тактичные и сбалансированное проектные решения».
Развертка р. Ока, Соборная площадь. Дипломный проект 10 группы МАРХИ, 2016. Руководитель: Алексей Бавыкин
Наталья Бавыкина, преподаватель МАРХИ: «Выбор темы диплома для каждого из студентов был не вполне свободным. Мы с самого начала ставили перед собой задачу в дипломных проектах дать ответы на реальные запросы города. После переговоров с главным архитектором Касимова и другими заинтересованными лицами были выбраны участки, реконструкция которых нужна городу в первую очередь. Эти утерянные или забытые центры активности являются ключом к восстановлению целых районов и кварталов, вместе они выстраиваются в новый городской маршрут. Восстанавливая архитектурно-градостроительную целостность города, мы дополняем и его функциональное насыщение. Такая городская стоматология – протезирование и пломбирование городской ткани, наведение мостов».
Фотографии существующих объектов города Касимов. Дипломный проект 10 группы МАРХИ, 2016. Руководитель: Алексей Бавыкин
Генеральный план Гагинского района, город Касимов. Дипломный проект 10 группы МАРХИ, 2016. Руководитель: Алексей Бавыкин
Сравнительная концептуальная схема. Дипломный проект 10 группы МАРХИ, 2016. Руководитель: Алексей Бавыкин
Сравнение существующего положения и проектного предложения. Дипломный проект 10 группы МАРХИ, 2016. Руководитель: Алексей Бавыкин
Аксонометрия. Дипломный проект 10 группы МАРХИ, 2016. Руководитель: Алексей Бавыкин
Анастасия Тер-Саакова, преподаватель МАРХИ: «Перед ребятами стояла очень и очень непростая задача. На каждого приходилось слишком много критиков. Их нещадно критиковали мы, администрация города, кафедра МАРХИ, потенциальный инвестор, жители города, друзья и товарищи, имеющие очень конкретные взгляды на современность и объем дипломного проекта, а в последние дни перед защитой – ещё и рецензент. Каждый из проектов – попытка найти универсальный ответ на вопрос, что такое хорошо и что такое плохо. Вывод неутешителен и стар как мир: всем угодить невозможно. Но сама по себе попытка сделать шаг в сторону от своих амбиций и прислушаться к мнению людей, не являющихся частью архитектурного сообщества, кажется нам единственным верным способом «починить город».
Аксонометрия. Фрагмент набережной. Дипломный проект 10 группы МАРХИ, 2016. Руководитель: Алексей Бавыкин
Аксонометрия. Фрагмент со зданием музея. Дипломный проект 10 группы МАРХИ, 2016. Руководитель: Алексей Бавыкин
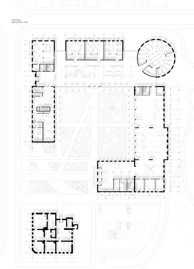
*** Площадь Пушкина: городские воротаПолина ШтанькоПлощадь Пушкина: городские ворота. Дипломный проект Полины Штанько, 10 группа, МАРХИ, 2016. Руководитель: Алексей Бавыкин
Площадь Пушкина – начало пешеходного маршрута по исторической части Касимова, своего рода «ворота» в город. Сегодня площадь представляет собой транзитное пространство, неблагоустроенное и мало вовлеченное в общественную жизнь города. Проект предполагает «активацию» этого пространства, хотя и основан на принципах преемственности: веками формировавшаяся городская парадная площадь расширяет свою въездную функцию до центральной станции транспортного сообщения. Опорная застройка площади также включается в общественную городскую жизнь, а формируемое площадью пространство соединяет разрозненные рекреационные зоны прилегающего сквера и близлежащего оврага, где строится торговый центр. Площадь Пушкина: городские ворота. Дипломный проект Полины Штанько, 10 группа, МАРХИ, 2016. Руководитель: Алексей Бавыкин. Фотографии объектов
Площадь Пушкина: городские ворота. Дипломный проект Полины Штанько, 10 группа, МАРХИ, 2016. Руководитель: Алексей Бавыкин. Графический конспект проблем
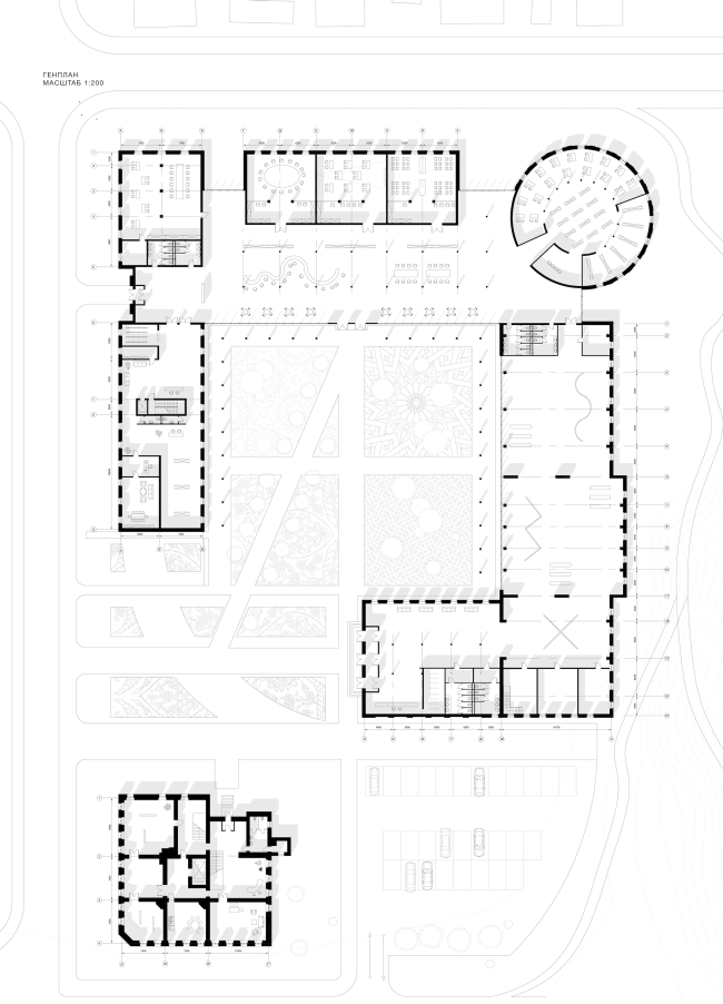
Площадь Пушкина: городские ворота. Дипломный проект Полины Штанько, 10 группа, МАРХИ, 2016. Руководитель: Алексей Бавыкин. Генеральный план
Площадь Пушкина: городские ворота. Дипломный проект Полины Штанько, 10 группа, МАРХИ, 2016. Руководитель: Алексей Бавыкин. Аксонометрия
Площадь Пушкина: городские ворота. Дипломный проект Полины Штанько, 10 группа, МАРХИ, 2016. Руководитель: Алексей Бавыкин. Планы торгового центра
Площадь Пушкина: городские ворота. Дипломный проект Полины Штанько, 10 группа, МАРХИ, 2016. Руководитель: Алексей Бавыкин
Площадь Пушкина: городские ворота. Дипломный проект Полины Штанько, 10 группа, МАРХИ, 2016. Руководитель: Алексей Бавыкин. Вид на торговый центр из Успенского оврага
*** Татарская слобода: реконструкция кварталовАнастасия Лобова, Татьяна ЧерномашенцеваТатарская слобода: реконструкция кварталов. Дипломный проект Анастасии Лобовой, Татьяны Черномашенцевой, 10 группа, МАРХИ, 2016. Руководитель: Алексей Бавыкин
Другая важная городская площадь Касимова, помимо главной Соборной площади и площади Пушкина, – площадь Победы в Татарской горке. Это исторически значимое место для города, который на протяжении более чем двухсот лет был центром Касимовского ханства. В одной части площади расположена мечеть с минаретом XV века и текие – усыпальницей Шах-Али-хана XVI века, в другой – сквер с мемориалом героям Великой Отечественной войны. Застройка вокруг площади сформирована по большей части жилыми домами, среди которых выделяются две усадьбы – Кастровых и Шакуловых – спроектированные архитектором Иваном Гагиным в XIX веке. Дипломные проекты реконструкции кварталов вокруг усадеб обращены к теме развития внутренней пустоты, но заполнение «провалов» в городской среде в обоих случаях решаются по-разному. Корпуса усадьбы Кастровых приспосабливаются под гостиницу с рестораном и магазином, а внутриквартальное пространство превращается в новую жилую улицу. Квартал усадьбы Шакуловых, напротив, целиком приспосабливается под многофункциональный культурный этнический комплекс с просторным внутренним двором. Новая застройка формирует границы квартала, в образе которого прочитываются элементы исторической архитектуры Касимова.  Татарская слобода: реконструкция кварталов. Дипломный проект Анастасии Лобовой, Татьяны Черномашенцевой, 10 группа, МАРХИ, 2016. Руководитель: Алексей Бавыкин. Фотографии объектов
Татарская слобода: реконструкция кварталов. Дипломный проект Анастасии Лобовой, Татьяны Черномашенцевой, 10 группа, МАРХИ, 2016. Руководитель: Алексей Бавыкин. Гравюра
Татарская слобода: реконструкция кварталов. Дипломный проект Анастасии Лобовой, Татьяны Черномашенцевой, 10 группа, МАРХИ, 2016. Руководитель: Алексей Бавыкин. Генеральный план
Татарская слобода: реконструкция кварталов. Дипломный проект Анастасии Лобовой, Татьяны Черномашенцевой, 10 группа, МАРХИ, 2016. Руководитель: Алексей Бавыкин. Квартал усадьбы Кастровых. Варианты планировки
Татарская слобода: реконструкция кварталов. Дипломный проект Анастасии Лобовой, Татьяны Черномашенцевой, 10 группа, МАРХИ, 2016. Руководитель: Алексей Бавыкин. Квартал усадьбы Кастровых. Аксонометрия
Татарская слобода: реконструкция кварталов. Дипломный проект Анастасии Лобовой, Татьяны Черномашенцевой, 10 группа, МАРХИ, 2016. Руководитель: Алексей Бавыкин. Формы идентичности архитектуры
Татарская слобода: реконструкция кварталов. Дипломный проект Анастасии Лобовой, Татьяны Черномашенцевой, 10 группа, МАРХИ, 2016. Руководитель: Алексей Бавыкин. Квартал усадьбы Шакуловых. Развертки
Татарская слобода: реконструкция кварталов. Дипломный проект Анастасии Лобовой, Татьяны Черномашенцевой, 10 группа, МАРХИ, 2016. Руководитель: Алексей Бавыкин. Квартал Усадьбы Шакуловых. План этнического центра
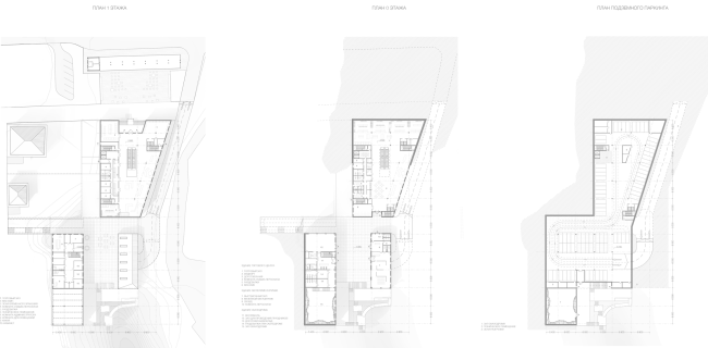
*** Усадьба Кастрова: гостиничный комплексКсения БылининаУсадьба Кастрова: гостиничный комплекс. Дипломный проект Ксении Былиной, 10 группа, МАРХИ, 2016. Руководитель: Алексей Бавыкин
Проект продолжает тему приспособления городской усадьбы к современной жизни. Усадьба Кастровых типологически своеобразна: она соединяла кожевенное производство с жилым поместьем. Усадьба превращается в гостиницу с магазинами, что удобно из-за близости берега Оки. Главный дом и флигели исторической усадьбы остаются композиционным центром, новые корпуса гостиницы автор рассматривает как фон. Усадьба Кастрова: гостиничный комплекс. Дипломный проект Ксении Былиной, 10 группа, МАРХИ, 2016. Руководитель: Алексей Бавыкин. Фотографии объектов
Усадьба Кастрова: гостиничный комплекс. Дипломный проект Ксении Былиной, 10 группа, МАРХИ, 2016. Руководитель: Алексей Бавыкин. Схема развития участка
Усадьба Кастрова: гостиничный комплекс. Дипломный проект Ксении Былиной, 10 группа, МАРХИ, 2016. Руководитель: Алексей Бавыкин. Генеральный план
Усадьба Кастрова: гостиничный комплекс. Дипломный проект Ксении Былиной, 10 группа, МАРХИ, 2016. Руководитель: Алексей Бавыкин. Аксонометрия
Усадьба Кастрова: гостиничный комплекс. Дипломный проект Ксении Былиной, 10 группа, МАРХИ, 2016. Руководитель: Алексей Бавыкин
Усадьба Кастрова: гостиничный комплекс. Дипломный проект Ксении Былиной, 10 группа, МАРХИ, 2016. Руководитель: Алексей Бавыкин. Развертки
Усадьба Кастрова: гостиничный комплекс. Дипломный проект Ксении Былиной, 10 группа, МАРХИ, 2016. Руководитель: Алексей Бавыкин
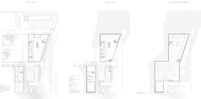
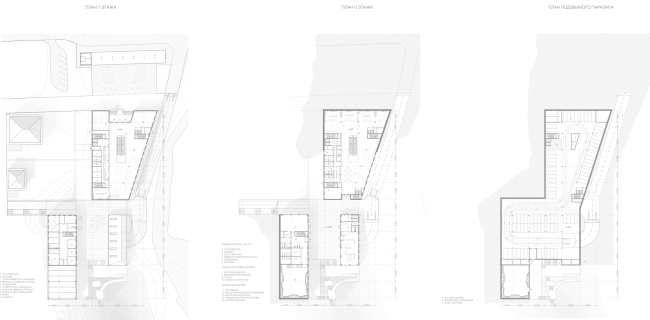
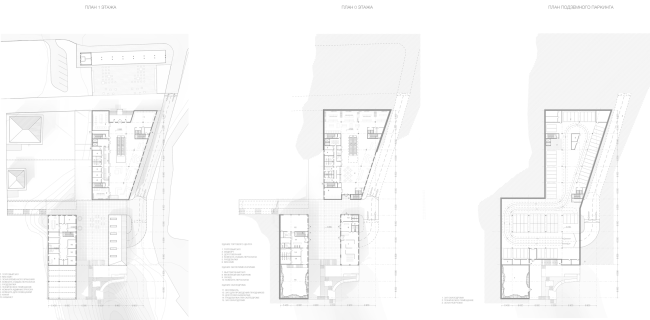
*** Сетевязальная фабрика: городской санаторийМихаил Хвалебнов, Яна МорозоваСетевязальная фабрика: городской санаторий. Дипломный проект Михаила Хвалебнова, Яны Морозовой, 10 группа, МАРХИ, 2016. Руководитель: Алексей Бавыкин
Другой важный промышленный объект Касимова, утративший свою функцию – Сетевязальная фабрика, расположенная выше по течению Оки на окраине города. Фабрика основана в середине XIX века, активно развивалась и функционировала в XX, а в 20-е годы здесь успели поработать московские архитекторы Иван Николаев и Анатолий Фисенко, по проекту которых построен сетевязальный цех с водонапорной башней. Проект реновации этой территории предполагает обустройство городского санатория, в широком спектре функций которого сделан упор на развитие спортивного и банного комплексов. Функции продиктованы пространственной морфологией каждого корпуса. Сетевязальная фабрика: городской санаторий. Дипломный проект Михаила Хвалебнова, Яны Морозовой, 10 группа, МАРХИ, 2016. Руководитель: Алексей Бавыкин. Фотографии объектов
Сетевязальная фабрика: городской санаторий. Дипломный проект Михаила Хвалебнова, Яны Морозовой, 10 группа, МАРХИ, 2016. Руководитель: Алексей Бавыкин. Генеральный план
Сетевязальная фабрика: городской санаторий. Дипломный проект Михаила Хвалебнова, Яны Морозовой, 10 группа, МАРХИ, 2016. Руководитель: Алексей Бавыкин. Изометрия. Схема используемых пространств старого здания фабрики
Усадьба Кастрова: гостиничный комплекс. Дипломный проект Михаила Хвалебнова, Яны Морозовой, 10 группа, МАРХИ, 2016. Руководитель: Алексей Бавыкин. Фасад
Усадьба Кастрова: гостиничный комплекс. Дипломный проект Михаила Хвалебнова, Яны Морозовой, 10 группа, МАРХИ, 2016. Руководитель: Алексей Бавыкин. Разрез
Усадьба Кастрова: гостиничный комплекс. Дипломный проект Михаила Хвалебнова, Яны Морозовой, 10 группа, МАРХИ, 2016. Руководитель: Алексей Бавыкин. Реновация, разрез
Усадьба Кастрова: гостиничный комплекс. Дипломный проект Михаила Хвалебнова, Яны Морозовой, 10 группа, МАРХИ, 2016. Руководитель: Алексей Бавыкин. Фойе зоны спа
Усадьба Кастрова: гостиничный комплекс. Дипломный проект Михаила Хвалебнова, Яны Морозовой, 10 группа, МАРХИ, 2016. Руководитель: Алексей Бавыкин. Бассейн
Усадьба Кастрова: гостиничный комплекс. Дипломный проект Михаила Хвалебнова, Яны Морозовой, 10 группа, МАРХИ, 2016. Руководитель: Алексей Бавыкин. Общественный бассейн
Усадьба Кастрова: гостиничный комплекс. Дипломный проект Михаила Хвалебнова, Яны Морозовой, 10 группа, МАРХИ, 2016. Руководитель: Алексей Бавыкин. Крутильный цех. Планы
Усадьба Кастрова: гостиничный комплекс. Дипломный проект Михаила Хвалебнова, Яны Морозовой, 10 группа, МАРХИ, 2016. Руководитель: Алексей Бавыкин. Крутильный цех. Фасад
Усадьба Кастрова: гостиничный комплекс. Дипломный проект Михаила Хвалебнова, Яны Морозовой, 10 группа, МАРХИ, 2016. Руководитель: Алексей Бавыкин. Интерьер
*** Фабрика «Руно»: новый жилой кварталМария Серова Фабрика «Руно»: новый жилой квартал. Дипломный проект Марии Серовой, 10 группа, МАРХИ, 2016. Руководитель: Алексей Бавыкин
В юго-восточной части города, также на набережной Оки, расположена овчинно-меховая фабрика «Руно». Территория стала площадкой для осмысления приемов создания целостной городской ткани. Мария Серова предлагает «склеить» городскую ткань частной жилой застройкой, следующей морфологии исторического межевания. Сохраняемые промышленные корпуса становятся общественными зданиями. Бывший выделочный цех, «раздетый» до железобетонного скелета, становится теплицей с ячейками вертикального озеленения и символизирует начало новой жизни с памятью о старом месте. Фабрика «Руно»: новый жилой квартал. Дипломный проект Марии Серовой, 10 группа, МАРХИ, 2016. Руководитель: Алексей Бавыкин. Фотографии объектов
Фабрика «Руно»: новый жилой квартал. Дипломный проект Марии Серовой, 10 группа, МАРХИ, 2016. Руководитель: Алексей Бавыкин. Развертка со стороны реки. Существующее положение
Фабрика «Руно»: новый жилой квартал. Дипломный проект Марии Серовой, 10 группа, МАРХИ, 2016. Руководитель: Алексей Бавыкин. Развертка со стороны реки. Проектное предложение
Фабрика «Руно»: новый жилой квартал. Дипломный проект Марии Серовой, 10 группа, МАРХИ, 2016. Руководитель: Алексей Бавыкин. Сохраняемые корпуса. Существующее положение и проект. Аксонометрия
Фабрика «Руно»: новый жилой квартал. Дипломный проект Марии Серовой, 10 группа, МАРХИ, 2016. Руководитель: Алексей Бавыкин. Сохраняемые корпуса. Бывший выделочный цех. Теплица
Фабрика «Руно»: новый жилой квартал. Дипломный проект Марии Серовой, 10 группа, МАРХИ, 2016. Руководитель: Алексей Бавыкин. Сохраняемые корпуса. Бывший выделочный цех. Теплица
Фабрика «Руно»: новый жилой квартал. Дипломный проект Марии Серовой, 10 группа, МАРХИ, 2016. Руководитель: Алексей Бавыкин. Жилой дом. Конструктивная системы
Фабрика «Руно»: новый жилой квартал. Дипломный проект Марии Серовой, 10 группа, МАРХИ, 2016. Руководитель: Алексей Бавыкин. Аксонометрия
Фабрика «Руно»: новый жилой квартал. Дипломный проект Марии Серовой, 10 группа, МАРХИ, 2016. Руководитель: Алексей Бавыкин. Сохраняемые корпуса. Генеральный план
*** Городская набережная: многофункциональный подкоп Андрей Стенюшкин Городская набережная: многофункциональный подкоп. Дипломный проект Андрея Стенюшкина, 10 группа, МАРХИ, 2016. Руководитель: Алексей Бавыкин
История Касимова всегда была связана с рекой, из-за «речного лобби» в конце XIX века в город не проложили железную дорогу, из-за чего, в частности, его историческая застройка сохранила свою целостность. Главной задачей дипломного проекта стало превращение прибережной зоны из пустыря в место активного социального притяжения; на Набережной улице расположено несколько памятников архитектуры, среди которых особо выделяется дом Баркова. При решении этой задачи особенно важно было сохранить вид с реки на застройку. Поэтому необходимые городу новые функции разместились в одноэтажных структурах, встроенных в крутой, спускающийся к реке склон. Кровли новых объектов становятся частью террасированной прогулочной зоны, что решает проблему вида с воды: проектируемые структуры не заслонили собой историческую застройку. Городская набережная: многофункциональный подкоп. Дипломный проект Андрея Стенюшкина, 10 группа, МАРХИ, 2016. Руководитель: Алексей Бавыкин. Фотографии объектов
Городская набережная: многофункциональный подкоп. Дипломный проект Андрея Стенюшкина, 10 группа, МАРХИ, 2016. Руководитель: Алексей Бавыкин. Схемы
Городская набережная: многофункциональный подкоп. Дипломный проект Андрея Стенюшкина, 10 группа, МАРХИ, 2016. Руководитель: Алексей Бавыкин. Пляжный комплекс. Аксонометрия
Городская набережная: многофункциональный подкоп. Дипломный проект Андрея Стенюшкина, 10 группа, МАРХИ, 2016. Руководитель: Алексей Бавыкин. Пляжный комплекс. План, разрез, генеральный план
Городская набережная: многофункциональный подкоп. Дипломный проект Андрея Стенюшкина, 10 группа, МАРХИ, 2016. Руководитель: Алексей Бавыкин. Гостиница. Аксонометрия
Городская набережная: многофункциональный подкоп. Дипломный проект Андрея Стенюшкина, 10 группа, МАРХИ, 2016. Руководитель: Алексей Бавыкин. Гостиница. План, разрез, генеральный план
Городская набережная: многофункциональный подкоп. Дипломный проект Андрея Стенюшкина, 10 группа, МАРХИ, 2016. Руководитель: Алексей Бавыкин. Пристань. Аксонометрия
Городская набережная: многофункциональный подкоп. Дипломный проект Андрея Стенюшкина, 10 группа, МАРХИ, 2016. Руководитель: Алексей Бавыкин. Пристань. План, разрез, генеральный план
***
|