Размещено на портале Архи.ру (www.archi.ru)

12.10.2016

Семь вещей, которые надо сделать на «Зодчестве»

Путеводитель по фестивалю, который открывается в пятницу 14 октября. В новом формате.

Трехгорная мануфактура. 5 корпус
Трехгорная мануфактура. 5 корпус

Итак, что же нужно сделать на обновлённом «Зодчестве» прежде всего и перво-наперво?

1. Не заблудиться

Фестиваль на этот раз пройдет на территории двух фабрик – «Трёхгорной мануфактуры» на Краснопресненской набережной [Рочдельская улица, 15 стр. 5] и «Московского шелка» на Саввинской набережной [Большой Саввинский пер., 12 стр. 8] – и станет толчком к реновации этих территорий.
Схема расположения площадок в Москве
Схема расположения площадок в Москве

Электронный билет можно скачать здесь >>>

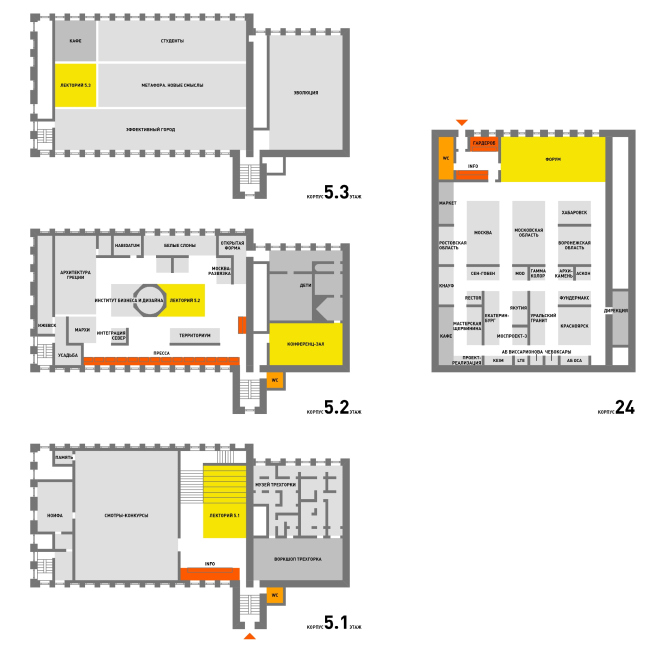
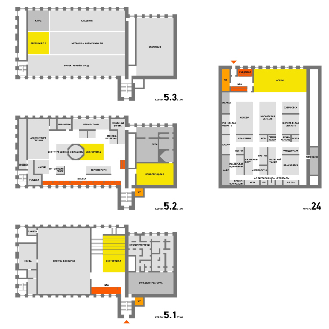
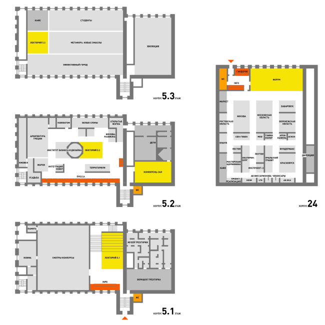
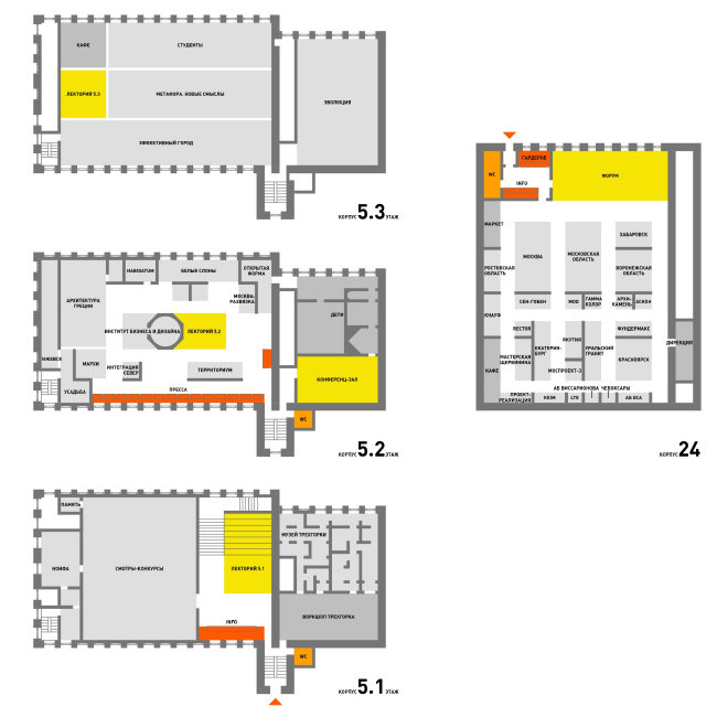
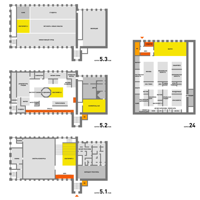
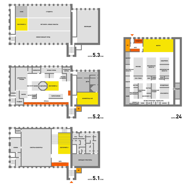
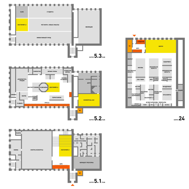
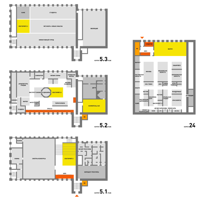
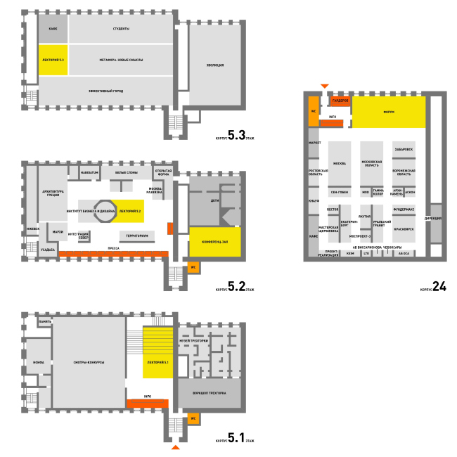
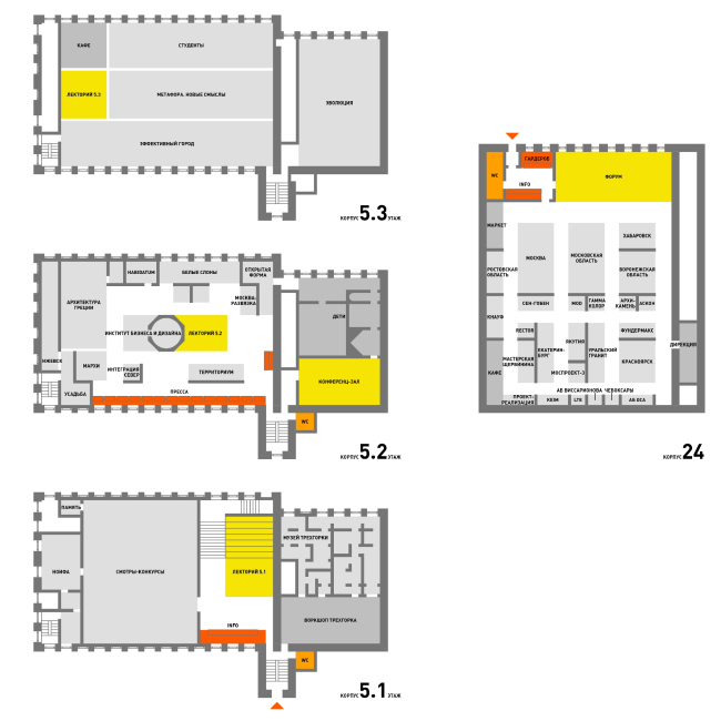
На Трёхгорке фестиваль занимает два корпуса. В 24 корпусе, с высокой шедовой кровлей, расположатся экспозиция регионов, архитектурных бюро, производителей материалов, а также главная деловая площадка – Форум.
Схема корпусов Трёхкгорный мануфактуры
Схема корпусов Трёхкгорный мануфактуры

В 5 корпусе – образце классической промышленной архитектуры из красного кирпича – будут задействованы 3 этажа, где расположится традиционная выставка смотров-конкурсов: претенденты на «Дедала», лучшие проекты и постройки, работы молодых архитекторов и студентов. А также несколько лекционных аудиторий и часть кураторских проектов.
Расположение экспозиций «Зодчества» на Трёхгорной мануфактуре
Расположение экспозиций «Зодчества» на Трёхгорной мануфактуре

В креативном пространстве BEREG (бывшей фабрике Московский шелк) свои спецпроекты представит Анна Медлева.
Расположение экспозиций в пространстве BEREG
Расположение экспозиций в пространстве BEREG
***

Что ещё можно сделать на «Зодчестве»:

2. Повздыхать о будущем промзон
Трехгорная мануфактура. 24 корпус
Трехгорная мануфактура. 24 корпус

Центральным объектом внимания в этом году стала его главная площадка «Зодчества» – сама Трёхгорная мануфактура. Дискуссия о её будущем пройдёт в пятницу, 14 октября в 15:45. Однако в числе мероприятий фестиваля – лекции, дискуссии и конференции, посвященные развитию не только Трёхгорной мануфактуры, но и других промышленных территорий, в том числе за рубежом. Новые функции московских промзон обсудят на круглом столе 17 октября в 17:00. Об опыте ревитализации промышленных территорий в Восточной Европе в этот же день и час расскажет ведущий архитектор мастерской OP Architekten Войцех Поплавский.
***

3. Поучаствовать в воркшопах

Для студентов и молодых архитекторов организаторы приготовили два воркшопа под руководством Наринэ Тютчевой и Сергея Журавлева. Первый – по проектированию входов на территорию Трёхгорки, участники второго займутся созданием концепции общественного центра нового типа. Условия участия – здесь.
***

4. Помечтать о райском городе

Второй главной темой фестиваля, помимо развития промзон, станет городское благоустройство. Узнать, возможна ли капитализация Москвы-реки, и как зарабатывают на прибрежных и водных территориях в России и за рубежом, можно будет на круглом столе 14 октября в 14:00.

Вопросы регионального развития и места архитектора в нём будут обсуждаться на конференции в воскресенье, 16 октября в 14:00. Знаковые проекты городского развития последних лет представят на мероприятии «Диалоги о благоустройстве» во вторник, 18 октября в 14:00.
***

5. Познакомиться с работами архитектурных школ
Иллюстрация: pro-evolution.pro
Иллюстрация: pro-evolution.pro

Школа «Эволюция» будет демонстрировать итоги своей работы за полгода, а также делиться планами на будущее на протяжении семи дней работы фестиваля. Программу, которую школа подготовила для фестиваля, можно посмотреть здесь, а о самой школе и её проектах – в интервью Петра Виноградова.

Работы школ-воркшопов «Евпаториум» и «Территориум» представит кураторский проект Алексея Комова.
Новые киоски на улицах Евпатории. Предоставлено Алексеем Комовым, 2016
Новые киоски на улицах Евпатории. Предоставлено Алексеем Комовым, 2016
***

6. Прокачать архитектурный skill

Специальный образовательный проект SYNTHESIS посвящен умениям, которые традиционно не считаются обязательными для архитектора, однако сегодня без них трудно обойтись. Ведущие специалисты из различных областей знания соберутся, чтобы поговорить об ораторском мастерстве, текст, иллюстрации, создание презентаций/слайд-шоу и web-дизайн – применительно к архитектурной профессии. Подробнее о программе – в интервью с её куратором Андреем Киселёвым.

Этой же теме будет посвящён круглый стол «Архитектурный бизнес. Стратегии успеха», который портал Архи.ру организует совместно по СМА во вторник, 18 октября в 18:00.
***

7. Узнать, кто и зачем оживляет города
Максим Пайп. Солнечное утро в Нью-Йорке
Максим Пайп. Солнечное утро в Нью-Йорке

Площадка Форума Живых городов – один из спецпроектов Зодчества. Здесь расскажут о том, как оживлять и развивать город, а также о том, что уже к 2035 году в России планируется оживить 1000 населенных пунктов. Подробнее о теме спецпроекта Архи.ру рассказывал Александр Старков.
***
 
На «Зодчестве» в этом году – больше 200 различных мероприятий [см. Деловую программу фестиваля] и около 20 кураторских выставок. Приходите, вас ждут.