Размещено на портале Архи.ру (www.archi.ru)

10.10.2016

Дом на берегу озера Эй в Амстердаме. Изнутри-наружу

Объект:
Дом на берегу озера Эй
Адрес:
Нидерланды, Амстердам.
Мастерская:
EQUITONE
Inarchitecten
Авторский коллектив:
Архитекторы: Марк Эккерт и Рубен ван ден Богаард
Соавторы: Джамал Aззуз и Джоэл Лангевельд

Фиброцементные панели EQUITONE (ЭКВИТОН) –
лаконичность, не отвлекающая от главного.

Эйбург (Ijburg), строящийся современный жилой район в восточной части Амстердама (Нидерланды), расположен на намывных островах на озере Эй.
Дом на берегу озера Эй в Амстердаме. Фотография предоставлена компанией EQUITONE
Дом на берегу озера Эй в Амстердаме. Фотография предоставлена компанией EQUITONE

Сейчас Эйбург состоит из шести намывных островов. В дальнейшем планируется строительство еще четырех. Острова соединяет главная улица Эйбурглан (IJburglaan). С центром Амстердама Эйбург связывает трамвайная линия, время в пути всего 16 минут.

Типология застройки разнообразна и представлена секционными, индивидуальными и блокированными, а так же плавающими жилыми домами.

Во время перемещения по острову принципы формообразования постоянно меняются, что позволяет избежать ощущения монотонности.
Дом на берегу озера Эй в Амстердаме. Фотография предоставлена компанией EQUITONE
Дом на берегу озера Эй в Амстердаме. Фотография предоставлена компанией EQUITONE

На одном из участков, выходящих непосредственно на берег озера Эй, специалистами бюро Inarchitecten был спроектирован и построен жилой дом для семьи с тремя детьми довольно оригинальной архитектуры.

В агентстве Inarchitecten в качестве главного критерия в проектировании принимается организация внутреннего пространства объекта. Принцип «изнутри-наружу» формирует архитектуру здания, придавая ей неповторимый и уникальный облик. Внешний вид, конечно тоже важен, но все же он является логическим завершением внутренней планировки.

Основные принципы: неоднозначность, неординарность и смелость. По мнению архитекторов, это сочетание должно в результате привести к интересной современной архитектуре, максимально осуществляющей пожелания клиента.

В проекте этого частного дома авторы попытались совместить два фасада с разными историями. Один – обращенный на улицу и другой, выходящий окнами на водную гладь озера Эй.
 
Дом на берегу озера Эй в Амстердаме. Фотография предоставлена компанией EQUITONE
Дом на берегу озера Эй в Амстердаме. Фотография предоставлена компанией EQUITONE

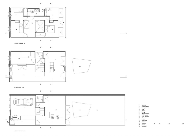
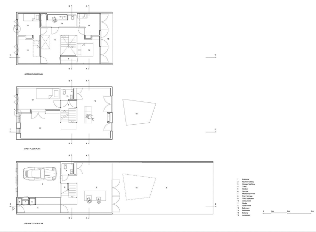
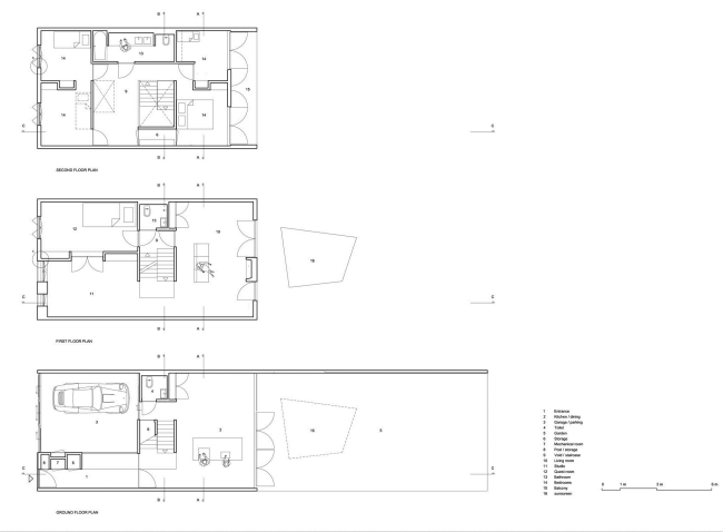
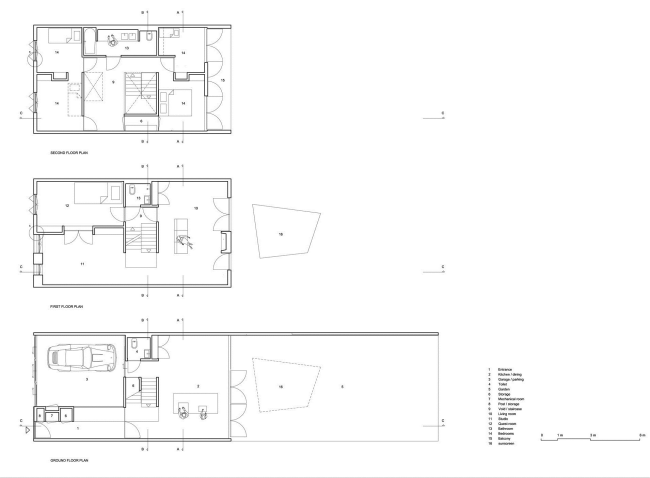
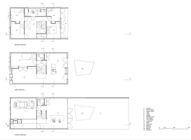
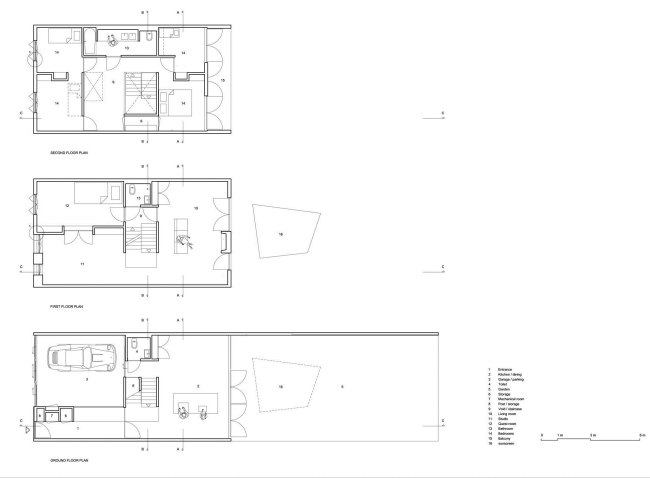
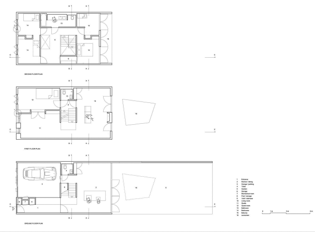
Получился трехэтажный дом у воды, на берегу озера, со встроенным гаражом со стороны улицы.

Для общего решения фасада архитекторы выбрали фиброцементные панели бренда EQUITONE (ЭКВИТОН) цвета мокрого темно-серого камня. Лаконичность материала и возможность кроя способствуют воплощению непростых идей авторов проекта в жизнь. Распил фиброцемента на узкие ламели и его живая фактура помогают дому вписаться в гармоничное природное окружение, позволяя насладиться спокойным отдыхом в семейном кругу.
Дом на берегу озера Эй в Амстердаме. Фотография предоставлена компанией EQUITONE
Дом на берегу озера Эй в Амстердаме. Фотография предоставлена компанией EQUITONE
Дом на берегу озера Эй. Фотография предоставлена компанией EQUITONE
Дом на берегу озера Эй. Фотография предоставлена компанией EQUITONE

Фасад со стороны улицы получился довольно закрытый, с глухими наружными стенами и небольшими оконными проемами. Окна детских спален, выходящие на этот фасад, дополнительно оборудованы ставнями, защищая своих обитателей от яркого солнечного света, шума и посторонних глаз. Ставни выполнены из тех же фиброцементных плит EQUITONE (ЭКВИТОН), что и облицовка всего здания.
Дом на берегу озера Эй в Амстердаме. Фотография предоставлена компанией EQUITONE
Дом на берегу озера Эй в Амстердаме. Фотография предоставлена компанией EQUITONE

Идея планировки этого небольшого дома задумывалась таким образом, чтобы предоставить хозяевам максимум возможностей любоваться видами на водные просторы. Она полностью воплощена на южном, «озерном» фасаде, обращенном окнами на воду. Наиболее эффектная панорама открывается с лоджии третьего этажа.
Дом на берегу озера Эй в Амстердаме. Фотография предоставлена компанией EQUITONE
Дом на берегу озера Эй в Амстердаме. Фотография предоставлена компанией EQUITONE
Дом на берегу озера Эй в Амстердаме. Фотография предоставлена компанией EQUITONE
Дом на берегу озера Эй в Амстердаме. Фотография предоставлена компанией EQUITONE
Дом на берегу озера Эй в Амстердаме. Фотография предоставлена компанией EQUITONE
Дом на берегу озера Эй в Амстердаме. Фотография предоставлена компанией EQUITONE