Размещено на портале Архи.ру (www.archi.ru)

30.09.2016

Пиксельный пик

Анна Старостина
Объект:
Норвежский скалолазный центр
Адрес:
Норвегия, None, Ондалснес.

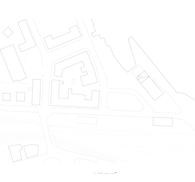
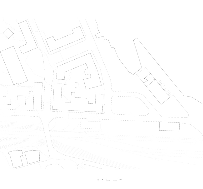
В норвежском городке Ондалснес открылся центр скалолазания по проекту Рейульфа Рамстада.

Норвежский скалолазный центр © Fotografandre.no
Норвежский скалолазный центр © Fotografandre.no

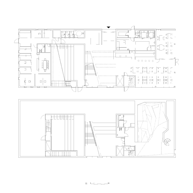
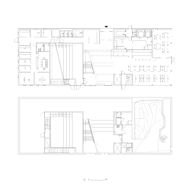
Заказчиками проекта выступили местные жители, он стал одной из мер по развитию города и «повышению квалификации» горожан: кроме спортивных целей, в центре готовят рабочих для нефтяных платформ, где очень важно умение хорошо лазать. Здание общей площадью 900 м2 расположено в порту, у самого берега фьорда и служит общественным центром для всего Ондалснеса: кроме раздевалок, скалодрома и отдельного помещения для болдеринга в нем расположены библиотека, выставочный зал, кафе, аудитория и офис администрации. Спортивная функция сосредоточена в высоком, действительно скалообразном объеме, а в низкой, прямоугольной части здания, получившей односкатную кровлю, размещены все дополнительные помещения.
Норвежский скалолазный центр © Søren Harder Jensen
Норвежский скалолазный центр © Søren Harder Jensen

Подобную композицию Рейульф Рамстад использует далеко не в первый раз (можно вспомнить его деревянную церковь в Кнарвике или расположенный совсем недалеко, у знаменитой «Стены троллей» стеклянный ресторан), но в данном случае, она, наверное, наиболее оправдана, так как почти буквально повторяет окружающие горные пейзажи. Сходства добавляет пиксилированное покрытие из металлических и деревянных пластин серого, коричневого и белого цветов. Доля белых вкраплений постепенно возрастает к верхней части башни, точно имитируя заснеженную вершину.
Норвежский скалолазный центр © Søren Harder Jensen
Норвежский скалолазный центр © Søren Harder Jensen

Идеально вписанный в местный ландшафт объем, конечно же, призван стать новым символом города. Он почти лишен окон: лишь несколько ромбовидных проемов нарушают покрытие низкой части здания. Изнутри они воспринимаются как рамы для впечатляющих пейзажей. При этом лишенная таких прорезей башня получила сплошное остекление в своей нижней части. Именно здесь расположен вход в центр: такое решение позволило дополнительно подчеркнуть общественную значимость нового объекта и связать его внутреннее пространство с окружением.
Норвежский скалолазный центр © Søren Harder Jensen
Норвежский скалолазный центр © Søren Harder Jensen
Норвежский скалолазный центр © Søren Harder Jensen
Норвежский скалолазный центр © Søren Harder Jensen
Норвежский скалолазный центр © Søren Harder Jensen
Норвежский скалолазный центр © Søren Harder Jensen
Норвежский скалолазный центр © Søren Harder Jensen
Норвежский скалолазный центр © Søren Harder Jensen
Норвежский скалолазный центр © Søren Harder Jensen
Норвежский скалолазный центр © Søren Harder Jensen
Норвежский скалолазный центр © Søren Harder Jensen
Норвежский скалолазный центр © Søren Harder Jensen
Норвежский скалолазный центр © Søren Harder Jensen
Норвежский скалолазный центр © Søren Harder Jensen
Норвежский скалолазный центр © Søren Harder Jensen
Норвежский скалолазный центр © Søren Harder Jensen
Норвежский скалолазный центр © Fotografandre.no
Норвежский скалолазный центр © Fotografandre.no
Норвежский скалолазный центр © Søren Harder Jensen
Норвежский скалолазный центр © Søren Harder Jensen
Норвежский скалолазный центр © Søren Harder Jensen
Норвежский скалолазный центр © Søren Harder Jensen
Норвежский скалолазный центр © Fotografandre.no
Норвежский скалолазный центр © Fotografandre.no
Норвежский скалолазный центр © Fotografandre.no
Норвежский скалолазный центр © Fotografandre.no
Норвежский скалолазный центр © Søren Harder Jensen
Норвежский скалолазный центр © Søren Harder Jensen
Норвежский скалолазный центр © Søren Harder Jensen
Норвежский скалолазный центр © Søren Harder Jensen
Норвежский скалолазный центр © Søren Harder Jensen
Норвежский скалолазный центр © Søren Harder Jensen
Норвежский скалолазный центр © Fotografandre.no
Норвежский скалолазный центр © Fotografandre.no
Норвежский скалолазный центр © Søren Harder Jensen
Норвежский скалолазный центр © Søren Harder Jensen
Норвежский скалолазный центр © Søren Harder Jensen
Норвежский скалолазный центр © Søren Harder Jensen
Норвежский скалолазный центр © Søren Harder Jensen
Норвежский скалолазный центр © Søren Harder Jensen
Норвежский скалолазный центр © Søren Harder Jensen
Норвежский скалолазный центр © Søren Harder Jensen
Норвежский скалолазный центр © Søren Harder Jensen
Норвежский скалолазный центр © Søren Harder Jensen
Норвежский скалолазный центр © Søren Harder Jensen
Норвежский скалолазный центр © Søren Harder Jensen
Норвежский скалолазный центр © Søren Harder Jensen
Норвежский скалолазный центр © Søren Harder Jensen
Норвежский скалолазный центр © Søren Harder Jensen
Норвежский скалолазный центр © Søren Harder Jensen
Норвежский скалолазный центр © Søren Harder Jensen
Норвежский скалолазный центр © Søren Harder Jensen
Норвежский скалолазный центр © Reiulf Ramstad Arkitekter
Норвежский скалолазный центр © Reiulf Ramstad Arkitekter
Норвежский скалолазный центр © Reiulf Ramstad Arkitekter
Норвежский скалолазный центр © Reiulf Ramstad Arkitekter
Норвежский скалолазный центр © Reiulf Ramstad Arkitekter
Норвежский скалолазный центр © Reiulf Ramstad Arkitekter
Норвежский скалолазный центр © Reiulf Ramstad Arkitekter
Норвежский скалолазный центр © Reiulf Ramstad Arkitekter
Норвежский скалолазный центр © Reiulf Ramstad Arkitekter
Норвежский скалолазный центр © Reiulf Ramstad Arkitekter
Норвежский скалолазный центр © Reiulf Ramstad Arkitekter
Норвежский скалолазный центр © Reiulf Ramstad Arkitekter
Норвежский скалолазный центр © Reiulf Ramstad Arkitekter
Норвежский скалолазный центр © Reiulf Ramstad Arkitekter
Норвежский скалолазный центр © Reiulf Ramstad Arkitekter
Норвежский скалолазный центр © Reiulf Ramstad Arkitekter