Размещено на портале Архи.ру (www.archi.ru)

23.09.2016

Алмаз на крыше

Нина Фролова
Объект:
Здание администрации порта Антверпена
Адрес:
Бельгия, None, Антверпен.

Открылось здание администрации порта Антверпена по проекту бюро Захи Хадид; площадь перед новой постройкой названа именем ее архитектора.

Здание администрации порта Антверпена © Hélène Binet
Здание администрации порта Антверпена © Hélène Binet

Порт – ведущее предприятие Антверпена: он второй в Европе по грузообороту после Роттердама, там занято 60 000 человек (из них 8000 – собственно портовые рабочие), а всего от порта зависит благосостояние 150 000 горожан. Поэтому эффективность портовой администрации имеет большое значение, и потому собрать всех 500 ее сотрудников под одной крышей было насущной необходимостью (ранее они были рассредоточены по разным зданиями).
 
Здание администрации порта Антверпена © Hélène Binet
Здание администрации порта Антверпена © Hélène Binet

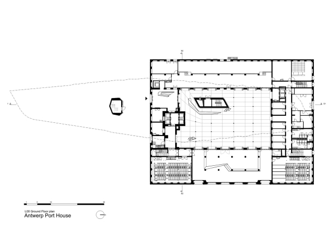
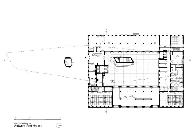
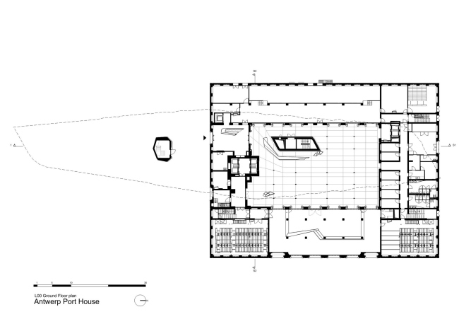
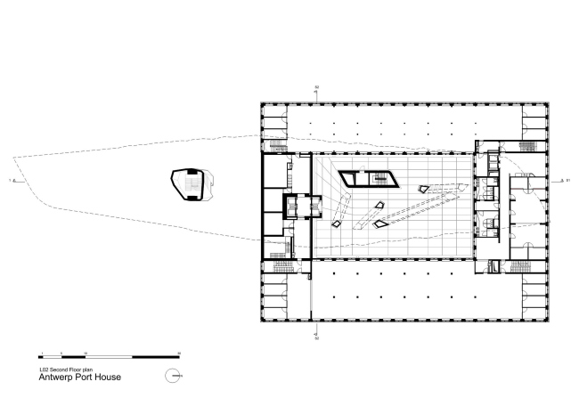
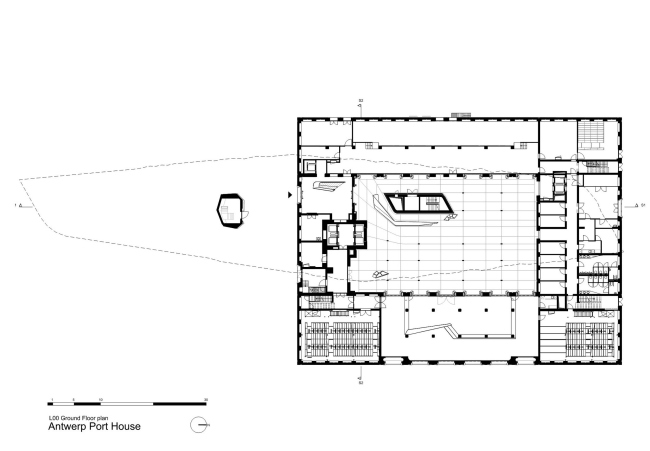
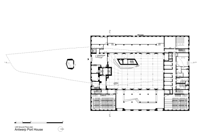
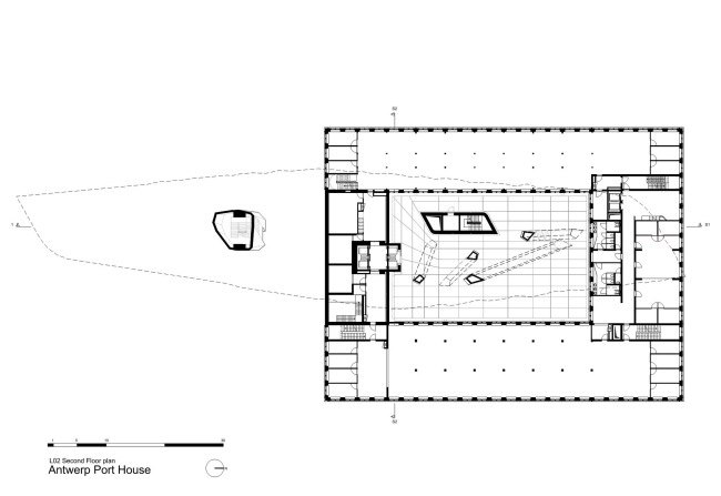
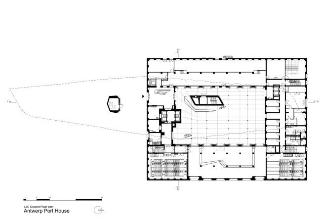
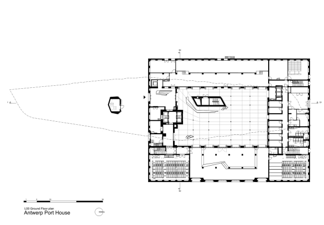
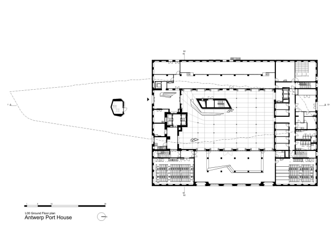
Местом для новой штаб-квартиры был выбран район доков, точнее – бывшее здание пожарной части (его функцию приняла на себя современная постройка). Его было необходимо приспособить под требования офисного пространства XXI века, с учетом возможных перемен в будущем. Был объявлен архитектурный конкурс, единственным ограничительным условием которого было аккуратное обращение с пожарной частью: она была возведена в 1922 тогдашним главным архитектором Антверпена Эмилем Ван Авербеке и повторяла формы сгоревшего дотла в конце XIX века ренессансного «Ганзейского дома» (Хансахёйса или Остерхёйса) – представительства Ганзы со складами, административной и жилой частью, а в 2000 получила статус памятника.
 
Здание администрации порта Антверпена © Hufton + Crow
Здание администрации порта Антверпена © Hufton + Crow

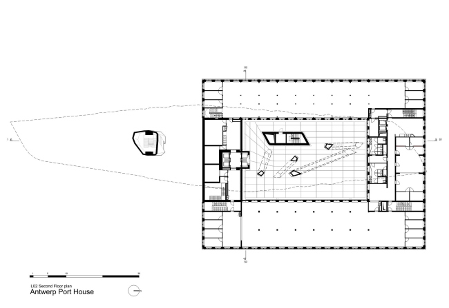
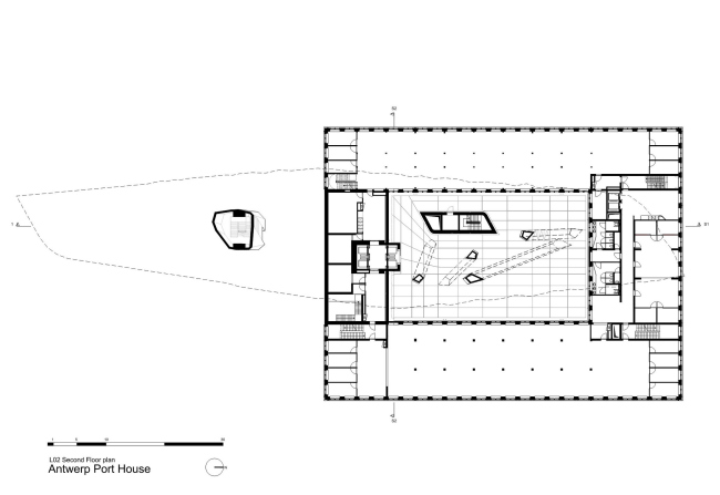
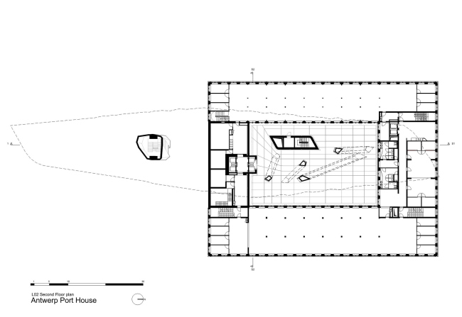
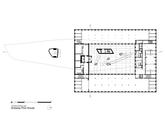
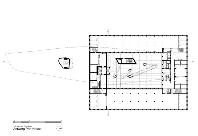
Все пять участников конкурса предложили разместить новую часть над старой, но проект Захи Хадид, по словам заказчиков, оказался самым ярким из всех. Многогранный остекленный объем одновременно напоминает указывающий на реку Шельду нос корабля и алмаз (Антверпен, мировой центр гранения и торговли бриллиантами, известен как «алмазный город»). Также он вдохновлен башней, которая имелась у «Ганзейского дома» и должна была завершать пожарную часть Ван Авербеке – но ее так и не возвели. Размещение пристройки (точнее, надстройки) именно сверху открывает взгляду все четыре фасада исторического здания, которые особенно хорошо видны из-за его расположения у самой воды.
 
Здание администрации порта Антверпена © Tim Fisher
Здание администрации порта Антверпена © Tim Fisher

В память об авторе новой штаб-квартиры портовой администрации площадь перед ней была названа в ее честь, поэтому адрес постройки – Zaha Hadidplein 1: «площадь Захи Хадид, дом 1».
 
Здание администрации порта Антверпена © Hufton + Crow
Здание администрации порта Антверпена © Hufton + Crow

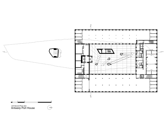
Остекление новой части составлено не только из прозрачных, но и из непроницаемых панелей, что защищает интерьер от излишних солнечных света и жара и создает интригу: виды порта и города открываются не отовсюду. Просторный внутренний двор исторического сооружения превращен в атриум-вестибюль со стеклянной кровлей. Туда выходят библиотека и читальный зал, устроенные в бывшем гараже для пожарных машин. Попасть в надстройку оттуда можно на панорамных лифтах, а еще новую и старую части связывает открытый мост, который также служит смотровой площадкой.
 
Здание администрации порта Антверпена © Hufton + Crow
Здание администрации порта Антверпена © Hufton + Crow

Ключевые помещения – аудитория, переговорные и столовая – помещены наверху пожарной части и внизу надстройки, это «сердце» здания. Остальные этажи превращены в офисы свободной планировки. Рабочие места сотрудники порта будут использовать «гибко», меняясь ими в зависимости от текущих задач: телефонных переговоров, требующей концентрации внимания и тишины работы, деловых встреч.
 
Здание администрации порта Антверпена © Hufton + Crow
Здание администрации порта Антверпена © Hufton + Crow

Здание претендует на уровень Very Good сертификата энергоэффективности BREEAM. Среди «зеленых» компонентов проекта – геотермальная система отопления и охлаждения здания (100 скважин глубиной 80 м), автоматическая система контроля уровня освещенности, датчики движения на смесителях, безводные писсуары и т.д.
Здание администрации порта Антверпена © Hélène Binet
Здание администрации порта Антверпена © Hélène Binet
Здание администрации порта Антверпена © Hufton + Crow
Здание администрации порта Антверпена © Hufton + Crow
Здание администрации порта Антверпена © Hufton + Crow
Здание администрации порта Антверпена © Hufton + Crow
Здание администрации порта Антверпена © Hufton + Crow
Здание администрации порта Антверпена © Hufton + Crow
Здание администрации порта Антверпена © Hélène Binet
Здание администрации порта Антверпена © Hélène Binet
Здание администрации порта Антверпена © Tim Fisher
Здание администрации порта Антверпена © Tim Fisher
Здание администрации порта Антверпена © Tim Fisher
Здание администрации порта Антверпена © Tim Fisher
Здание администрации порта Антверпена © Tim Fisher
Здание администрации порта Антверпена © Tim Fisher
Здание администрации порта Антверпена © Tim Fisher
Здание администрации порта Антверпена © Tim Fisher
Здание администрации порта Антверпена © Hélène Binet
Здание администрации порта Антверпена © Hélène Binet
Здание администрации порта Антверпена © Hélène Binet
Здание администрации порта Антверпена © Hélène Binet
Здание администрации порта Антверпена © Tim Fisher
Здание администрации порта Антверпена © Tim Fisher
Здание администрации порта Антверпена © Hufton + Crow
Здание администрации порта Антверпена © Hufton + Crow
Здание администрации порта Антверпена © Hufton + Crow
Здание администрации порта Антверпена © Hufton + Crow
Здание администрации порта Антверпена © Hufton + Crow
Здание администрации порта Антверпена © Hufton + Crow
Здание администрации порта Антверпена © Hufton + Crow
Здание администрации порта Антверпена © Hufton + Crow
Здание администрации порта Антверпена © Tim Fisher
Здание администрации порта Антверпена © Tim Fisher
Здание администрации порта Антверпена © Tim Fisher
Здание администрации порта Антверпена © Tim Fisher
Здание администрации порта Антверпена © Tim Fisher
Здание администрации порта Антверпена © Tim Fisher
Здание администрации порта Антверпена © Tim Fisher
Здание администрации порта Антверпена © Tim Fisher
Здание администрации порта Антверпена © Hufton + Crow
Здание администрации порта Антверпена © Hufton + Crow
Здание администрации порта Антверпена © Hufton + Crow
Здание администрации порта Антверпена © Hufton + Crow
Здание администрации порта Антверпена © Tim Fisher
Здание администрации порта Антверпена © Tim Fisher
Здание администрации порта Антверпена © Zaha Hadid Architects
Здание администрации порта Антверпена © Zaha Hadid Architects
Здание администрации порта Антверпена © Zaha Hadid Architects
Здание администрации порта Антверпена © Zaha Hadid Architects
Здание администрации порта Антверпена © Zaha Hadid Architects
Здание администрации порта Антверпена © Zaha Hadid Architects
Здание администрации порта Антверпена © Zaha Hadid Architects
Здание администрации порта Антверпена © Zaha Hadid Architects
Здание администрации порта Антверпена © Zaha Hadid Architects
Здание администрации порта Антверпена © Zaha Hadid Architects
Здание администрации порта Антверпена © Zaha Hadid Architects
Здание администрации порта Антверпена © Zaha Hadid Architects
Здание администрации порта Антверпена © Zaha Hadid Architects
Здание администрации порта Антверпена © Zaha Hadid Architects
Здание администрации порта Антверпена © Zaha Hadid Architects
Здание администрации порта Антверпена © Zaha Hadid Architects
Здание администрации порта Антверпена © Zaha Hadid Architects
Здание администрации порта Антверпена © Zaha Hadid Architects
Здание администрации порта Антверпена © Zaha Hadid Architects
Здание администрации порта Антверпена © Zaha Hadid Architects
Здание администрации порта Антверпена © Zaha Hadid Architects
Здание администрации порта Антверпена © Zaha Hadid Architects
Здание администрации порта Антверпена © Zaha Hadid Architects
Здание администрации порта Антверпена © Zaha Hadid Architects
Здание администрации порта Антверпена © Zaha Hadid Architects
Здание администрации порта Антверпена © Zaha Hadid Architects
Здание администрации порта Антверпена © Zaha Hadid Architects
Здание администрации порта Антверпена © Zaha Hadid Architects