Размещено на портале Архи.ру (www.archi.ru)

14.09.2016

Мост в ритме ударных

Нина Фролова
Объект:
Мост Тинтра
Адрес:
Норвегия, None, Восс. Russarvegen 11, 5700
Мастерская:
Rintala Eggertsson Arkitekter

Пешеходный мост Тинтра в Воссе близ Бергена по проекту бюро Rintala Eggertsson Architects.

Мост Тинтра © Dag Jenssen
Мост Тинтра © Dag Jenssen

Предыдущий мост через реку Воссо снесло наводнением в 2014, и весной 2015 власти городка объявили конкурс на проект нового сооружения на том же месте. Их условиями была связь «интерьера» моста с живописным окружением и возможность ловить с него рыбу – как можно было делать раньше (в Воссо, помимо прочего, водится лосось).
 
Мост Тинтра © Dag Jenssen
Мост Тинтра © Dag Jenssen

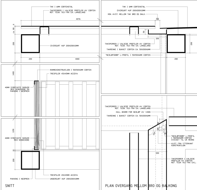
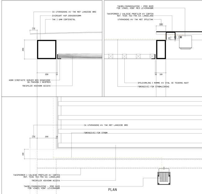
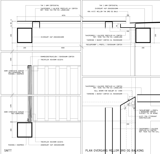
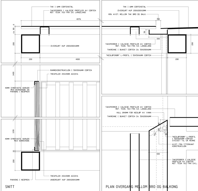
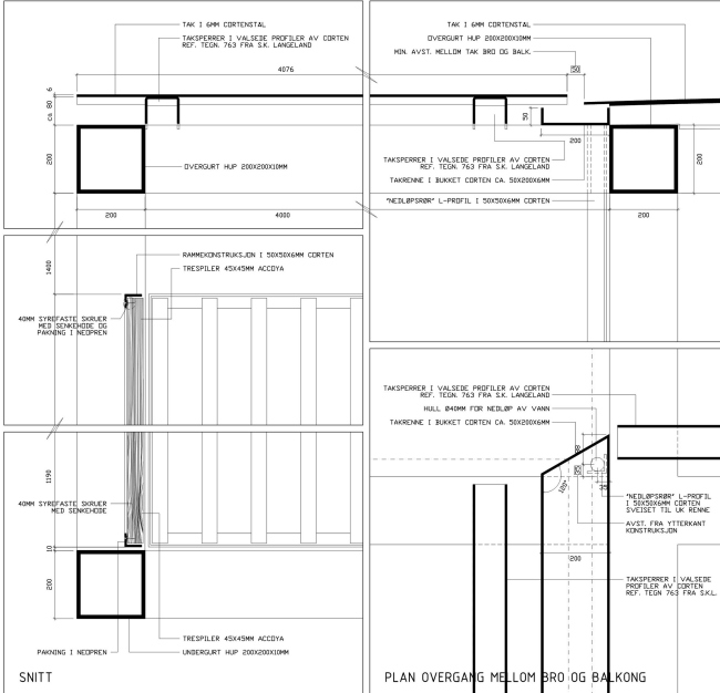
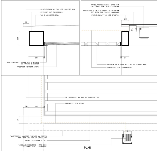
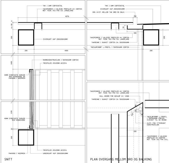
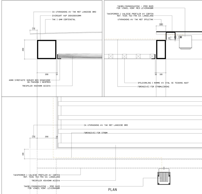
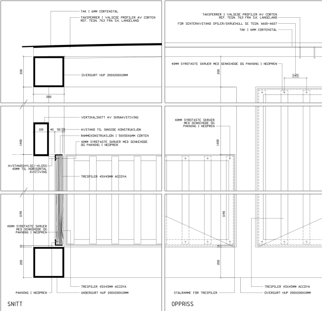
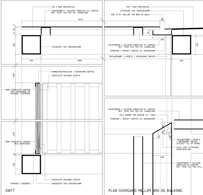
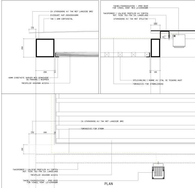
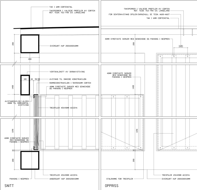
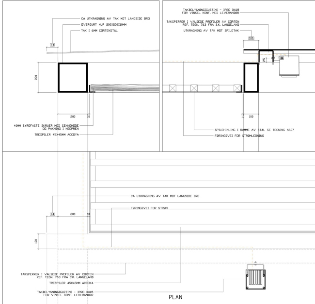
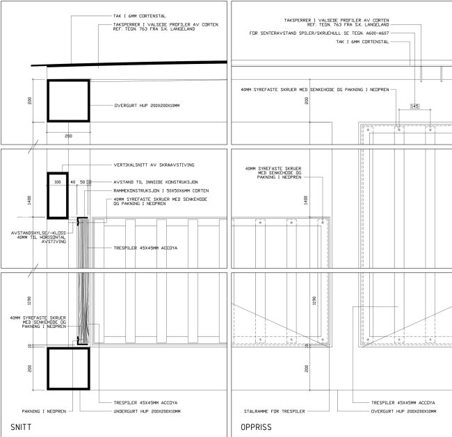
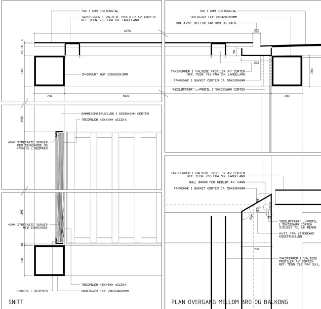
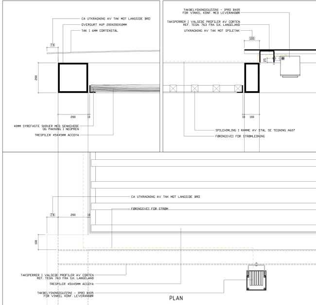
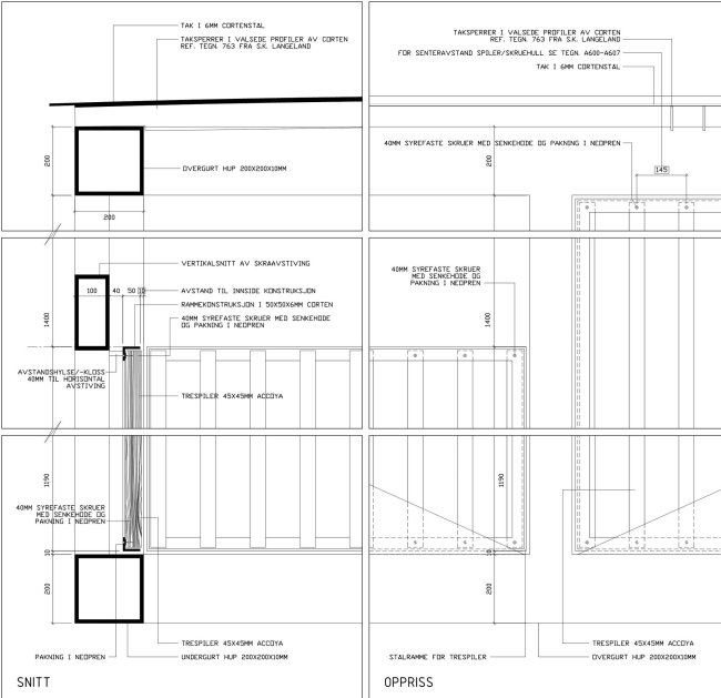
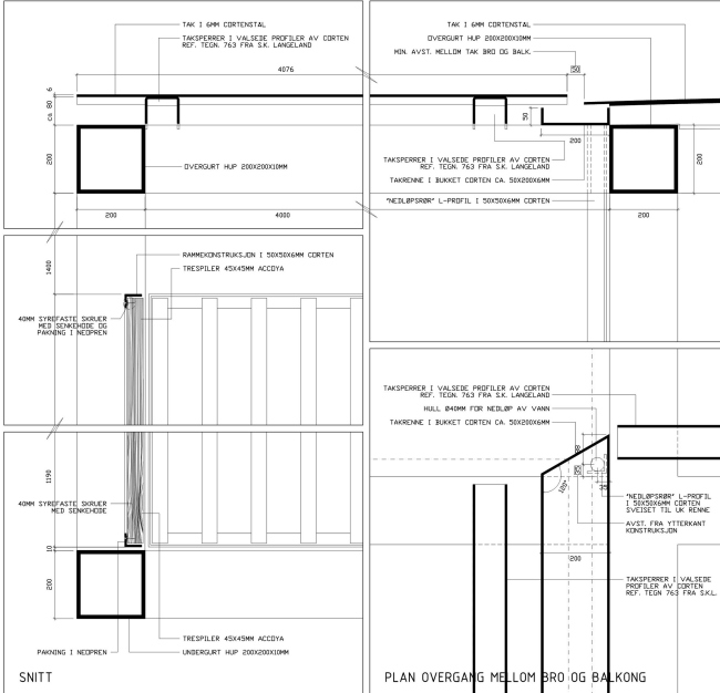
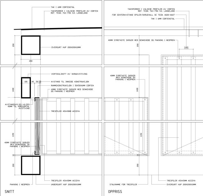
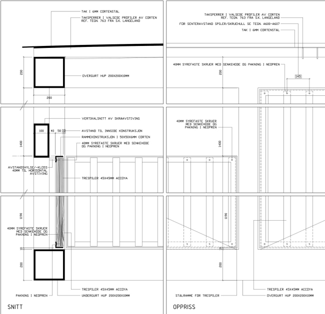
По итогам конкурса был выбран проект Rintala Eggertsson Architects, которые предложили возвести мост с каркасом из стали кортен и обшивкой из досок. Чтобы избежать монотонности, архитекторы выбрали для моста два «ритма», как в партитуре для ударных: их выражают металлические и деревянные детали, соответственно. Над бетонными опорами моста, оставшегося от разрушенного сооружения, помещены две выступающие над водой комнаты: они означают паузы и служат для рыбной ловли – теперь рыбаки и пешеходы не будут мешать друг другу. Внешняя металлическая конструкция выражает воздействующие на нее силы, а дерево внутри – привносит человеческий масштаб.
 
Мост Тинтра © Dag Jenssen
Мост Тинтра © Dag Jenssen

Как и хотели заказчики, в зазоры между планками хорошо видны пейзажи вокруг. Выбранные материалы – кортен и древесина Accoya – не требуют ухода, что значительно сэкономит средства муниципалитета. Той же цели служит кровля моста: так будет в значительной степени снята проблема уборки снега, которую на пешеходном мосту делать труднее, чем на обычном.
Мост Тинтра © Dag Jenssen
Мост Тинтра © Dag Jenssen
Мост Тинтра © Dag Jenssen
Мост Тинтра © Dag Jenssen
Мост Тинтра © Dag Jenssen
Мост Тинтра © Dag Jenssen
Мост Тинтра © Dag Jenssen
Мост Тинтра © Dag Jenssen
Мост Тинтра © Dag Jenssen
Мост Тинтра © Dag Jenssen
Мост Тинтра © Dag Jenssen
Мост Тинтра © Dag Jenssen
Мост Тинтра © Dag Jenssen
Мост Тинтра © Dag Jenssen
Мост Тинтра © Dag Jenssen
Мост Тинтра © Dag Jenssen
Мост Тинтра © Dag Jenssen
Мост Тинтра © Dag Jenssen
Мост Тинтра © Dag Jenssen
Мост Тинтра © Dag Jenssen
Мост Тинтра © Dag Jenssen
Мост Тинтра © Dag Jenssen
Мост Тинтра © Dag Jenssen
Мост Тинтра © Dag Jenssen
Мост Тинтра © Dag Jenssen
Мост Тинтра © Dag Jenssen
Мост Тинтра © Dag Jenssen
Мост Тинтра © Dag Jenssen
Мост Тинтра © Dag Jenssen
Мост Тинтра © Dag Jenssen
Мост Тинтра © Dag Jenssen
Мост Тинтра © Dag Jenssen
Мост Тинтра © Rintala Eggertsson Architects
Мост Тинтра © Rintala Eggertsson Architects
Мост Тинтра © Rintala Eggertsson Architects
Мост Тинтра © Rintala Eggertsson Architects
Мост Тинтра © Rintala Eggertsson Architects
Мост Тинтра © Rintala Eggertsson Architects
Мост Тинтра © Rintala Eggertsson Architects
Мост Тинтра © Rintala Eggertsson Architects
Мост Тинтра © Rintala Eggertsson Architects
Мост Тинтра © Rintala Eggertsson Architects
Мост Тинтра © Rintala Eggertsson Architects
Мост Тинтра © Rintala Eggertsson Architects
Мост Тинтра © Rintala Eggertsson Architects
Мост Тинтра © Rintala Eggertsson Architects
Мост Тинтра © Rintala Eggertsson Architects
Мост Тинтра © Rintala Eggertsson Architects
Мост Тинтра © Rintala Eggertsson Architects
Мост Тинтра © Rintala Eggertsson Architects