Размещено на портале Архи.ру (www.archi.ru)

13.09.2016

Другая история на том же языке

Нина Фролова
Объект:
Базельский художественный музей. Новое здание
Адрес:
Швейцария, Базель.
Мастерская:
Christ & Gantenbein

Новое крыло Базельского художественного музея по проекту Christ & Gantenbein.

Kunstmuseum Basel. Новое здание © Stefano Graziani
Kunstmuseum Basel. Новое здание © Stefano Graziani

Открывшееся в этом году новое здание Базельского «кунстмузеума» расположено через улицу от его главного корпуса – постройки 1936 года в формах ар деко с неороманскими мотивами. Энергичный угол исторической постройки в новом сооружении отзывается вогнутостью фасада, которая также формирует перед входом небольшой двор. Для самонесущих монолитных стен был выбран серый плоский кирпич (высота всего 4 см): чуть выступающие его ряды чередуются с отступающими, в результате поверхность получает дополнительную фактурность. Светлые и темные оттенки кирпича делят фасады на традиционные зоны, в том числе – «фриз», дополненный светодиодами: в зависимости от выбранной мощности они могут сиять или мягко светиться в сумерках.
 
Kunstmuseum Basel. Новое здание © Stefano Graziani
Kunstmuseum Basel. Новое здание © Stefano Graziani

В интерьере темно-серые бетонные балки потолка задают ритм, одновременно напоминая о вестибюле старого здания. Белые стены на «срезах» в проемах дверей и окон также окрашены в насыщенный серый, с которым контрастируют дубовые полы. На каждом этаже от лестницы начинаются два возможных маршрута осмотра. Размеры помещений разнообразны: от «кабинета» до большого зала, к тому же планировку можно корректировать в зависимости от экспозиции. Всего в новом здании – 2555 м2 выставочных площадей.
 
Kunstmuseum Basel. Новое здание © Stefano Graziani
Kunstmuseum Basel. Новое здание © Stefano Graziani

В вестибюле напоминающие о вневременности музея мраморные полы контрастируют со стальными панелями стен – знаком современности. Это пространство также подходит для представлений, приемов, лекций и многих других функций. Там начинается главная лестница из серого мрамора бардильо, причем стены ее покрыты фактурной серой штукатуркой. С главным корпусом новое крыло соединено серией подземных залов.
 
Kunstmuseum Basel. Новое здание © Stefano Graziani
Kunstmuseum Basel. Новое здание © Stefano Graziani

Многочисленные отсылки к традиции и образу старого корпуса (он открылся после реконструкции одновременно с новым крылом) позволили архитекторам Christ & Gantenbein заявить, что оба сооружения говорят на одном языке, однако их проект рассказывает свою историю – совсем другую, принципиально новую.
 
Kunstmuseum Basel. Новое здание © Stefano Graziani
Kunstmuseum Basel. Новое здание © Stefano Graziani
Kunstmuseum Basel. Новое здание © Stefano Graziani
Kunstmuseum Basel. Новое здание © Stefano Graziani
Kunstmuseum Basel. Новое здание © Stefano Graziani
Kunstmuseum Basel. Новое здание © Stefano Graziani
Kunstmuseum Basel. Новое здание © Stefano Graziani
Kunstmuseum Basel. Новое здание © Stefano Graziani
Kunstmuseum Basel. Новое здание © Stefano Graziani
Kunstmuseum Basel. Новое здание © Stefano Graziani
Kunstmuseum Basel. Новое здание © Stefano Graziani
Kunstmuseum Basel. Новое здание © Stefano Graziani
Kunstmuseum Basel. Новое здание © Stefano Graziani
Kunstmuseum Basel. Новое здание © Stefano Graziani
Kunstmuseum Basel. Новое здание © Stefano Graziani
Kunstmuseum Basel. Новое здание © Stefano Graziani
Kunstmuseum Basel. Новое здание © Stefano Graziani
Kunstmuseum Basel. Новое здание © Stefano Graziani
Kunstmuseum Basel. Новое здание © Stefano Graziani
Kunstmuseum Basel. Новое здание © Stefano Graziani
Kunstmuseum Basel. Новое здание © Stefano Graziani
Kunstmuseum Basel. Новое здание © Stefano Graziani
Kunstmuseum Basel. Новое здание. Генплан.Christ & Gantenbein
Kunstmuseum Basel. Новое здание. Генплан.Christ & Gantenbein
Kunstmuseum Basel. Новое здание. Ситуационный план. Christ & Gantenbein
Kunstmuseum Basel. Новое здание. Ситуационный план. Christ & Gantenbein
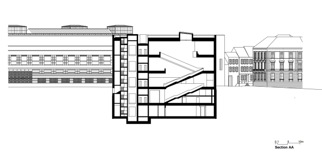
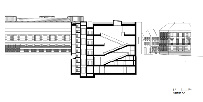
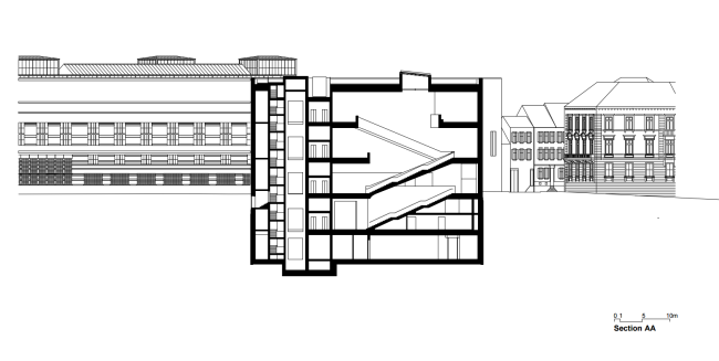
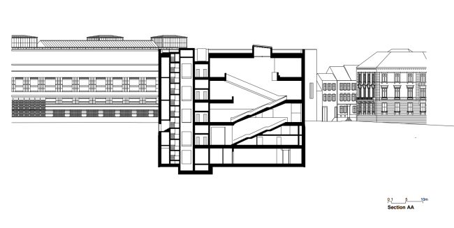
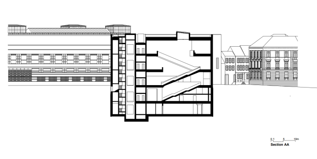
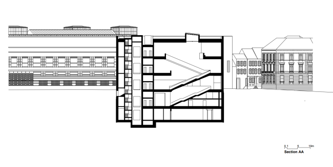
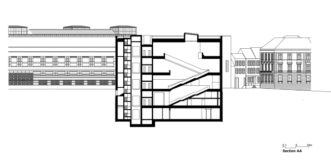
Kunstmuseum Basel. Новое здание. Секция АА.Christ & Gantenbein
Kunstmuseum Basel. Новое здание. Секция АА.Christ & Gantenbein
Kunstmuseum Basel. Новое здание. Секция ВВ. Christ & Gantenbein
Kunstmuseum Basel. Новое здание. Секция ВВ. Christ & Gantenbein
Kunstmuseum Basel. Новое здание. Разрез. Christ & Gantenbein
Kunstmuseum Basel. Новое здание. Разрез. Christ & Gantenbein
Kunstmuseum Basel. Новое здание. Мансарда. Christ & Gantenbein
Kunstmuseum Basel. Новое здание. Мансарда. Christ & Gantenbein
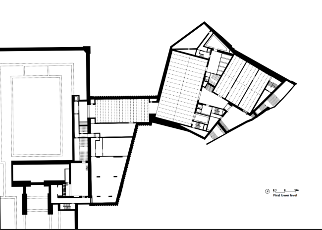
Kunstmuseum Basel. Новое здание. Нижний уровень. Christ & Gantenbein
Kunstmuseum Basel. Новое здание. Нижний уровень. Christ & Gantenbein
Kunstmuseum Basel. Новое здание. Первый этаж. Christ & Gantenbein
Kunstmuseum Basel. Новое здание. Первый этаж. Christ & Gantenbein
Kunstmuseum Basel. Новое здание. Второй этаж. Christ & Gantenbein
Kunstmuseum Basel. Новое здание. Второй этаж. Christ & Gantenbein
Kunstmuseum Basel. Новое здание. Третий этаж. Christ & Gantenbein
Kunstmuseum Basel. Новое здание. Третий этаж. Christ & Gantenbein