Размещено на портале Архи.ру (www.archi.ru)

14.10.2016

Дудергофская идиллия

Ирина Бембель
Объект:
Жилой комплекс Dudergoff club
Адрес:
Россия, Санкт-Петербург. Петергофское шоссе, квартал 39А
Мастерская:
Архитектурная мастерская Цыцина
Авторский коллектив:
Генеральный директор: Цыцин С.В.
Главный инженер проекта: Наумович В.Н.
Главный архитектор проекта: Герасимова Л.Г.

Жилой комплекс «Dudergoff club» построен по проекту Сергея Цыцина на берегу Финского залива в Петербурге.

Застройка квартала в районе «Балтийская жемчужина» (жилой комплекс Dudergoff club). Постройка, 2016
Застройка квартала в районе «Балтийская жемчужина» (жилой комплекс Dudergoff club). Постройка, 2016
© Архитектурная мастерская Цыцина

Жилой район «Балтийская жемчужина» на юго-западе Петербурга – один из крупнейших российско-китайских проектов в сфере недвижимости. Его инвестор, ЗАО «Балтийская жемчужина» – «дочкой» ЗАО «Шанхайская заграничная объединённая инвестиционная компания». Проект, стартовавший в 2005 году, включал в себя не просто строительство жилых кварталов, но и намыв территории, укрепление берега Финского залива, реставрацию Матисова и Дудергофского каналов с идеей устройства мостов через них. Общая площадь застройки составляет 1 760 000 м², а сумма инвестиций превышает 3 млрд долларов.

И не случайно. Расположение «Балтийской жемчужины» уникально по своим ландшафтным характеристикам: территория выходит на Финский залив, её пересекают Дудергофский и Матисов каналы; к востоку раскинулся Южно-Приморский парк. Возникший на окраине микрорайон, тем не менее, причастен к истории Петербурга: мимо идёт Петергофское шоссе на Стрельну с её жемчужиной – Константиновским дворцом; совсем рядом восстанавливается Троице-Сергиева Пустынь.
Застройка квартала в районе «Балтийская жемчужина» (жилой комплекс Dudergoff club). Постройка, 2016
Застройка квартала в районе «Балтийская жемчужина» (жилой комплекс Dudergoff club). Постройка, 2016
© Архитектурная мастерская Цыцина

Неплохая транспортная доступность обеспечена в том числе близостью кольцевой дороги и недавно введённым в строй мостом. В одной из публикаций мы уже рассказывали о здании бизнес-центра «Балтийская жемчужина», ставшем эмблемой и локомотивом всей застройки. Его автор Сергей Цыцин является также одним из разработчиков общего мастер-плана территории. «На первом этапе заказчик провёл международный конкурс на развитие территории, итоги которого остались по большей части на бумаге, – рассказывает Сергей Цыцин. – Затем последовал закрытый конкурс с участием нашей мастерской и ещё двух команд, без определения победителя. Проекты были переданы заказчику вместе с авторскими правами. Тот проект комплексного освоения территории, который лёг в основу застройки, является “собирательным”, вобрав в себя идеи разных авторов».

Разделённая дорогами и водными каналами, территория микрорайона включает несколько жилых комплексов, спроектированных разными архитекторами. Авторство одного из них также принадлежит Сергею Цыцину. ЖК получил название «Dudergoff club», отсылающее к названию императорской дачи, а позже – популярного места отдыха петербуржцев. Расположенный на берегу Матисова канала, прямо напротив парка, он задуман как элитный кондоминиум, сочетающий преимущества городской и сельской жизни. Территория квартала имеет форму прямоугольника площадью 800х200 метров, вытянутого в направлении с юга на север вдоль Дудергофского канала. Двух-пятиэтажные дома сгруппированы в виде мини-кварталов периметральной застройки с собственным двором.
Застройка квартала в районе «Балтийская жемчужина» (жилой комплекс Dudergoff club). Проект, 2007
Застройка квартала в районе «Балтийская жемчужина» (жилой комплекс Dudergoff club). Проект, 2007
© Архитектурная мастерская Цыцина
Застройка квартала в районе «Балтийская жемчужина» (жилой комплекс Dudergoff club). Генеральный план
Застройка квартала в районе «Балтийская жемчужина» (жилой комплекс Dudergoff club). Генеральный план
© Архитектурная мастерская Цыцина

Прибрежная линия домов состоит из отдельно стоящих коттеджей и таунхаусов. Далее ряды застройки поднимаются амфитеатром, обеспечивая максимальное раскрытие видов из окон, балконов и террас, с эксплуатируемых кровель и пентхаусов. Все квартиры имеют глубокие остеклённые веранды площадью до пятнадцати квадратных метров. На верхних этажах пентхаусов устроены большие открытые террасы. Торцами к каналу стоят секционные двухквартирные дома с собственными участками. В центре комплекса расположен детский сад, объединённый с начальной школой. Дворы решены как системы анфилад, нанизанных на композиционные оси – сквозные арочные пешеходные зоны.
Застройка квартала в районе «Балтийская жемчужина» (жилой комплекс Dudergoff club). Проект, 2007
Застройка квартала в районе «Балтийская жемчужина» (жилой комплекс Dudergoff club). Проект, 2007
© Архитектурная мастерская Цыцина
Застройка квартала в районе «Балтийская жемчужина» (жилой комплекс Dudergoff club). Постройка, 2016
Застройка квартала в районе «Балтийская жемчужина» (жилой комплекс Dudergoff club). Постройка, 2016
© Архитектурная мастерская Цыцина
Застройка квартала в районе «Балтийская жемчужина» (жилой комплекс Dudergoff club). Постройка, 2016
Застройка квартала в районе «Балтийская жемчужина» (жилой комплекс Dudergoff club). Постройка, 2016
© Архитектурная мастерская Цыцина
Застройка квартала в районе «Балтийская жемчужина» (жилой комплекс Dudergoff club). Постройка, 2016
Застройка квартала в районе «Балтийская жемчужина» (жилой комплекс Dudergoff club). Постройка, 2016
© Архитектурная мастерская Цыцина
Застройка квартала в районе «Балтийская жемчужина» (жилой комплекс Dudergoff club). Разрез (блокированный жилой дом)
Застройка квартала в районе «Балтийская жемчужина» (жилой комплекс Dudergoff club). Разрез (блокированный жилой дом)
© Архитектурная мастерская Цыцина
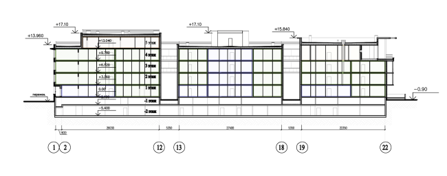
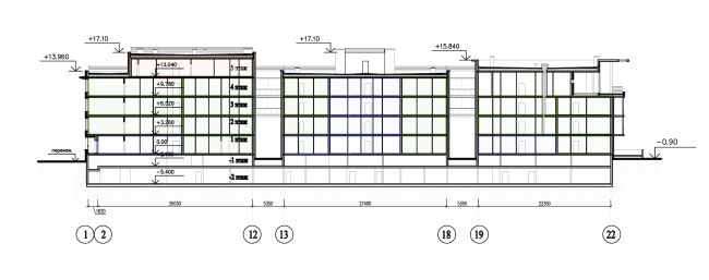
Застройка квартала в районе «Балтийская жемчужина» (жилой комплекс Dudergoff club). Разрез (секционный жилой дом)
Застройка квартала в районе «Балтийская жемчужина» (жилой комплекс Dudergoff club). Разрез (секционный жилой дом)
© Архитектурная мастерская Цыцина

«“Dudergoff club” – это полоска земли вдоль канала и пешеходной набережной, ориентированная на восток, открытая воде и парку, – говорит Сергей Цыцин. Девяносто процентов квартир должны были смотреть на воду. Масштаб внутренних двориков лавирует между уютностью и нашими нормами. Мне хотелось создать не замкнутые дворы, а именно “клуб”. Дворы связаны между собой системой параллельных и перпендикулярных арок, навеянных знаменитым домом Толстого Фёдора Лидваля. Самые дорогие квартиры приближены к воде и обращены на юг. Владельцы первого этажа имеют собственные палисадники. Не всё получилось осуществить, поскольку хорошие идеи в процессе реализации всегда немного «съезжают». Однако главное донести удалось, в том числе прекрасное общее благоустройство».
Застройка квартала в районе «Балтийская жемчужина» (жилой комплекс Dudergoff club). Постройка, 2016
Застройка квартала в районе «Балтийская жемчужина» (жилой комплекс Dudergoff club). Постройка, 2016
© Архитектурная мастерская Цыцина
Застройка квартала в районе «Балтийская жемчужина» (жилой комплекс Dudergoff club). Постройка, 2016
Застройка квартала в районе «Балтийская жемчужина» (жилой комплекс Dudergoff club). Постройка, 2016
© Архитектурная мастерская Цыцина

Архитектура комплекса – современная, лёгкая, с большим разнообразием геометрических комбинаций и преобладающим террасным лейтмотивом. Очевидно стремление авторов создать живой, подвижный силуэт и максимально раскрыть архитектуру природе – не только функционально, но и образно, сделав её «прозрачной», рефлексирующей и словно бы проникающей в ландшафт. Строгие, рациональные формы не чужды изящества, в общую модернистскую палитру вплетаются арочные анфилады дворов и «помпейские» мотивы верхних открытых террас. Органичность ландшафту достигается в том числе за счёт естественных материалов: кирпича, камня, керамики, а также обильного остекления.
Застройка квартала в районе «Балтийская жемчужина» (жилой комплекс Dudergoff club). Постройка, 2016
Застройка квартала в районе «Балтийская жемчужина» (жилой комплекс Dudergoff club). Постройка, 2016
© Архитектурная мастерская Цыцина
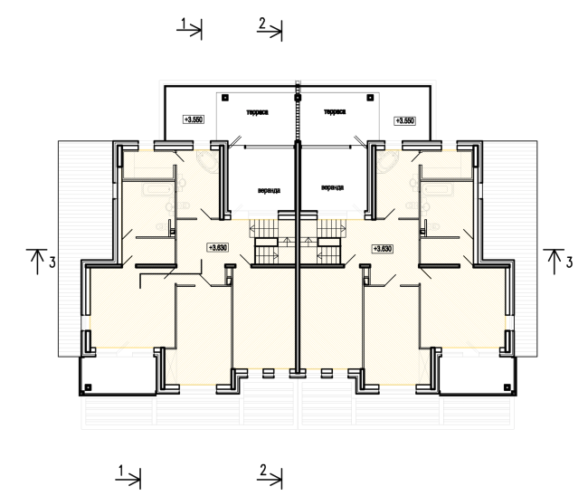
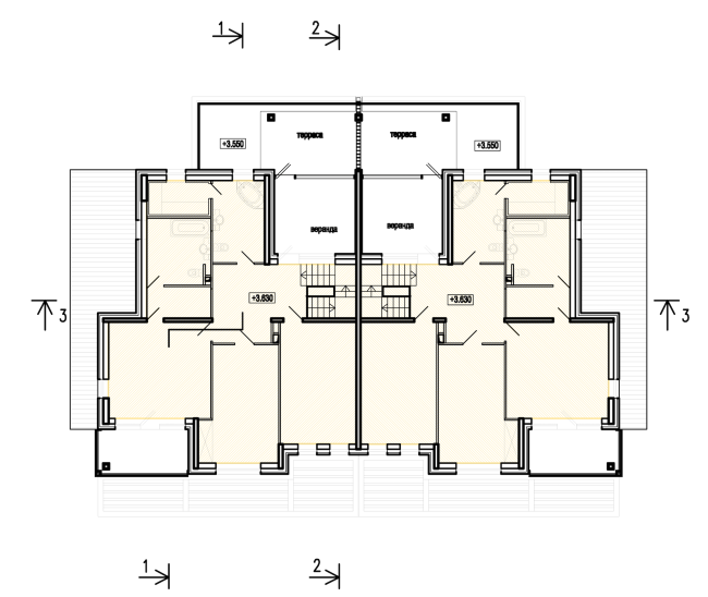
Застройка квартала в районе «Балтийская жемчужина» (жилой комплекс Dudergoff club). План 1 этажа
Застройка квартала в районе «Балтийская жемчужина» (жилой комплекс Dudergoff club). План 1 этажа
© Архитектурная мастерская Цыцина
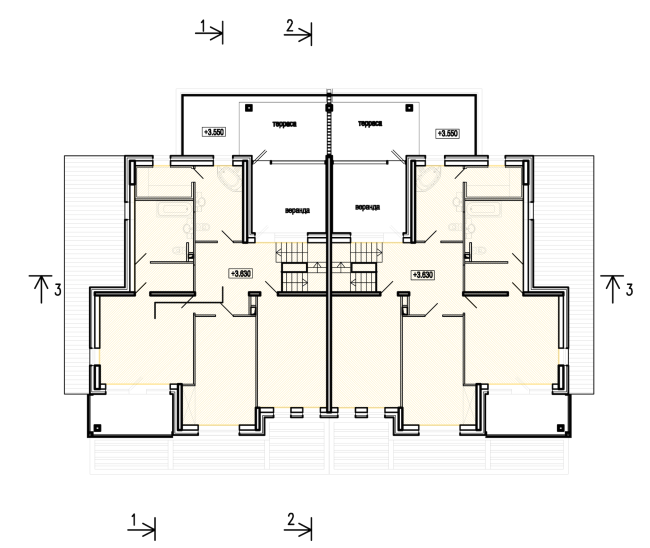
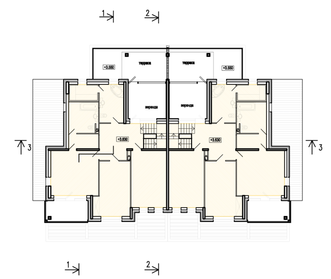
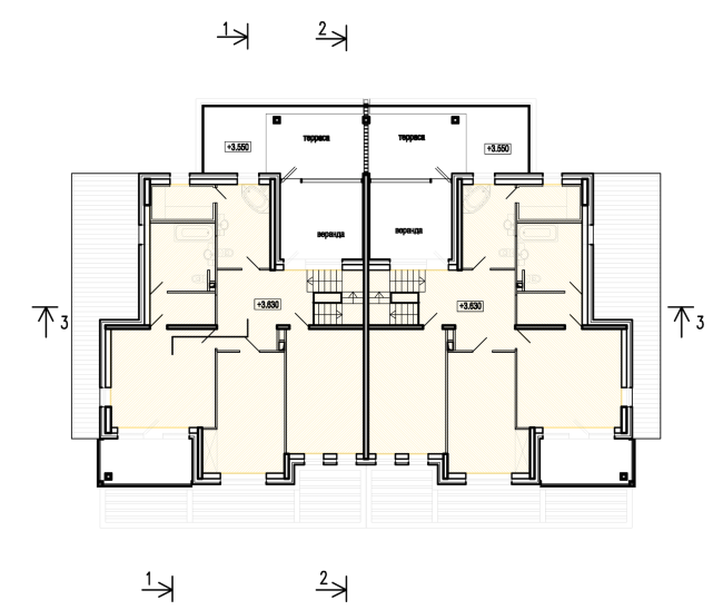
Застройка квартала в районе «Балтийская жемчужина» (жилой комплекс Dudergoff club). План 2 этажа
Застройка квартала в районе «Балтийская жемчужина» (жилой комплекс Dudergoff club). План 2 этажа
© Архитектурная мастерская Цыцина

Главная достопримечательность – Дудергофский канал – оформлен пешеходной набережной, хотя до мостов, к сожалению, дело так и не дошло. В перспективе, учитывая наличие каналов и близость залива, предполагается развитие прогулочного водного транспорта. Безусловно, это обогатит дудергофскую идиллию новыми красками.
Застройка квартала в районе «Балтийская жемчужина» (жилой комплекс Dudergoff club). Постройка, 2016
Застройка квартала в районе «Балтийская жемчужина» (жилой комплекс Dudergoff club). Постройка, 2016
© Архитектурная мастерская Цыцина
Застройка квартала в районе «Балтийская жемчужина» (жилой комплекс Dudergoff club). Постройка, 2016
Застройка квартала в районе «Балтийская жемчужина» (жилой комплекс Dudergoff club). Постройка, 2016
© Архитектурная мастерская Цыцина
Застройка квартала в районе «Балтийская жемчужина» (жилой комплекс Dudergoff club). Постройка, 2016
Застройка квартала в районе «Балтийская жемчужина» (жилой комплекс Dudergoff club). Постройка, 2016
© Архитектурная мастерская Цыцина
Застройка квартала в районе «Балтийская жемчужина» (жилой комплекс Dudergoff club). Проект, 2007
Застройка квартала в районе «Балтийская жемчужина» (жилой комплекс Dudergoff club). Проект, 2007
© Архитектурная мастерская Цыцина
Застройка квартала в районе «Балтийская жемчужина» (жилой комплекс Dudergoff club). План кровли
Застройка квартала в районе «Балтийская жемчужина» (жилой комплекс Dudergoff club). План кровли
© Архитектурная мастерская Цыцина
Застройка квартала в районе «Балтийская жемчужина» (жилой комплекс Dudergoff club). Разрез (блокированный жилой дом)
Застройка квартала в районе «Балтийская жемчужина» (жилой комплекс Dudergoff club). Разрез (блокированный жилой дом)
© Архитектурная мастерская Цыцина
Застройка квартала в районе «Балтийская жемчужина» (жилой комплекс Dudergoff club). Разрез (секционный жилой дом)
Застройка квартала в районе «Балтийская жемчужина» (жилой комплекс Dudergoff club). Разрез (секционный жилой дом)
© Архитектурная мастерская Цыцина