Размещено на портале Архи.ру (www.archi.ru)

12.09.2016

Веселая жизнь на «фабрике гробов»

Елизавета Эбнер

Жилой комплекс Заргфабрик в Вене – реконструкция фабрики по проекту мастерских BKK-2 и BKK-3.

Заргфабрик © Wolfgang Zeiner
Заргфабрик © Wolfgang Zeiner

Одно из самых приятных и интересных для жизни и просто визита мест в Вене называется Заргфабрик – «фабрика гробов» – и находится в западной части города, в 14-м районе Пенцинг. Чтобы снять комнату или квартиру в этом жилом комплексе, придется встать в длинную очередь – что неудивительно, учитывая умеренную арендную плату и наличие в комплексе таких компонентов, как собственный детский сад, культурный центр, ресторан, семинарская аудитория, библиотека, сады и огороды на крыше, детские площадки и даже бассейн.
 
Заргфабрик © Wolfgang Zeiner
Заргфабрик © Wolfgang Zeiner

В середине 1980-х несколько друзей решили объединиться против чересчур высоких цен на венском рынке недвижимости, где, к тому же, предлагалось жилье исключительно для традиционных семей, и создать кооператив, где было бы место всем – независимо от их стиля жизни и культурных предпочтений. Они придумали себе название – «Ассоциация по интегрированному образу жизни» – и в 1996 их идея превратилась из утопии в реальность. Сначала кооператив выкупил бывшую фабрику по изготовлению гробов «Julius Mascher & Sohne» (или просто Заргфабрик, Sargfabrik – «фабрика гробов»), а затем обратился к архитектурной мастерской BKK-2 за проектом ее превращения в новый жилой комплекс на 73 квартир (для 150 взрослых и 60 детей или подростков). В 2000 у Заргфабрик появилась «младшая сестра» – Miss Sargfabrik на 39 квартир.
 
Заргфабрик © Wolfgang Zeiner
Заргфабрик © Wolfgang Zeiner

Официально Заргфабрик зарегистрирована как хостел, что позволяет избежать стандартной для Австрии пропорции 1 парковочное место на одну семью и вместо этого использовать 1 машиноместо на 10 семей, прививая жильцам культуру совместного пользования автомобилем или передвижения на велосипеде. Поэтому не стали строить большой подземный паркинг, а потратили сэкономленные таким образом деньги на общественные пространства и создание, например, чудесного купального центра, которым может обычно похвастаться только элитное жилье. К планировкам в Заргфабрик также подошли гораздо более свободно, так как на проектирование хостелов не распространяются строгие жилищные регламенты. Кроме того, кооперативу удалось получить финансовую поддержку от городского совета.
 
Заргфабрик © Wolfgang Zeiner
Заргфабрик © Wolfgang Zeiner

Поселившийся в кооперативе человек регулярно вносит определенную сумму на содержание комплекса – по принципу арендной платы. Если же он решает съехать, его квартира возвращается во владение членов ассоциации. Кроме того, в Заргфабрик существует специальный фонд, куда состоятельные жильцы могут жертвовать суммы в поддержку малообеспеченных жителей. Все важные решения касательно бюджета, культурных и общественных программ и прочих тем обычно принимаются коллегиально на встречах ассоциации два раза в год.
 
Заргфабрик © Wolfgang Zeiner
Заргфабрик © Wolfgang Zeiner

Проект Заргфабрик задумывался как «город в городе» и действительно включает в себя все необходимое для каждодневной жизни – и даже гораздо больше. К примеру, здесь есть культурный центр с залом на 300 зрителей с трансформируемым пространством, специальным освещением и акустическими системами для проведения концертов, театральных представлений и так далее. Он очень популярен не только у жильцов Заргфабрик, но и среди жителей всего Запада Вены.
 
Заргфабрик © Wolfgang Zeiner
Заргфабрик © Wolfgang Zeiner

Детский сад комплекса рассчитан на 60 детей в возрасте 3–10 лет. Дети здесь поделены на 3 группы, каждой из которых занимаются воспитатели с родным немецким, турецким, боснийским, хорватским либо сербским языком. Нетрудно догадаться, что в детском саду Заргфабрик придерживаются методики воспитания Марии Монтессори.
 
Заргфабрик © Wolfgang Zeiner
Заргфабрик © Wolfgang Zeiner

Семинарская аудитория площадью 104 м2 вмещает 80 человек. Здесь могут проводиться воркшопы, различные встречи и даже сеансы терапии. Зал находится на первом этаже комплекса, что делает его более доступным для людей с ограниченными возможностями.
 
Заргфабрик © Wolfgang Zeiner
Заргфабрик © Wolfgang Zeiner

Кафе-ресторан кормит блюдами международной кухни, а также едой из специального вегетарианского меню. При нем есть небольшой садик, где в теплую погоду любят сидеть и жители комплекса, и посетители извне. Безусловно, наличие собственного кафе-ресторана очень удобно для жильцов и вполне окупается, так как сюда приходят посетители мероприятий в разных залах Заргфабрик, и именно здесь готовится еда для детского сада.
 
Заргфабрик © Wolfgang Zeiner
Заргфабрик © Wolfgang Zeiner

Одна из самых привлекательных частей Заргфабрик – купальный комплекс с финской сауной, бассейном с прохладной водой, тепидариумом, бассейном с подогревом и машиной для создания волн, джакузи, ванной для ног Кнайпа и тремя другими ванными. Все это великолепие работает ежедневно и открыто 24 часа. В купальном комплексе всегда чуть приглушенное освещение, создающее расслабленную атмосферу. В определенные дни недели здесь проводятся разнообразные мероприятия: вечера спа-релаксации только для женщин, для женщин и мужчин или только для представителей нетрадиционной ориентации. Поддерживая свободный дух Заргфабрик, любой посетитель может плавать как одетым, так и совершенно обнаженным по своему желанию.
 
Заргфабрик © Wolfgang Zeiner
Заргфабрик © Wolfgang Zeiner

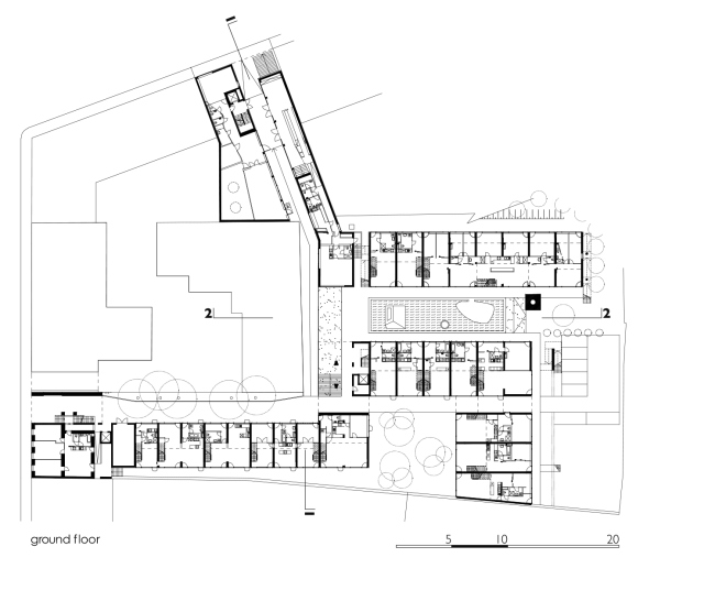
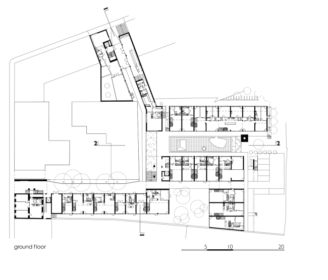
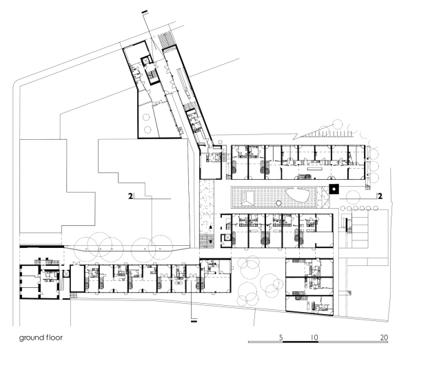
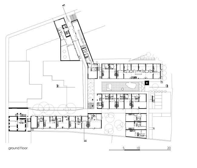
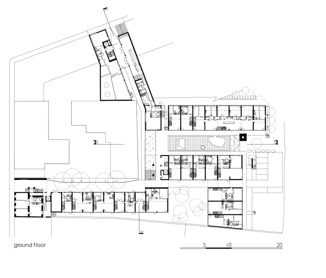
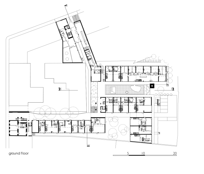
Примерно половина сотрудников комплекса одновременно являются его жителями, а абсолютно все общественные помещения здесь безбарьерны. От оригинального здания фабрики по изготовлению гробов сегодня не осталось практически ничего, кроме дымовой трубы, шага колонн в 4,8 м и высоты потолков 2,26 м. Авторы проекта объясняют это тем, что постройка находилась в крайне ветхом состоянии, и ее было легче кардинально переделать, чем заниматься реновацией. Архитектура жилого пространства в Заргфабрик отличается от Miss Sargfabrik, но в обоих зданиях развивают идею мобильности и открытости. В проекте 1996 года минимальный размер квартиры для одного человека составляет 32 м2, а максимальный, рассчитанный на 8 взрослых и 6 детей – 400 м2. В основе планировки оранжевого жилого блока лежит система легко модифицируемых ячеек-модулей, что позволяет при необходимости объединять их в более крупные пространства различной конфигурации. Из каждой гостиной здесь через большие стеклянные окна открывается вид на внутренний двор: по замыслу архитекторов, это повышает в кооперативе чувство общности. Во внутреннем дворе находится пруд-биотоп, а на крыше блока – небольшой сад с огородами жильцов.
 
Заргфабрик © Wolfgang Zeiner
Заргфабрик © Wolfgang Zeiner

Здание Miss Sargfabrik построено в 2000 по проекту бюро BKK-3 (несколько изменившееся по составу бюро BKK-2). Как и его предшественник, оно получило ярко-оранжевый цвет фасадов, который резко контрастирует с землистыми оттенками окружающей застройки. При создании планировки архитекторы руководствовались желанием членов кооператива иметь не похожие друг на друга квартиры со свободным планом. Здесь, например, есть наклонные полы, стены и потолки, часть апартаментов оборудована под домашние офисы и мастерские, имеются квартиры для людей с ограниченными возможностями. Вертикальная циркуляция осуществляется за счет двух лифтов, а горизонтальная – по пяти открытым балконам-галереям, протянутым по всей длине Miss Sargfabrik: туда выходят все помещения. Каждый, кто проходит по такому балкону, может видеть происходящее в квартирах. Жильцы Miss Sargfabrik – как правило, родственники жителей Sargfabrik – могут пользоваться всеми благами комплекса.
 
Заргфабрик © Wolfgang Zeiner
Заргфабрик © Wolfgang Zeiner

Проект Заргфабрик в Вене обязателен к посещению и изучению специалистами в области архитектуры, психологии и социологии. В его манифесте говорится, что жильцы совершенно не обязаны участвовать в общественной жизни комплекса, но, если все же захотят, то им всегда будут рады. Проект, безусловно, хорош для пенсионеров: в силу возраста им не всегда хочется выходить из дома, а здесь есть все необходимое и, более того, всегда готовы абсолютно бесплатно решить любые проблемы. Также комплекс удобен для людей с ограниченными возможностями, так как все помещения им полностью доступны, включая бассейн, и они всегда будут окружены вниманием остальных жильцов. Кроме того, что важно для Вены, где попасть в детский сад можно только записавшись в него за пару лет вперед, каждый жилец автоматически получает место в собственном детском саду комплекса.
 
Заргфабрик © Wolfgang Zeiner
Заргфабрик © Wolfgang Zeiner

Но если вы не ищите контакта с людьми, то, возможно, это место не для вас: ведь здесь вас обязательно забросают приглашениями на совместные ужины, будут настойчиво приносить кусочки домашнего пирога и звать потанцевать на местной вечеринке, а проходя по галерее мимо ваших окон – приветственно улыбаться и махать рукой.
Заргфабрик © Wolfgang Zeiner
Заргфабрик © Wolfgang Zeiner

Во времена правления Габсбургов эта фабрика была самой крупной в Австро-Венгрии – с самыми красивыми и оригинальными моделями гробов, которые пользовались огромным спросом не только на родине, но и за рубежом. Удивительно, что и сегодня Заргфабрик не менее замечательна – хотя совсем в другом роде, и наверняка ее история еще не закончена.
Заргфабрик © Wolfgang Zeiner
Заргфабрик © Wolfgang Zeiner
Заргфабрик © Wolfgang Zeiner
Заргфабрик © Wolfgang Zeiner
Заргфабрик © Wolfgang Zeiner
Заргфабрик © Wolfgang Zeiner
Заргфабрик © Wolfgang Zeiner
Заргфабрик © Wolfgang Zeiner
Заргфабрик © Wolfgang Zeiner
Заргфабрик © Wolfgang Zeiner
Заргфабрик © Wolfgang Zeiner
Заргфабрик © Wolfgang Zeiner
Заргфабрик © Wolfgang Zeiner
Заргфабрик © Wolfgang Zeiner
Заргфабрик © Wolfgang Zeiner
Заргфабрик © Wolfgang Zeiner
Фабрика до реконструкции © Wolfgang Zeiner
Фабрика до реконструкции © Wolfgang Zeiner
Фабрика до реконструкции © Wolfgang Zeiner
Фабрика до реконструкции © Wolfgang Zeiner
Фабрика до реконструкции © Wolfgang Zeiner
Фабрика до реконструкции © Wolfgang Zeiner
Заргфабрик © BKK-2
Заргфабрик © BKK-2
Заргфабрик © BKK-2
Заргфабрик © BKK-2
Miss Sargfabrik  © BKK-3
Miss Sargfabrik © BKK-3
Miss Sargfabrik  © BKK-3
Miss Sargfabrik © BKK-3
Miss Sargfabrik  © BKK-3
Miss Sargfabrik © BKK-3
Miss Sargfabrik  © BKK-3
Miss Sargfabrik © BKK-3
Miss Sargfabrik  © BKK-3
Miss Sargfabrik © BKK-3
Miss Sargfabrik  © BKK-3
Miss Sargfabrik © BKK-3
Miss Sargfabrik  © BKK-3
Miss Sargfabrik © BKK-3