Размещено на портале Архи.ру (www.archi.ru)

09.09.2016

Продвинутая хрущевка

Анна Старостина
Объект:
Многоквартирный дом Carmel Place
Адрес:
США, None, Нью-Йорк. 27th Street/Mt Carmel Place, Kips Bay, Manhattan
Мастерская:
nARCHITECTS

Первые жители въехали в уникальный комплекс компактного жилья Carmel Place на Манхэттене. Авторы проекта - бюро nARCHITECTS.

Многоквартирный дом Carmel Place © Iwan Baan
Многоквартирный дом Carmel Place © Iwan Baan

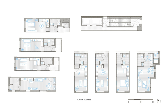
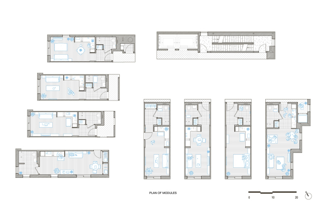
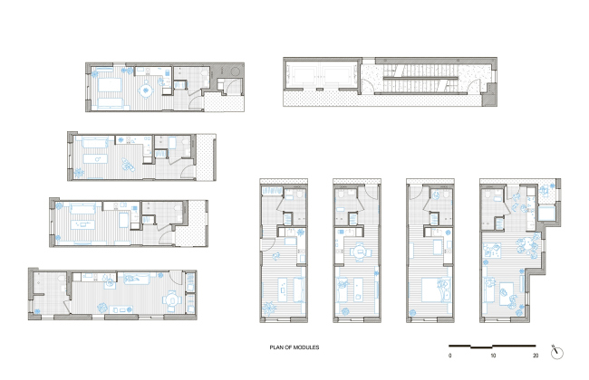
Трудно представить, что в огромном Нью-Йорке может чего-то не быть. Но проект Carmel Place смог предложить невиданный для Большого Яблока формат жилья. Комплекс, расположенный в нижнем Ист-Энде, на 27-й улице, почти на берегу Ист-ривер, вмещает 55 жилых ячеек площадью от 24 до 33,5 м2. Проект разрабатывался практически как типовой: как бы составленное из четырех разновысотных плоских «башен», толщиной 3,35 м каждая, здание может быть легко адаптировано для разных городов, а его уступчатый силуэт вполне впишется как в высотный, так и в низкоэтажный квартал любой планировки.
Многоквартирный дом Carmel Place © Field Condition
Многоквартирный дом Carmel Place © Field Condition

Исследования показали, что процент одиночек, которым совершенно не нужны большие апартаменты, в Нью-Йорке и других городах довольно высок и по прогнозам будет расти дальше. Предоставить таким людям комфортное и экономичное жилье и попытались авторы проекта. Уменьшить стоимость строительства помогла модульность конструкций: лишь фундамент и первый этаж возводились на месте, а все верхние этажи собирались из 65 готовых блоков со встроенной несущей стальной рамой. Вписать здание в городской контекст помогают традиционные для Нью-Йорка кирпичные фасады, для которых выбрали необычные, но универсальные оттенки серого цвета. Также архитекторы заимствовали пропорции окон, коридоров и лестниц у типичных американских доходных домов XIX века из темно-коричневого песчаника.
Многоквартирный дом Carmel Place © Iwan Baan
Многоквартирный дом Carmel Place © Iwan Baan

Carmel Place разрабатывался в рамках жилищной программы бывшего мэра города Майкла Блумберга. Интересно, что для его реализации пришлось даже скорректировать нормы по минимальному размеру жилой ячейки (ранее минимум составлял 37 кв. м.) и максимальному количеству таких ячеек в здании. Добиться изменений помогла большая социальная значимость проекта: 22 из 55 квартир будут отданы под программу доступного жилья (восемь из них предназначены для ветеранов, а на оставшиеся 14 было подано более 60 000 заявок: настолько оказалась востребована подобная типология!). Остальные 33 квартиры предназначены для свободной аренды, причем цены на нее могут достигать 3000 долларов в месяц.
Многоквартирный дом Carmel Place © Pablo Enriquez
Многоквартирный дом Carmel Place © Pablo Enriquez

Архитекторы разработали пять типовых планировок квартир. Во всех они попытались максимально расширить пространство. Во-первых, увеличили высоту потолков почти до 3 м, так что конечный объем ячейки оказался не меньше, чем у стандартных 37-метровых «студий». Во-вторых, установили огромные окна – высотой почти 2,5 м, которые обеспечивают прекрасную освещенность и раскрывают интерьеры в окружающий город. В-третьих, использовали французские балконы. И в-четвертых, предусмотрели над ванной нечто вроде антресолей для хранения вещей. Для всех социальных и половины обычных квартир был разработан дизайн интерьера на основе складной и встраиваемой мебели. Светлые тона отделки также способствуют зрительному увеличению пространства.
Многоквартирный дом Carmel Place © Pablo Enriquez
Многоквартирный дом Carmel Place © Pablo Enriquez

Максимально сократив личные владения, архитекторы вполне логично предоставили жильцам различные общественные зоны. Вместительный остекленный атриум соединяет западный и восточный входы в здание и заканчивается небольшим патио. Кроме чисто технической функции, он может использоваться для разных посиделок и праздников. На первом этаже также есть магазин, тренажерный зал, отдельная уютная зона со встроенными скамеечками. В подвале предусмотрена прачечная, стоянка для велосипедов, дополнительное хранилище для вещей. А на уровне 8 этажа находится еще одна общественная зона с выходом на открытую террасу на крыше. Все эти пространства должны способствовать тесному контакту жильцов-одиночек друг с другом.
Многоквартирный дом Carmel Place © Field Condition
Многоквартирный дом Carmel Place © Field Condition
Многоквартирный дом Carmel Place © Iwan Baan
Многоквартирный дом Carmel Place © Iwan Baan
Многоквартирный дом Carmel Place © Iwan Baan
Многоквартирный дом Carmel Place © Iwan Baan
Многоквартирный дом Carmel Place © Iwan Baan
Многоквартирный дом Carmel Place © Iwan Baan
Многоквартирный дом Carmel Place © Field Condition
Многоквартирный дом Carmel Place © Field Condition
Многоквартирный дом Carmel Place © Field Condition
Многоквартирный дом Carmel Place © Field Condition
Многоквартирный дом Carmel Place © Field Condition
Многоквартирный дом Carmel Place © Field Condition
Многоквартирный дом Carmel Place © Field Condition
Многоквартирный дом Carmel Place © Field Condition
Многоквартирный дом Carmel Place © Field Condition
Многоквартирный дом Carmel Place © Field Condition
Многоквартирный дом Carmel Place © Field Condition
Многоквартирный дом Carmel Place © Field Condition
Многоквартирный дом Carmel Place © Field Condition
Многоквартирный дом Carmel Place © Field Condition
Многоквартирный дом Carmel Place © Field Condition
Многоквартирный дом Carmel Place © Field Condition
Многоквартирный дом Carmel Place © Field Condition
Многоквартирный дом Carmel Place © Field Condition
Многоквартирный дом Carmel Place © Iwan Baan
Многоквартирный дом Carmel Place © Iwan Baan
Многоквартирный дом Carmel Place © Iwan Baan
Многоквартирный дом Carmel Place © Iwan Baan
Многоквартирный дом Carmel Place © Iwan Baan
Многоквартирный дом Carmel Place © Iwan Baan
Многоквартирный дом Carmel Place © Iwan Baan
Многоквартирный дом Carmel Place © Iwan Baan
Многоквартирный дом Carmel Place © Iwan Baan
Многоквартирный дом Carmel Place © Iwan Baan
Многоквартирный дом Carmel Place © Pablo Enriquez
Многоквартирный дом Carmel Place © Pablo Enriquez
Многоквартирный дом Carmel Place © Pablo Enriquez
Многоквартирный дом Carmel Place © Pablo Enriquez
Многоквартирный дом Carmel Place © Pablo Enriquez
Многоквартирный дом Carmel Place © Pablo Enriquez
Многоквартирный дом Carmel Place © Pablo Enriquez
Многоквартирный дом Carmel Place © Pablo Enriquez
Многоквартирный дом Carmel Place © Pablo Enriquez
Многоквартирный дом Carmel Place © Pablo Enriquez
Многоквартирный дом Carmel Place © Pablo Enriquez
Многоквартирный дом Carmel Place © Pablo Enriquez
Многоквартирный дом Carmel Place © Pablo Enriquez
Многоквартирный дом Carmel Place © Pablo Enriquez
Многоквартирный дом Carmel Place © Pablo Enriquez
Многоквартирный дом Carmel Place © Pablo Enriquez
Многоквартирный дом Carmel Place © Pablo Enriquez
Многоквартирный дом Carmel Place © Pablo Enriquez
Многоквартирный дом Carmel Place © Pablo Enriquez
Многоквартирный дом Carmel Place © Pablo Enriquez
Многоквартирный дом Carmel Place © Pablo Enriquez
Многоквартирный дом Carmel Place © Pablo Enriquez
Многоквартирный дом Carmel Place © Pablo Enriquez
Многоквартирный дом Carmel Place © Pablo Enriquez
Многоквартирный дом Carmel Place © nARCHITECTS
Многоквартирный дом Carmel Place © nARCHITECTS
Многоквартирный дом Carmel Place © nARCHITECTS
Многоквартирный дом Carmel Place © nARCHITECTS
Многоквартирный дом Carmel Place © nARCHITECTS
Многоквартирный дом Carmel Place © nARCHITECTS
Многоквартирный дом Carmel Place © nARCHITECTS
Многоквартирный дом Carmel Place © nARCHITECTS
Многоквартирный дом Carmel Place © nARCHITECTS
Многоквартирный дом Carmel Place © nARCHITECTS
Многоквартирный дом Carmel Place © nARCHITECTS
Многоквартирный дом Carmel Place © nARCHITECTS
Многоквартирный дом Carmel Place © nARCHITECTS
Многоквартирный дом Carmel Place © nARCHITECTS
Многоквартирный дом Carmel Place © nARCHITECTS
Многоквартирный дом Carmel Place © nARCHITECTS
Многоквартирный дом Carmel Place © nARCHITECTS
Многоквартирный дом Carmel Place © nARCHITECTS
Многоквартирный дом Carmel Place © nARCHITECTS
Многоквартирный дом Carmel Place © nARCHITECTS
Многоквартирный дом Carmel Place © nARCHITECTS
Многоквартирный дом Carmel Place © nARCHITECTS
Многоквартирный дом Carmel Place © nARCHITECTS
Многоквартирный дом Carmel Place © nARCHITECTS