Размещено на портале Архи.ру (www.archi.ru)

07.09.2016

Назад к улице

Екатерина Ровнова
Объект:
Жилой комплекс Ely Court
Адрес:
Великобритания, None, Лондон.

Жилой район 1960-х годов на северо-западе Лондона перестраивается по проекту студии Элисон Брукс.

Жилой комплекс Ely Court © Paul Riddle
Жилой комплекс Ely Court © Paul Riddle

48 гектар территории южного Килберна представляют собой один из самых больших лондонских районов с послевоенным модернистским жильем: в 1960-х традиционная квартальная застройка викторианской эпохи, четко разграничивающая улицу и двор, сменилась свободной планировкой с панельными домами разной этажности. К 1980-1990 годам эта территория стала походить на гетто, а таксисты отказывались туда ездить: визит в неблагополучный район – удовольствие сомнительное. Поэтому задачей масштабного проекта по трансформации Килберна стала его интеграция в городскую ткань – соединение с соседними районами – и создание современного, комфортного жилого пространства. Новая застройка предусматривает увеличение плотности населения, при этом всем жителям старого массива предоставляются квартиры в новом комплексе: таким образом, сложившееся сообщество не только не исчезает, но и оказывается вовлеченным в процесс проектирования и преобразования среды вокруг.
 
Жилой комплекс Ely Court © Paul Riddle
Жилой комплекс Ely Court © Paul Riddle

Первым реализованным этапом этой перестройки стал жилой комплекс Ely Court из трех корпусов, представляющий собой современную интерпретацию довоенного квартала. Чтобы влиться в окружение и избавиться от существующей визуальной (и эманирующей ментальной) сегрегации, архитекторам было важно восстановить роль улицы как главного героя общественной жизни: самым важным в квартале становится путь до каждой отдельной входной двери. Именно этот путь отсутствует в подобных районах свободной планировки, так знакомых большинству россиян: уличное пространство исключено из восприятия, его необходимо скорее преодолеть, чем прожить.
 
Жилой комплекс Ely Court © Paul Riddle
Жилой комплекс Ely Court © Paul Riddle

Строгая геометрия, материальность и тактильность открывающихся под углом плоскостей, переменная высота формируют улицу и двор, а глубоко западающие лоджии, выступающие балконы, французские окна и палисадники задают ритм фасадам и создают пресловутый эффект «eyes on the street», то есть жители вольно или невольно следят за пространством вокруг своего дома, что делает его безопаснее.
 
Жилой комплекс Ely Court © Paul Riddle
Жилой комплекс Ely Court © Paul Riddle






Вписываясь в существующее окружение – викторианские виллы, соседний район Мейда-Вейл, многоквартирные дома 1960-х, центр Армии Спасения – Ely Court становится неотъемлемой частью всего этого разнообразия, словно он всегда находился именно здесь. По замыслу авторов трансформации, этот пилотный проект стоимостью €8,2 млн должен стать импульсом развития района, развития не столько архитектурного, сколько социального. Жильцы новых светлых квартир с 2,6-метровыми потолками и окнами в пол говорят, что они будто бы и не Килберн вовсе, а Вест-Энд. Теперь у них есть пространство. И свобода.
Жилой комплекс Ely Court © Paul Riddle
Жилой комплекс Ely Court © Paul Riddle
Жилой комплекс Ely Court © Paul Riddle
Жилой комплекс Ely Court © Paul Riddle
Жилой комплекс Ely Court © Paul Riddle
Жилой комплекс Ely Court © Paul Riddle
Жилой комплекс Ely Court © Paul Riddle
Жилой комплекс Ely Court © Paul Riddle
Жилой комплекс Ely Court © Paul Riddle
Жилой комплекс Ely Court © Paul Riddle
Жилой комплекс Ely Court © Paul Riddle
Жилой комплекс Ely Court © Paul Riddle
Жилой комплекс Ely Court © Paul Riddle
Жилой комплекс Ely Court © Paul Riddle
Жилой комплекс Ely Court © Paul Riddle
Жилой комплекс Ely Court © Paul Riddle
Жилой комплекс Ely Court © Paul Riddle
Жилой комплекс Ely Court © Paul Riddle
Жилой комплекс Ely Court © Paul Riddle
Жилой комплекс Ely Court © Paul Riddle
Жилой комплекс Ely Court © Paul Riddle
Жилой комплекс Ely Court © Paul Riddle
Жилой комплекс Ely Court © Paul Riddle
Жилой комплекс Ely Court © Paul Riddle
Жилой комплекс Ely Court © Paul Riddle
Жилой комплекс Ely Court © Paul Riddle
Жилой комплекс Ely Court © Nelson Carvalho
Жилой комплекс Ely Court © Nelson Carvalho
Жилой комплекс Ely Court © Nelson Carvalho
Жилой комплекс Ely Court © Nelson Carvalho
Жилой комплекс Ely Court © Nelson Carvalho
Жилой комплекс Ely Court © Nelson Carvalho
Ely Court до реконструкции. Кадр из фильма City (e) State © Alison Brooks Architects
Ely Court до реконструкции. Кадр из фильма City (e) State © Alison Brooks Architects
Ely Court до реконструкции. Кадр из фильма City (e) State © Alison Brooks Architects
Ely Court до реконструкции. Кадр из фильма City (e) State © Alison Brooks Architects
Ely Court до реконструкции. Кадр из фильма City (e) State © Alison Brooks Architects
Ely Court до реконструкции. Кадр из фильма City (e) State © Alison Brooks Architects
Ely Court до реконструкции. Кадр из фильма City (e) State © Alison Brooks Architects
Ely Court до реконструкции. Кадр из фильма City (e) State © Alison Brooks Architects
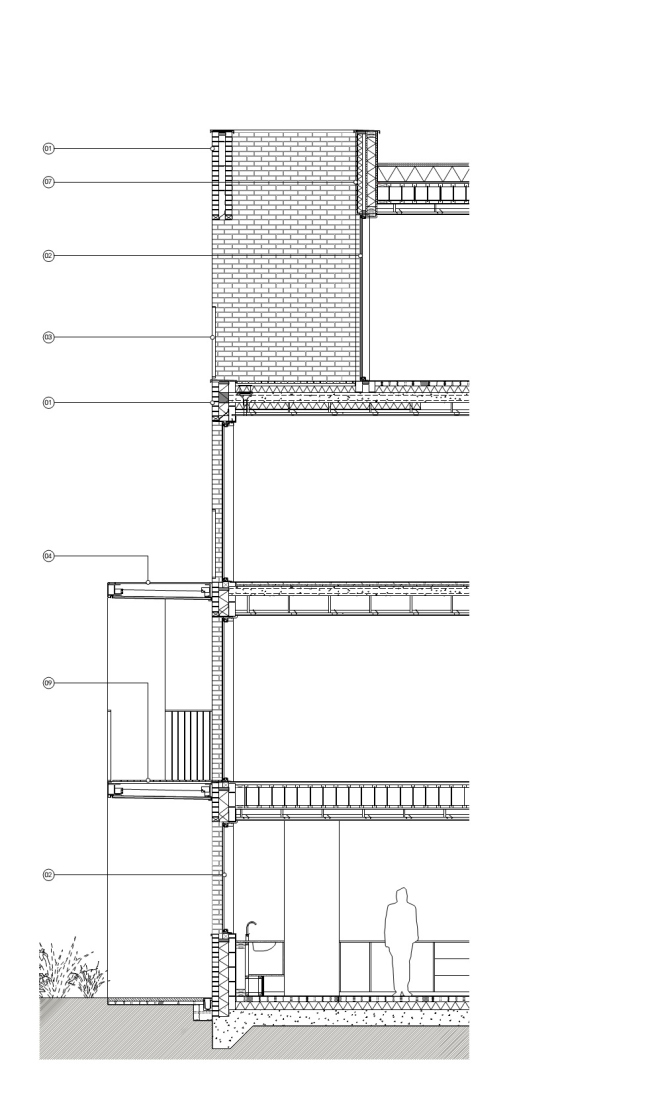
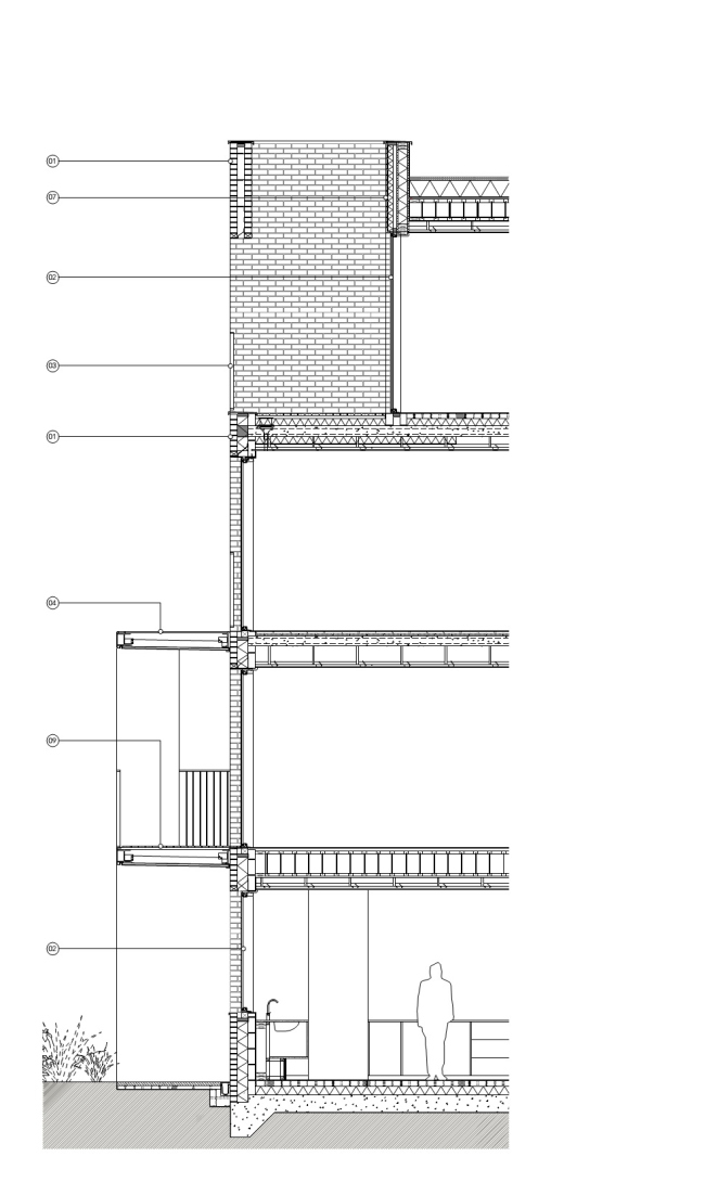
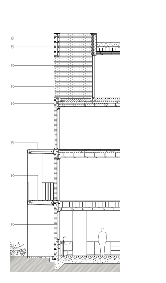
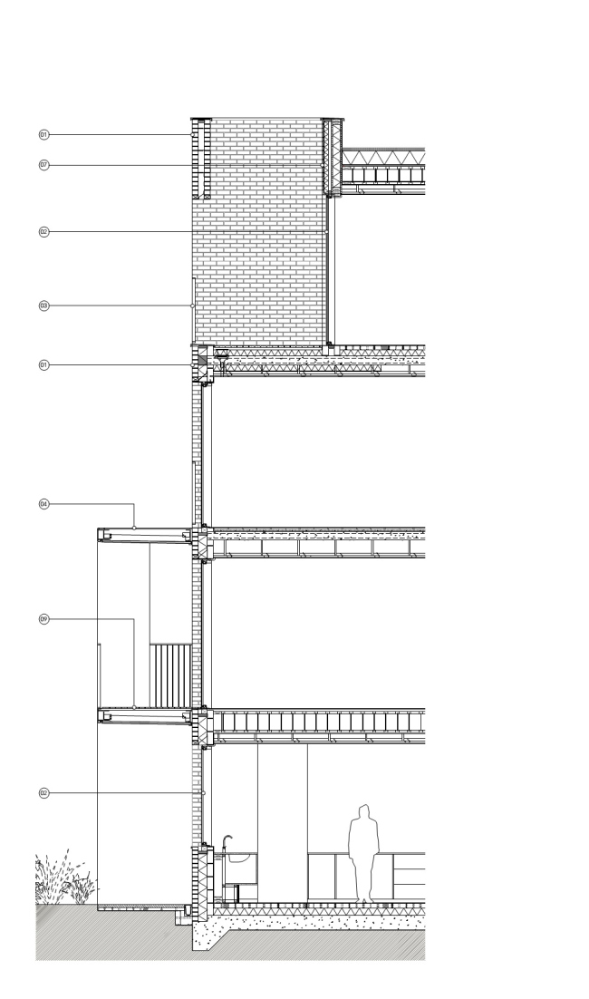
Жилой комплекс Ely Court © Alison Brooks Architects
Жилой комплекс Ely Court © Alison Brooks Architects
Жилой комплекс Ely Court © Alison Brooks Architects
Жилой комплекс Ely Court © Alison Brooks Architects
Южный Килберн в XIX столетии
Южный Килберн в XIX столетии
Южный Килберн в XX столетии
Южный Килберн в XX столетии
Жилой комплекс Ely Court © Alison Brooks Architects
Жилой комплекс Ely Court © Alison Brooks Architects
Жилой комплекс Ely Court © Alison Brooks Architects
Жилой комплекс Ely Court © Alison Brooks Architects
Жилой комплекс Ely Court © Alison Brooks Architects
Жилой комплекс Ely Court © Alison Brooks Architects
Жилой комплекс Ely Court © Alison Brooks Architects
Жилой комплекс Ely Court © Alison Brooks Architects
Жилой комплекс Ely Court © Alison Brooks Architects
Жилой комплекс Ely Court © Alison Brooks Architects
Жилой комплекс Ely Court © Alison Brooks Architects
Жилой комплекс Ely Court © Alison Brooks Architects
Жилой комплекс Ely Court © Alison Brooks Architects
Жилой комплекс Ely Court © Alison Brooks Architects
Жилой комплекс Ely Court © Alison Brooks Architects
Жилой комплекс Ely Court © Alison Brooks Architects
Жилой комплекс Ely Court © Alison Brooks Architects
Жилой комплекс Ely Court © Alison Brooks Architects
Жилой комплекс Ely Court © Alison Brooks Architects
Жилой комплекс Ely Court © Alison Brooks Architects
Жилой комплекс Ely Court © Alison Brooks Architects
Жилой комплекс Ely Court © Alison Brooks Architects
Жилой комплекс Ely Court © Alison Brooks Architects
Жилой комплекс Ely Court © Alison Brooks Architects
Жилой комплекс Ely Court © Alison Brooks Architects
Жилой комплекс Ely Court © Alison Brooks Architects
Жилой комплекс Ely Court © Alison Brooks Architects
Жилой комплекс Ely Court © Alison Brooks Architects
Жилой комплекс Ely Court © Alison Brooks Architects
Жилой комплекс Ely Court © Alison Brooks Architects
Жилой комплекс Ely Court © Alison Brooks Architects
Жилой комплекс Ely Court © Alison Brooks Architects
Жилой комплекс Ely Court © Alison Brooks Architects
Жилой комплекс Ely Court © Alison Brooks Architects
Жилой комплекс Ely Court © Alison Brooks Architects
Жилой комплекс Ely Court © Alison Brooks Architects