Размещено на портале Архи.ру (www.archi.ru)

01.09.2016

Дети клевера

Анна Старостина
Объект:
Детский сад Clover House
Адрес:
Япония, None, Окадзаки.
Мастерская:
MAD

Пекинское бюро MAD завершило свой первый проект в Японии: типовой частный дом архитекторы превратили в удивительный детский сад.

Детский сад Clover House © Rasmus Daniel Taun
Детский сад Clover House © Rasmus Daniel Taun

Строительство в небольшом городе Окадзаки «Дома клевера» (Clover House), начатое еще в мае 2015 года, заняло не полгода, как планировалось, а без малого полтора. Тем не менее, все заявленные в проекте решения удалось реализовать в полной мере.
Детский сад Clover House © Fuji Koji
Детский сад Clover House © Fuji Koji

Типовой сборный дом брата и сестры Нара не мог вместить всех воспитанников их частного детского сада и не отвечал современным образовательным задачам. Сохранив деревянные конструкции, что, кстати, привело к существенной экономии, Ма Яньсун и его команда «накрыли» их своеобразным колпаком, отделанным белоснежной битумной черепицей – очевидный символ начатой с чистого листа жизни.
Детский сад Clover House © Fuji Koji
Детский сад Clover House © Fuji Koji

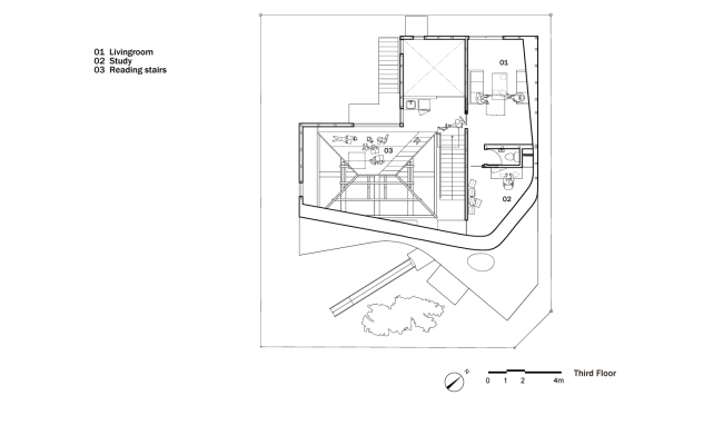
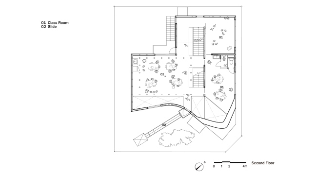
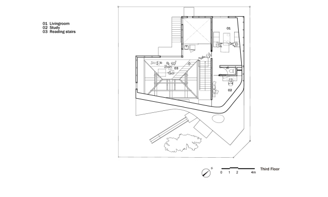
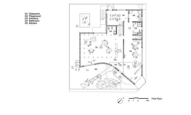
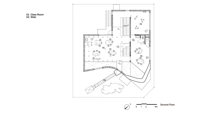
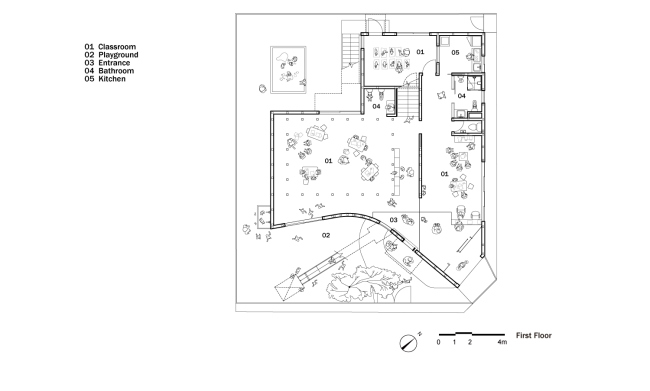
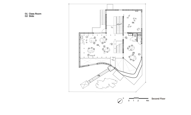
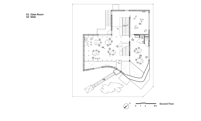
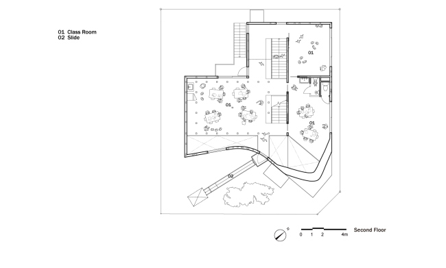
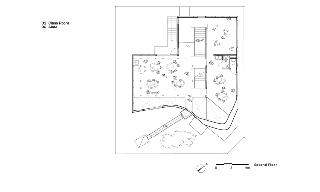
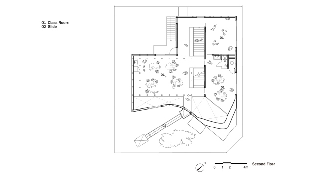
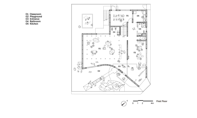
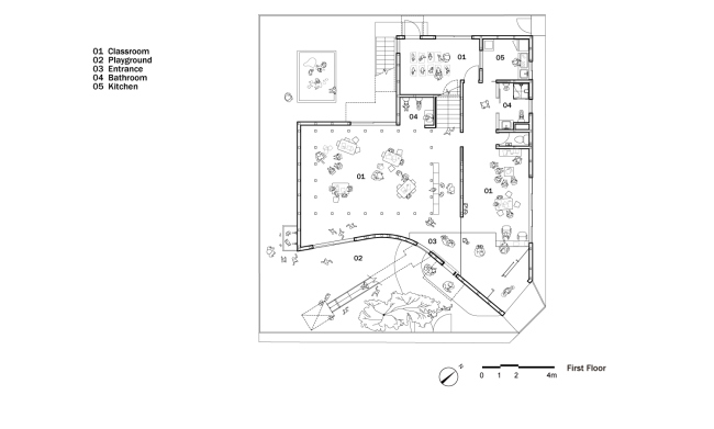
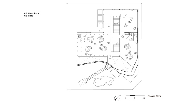
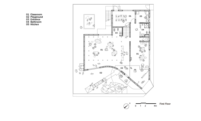
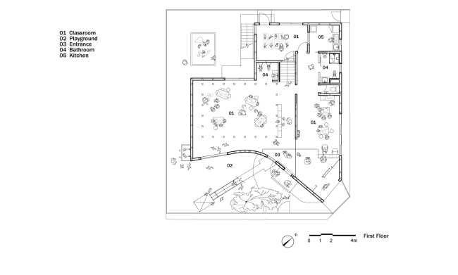
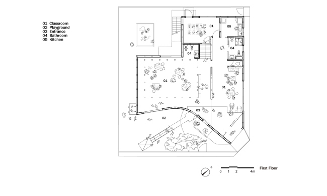
Своей формой эта новая «одежда» отдает все же дань соседним двускатным кровлям, но интригующая прорезь-вход в углу и разноформатные нерегулярные прорези-окна превращают постройку в нечто загадочное и фантастическое и разнообразят ее восприятие как снаружи, так и изнутри. В «старом» ядре расположена гибкая обучающая зона, а между ней и внешней оболочкой образованы динамичные пространства, постоянно меняющиеся благодаря капризам светотеневой игры. Наконец, перед домом организована открытая игровая площадка, попасть на которую можно даже со второго этажа, скатившись по специальному желобу.
Детский сад Clover House © Fuji Koji
Детский сад Clover House © Fuji Koji

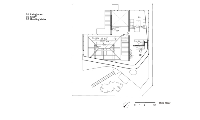
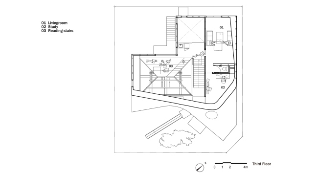
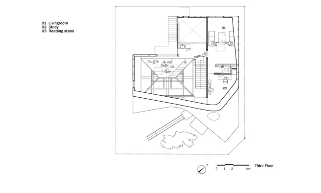
Ставший трехэтажным и увеличивший свою площадь с исходных 105 до почти 300 кв. м дом полностью лишен цветовых акцентов. Тем не менее он получился очень ярким. Но от такой среды нельзя «устать»: она разнообразна, сложна, бесконечно интересна и ребенку, и взрослому, но спокойна, гармонична и совсем не утомительна. Одновременно, интерьер достаточно нейтрален и универсален, чтобы ребенок мог легко вообразить, будто находится не просто дома, а именно в своем собственном доме.
Детский сад Clover House © Fuji Koji
Детский сад Clover House © Fuji Koji
Детский сад Clover House © Fuji Koji
Детский сад Clover House © Fuji Koji
Детский сад Clover House © Fuji Koji
Детский сад Clover House © Fuji Koji
Детский сад Clover House © Fuji Koji
Детский сад Clover House © Fuji Koji
Детский сад Clover House © Fuji Koji
Детский сад Clover House © Fuji Koji
Детский сад Clover House © Fuji Koji
Детский сад Clover House © Fuji Koji
Детский сад Clover House © Fuji Koji
Детский сад Clover House © Fuji Koji
Детский сад Clover House © Fuji Koji
Детский сад Clover House © Fuji Koji
Детский сад Clover House © Fuji Koji
Детский сад Clover House © Fuji Koji
Детский сад Clover House © Fuji Koji
Детский сад Clover House © Fuji Koji
Детский сад Clover House © Fuji Koji
Детский сад Clover House © Fuji Koji
Детский сад Clover House © MAD Architects
Детский сад Clover House © MAD Architects
Детский сад Clover House © MAD Architects
Детский сад Clover House © MAD Architects
Детский сад Clover House © MAD Architects
Детский сад Clover House © MAD Architects
Детский сад Clover House © MAD Architects
Детский сад Clover House © MAD Architects
Детский сад Clover House © MAD Architects
Детский сад Clover House © MAD Architects
Детский сад Clover House © MAD Architects
Детский сад Clover House © MAD Architects
Детский сад Clover House © MAD Architects
Детский сад Clover House © MAD Architects
Детский сад Clover House © MAD Architects
Детский сад Clover House © MAD Architects
Детский сад Clover House © Dan Honda
Детский сад Clover House © Dan Honda
Детский сад Clover House © Dan Honda
Детский сад Clover House © Dan Honda