Размещено на портале Архи.ру (www.archi.ru)

29.08.2016

Легкое прикосновение

Нина Фролова
Объект:
Библиотека Беязыт – реставрация
Адрес:
Турция, None, Стамбул.
Мастерская:
Tabanlıoğlu Architects

Бюро Tabanlıoğlu Architects отреставрировало и модернизировало здание библиотеки Беязыт в историческом центре Стамбула.

Библиотека Беязыт – реставрация © Emre Dörter
Библиотека Беязыт – реставрация © Emre Dörter

Библиотека Беязыт была основана в 1884 как первая государственная библиотека Турции в благотворительном комплексе (куллие) мечети Баязида II близ Гранд-базара и Стамбульского университета. Она до сих пор располагается там же, в помещении благотворительной кухни и караван-сарая, которые, как и мечеть, были завершены в 1506 году. Совсем рядом расположен исторический букинистический рынок, а у фасада растет огромный платан, под которым еще с Османских времен устроена кофейня под открытым небом.
 
Библиотека Беязыт – реставрация © Emre Dörter
Библиотека Беязыт – реставрация © Emre Dörter

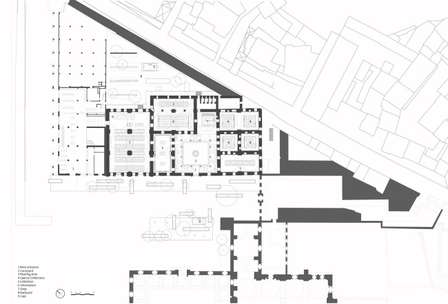
Задачей архитекторов было отреставрировать и модернизировать историческое здание, сделав его более удобным для читателей и дав возможность библиотеке экспонировать свои сокровища: среди ее миллиона томов – порядка 11 тысяч манускриптов и 40 000 редких печатных книг. Также нельзя было забывать о статусе учреждения: Беязыт – одна из шести турецких библиотек, куда с 1934 года поступает по экземпляру каждой книги и выпуска периодического издания, напечатанных в стране. При этом уникальность помещений XVI века требовала очень тактичного, «легкого» подхода.
 
Библиотека Беязыт – реставрация © Emre Dörter
Библиотека Беязыт – реставрация © Emre Dörter

Вместо перекрытий из бетона и стекла кровлей для внутреннего двора служит теперь прозрачная мембрана, на первом этаже размещены черные стеклянные блоки с уникальными рукописными книгами, подчеркивающие ценность хранящегося внутри своим контрастом со светлой кладкой стен. Белая мебель вторит белым с голубой росписью куполам, а освещение по дизайну студии Dinnebier частью подчеркивает геометрию пространства, частью – с помощью светильников у подножия стен – придает ему дополнительную глубину.
 
Библиотека Беязыт – реставрация © Emre Dörter
Библиотека Беязыт – реставрация © Emre Dörter

Продумана заново циркуляция посетителей, главный вход теперь устроен в заново перекрытом дворе. Стали доступны для осмотра остатки фундамента византийской церкви, когда-то находившейся на месте библиотеки.
 
Библиотека Беязыт – реставрация © Emre Dörter
Библиотека Беязыт – реставрация © Emre Dörter
Библиотека Беязыт – реставрация © Emre Dörter
Библиотека Беязыт – реставрация © Emre Dörter
Библиотека Беязыт – реставрация © Tabanlıoğlu Architects
Библиотека Беязыт – реставрация © Tabanlıoğlu Architects
Библиотека Беязыт – реставрация © Tabanlıoğlu Architects
Библиотека Беязыт – реставрация © Tabanlıoğlu Architects
Библиотека Беязыт – реставрация © Tabanlıoğlu Architects
Библиотека Беязыт – реставрация © Tabanlıoğlu Architects
Библиотека Беязыт – реставрация © Tabanlıoğlu Architects
Библиотека Беязыт – реставрация © Tabanlıoğlu Architects
Библиотека Беязыт – реставрация © Tabanlıoğlu Architects
Библиотека Беязыт – реставрация © Tabanlıoğlu Architects