Размещено на портале Архи.ру (www.archi.ru)

08.09.2016

Архитектура для молодёжи

Ирина Бембель
Объект:
Молодёжный досуговый центр
Адрес:
Россия, Санкт-Петербург. Богатырский проспект, д. 44
Архитектор:
Анатолий Столярчук
Мастерская:
АМ А.А. Столярчука
Авторский коллектив:
Руководитель авторского коллектива: Столярчук А.А.
Главный архитектор проекта: Рубина Е.Е.
Архитектор: Баженова Т.В.
Конструкторы: Иоффе В.М., Ярошевский Д.Ю.
 

Новый молодёжно-досуговый центр, построенный по проекту Анатолия Столярчука, откроется в сентябре в Петербурге.

Молодёжный досуговый центр. Проект, 2012 © Архитектурная мастерская А.А. Столярчука
Молодёжный досуговый центр. Проект, 2012 © Архитектурная мастерская А.А. Столярчука

Многофункциональные центры досуга известны, строго говоря, с античности: к примеру термы, сочетавшие в себе функции бани, фитнес-центра, библиотеки, клуба, были средоточиями общественной жизни Греции и Рима. Второе рождение идея досуговых центров получила в конце XIX века, на общей демократической волне, когда в России и в ряде других европейских стран практически синхронно стали создаваться Народные дома, просветительские клубы и другие подобные учреждения. После революции они перекочевали в новую систему Советской России, но с не меньшим упорством продолжали существовать и в капиталистических странах. В СССР собственно молодёжные досуговые центры стали строиться начиная с 1950-х –1960-х годов. Сегодня резоны строить МДЦ остаются всё теми же: отвлечь подростков от вредных влияний и направить их энергию «в мирное русло».
Молодёжный досуговый центр. Постройка, 2014 © Архитектурная мастерская А.А. Столярчука
Молодёжный досуговый центр. Постройка, 2014 © Архитектурная мастерская А.А. Столярчука

Один из таких центров, построенный в рамках государственно-частного партнёрства, готовится к открытию в Приморском районе Санкт-Петербурга. Место, где расположился новый МДЦ, представляет собой типичный вариант спальной застройки, где всё меряется масштабом автострады и скоростью несущегося автомобиля. На фоне дробных многоэтажных фасадов небольшое компактное здание выделяется лаконичными авангардными формами и красными вставками. В перспективе Богатырского проспекта и Яхтенной улицы оно воспринимается как строгая модернистская «коробочка», отсылающая к корбюзианским первообразам.
Молодёжный досуговый центр. Постройка, 2014 © Архитектурная мастерская А.А. Столярчука
Молодёжный досуговый центр. Постройка, 2014 © Архитектурная мастерская А.А. Столярчука

В то же время фасад, выходящий на аморфное пространство между МДЦ и универсамом О.Кей, решён вполне репрезентативно, по правилам классической трёхчастной композиции, хотя и в современном ключе. Основная фасадная плоскость обрамлена двумя ризалитами – лестничными клетками. По центру расположен современный металлический навес над уличной сценой. Благодаря открытой сцене с приглашающим «портиком», здание включается в общественное пространство: здесь можно послушать летние концерты, покататься на роликах и скейтах, просто пообщаться.
Молодёжный досуговый центр. Сцена. Постройка, 2014 © Архитектурная мастерская А.А. Столярчука
Молодёжный досуговый центр. Сцена. Постройка, 2014 © Архитектурная мастерская А.А. Столярчука

Боковые фасады асимметричны; вместо устойчивой центрической композиции здесь присутствует динамика с поступательным движением в направлении повышенных ризалитов. Сдвинутый от центра главный вход расположен со стороны Яхтенной улицы и отмечен решительным выступом оригинального красного портала. Подобно навесу над уличной сценой, его обнажённые металлические конструкции выполнены в авангардной стилистике. Важный пластический акцент – открытые галереи с простыми цилиндрическими колоннами на уровне земли.
Молодёжный досуговый центр. Постройка, 2014 © Архитектурная мастерская А.А. Столярчука
Молодёжный досуговый центр. Постройка, 2014 © Архитектурная мастерская А.А. Столярчука
Молодёжный досуговый центр. Козырек над главным входом. Постройка, 2014 © Архитектурная мастерская А.А. Столярчука
Молодёжный досуговый центр. Козырек над главным входом. Постройка, 2014 © Архитектурная мастерская А.А. Столярчука
Молодёжный досуговый центр. Козырек над главным входом. Постройка, 2014 © Архитектурная мастерская А.А. Столярчука
Молодёжный досуговый центр. Козырек над главным входом. Постройка, 2014 © Архитектурная мастерская А.А. Столярчука

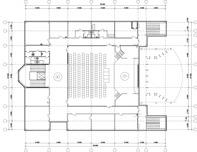
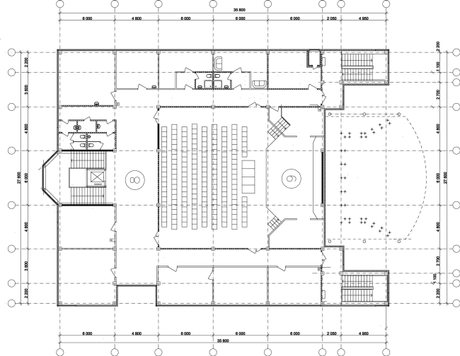
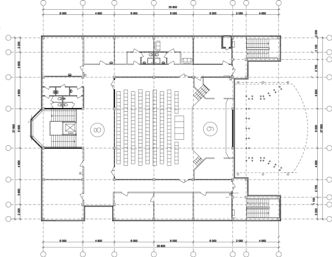
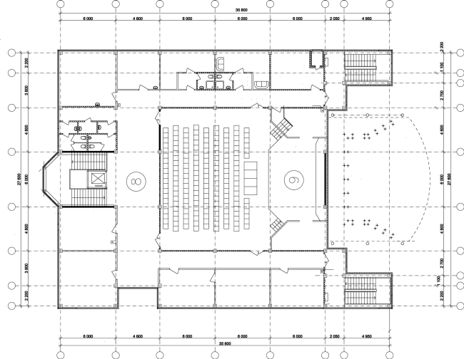
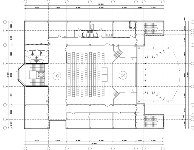
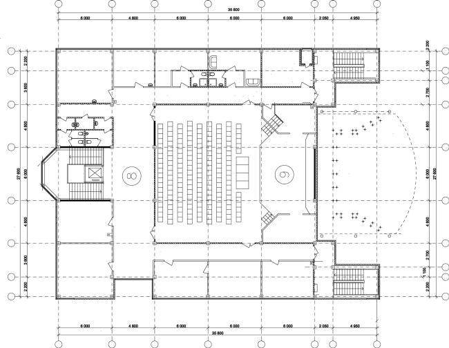
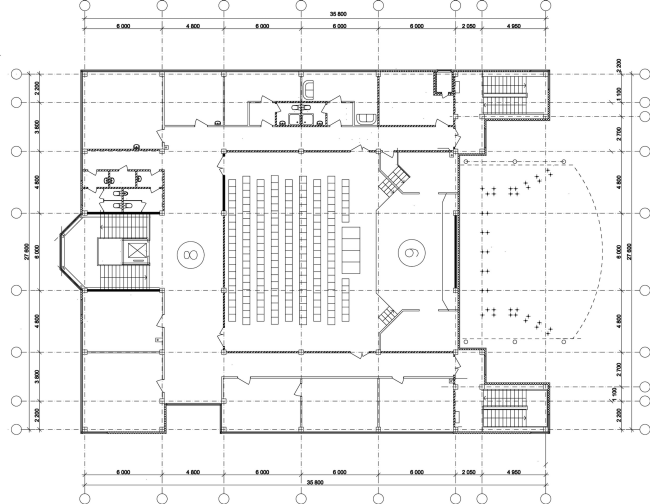
Первый этаж вмещает репетиционный зал, комнаты для различных кружков и помещения для административно-хозяйственной деятельности, которые группируются вокруг центральной входной зоны.
Молодёжный досуговый центр. План 1 этажа © Архитектурная мастерская А.А. Столярчука
Молодёжный досуговый центр. План 1 этажа © Архитектурная мастерская А.А. Столярчука

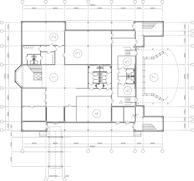
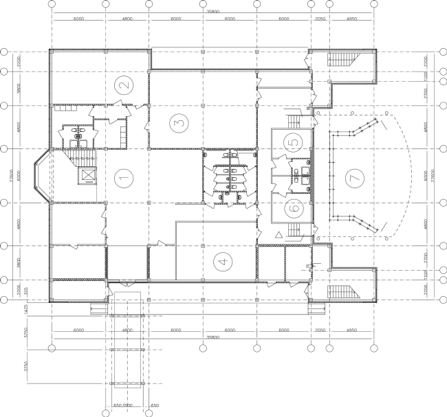
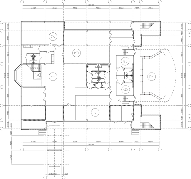
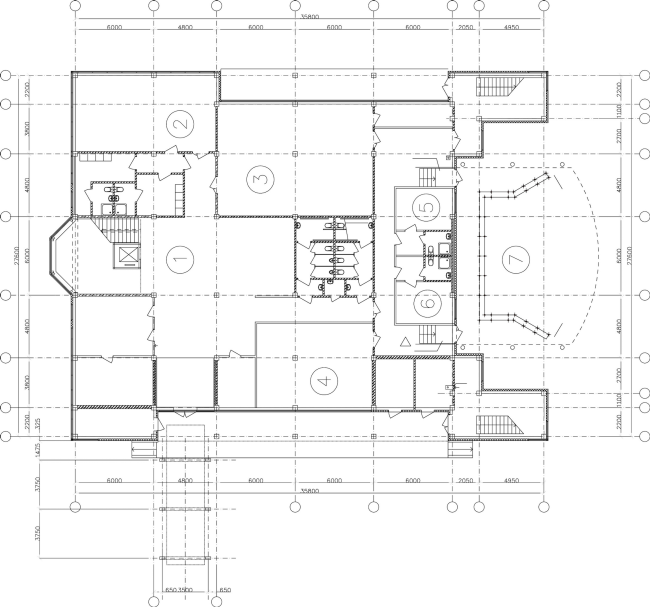
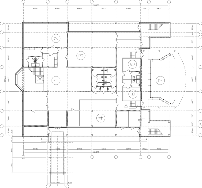
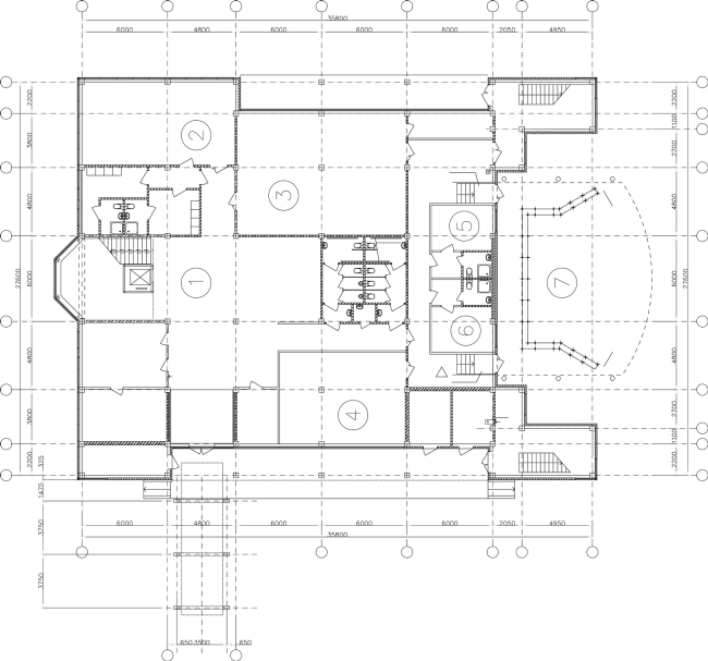
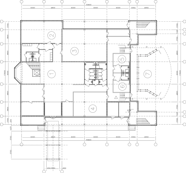
Ядром композиции стал зрительный зал на двести человек на втором этаже. Его красная коробка возвышается над основным серым телом здания, рисуя характерный модернистский силуэт. Перед залом находится выставочный холл; по периметру расположены тренажёрный зал, компьютерный класс и другие помещения.
Молодёжный досуговый центр. План 2 этажа © Архитектурная мастерская А.А. Столярчука
Молодёжный досуговый центр. План 2 этажа © Архитектурная мастерская А.А. Столярчука

«Работать над этим объектом было нелегко, учитывая крайне экономный бюджет, – говорит руководитель авторского коллектива Анатолий Столярчук. – К сожалению, нам не дали сделать интерьеры; отделка помещений затянулась на два года. Однако мы ощущали моральное удовлетворение, ведь цель работы благородна – дать молодёжи достойную площадку, где подростки могли бы реализоваться, выбрать себе занятие по душе, а не болтаться по подворотням. Позже архитектурная кафедра в институте им. И.Е. Репина утвердила эту тему в качестве курсового задания для студентов четвёртого курса. Ребята придумали настолько интересные варианты, что можно было лишь в очередной раз пожалеть о крайне скудном финансировании таких важных объектов и по-хорошему позавидовать свободной фантазии наших учеников. С другой стороны, узкие рамки всегда стимулируют творческую мысль и часто помогают прийти к оптимальному варианту».

Параллельно с МДЦ на Богатырском проспекте мастерская Анатолия Столярчука работала над аналогичным объектом в Красногвардейском районе (улица Передовиков, д.16, к. 2) со схожим объёмным решением, который также ждёт открытия.
Молодёжный досуговый центр в Красногвардейском районе. Проект, 2012 © Архитектурная мастерская А.А. Столярчука
Молодёжный досуговый центр в Красногвардейском районе. Проект, 2012 © Архитектурная мастерская А.А. Столярчука
Молодёжный досуговый центр в Красногвардейском районе. Проект, 2012 © Архитектурная мастерская А.А. Столярчука
Молодёжный досуговый центр в Красногвардейском районе. Проект, 2012 © Архитектурная мастерская А.А. Столярчука

Учитывая важность темы, логичным видится устройство открытых конкурсов на решение МДЦ (индивидуальное или повторного использования) как часть той же самой задачи вовлечения талантливой молодёжи в полноценную творческую жизнь. Возможно, это могли бы быть конкурсы не только на объёмное решение, но и на комплексную концепцию создания и размещения подобных центров, с социологическими опросами и статистическими изысканиями. Вовсе небесспорной представляется повторяющаяся привязка участка, выделяемого городом под МДЦ, к гигантскому гипермаркету, обедняющая и опошляющая идею городского общественного центра. Аморфный асфальтированный пустырь, частично занятый автостоянкой – это ещё не площадь. Взятая шире, эта тема приводит к необходимости осмысления локального центра новостроек как такового.

Но это в теории. Пока же, облицованные дешёвыми панелями и окружённые асфальтом, молодёжные клубы готовы приютить наших детей с посильным архитектурным гостеприимством...
Молодёжный досуговый центр. Постройка, 2014 © Архитектурная мастерская А.А. Столярчука
Молодёжный досуговый центр. Постройка, 2014 © Архитектурная мастерская А.А. Столярчука
Молодёжный досуговый центр. Сцена. Постройка, 2014 © Архитектурная мастерская А.А. Столярчука
Молодёжный досуговый центр. Сцена. Постройка, 2014 © Архитектурная мастерская А.А. Столярчука
Молодёжный досуговый центр. Козырек над главным входом. Постройка, 2014 © Архитектурная мастерская А.А. Столярчука
Молодёжный досуговый центр. Козырек над главным входом. Постройка, 2014 © Архитектурная мастерская А.А. Столярчука
Молодёжный досуговый центр. Фонарь со стороны Богатырского проспекта. Постройка, 2014 © Архитектурная мастерская А.А. Столярчука
Молодёжный досуговый центр. Фонарь со стороны Богатырского проспекта. Постройка, 2014 © Архитектурная мастерская А.А. Столярчука
Молодёжный досуговый центр. Разрез © Архитектурная мастерская А.А. Столярчука
Молодёжный досуговый центр. Разрез © Архитектурная мастерская А.А. Столярчука
Молодёжный досуговый центр. Ситуационный план © Архитектурная мастерская А.А. Столярчука
Молодёжный досуговый центр. Ситуационный план © Архитектурная мастерская А.А. Столярчука