Размещено на портале Архи.ру (www.archi.ru)

23.08.2016

Выйти из прошлого

Анна Старостина
Объект:
Проект русского культурного центра в Рейкьявике (Александр Солдатов)
Адрес:
Исландия, Рейкьявик.
Проект русского культурного центра в Рейкьявике (Даниил Макаров)
Адрес:
Исландия, Рейкьявик.
Проект русского культурного центра в Рейкьявике. Предэскиз
Адрес:
Исландия, Рейкьявик.
Мастерская:
ТО «Квадратура Круга»
Авторский коллектив:
Архитектор: Даниил Макаров, ТО «Квадратура круга»

Разговор с Даниилом Макаровым, соавтором сразу нескольких вариантов проекта церкви в Рейкьявике. К дискуссии о современном и традиционном в храмовой архитектуре: архитектор призывает к обсуждению.

Проект русского культурного центра в Рейкьявике. 2 вариант © Даниил Макаров. ТО «Квадратура Круга»
Проект русского культурного центра в Рейкьявике. 2 вариант © Даниил Макаров. ТО «Квадратура Круга»
Проект русского культурного центра в Рейкьявике. Вариант 2 © Александр Солдатов. ЦХИАР
Проект русского культурного центра в Рейкьявике. Вариант 2 © Александр Солдатов. ЦХИАР

Творческое объединение «Квадратура круга», созданное в 2011 году в Москве, ставит своей целью поиск идеального для нашего времени образа православного храма. Целая серия проектов, созданных архитекторами этой группы для прихода русской православной церкви в Рейкьявике, наглядно демонстрирует ареал этих поисков. Об истории работы, ее специфике, о традиционном и новом в архитектуре православных храмов Archi.ru рассказал один из основателей объединения, архитектор Даниил Макаров.

Даниил Макаров, архитектор ТО «Квадратура круга»

Archi.ru:
– Как такой необычный проект пришел к вам?

Даниил Макаров:
– Я давно сотрудничаю с Центром храмового искусства Андрея Рублева (ЦХИАР). Его возглавляет замечательный иконописец Александр Николаевич Солдатов, один из ведущих в сегодняшней России. В последние годы он также занимается и проектированием храмов. Собственно, изначально я помогал ему с архитектурной частью, делал визуализации его проекта, а затем рискнул предложить свое видение: каким может быть православный храм в Рейкьявике.
Проект русского культурного центра в Рейкьявике. Ситуационный план © Даниил Макаров. ТО «Квадратура Круга»
Проект русского культурного центра в Рейкьявике. Ситуационный план © Даниил Макаров. ТО «Квадратура Круга»

– Почему возникло так много очень разных вариантов?

– Процесс оказался долгим и сложным. Так всегда бывает, когда желания очень разных людей сталкиваются и, как следствие, постоянно что-то меняется. Самый первый вариант, созданный Александром Солдатовым, был очень скромный, однокупольный (картинок не сохранилось), но его отвергла община и священник: по их мнению решение не соответствовало амбициям первого православного храма в Исландии. Община в Рейкьявике довольно обширная, человек девятьсот, а своего храма у них нет, только небольшая молельная комната, которая вмещает не больше 50-и верующих. На большие праздники арендуется католический собор. Люди полны амбиций построить первый настоящий храм, видят его как что-то колоссальное и грандиозное, но возможностей не так много. Началось все с эскиза маленького, одноглавого храма, выполненного в стиле владимирского зодчества, с небольшим включением северных мотивов. Затем, в ответ на пожелания общины, Александр Солдатов предложил более представительный вариант каменного храма, также в стиле владимирского зодчества, но уже с тремя главами. В этот момент возникла идея поменять участок и сделать не только храм, но и вместительный культурный комплекс. Меня эта история очень заинтересовала и я предложил первый собственный проект: с каменной кладкой, напоминающей стены Соловецкого монастыря, но из местного натурального камня с градацией тона и активным использованием красного цвета, не только авангардного и протестного, но и характерного для барочных церквей. Всё же окончательно был утверждён первоначальный участок, на границе порта и старого города, для него я предложил ещё три варианта.
Проект русского культурного центра в Рейкьявике. Вариант 1 © Александр Солдатов. ЦХИАР
Проект русского культурного центра в Рейкьявике. Вариант 1 © Александр Солдатов. ЦХИАР

Проект русского культурного центра в Рейкьявике. Вариант 1 © Александр Солдатов. ЦХИАР
Проект русского культурного центра в Рейкьявике. Вариант 1 © Александр Солдатов. ЦХИАР

Проект русского культурного центра в Рейкьявике. Вариант 1 © Александр Солдатов. ЦХИАР
Проект русского культурного центра в Рейкьявике. Вариант 1 © Александр Солдатов. ЦХИАР

Проект русского культурного центра в Рейкьявике. Вариант 1. Эскиз храма. Общий вид © Александр Солдатов. ЦХИАР
Проект русского культурного центра в Рейкьявике. Вариант 1. Эскиз храма. Общий вид © Александр Солдатов. ЦХИАР

Проект русского культурного центра в Рейкьявике. Вариант 1.  Вид с птичьего полета © Александр Солдатов. ЦХИАР
Проект русского культурного центра в Рейкьявике. Вариант 1. Вид с птичьего полета © Александр Солдатов. ЦХИАР

Проект русского культурного центра в Рейкьявике. Вариант 1. Развертка фасадов © Александр Солдатов. ЦХИАР
Проект русского культурного центра в Рейкьявике. Вариант 1. Развертка фасадов © Александр Солдатов. ЦХИАР

Проект русского культурного центра в Рейкьявике. Предэскиз © Даниил Макаров. ТО «Квадратура Круга»
Проект русского культурного центра в Рейкьявике. Предэскиз © Даниил Макаров. ТО «Квадратура Круга»

Проект русского культурного центра в Рейкьявике. Предэскиз © Даниил Макаров. ТО «Квадратура Круга»
Проект русского культурного центра в Рейкьявике. Предэскиз © Даниил Макаров. ТО «Квадратура Круга»

Проект русского культурного центра в Рейкьявике. Предэскиз © Даниил Макаров. ТО «Квадратура Круга»
Проект русского культурного центра в Рейкьявике. Предэскиз © Даниил Макаров. ТО «Квадратура Круга»

Проект русского культурного центра в Рейкьявике. Предэскиз. Северный фасад © Даниил Макаров. ТО «Квадратура Круга»
Проект русского культурного центра в Рейкьявике. Предэскиз. Северный фасад © Даниил Макаров. ТО «Квадратура Круга»

Проект русского культурного центра в Рейкьявике. Предэскиз. Западный фасад © Даниил Макаров. ТО «Квадратура Круга»
Проект русского культурного центра в Рейкьявике. Предэскиз. Западный фасад © Даниил Макаров. ТО «Квадратура Круга»

Проект русского культурного центра в Рейкьявике. Предэскиз. Развертка фасадов комплекса © Даниил Макаров. ТО «Квадратура Круга»
Проект русского культурного центра в Рейкьявике. Предэскиз. Развертка фасадов комплекса © Даниил Макаров. ТО «Квадратура Круга»

Проект русского культурного центра в Рейкьявике. Предэскиз. Храм. Общий вид без смежных помещений © Даниил Макаров. ТО «Квадратура Круга»
Проект русского культурного центра в Рейкьявике. Предэскиз. Храм. Общий вид без смежных помещений © Даниил Макаров. ТО «Квадратура Круга»

Проект русского культурного центра в Рейкьявике. Предэскиз. Храм © Даниил Макаров. ТО «Квадратура Круга»
Проект русского культурного центра в Рейкьявике. Предэскиз. Храм © Даниил Макаров. ТО «Квадратура Круга»

Проект русского культурного центра в Рейкьявике. Предэскиз © Даниил Макаров. ТО «Квадратура Круга»
Проект русского культурного центра в Рейкьявике. Предэскиз © Даниил Макаров. ТО «Квадратура Круга»

Проект русского культурного центра в Рейкьявике. Предэскиз. Ситуационный план © Даниил Макаров. ТО «Квадратура Круга»
Проект русского культурного центра в Рейкьявике. Предэскиз. Ситуационный план © Даниил Макаров. ТО «Квадратура Круга»


– В своих проектах вы обращаетесь к постройкам разных временен и разных территорий России с чем связан такой разброс?

– Мы, вместе с Филиппом Якубчуком и Иваном Земляковым, не случайно назвали «Квадратуру Круга» творческим объединением – она и мыслилась как история о поиске. И, делая большой объем работы, мы решаем ещё и собственные задачи по поиску какого-то идеального образа, полностью отвечающего контексту. Для нового-старого места я сначала предложил ассиметричный вариант, соединяющий русские традиции со скандинавской простотой и практичностью. Но после обсуждения первых эскизных проектов стало очевидно, что необходимо совсем недорогое решение. Современные варианты не рассматривались, и я попробовал найти исторические аналоги. Простые и лаконичные зимние церкви Суздаля с их двускатными кровлями показались удачным прототипом: можно было типизировать элементы, максимально сократить сложность постройки и уменьшить строительный объем. Так родился третий вариант – белоснежный храм с красным куполом. Но заказчику он опять же показался недостаточно торжественным, даже «сельским». Я усложнил решение, добавив горку кокошников, отсылающих к северному зодчеству, например к Преображенской церкви Кирилло-Белозерского монастыря.
Проект русского культурного центра в Рейкьявике. 3 вариант © Даниил Макаров. ТО «Квадратура Круга»
Проект русского культурного центра в Рейкьявике. 3 вариант © Даниил Макаров. ТО «Квадратура Круга»

Проект русского культурного центра в Рейкьявике. 3 вариант © Даниил Макаров. ТО «Квадратура Круга»
Проект русского культурного центра в Рейкьявике. 3 вариант © Даниил Макаров. ТО «Квадратура Круга»

Проект русского культурного центра в Рейкьявике. 3 вариант © Даниил Макаров. ТО «Квадратура Круга»
Проект русского культурного центра в Рейкьявике. 3 вариант © Даниил Макаров. ТО «Квадратура Круга»

Проект русского культурного центра в Рейкьявике. 4 вариант © Даниил Макаров. ТО «Квадратура Круга»
Проект русского культурного центра в Рейкьявике. 4 вариант © Даниил Макаров. ТО «Квадратура Круга»

Проект русского культурного центра в Рейкьявике. 4 вариант © Даниил Макаров. ТО «Квадратура Круга»
Проект русского культурного центра в Рейкьявике. 4 вариант © Даниил Макаров. ТО «Квадратура Круга»

Проект русского культурного центра в Рейкьявике. 4 вариант © Даниил Макаров. ТО «Квадратура Круга»
Проект русского культурного центра в Рейкьявике. 4 вариант © Даниил Макаров. ТО «Квадратура Круга»

– Какой из созданных образов вы считаете наиболее интересным и почему?

– Трудно сказать. Лучше всего проработан второй из моих вариантов. Пожалуй, он наиболее полно учитывает все пожелания заказчика и многочисленные строительные ограничения. При этом, как мне и коллегам кажется, в нём удалось органично отразить какие-то тенденции современной архитектуры, насколько это возможно, обозначить связи и с лаконичной скандинавской архитектурой, и с северной русской архитектурой.

– Какова сегодняшняя ситуация? Выбран ли проект, начато ли строительство?

– В данный момент поисков уже не ведётся. Исландские архитекторы готовят почву для более детального проектирования, в частности делается геология. А из всех созданных проектов обсуждаются два: последний проект Александра Солдатова, ориентированный на псковское зодчество – и как раз этот, второй мой проект. Насколько я знаю, священник и местная община склоняются всё же к более традиционному варианту, но окончательное решение ещё не принято.
Проект русского культурного центра в Рейкьявике. Вариант 2 © Александр Солдатов. ЦХИАР
Проект русского культурного центра в Рейкьявике. Вариант 2 © Александр Солдатов. ЦХИАР

Проект русского культурного центра в Рейкьявике. Вариант 2 © Александр Солдатов. ЦХИАР
Проект русского культурного центра в Рейкьявике. Вариант 2 © Александр Солдатов. ЦХИАР

Проект русского культурного центра в Рейкьявике. Вариант 2 © Александр Солдатов. ЦХИАР
Проект русского культурного центра в Рейкьявике. Вариант 2 © Александр Солдатов. ЦХИАР

Проект русского культурного центра в Рейкьявике. Вариант 2 © Александр Солдатов. ЦХИАР
Проект русского культурного центра в Рейкьявике. Вариант 2 © Александр Солдатов. ЦХИАР

Проект русского культурного центра в Рейкьявике. Вариант 2. Фасады храма © Александр Солдатов. ЦХИАР
Проект русского культурного центра в Рейкьявике. Вариант 2. Фасады храма © Александр Солдатов. ЦХИАР

Проект русского культурного центра в Рейкьявике. Вариант 2 © Александр Солдатов. ЦХИАР
Проект русского культурного центра в Рейкьявике. Вариант 2 © Александр Солдатов. ЦХИАР

Проект русского культурного центра в Рейкьявике. Вариант 2. Развертка фасадов © Александр Солдатов. ЦХИАР
Проект русского культурного центра в Рейкьявике. Вариант 2. Развертка фасадов © Александр Солдатов. ЦХИАР

Проект русского культурного центра в Рейкьявике. Вариант 2. Вид с птичьего полета © Александр Солдатов. ЦХИАР
Проект русского культурного центра в Рейкьявике. Вариант 2. Вид с птичьего полета © Александр Солдатов. ЦХИАР

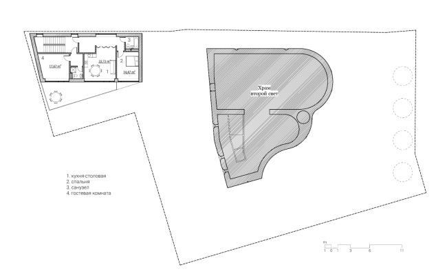
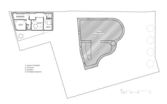
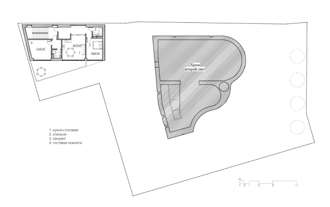
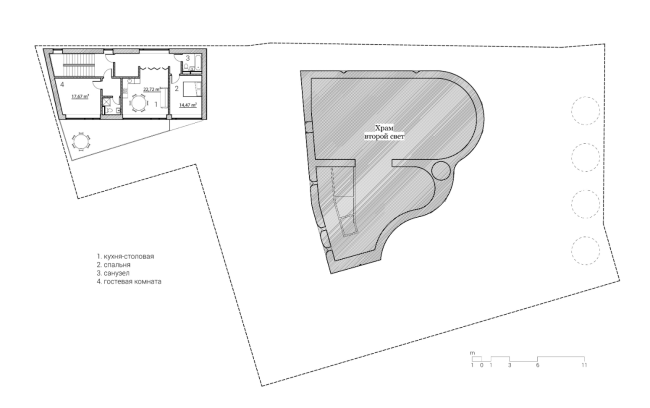
Проект русского культурного центра в Рейкьявике. Вариант 2. Планы © Александр Солдатов. ЦХИАР
Проект русского культурного центра в Рейкьявике. Вариант 2. Планы © Александр Солдатов. ЦХИАР

– Расскажите немного подробнее об этом самом перспективном на ваш взгляд проекте. О каких ограничениях и градостроительных сложностях Вы упомянули?

– Площадь всех этажей храма не должна была превышать 300 м2. Цифра определена местными архитекторами исходя из градостроительных параметров участка. Поскольку вокруг находится в основном частная застройка, высота храма была тоже жёстко ограничена: порядка 20 м до креста. В результате неизбежно объем получался довольно приземистым. Кроме того, сама конфигурация участка оказалась довольно сложной, ориентировать храм точно на восток было почти невозможно. В традиционном варианте Александра Солдатова он ориентирован на северо-восток, почти на север, а нам удалось добиться более правильного расположения. Наконец, территория вокруг храма обязательно должна была быть открыта для всех и обеспечивать сквозной проход, так как на землю установлен публичный сервитут. Я стремился создать очень простой, лаконичный и чистый объем, который при этом сложно раскрывался бы в пространстве. Для старых русских храмов очень свойственная такая скульптурность, разное восприятие с разных сторон, они активно взаимодействуют с окружающим пространством. Поэтому изначально я заложил в проект большую вариативность фасадов. На северном, например, углубил окна, что позволило компенсировать недостаток света для выявления пластики и создания впечатления характерной мощной стены. А южный фасад изначально получил сложный абрис, который позволил довольно простым способом как-то разнообразить его восприятие. Когда солнце меняет своё положение в течении дня, меняется и светотеневой рисунок на фасаде, надобности как-то усложнять пластику стены уже нет, так что здесь окна расположены вровень с плоскостью стены. Внутреннее пространство храма не имеет традиционной весовой тектоники, а, подчиняясь скорее смысловой тектонике, перетекает от главного храмового престола к баптистерию, а затем к звоннице. И в этом пространстве «посажены» купола, которые соответствуют двум престолам. Ещё один использованный мной прием: разделение внутреннего и внешнего пространства, при этом вход становится элементом как бы выплеснувшегося на лаконичный фасад детально проработанного, сакрального интерьера. Эту роль исполняет резной деревянный портал. Тут уместно вспомнить традиционные резные наличники.
Проект русского культурного центра в Рейкьявике. 2 вариант © Даниил Макаров. ТО «Квадратура Круга»
Проект русского культурного центра в Рейкьявике. 2 вариант © Даниил Макаров. ТО «Квадратура Круга»

Проект русского культурного центра в Рейкьявике. 2 вариант © Даниил Макаров. ТО «Квадратура Круга»
Проект русского культурного центра в Рейкьявике. 2 вариант © Даниил Макаров. ТО «Квадратура Круга»

Проект русского культурного центра в Рейкьявике. 2 вариант © Даниил Макаров. ТО «Квадратура Круга»
Проект русского культурного центра в Рейкьявике. 2 вариант © Даниил Макаров. ТО «Квадратура Круга»

Проект русского культурного центра в Рейкьявике. 2 вариант © Даниил Макаров. ТО «Квадратура Круга»
Проект русского культурного центра в Рейкьявике. 2 вариант © Даниил Макаров. ТО «Квадратура Круга»

Проект русского культурного центра в Рейкьявике. 2 вариант. Развертка фасадов © Даниил Макаров. ТО «Квадратура Круга»
Проект русского культурного центра в Рейкьявике. 2 вариант. Развертка фасадов © Даниил Макаров. ТО «Квадратура Круга»

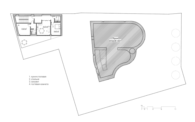
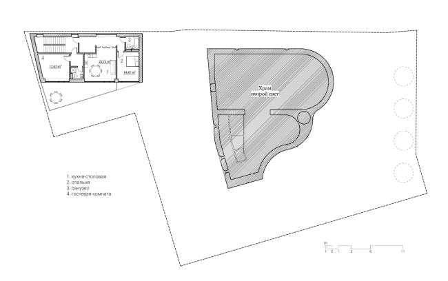
Проект русского культурного центра в Рейкьявике. 2 вариант. План -1-го этажа © Даниил Макаров. ТО «Квадратура Круга»
Проект русского культурного центра в Рейкьявике. 2 вариант. План -1-го этажа © Даниил Макаров. ТО «Квадратура Круга»

Проект русского культурного центра в Рейкьявике. 2 вариант. План 1-го этажа © Даниил Макаров. ТО «Квадратура Круга»
Проект русского культурного центра в Рейкьявике. 2 вариант. План 1-го этажа © Даниил Макаров. ТО «Квадратура Круга»

Проект русского культурного центра в Рейкьявике. 2 вариант. План 2-го этажа © Даниил Макаров. ТО «Квадратура Круга»
Проект русского культурного центра в Рейкьявике. 2 вариант. План 2-го этажа © Даниил Макаров. ТО «Квадратура Круга»

Проект русского культурного центра в Рейкьявике. 2 вариант. Вид с птичьего полета © Даниил Макаров. ТО «Квадратура Круга»
Проект русского культурного центра в Рейкьявике. 2 вариант. Вид с птичьего полета © Даниил Макаров. ТО «Квадратура Круга»

– Но всё же более благосклонно был принят традиционный, хорошо нарисованный, но вторичный по своей архитектуре проект. Будут ли подобные заказчики в обозримом будущем готовы поддержать смелые и самостоятельные решения?

– Уверен, что такие времена настанут. И вопрос скорее в том, будет ли готова архитектурная общественность дать цельный, правильный ответ на этот запрос. Очень немногие архитекторы, буквально единицы, сегодня действительно понимают, что такое православный храм. Почти все они выросли из среды реставраторов, что и провоцирует бесконечное воспроизведение исторических образов. При этом есть священники, которые готовы поддержать наши поиски. Собственно, и в этом случае, какого-то резкого отторжения проект не вызвал, насколько я знаю. Так что вопрос только в том, сколько времени понадобится, чтобы преодолеть инерционность храмовой архитектуры, кстати, свойственную российской архитектуре в целом. Поэтому мы стараемся внимательно следить за реакцией на все публикации, очень интересно наблюдать, как меняется со временем отношение к нашим проектам.
***

Даниил Макаров призывает читателей к обсуждению темы и будет рад откликам и мнениям. Редакции также интересно, что вы думаете об архитектуре современных храмов. Пишите комментарии. 
беседовала: Анна Старостина