|
Продолжаем серию публикаций об архитектуре Южного Тироля: детский сад и реконструкция школы от бюро MoDus.
В Южном Тироле архитектуре образовательных учреждений уделяют большое внимание. Поэтому, когда в этой провинции осознали несоответствие между существующими стандартами строительства школ и детских садов и новыми, более современными формами обучения, то строительные нормы в этой сфере с 2009 года сделали гораздо более гибкими. Теперь архитекторам разрешено свободно распоряжаться квадратными и кубическими метрами без каких-либо ограничений относительно размеров коридоров, классных комнат и прочих помещений в угоду учебным программам.
Обязательным стало взаимодействие между преподавателями и зодчими в процессе проектирования; педагоги теперь должны четко формулировать, какую постройку они хотели бы получить в итоге. По мнению тирольских властей, такой подход должен помочь образовательным учреждениям достигнуть принципиально нового уровня, иначе же, если архитектор будет создавать здание без учета педагогической концепции, то оно рискует своей формой не совпасть с функцией. Также в Южном Тироле осознают, что пора модернизировать уже существующие школы и детские сады, чтобы превратить их в более гибкие пространства, которые бы помогали развивать способности детей и позволяли им как чувствовать себя частью сообщества, так и иметь возможность уединиться и, например, почитать в одиночестве книгу.
Детский центр района Фирмиан, Больцано  Детский центр района Фирмиан © Meraner & Hauser
Южнотирольское архитектурное бюро MoDus выиграло международный конкурс на проектирование детского центра в новом жилом районе Фирмиан в Больцано. Задачей для архитекторов стало не просто создание здания, которое бы вместе с церковью формировало на площади культурный центр района, но и сочетание в проекте функций яслей, детского сада и центра семьи (специальное пространство для общения родителей). Детский центр района Фирмиан © Meraner & Hauser
Реализованный проект представляет собой двухэтажное здание криволинейной формы. Вдоль его главной оси расположились отделанные бамбуком внутренние дворики. С восточной стороны детского центра находится вход в детский сад, который имеет в своем распоряжении четыре секции для групповых занятий на первом этаже и ряд помещений на втором этаже. Каждый класс здесь получил большие окна и лоджию, а в интерьере использовано много натуральной древесины (в основном дуба), в лампы интегрированы специальные акустические элементы. Помещения второго этажа, которые делят между собой все зоны детского центра: конференц-зал, многофункциональный зал и зал для занятий музыкой – прекрасно освещены благодаря окнам-фонарям на крыше, а также большим боковым окнам. Зал для занятий музыкой имеет круглую форму и защищен звукоизоляционной штукатуркой на потолке и акустическими деревянными панелями. На этом же уровне находятся творческие лаборатории и комната для сна детского сада. Детский центр района Фирмиан © Meraner & Hauser
Вход в ясли помещен с северной стороны здания. Ясли отделены и одновременно визуально объединены с семейным центром стеклянной стеной. На первом этаже этой секции расположены спальни, помещения для творчества и обучающих занятий, а этажом выше находятся студия творчества, пространство для воспитателей, а также терраса, с которой можно попасть в центральный коридор через большие раздвижные двери. Детский центр района Фирмиан © Meraner & Hauser
Вход в семейный центр отличается щедрой по объему зоной вестибюля, имеющей двойную высоту, а также стеклянную стену, через которую виден внутренний двор. На первом уровне здесь во всех комнатах создана атмосфера защищенности и комфорта, а на втором этаже организована зеленая эксплуатируемая крыша (она сделана не только для красоты, но и из-за закона в провинции Больцано, по которому воздействие жилой застройки на окружающую среду должно минимизироваться). Семейный центр, по желанию властей, должен стать местом встречи родителей и детей нового района. Детский центр района Фирмиан © Meraner & Hauser
В проекте детского центра в Фирмиане педагоги совместно с архитекторами хотели подчеркнуть важность последовательности процессов в воспитании и образовании ребенка путем создания в архитектуре этого здания естественного перехода от яслей к детскому саду и, затем, по мере взросления, к встречам на мероприятиях семейного центра. Детский центр района Фирмиан © MoDus Architects
Нельзя не отметить стремление властей, преподавательского состава и архитекторов к сотрудничеству, а также открытость провинции к изменению строительных норм, что помогло кардинально улучшить там образовательные учреждения.
Реконструкция исторической школы в городе Ора Реконструкция исторической школы в городе Ора © Oskar Da Riz
Архитекторы из бюро MoDus считают, что хорошее здание для детей – это не просто «контейнер», а пространство для их развития, обогащающее образовательный процесс. В Южном Тироле в ходе создания новых школ и детских садов по новым нормам быстро поняли, что старые учебные сооружения тоже необходимо доработать. Одним из примеров такой перестройки стала реконструкция школы в коммуне Ора. Реконструкция исторической школы в городе Ора © Oskar Da Riz
Центральной темой проекта стал столетний каштан на школьном дворе: это дерево архитекторы и педагоги хотели максимально интегрировать в проект, так как для южнотирольцев характерно большое уважение к природе. Кроме того, что на новой школьной площади ему отведено почетное место, мотив его листвы был перенесен на фасады – в виде «аппликации» из стали. Реконструкция исторической школы в городе Ора © Oskar Da Riz
Два новых белых компактных объема фланкируют историческое здание школы. Такой контрастный прием был выбран специально, чтобы выделить отдельные входы. Мотив каштана находит свое отображение не только снаружи, но и в приятных наощупь панелях на стенах помещений. Реконструкция исторической школы в городе Ора © MoDus Architects
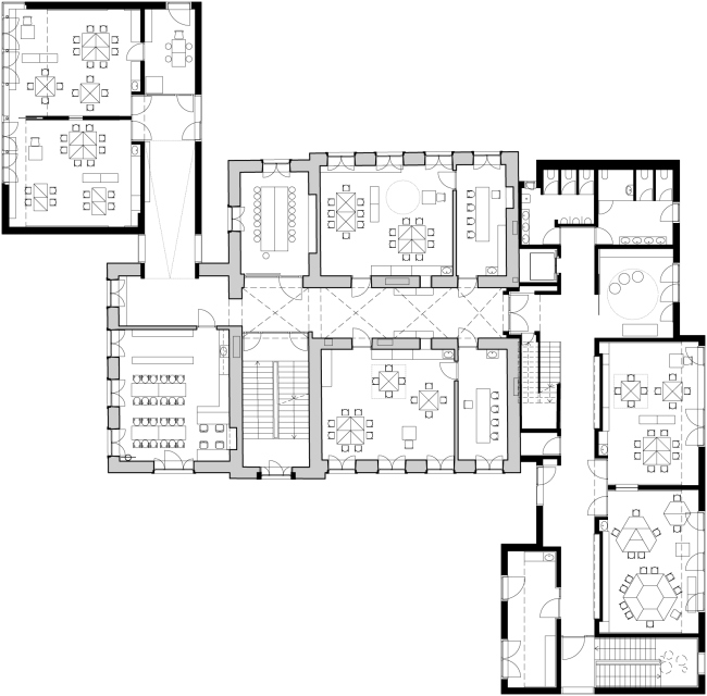
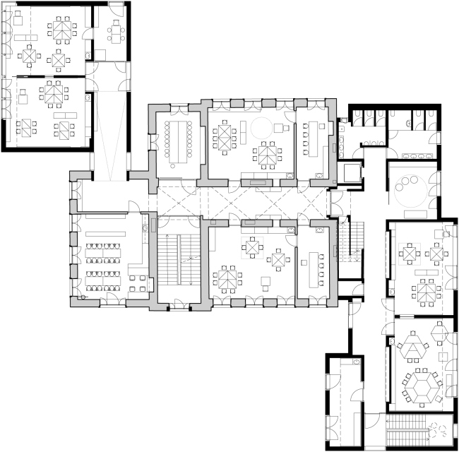
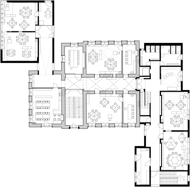
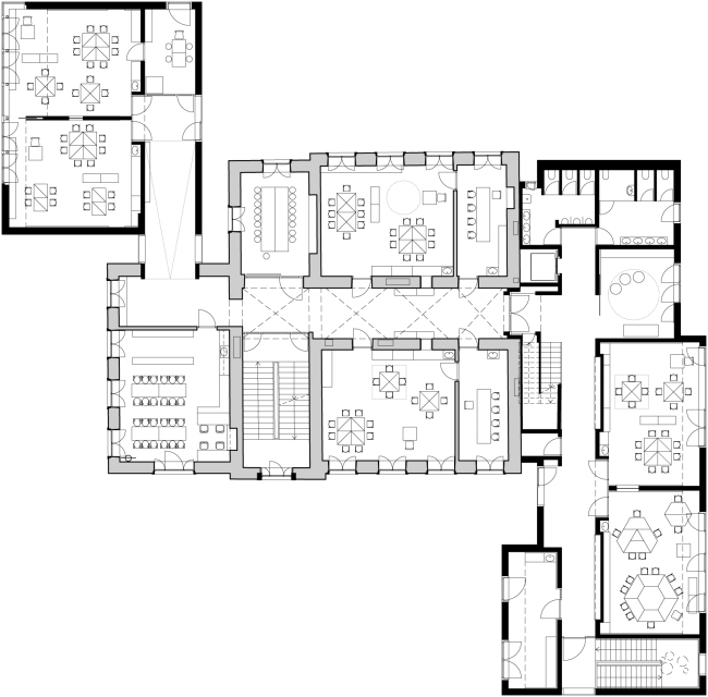
Все общие функции двух школ (старой и новой) – такие, как многофункциональный зал, библиотека, гардеробные, административные помещения – находятся на нижних уровнях здания. Зигзагообразный коридор соединяет три объема учебного комплекса по горизонтали. Директор школы видел в реконструкции возможность развивать новые подходы к обучению и хотел получить стимулирующее общение между учениками здание с меньшим количеством жестких по функции помещений и большим – пространств, располагающих к неформальным встречам.
Реконструкция исторической школы в городе Ора © MoDus Architects
* * *
Важно отметить, что и проект реконструкции школы в коммуне Ора, и детский центр в районе Фирмиан отличает спокойная цветовая гамма, в то время как в России негласно считается, что все, что проектируется для детей, обязательно должно быть ярким. Тирольские проекты показывают, что живость колорита, безусловно, возможна, но совсем не обязательна, и для детей более важной является вариативность пространственных решений – о которой, к сожалению, не часто можно говорить в случае отечественных школ и детских садов. Также очень важен аспект совместной работы педагогов и архитекторов над тирольскими проектами, большая гибкость и готовность к сотрудничеству каждой из сторон. На основе этого ценнейшего опыта была выпущена книга о проектировании образовательных учреждений с различными концепциями от педагогов, муниципальных властей и архитекторов.
|