Размещено на портале Архи.ру (www.archi.ru)

05.08.2016

Избыточно правильный

Анна Старостина
Объект:
Культурный центр Фонда Ставроса Ниархоса
Адрес:
Греция, None, Афины.

В Афинах открылся Культурный центр Фонда Ставроса Ниархоса. Амбициозный проект Ренцо Пьяно обошелся благотворительной организации в 600 млн евро.

Культурный центр Фонда Ставроса Ниархоса © Michel Denancé
Культурный центр Фонда Ставроса Ниархоса © Michel Denancé

Работа над проектом началась еще в относительно благополучное для Греции докризисное время. Инициатором застройки пустующей после Олимпиады парковки почти на самом берегу моря выступил фонд Ставроса Ниархоса, выделивший на реализацию огромные деньги и теперь подаривший культурный центр городу.
Культурный центр Фонда Ставроса Ниархоса © Michel Denancé
Культурный центр Фонда Ставроса Ниархоса © Michel Denancé

Ренцо Пьяно заметил отсутствие у района Каллифея обязательного визуального контакта с морем и попытался исправить ситуацию. Часть огромного парка (он занимает площадь в 175 000 м2 и является одним и самых больших в столице) превращена в искусственный склон площадью 17 000 м2, как бы поглотивший здание. Сам же культурный центр объединяет Национальную библиотеку и два зала (на 1400 мест у основной сцены и 450 мест у экспериментального театра) Национальной оперы вокруг общественного пространства. Его, отдавая необходимую дань истории, назвали «агора».
Культурный центр Фонда Ставроса Ниархоса © Michel Denancé
Культурный центр Фонда Ставроса Ниархоса © Michel Denancé

На самом верху восьмиэтажной, 35-метровой постройки создан полностью стеклянный читальный зал, обеспечивающий панорамные виды и на море, и на город, и на афинский Акрополь, расположенный не так далеко, практически на той же оси. Слава последнего, очевидно, не дает Пьяно покоя. Прозрачный объем накрыт тонким (всего 2 см), изогнутым будто крыло самолета, навесом из армобетона, усиленного мелкой стальной сеткой. Его особая конструкция выдержит даже землетрясение. Вся поверхность этой парящей квадратной крыши покрыта 5698 солнечными батареями. За год они способны произвести около 2,2 ГВт·ч электроэнергии, что вполне покрывает повседневные потребности комплекса.
Культурный центр Фонда Ставроса Ниархоса © Michel Denancé
Культурный центр Фонда Ставроса Ниархоса © Michel Denancé

Соответствие принципам устойчивого строительства – вообще одна из важнейших черт здания, впервые в Греции претендующего на экологический сертификат Leed Platinum. Культурный центр обладает полным набором уже вполне привычных решений: вентилируемые фасады, экономичная сантехника, использование «серой» воды, утилизация отходов строительства, система регенерации тепла, защита от наводнения, максимальный уровень естественного освещения и др. Даже гигантский, 400-метровый искусственный водоем, расположенный вдоль отвесной стены склона, не только задает важную ось парка и формирует основной пешеходный маршрут в сторону моря, но является частью формируемой экосистемы здания и парка.
Культурный центр Фонда Ставроса Ниархоса © SNFCC, фото: Yiorgis Yerolymbos
Культурный центр Фонда Ставроса Ниархоса © SNFCC, фото: Yiorgis Yerolymbos

Казалось бы, Ренцо Пьяно продумал и предусмотрел абсолютно все, создав почти идеальный объект современной архитектуры: экологичность, сложные технологии, одновременно – внимание к потребностям города, вписанность в исторический контекст и т.д. На практике же совсем не ясно, хватит ли у нынешних властей Греции средств и сил на оплату многочисленного персонала и содержание этой, судя по всему, слишком «умной» постройки.
Культурный центр Фонда Ставроса Ниархоса © Michel Denancé
Культурный центр Фонда Ставроса Ниархоса © Michel Denancé
Культурный центр Фонда Ставроса Ниархоса © SNFCC, фото: Yiorgis Yerolymbos
Культурный центр Фонда Ставроса Ниархоса © SNFCC, фото: Yiorgis Yerolymbos
Культурный центр Фонда Ставроса Ниархоса © Ruby on Thursdaya
Культурный центр Фонда Ставроса Ниархоса © Ruby on Thursdaya
Культурный центр Фонда Ставроса Ниархоса © SNFCC, фото: Yiorgis Yerolymbos
Культурный центр Фонда Ставроса Ниархоса © SNFCC, фото: Yiorgis Yerolymbos
Культурный центр Фонда Ставроса Ниархоса © SNFCC, фото: Yiorgis Yerolymbos
Культурный центр Фонда Ставроса Ниархоса © SNFCC, фото: Yiorgis Yerolymbos
Культурный центр Фонда Ставроса Ниархоса © Renzo Piano Building Workshop, фото: Shunji Ishida
Культурный центр Фонда Ставроса Ниархоса © Renzo Piano Building Workshop, фото: Shunji Ishida
Культурный центр Фонда Ставроса Ниархоса © Michel Denancé
Культурный центр Фонда Ставроса Ниархоса © Michel Denancé
Культурный центр Фонда Ставроса Ниархоса © Michel Denancé
Культурный центр Фонда Ставроса Ниархоса © Michel Denancé
Культурный центр Фонда Ставроса Ниархоса © Michel Denancé
Культурный центр Фонда Ставроса Ниархоса © Michel Denancé
Культурный центр Фонда Ставроса Ниархоса © Michel Denancé
Культурный центр Фонда Ставроса Ниархоса © Michel Denancé
Культурный центр Фонда Ставроса Ниархоса © Michel Denancé
Культурный центр Фонда Ставроса Ниархоса © Michel Denancé
Культурный центр Фонда Ставроса Ниархоса © Michel Denancé
Культурный центр Фонда Ставроса Ниархоса © Michel Denancé
Культурный центр Фонда Ставроса Ниархоса © Michel Denancé
Культурный центр Фонда Ставроса Ниархоса © Michel Denancé
Культурный центр Фонда Ставроса Ниархоса © Renzo Piano Building Workshop, фото: Shunji Ishida
Культурный центр Фонда Ставроса Ниархоса © Renzo Piano Building Workshop, фото: Shunji Ishida
Культурный центр Фонда Ставроса Ниархоса © © SNFCC, фото: George Dimitrakopoulous
Культурный центр Фонда Ставроса Ниархоса © © SNFCC, фото: George Dimitrakopoulous
Культурный центр Фонда Ставроса Ниархоса © © SNFCC, фото: George Dimitrakopoulous
Культурный центр Фонда Ставроса Ниархоса © © SNFCC, фото: George Dimitrakopoulous
Культурный центр Фонда Ставроса Ниархоса © Michel Denancé
Культурный центр Фонда Ставроса Ниархоса © Michel Denancé
Культурный центр Фонда Ставроса Ниархоса © Renzo Piano Building Workshop, фото: Shunji Ishida
Культурный центр Фонда Ставроса Ниархоса © Renzo Piano Building Workshop, фото: Shunji Ishida
Культурный центр Фонда Ставроса Ниархоса © SNFCC, фото: Yiorgis Yerolymbos
Культурный центр Фонда Ставроса Ниархоса © SNFCC, фото: Yiorgis Yerolymbos
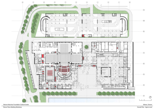
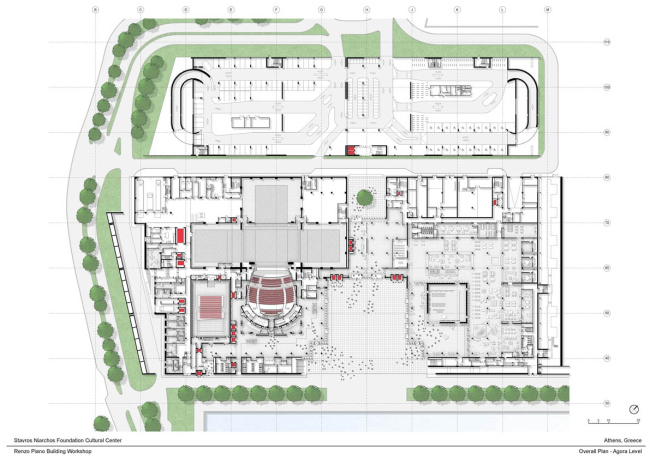
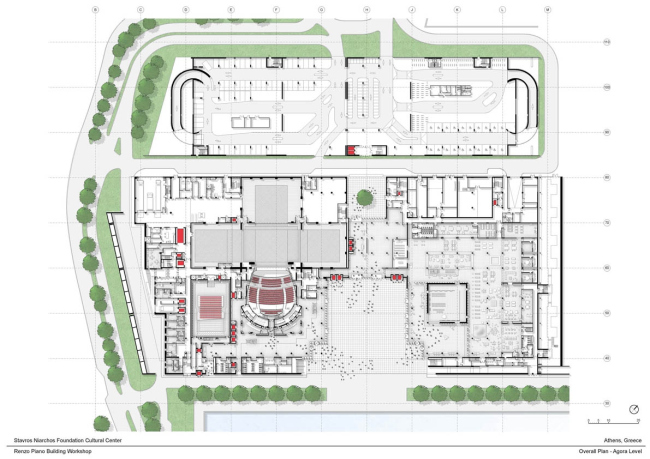
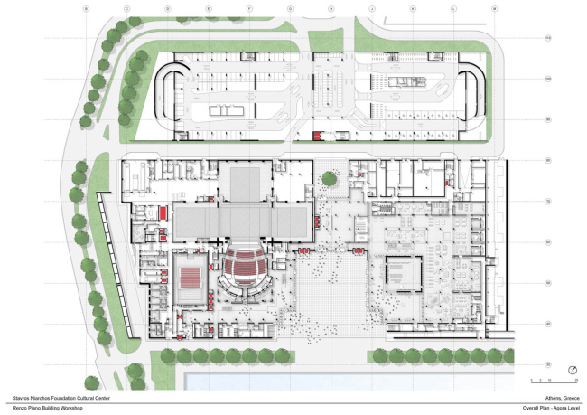
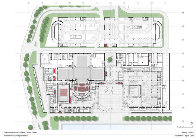
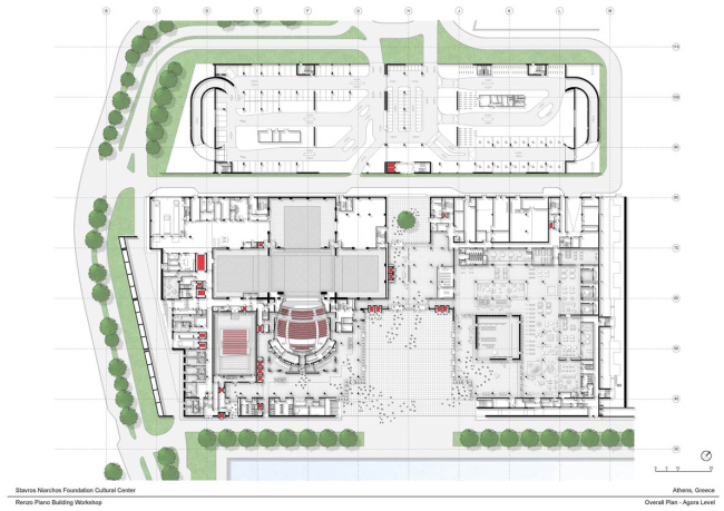
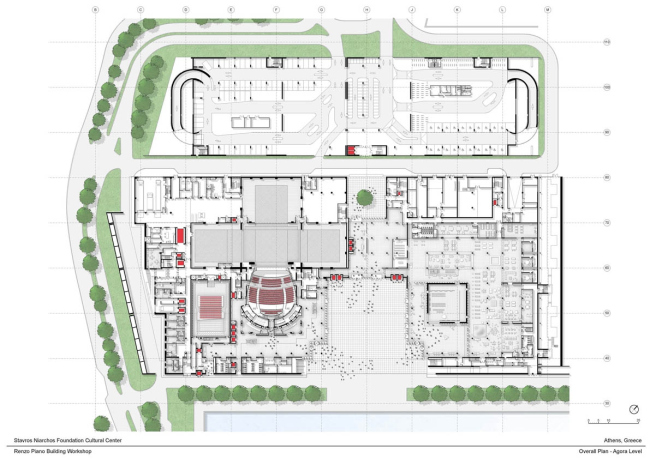
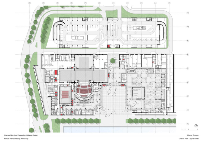
Культурный центр Фонда Ставроса Ниархоса © Renzo Piano Building Workshop
Культурный центр Фонда Ставроса Ниархоса © Renzo Piano Building Workshop
Культурный центр Фонда Ставроса Ниархоса © Renzo Piano Building Workshop
Культурный центр Фонда Ставроса Ниархоса © Renzo Piano Building Workshop
Культурный центр Фонда Ставроса Ниархоса © Renzo Piano Building Workshop
Культурный центр Фонда Ставроса Ниархоса © Renzo Piano Building Workshop
Культурный центр Фонда Ставроса Ниархоса © Renzo Piano Building Workshop
Культурный центр Фонда Ставроса Ниархоса © Renzo Piano Building Workshop
Культурный центр Фонда Ставроса Ниархоса © Renzo Piano Building Workshop
Культурный центр Фонда Ставроса Ниархоса © Renzo Piano Building Workshop
Культурный центр Фонда Ставроса Ниархоса © Renzo Piano Building Workshop, фото: Michel Denancé
Культурный центр Фонда Ставроса Ниархоса © Renzo Piano Building Workshop, фото: Michel Denancé
Культурный центр Фонда Ставроса Ниархоса © Renzo Piano Building Workshop
Культурный центр Фонда Ставроса Ниархоса © Renzo Piano Building Workshop
Культурный центр Фонда Ставроса Ниархоса © Renzo Piano Building Workshop
Культурный центр Фонда Ставроса Ниархоса © Renzo Piano Building Workshop
Культурный центр Фонда Ставроса Ниархоса © Renzo Piano Building Workshop
Культурный центр Фонда Ставроса Ниархоса © Renzo Piano Building Workshop
Культурный центр Фонда Ставроса Ниархоса © Renzo Piano Building Workshop
Культурный центр Фонда Ставроса Ниархоса © Renzo Piano Building Workshop
Культурный центр Фонда Ставроса Ниархоса © Renzo Piano Building Workshop
Культурный центр Фонда Ставроса Ниархоса © Renzo Piano Building Workshop