Размещено на портале Архи.ру (www.archi.ru)

17.02.2017

Третий вал

Лилия Аронова
Объект:
Многофункциональный жилой комплекс на территории завода «Филикровля»
Адрес:
Россия, Москва. Кутузовский проезд, вл. 16
Архитектор:
Борис Левянт
Мастерская:
ABD architects
Авторский коллектив:
Руководитель авторского коллектива: Левянт Б.В.
Заместитель генерального директора про проектированию: Стучебрюков Б.Д.
Директор по управлению проектами: Корзенкова А.В.
Менеджер проекта: Степанов В.Л.
Главные архитекторы проектов: Феоктистова А.В., Сергиенко Н.В.
Архитекторы: Потрясаев Д.И., Калмыков А.В., Абрамзон О.В., Метелова М.В.

Один из фаворитов конкурса «Филикровли» – проект ABD architects, вдохновлён 1970-ми и уделяет много внимания шумозащите территории жилого комплекса.

Многофункциональный жилой комплекс на территории завода «Филикровля». Проект, 2015 © ABD architects
Многофункциональный жилой комплекс на территории завода «Филикровля». Проект, 2015 © ABD architects
Борис Левянт в конкурсном проекте на застройку территории завода «Филикровля» уделил особое внимание проблеме шума, а также максимально использовал достоинства площадки и учёл перспективы её развития. ABD architects предложили расположить на территории четыре жилых объема – три прямоугольные в плане башни, обращенные торцами в сторону железной дороги, и шестисекционный дом, идущий сначала параллельно набережной, а потом плавной дугой загибающийся вглубь участка. На оставшейся части территории предлагается построить школу со спортивными площадками, обустроить рекреационное пространство. Плавной дугой с запада на восток через участок проходит бульвар, спускающийся к набережной. В западной оконечности комплекса запланирована площадь, куда через подземный переход под железной дорогой можно будет попасть непосредственно со станции метро «Фили».
Многофункциональный жилой комплекс на территории завода «Филикровля». Генеральный план. Проект, 2015 © ABD architects
Многофункциональный жилой комплекс на территории завода «Филикровля». Генеральный план. Проект, 2015 © ABD architects
Многофункциональный жилой комплекс на территории завода «Филикровля». Вид с высоты птичьего полёта. Проект, 2015 © ABD architects
Многофункциональный жилой комплекс на территории завода «Филикровля». Вид с высоты птичьего полёта. Проект, 2015 © ABD architects
Многофункциональный жилой комплекс на территории завода «Филикровля». Анализ существующего положения. Проект, 2015 © ABD architects
Многофункциональный жилой комплекс на территории завода «Филикровля». Анализ существующего положения. Проект, 2015 © ABD architects
Многофункциональный жилой комплекс на территории завода «Филикровля». Диаграммы. Проект, 2015 © ABD architects
Многофункциональный жилой комплекс на территории завода «Филикровля». Диаграммы. Проект, 2015 © ABD architects

Что касается автомобильного транспорта, то его движение организуется вокруг участка, с заездом в подземную парковку; проезжая часть центрального бульвара предназначена только для гостей комплекса и спецтехники. Чтобы смягчить шумовой удар с севера, в основании выстроенных вдоль северной границы трёх башен архитекторы разместили стилобат на кровле трехъярусной подземной парковки, обваловав его с внешней стороны и превратив, таким образом, в подобие зелёного холма. Поскольку рельеф понижается на семь метров в сторону реки, ярусы парковки оказались где-то подземными, где-то наземными, но в целом парковка кажется естественным элементом ландшафта. В стилобате же с внешней стороны поместились пространства для ритейла.

Снизить уровень шума помогут также крупномерные деревья, которыми будут засажены пространства между башнями. Кроме того башни обращены в сторону ТТК торцами, а квартирография продумана таким образом, чтобы на север выходили только кухни и лестничные площадки. В качестве своеобразной компенсации – именно из этих окон открывается лучший вид на знаменитый храм Покрова в Филях, который Борис Левянт считает главной жемчужиной района.
Многофункциональный жилой комплекс на территории завода «Филикровля». Вид с высоты птичьего полёта. Проект, 2015 © ABD architects
Многофункциональный жилой комплекс на территории завода «Филикровля». Вид с высоты птичьего полёта. Проект, 2015 © ABD architects
Многофункциональный жилой комплекс на территории завода «Филикровля». Разрез. Проект, 2015 © ABD architects
Многофункциональный жилой комплекс на территории завода «Филикровля». Разрез. Проект, 2015 © ABD architects
Многофункциональный жилой комплекс на территории завода «Филикровля». Разрез. Проект, 2015 © ABD architects
Многофункциональный жилой комплекс на территории завода «Филикровля». Разрез. Проект, 2015 © ABD architects

Ещё одна насыпь, тоже засаженная деревьями, закрывает участок с юга, защищая от шума метро школьный двор, открытый на юг и хорошо освещающийся солнцем. А вот на роль третьего «зелёного вала» вполне может претендовать секционный дом – естественно изогнутый, плавно снижающийся с юго-запада на северо-восток и расширяющийся к югу, с озеленённой крышей, он кажется естественным элементом рельефа, словно поросший травой холм или отрог горной гряды. Ограниченный таким образом со всех трёх сторон, жилой комплекс оказывается практически полностью замкнут внутри самого себя.
Многофункциональный жилой комплекс на территории завода «Филикровля». Проект, 2015 © ABD architects
Многофункциональный жилой комплекс на территории завода «Филикровля». Проект, 2015 © ABD architects

«Он и придумывался, и проектировался как некий анклав, – подтверждает Борис Левянт. – Если смотреть с точки зрения пешеходных зон и первых этажей – это закрытый мирок, изолированный от условно враждебного окружения». Единственный «просвет» – вид со спускающегося к набережной бульвара, откуда открывается панорама реки и башен Москва-Сити. Но полное представление о том, что он находится в центре столицы, человек получает только поднявшись к себе в квартиру и выглянув в окно – и город с этой высоты открывается ему с самой выгодной стороны.

С точки зрения пластического решения башни и секционный дом работают на контрасте. Три строгих вертикальных объема, расчерченных на длинные прямоугольники керамической клеткой тёплого терракотового оттенка – образцы современной высотной архитектуры, они вступают в неизбежный диалог с окружающими доминантами, которых вокруг немало стоит и строится, – это и, в первую очередь, башни Москва-Сити, и Миракс Плаза, и Фили Град, да и дом на Мосфильмовской вполне в пределах видимости… Регулярная структура фасадов сохраняется по всей высоте, кроме первых нескольких этажей, где расположены эффектные входные группы с витражным остеклением по металлическому каркасу, а ритм фасадной сетки почти теряет горизонтальную составляющую, и полностью остекленных верхних этажей: здесь будут пентхаусы с панорамными видами.

Башни – «рёбра жесткости» всего комплекса; всё остальное в нём плавно, текуче, и если высотки отвечают за диалог с городом, то ландшафтная организация внутридворового пространства, линии внутренних артерий, здание школы (в плане – широкая дуга, расширяющаяся к торцам) и прежде всего секционный дом напрямую взаимодействуют с рекой, её изгибами и зелёными берегами. В этом контексте и терракотовая керамика вызывает неизбежные ассоциации с цветом почвы, и террасы на крыше – с каждой секцией здание «теряет» один этаж, и образующиеся пространства предполагалось активно использовать – напоминают зелёные лужайки, и вольно чередующиеся различной ширины пилоны на фасадах кажутся «выросшими» произвольно, словно деревья в лесу. Хотя, конечно, больше всего здесь стекла, особенно на наиболее выигрышном с видовой точки зрения широком южном торце, где глухих участков нет вовсе: ей-богу, грех терять даже минимальную частичку этих невероятных видов. Сам Борис Левянт говорит, что, разрабатывая облик этого здания, ориентировался на архитектуру, условно говоря, 1970-х годов, хотя и на новом качественном уровне, с использованием новейших материалов. «Элементов современного «петельного вязания» избежать тоже не удалось, – добавляет он, – но мне так даже больше нравится».
Многофункциональный жилой комплекс на территории завода «Филикровля». Проект, 2015 © ABD architects
Многофункциональный жилой комплекс на территории завода «Филикровля». Проект, 2015 © ABD architects

Главным рекреационным пространством комплекса должна стать реконструируемая набережная. Со стилобата через бульвар к ней перекинут пешеходный мостик, чтобы жильцы башен могли выйти напрямую к реке, не переходя дорогу. Авторы проекта предлагали не одевать набережную в бетон, оставить её живой, естественной, а к дорожкам на берегу добавить прогулочные маршруты по наплавным понтонам, где можно обустроить и лодочные причалы, и остановки речных трамвайчиков.

"Горячо одобрив проект в целом как наиболее реализуемый из представленных, заказчик попросил нас несколько его доработать, – рассказывает Борис Левянт, – в частности, спроектировать со стороны железной дороги галерейный фланкирующий дом, чтобы ещё надежнее защитить комплекс от шума. Разумеется, это повлекло за собой необходимость переосмысления и других элементов проекта – в целом, работа в рамках конкурса была проделана немалая. Затем о конкурсе было забыто и заказ был передан другой компании".
 
Многофункциональный жилой комплекс на территории завода «Филикровля». Ситуационный план. Проект, 2015 © ABD architects
Многофункциональный жилой комплекс на территории завода «Филикровля». Ситуационный план. Проект, 2015 © ABD architects
Многофункциональный жилой комплекс на территории завода «Филикровля». План 1 этажа со схемой движения транспорта. Проект, 2015 © ABD architects
Многофункциональный жилой комплекс на территории завода «Филикровля». План 1 этажа со схемой движения транспорта. Проект, 2015 © ABD architects
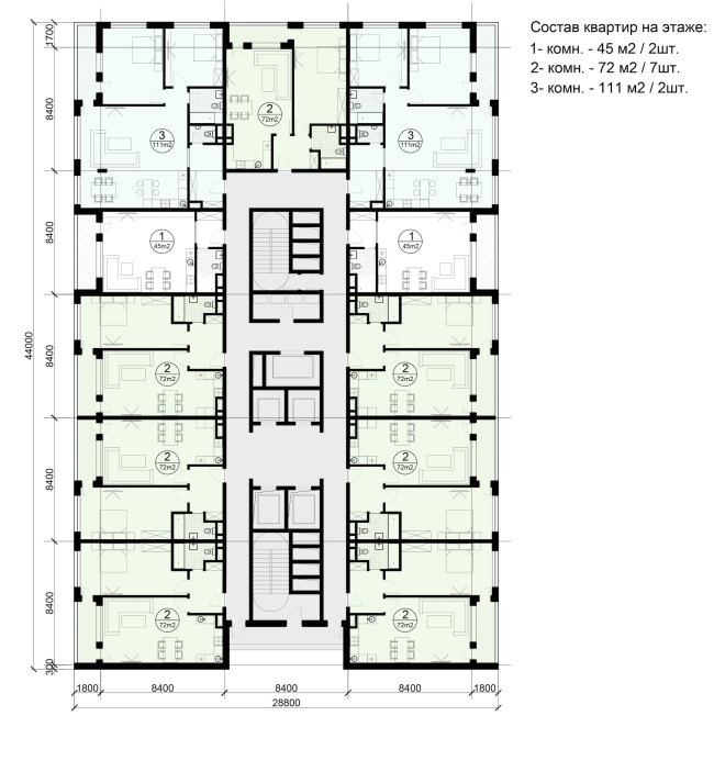
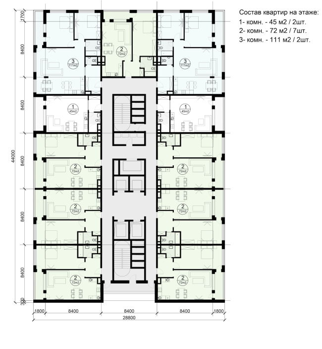
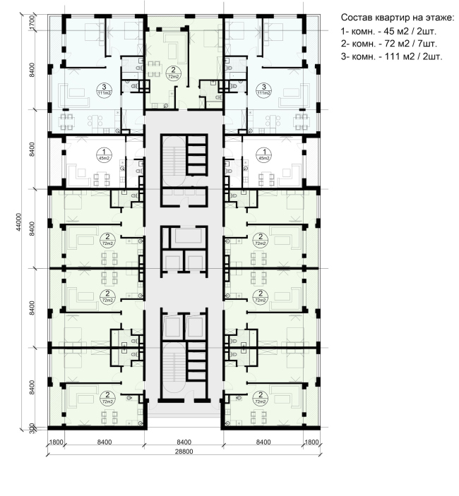
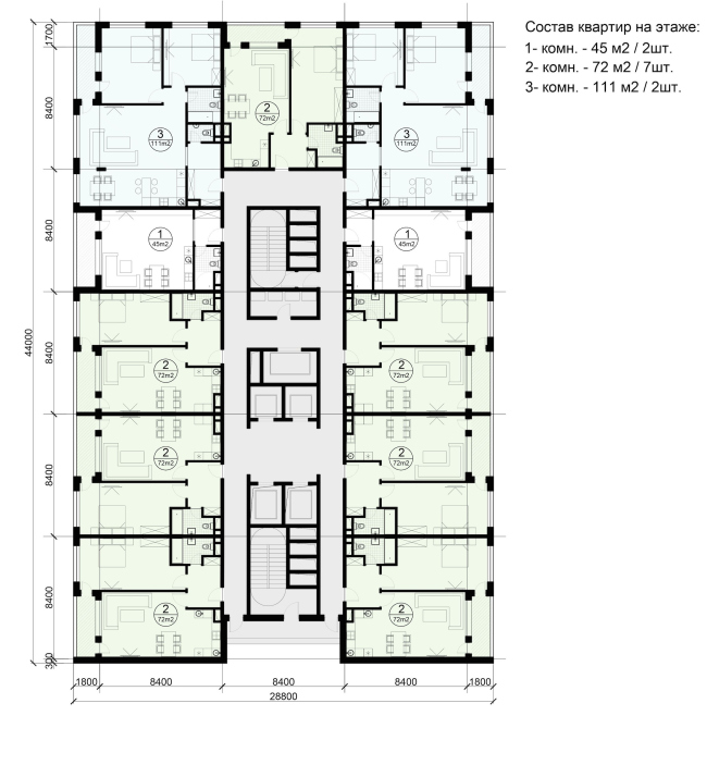
Многофункциональный жилой комплекс на территории завода «Филикровля». План типового этажа секционного дома. Проект, 2015 © ABD architects
Многофункциональный жилой комплекс на территории завода «Филикровля». План типового этажа секционного дома. Проект, 2015 © ABD architects
Многофункциональный жилой комплекс на территории завода «Филикровля». План подземного паркинга. Проект, 2015 © ABD architects
Многофункциональный жилой комплекс на территории завода «Филикровля». План подземного паркинга. Проект, 2015 © ABD architects
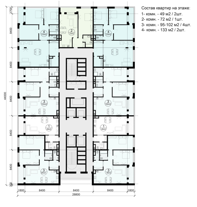
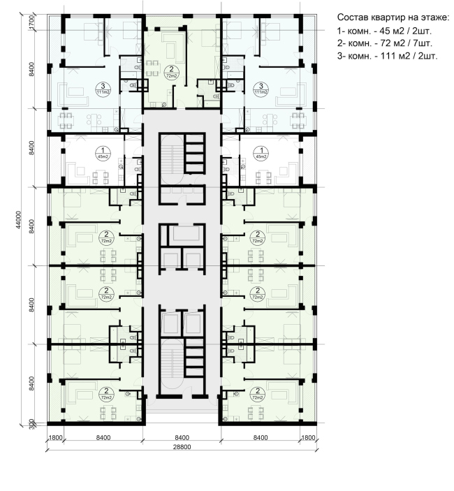
Многофункциональный жилой комплекс на территории завода «Филикровля». План типового этажа башни. Вариант 1. Проект, 2015 © ABD architects
Многофункциональный жилой комплекс на территории завода «Филикровля». План типового этажа башни. Вариант 1. Проект, 2015 © ABD architects
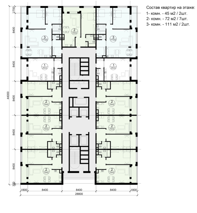
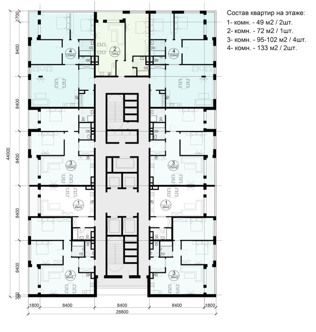
Многофункциональный жилой комплекс на территории завода «Филикровля». План типового этажа башни. Вариант 2. Проект, 2015 © ABD architects
Многофункциональный жилой комплекс на территории завода «Филикровля». План типового этажа башни. Вариант 2. Проект, 2015 © ABD architects
Многофункциональный жилой комплекс на территории завода «Филикровля». План типового этажа башни. Вариант 3. Проект, 2015 © ABD architects
Многофункциональный жилой комплекс на территории завода «Филикровля». План типового этажа башни. Вариант 3. Проект, 2015 © ABD architects
Многофункциональный жилой комплекс на территории завода «Филикровля». План типового этажа башни. Вариант 4. Проект, 2015 © ABD architects
Многофункциональный жилой комплекс на территории завода «Филикровля». План типового этажа башни. Вариант 4. Проект, 2015 © ABD architects