Размещено на портале Архи.ру (www.archi.ru)

04.08.2016

Зеленые стены за белым фасадом

Нина Фролова
Объект:
Офисное здание Leblon Offices
Адрес:
Бразилия, None, Рио-де-Жанейро.

В Рио-де-Жанейро завершена первая латиноамериканская постройка Ричарда Майера: офисное здание Leblon.

Офисное здание Leblon © Roland Halbe
Офисное здание Leblon © Roland Halbe

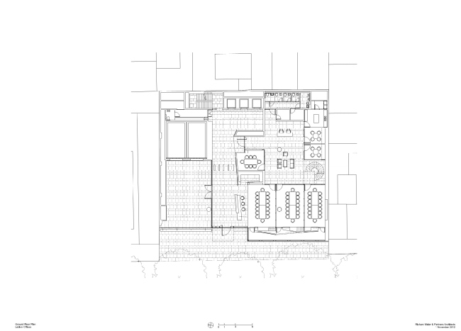
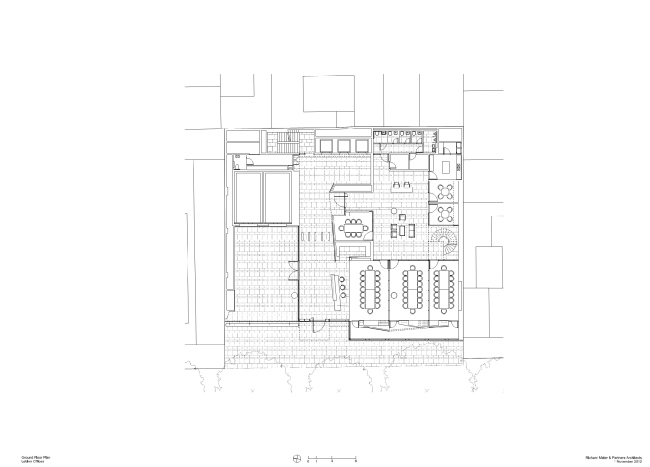
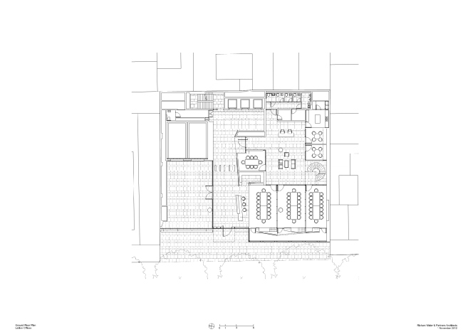
Постройка, носящая название района, где расположена, предназначена для Vinci Partners – крупной бразильской компании, занимающейся альтернативными инвестициями и управлением активами. В 25-метровом здании – 7 надземных этажа и 3 подземных яруса (там имеются площади под аренду и парковка). Из 7500 м2 общей площади 6500 м2 – офисные пространства.
 
Офисное здание Leblon © Roland Halbe
Офисное здание Leblon © Roland Halbe

Здание Leblon выходит главным, западным фасадом на оживленный проспект Бартоломеу Митре, поэтому было очень важным защитить интерьеры от излишнего света, жара, шума и взглядов снаружи. Этой цели служит экран из белых алюминиевых профилей.
 
Офисное здание Leblon © Roland Halbe
Офисное здание Leblon © Roland Halbe

Естественное освещение поступает в помещения через два открытых атриума, играющих роль световых колодцев. Они открывают взгляду бетонное «ядро» здания, также там устроены зеленые стены. Офисы со свободным планом выполнены в более сдержанной манере с преобладанием белого цвета и алюминия.
Офисное здание Leblon © Roland Halbe
Офисное здание Leblon © Roland Halbe
Офисное здание Leblon © Roland Halbe
Офисное здание Leblon © Roland Halbe
Офисное здание Leblon © Roland Halbe
Офисное здание Leblon © Roland Halbe
Офисное здание Leblon © Roland Halbe
Офисное здание Leblon © Roland Halbe
Офисное здание Leblon © Richard Meier & Partners Architects
Офисное здание Leblon © Richard Meier & Partners Architects
Офисное здание Leblon © Richard Meier & Partners Architects
Офисное здание Leblon © Richard Meier & Partners Architects
Офисное здание Leblon © Richard Meier & Partners Architects
Офисное здание Leblon © Richard Meier & Partners Architects
Офисное здание Leblon © Richard Meier & Partners Architects
Офисное здание Leblon © Richard Meier & Partners Architects
Офисное здание Leblon © Richard Meier & Partners Architects
Офисное здание Leblon © Richard Meier & Partners Architects
Офисное здание Leblon © Richard Meier & Partners Architects
Офисное здание Leblon © Richard Meier & Partners Architects
Офисное здание Leblon © Richard Meier & Partners Architects
Офисное здание Leblon © Richard Meier & Partners Architects
Офисное здание Leblon © Richard Meier & Partners Architects
Офисное здание Leblon © Richard Meier & Partners Architects
Офисное здание Leblon © Richard Meier & Partners Architects
Офисное здание Leblon © Richard Meier & Partners Architects